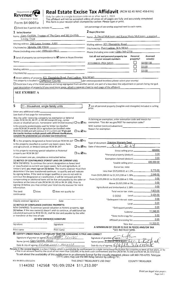
Property
Account |
| Property ID: | 10970 | Abbreviated Legal Description: | DISCOVERY RIDGE DIV III PARCEL 5 |
| Parcel # / Geo ID: | 001195105 | Agent Code: | |
| Type: | Real | | |
| Tax Area: | 0111 - 1-50F1E1H2L1 | Land Use Code | 11 |
| Open Space: | N | DFL | N |
| Historic Property: | N | Remodel Property: | N |
| Multi-Family Redevelopment: | N | | |
| Township: | 30N | Section: | 19 |
| Range: | 1W |
Location |
| Address: | 684 BLUE SKY DR PORT TOWNSEND, WA 98368 | Mapsco: | 142/005 |
| Neighborhood: | S19,30&31T30NR1W,S25T30R2W,ARBUTUS,BAYVIEW CHEVY,DISCO RIDGE | Map ID: | |
| Neighborhood CD: | 5360 |
Owner |
| Name: | GLENN O BRINK | Owner ID: | 12091 |
| Mailing Address: | PEGI KOBELA PO BOX 786 PORT TOWNSEND, WA 98368-0786 | % Ownership: | 100.0000000000% |
| | | Exemptions: | |
Pay Tax Due
Select the appropriate checkbox next to the year to be paid. Multiple years may be selected.
*Convenience Fee not included
Taxes and Assessment Details
Property Tax Information as of
10/23/2025
Click on "Statement Details" to expand or collapse a tax statement.
* Please enter a valid date ** Please enter a valid date *
Statement Details |
| 2025 | 932 | STATE - STATE LEVY (SCHOOL) | $1318.00 | $1317.99 | $0.00 | $0.00 | $1318.00 | $1317.99 |
| 2025 | 932 | COUNTY - COUNTY LEVIES (CE, DD, VET, MH) | $518.29 | $518.29 | $0.00 | $0.00 | $518.29 | $518.29 |
| 2025 | 932 | CONSERVE - CONSERVATION FUTURES | $15.54 | $15.54 | $0.00 | $0.00 | $15.54 | $15.54 |
| 2025 | 932 | COROADS - COUNTY ROADS (ROADS, DIV TO CE) | $415.24 | $415.23 | $0.00 | $0.00 | $415.24 | $415.23 |
| 2025 | 932 | PORTPT - PORT DISTRICT | $211.50 | $211.48 | $0.00 | $0.00 | $211.50 | $211.48 |
| 2025 | 932 | PUD1 - PUD #1 | $33.92 | $33.91 | $0.00 | $0.00 | $33.92 | $33.91 |
| 2025 | 932 | LIB1 - LIBRARY DIST #1 | $160.65 | $160.65 | $0.00 | $0.00 | $160.65 | $160.65 |
| 2025 | 932 | HD2 - HOSP DIST #2 | $30.24 | $30.24 | $0.00 | $0.00 | $30.24 | $30.24 |
| 2025 | 932 | SD50 - SCHOOL DIST #50 | $963.24 | $963.23 | $0.00 | $0.00 | $963.24 | $963.23 |
| 2025 | 932 | FD1 - FIRE DISTRICT #1 | $683.95 | $683.94 | $0.00 | $0.00 | $683.95 | $683.94 |
| 2025 | 932 | EMS1 - FIRE DIST #1 EMS | $263.07 | $263.06 | $0.00 | $0.00 | $263.07 | $263.06 |
| 2025 | 932 | FP - DNR Forest Fire Protection Assmt | $8.50 | $8.50 | $0.00 | $0.00 | $8.50 | $8.50 |
| 2025 | 932 | FPLCA - DNR Landowner Contingency Assmt | $3.00 | $3.00 | $0.00 | $0.00 | $3.00 | $3.00 |
| 2025 | 932 | JCCD - JC Conservation District | $2.80 | $2.80 | $0.00 | $0.00 | $2.80 | $2.80 |
| 2025 | 932 | NWA - Noxious Weed Assessment | $2.90 | $2.90 | $0.00 | $0.00 | $2.90 | $2.90 |
| 2025 | 932 | OSS - On Site Septic | $21.50 | $21.50 | $0.00 | $0.00 | $21.50 | $21.50 |
| 2025 | 932 | WAT - Clean Water District | $13.00 | $13.00 | $0.00 | $0.00 | $13.00 | $13.00 |
| 2025 | 932 | FP ADMIN - FP ADMIN | $0.50 | $0.00 | $0.00 | $0.00 | $0.50 | $0.00 |
| 2025 | 932 | TOTAL: | $4665.84 | $4665.26 | $0.00 | $0.00 | $4665.84 | $4665.26 |
|
| 2025 | 932 | $4665.84 | $4665.26 | $0.00 | $0.00 | $4665.84 | $4665.26 |
Statement Details |
| 2024 | 934 | STATE - STATE LEVY (SCHOOL) | $1179.87 | $1179.86 | $0.00 | $0.00 | $2359.73 | $0.00 |
| 2024 | 934 | COUNTY - COUNTY LEVIES (CE, DD, VET, MH) | $504.88 | $504.86 | $0.00 | $0.00 | $1009.74 | $0.00 |
| 2024 | 934 | CONSERVE - CONSERVATION FUTURES | $15.14 | $15.14 | $0.00 | $0.00 | $30.28 | $0.00 |
| 2024 | 934 | COROADS - COUNTY ROADS (ROADS, DIV TO CE) | $406.26 | $406.25 | $0.00 | $0.00 | $812.51 | $0.00 |
| 2024 | 934 | PORTPT - PORT DISTRICT | $208.54 | $208.53 | $0.00 | $0.00 | $417.07 | $0.00 |
| 2024 | 934 | PUD1 - PUD #1 | $33.16 | $33.16 | $0.00 | $0.00 | $66.32 | $0.00 |
| 2024 | 934 | LIB1 - LIBRARY DIST #1 | $157.18 | $157.17 | $0.00 | $0.00 | $314.35 | $0.00 |
| 2024 | 934 | HD2 - HOSP DIST #2 | $29.46 | $29.46 | $0.00 | $0.00 | $58.92 | $0.00 |
| 2024 | 934 | SD50 - SCHOOL DIST #50 | $954.58 | $954.55 | $0.00 | $0.00 | $1909.13 | $0.00 |
| 2024 | 934 | FD1 - FIRE DISTRICT #1 | $667.57 | $667.56 | $0.00 | $0.00 | $1335.13 | $0.00 |
| 2024 | 934 | EMS1 - FIRE DIST #1 EMS | $254.99 | $254.98 | $0.00 | $0.00 | $509.97 | $0.00 |
| 2024 | 934 | FP - DNR Forest Fire Protection Assmt | $8.50 | $8.50 | $0.00 | $0.00 | $17.00 | $0.00 |
| 2024 | 934 | FPLCA - DNR Landowner Contingency Assmt | $3.00 | $3.00 | $0.00 | $0.00 | $6.00 | $0.00 |
| 2024 | 934 | JCCD - JC Conservation District | $2.80 | $2.80 | $0.00 | $0.00 | $5.60 | $0.00 |
| 2024 | 934 | NWA - Noxious Weed Assessment | $2.90 | $2.90 | $0.00 | $0.00 | $5.80 | $0.00 |
| 2024 | 934 | OSS - On Site Septic | $21.00 | $21.00 | $0.00 | $0.00 | $42.00 | $0.00 |
| 2024 | 934 | WAT - Clean Water District | $12.50 | $12.50 | $0.00 | $0.00 | $25.00 | $0.00 |
| 2024 | 934 | FP ADMIN - FP ADMIN | $0.50 | $0.00 | $0.00 | $0.00 | $0.50 | $0.00 |
| 2024 | 934 | TOTAL: | $4462.83 | $4462.22 | $0.00 | $0.00 | $8925.05 | $0.00 |
|
| 2024 | 934 | $4462.83 | $4462.22 | $0.00 | $0.00 | $8925.05 | $0.00 |
Statement Details |
| 2023 | 934 | STATE - STATE LEVY (SCHOOL) | $1092.85 | $1092.85 | $0.00 | $0.00 | $2185.70 | $0.00 |
| 2023 | 934 | COUNTY - COUNTY LEVIES (CE, DD, VET, MH) | $476.89 | $476.87 | $0.00 | $0.00 | $953.76 | $0.00 |
| 2023 | 934 | CONSERVE - CONSERVATION FUTURES | $14.30 | $14.30 | $0.00 | $0.00 | $28.60 | $0.00 |
| 2023 | 934 | COROADS - COUNTY ROADS (ROADS, DIV TO CE) | $385.84 | $385.83 | $0.00 | $0.00 | $771.67 | $0.00 |
| 2023 | 934 | PORTPT - PORT DISTRICT | $200.90 | $200.88 | $0.00 | $0.00 | $401.78 | $0.00 |
| 2023 | 934 | PUD1 - PUD #1 | $31.61 | $31.61 | $0.00 | $0.00 | $63.22 | $0.00 |
| 2023 | 934 | LIB1 - LIBRARY DIST #1 | $149.28 | $149.27 | $0.00 | $0.00 | $298.55 | $0.00 |
| 2023 | 934 | HD2 - HOSP DIST #2 | $27.84 | $27.82 | $0.00 | $0.00 | $55.66 | $0.00 |
| 2023 | 934 | SD50 - SCHOOL DIST #50 | $867.21 | $867.18 | $0.00 | $0.00 | $1734.39 | $0.00 |
| 2023 | 934 | FD1 - FIRE DISTRICT #1 | $392.86 | $392.86 | $0.00 | $0.00 | $785.72 | $0.00 |
| 2023 | 934 | EMS1 - FIRE DIST #1 EMS | $167.12 | $167.11 | $0.00 | $0.00 | $334.23 | $0.00 |
| 2023 | 934 | FP - DNR Forest Fire Protection Assmt | $8.50 | $8.50 | $0.00 | $0.00 | $17.00 | $0.00 |
| 2023 | 934 | FPLCA - DNR Landowner Contingency Assmt | $3.00 | $3.00 | $0.00 | $0.00 | $6.00 | $0.00 |
| 2023 | 934 | JCCD - JC Conservation District | $2.80 | $2.80 | $0.00 | $0.00 | $5.60 | $0.00 |
| 2023 | 934 | NWA - Noxious Weed Assessment | $2.90 | $2.90 | $0.00 | $0.00 | $5.80 | $0.00 |
| 2023 | 934 | OSS - On Site Septic | $20.50 | $20.50 | $0.00 | $0.00 | $41.00 | $0.00 |
| 2023 | 934 | WAT - Clean Water District | $12.00 | $12.00 | $0.00 | $0.00 | $24.00 | $0.00 |
| 2023 | 934 | FP ADMIN - FP ADMIN | $0.50 | $0.00 | $0.00 | $0.00 | $0.50 | $0.00 |
| 2023 | 934 | TOTAL: | $3856.90 | $3856.28 | $0.00 | $0.00 | $7713.18 | $0.00 |
|
| 2023 | 934 | $3856.90 | $3856.28 | $0.00 | $0.00 | $7713.18 | $0.00 |
Statement Details |
| 2022 | 936 | STATE - STATE LEVY (SCHOOL) | $1000.33 | $1000.32 | $0.00 | $0.00 | $2000.65 | $0.00 |
| 2022 | 936 | COUNTY - COUNTY LEVIES (CE, DD, VET, MH) | $445.70 | $445.70 | $0.00 | $0.00 | $891.40 | $0.00 |
| 2022 | 936 | CONSERVE - CONSERVATION FUTURES | $13.37 | $13.36 | $0.00 | $0.00 | $26.73 | $0.00 |
| 2022 | 936 | COROADS - COUNTY ROADS (ROADS, DIV TO CE) | $362.25 | $362.23 | $0.00 | $0.00 | $724.48 | $0.00 |
| 2022 | 936 | PORTPT - PORT DISTRICT | $190.81 | $190.80 | $0.00 | $0.00 | $381.61 | $0.00 |
| 2022 | 936 | PUD1 - PUD #1 | $29.81 | $29.80 | $0.00 | $0.00 | $59.61 | $0.00 |
| 2022 | 936 | LIB1 - LIBRARY DIST #1 | $140.15 | $140.15 | $0.00 | $0.00 | $280.30 | $0.00 |
| 2022 | 936 | HD2 - HOSP DIST #2 | $26.02 | $26.01 | $0.00 | $0.00 | $52.03 | $0.00 |
| 2022 | 936 | SD50 - SCHOOL DIST #50 | $741.30 | $741.29 | $0.00 | $0.00 | $1482.59 | $0.00 |
| 2022 | 936 | FD1 - FIRE DISTRICT #1 | $365.64 | $365.63 | $0.00 | $0.00 | $731.27 | $0.00 |
| 2022 | 936 | EMS1 - FIRE DIST #1 EMS | $155.53 | $155.52 | $0.00 | $0.00 | $311.05 | $0.00 |
| 2022 | 936 | FP - DNR Forest Fire Protection Assmt | $8.50 | $8.50 | $0.00 | $0.00 | $17.00 | $0.00 |
| 2022 | 936 | FPLCA - DNR Landowner Contingency Assmt | $3.00 | $3.00 | $0.00 | $0.00 | $6.00 | $0.00 |
| 2022 | 936 | JCCD - JC Conservation District | $2.80 | $2.80 | $0.00 | $0.00 | $5.60 | $0.00 |
| 2022 | 936 | NWA - Noxious Weed Assessment | $2.90 | $2.90 | $0.00 | $0.00 | $5.80 | $0.00 |
| 2022 | 936 | OSS - On Site Septic | $19.50 | $19.50 | $0.00 | $0.00 | $39.00 | $0.00 |
| 2022 | 936 | WAT - Clean Water District | $11.50 | $11.50 | $0.00 | $0.00 | $23.00 | $0.00 |
| 2022 | 936 | FP ADMIN - FP ADMIN | $0.50 | $0.00 | $0.00 | $0.00 | $0.50 | $0.00 |
| 2022 | 936 | TOTAL: | $3519.61 | $3519.01 | $0.00 | $0.00 | $7038.62 | $0.00 |
|
| 2022 | 936 | $3519.61 | $3519.01 | $0.00 | $0.00 | $7038.62 | $0.00 |
Values
| (+) Improvement Homesite Value: | + | $0 | |
| (+) Improvement Non-Homesite Value: | + | $862,451 | |
| (+) Land Homesite Value: | + | $0 | |
| (+) Land Non-Homesite Value: | + | $236,781 | |
| (+) Curr Use (HS): | + | $0 | $0 |
| (+) Curr Use (NHS): | + | $0 | $0 |
| | | -------------------------- | |
| (=) Market Value: | = | $1,099,232 | |
| (–) Productivity Loss: | – | $0 | |
| | | -------------------------- | |
| (=) Subtotal: | = | $1,099,232 | |
| (+) Senior Appraised Value: | + | $0 | |
| (+) Non-Senior Appraised Value: | + | $1,099,232 | |
| | | -------------------------- | |
| (=) Total Appraised Value: | = | $1,099,232 | |
| (–) Senior Exemption Loss: | – | $0 | |
| (–) Exemption Loss: | – | $0 | |
| | | -------------------------- | |
| (=) Taxable Value: | = | $1,099,232 | |
Taxing Jurisdiction
| Owner: | GLENN O BRINK | | |
| % Ownership: | 100.0000000000% | | |
| Total Value: | N/A | | |
| Tax Area: | 0111 - 1-50F1E1H2L1 |
| CE | COUNTY CURRENT EXPENSE | N/A | N/A | N/A | N/A | | |
| CNTYDD | DEVELOPMENTAL DISABILITIES | N/A | N/A | N/A | N/A | | |
| CNTYVET | VETERANS RELIEF | N/A | N/A | N/A | N/A | | |
| MENTAL | MENTAL HEALTH | N/A | N/A | N/A | N/A | | |
| ROADS | COUNTY ROADS | N/A | N/A | N/A | N/A | | |
| ROADSCU | COUNTY ROADS TO CUR EXP | N/A | N/A | N/A | N/A | | |
| HOSP2CASH | HOSP DIST #2 GENERAL | N/A | N/A | N/A | N/A | | |
| SCH50BOND | SCHOOL DIST #50 BOND 2016 | N/A | N/A | N/A | N/A | | |
| SCH50CP | SCHOOL DIST #50 CAP PROJ | N/A | N/A | N/A | N/A | | |
| SCH50MO | SCHOOL DIST #50 EP & O | N/A | N/A | N/A | N/A | | |
| CONSERVE | CONSERVATION FUTURES | N/A | N/A | N/A | N/A | | |
| EMS1 | FIRE DIST #1 EMS | N/A | N/A | N/A | N/A | | |
| FD1 | FIRE DIST #1 GENERAL | N/A | N/A | N/A | N/A | | |
| LIB1 | LIBRARY DIST #1 GENERAL | N/A | N/A | N/A | N/A | | |
| PORTPT | PORT OF PT GENERAL | N/A | N/A | N/A | N/A | | |
| PORTPTIDD | PORT OF PT IDD 2019 | N/A | N/A | N/A | N/A | | |
| PUD1 | PUD #1 GENERAL | N/A | N/A | N/A | N/A | | |
| STATE | STATE SCHOOL PART 1 | N/A | N/A | N/A | N/A | | |
| STATE2 | STATE SCHOOL PART 2 | N/A | N/A | N/A | N/A | | |
| | Total Tax Rate: | N/A | | | | | |
| | | | | Taxes w/Current Exemptions: | N/A | | |
| | | | | Taxes w/o Exemptions: | N/A | | |
Improvement / Building
| Improvement #1: | Residential Bldg | State Code: | 11 | 2377.0 sqft | Value: | $862,451 |
| Bathrooms (#): | 2 (FULL) | Bathrooms (#): | 1 (HALF) | | Bedrooms (#): | 2 | Exterior Wall: | SI/ST | | Fireplace: | SIN 2-GOOD | Fireplace: | WD ST-GOOD | | Floor Construction: | FRAME | Foundation: | CONPR | | Heating/Cooling: | F/A | Roof Cover: | METAL |
|
| | Type | Description | Class CD | Sub Class CD | Year Built | Area |
| | MA | Main Area | 4+ | 2S | 2001 | 2000.0 |
| | MA2 | Second Floor Main Area | 4+ | 2S | 2001 | 377.0 |
| | PATIO | House Patio | 4 | 2S | 2001 | 245.0 |
| | HCPOR | House Concrete Porch | 4 | 2S | 2001 | 150.0 |
| | HDECK | House Deck | 4 | 2S | 2001 | 245.0 |
| | GATT | House Attached Garage | 4 | 2S | 2001 | 576.0 |
| | CARPTF | Carport W/Floor | 4 | 2S | 2001 | 504.0 |
| | OTHER | Other | 4 | 2S | 2001 | 0.0 |
| | GDET | Detached Garage | 4 | 2S | 2001 | 1296.0 |
| | BSMTF | House basement finished | 4 | 2S | 2001 | 2000.0 |
Sketch
| No sketches available for this property. |
Property Image
Land
| 1 | 1575A | | 4.3100 | 187743.60 | 0.00 | 0.00 | 0.00 | $49,781 | $0 |
| 2 | 5360-1345S | | 1.0000 | 43560.00 | 0.00 | 0.00 | 1.00 | $187,000 | $0 |
Roll Value History
| 2025 | N/A | N/A | N/A | N/A | N/A |
| 2024 | $862,451 | $236,781 | $0 | $1,099,232 | $1,099,232 |
| 2023 | $801,433 | $218,505 | $0 | $1,019,938 | $1,019,938 |
| 2022 | $728,575 | $199,868 | $0 | $928,443 | $928,443 |
| 2021 | $551,951 | $179,743 | $0 | $731,694 | $731,694 |
Deed and Sales History
| 1 | 03/23/1999 | SWD | Statutory Warranty Deed | RUBEL, EDWIN W/WENDY | BRINK, GLENN/KOBELA, PEGI | 0 | 0 | $71,000.00 | 86590 | 0 |
Payout Agreement
| No payout information available.. |