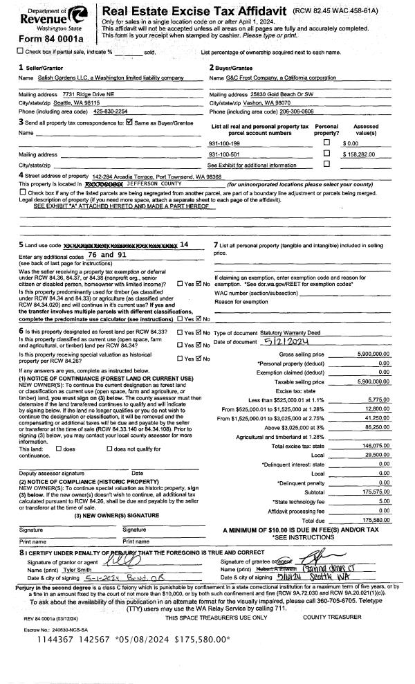
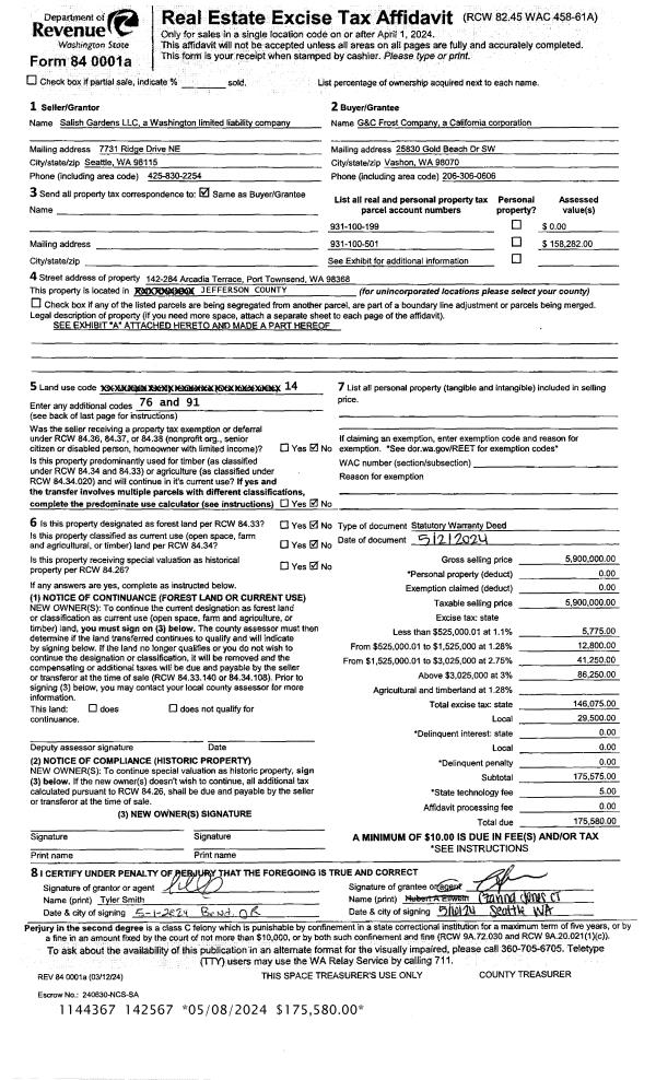
Property
Account |
| Property ID: | 10979 | Abbreviated Legal Description: | DISCOVERY RIDGE DIV III PARCEL 14 |
| Parcel # / Geo ID: | 001195114 | Agent Code: | |
| Type: | Real | | |
| Tax Area: | 0111 - 1-50F1E1H2L1 | Land Use Code | 11 |
| Open Space: | N | DFL | N |
| Historic Property: | N | Remodel Property: | N |
| Multi-Family Redevelopment: | N | | |
| Township: | 30N | Section: | 19 |
| Range: | 1W |
Location |
| Address: | 95 BLUE HILL CT PORT TOWNSEND, WA 98368 | Mapsco: | 142/014 |
| Neighborhood: | S19,30&31T30NR1W,S25T30R2W,ARBUTUS,BAYVIEW CHEVY,DISCO RIDGE | Map ID: | |
| Neighborhood CD: | 5360 |
Owner |
| Name: | JAMES L HARPER | Owner ID: | 17562 |
| Mailing Address: | CLARA ANN HARPER PO BOX 1758 PORT TOWNSEND, WA 98368-0180 | % Ownership: | 100.0000000000% |
| | | Exemptions: | |
Pay Tax Due
There is currently No Amount Due on this property.
Taxes and Assessment Details
Property Tax Information as of
10/23/2025
Click on "Statement Details" to expand or collapse a tax statement.
* Please enter a valid date ** Please enter a valid date *
Statement Details |
| 2025 | 941 | STATE - STATE LEVY (SCHOOL) | $1125.30 | $1125.30 | $0.00 | $0.00 | $2250.60 | $0.00 |
| 2025 | 941 | COUNTY - COUNTY LEVIES (CE, DD, VET, MH) | $442.54 | $442.50 | $0.00 | $0.00 | $885.04 | $0.00 |
| 2025 | 941 | CONSERVE - CONSERVATION FUTURES | $13.27 | $13.27 | $0.00 | $0.00 | $26.54 | $0.00 |
| 2025 | 941 | COROADS - COUNTY ROADS (ROADS, DIV TO CE) | $354.53 | $354.52 | $0.00 | $0.00 | $709.05 | $0.00 |
| 2025 | 941 | PORTPT - PORT DISTRICT | $180.58 | $180.57 | $0.00 | $0.00 | $361.15 | $0.00 |
| 2025 | 941 | PUD1 - PUD #1 | $28.96 | $28.95 | $0.00 | $0.00 | $57.91 | $0.00 |
| 2025 | 941 | LIB1 - LIBRARY DIST #1 | $137.17 | $137.16 | $0.00 | $0.00 | $274.33 | $0.00 |
| 2025 | 941 | HD2 - HOSP DIST #2 | $25.82 | $25.82 | $0.00 | $0.00 | $51.64 | $0.00 |
| 2025 | 941 | SD50 - SCHOOL DIST #50 | $822.41 | $822.40 | $0.00 | $0.00 | $1644.81 | $0.00 |
| 2025 | 941 | FD1 - FIRE DISTRICT #1 | $583.95 | $583.95 | $0.00 | $0.00 | $1167.90 | $0.00 |
| 2025 | 941 | EMS1 - FIRE DIST #1 EMS | $224.61 | $224.60 | $0.00 | $0.00 | $449.21 | $0.00 |
| 2025 | 941 | FP - DNR Forest Fire Protection Assmt | $8.50 | $8.50 | $0.00 | $0.00 | $17.00 | $0.00 |
| 2025 | 941 | FPLCA - DNR Landowner Contingency Assmt | $3.00 | $3.00 | $0.00 | $0.00 | $6.00 | $0.00 |
| 2025 | 941 | JCCD - JC Conservation District | $2.75 | $2.75 | $0.00 | $0.00 | $5.50 | $0.00 |
| 2025 | 941 | NWA - Noxious Weed Assessment | $2.75 | $2.75 | $0.00 | $0.00 | $5.50 | $0.00 |
| 2025 | 941 | OSS - On Site Septic | $21.50 | $21.50 | $0.00 | $0.00 | $43.00 | $0.00 |
| 2025 | 941 | WAT - Clean Water District | $13.00 | $13.00 | $0.00 | $0.00 | $26.00 | $0.00 |
| 2025 | 941 | FP ADMIN - FP ADMIN | $0.50 | $0.00 | $0.00 | $0.00 | $0.50 | $0.00 |
| 2025 | 941 | TOTAL: | $3991.14 | $3990.54 | $0.00 | $0.00 | $7981.68 | $0.00 |
|
| 2025 | 941 | $3991.14 | $3990.54 | $0.00 | $0.00 | $7981.68 | $0.00 |
Statement Details |
| 2024 | 943 | STATE - STATE LEVY (SCHOOL) | $1005.58 | $1005.56 | $0.00 | $0.00 | $2011.14 | $0.00 |
| 2024 | 943 | COUNTY - COUNTY LEVIES (CE, DD, VET, MH) | $430.30 | $430.29 | $0.00 | $0.00 | $860.59 | $0.00 |
| 2024 | 943 | CONSERVE - CONSERVATION FUTURES | $12.91 | $12.90 | $0.00 | $0.00 | $25.81 | $0.00 |
| 2024 | 943 | COROADS - COUNTY ROADS (ROADS, DIV TO CE) | $346.25 | $346.24 | $0.00 | $0.00 | $692.49 | $0.00 |
| 2024 | 943 | PORTPT - PORT DISTRICT | $177.73 | $177.73 | $0.00 | $0.00 | $355.46 | $0.00 |
| 2024 | 943 | PUD1 - PUD #1 | $28.27 | $28.26 | $0.00 | $0.00 | $56.53 | $0.00 |
| 2024 | 943 | LIB1 - LIBRARY DIST #1 | $133.96 | $133.96 | $0.00 | $0.00 | $267.92 | $0.00 |
| 2024 | 943 | HD2 - HOSP DIST #2 | $25.11 | $25.10 | $0.00 | $0.00 | $50.21 | $0.00 |
| 2024 | 943 | SD50 - SCHOOL DIST #50 | $813.56 | $813.55 | $0.00 | $0.00 | $1627.11 | $0.00 |
| 2024 | 943 | FD1 - FIRE DISTRICT #1 | $568.95 | $568.95 | $0.00 | $0.00 | $1137.90 | $0.00 |
| 2024 | 943 | EMS1 - FIRE DIST #1 EMS | $217.32 | $217.32 | $0.00 | $0.00 | $434.64 | $0.00 |
| 2024 | 943 | FP - DNR Forest Fire Protection Assmt | $8.50 | $8.50 | $0.00 | $0.00 | $17.00 | $0.00 |
| 2024 | 943 | FPLCA - DNR Landowner Contingency Assmt | $3.00 | $3.00 | $0.00 | $0.00 | $6.00 | $0.00 |
| 2024 | 943 | JCCD - JC Conservation District | $2.75 | $2.75 | $0.00 | $0.00 | $5.50 | $0.00 |
| 2024 | 943 | NWA - Noxious Weed Assessment | $2.75 | $2.75 | $0.00 | $0.00 | $5.50 | $0.00 |
| 2024 | 943 | OSS - On Site Septic | $21.00 | $21.00 | $0.00 | $0.00 | $42.00 | $0.00 |
| 2024 | 943 | WAT - Clean Water District | $12.50 | $12.50 | $0.00 | $0.00 | $25.00 | $0.00 |
| 2024 | 943 | FP ADMIN - FP ADMIN | $0.50 | $0.00 | $0.00 | $0.00 | $0.50 | $0.00 |
| 2024 | 943 | TOTAL: | $3810.94 | $3810.36 | $0.00 | $0.00 | $7621.30 | $0.00 |
|
| 2024 | 943 | $3810.94 | $3810.36 | $0.00 | $0.00 | $7621.30 | $0.00 |
Statement Details |
| 2023 | 943 | STATE - STATE LEVY (SCHOOL) | $931.74 | $931.73 | $0.00 | $0.00 | $1863.47 | $0.00 |
| 2023 | 943 | COUNTY - COUNTY LEVIES (CE, DD, VET, MH) | $406.59 | $406.57 | $0.00 | $0.00 | $813.16 | $0.00 |
| 2023 | 943 | CONSERVE - CONSERVATION FUTURES | $12.19 | $12.19 | $0.00 | $0.00 | $24.38 | $0.00 |
| 2023 | 943 | COROADS - COUNTY ROADS (ROADS, DIV TO CE) | $328.96 | $328.94 | $0.00 | $0.00 | $657.90 | $0.00 |
| 2023 | 943 | PORTPT - PORT DISTRICT | $171.28 | $171.27 | $0.00 | $0.00 | $342.55 | $0.00 |
| 2023 | 943 | PUD1 - PUD #1 | $26.95 | $26.95 | $0.00 | $0.00 | $53.90 | $0.00 |
| 2023 | 943 | LIB1 - LIBRARY DIST #1 | $127.27 | $127.27 | $0.00 | $0.00 | $254.54 | $0.00 |
| 2023 | 943 | HD2 - HOSP DIST #2 | $23.73 | $23.72 | $0.00 | $0.00 | $47.45 | $0.00 |
| 2023 | 943 | SD50 - SCHOOL DIST #50 | $739.35 | $739.34 | $0.00 | $0.00 | $1478.69 | $0.00 |
| 2023 | 943 | FD1 - FIRE DISTRICT #1 | $334.94 | $334.94 | $0.00 | $0.00 | $669.88 | $0.00 |
| 2023 | 943 | EMS1 - FIRE DIST #1 EMS | $142.48 | $142.48 | $0.00 | $0.00 | $284.96 | $0.00 |
| 2023 | 943 | FP - DNR Forest Fire Protection Assmt | $8.50 | $8.50 | $0.00 | $0.00 | $17.00 | $0.00 |
| 2023 | 943 | FPLCA - DNR Landowner Contingency Assmt | $3.00 | $3.00 | $0.00 | $0.00 | $6.00 | $0.00 |
| 2023 | 943 | JCCD - JC Conservation District | $2.75 | $2.75 | $0.00 | $0.00 | $5.50 | $0.00 |
| 2023 | 943 | NWA - Noxious Weed Assessment | $2.75 | $2.75 | $0.00 | $0.00 | $5.50 | $0.00 |
| 2023 | 943 | OSS - On Site Septic | $20.50 | $20.50 | $0.00 | $0.00 | $41.00 | $0.00 |
| 2023 | 943 | WAT - Clean Water District | $12.00 | $12.00 | $0.00 | $0.00 | $24.00 | $0.00 |
| 2023 | 943 | FP ADMIN - FP ADMIN | $0.50 | $0.00 | $0.00 | $0.00 | $0.50 | $0.00 |
| 2023 | 943 | TOTAL: | $3295.48 | $3294.90 | $0.00 | $0.00 | $6590.38 | $0.00 |
|
| 2023 | 943 | $3295.48 | $3294.90 | $0.00 | $0.00 | $6590.38 | $0.00 |
Statement Details |
| 2022 | 945 | STATE - STATE LEVY (SCHOOL) | $857.93 | $857.91 | $0.00 | $0.00 | $1715.84 | $0.00 |
| 2022 | 945 | COUNTY - COUNTY LEVIES (CE, DD, VET, MH) | $382.26 | $382.24 | $0.00 | $0.00 | $764.50 | $0.00 |
| 2022 | 945 | CONSERVE - CONSERVATION FUTURES | $11.46 | $11.46 | $0.00 | $0.00 | $22.92 | $0.00 |
| 2022 | 945 | COROADS - COUNTY ROADS (ROADS, DIV TO CE) | $310.68 | $310.66 | $0.00 | $0.00 | $621.34 | $0.00 |
| 2022 | 945 | PORTPT - PORT DISTRICT | $163.64 | $163.64 | $0.00 | $0.00 | $327.28 | $0.00 |
| 2022 | 945 | PUD1 - PUD #1 | $25.56 | $25.56 | $0.00 | $0.00 | $51.12 | $0.00 |
| 2022 | 945 | LIB1 - LIBRARY DIST #1 | $120.20 | $120.19 | $0.00 | $0.00 | $240.39 | $0.00 |
| 2022 | 945 | HD2 - HOSP DIST #2 | $22.32 | $22.31 | $0.00 | $0.00 | $44.63 | $0.00 |
| 2022 | 945 | SD50 - SCHOOL DIST #50 | $635.77 | $635.74 | $0.00 | $0.00 | $1271.51 | $0.00 |
| 2022 | 945 | FD1 - FIRE DISTRICT #1 | $313.59 | $313.58 | $0.00 | $0.00 | $627.17 | $0.00 |
| 2022 | 945 | EMS1 - FIRE DIST #1 EMS | $133.39 | $133.38 | $0.00 | $0.00 | $266.77 | $0.00 |
| 2022 | 945 | FP - DNR Forest Fire Protection Assmt | $8.50 | $8.50 | $0.00 | $0.00 | $17.00 | $0.00 |
| 2022 | 945 | FPLCA - DNR Landowner Contingency Assmt | $3.00 | $3.00 | $0.00 | $0.00 | $6.00 | $0.00 |
| 2022 | 945 | JCCD - JC Conservation District | $2.75 | $2.75 | $0.00 | $0.00 | $5.50 | $0.00 |
| 2022 | 945 | NWA - Noxious Weed Assessment | $2.75 | $2.75 | $0.00 | $0.00 | $5.50 | $0.00 |
| 2022 | 945 | OSS - On Site Septic | $19.50 | $19.50 | $0.00 | $0.00 | $39.00 | $0.00 |
| 2022 | 945 | WAT - Clean Water District | $11.50 | $11.50 | $0.00 | $0.00 | $23.00 | $0.00 |
| 2022 | 945 | FP ADMIN - FP ADMIN | $0.50 | $0.00 | $0.00 | $0.00 | $0.50 | $0.00 |
| 2022 | 945 | TOTAL: | $3025.30 | $3024.67 | $0.00 | $0.00 | $6049.97 | $0.00 |
|
| 2022 | 945 | $3025.30 | $3024.67 | $0.00 | $0.00 | $6049.97 | $0.00 |
Values
| (+) Improvement Homesite Value: | + | $0 | |
| (+) Improvement Non-Homesite Value: | + | $705,323 | |
| (+) Land Homesite Value: | + | $0 | |
| (+) Land Non-Homesite Value: | + | $233,200 | |
| (+) Curr Use (HS): | + | $0 | $0 |
| (+) Curr Use (NHS): | + | $0 | $0 |
| | | -------------------------- | |
| (=) Market Value: | = | $938,523 | |
| (–) Productivity Loss: | – | $0 | |
| | | -------------------------- | |
| (=) Subtotal: | = | $938,523 | |
| (+) Senior Appraised Value: | + | $0 | |
| (+) Non-Senior Appraised Value: | + | $938,523 | |
| | | -------------------------- | |
| (=) Total Appraised Value: | = | $938,523 | |
| (–) Senior Exemption Loss: | – | $0 | |
| (–) Exemption Loss: | – | $0 | |
| | | -------------------------- | |
| (=) Taxable Value: | = | $938,523 | |
Taxing Jurisdiction
| Owner: | JAMES L HARPER | | |
| % Ownership: | 100.0000000000% | | |
| Total Value: | N/A | | |
| Tax Area: | 0111 - 1-50F1E1H2L1 |
| CE | COUNTY CURRENT EXPENSE | N/A | N/A | N/A | N/A | | |
| CNTYDD | DEVELOPMENTAL DISABILITIES | N/A | N/A | N/A | N/A | | |
| CNTYVET | VETERANS RELIEF | N/A | N/A | N/A | N/A | | |
| MENTAL | MENTAL HEALTH | N/A | N/A | N/A | N/A | | |
| ROADS | COUNTY ROADS | N/A | N/A | N/A | N/A | | |
| ROADSCU | COUNTY ROADS TO CUR EXP | N/A | N/A | N/A | N/A | | |
| HOSP2CASH | HOSP DIST #2 GENERAL | N/A | N/A | N/A | N/A | | |
| SCH50BOND | SCHOOL DIST #50 BOND 2016 | N/A | N/A | N/A | N/A | | |
| SCH50CP | SCHOOL DIST #50 CAP PROJ | N/A | N/A | N/A | N/A | | |
| SCH50MO | SCHOOL DIST #50 EP & O | N/A | N/A | N/A | N/A | | |
| CONSERVE | CONSERVATION FUTURES | N/A | N/A | N/A | N/A | | |
| EMS1 | FIRE DIST #1 EMS | N/A | N/A | N/A | N/A | | |
| FD1 | FIRE DIST #1 GENERAL | N/A | N/A | N/A | N/A | | |
| LIB1 | LIBRARY DIST #1 GENERAL | N/A | N/A | N/A | N/A | | |
| PORTPT | PORT OF PT GENERAL | N/A | N/A | N/A | N/A | | |
| PORTPTIDD | PORT OF PT IDD 2019 | N/A | N/A | N/A | N/A | | |
| PUD1 | PUD #1 GENERAL | N/A | N/A | N/A | N/A | | |
| STATE | STATE SCHOOL PART 1 | N/A | N/A | N/A | N/A | | |
| STATE2 | STATE SCHOOL PART 2 | N/A | N/A | N/A | N/A | | |
| | Total Tax Rate: | N/A | | | | | |
| | | | | Taxes w/Current Exemptions: | N/A | | |
| | | | | Taxes w/o Exemptions: | N/A | | |
Improvement / Building
| Improvement #1: | Residential Bldg | State Code: | 11 | 2392.0 sqft | Value: | $705,323 |
| Bathrooms (#): | 3 (FULL) | Bedrooms (#): | 3 | | Exterior Wall: | SI/ST | Fireplace: | WD ST-GOOD | | Floor Construction: | FRAME | Foundation: | CONPR | | Heating/Cooling: | HPUMP | Roof Cover: | COMP |
|
| | Type | Description | Class CD | Sub Class CD | Year Built | Area |
| | MA | Main Area | 5- | 2S | 1997 | 1562.0 |
| | MA2 | Second Floor Main Area | 5- | 2S | 1997 | 830.0 |
| | HWPOR | House Wood Porch | 4 | 2S | 1997 | 84.0 |
| | HBAL | House Balcony | 4 | 2S | 1997 | 130.0 |
| | HDECK | House Deck | 4 | 2S | 1997 | 330.0 |
| | GATT | House Attached Garage | 4 | 2S | 1997 | 484.0 |
| | HENCL | House Enclosure | 4 | 2S | 1997 | 130.0 |
| | GDET | Detached Garage | 2 | 2S | 1997 | 960.0 |
| | BSMTF | House basement finished | 4 | 2S | 1997 | 1182.0 |
Sketch
| No sketches available for this property. |
Property Image
Land
| 1 | 1575A | | 4.0000 | 174240.00 | 0.00 | 0.00 | 0.00 | $46,200 | $0 |
| 2 | 5360-1345S | | 1.0000 | 43560.00 | 0.00 | 0.00 | 1.00 | $187,000 | $0 |
Roll Value History
| 2025 | N/A | N/A | N/A | N/A | N/A |
| 2024 | $705,323 | $233,200 | $0 | $938,523 | $938,523 |
| 2023 | $654,023 | $215,250 | $0 | $869,273 | $869,273 |
| 2022 | $594,566 | $197,000 | $0 | $791,566 | $791,566 |
| 2021 | $450,429 | $177,100 | $0 | $627,529 | $627,529 |
Deed and Sales History
Payout Agreement
| No payout information available.. |