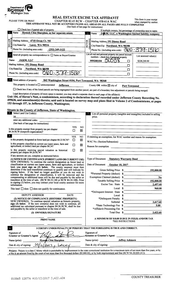
Property
Account |
| Property ID: | 10987 | Abbreviated Legal Description: | DISCOVERY BAY RIDGE DIV V PARCEL 2 SUBJ TO CC&R OF RECORD V660P426 |
| Parcel # / Geo ID: | 001195122 | Agent Code: | |
| Type: | Real | | |
| Tax Area: | 0111 - 1-50F1E1H2L1 | Land Use Code | 11 |
| Open Space: | N | DFL | N |
| Historic Property: | N | Remodel Property: | N |
| Multi-Family Redevelopment: | N | | |
| Township: | 30N | Section: | 19 |
| Range: | 1W |
Location |
| Address: | 365 DISCOVERY RIDGE RD PORT TOWNSEND, WA 98368 | Mapsco: | 143/002 |
| Neighborhood: | S19,30&31T30NR1W,S25T30R2W,ARBUTUS,BAYVIEW CHEVY,DISCO RIDGE | Map ID: | |
| Neighborhood CD: | 5360 |
Owner |
| Name: | THOMAS A DACON | Owner ID: | 14027 |
| Mailing Address: | LINDA K DACON 363 DISCOVERY RIDGE RD PORT TOWNSEND, WA 98368-9083 | % Ownership: | 100.0000000000% |
| | | Exemptions: | |
Pay Tax Due
There is currently No Amount Due on this property.
Taxes and Assessment Details
Property Tax Information as of
10/23/2025
Click on "Statement Details" to expand or collapse a tax statement.
* Please enter a valid date ** Please enter a valid date *
Statement Details |
| 2025 | 949 | STATE - STATE LEVY (SCHOOL) | $692.04 | $692.03 | $0.00 | $0.00 | $1384.07 | $0.00 |
| 2025 | 949 | COUNTY - COUNTY LEVIES (CE, DD, VET, MH) | $272.14 | $272.14 | $0.00 | $0.00 | $544.28 | $0.00 |
| 2025 | 949 | CONSERVE - CONSERVATION FUTURES | $8.16 | $8.16 | $0.00 | $0.00 | $16.32 | $0.00 |
| 2025 | 949 | COROADS - COUNTY ROADS (ROADS, DIV TO CE) | $218.03 | $218.02 | $0.00 | $0.00 | $436.05 | $0.00 |
| 2025 | 949 | PORTPT - PORT DISTRICT | $111.05 | $111.04 | $0.00 | $0.00 | $222.09 | $0.00 |
| 2025 | 949 | PUD1 - PUD #1 | $17.81 | $17.80 | $0.00 | $0.00 | $35.61 | $0.00 |
| 2025 | 949 | LIB1 - LIBRARY DIST #1 | $84.35 | $84.35 | $0.00 | $0.00 | $168.70 | $0.00 |
| 2025 | 949 | HD2 - HOSP DIST #2 | $15.88 | $15.87 | $0.00 | $0.00 | $31.75 | $0.00 |
| 2025 | 949 | SD50 - SCHOOL DIST #50 | $505.77 | $505.75 | $0.00 | $0.00 | $1011.52 | $0.00 |
| 2025 | 949 | FD1 - FIRE DISTRICT #1 | $359.12 | $359.11 | $0.00 | $0.00 | $718.23 | $0.00 |
| 2025 | 949 | EMS1 - FIRE DIST #1 EMS | $138.13 | $138.12 | $0.00 | $0.00 | $276.25 | $0.00 |
| 2025 | 949 | FP - DNR Forest Fire Protection Assmt | $8.50 | $8.50 | $0.00 | $0.00 | $17.00 | $0.00 |
| 2025 | 949 | FPLCA - DNR Landowner Contingency Assmt | $3.00 | $3.00 | $0.00 | $0.00 | $6.00 | $0.00 |
| 2025 | 949 | JCCD - JC Conservation District | $2.75 | $2.75 | $0.00 | $0.00 | $5.50 | $0.00 |
| 2025 | 949 | NWA - Noxious Weed Assessment | $2.75 | $2.75 | $0.00 | $0.00 | $5.50 | $0.00 |
| 2025 | 949 | OSS - On Site Septic | $21.50 | $21.50 | $0.00 | $0.00 | $43.00 | $0.00 |
| 2025 | 949 | WAT - Clean Water District | $13.00 | $13.00 | $0.00 | $0.00 | $26.00 | $0.00 |
| 2025 | 949 | FP ADMIN - FP ADMIN | $0.50 | $0.00 | $0.00 | $0.00 | $0.50 | $0.00 |
| 2025 | 949 | TOTAL: | $2474.48 | $2473.89 | $0.00 | $0.00 | $4948.37 | $0.00 |
|
| 2025 | 949 | $2474.48 | $2473.89 | $0.00 | $0.00 | $4948.37 | $0.00 |
Statement Details |
| 2024 | 951 | STATE - STATE LEVY (SCHOOL) | $609.86 | $609.85 | $0.00 | $0.00 | $1219.71 | $0.00 |
| 2024 | 951 | COUNTY - COUNTY LEVIES (CE, DD, VET, MH) | $260.98 | $260.95 | $0.00 | $0.00 | $521.93 | $0.00 |
| 2024 | 951 | CONSERVE - CONSERVATION FUTURES | $7.83 | $7.82 | $0.00 | $0.00 | $15.65 | $0.00 |
| 2024 | 951 | COROADS - COUNTY ROADS (ROADS, DIV TO CE) | $209.99 | $209.98 | $0.00 | $0.00 | $419.97 | $0.00 |
| 2024 | 951 | PORTPT - PORT DISTRICT | $107.79 | $107.78 | $0.00 | $0.00 | $215.57 | $0.00 |
| 2024 | 951 | PUD1 - PUD #1 | $17.14 | $17.14 | $0.00 | $0.00 | $34.28 | $0.00 |
| 2024 | 951 | LIB1 - LIBRARY DIST #1 | $81.24 | $81.24 | $0.00 | $0.00 | $162.48 | $0.00 |
| 2024 | 951 | HD2 - HOSP DIST #2 | $15.23 | $15.22 | $0.00 | $0.00 | $30.45 | $0.00 |
| 2024 | 951 | SD50 - SCHOOL DIST #50 | $493.41 | $493.39 | $0.00 | $0.00 | $986.80 | $0.00 |
| 2024 | 951 | FD1 - FIRE DISTRICT #1 | $345.06 | $345.05 | $0.00 | $0.00 | $690.11 | $0.00 |
| 2024 | 951 | EMS1 - FIRE DIST #1 EMS | $131.80 | $131.80 | $0.00 | $0.00 | $263.60 | $0.00 |
| 2024 | 951 | FP - DNR Forest Fire Protection Assmt | $8.50 | $8.50 | $0.00 | $0.00 | $17.00 | $0.00 |
| 2024 | 951 | FPLCA - DNR Landowner Contingency Assmt | $3.00 | $3.00 | $0.00 | $0.00 | $6.00 | $0.00 |
| 2024 | 951 | JCCD - JC Conservation District | $2.75 | $2.75 | $0.00 | $0.00 | $5.50 | $0.00 |
| 2024 | 951 | NWA - Noxious Weed Assessment | $2.75 | $2.75 | $0.00 | $0.00 | $5.50 | $0.00 |
| 2024 | 951 | OSS - On Site Septic | $21.00 | $21.00 | $0.00 | $0.00 | $42.00 | $0.00 |
| 2024 | 951 | WAT - Clean Water District | $12.50 | $12.50 | $0.00 | $0.00 | $25.00 | $0.00 |
| 2024 | 951 | FP ADMIN - FP ADMIN | $0.50 | $0.00 | $0.00 | $0.00 | $0.50 | $0.00 |
| 2024 | 951 | TOTAL: | $2331.33 | $2330.72 | $0.00 | $0.00 | $4662.05 | $0.00 |
|
| 2024 | 951 | $2331.33 | $2330.72 | $0.00 | $0.00 | $4662.05 | $0.00 |
Statement Details |
| 2023 | 951 | STATE - STATE LEVY (SCHOOL) | $564.08 | $564.07 | $0.00 | $0.00 | $1128.15 | $0.00 |
| 2023 | 951 | COUNTY - COUNTY LEVIES (CE, DD, VET, MH) | $246.16 | $246.12 | $0.00 | $0.00 | $492.28 | $0.00 |
| 2023 | 951 | CONSERVE - CONSERVATION FUTURES | $7.38 | $7.38 | $0.00 | $0.00 | $14.76 | $0.00 |
| 2023 | 951 | COROADS - COUNTY ROADS (ROADS, DIV TO CE) | $199.16 | $199.14 | $0.00 | $0.00 | $398.30 | $0.00 |
| 2023 | 951 | PORTPT - PORT DISTRICT | $103.70 | $103.68 | $0.00 | $0.00 | $207.38 | $0.00 |
| 2023 | 951 | PUD1 - PUD #1 | $16.32 | $16.31 | $0.00 | $0.00 | $32.63 | $0.00 |
| 2023 | 951 | LIB1 - LIBRARY DIST #1 | $77.05 | $77.05 | $0.00 | $0.00 | $154.10 | $0.00 |
| 2023 | 951 | HD2 - HOSP DIST #2 | $14.37 | $14.36 | $0.00 | $0.00 | $28.73 | $0.00 |
| 2023 | 951 | SD50 - SCHOOL DIST #50 | $447.62 | $447.59 | $0.00 | $0.00 | $895.21 | $0.00 |
| 2023 | 951 | FD1 - FIRE DISTRICT #1 | $202.78 | $202.77 | $0.00 | $0.00 | $405.55 | $0.00 |
| 2023 | 951 | EMS1 - FIRE DIST #1 EMS | $86.26 | $86.25 | $0.00 | $0.00 | $172.51 | $0.00 |
| 2023 | 951 | FP - DNR Forest Fire Protection Assmt | $8.50 | $8.50 | $0.00 | $0.00 | $17.00 | $0.00 |
| 2023 | 951 | FPLCA - DNR Landowner Contingency Assmt | $3.00 | $3.00 | $0.00 | $0.00 | $6.00 | $0.00 |
| 2023 | 951 | JCCD - JC Conservation District | $2.75 | $2.75 | $0.00 | $0.00 | $5.50 | $0.00 |
| 2023 | 951 | NWA - Noxious Weed Assessment | $2.75 | $2.75 | $0.00 | $0.00 | $5.50 | $0.00 |
| 2023 | 951 | OSS - On Site Septic | $20.50 | $20.50 | $0.00 | $0.00 | $41.00 | $0.00 |
| 2023 | 951 | WAT - Clean Water District | $12.00 | $12.00 | $0.00 | $0.00 | $24.00 | $0.00 |
| 2023 | 951 | FP ADMIN - FP ADMIN | $0.50 | $0.00 | $0.00 | $0.00 | $0.50 | $0.00 |
| 2023 | 951 | TOTAL: | $2014.88 | $2014.22 | $0.00 | $0.00 | $4029.10 | $0.00 |
|
| 2023 | 951 | $2014.88 | $2014.22 | $0.00 | $0.00 | $4029.10 | $0.00 |
Statement Details |
| 2022 | 953 | STATE - STATE LEVY (SCHOOL) | $521.82 | $521.81 | $0.00 | $0.00 | $1043.63 | $0.00 |
| 2022 | 953 | COUNTY - COUNTY LEVIES (CE, DD, VET, MH) | $232.51 | $232.49 | $0.00 | $0.00 | $465.00 | $0.00 |
| 2022 | 953 | CONSERVE - CONSERVATION FUTURES | $6.97 | $6.97 | $0.00 | $0.00 | $13.94 | $0.00 |
| 2022 | 953 | COROADS - COUNTY ROADS (ROADS, DIV TO CE) | $188.97 | $188.96 | $0.00 | $0.00 | $377.93 | $0.00 |
| 2022 | 953 | PORTPT - PORT DISTRICT | $99.54 | $99.53 | $0.00 | $0.00 | $199.07 | $0.00 |
| 2022 | 953 | PUD1 - PUD #1 | $15.55 | $15.55 | $0.00 | $0.00 | $31.10 | $0.00 |
| 2022 | 953 | LIB1 - LIBRARY DIST #1 | $73.11 | $73.11 | $0.00 | $0.00 | $146.22 | $0.00 |
| 2022 | 953 | HD2 - HOSP DIST #2 | $13.57 | $13.57 | $0.00 | $0.00 | $27.14 | $0.00 |
| 2022 | 953 | SD50 - SCHOOL DIST #50 | $386.70 | $386.68 | $0.00 | $0.00 | $773.38 | $0.00 |
| 2022 | 953 | FD1 - FIRE DISTRICT #1 | $190.74 | $190.73 | $0.00 | $0.00 | $381.47 | $0.00 |
| 2022 | 953 | EMS1 - FIRE DIST #1 EMS | $81.13 | $81.13 | $0.00 | $0.00 | $162.26 | $0.00 |
| 2022 | 953 | FP - DNR Forest Fire Protection Assmt | $8.50 | $8.50 | $0.00 | $0.00 | $17.00 | $0.00 |
| 2022 | 953 | FPLCA - DNR Landowner Contingency Assmt | $3.00 | $3.00 | $0.00 | $0.00 | $6.00 | $0.00 |
| 2022 | 953 | JCCD - JC Conservation District | $2.75 | $2.75 | $0.00 | $0.00 | $5.50 | $0.00 |
| 2022 | 953 | NWA - Noxious Weed Assessment | $2.75 | $2.75 | $0.00 | $0.00 | $5.50 | $0.00 |
| 2022 | 953 | OSS - On Site Septic | $19.50 | $19.50 | $0.00 | $0.00 | $39.00 | $0.00 |
| 2022 | 953 | WAT - Clean Water District | $11.50 | $11.50 | $0.00 | $0.00 | $23.00 | $0.00 |
| 2022 | 953 | FP ADMIN - FP ADMIN | $0.50 | $0.00 | $0.00 | $0.00 | $0.50 | $0.00 |
| 2022 | 953 | TOTAL: | $1859.11 | $1858.53 | $0.00 | $0.00 | $3717.64 | $0.00 |
|
| 2022 | 953 | $1859.11 | $1858.53 | $0.00 | $0.00 | $3717.64 | $0.00 |
Values
| (+) Improvement Homesite Value: | + | $0 | |
| (+) Improvement Non-Homesite Value: | + | $402,271 | |
| (+) Land Homesite Value: | + | $0 | |
| (+) Land Non-Homesite Value: | + | $174,900 | |
| (+) Curr Use (HS): | + | $0 | $0 |
| (+) Curr Use (NHS): | + | $0 | $0 |
| | | -------------------------- | |
| (=) Market Value: | = | $577,171 | |
| (–) Productivity Loss: | – | $0 | |
| | | -------------------------- | |
| (=) Subtotal: | = | $577,171 | |
| (+) Senior Appraised Value: | + | $0 | |
| (+) Non-Senior Appraised Value: | + | $577,171 | |
| | | -------------------------- | |
| (=) Total Appraised Value: | = | $577,171 | |
| (–) Senior Exemption Loss: | – | $0 | |
| (–) Exemption Loss: | – | $0 | |
| | | -------------------------- | |
| (=) Taxable Value: | = | $577,171 | |
Taxing Jurisdiction
| Owner: | THOMAS A DACON | | |
| % Ownership: | 100.0000000000% | | |
| Total Value: | N/A | | |
| Tax Area: | 0111 - 1-50F1E1H2L1 |
| CE | COUNTY CURRENT EXPENSE | N/A | N/A | N/A | N/A | | |
| CNTYDD | DEVELOPMENTAL DISABILITIES | N/A | N/A | N/A | N/A | | |
| CNTYVET | VETERANS RELIEF | N/A | N/A | N/A | N/A | | |
| MENTAL | MENTAL HEALTH | N/A | N/A | N/A | N/A | | |
| ROADS | COUNTY ROADS | N/A | N/A | N/A | N/A | | |
| ROADSCU | COUNTY ROADS TO CUR EXP | N/A | N/A | N/A | N/A | | |
| HOSP2CASH | HOSP DIST #2 GENERAL | N/A | N/A | N/A | N/A | | |
| SCH50BOND | SCHOOL DIST #50 BOND 2016 | N/A | N/A | N/A | N/A | | |
| SCH50CP | SCHOOL DIST #50 CAP PROJ | N/A | N/A | N/A | N/A | | |
| SCH50MO | SCHOOL DIST #50 EP & O | N/A | N/A | N/A | N/A | | |
| CONSERVE | CONSERVATION FUTURES | N/A | N/A | N/A | N/A | | |
| EMS1 | FIRE DIST #1 EMS | N/A | N/A | N/A | N/A | | |
| FD1 | FIRE DIST #1 GENERAL | N/A | N/A | N/A | N/A | | |
| LIB1 | LIBRARY DIST #1 GENERAL | N/A | N/A | N/A | N/A | | |
| PORTPT | PORT OF PT GENERAL | N/A | N/A | N/A | N/A | | |
| PORTPTIDD | PORT OF PT IDD 2019 | N/A | N/A | N/A | N/A | | |
| PUD1 | PUD #1 GENERAL | N/A | N/A | N/A | N/A | | |
| STATE | STATE SCHOOL PART 1 | N/A | N/A | N/A | N/A | | |
| STATE2 | STATE SCHOOL PART 2 | N/A | N/A | N/A | N/A | | |
| | Total Tax Rate: | N/A | | | | | |
| | | | | Taxes w/Current Exemptions: | N/A | | |
| | | | | Taxes w/o Exemptions: | N/A | | |
Improvement / Building
| Improvement #1: | Residential Bldg | State Code: | 11 | 1284.0 sqft | Value: | $329,800 |
| Bathrooms (#): | 1 (FULL) | Bedrooms (#): | 1 | | Exterior Wall: | SI/ST | Fireplace: | WD ST-GOOD | | Floor Construction: | FRAME | Foundation: | CONPR | | Heating/Cooling: | ELBB | Roof Cover: | METAL |
|
| | Type | Description | Class CD | Sub Class CD | Year Built | Area |
| | MA | Main Area | 4+ | 2S | 2003 | 556.0 |
| | MA2 | Second Floor Main Area | 4+ | 2S | 2003 | 448.0 |
| | MA3 | Third Floor Main Area | 4+ | 2S | 2003 | 280.0 |
| | PATIO | House Patio | 4 | 2S | 2003 | 258.0 |
| | HWPOR | House Wood Porch | 4 | 2S | 2003 | 108.0 |
| | HCPOR | House Concrete Porch | 4 | 2S | 2003 | 48.0 |
| | GDET | Detached Garage | 4 | 2S | 2003 | 648.0 |
| | SHED | Shed (Table Not Dep) | 3 | 2S | 2003 | 96.0 |
| Improvement #2: | Residential Bldg | State Code: | 11 | 280.0 sqft | Value: | $72,471 |
| Bathrooms (#): | 1 (FULL) | Bedrooms (#): | 1 | | Exterior Wall: | SI/ST | Floor Construction: | CONCR | | Foundation: | CONPR | Heating/Cooling: | ELBB | | Roof Cover: | METAL |   |   |
|
| | Type | Description | Class CD | Sub Class CD | Year Built | Area |
| | MA | Main Area | 4- | 1S | 2003 | 280.0 |
| | HCPOR | House Concrete Porch | 4 | 1S | 2003 | 16.0 |
Sketch
| No sketches available for this property. |
Property Image
Land
| 1 | 1579A | | 4.0000 | 174240.00 | 0.00 | 0.00 | 0.00 | $31,900 | $0 |
| 2 | 5360-1355S | | 1.0000 | 43560.00 | 0.00 | 0.00 | 1.00 | $143,000 | $0 |
Roll Value History
| 2025 | N/A | N/A | N/A | N/A | N/A |
| 2024 | $402,271 | $174,900 | $0 | $577,171 | $577,171 |
| 2023 | $366,540 | $160,650 | $0 | $527,190 | $527,190 |
| 2022 | $333,218 | $146,000 | $0 | $479,218 | $479,218 |
| 2021 | $252,437 | $129,250 | $0 | $381,687 | $381,687 |
Deed and Sales History
| 1 | 11/16/2000 | SWD | Statutory Warranty Deed | DISCOVERY RIDGE LLC | DACON, THOMAS A & LINDA K | 0 | 0 | $62,500.00 | 91088 | 0 |
Payout Agreement
| No payout information available.. |