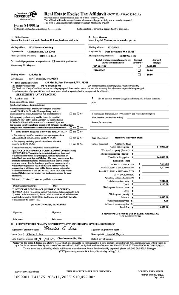
Property
Account |
| Property ID: | 11003 | Abbreviated Legal Description: | DISCOVERY BAY RIDGE DIV V PARCEL 18 SUBJ TO CC&R OF RECORD V660P426 |
| Parcel # / Geo ID: | 001195138 | Agent Code: | |
| Type: | Real | | |
| Tax Area: | 0111 - 1-50F1E1H2L1 | Land Use Code | 11 |
| Open Space: | N | DFL | N |
| Historic Property: | N | Remodel Property: | N |
| Multi-Family Redevelopment: | N | | |
| Township: | 30N | Section: | 19 |
| Range: | 1W |
Location |
| Address: | 420 DISCOVERY RIDGE RD PORT TOWNSEND, WA 98368 | Mapsco: | 143/018 |
| Neighborhood: | S19,30&31T30NR1W,S25T30R2W,ARBUTUS,BAYVIEW CHEVY,DISCO RIDGE | Map ID: | |
| Neighborhood CD: | 5360 |
Owner |
| Name: | ROARKE A & JURI A JENNINGS | Owner ID: | 102780 |
| Mailing Address: | DIANA JENNINGS 420 DISCOVERY RIDGE RD PORT TOWNSEND, WA 98368-6143 | % Ownership: | 100.0000000000% |
| | | Exemptions: | |
Pay Tax Due
Select the appropriate checkbox next to the year to be paid. Multiple years may be selected.
*Convenience Fee not included
Taxes and Assessment Details
Property Tax Information as of
10/23/2025
Click on "Statement Details" to expand or collapse a tax statement.
* Please enter a valid date ** Please enter a valid date *
Statement Details |
| 2025 | 965 | STATE - STATE LEVY (SCHOOL) | $612.88 | $612.87 | $0.00 | $0.00 | $612.88 | $612.87 |
| 2025 | 965 | COUNTY - COUNTY LEVIES (CE, DD, VET, MH) | $241.02 | $241.00 | $0.00 | $0.00 | $241.02 | $241.00 |
| 2025 | 965 | CONSERVE - CONSERVATION FUTURES | $7.23 | $7.22 | $0.00 | $0.00 | $7.23 | $7.22 |
| 2025 | 965 | COROADS - COUNTY ROADS (ROADS, DIV TO CE) | $193.09 | $193.08 | $0.00 | $0.00 | $193.09 | $193.08 |
| 2025 | 965 | PORTPT - PORT DISTRICT | $98.35 | $98.34 | $0.00 | $0.00 | $98.35 | $98.34 |
| 2025 | 965 | PUD1 - PUD #1 | $15.77 | $15.77 | $0.00 | $0.00 | $15.77 | $15.77 |
| 2025 | 965 | LIB1 - LIBRARY DIST #1 | $74.71 | $74.70 | $0.00 | $0.00 | $74.71 | $74.70 |
| 2025 | 965 | HD2 - HOSP DIST #2 | $14.06 | $14.06 | $0.00 | $0.00 | $14.06 | $14.06 |
| 2025 | 965 | SD50 - SCHOOL DIST #50 | $447.92 | $447.90 | $0.00 | $0.00 | $447.92 | $447.90 |
| 2025 | 965 | FD1 - FIRE DISTRICT #1 | $318.04 | $318.04 | $0.00 | $0.00 | $318.04 | $318.04 |
| 2025 | 965 | EMS1 - FIRE DIST #1 EMS | $122.33 | $122.32 | $0.00 | $0.00 | $122.33 | $122.32 |
| 2025 | 965 | FP - DNR Forest Fire Protection Assmt | $8.50 | $8.50 | $0.00 | $0.00 | $8.50 | $8.50 |
| 2025 | 965 | FPLCA - DNR Landowner Contingency Assmt | $3.00 | $3.00 | $0.00 | $0.00 | $3.00 | $3.00 |
| 2025 | 965 | JCCD - JC Conservation District | $2.85 | $2.85 | $0.00 | $0.00 | $2.85 | $2.85 |
| 2025 | 965 | NWA - Noxious Weed Assessment | $3.05 | $3.05 | $0.00 | $0.00 | $3.05 | $3.05 |
| 2025 | 965 | OSS - On Site Septic | $21.50 | $21.50 | $0.00 | $0.00 | $21.50 | $21.50 |
| 2025 | 965 | WAT - Clean Water District | $13.00 | $13.00 | $0.00 | $0.00 | $13.00 | $13.00 |
| 2025 | 965 | FP ADMIN - FP ADMIN | $0.50 | $0.00 | $0.00 | $0.00 | $0.50 | $0.00 |
| 2025 | 965 | TOTAL: | $2197.80 | $2197.20 | $0.00 | $0.00 | $2197.80 | $2197.20 |
|
| 2025 | 965 | $2197.80 | $2197.20 | $0.00 | $0.00 | $2197.80 | $2197.20 |
Statement Details |
| 2024 | 967 | STATE - STATE LEVY (SCHOOL) | $550.72 | $550.70 | $0.00 | $0.00 | $1101.42 | $0.00 |
| 2024 | 967 | COUNTY - COUNTY LEVIES (CE, DD, VET, MH) | $235.66 | $235.64 | $0.00 | $0.00 | $471.30 | $0.00 |
| 2024 | 967 | CONSERVE - CONSERVATION FUTURES | $7.07 | $7.06 | $0.00 | $0.00 | $14.13 | $0.00 |
| 2024 | 967 | COROADS - COUNTY ROADS (ROADS, DIV TO CE) | $189.63 | $189.62 | $0.00 | $0.00 | $379.25 | $0.00 |
| 2024 | 967 | PORTPT - PORT DISTRICT | $97.34 | $97.33 | $0.00 | $0.00 | $194.67 | $0.00 |
| 2024 | 967 | PUD1 - PUD #1 | $15.48 | $15.48 | $0.00 | $0.00 | $30.96 | $0.00 |
| 2024 | 967 | LIB1 - LIBRARY DIST #1 | $73.37 | $73.36 | $0.00 | $0.00 | $146.73 | $0.00 |
| 2024 | 967 | HD2 - HOSP DIST #2 | $13.75 | $13.75 | $0.00 | $0.00 | $27.50 | $0.00 |
| 2024 | 967 | SD50 - SCHOOL DIST #50 | $445.56 | $445.54 | $0.00 | $0.00 | $891.10 | $0.00 |
| 2024 | 967 | FD1 - FIRE DISTRICT #1 | $311.59 | $311.59 | $0.00 | $0.00 | $623.18 | $0.00 |
| 2024 | 967 | EMS1 - FIRE DIST #1 EMS | $119.02 | $119.01 | $0.00 | $0.00 | $238.03 | $0.00 |
| 2024 | 967 | FP - DNR Forest Fire Protection Assmt | $8.50 | $8.50 | $0.00 | $0.00 | $17.00 | $0.00 |
| 2024 | 967 | FPLCA - DNR Landowner Contingency Assmt | $3.00 | $3.00 | $0.00 | $0.00 | $6.00 | $0.00 |
| 2024 | 967 | JCCD - JC Conservation District | $2.85 | $2.85 | $0.00 | $0.00 | $5.70 | $0.00 |
| 2024 | 967 | NWA - Noxious Weed Assessment | $3.05 | $3.05 | $0.00 | $0.00 | $6.10 | $0.00 |
| 2024 | 967 | OSS - On Site Septic | $21.00 | $21.00 | $0.00 | $0.00 | $42.00 | $0.00 |
| 2024 | 967 | WAT - Clean Water District | $12.50 | $12.50 | $0.00 | $0.00 | $25.00 | $0.00 |
| 2024 | 967 | FP ADMIN - FP ADMIN | $0.50 | $0.00 | $0.00 | $0.00 | $0.50 | $0.00 |
| 2024 | 967 | TOTAL: | $2110.59 | $2109.98 | $0.00 | $0.00 | $4220.57 | $0.00 |
|
| 2024 | 967 | $2110.59 | $2109.98 | $0.00 | $0.00 | $4220.57 | $0.00 |
Statement Details |
| 2023 | 967 | STATE - STATE LEVY (SCHOOL) | $505.62 | $505.62 | $0.00 | $0.00 | $1011.24 | $0.00 |
| 2023 | 967 | COUNTY - COUNTY LEVIES (CE, DD, VET, MH) | $220.66 | $220.63 | $0.00 | $0.00 | $441.29 | $0.00 |
| 2023 | 967 | CONSERVE - CONSERVATION FUTURES | $6.62 | $6.61 | $0.00 | $0.00 | $13.23 | $0.00 |
| 2023 | 967 | COROADS - COUNTY ROADS (ROADS, DIV TO CE) | $178.51 | $178.51 | $0.00 | $0.00 | $357.02 | $0.00 |
| 2023 | 967 | PORTPT - PORT DISTRICT | $92.95 | $92.94 | $0.00 | $0.00 | $185.89 | $0.00 |
| 2023 | 967 | PUD1 - PUD #1 | $14.63 | $14.62 | $0.00 | $0.00 | $29.25 | $0.00 |
| 2023 | 967 | LIB1 - LIBRARY DIST #1 | $69.07 | $69.06 | $0.00 | $0.00 | $138.13 | $0.00 |
| 2023 | 967 | HD2 - HOSP DIST #2 | $12.89 | $12.87 | $0.00 | $0.00 | $25.76 | $0.00 |
| 2023 | 967 | SD50 - SCHOOL DIST #50 | $401.23 | $401.21 | $0.00 | $0.00 | $802.44 | $0.00 |
| 2023 | 967 | FD1 - FIRE DISTRICT #1 | $181.76 | $181.76 | $0.00 | $0.00 | $363.52 | $0.00 |
| 2023 | 967 | EMS1 - FIRE DIST #1 EMS | $77.32 | $77.32 | $0.00 | $0.00 | $154.64 | $0.00 |
| 2023 | 967 | FP - DNR Forest Fire Protection Assmt | $8.50 | $8.50 | $0.00 | $0.00 | $17.00 | $0.00 |
| 2023 | 967 | FPLCA - DNR Landowner Contingency Assmt | $3.00 | $3.00 | $0.00 | $0.00 | $6.00 | $0.00 |
| 2023 | 967 | JCCD - JC Conservation District | $2.85 | $2.85 | $0.00 | $0.00 | $5.70 | $0.00 |
| 2023 | 967 | NWA - Noxious Weed Assessment | $3.05 | $3.05 | $0.00 | $0.00 | $6.10 | $0.00 |
| 2023 | 967 | OSS - On Site Septic | $20.50 | $20.50 | $0.00 | $0.00 | $41.00 | $0.00 |
| 2023 | 967 | WAT - Clean Water District | $12.00 | $12.00 | $0.00 | $0.00 | $24.00 | $0.00 |
| 2023 | 967 | FP ADMIN - FP ADMIN | $0.50 | $0.00 | $0.00 | $0.00 | $0.50 | $0.00 |
| 2023 | 967 | TOTAL: | $1811.66 | $1811.05 | $0.00 | $0.00 | $3622.71 | $0.00 |
|
| 2023 | 967 | $1811.66 | $1811.05 | $0.00 | $0.00 | $3622.71 | $0.00 |
Statement Details |
| 2022 | 969 | STATE - STATE LEVY (SCHOOL) | $483.85 | $483.84 | $0.00 | $0.00 | $967.69 | $0.00 |
| 2022 | 969 | COUNTY - COUNTY LEVIES (CE, DD, VET, MH) | $215.59 | $215.57 | $0.00 | $0.00 | $431.16 | $0.00 |
| 2022 | 969 | CONSERVE - CONSERVATION FUTURES | $6.47 | $6.46 | $0.00 | $0.00 | $12.93 | $0.00 |
| 2022 | 969 | COROADS - COUNTY ROADS (ROADS, DIV TO CE) | $175.22 | $175.20 | $0.00 | $0.00 | $350.42 | $0.00 |
| 2022 | 969 | PORTPT - PORT DISTRICT | $92.29 | $92.29 | $0.00 | $0.00 | $184.58 | $0.00 |
| 2022 | 969 | PUD1 - PUD #1 | $14.42 | $14.41 | $0.00 | $0.00 | $28.83 | $0.00 |
| 2022 | 969 | LIB1 - LIBRARY DIST #1 | $67.79 | $67.79 | $0.00 | $0.00 | $135.58 | $0.00 |
| 2022 | 969 | HD2 - HOSP DIST #2 | $12.59 | $12.57 | $0.00 | $0.00 | $25.16 | $0.00 |
| 2022 | 969 | SD50 - SCHOOL DIST #50 | $358.56 | $358.54 | $0.00 | $0.00 | $717.10 | $0.00 |
| 2022 | 969 | FD1 - FIRE DISTRICT #1 | $176.86 | $176.85 | $0.00 | $0.00 | $353.71 | $0.00 |
| 2022 | 969 | EMS1 - FIRE DIST #1 EMS | $75.23 | $75.22 | $0.00 | $0.00 | $150.45 | $0.00 |
| 2022 | 969 | FP - DNR Forest Fire Protection Assmt | $8.50 | $8.50 | $0.00 | $0.00 | $17.00 | $0.00 |
| 2022 | 969 | FPLCA - DNR Landowner Contingency Assmt | $3.00 | $3.00 | $0.00 | $0.00 | $6.00 | $0.00 |
| 2022 | 969 | JCCD - JC Conservation District | $2.85 | $2.85 | $0.00 | $0.00 | $5.70 | $0.00 |
| 2022 | 969 | NWA - Noxious Weed Assessment | $3.05 | $3.05 | $0.00 | $0.00 | $6.10 | $0.00 |
| 2022 | 969 | OSS - On Site Septic | $19.50 | $19.50 | $0.00 | $0.00 | $39.00 | $0.00 |
| 2022 | 969 | WAT - Clean Water District | $11.50 | $11.50 | $0.00 | $0.00 | $23.00 | $0.00 |
| 2022 | 969 | FP ADMIN - FP ADMIN | $0.50 | $0.00 | $0.00 | $0.00 | $0.50 | $0.00 |
| 2022 | 969 | TOTAL: | $1727.77 | $1727.14 | $0.00 | $0.00 | $3454.91 | $0.00 |
|
| 2022 | 969 | $1727.77 | $1727.14 | $0.00 | $0.00 | $3454.91 | $0.00 |
Values
| (+) Improvement Homesite Value: | + | $257,050 | |
| (+) Improvement Non-Homesite Value: | + | $0 | |
| (+) Land Homesite Value: | + | $0 | |
| (+) Land Non-Homesite Value: | + | $254,100 | |
| (+) Curr Use (HS): | + | $0 | $0 |
| (+) Curr Use (NHS): | + | $0 | $0 |
| | | -------------------------- | |
| (=) Market Value: | = | $511,150 | |
| (–) Productivity Loss: | – | $0 | |
| | | -------------------------- | |
| (=) Subtotal: | = | $511,150 | |
| (+) Senior Appraised Value: | + | $0 | |
| (+) Non-Senior Appraised Value: | + | $511,150 | |
| | | -------------------------- | |
| (=) Total Appraised Value: | = | $511,150 | |
| (–) Senior Exemption Loss: | – | $0 | |
| (–) Exemption Loss: | – | $0 | |
| | | -------------------------- | |
| (=) Taxable Value: | = | $511,150 | |
Taxing Jurisdiction
| Owner: | ROARKE A & JURI A JENNINGS | | |
| % Ownership: | 100.0000000000% | | |
| Total Value: | N/A | | |
| Tax Area: | 0111 - 1-50F1E1H2L1 |
| CE | COUNTY CURRENT EXPENSE | N/A | N/A | N/A | N/A | | |
| CNTYDD | DEVELOPMENTAL DISABILITIES | N/A | N/A | N/A | N/A | | |
| CNTYVET | VETERANS RELIEF | N/A | N/A | N/A | N/A | | |
| MENTAL | MENTAL HEALTH | N/A | N/A | N/A | N/A | | |
| ROADS | COUNTY ROADS | N/A | N/A | N/A | N/A | | |
| ROADSCU | COUNTY ROADS TO CUR EXP | N/A | N/A | N/A | N/A | | |
| HOSP2CASH | HOSP DIST #2 GENERAL | N/A | N/A | N/A | N/A | | |
| SCH50BOND | SCHOOL DIST #50 BOND 2016 | N/A | N/A | N/A | N/A | | |
| SCH50CP | SCHOOL DIST #50 CAP PROJ | N/A | N/A | N/A | N/A | | |
| SCH50MO | SCHOOL DIST #50 EP & O | N/A | N/A | N/A | N/A | | |
| CONSERVE | CONSERVATION FUTURES | N/A | N/A | N/A | N/A | | |
| EMS1 | FIRE DIST #1 EMS | N/A | N/A | N/A | N/A | | |
| FD1 | FIRE DIST #1 GENERAL | N/A | N/A | N/A | N/A | | |
| LIB1 | LIBRARY DIST #1 GENERAL | N/A | N/A | N/A | N/A | | |
| PORTPT | PORT OF PT GENERAL | N/A | N/A | N/A | N/A | | |
| PORTPTIDD | PORT OF PT IDD 2019 | N/A | N/A | N/A | N/A | | |
| PUD1 | PUD #1 GENERAL | N/A | N/A | N/A | N/A | | |
| STATE | STATE SCHOOL PART 1 | N/A | N/A | N/A | N/A | | |
| STATE2 | STATE SCHOOL PART 2 | N/A | N/A | N/A | N/A | | |
| | Total Tax Rate: | N/A | | | | | |
| | | | | Taxes w/Current Exemptions: | N/A | | |
| | | | | Taxes w/o Exemptions: | N/A | | |
Improvement / Building
| Improvement #1: | Residential Bldg | State Code: | 11 | 895.7 sqft | Value: | $257,050 |
| Bathrooms (#): | 2 (FULL) | Bedrooms (#): | 2 | | Exterior Wall: | SI/ST | Foundation: | CONPR | | Heating/Cooling: | HPUMP | Roof Cover: | METAL |
|
| | Type | Description | Class CD | Sub Class CD | Year Built | Area |
| | MA | Main Area | 4 | 1S | 2021 | 895.7 |
| | HWPOR | House Wood Porch | 4 | 1S | 2021 | 153.8 |
Sketch
Property Image
Land
| 1 | 5360-1345S | | 1.0000 | 43560.00 | 0.00 | 0.00 | 1.00 | $139,700 | $0 |
| 2 | 1572A | | 5.2000 | 226512.00 | 0.00 | 0.00 | 0.00 | $114,400 | $0 |
Roll Value History
| 2025 | N/A | N/A | N/A | N/A | N/A |
| 2024 | $257,050 | $254,100 | $0 | $511,150 | $511,150 |
| 2023 | $241,074 | $234,990 | $0 | $476,064 | $476,064 |
| 2022 | $219,158 | $210,400 | $0 | $429,558 | $429,558 |
| 2021 | $166,029 | $187,880 | $0 | $353,909 | $353,909 |
Deed and Sales History
| 1 | 07/07/2021 | LOP | Lack of Probate | RENE MAUBOUSSIN | DIANA JENNINGS | | | | 137125 | |
| 2 | 05/13/2020 | QCD | Quit Claim Deed | | | | | | 134535 | |
| 3 | 05/08/2020 | QCD | Quit Claim Deed | | | | | | 134484 | |
| 4 | 12/12/2018 | SWD | Statutory Warranty Deed | KARLA H RICHEY | ROARKE A & JURI A JENNINGS | | | $190,000.00 | 131588 | |
| 5 | 02/08/2001 | SWD | Statutory Warranty Deed | DISCOVERY RIDGE LLC | RICHEY, THOMAS C/KARLA H | 0 | 0 | $70,000.00 | 91576 | 0 |
Payout Agreement
| No payout information available.. |