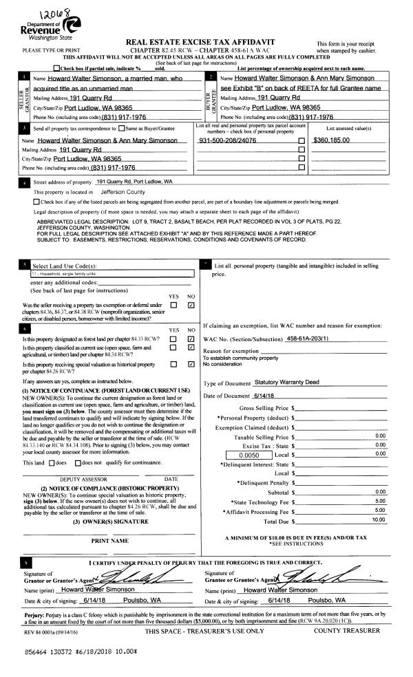
Property
Account |
| Property ID: | 11012 | Abbreviated Legal Description: | ANIBAS/BELLMOORE SHORT PLAT LOT 1 |
| Parcel # / Geo ID: | 001201007 | Agent Code: | |
| Type: | Real | | |
| Tax Area: | 0111 - 1-50F1E1H2L1 | Land Use Code | 11 |
| Open Space: | N | DFL | N |
| Historic Property: | N | Remodel Property: | N |
| Multi-Family Redevelopment: | N | | |
| Township: | 30N | Section: | 20 |
| Range: | 1W |
Location |
| Address: | 41 COUGAR RIDGE RD PORT TOWNSEND, WA 98368 | Mapsco: | 127/001 |
| Neighborhood: | S20 T30 R1W, MOE'S DISCOVERY RD TRACTS | Map ID: | |
| Neighborhood CD: | 5365 |
Owner |
| Name: | JEANNE M MOORE | Owner ID: | 22860 |
| Mailing Address: | ART BELL 1240 W SIMS WAY #283 PORT TOWNSEND, WA 98368-3058 | % Ownership: | 100.0000000000% |
| | | Exemptions: | |
Pay Tax Due
There is currently No Amount Due on this property.
Taxes and Assessment Details
Property Tax Information as of
10/23/2025
Click on "Statement Details" to expand or collapse a tax statement.
* Please enter a valid date ** Please enter a valid date *
Statement Details |
| 2025 | 974 | STATE - STATE LEVY (SCHOOL) | $412.45 | $412.43 | $0.00 | $0.00 | $824.88 | $0.00 |
| 2025 | 974 | COUNTY - COUNTY LEVIES (CE, DD, VET, MH) | $162.20 | $162.19 | $0.00 | $0.00 | $324.39 | $0.00 |
| 2025 | 974 | CONSERVE - CONSERVATION FUTURES | $4.87 | $4.86 | $0.00 | $0.00 | $9.73 | $0.00 |
| 2025 | 974 | COROADS - COUNTY ROADS (ROADS, DIV TO CE) | $129.95 | $129.93 | $0.00 | $0.00 | $259.88 | $0.00 |
| 2025 | 974 | PORTPT - PORT DISTRICT | $66.19 | $66.17 | $0.00 | $0.00 | $132.36 | $0.00 |
| 2025 | 974 | PUD1 - PUD #1 | $10.62 | $10.61 | $0.00 | $0.00 | $21.23 | $0.00 |
| 2025 | 974 | LIB1 - LIBRARY DIST #1 | $50.28 | $50.27 | $0.00 | $0.00 | $100.55 | $0.00 |
| 2025 | 974 | HD2 - HOSP DIST #2 | $9.47 | $9.46 | $0.00 | $0.00 | $18.93 | $0.00 |
| 2025 | 974 | SD50 - SCHOOL DIST #50 | $301.44 | $301.42 | $0.00 | $0.00 | $602.86 | $0.00 |
| 2025 | 974 | FD1 - FIRE DISTRICT #1 | $214.03 | $214.03 | $0.00 | $0.00 | $428.06 | $0.00 |
| 2025 | 974 | EMS1 - FIRE DIST #1 EMS | $82.32 | $82.32 | $0.00 | $0.00 | $164.64 | $0.00 |
| 2025 | 974 | FP - DNR Forest Fire Protection Assmt | $8.50 | $8.50 | $0.00 | $0.00 | $17.00 | $0.00 |
| 2025 | 974 | FPLCA - DNR Landowner Contingency Assmt | $3.00 | $3.00 | $0.00 | $0.00 | $6.00 | $0.00 |
| 2025 | 974 | JCCD - JC Conservation District | $2.75 | $2.75 | $0.00 | $0.00 | $5.50 | $0.00 |
| 2025 | 974 | NWA - Noxious Weed Assessment | $2.75 | $2.75 | $0.00 | $0.00 | $5.50 | $0.00 |
| 2025 | 974 | WAT - Clean Water District | $13.00 | $13.00 | $0.00 | $0.00 | $26.00 | $0.00 |
| 2025 | 974 | FP ADMIN - FP ADMIN | $0.50 | $0.00 | $0.00 | $0.00 | $0.50 | $0.00 |
| 2025 | 974 | TOTAL: | $1474.32 | $1473.69 | $0.00 | $0.00 | $2948.01 | $0.00 |
|
| 2025 | 974 | $1474.32 | $1473.69 | $0.00 | $0.00 | $2948.01 | $0.00 |
Statement Details |
| 2024 | 976 | STATE - STATE LEVY (SCHOOL) | $333.42 | $333.42 | $0.00 | $0.00 | $666.84 | $0.00 |
| 2024 | 976 | COUNTY - COUNTY LEVIES (CE, DD, VET, MH) | $142.69 | $142.65 | $0.00 | $0.00 | $285.34 | $0.00 |
| 2024 | 976 | CONSERVE - CONSERVATION FUTURES | $4.28 | $4.28 | $0.00 | $0.00 | $8.56 | $0.00 |
| 2024 | 976 | COROADS - COUNTY ROADS (ROADS, DIV TO CE) | $114.81 | $114.80 | $0.00 | $0.00 | $229.61 | $0.00 |
| 2024 | 976 | PORTPT - PORT DISTRICT | $58.94 | $58.92 | $0.00 | $0.00 | $117.86 | $0.00 |
| 2024 | 976 | PUD1 - PUD #1 | $9.37 | $9.37 | $0.00 | $0.00 | $18.74 | $0.00 |
| 2024 | 976 | LIB1 - LIBRARY DIST #1 | $44.42 | $44.41 | $0.00 | $0.00 | $88.83 | $0.00 |
| 2024 | 976 | HD2 - HOSP DIST #2 | $8.33 | $8.32 | $0.00 | $0.00 | $16.65 | $0.00 |
| 2024 | 976 | SD50 - SCHOOL DIST #50 | $269.75 | $269.75 | $0.00 | $0.00 | $539.50 | $0.00 |
| 2024 | 976 | FD1 - FIRE DISTRICT #1 | $188.65 | $188.64 | $0.00 | $0.00 | $377.29 | $0.00 |
| 2024 | 976 | EMS1 - FIRE DIST #1 EMS | $72.06 | $72.05 | $0.00 | $0.00 | $144.11 | $0.00 |
| 2024 | 976 | FP - DNR Forest Fire Protection Assmt | $8.50 | $8.50 | $0.00 | $0.00 | $17.00 | $0.00 |
| 2024 | 976 | FPLCA - DNR Landowner Contingency Assmt | $3.00 | $3.00 | $0.00 | $0.00 | $6.00 | $0.00 |
| 2024 | 976 | JCCD - JC Conservation District | $2.75 | $2.75 | $0.00 | $0.00 | $5.50 | $0.00 |
| 2024 | 976 | NWA - Noxious Weed Assessment | $2.75 | $2.75 | $0.00 | $0.00 | $5.50 | $0.00 |
| 2024 | 976 | WAT - Clean Water District | $12.50 | $12.50 | $0.00 | $0.00 | $25.00 | $0.00 |
| 2024 | 976 | FP ADMIN - FP ADMIN | $0.50 | $0.00 | $0.00 | $0.00 | $0.50 | $0.00 |
| 2024 | 976 | TOTAL: | $1276.72 | $1276.11 | $0.00 | $0.00 | $2552.83 | $0.00 |
|
| 2024 | 976 | $1276.72 | $1276.11 | $0.00 | $0.00 | $2552.83 | $0.00 |
Statement Details |
| 2023 | 976 | STATE - STATE LEVY (SCHOOL) | $307.19 | $307.19 | $0.00 | $0.00 | $614.38 | $0.00 |
| 2023 | 976 | COUNTY - COUNTY LEVIES (CE, DD, VET, MH) | $134.05 | $134.04 | $0.00 | $0.00 | $268.09 | $0.00 |
| 2023 | 976 | CONSERVE - CONSERVATION FUTURES | $4.02 | $4.02 | $0.00 | $0.00 | $8.04 | $0.00 |
| 2023 | 976 | COROADS - COUNTY ROADS (ROADS, DIV TO CE) | $108.46 | $108.45 | $0.00 | $0.00 | $216.91 | $0.00 |
| 2023 | 976 | PORTPT - PORT DISTRICT | $56.47 | $56.46 | $0.00 | $0.00 | $112.93 | $0.00 |
| 2023 | 976 | PUD1 - PUD #1 | $8.89 | $8.88 | $0.00 | $0.00 | $17.77 | $0.00 |
| 2023 | 976 | LIB1 - LIBRARY DIST #1 | $41.96 | $41.96 | $0.00 | $0.00 | $83.92 | $0.00 |
| 2023 | 976 | HD2 - HOSP DIST #2 | $7.83 | $7.82 | $0.00 | $0.00 | $15.65 | $0.00 |
| 2023 | 976 | SD50 - SCHOOL DIST #50 | $243.77 | $243.76 | $0.00 | $0.00 | $487.53 | $0.00 |
| 2023 | 976 | FD1 - FIRE DISTRICT #1 | $110.43 | $110.43 | $0.00 | $0.00 | $220.86 | $0.00 |
| 2023 | 976 | EMS1 - FIRE DIST #1 EMS | $46.98 | $46.97 | $0.00 | $0.00 | $93.95 | $0.00 |
| 2023 | 976 | FP - DNR Forest Fire Protection Assmt | $8.50 | $8.50 | $0.00 | $0.00 | $17.00 | $0.00 |
| 2023 | 976 | FPLCA - DNR Landowner Contingency Assmt | $3.00 | $3.00 | $0.00 | $0.00 | $6.00 | $0.00 |
| 2023 | 976 | JCCD - JC Conservation District | $2.75 | $2.75 | $0.00 | $0.00 | $5.50 | $0.00 |
| 2023 | 976 | NWA - Noxious Weed Assessment | $2.75 | $2.75 | $0.00 | $0.00 | $5.50 | $0.00 |
| 2023 | 976 | WAT - Clean Water District | $12.00 | $12.00 | $0.00 | $0.00 | $24.00 | $0.00 |
| 2023 | 976 | FP ADMIN - FP ADMIN | $0.50 | $0.00 | $0.00 | $0.00 | $0.50 | $0.00 |
| 2023 | 976 | TOTAL: | $1099.55 | $1098.98 | $0.00 | $0.00 | $2198.53 | $0.00 |
|
| 2023 | 976 | $1099.55 | $1098.98 | $0.00 | $0.00 | $2198.53 | $0.00 |
Statement Details |
| 2022 | 978 | STATE - STATE LEVY (SCHOOL) | $285.49 | $285.48 | $0.00 | $0.00 | $570.97 | $0.00 |
| 2022 | 978 | COUNTY - COUNTY LEVIES (CE, DD, VET, MH) | $127.20 | $127.19 | $0.00 | $0.00 | $254.39 | $0.00 |
| 2022 | 978 | CONSERVE - CONSERVATION FUTURES | $3.82 | $3.81 | $0.00 | $0.00 | $7.63 | $0.00 |
| 2022 | 978 | COROADS - COUNTY ROADS (ROADS, DIV TO CE) | $103.39 | $103.37 | $0.00 | $0.00 | $206.76 | $0.00 |
| 2022 | 978 | PORTPT - PORT DISTRICT | $54.46 | $54.45 | $0.00 | $0.00 | $108.91 | $0.00 |
| 2022 | 978 | PUD1 - PUD #1 | $8.51 | $8.50 | $0.00 | $0.00 | $17.01 | $0.00 |
| 2022 | 978 | LIB1 - LIBRARY DIST #1 | $40.00 | $39.99 | $0.00 | $0.00 | $79.99 | $0.00 |
| 2022 | 978 | HD2 - HOSP DIST #2 | $7.43 | $7.42 | $0.00 | $0.00 | $14.85 | $0.00 |
| 2022 | 978 | SD50 - SCHOOL DIST #50 | $211.57 | $211.55 | $0.00 | $0.00 | $423.12 | $0.00 |
| 2022 | 978 | FD1 - FIRE DISTRICT #1 | $104.35 | $104.35 | $0.00 | $0.00 | $208.70 | $0.00 |
| 2022 | 978 | EMS1 - FIRE DIST #1 EMS | $44.39 | $44.38 | $0.00 | $0.00 | $88.77 | $0.00 |
| 2022 | 978 | FP - DNR Forest Fire Protection Assmt | $8.50 | $8.50 | $0.00 | $0.00 | $17.00 | $0.00 |
| 2022 | 978 | FPLCA - DNR Landowner Contingency Assmt | $3.00 | $3.00 | $0.00 | $0.00 | $6.00 | $0.00 |
| 2022 | 978 | JCCD - JC Conservation District | $2.75 | $2.75 | $0.00 | $0.00 | $5.50 | $0.00 |
| 2022 | 978 | NWA - Noxious Weed Assessment | $2.75 | $2.75 | $0.00 | $0.00 | $5.50 | $0.00 |
| 2022 | 978 | WAT - Clean Water District | $11.50 | $11.50 | $0.00 | $0.00 | $23.00 | $0.00 |
| 2022 | 978 | FP ADMIN - FP ADMIN | $0.50 | $0.00 | $0.00 | $0.00 | $0.50 | $0.00 |
| 2022 | 978 | TOTAL: | $1019.61 | $1018.99 | $0.00 | $0.00 | $2038.60 | $0.00 |
|
| 2022 | 978 | $1019.61 | $1018.99 | $0.00 | $0.00 | $2038.60 | $0.00 |
Values
| (+) Improvement Homesite Value: | + | $0 | |
| (+) Improvement Non-Homesite Value: | + | $193,286 | |
| (+) Land Homesite Value: | + | $0 | |
| (+) Land Non-Homesite Value: | + | $150,700 | |
| (+) Curr Use (HS): | + | $0 | $0 |
| (+) Curr Use (NHS): | + | $0 | $0 |
| | | -------------------------- | |
| (=) Market Value: | = | $343,986 | |
| (–) Productivity Loss: | – | $0 | |
| | | -------------------------- | |
| (=) Subtotal: | = | $343,986 | |
| (+) Senior Appraised Value: | + | $0 | |
| (+) Non-Senior Appraised Value: | + | $343,986 | |
| | | -------------------------- | |
| (=) Total Appraised Value: | = | $343,986 | |
| (–) Senior Exemption Loss: | – | $0 | |
| (–) Exemption Loss: | – | $0 | |
| | | -------------------------- | |
| (=) Taxable Value: | = | $343,986 | |
Taxing Jurisdiction
| Owner: | JEANNE M MOORE | | |
| % Ownership: | 100.0000000000% | | |
| Total Value: | N/A | | |
| Tax Area: | 0111 - 1-50F1E1H2L1 |
| CE | COUNTY CURRENT EXPENSE | N/A | N/A | N/A | N/A | | |
| CNTYDD | DEVELOPMENTAL DISABILITIES | N/A | N/A | N/A | N/A | | |
| CNTYVET | VETERANS RELIEF | N/A | N/A | N/A | N/A | | |
| MENTAL | MENTAL HEALTH | N/A | N/A | N/A | N/A | | |
| ROADS | COUNTY ROADS | N/A | N/A | N/A | N/A | | |
| ROADSCU | COUNTY ROADS TO CUR EXP | N/A | N/A | N/A | N/A | | |
| HOSP2CASH | HOSP DIST #2 GENERAL | N/A | N/A | N/A | N/A | | |
| SCH50BOND | SCHOOL DIST #50 BOND 2016 | N/A | N/A | N/A | N/A | | |
| SCH50CP | SCHOOL DIST #50 CAP PROJ | N/A | N/A | N/A | N/A | | |
| SCH50MO | SCHOOL DIST #50 EP & O | N/A | N/A | N/A | N/A | | |
| CONSERVE | CONSERVATION FUTURES | N/A | N/A | N/A | N/A | | |
| EMS1 | FIRE DIST #1 EMS | N/A | N/A | N/A | N/A | | |
| FD1 | FIRE DIST #1 GENERAL | N/A | N/A | N/A | N/A | | |
| LIB1 | LIBRARY DIST #1 GENERAL | N/A | N/A | N/A | N/A | | |
| PORTPT | PORT OF PT GENERAL | N/A | N/A | N/A | N/A | | |
| PORTPTIDD | PORT OF PT IDD 2019 | N/A | N/A | N/A | N/A | | |
| PUD1 | PUD #1 GENERAL | N/A | N/A | N/A | N/A | | |
| STATE | STATE SCHOOL PART 1 | N/A | N/A | N/A | N/A | | |
| STATE2 | STATE SCHOOL PART 2 | N/A | N/A | N/A | N/A | | |
| | Total Tax Rate: | N/A | | | | | |
| | | | | Taxes w/Current Exemptions: | N/A | | |
| | | | | Taxes w/o Exemptions: | N/A | | |
Improvement / Building
| Improvement #1: | Residential Bldg | State Code: | 11 | 576.0 sqft | Value: | $193,286 |
| Bathrooms (#): | 1 (FULL) | Bedrooms (#): | 1 | | Exterior Wall: | SI/ST | Foundation: | CONPR | | Heating/Cooling: | ELBB | Roof Cover: | SHNGL |
|
| | Type | Description | Class CD | Sub Class CD | Year Built | Area |
| | MA | Main Area | 4- | 1S | 2017 | 576.0 |
| | HCPOR | House Concrete Porch | 3 | 1S | 2017 | 240.0 |
| | ADDN-D | Addition (Table Depreciated) | 3 | 1S | 2017 | 456.0 |
| | SHED | Shed (Table Not Dep) | 3 | 1S | 2017 | 0.0 |
Sketch
Property Image
Land
| 1 | 5365-1385S | | 1.0000 | 43560.00 | 0.00 | 0.00 | 1.00 | $121,000 | $0 |
| 2 | 1678A | | 4.0000 | 174240.00 | 0.00 | 0.00 | 0.00 | $29,700 | $0 |
Roll Value History
| 2025 | N/A | N/A | N/A | N/A | N/A |
| 2024 | $193,286 | $150,700 | $0 | $343,986 | $343,986 |
| 2023 | $150,674 | $137,550 | $0 | $288,224 | $288,224 |
| 2022 | $136,976 | $124,000 | $0 | $260,976 | $260,976 |
| 2021 | $103,770 | $105,050 | $0 | $208,820 | $208,820 |
Deed and Sales History
| 1 | 04/25/2012 | QCD | Quit Claim Deed | ANIBAS, JR, RAYMOND | MOORE, JEANNE/ART | 0 | 0 | $0.00 | 117487 | 0 |
Payout Agreement
| No payout information available.. |