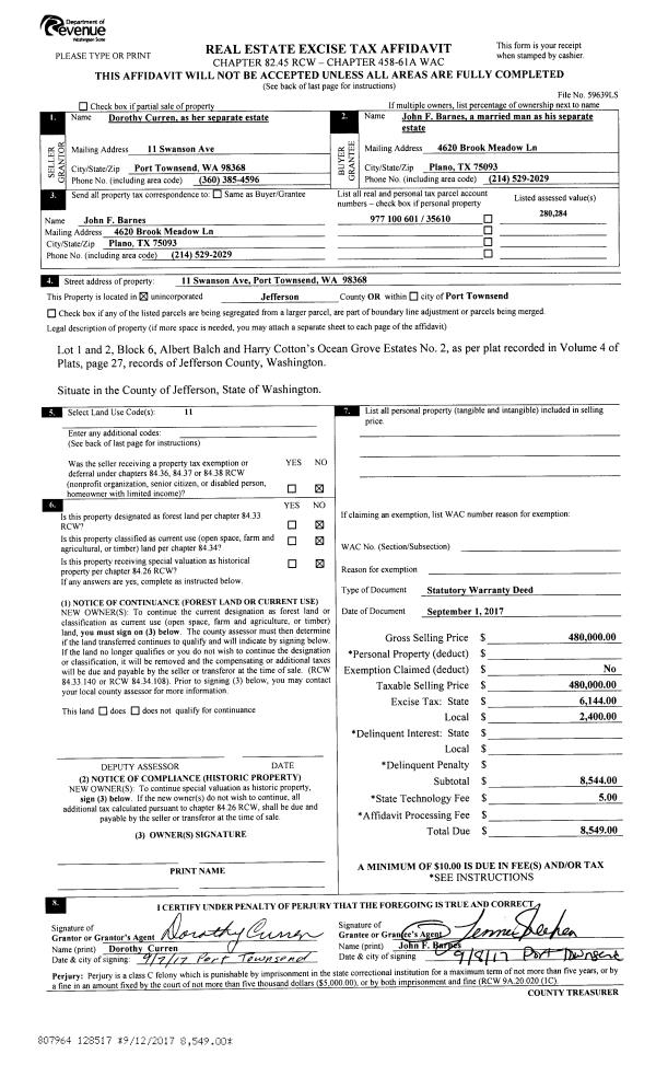
Property
Account |
| Property ID: | 11016 | Abbreviated Legal Description: | S20 T30N R1W NE NW & NW NW (LYING E OF RR/RW) SURVEY VOL 9/PAGE 37 |
| Parcel # / Geo ID: | 001202001 | Agent Code: | |
| Type: | Real | | |
| Tax Area: | 0111 - 1-50F1E1H2L1 | Land Use Code | 11 |
| Open Space: | N | DFL | N |
| Historic Property: | N | Remodel Property: | N |
| Multi-Family Redevelopment: | N | | |
| Township: | 30N | Section: | 20 |
| Range: | 1W |
Location |
| Address: | 503 WOODDUCK WAY PORT TOWNSEND, WA 98368 | Mapsco: | 093/007 |
| Neighborhood: | S20 T30 R1W, MOE'S DISCOVERY RD TRACTS | Map ID: | |
| Neighborhood CD: | 5365 |
Owner |
| Name: | PATRICIA C WILLESTOFT | Owner ID: | 30487 |
| Mailing Address: | 503 WOODDUCK WAY PORT TOWNSEND, WA 98368-8638 | % Ownership: | 100.0000000000% |
| | | Exemptions: | |
Pay Tax Due
There is currently No Amount Due on this property.
Taxes and Assessment Details
Property Tax Information as of
10/23/2025
Click on "Statement Details" to expand or collapse a tax statement.
* Please enter a valid date ** Please enter a valid date *
Statement Details |
| 2025 | 978 | STATE - STATE LEVY (SCHOOL) | $808.53 | $808.53 | $0.00 | $0.00 | $1617.06 | $0.00 |
| 2025 | 978 | COUNTY - COUNTY LEVIES (CE, DD, VET, MH) | $317.95 | $317.95 | $0.00 | $0.00 | $635.90 | $0.00 |
| 2025 | 978 | CONSERVE - CONSERVATION FUTURES | $9.54 | $9.53 | $0.00 | $0.00 | $19.07 | $0.00 |
| 2025 | 978 | COROADS - COUNTY ROADS (ROADS, DIV TO CE) | $254.73 | $254.72 | $0.00 | $0.00 | $509.45 | $0.00 |
| 2025 | 978 | PORTPT - PORT DISTRICT | $129.75 | $129.74 | $0.00 | $0.00 | $259.49 | $0.00 |
| 2025 | 978 | PUD1 - PUD #1 | $20.81 | $20.80 | $0.00 | $0.00 | $41.61 | $0.00 |
| 2025 | 978 | LIB1 - LIBRARY DIST #1 | $98.55 | $98.55 | $0.00 | $0.00 | $197.10 | $0.00 |
| 2025 | 978 | HD2 - HOSP DIST #2 | $18.55 | $18.55 | $0.00 | $0.00 | $37.10 | $0.00 |
| 2025 | 978 | SD50 - SCHOOL DIST #50 | $590.91 | $590.89 | $0.00 | $0.00 | $1181.80 | $0.00 |
| 2025 | 978 | FD1 - FIRE DISTRICT #1 | $419.57 | $419.57 | $0.00 | $0.00 | $839.14 | $0.00 |
| 2025 | 978 | EMS1 - FIRE DIST #1 EMS | $161.38 | $161.38 | $0.00 | $0.00 | $322.76 | $0.00 |
| 2025 | 978 | FP - DNR Forest Fire Protection Assmt | $8.50 | $8.50 | $0.00 | $0.00 | $17.00 | $0.00 |
| 2025 | 978 | FPLCA - DNR Landowner Contingency Assmt | $3.00 | $3.00 | $0.00 | $0.00 | $6.00 | $0.00 |
| 2025 | 978 | JCCD - JC Conservation District | $4.50 | $4.50 | $0.00 | $0.00 | $9.00 | $0.00 |
| 2025 | 978 | NWA - Noxious Weed Assessment | $8.00 | $8.00 | $0.00 | $0.00 | $16.00 | $0.00 |
| 2025 | 978 | OSS - On Site Septic | $21.50 | $21.50 | $0.00 | $0.00 | $43.00 | $0.00 |
| 2025 | 978 | WAT - Clean Water District | $13.00 | $13.00 | $0.00 | $0.00 | $26.00 | $0.00 |
| 2025 | 978 | FP ADMIN - FP ADMIN | $0.50 | $0.00 | $0.00 | $0.00 | $0.50 | $0.00 |
| 2025 | 978 | TOTAL: | $2889.27 | $2888.71 | $0.00 | $0.00 | $5777.98 | $0.00 |
|
| 2025 | 978 | $2889.27 | $2888.71 | $0.00 | $0.00 | $5777.98 | $0.00 |
Statement Details |
| 2024 | 980 | STATE - STATE LEVY (SCHOOL) | $730.83 | $730.82 | $0.00 | $0.00 | $1461.65 | $0.00 |
| 2024 | 980 | COUNTY - COUNTY LEVIES (CE, DD, VET, MH) | $312.74 | $312.71 | $0.00 | $0.00 | $625.45 | $0.00 |
| 2024 | 980 | CONSERVE - CONSERVATION FUTURES | $9.38 | $9.37 | $0.00 | $0.00 | $18.75 | $0.00 |
| 2024 | 980 | COROADS - COUNTY ROADS (ROADS, DIV TO CE) | $251.65 | $251.63 | $0.00 | $0.00 | $503.28 | $0.00 |
| 2024 | 980 | PORTPT - PORT DISTRICT | $129.18 | $129.16 | $0.00 | $0.00 | $258.34 | $0.00 |
| 2024 | 980 | PUD1 - PUD #1 | $20.54 | $20.54 | $0.00 | $0.00 | $41.08 | $0.00 |
| 2024 | 980 | LIB1 - LIBRARY DIST #1 | $97.36 | $97.36 | $0.00 | $0.00 | $194.72 | $0.00 |
| 2024 | 980 | HD2 - HOSP DIST #2 | $18.25 | $18.24 | $0.00 | $0.00 | $36.49 | $0.00 |
| 2024 | 980 | SD50 - SCHOOL DIST #50 | $591.28 | $591.26 | $0.00 | $0.00 | $1182.54 | $0.00 |
| 2024 | 980 | FD1 - FIRE DISTRICT #1 | $413.50 | $413.50 | $0.00 | $0.00 | $827.00 | $0.00 |
| 2024 | 980 | EMS1 - FIRE DIST #1 EMS | $157.94 | $157.94 | $0.00 | $0.00 | $315.88 | $0.00 |
| 2024 | 980 | FP - DNR Forest Fire Protection Assmt | $8.50 | $8.50 | $0.00 | $0.00 | $17.00 | $0.00 |
| 2024 | 980 | FPLCA - DNR Landowner Contingency Assmt | $3.00 | $3.00 | $0.00 | $0.00 | $6.00 | $0.00 |
| 2024 | 980 | JCCD - JC Conservation District | $4.50 | $4.50 | $0.00 | $0.00 | $9.00 | $0.00 |
| 2024 | 980 | NWA - Noxious Weed Assessment | $8.00 | $8.00 | $0.00 | $0.00 | $16.00 | $0.00 |
| 2024 | 980 | OSS - On Site Septic | $21.00 | $21.00 | $0.00 | $0.00 | $42.00 | $0.00 |
| 2024 | 980 | WAT - Clean Water District | $12.50 | $12.50 | $0.00 | $0.00 | $25.00 | $0.00 |
| 2024 | 980 | FP ADMIN - FP ADMIN | $0.50 | $0.00 | $0.00 | $0.00 | $0.50 | $0.00 |
| 2024 | 980 | TOTAL: | $2790.65 | $2790.03 | $0.00 | $0.00 | $5580.68 | $0.00 |
|
| 2024 | 980 | $2790.65 | $2790.03 | $0.00 | $0.00 | $5580.68 | $0.00 |
Statement Details |
| 2023 | 980 | STATE - STATE LEVY (SCHOOL) | $663.04 | $663.04 | $0.00 | $0.00 | $1326.08 | $0.00 |
| 2023 | 980 | COUNTY - COUNTY LEVIES (CE, DD, VET, MH) | $289.33 | $289.32 | $0.00 | $0.00 | $578.65 | $0.00 |
| 2023 | 980 | CONSERVE - CONSERVATION FUTURES | $8.68 | $8.67 | $0.00 | $0.00 | $17.35 | $0.00 |
| 2023 | 980 | COROADS - COUNTY ROADS (ROADS, DIV TO CE) | $234.10 | $234.08 | $0.00 | $0.00 | $468.18 | $0.00 |
| 2023 | 980 | PORTPT - PORT DISTRICT | $121.89 | $121.87 | $0.00 | $0.00 | $243.76 | $0.00 |
| 2023 | 980 | PUD1 - PUD #1 | $19.18 | $19.18 | $0.00 | $0.00 | $38.36 | $0.00 |
| 2023 | 980 | LIB1 - LIBRARY DIST #1 | $90.57 | $90.56 | $0.00 | $0.00 | $181.13 | $0.00 |
| 2023 | 980 | HD2 - HOSP DIST #2 | $16.89 | $16.88 | $0.00 | $0.00 | $33.77 | $0.00 |
| 2023 | 980 | SD50 - SCHOOL DIST #50 | $526.14 | $526.13 | $0.00 | $0.00 | $1052.27 | $0.00 |
| 2023 | 980 | FD1 - FIRE DISTRICT #1 | $238.35 | $238.35 | $0.00 | $0.00 | $476.70 | $0.00 |
| 2023 | 980 | EMS1 - FIRE DIST #1 EMS | $101.39 | $101.39 | $0.00 | $0.00 | $202.78 | $0.00 |
| 2023 | 980 | FP - DNR Forest Fire Protection Assmt | $8.50 | $8.50 | $0.00 | $0.00 | $17.00 | $0.00 |
| 2023 | 980 | FPLCA - DNR Landowner Contingency Assmt | $3.00 | $3.00 | $0.00 | $0.00 | $6.00 | $0.00 |
| 2023 | 980 | JCCD - JC Conservation District | $4.50 | $4.50 | $0.00 | $0.00 | $9.00 | $0.00 |
| 2023 | 980 | NWA - Noxious Weed Assessment | $8.00 | $8.00 | $0.00 | $0.00 | $16.00 | $0.00 |
| 2023 | 980 | OSS - On Site Septic | $20.50 | $20.50 | $0.00 | $0.00 | $41.00 | $0.00 |
| 2023 | 980 | WAT - Clean Water District | $12.00 | $12.00 | $0.00 | $0.00 | $24.00 | $0.00 |
| 2023 | 980 | FP ADMIN - FP ADMIN | $0.50 | $0.00 | $0.00 | $0.00 | $0.50 | $0.00 |
| 2023 | 980 | TOTAL: | $2366.56 | $2365.97 | $0.00 | $0.00 | $4732.53 | $0.00 |
|
| 2023 | 980 | $2366.56 | $2365.97 | $0.00 | $0.00 | $4732.53 | $0.00 |
Statement Details |
| 2022 | 982 | STATE - STATE LEVY (SCHOOL) | $612.01 | $611.99 | $0.00 | $0.00 | $1224.00 | $0.00 |
| 2022 | 982 | COUNTY - COUNTY LEVIES (CE, DD, VET, MH) | $272.69 | $272.66 | $0.00 | $0.00 | $545.35 | $0.00 |
| 2022 | 982 | CONSERVE - CONSERVATION FUTURES | $8.18 | $8.17 | $0.00 | $0.00 | $16.35 | $0.00 |
| 2022 | 982 | COROADS - COUNTY ROADS (ROADS, DIV TO CE) | $221.62 | $221.62 | $0.00 | $0.00 | $443.24 | $0.00 |
| 2022 | 982 | PORTPT - PORT DISTRICT | $116.74 | $116.73 | $0.00 | $0.00 | $233.47 | $0.00 |
| 2022 | 982 | PUD1 - PUD #1 | $18.24 | $18.23 | $0.00 | $0.00 | $36.47 | $0.00 |
| 2022 | 982 | LIB1 - LIBRARY DIST #1 | $85.75 | $85.74 | $0.00 | $0.00 | $171.49 | $0.00 |
| 2022 | 982 | HD2 - HOSP DIST #2 | $15.92 | $15.91 | $0.00 | $0.00 | $31.83 | $0.00 |
| 2022 | 982 | SD50 - SCHOOL DIST #50 | $453.53 | $453.51 | $0.00 | $0.00 | $907.04 | $0.00 |
| 2022 | 982 | FD1 - FIRE DISTRICT #1 | $223.70 | $223.69 | $0.00 | $0.00 | $447.39 | $0.00 |
| 2022 | 982 | EMS1 - FIRE DIST #1 EMS | $95.15 | $95.15 | $0.00 | $0.00 | $190.30 | $0.00 |
| 2022 | 982 | FP - DNR Forest Fire Protection Assmt | $8.50 | $8.50 | $0.00 | $0.00 | $17.00 | $0.00 |
| 2022 | 982 | FPLCA - DNR Landowner Contingency Assmt | $3.00 | $3.00 | $0.00 | $0.00 | $6.00 | $0.00 |
| 2022 | 982 | JCCD - JC Conservation District | $4.50 | $4.50 | $0.00 | $0.00 | $9.00 | $0.00 |
| 2022 | 982 | NWA - Noxious Weed Assessment | $8.00 | $8.00 | $0.00 | $0.00 | $16.00 | $0.00 |
| 2022 | 982 | OSS - On Site Septic | $19.50 | $19.50 | $0.00 | $0.00 | $39.00 | $0.00 |
| 2022 | 982 | WAT - Clean Water District | $11.50 | $11.50 | $0.00 | $0.00 | $23.00 | $0.00 |
| 2022 | 982 | FP ADMIN - FP ADMIN | $0.50 | $0.00 | $0.00 | $0.00 | $0.50 | $0.00 |
| 2022 | 982 | TOTAL: | $2179.03 | $2178.40 | $0.00 | $0.00 | $4357.43 | $0.00 |
|
| 2022 | 982 | $2179.03 | $2178.40 | $0.00 | $0.00 | $4357.43 | $0.00 |
Values
| (+) Improvement Homesite Value: | + | $0 | |
| (+) Improvement Non-Homesite Value: | + | $343,319 | |
| (+) Land Homesite Value: | + | $0 | |
| (+) Land Non-Homesite Value: | + | $331,012 | |
| (+) Curr Use (HS): | + | $0 | $0 |
| (+) Curr Use (NHS): | + | $0 | $0 |
| | | -------------------------- | |
| (=) Market Value: | = | $674,331 | |
| (–) Productivity Loss: | – | $0 | |
| | | -------------------------- | |
| (=) Subtotal: | = | $674,331 | |
| (+) Senior Appraised Value: | + | $0 | |
| (+) Non-Senior Appraised Value: | + | $674,331 | |
| | | -------------------------- | |
| (=) Total Appraised Value: | = | $674,331 | |
| (–) Senior Exemption Loss: | – | $0 | |
| (–) Exemption Loss: | – | $0 | |
| | | -------------------------- | |
| (=) Taxable Value: | = | $674,331 | |
Taxing Jurisdiction
| Owner: | PATRICIA C WILLESTOFT | | |
| % Ownership: | 100.0000000000% | | |
| Total Value: | N/A | | |
| Tax Area: | 0111 - 1-50F1E1H2L1 |
| CE | COUNTY CURRENT EXPENSE | N/A | N/A | N/A | N/A | | |
| CNTYDD | DEVELOPMENTAL DISABILITIES | N/A | N/A | N/A | N/A | | |
| CNTYVET | VETERANS RELIEF | N/A | N/A | N/A | N/A | | |
| MENTAL | MENTAL HEALTH | N/A | N/A | N/A | N/A | | |
| ROADS | COUNTY ROADS | N/A | N/A | N/A | N/A | | |
| ROADSCU | COUNTY ROADS TO CUR EXP | N/A | N/A | N/A | N/A | | |
| HOSP2CASH | HOSP DIST #2 GENERAL | N/A | N/A | N/A | N/A | | |
| SCH50BOND | SCHOOL DIST #50 BOND 2016 | N/A | N/A | N/A | N/A | | |
| SCH50CP | SCHOOL DIST #50 CAP PROJ | N/A | N/A | N/A | N/A | | |
| SCH50MO | SCHOOL DIST #50 EP & O | N/A | N/A | N/A | N/A | | |
| CONSERVE | CONSERVATION FUTURES | N/A | N/A | N/A | N/A | | |
| EMS1 | FIRE DIST #1 EMS | N/A | N/A | N/A | N/A | | |
| FD1 | FIRE DIST #1 GENERAL | N/A | N/A | N/A | N/A | | |
| LIB1 | LIBRARY DIST #1 GENERAL | N/A | N/A | N/A | N/A | | |
| PORTPT | PORT OF PT GENERAL | N/A | N/A | N/A | N/A | | |
| PORTPTIDD | PORT OF PT IDD 2019 | N/A | N/A | N/A | N/A | | |
| PUD1 | PUD #1 GENERAL | N/A | N/A | N/A | N/A | | |
| STATE | STATE SCHOOL PART 1 | N/A | N/A | N/A | N/A | | |
| STATE2 | STATE SCHOOL PART 2 | N/A | N/A | N/A | N/A | | |
| | Total Tax Rate: | N/A | | | | | |
| | | | | Taxes w/Current Exemptions: | N/A | | |
| | | | | Taxes w/o Exemptions: | N/A | | |
Improvement / Building
| Improvement #1: | Residential Bldg | State Code: | 11 | 1586.0 sqft | Value: | $343,319 |
| Bathrooms (#): | 2 (FULL) | Bedrooms (#): | 2 | | Exterior Wall: | SI/ST | Fireplace: | SIN 2-GOOD | | Floor Construction: | FRAME | Foundation: | CONPR | | Heating/Cooling: | HPUMP | Roof Cover: | COMP |
|
| | Type | Description | Class CD | Sub Class CD | Year Built | Area |
| | MA | Main Area | 4 | 15SF | 1993 | 954.0 |
| | MA2 | Second Floor Main Area | 4 | 15SF | 1993 | 632.0 |
| | HWPOR | House Wood Porch | 4 | 15SF | 1993 | 252.0 |
| | HBAL | House Balcony | 4 | 15SF | 1993 | 130.0 |
| | HDECK | House Deck | 4 | 15SF | 1993 | 90.0 |
| | BSMTF | House basement finished | 3 | 15SF | 1993 | 333.9 |
| | BSMTU | House basement unfinished | 3 | 15SF | 1993 | 620.1 |
Sketch
| No sketches available for this property. |
Property Image
Land
| 1 | 5365-1373S | | 1.0000 | 43560.00 | 0.00 | 0.00 | 1.00 | $159,500 | $0 |
| 2 | 1978A | | 38.9800 | 1697968.80 | 0.00 | 0.00 | 0.00 | $171,512 | $0 |
Roll Value History
| 2025 | N/A | N/A | N/A | N/A | N/A |
| 2024 | $343,319 | $331,012 | $0 | $674,331 | $674,331 |
| 2023 | $321,048 | $310,716 | $0 | $631,764 | $631,764 |
| 2022 | $291,862 | $271,430 | $0 | $563,292 | $563,292 |
| 2021 | $221,107 | $226,545 | $0 | $447,652 | $447,652 |
Deed and Sales History
| 1 | 02/16/2022 | TODD | TRANSFER ON DTH DEED | PATRICIA C WILLESTOFT | EVELEEN T MUEHLETHALER | | | | 0 | 651794 |
Payout Agreement
| No payout information available.. |