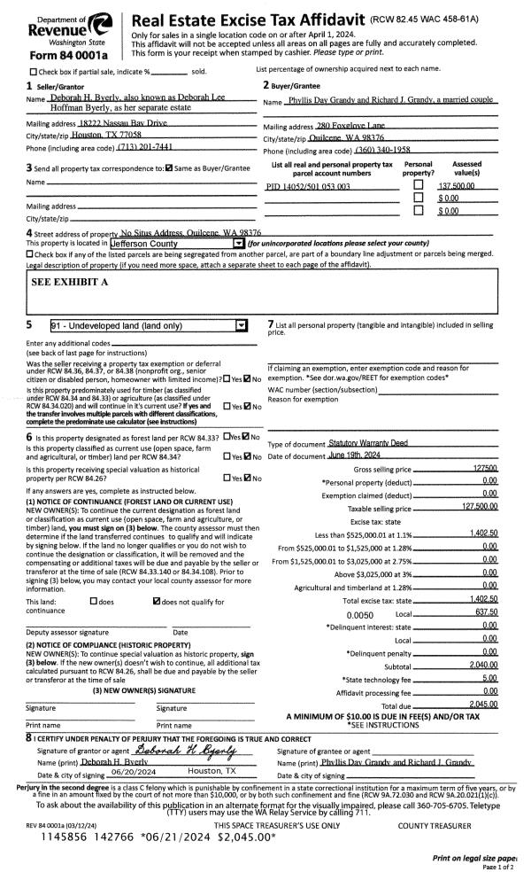
Property
Account |
| Property ID: | 11074 | Abbreviated Legal Description: | DEER RIDGE LOT 10 SUBJ/EASE |
| Parcel # / Geo ID: | 001205011 | Agent Code: | |
| Type: | Real | | |
| Tax Area: | 0111 - 1-50F1E1H2L1 | Land Use Code | 11 |
| Open Space: | N | DFL | N |
| Historic Property: | N | Remodel Property: | N |
| Multi-Family Redevelopment: | N | | |
| Township: | 30N | Section: | 20 |
| Range: | 1W |
Location |
| Address: | 162 SLATER LN PORT TOWNSEND, WA 98368 | Mapsco: | 141/010 |
| Neighborhood: | S29 T30 R1W DEER RIDGE, DOE RUN, SNAGSTEAD WAY | Map ID: | |
| Neighborhood CD: | 5370 |
Owner |
| Name: | GREG A POOLE | Owner ID: | 24996 |
| Mailing Address: | SARAH M SMITH 162 SLATER LN PORT TOWNSEND, WA 98368-9698 | % Ownership: | 100.0000000000% |
| | | Exemptions: | |
Pay Tax Due
There is currently No Amount Due on this property.
Taxes and Assessment Details
Property Tax Information as of
10/23/2025
Click on "Statement Details" to expand or collapse a tax statement.
* Please enter a valid date ** Please enter a valid date *
Statement Details |
| 2025 | 1035 | STATE - STATE LEVY (SCHOOL) | $578.29 | $578.28 | $0.00 | $0.00 | $1156.57 | $0.00 |
| 2025 | 1035 | COUNTY - COUNTY LEVIES (CE, DD, VET, MH) | $227.42 | $227.39 | $0.00 | $0.00 | $454.81 | $0.00 |
| 2025 | 1035 | CONSERVE - CONSERVATION FUTURES | $6.82 | $6.82 | $0.00 | $0.00 | $13.64 | $0.00 |
| 2025 | 1035 | COROADS - COUNTY ROADS (ROADS, DIV TO CE) | $182.19 | $182.19 | $0.00 | $0.00 | $364.38 | $0.00 |
| 2025 | 1035 | PORTPT - PORT DISTRICT | $92.80 | $92.79 | $0.00 | $0.00 | $185.59 | $0.00 |
| 2025 | 1035 | PUD1 - PUD #1 | $14.88 | $14.88 | $0.00 | $0.00 | $29.76 | $0.00 |
| 2025 | 1035 | LIB1 - LIBRARY DIST #1 | $70.49 | $70.49 | $0.00 | $0.00 | $140.98 | $0.00 |
| 2025 | 1035 | HD2 - HOSP DIST #2 | $13.27 | $13.27 | $0.00 | $0.00 | $26.54 | $0.00 |
| 2025 | 1035 | SD50 - SCHOOL DIST #50 | $422.64 | $422.62 | $0.00 | $0.00 | $845.26 | $0.00 |
| 2025 | 1035 | FD1 - FIRE DISTRICT #1 | $300.09 | $300.09 | $0.00 | $0.00 | $600.18 | $0.00 |
| 2025 | 1035 | EMS1 - FIRE DIST #1 EMS | $115.43 | $115.42 | $0.00 | $0.00 | $230.85 | $0.00 |
| 2025 | 1035 | FP - DNR Forest Fire Protection Assmt | $8.50 | $8.50 | $0.00 | $0.00 | $17.00 | $0.00 |
| 2025 | 1035 | FPLCA - DNR Landowner Contingency Assmt | $3.00 | $3.00 | $0.00 | $0.00 | $6.00 | $0.00 |
| 2025 | 1035 | JCCD - JC Conservation District | $2.80 | $2.80 | $0.00 | $0.00 | $5.60 | $0.00 |
| 2025 | 1035 | NWA - Noxious Weed Assessment | $2.90 | $2.90 | $0.00 | $0.00 | $5.80 | $0.00 |
| 2025 | 1035 | OSS - On Site Septic | $21.50 | $21.50 | $0.00 | $0.00 | $43.00 | $0.00 |
| 2025 | 1035 | WAT - Clean Water District | $13.00 | $13.00 | $0.00 | $0.00 | $26.00 | $0.00 |
| 2025 | 1035 | FP ADMIN - FP ADMIN | $0.50 | $0.00 | $0.00 | $0.00 | $0.50 | $0.00 |
| 2025 | 1035 | TOTAL: | $2076.52 | $2075.94 | $0.00 | $0.00 | $4152.46 | $0.00 |
|
| 2025 | 1035 | $2076.52 | $2075.94 | $0.00 | $0.00 | $4152.46 | $0.00 |
Statement Details |
| 2024 | 1037 | STATE - STATE LEVY (SCHOOL) | $491.48 | $491.47 | $0.00 | $0.00 | $982.95 | $0.00 |
| 2024 | 1037 | COUNTY - COUNTY LEVIES (CE, DD, VET, MH) | $210.31 | $210.29 | $0.00 | $0.00 | $420.60 | $0.00 |
| 2024 | 1037 | CONSERVE - CONSERVATION FUTURES | $6.31 | $6.30 | $0.00 | $0.00 | $12.61 | $0.00 |
| 2024 | 1037 | COROADS - COUNTY ROADS (ROADS, DIV TO CE) | $169.23 | $169.22 | $0.00 | $0.00 | $338.45 | $0.00 |
| 2024 | 1037 | PORTPT - PORT DISTRICT | $86.87 | $86.87 | $0.00 | $0.00 | $173.74 | $0.00 |
| 2024 | 1037 | PUD1 - PUD #1 | $13.82 | $13.81 | $0.00 | $0.00 | $27.63 | $0.00 |
| 2024 | 1037 | LIB1 - LIBRARY DIST #1 | $65.47 | $65.47 | $0.00 | $0.00 | $130.94 | $0.00 |
| 2024 | 1037 | HD2 - HOSP DIST #2 | $12.27 | $12.27 | $0.00 | $0.00 | $24.54 | $0.00 |
| 2024 | 1037 | SD50 - SCHOOL DIST #50 | $397.64 | $397.61 | $0.00 | $0.00 | $795.25 | $0.00 |
| 2024 | 1037 | FD1 - FIRE DISTRICT #1 | $278.08 | $278.07 | $0.00 | $0.00 | $556.15 | $0.00 |
| 2024 | 1037 | EMS1 - FIRE DIST #1 EMS | $106.22 | $106.21 | $0.00 | $0.00 | $212.43 | $0.00 |
| 2024 | 1037 | FP - DNR Forest Fire Protection Assmt | $8.50 | $8.50 | $0.00 | $0.00 | $17.00 | $0.00 |
| 2024 | 1037 | FPLCA - DNR Landowner Contingency Assmt | $3.00 | $3.00 | $0.00 | $0.00 | $6.00 | $0.00 |
| 2024 | 1037 | JCCD - JC Conservation District | $2.80 | $2.80 | $0.00 | $0.00 | $5.60 | $0.00 |
| 2024 | 1037 | NWA - Noxious Weed Assessment | $2.90 | $2.90 | $0.00 | $0.00 | $5.80 | $0.00 |
| 2024 | 1037 | OSS - On Site Septic | $21.00 | $21.00 | $0.00 | $0.00 | $42.00 | $0.00 |
| 2024 | 1037 | WAT - Clean Water District | $12.50 | $12.50 | $0.00 | $0.00 | $25.00 | $0.00 |
| 2024 | 1037 | FP ADMIN - FP ADMIN | $0.50 | $0.00 | $0.00 | $0.00 | $0.50 | $0.00 |
| 2024 | 1037 | TOTAL: | $1888.90 | $1888.29 | $0.00 | $0.00 | $3777.19 | $0.00 |
|
| 2024 | 1037 | $1888.90 | $1888.29 | $0.00 | $0.00 | $3777.19 | $0.00 |
Statement Details |
| 2023 | 1037 | STATE - STATE LEVY (SCHOOL) | $490.40 | $490.38 | $0.00 | $0.00 | $980.78 | $0.00 |
| 2023 | 1037 | COUNTY - COUNTY LEVIES (CE, DD, VET, MH) | $214.00 | $213.98 | $0.00 | $0.00 | $427.98 | $0.00 |
| 2023 | 1037 | CONSERVE - CONSERVATION FUTURES | $6.42 | $6.41 | $0.00 | $0.00 | $12.83 | $0.00 |
| 2023 | 1037 | COROADS - COUNTY ROADS (ROADS, DIV TO CE) | $173.14 | $173.13 | $0.00 | $0.00 | $346.27 | $0.00 |
| 2023 | 1037 | PORTPT - PORT DISTRICT | $90.15 | $90.14 | $0.00 | $0.00 | $180.29 | $0.00 |
| 2023 | 1037 | PUD1 - PUD #1 | $14.19 | $14.18 | $0.00 | $0.00 | $28.37 | $0.00 |
| 2023 | 1037 | LIB1 - LIBRARY DIST #1 | $66.99 | $66.98 | $0.00 | $0.00 | $133.97 | $0.00 |
| 2023 | 1037 | HD2 - HOSP DIST #2 | $12.49 | $12.48 | $0.00 | $0.00 | $24.97 | $0.00 |
| 2023 | 1037 | SD50 - SCHOOL DIST #50 | $389.14 | $389.13 | $0.00 | $0.00 | $778.27 | $0.00 |
| 2023 | 1037 | FD1 - FIRE DISTRICT #1 | $176.29 | $176.28 | $0.00 | $0.00 | $352.57 | $0.00 |
| 2023 | 1037 | EMS1 - FIRE DIST #1 EMS | $74.99 | $74.99 | $0.00 | $0.00 | $149.98 | $0.00 |
| 2023 | 1037 | FP - DNR Forest Fire Protection Assmt | $8.50 | $8.50 | $0.00 | $0.00 | $17.00 | $0.00 |
| 2023 | 1037 | FPLCA - DNR Landowner Contingency Assmt | $3.00 | $3.00 | $0.00 | $0.00 | $6.00 | $0.00 |
| 2023 | 1037 | JCCD - JC Conservation District | $2.80 | $2.80 | $0.00 | $0.00 | $5.60 | $0.00 |
| 2023 | 1037 | NWA - Noxious Weed Assessment | $2.90 | $2.90 | $0.00 | $0.00 | $5.80 | $0.00 |
| 2023 | 1037 | OSS - On Site Septic | $20.50 | $20.50 | $0.00 | $0.00 | $41.00 | $0.00 |
| 2023 | 1037 | WAT - Clean Water District | $12.00 | $12.00 | $0.00 | $0.00 | $24.00 | $0.00 |
| 2023 | 1037 | FP ADMIN - FP ADMIN | $0.50 | $0.00 | $0.00 | $0.00 | $0.50 | $0.00 |
| 2023 | 1037 | TOTAL: | $1758.40 | $1757.78 | $0.00 | $0.00 | $3516.18 | $0.00 |
|
| 2023 | 1037 | $1758.40 | $1757.78 | $0.00 | $0.00 | $3516.18 | $0.00 |
Statement Details |
| 2022 | 1039 | STATE - STATE LEVY (SCHOOL) | $459.79 | $459.78 | $0.00 | $0.00 | $919.57 | $0.00 |
| 2022 | 1039 | COUNTY - COUNTY LEVIES (CE, DD, VET, MH) | $204.86 | $204.85 | $0.00 | $0.00 | $409.71 | $0.00 |
| 2022 | 1039 | CONSERVE - CONSERVATION FUTURES | $6.15 | $6.14 | $0.00 | $0.00 | $12.29 | $0.00 |
| 2022 | 1039 | COROADS - COUNTY ROADS (ROADS, DIV TO CE) | $166.51 | $166.49 | $0.00 | $0.00 | $333.00 | $0.00 |
| 2022 | 1039 | PORTPT - PORT DISTRICT | $87.71 | $87.69 | $0.00 | $0.00 | $175.40 | $0.00 |
| 2022 | 1039 | PUD1 - PUD #1 | $13.70 | $13.70 | $0.00 | $0.00 | $27.40 | $0.00 |
| 2022 | 1039 | LIB1 - LIBRARY DIST #1 | $64.42 | $64.42 | $0.00 | $0.00 | $128.84 | $0.00 |
| 2022 | 1039 | HD2 - HOSP DIST #2 | $11.97 | $11.95 | $0.00 | $0.00 | $23.92 | $0.00 |
| 2022 | 1039 | SD50 - SCHOOL DIST #50 | $340.73 | $340.72 | $0.00 | $0.00 | $681.45 | $0.00 |
| 2022 | 1039 | FD1 - FIRE DISTRICT #1 | $168.06 | $168.06 | $0.00 | $0.00 | $336.12 | $0.00 |
| 2022 | 1039 | EMS1 - FIRE DIST #1 EMS | $71.49 | $71.48 | $0.00 | $0.00 | $142.97 | $0.00 |
| 2022 | 1039 | FP - DNR Forest Fire Protection Assmt | $8.50 | $8.50 | $0.00 | $0.00 | $17.00 | $0.00 |
| 2022 | 1039 | FPLCA - DNR Landowner Contingency Assmt | $3.00 | $3.00 | $0.00 | $0.00 | $6.00 | $0.00 |
| 2022 | 1039 | JCCD - JC Conservation District | $2.80 | $2.80 | $0.00 | $0.00 | $5.60 | $0.00 |
| 2022 | 1039 | NWA - Noxious Weed Assessment | $2.90 | $2.90 | $0.00 | $0.00 | $5.80 | $0.00 |
| 2022 | 1039 | OSS - On Site Septic | $19.50 | $19.50 | $0.00 | $0.00 | $39.00 | $0.00 |
| 2022 | 1039 | WAT - Clean Water District | $11.50 | $11.50 | $0.00 | $0.00 | $23.00 | $0.00 |
| 2022 | 1039 | FP ADMIN - FP ADMIN | $0.50 | $0.00 | $0.00 | $0.00 | $0.50 | $0.00 |
| 2022 | 1039 | TOTAL: | $1644.09 | $1643.48 | $0.00 | $0.00 | $3287.57 | $0.00 |
|
| 2022 | 1039 | $1644.09 | $1643.48 | $0.00 | $0.00 | $3287.57 | $0.00 |
Values
| (+) Improvement Homesite Value: | + | $0 | |
| (+) Improvement Non-Homesite Value: | + | $311,729 | |
| (+) Land Homesite Value: | + | $0 | |
| (+) Land Non-Homesite Value: | + | $192,896 | |
| (+) Curr Use (HS): | + | $0 | $0 |
| (+) Curr Use (NHS): | + | $0 | $0 |
| | | -------------------------- | |
| (=) Market Value: | = | $504,625 | |
| (–) Productivity Loss: | – | $0 | |
| | | -------------------------- | |
| (=) Subtotal: | = | $504,625 | |
| (+) Senior Appraised Value: | + | $0 | |
| (+) Non-Senior Appraised Value: | + | $504,625 | |
| | | -------------------------- | |
| (=) Total Appraised Value: | = | $504,625 | |
| (–) Senior Exemption Loss: | – | $0 | |
| (–) Exemption Loss: | – | $0 | |
| | | -------------------------- | |
| (=) Taxable Value: | = | $504,625 | |
Taxing Jurisdiction
| Owner: | GREG A POOLE | | |
| % Ownership: | 100.0000000000% | | |
| Total Value: | N/A | | |
| Tax Area: | 0111 - 1-50F1E1H2L1 |
| CE | COUNTY CURRENT EXPENSE | N/A | N/A | N/A | N/A | | |
| CNTYDD | DEVELOPMENTAL DISABILITIES | N/A | N/A | N/A | N/A | | |
| CNTYVET | VETERANS RELIEF | N/A | N/A | N/A | N/A | | |
| MENTAL | MENTAL HEALTH | N/A | N/A | N/A | N/A | | |
| ROADS | COUNTY ROADS | N/A | N/A | N/A | N/A | | |
| ROADSCU | COUNTY ROADS TO CUR EXP | N/A | N/A | N/A | N/A | | |
| HOSP2CASH | HOSP DIST #2 GENERAL | N/A | N/A | N/A | N/A | | |
| SCH50BOND | SCHOOL DIST #50 BOND 2016 | N/A | N/A | N/A | N/A | | |
| SCH50CP | SCHOOL DIST #50 CAP PROJ | N/A | N/A | N/A | N/A | | |
| SCH50MO | SCHOOL DIST #50 EP & O | N/A | N/A | N/A | N/A | | |
| CONSERVE | CONSERVATION FUTURES | N/A | N/A | N/A | N/A | | |
| EMS1 | FIRE DIST #1 EMS | N/A | N/A | N/A | N/A | | |
| FD1 | FIRE DIST #1 GENERAL | N/A | N/A | N/A | N/A | | |
| LIB1 | LIBRARY DIST #1 GENERAL | N/A | N/A | N/A | N/A | | |
| PORTPT | PORT OF PT GENERAL | N/A | N/A | N/A | N/A | | |
| PORTPTIDD | PORT OF PT IDD 2019 | N/A | N/A | N/A | N/A | | |
| PUD1 | PUD #1 GENERAL | N/A | N/A | N/A | N/A | | |
| STATE | STATE SCHOOL PART 1 | N/A | N/A | N/A | N/A | | |
| STATE2 | STATE SCHOOL PART 2 | N/A | N/A | N/A | N/A | | |
| | Total Tax Rate: | N/A | | | | | |
| | | | | Taxes w/Current Exemptions: | N/A | | |
| | | | | Taxes w/o Exemptions: | N/A | | |
Improvement / Building
| Improvement #1: | Manufactured Home | State Code: | 11 | 1836.0 sqft | Value: | $311,729 |
| Bathrooms (#): | 2 (FULL) | Bedrooms (#): | 3 | | Exterior Wall: | PL/T1 | Fireplace: | WD ST-GOOD | | Foundation: | CONPR | Heating/Cooling: | F/A | | Roof Cover: | COMP |   |   |
|
| | Type | Description | Class CD | Sub Class CD | Year Built | Area |
| | MA | Main Area | 3 | 1S | 1993 | 1836.0 |
| | GATT | House Attached Garage | 3 | 1S | 1993 | 736.0 |
| | CARPTF | Carport W/Floor | 3 | 1S | 1993 | 352.0 |
| | SHED | Shed (Table Not Dep) | 3 | 1S | 1993 | 288.0 |
| | GDET | Detached Garage | 3 | 1S | 1993 | 896.0 |
Sketch
| No sketches available for this property. |
Property Image
Land
| 1 | 1575A | | 4.3200 | 188179.20 | 0.00 | 0.00 | 0.00 | $49,896 | $0 |
| 2 | 5370-1355S | | 1.0000 | 43560.00 | 0.00 | 0.00 | 1.00 | $143,000 | $0 |
Roll Value History
| 2025 | N/A | N/A | N/A | N/A | N/A |
| 2024 | $298,176 | $184,128 | $0 | $482,304 | $482,304 |
| 2023 | $256,656 | $168,200 | $0 | $424,856 | $424,856 |
| 2022 | $256,656 | $159,960 | $0 | $416,616 | $416,616 |
| 2021 | $194,436 | $141,878 | $0 | $336,314 | $336,314 |
Deed and Sales History
| 1 | 11/17/2009 | QCD | Quit Claim Deed | POOLE, GREG A | POOLE, GREG A/SMITH, SARAH M | 0 | 0 | $0.00 | 113670 | 0 |
| 2 | 10/23/2002 | QCD | Quit Claim Deed | POOLE, FRANK D | POOLE, GREG A | 0 | 0 | $0.00 | 95818 | 0 |
| 3 | 12/14/2001 | QCD | Quit Claim Deed | POOLE, FRANK D | POOLE, FRANK D, POOLE, GREG D | 0 | 0 | $39,500.00 | 93670 | 0 |
| 4 | 01/24/2000 | SWD | Statutory Warranty Deed | SLATER, L NEIL/MAXIMA B | POOLE, FRANK D | 0 | 0 | $153,000.00 | 88919 | 0 |
| 5 | 09/28/1995 | QCD | Quit Claim Deed | SLATER, L G/THERESA | NEIL, L/SLATER, MAXIMA B | 0 | 0 | $0.00 | 77892 | 0 |
Payout Agreement
| No payout information available.. |