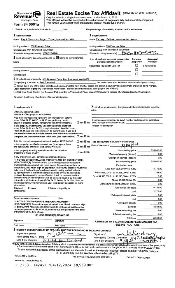
Property
Account |
| Property ID: | 11106 | Abbreviated Legal Description: | RAIN CROW INDUSTRIAL CENTER BINDING SITE PLAN SITE 1 |
| Parcel # / Geo ID: | 001212030 | Agent Code: | |
| Type: | Real | | |
| Tax Area: | 0111 - 1-50F1E1H2L1 | Land Use Code | 18 |
| Open Space: | N | DFL | N |
| Historic Property: | N | Remodel Property: | N |
| Multi-Family Redevelopment: | N | | |
| Township: | 30N | Section: | 21 |
| Range: | 1W |
Location |
| Address: | 490 OTTO ST PORT TOWNSEND, WA 98368 | Mapsco: | 136/028 |
| Neighborhood: | SR20 / OTTO ST / GLEN COVE COMMERCIAL AREA NORTH | Map ID: | |
| Neighborhood CD: | 5350C |
Owner |
| Name: | DCC PROPANE LLC | Owner ID: | 100907 |
| Mailing Address: | 1001 WARRENVILLE RD STE 350 LISLE, IL 60532-1351 | % Ownership: | 100.0000000000% |
| | | Exemptions: | |
Pay Tax Due
There is currently No Amount Due on this property.
Taxes and Assessment Details
Property Tax Information as of
10/23/2025
Click on "Statement Details" to expand or collapse a tax statement.
* Please enter a valid date ** Please enter a valid date *
Statement Details |
| 2025 | 1066 | STATE - STATE LEVY (SCHOOL) | $200.89 | $200.88 | $0.00 | $0.00 | $401.77 | $0.00 |
| 2025 | 1066 | COUNTY - COUNTY LEVIES (CE, DD, VET, MH) | $79.01 | $78.98 | $0.00 | $0.00 | $157.99 | $0.00 |
| 2025 | 1066 | CONSERVE - CONSERVATION FUTURES | $2.37 | $2.37 | $0.00 | $0.00 | $4.74 | $0.00 |
| 2025 | 1066 | COROADS - COUNTY ROADS (ROADS, DIV TO CE) | $63.29 | $63.28 | $0.00 | $0.00 | $126.57 | $0.00 |
| 2025 | 1066 | PORTPT - PORT DISTRICT | $32.24 | $32.23 | $0.00 | $0.00 | $64.47 | $0.00 |
| 2025 | 1066 | PUD1 - PUD #1 | $5.17 | $5.17 | $0.00 | $0.00 | $10.34 | $0.00 |
| 2025 | 1066 | LIB1 - LIBRARY DIST #1 | $24.49 | $24.48 | $0.00 | $0.00 | $48.97 | $0.00 |
| 2025 | 1066 | HD2 - HOSP DIST #2 | $4.61 | $4.61 | $0.00 | $0.00 | $9.22 | $0.00 |
| 2025 | 1066 | SD50 - SCHOOL DIST #50 | $146.82 | $146.81 | $0.00 | $0.00 | $293.63 | $0.00 |
| 2025 | 1066 | FD1 - FIRE DISTRICT #1 | $104.25 | $104.24 | $0.00 | $0.00 | $208.49 | $0.00 |
| 2025 | 1066 | EMS1 - FIRE DIST #1 EMS | $40.10 | $40.09 | $0.00 | $0.00 | $80.19 | $0.00 |
| 2025 | 1066 | JCCD - JC Conservation District | $2.55 | $2.55 | $0.00 | $0.00 | $5.10 | $0.00 |
| 2025 | 1066 | NWA - Noxious Weed Assessment | $2.15 | $2.15 | $0.00 | $0.00 | $4.30 | $0.00 |
| 2025 | 1066 | WAT - Clean Water District | $13.00 | $13.00 | $0.00 | $0.00 | $26.00 | $0.00 |
| 2025 | 1066 | TOTAL: | $720.94 | $720.84 | $0.00 | $0.00 | $1441.78 | $0.00 |
|
| 2025 | 1066 | $720.94 | $720.84 | $0.00 | $0.00 | $1441.78 | $0.00 |
Statement Details |
| 2024 | 1068 | STATE - STATE LEVY (SCHOOL) | $191.50 | $191.50 | $0.00 | $0.00 | $383.00 | $0.00 |
| 2024 | 1068 | COUNTY - COUNTY LEVIES (CE, DD, VET, MH) | $81.96 | $81.94 | $0.00 | $0.00 | $163.90 | $0.00 |
| 2024 | 1068 | CONSERVE - CONSERVATION FUTURES | $2.46 | $2.45 | $0.00 | $0.00 | $4.91 | $0.00 |
| 2024 | 1068 | COROADS - COUNTY ROADS (ROADS, DIV TO CE) | $65.94 | $65.94 | $0.00 | $0.00 | $131.88 | $0.00 |
| 2024 | 1068 | PORTPT - PORT DISTRICT | $33.85 | $33.85 | $0.00 | $0.00 | $67.70 | $0.00 |
| 2024 | 1068 | PUD1 - PUD #1 | $5.38 | $5.38 | $0.00 | $0.00 | $10.76 | $0.00 |
| 2024 | 1068 | LIB1 - LIBRARY DIST #1 | $25.51 | $25.51 | $0.00 | $0.00 | $51.02 | $0.00 |
| 2024 | 1068 | HD2 - HOSP DIST #2 | $4.78 | $4.78 | $0.00 | $0.00 | $9.56 | $0.00 |
| 2024 | 1068 | SD50 - SCHOOL DIST #50 | $154.94 | $154.93 | $0.00 | $0.00 | $309.87 | $0.00 |
| 2024 | 1068 | FD1 - FIRE DISTRICT #1 | $108.35 | $108.35 | $0.00 | $0.00 | $216.70 | $0.00 |
| 2024 | 1068 | EMS1 - FIRE DIST #1 EMS | $41.39 | $41.38 | $0.00 | $0.00 | $82.77 | $0.00 |
| 2024 | 1068 | JCCD - JC Conservation District | $2.55 | $2.55 | $0.00 | $0.00 | $5.10 | $0.00 |
| 2024 | 1068 | NWA - Noxious Weed Assessment | $2.15 | $2.15 | $0.00 | $0.00 | $4.30 | $0.00 |
| 2024 | 1068 | WAT - Clean Water District | $12.50 | $12.50 | $0.00 | $0.00 | $25.00 | $0.00 |
| 2024 | 1068 | TOTAL: | $733.26 | $733.21 | $0.00 | $0.00 | $1466.47 | $0.00 |
|
| 2024 | 1068 | $733.26 | $733.21 | $0.00 | $0.00 | $1466.47 | $0.00 |
Statement Details |
| 2023 | 1068 | STATE - STATE LEVY (SCHOOL) | $175.01 | $175.00 | $0.00 | $0.00 | $350.01 | $0.00 |
| 2023 | 1068 | COUNTY - COUNTY LEVIES (CE, DD, VET, MH) | $76.38 | $76.36 | $0.00 | $0.00 | $152.74 | $0.00 |
| 2023 | 1068 | CONSERVE - CONSERVATION FUTURES | $2.29 | $2.29 | $0.00 | $0.00 | $4.58 | $0.00 |
| 2023 | 1068 | COROADS - COUNTY ROADS (ROADS, DIV TO CE) | $61.79 | $61.78 | $0.00 | $0.00 | $123.57 | $0.00 |
| 2023 | 1068 | PORTPT - PORT DISTRICT | $32.17 | $32.17 | $0.00 | $0.00 | $64.34 | $0.00 |
| 2023 | 1068 | PUD1 - PUD #1 | $5.06 | $5.06 | $0.00 | $0.00 | $10.12 | $0.00 |
| 2023 | 1068 | LIB1 - LIBRARY DIST #1 | $23.91 | $23.90 | $0.00 | $0.00 | $47.81 | $0.00 |
| 2023 | 1068 | HD2 - HOSP DIST #2 | $4.46 | $4.45 | $0.00 | $0.00 | $8.91 | $0.00 |
| 2023 | 1068 | SD50 - SCHOOL DIST #50 | $138.88 | $138.86 | $0.00 | $0.00 | $277.74 | $0.00 |
| 2023 | 1068 | FD1 - FIRE DISTRICT #1 | $62.91 | $62.91 | $0.00 | $0.00 | $125.82 | $0.00 |
| 2023 | 1068 | EMS1 - FIRE DIST #1 EMS | $26.76 | $26.76 | $0.00 | $0.00 | $53.52 | $0.00 |
| 2023 | 1068 | JCCD - JC Conservation District | $2.55 | $2.55 | $0.00 | $0.00 | $5.10 | $0.00 |
| 2023 | 1068 | NWA - Noxious Weed Assessment | $2.15 | $2.15 | $0.00 | $0.00 | $4.30 | $0.00 |
| 2023 | 1068 | WAT - Clean Water District | $12.00 | $12.00 | $0.00 | $0.00 | $24.00 | $0.00 |
| 2023 | 1068 | TOTAL: | $626.32 | $626.24 | $0.00 | $0.00 | $1252.56 | $0.00 |
|
| 2023 | 1068 | $626.32 | $626.24 | $0.00 | $0.00 | $1252.56 | $0.00 |
Statement Details |
| 2022 | 1070 | STATE - STATE LEVY (SCHOOL) | $107.74 | $107.73 | $0.00 | $0.00 | $215.47 | $0.00 |
| 2022 | 1070 | COUNTY - COUNTY LEVIES (CE, DD, VET, MH) | $48.00 | $47.99 | $0.00 | $0.00 | $95.99 | $0.00 |
| 2022 | 1070 | CONSERVE - CONSERVATION FUTURES | $1.44 | $1.44 | $0.00 | $0.00 | $2.88 | $0.00 |
| 2022 | 1070 | COROADS - COUNTY ROADS (ROADS, DIV TO CE) | $39.02 | $39.01 | $0.00 | $0.00 | $78.03 | $0.00 |
| 2022 | 1070 | PORTPT - PORT DISTRICT | $20.56 | $20.54 | $0.00 | $0.00 | $41.10 | $0.00 |
| 2022 | 1070 | PUD1 - PUD #1 | $3.21 | $3.21 | $0.00 | $0.00 | $6.42 | $0.00 |
| 2022 | 1070 | LIB1 - LIBRARY DIST #1 | $15.10 | $15.09 | $0.00 | $0.00 | $30.19 | $0.00 |
| 2022 | 1070 | HD2 - HOSP DIST #2 | $2.81 | $2.79 | $0.00 | $0.00 | $5.60 | $0.00 |
| 2022 | 1070 | SD50 - SCHOOL DIST #50 | $79.85 | $79.83 | $0.00 | $0.00 | $159.68 | $0.00 |
| 2022 | 1070 | FD1 - FIRE DISTRICT #1 | $39.38 | $39.38 | $0.00 | $0.00 | $78.76 | $0.00 |
| 2022 | 1070 | EMS1 - FIRE DIST #1 EMS | $16.75 | $16.75 | $0.00 | $0.00 | $33.50 | $0.00 |
| 2022 | 1070 | JCCD - JC Conservation District | $2.55 | $2.55 | $0.00 | $0.00 | $5.10 | $0.00 |
| 2022 | 1070 | NWA - Noxious Weed Assessment | $2.15 | $2.15 | $0.00 | $0.00 | $4.30 | $0.00 |
| 2022 | 1070 | WAT - Clean Water District | $11.50 | $11.50 | $0.00 | $0.00 | $23.00 | $0.00 |
| 2022 | 1070 | TOTAL: | $390.06 | $389.96 | $0.00 | $0.00 | $780.02 | $0.00 |
|
| 2022 | 1070 | $390.06 | $389.96 | $0.00 | $0.00 | $780.02 | $0.00 |
Values
| (+) Improvement Homesite Value: | + | $0 | |
| (+) Improvement Non-Homesite Value: | + | $0 | |
| (+) Land Homesite Value: | + | $0 | |
| (+) Land Non-Homesite Value: | + | $167,544 | |
| (+) Curr Use (HS): | + | $0 | $0 |
| (+) Curr Use (NHS): | + | $0 | $0 |
| | | -------------------------- | |
| (=) Market Value: | = | $167,544 | |
| (–) Productivity Loss: | – | $0 | |
| | | -------------------------- | |
| (=) Subtotal: | = | $167,544 | |
| (+) Senior Appraised Value: | + | $0 | |
| (+) Non-Senior Appraised Value: | + | $167,544 | |
| | | -------------------------- | |
| (=) Total Appraised Value: | = | $167,544 | |
| (–) Senior Exemption Loss: | – | $0 | |
| (–) Exemption Loss: | – | $0 | |
| | | -------------------------- | |
| (=) Taxable Value: | = | $167,544 | |
Taxing Jurisdiction
| Owner: | DCC PROPANE LLC | | |
| % Ownership: | 100.0000000000% | | |
| Total Value: | N/A | | |
| Tax Area: | 0111 - 1-50F1E1H2L1 |
| CE | COUNTY CURRENT EXPENSE | N/A | N/A | N/A | N/A | | |
| CNTYDD | DEVELOPMENTAL DISABILITIES | N/A | N/A | N/A | N/A | | |
| CNTYVET | VETERANS RELIEF | N/A | N/A | N/A | N/A | | |
| MENTAL | MENTAL HEALTH | N/A | N/A | N/A | N/A | | |
| ROADS | COUNTY ROADS | N/A | N/A | N/A | N/A | | |
| ROADSCU | COUNTY ROADS TO CUR EXP | N/A | N/A | N/A | N/A | | |
| HOSP2CASH | HOSP DIST #2 GENERAL | N/A | N/A | N/A | N/A | | |
| SCH50BOND | SCHOOL DIST #50 BOND 2016 | N/A | N/A | N/A | N/A | | |
| SCH50CP | SCHOOL DIST #50 CAP PROJ | N/A | N/A | N/A | N/A | | |
| SCH50MO | SCHOOL DIST #50 EP & O | N/A | N/A | N/A | N/A | | |
| CONSERVE | CONSERVATION FUTURES | N/A | N/A | N/A | N/A | | |
| EMS1 | FIRE DIST #1 EMS | N/A | N/A | N/A | N/A | | |
| FD1 | FIRE DIST #1 GENERAL | N/A | N/A | N/A | N/A | | |
| LIB1 | LIBRARY DIST #1 GENERAL | N/A | N/A | N/A | N/A | | |
| PORTPT | PORT OF PT GENERAL | N/A | N/A | N/A | N/A | | |
| PORTPTIDD | PORT OF PT IDD 2019 | N/A | N/A | N/A | N/A | | |
| PUD1 | PUD #1 GENERAL | N/A | N/A | N/A | N/A | | |
| STATE | STATE SCHOOL PART 1 | N/A | N/A | N/A | N/A | | |
| STATE2 | STATE SCHOOL PART 2 | N/A | N/A | N/A | N/A | | |
| | Total Tax Rate: | N/A | | | | | |
| | | | | Taxes w/Current Exemptions: | N/A | | |
| | | | | Taxes w/o Exemptions: | N/A | | |
Improvement / Building
Sketch
| No sketches available for this property. |
Property Image
Land
| 1 | 5350-6275Q | | 0.7959 | 34669.00 | 0.00 | 0.00 | 0.00 | $167,544 | $0 |
Roll Value History
| 2025 | N/A | N/A | N/A | N/A | N/A |
| 2024 | $0 | $167,544 | $0 | $167,544 | $167,544 |
| 2023 | $0 | $165,544 | $0 | $165,544 | $165,544 |
| 2022 | $0 | $148,676 | $0 | $148,676 | $148,676 |
| 2021 | $0 | $78,805 | $0 | $78,805 | $78,805 |
Deed and Sales History
| 1 | 04/17/2019 | SWD | Statutory Warranty Deed | SUNSHINE PROPANE LLC | DCC PROPANE LLC | | | $78,805.00 | 132199 | |
| 2 | 12/14/2017 | SWD | Statutory Warranty Deed | LEFSE GAS PARTNERSHIP | SUNSHINE PROPANE LLC | | | $97,000.00 | 129268 | |
| 3 | 02/16/1995 | SWD | Statutory Warranty Deed | BUILDINGS PLUS INC | LEFSE GAS PARTNERSHIP | 0 | 0 | $15,000.00 | 76405 | 0 |
Payout Agreement
| No payout information available.. |