Property
Account |
| Property ID: | 11114 | Abbreviated Legal Description: | S21 T30 R1W NW SW (E OF HWY)LESS TAX #'S 4,5,6,7,8,9, 10,11 LS RD R/W |
| Parcel # / Geo ID: | 001213006 | Agent Code: | |
| Type: | Real | | |
| Tax Area: | 0111 - 1-50F1E1H2L1 | Land Use Code | 11 |
| Open Space: | N | DFL | N |
| Historic Property: | N | Remodel Property: | N |
| Multi-Family Redevelopment: | N | | |
| Township: | 30N | Section: | 21 |
| Range: | 1W |
Location |
| Address: | 60 OLD FORT TOWNSEND RD PORT TOWNSEND, WA 98368 | Mapsco: | 094/011 |
| Neighborhood: | S21 & 22 T30 R1W, KEARNEY'S | Map ID: | |
| Neighborhood CD: | 5355 |
Owner |
| Name: | NATHAN E LAWSON & PAULINE E FUSCO | Owner ID: | 101150 |
| Mailing Address: | PO BOX 55425 NORTH POLE, AK 99705-0425 | % Ownership: | 100.0000000000% |
| | | Exemptions: | |
Pay Tax Due
Select the appropriate checkbox next to the year to be paid. Multiple years may be selected.
*Convenience Fee not included
Taxes and Assessment Details
Property Tax Information as of
10/23/2025
Click on "Statement Details" to expand or collapse a tax statement.
* Please enter a valid date ** Please enter a valid date *
Statement Details |
| 2025 | 1074 | STATE - STATE LEVY (SCHOOL) | $201.74 | $201.72 | $0.00 | $0.00 | $201.74 | $201.72 |
| 2025 | 1074 | COUNTY - COUNTY LEVIES (CE, DD, VET, MH) | $79.34 | $79.32 | $0.00 | $0.00 | $79.34 | $79.32 |
| 2025 | 1074 | CONSERVE - CONSERVATION FUTURES | $2.38 | $2.38 | $0.00 | $0.00 | $2.38 | $2.38 |
| 2025 | 1074 | COROADS - COUNTY ROADS (ROADS, DIV TO CE) | $63.56 | $63.55 | $0.00 | $0.00 | $63.56 | $63.55 |
| 2025 | 1074 | PORTPT - PORT DISTRICT | $32.38 | $32.36 | $0.00 | $0.00 | $32.38 | $32.36 |
| 2025 | 1074 | PUD1 - PUD #1 | $5.19 | $5.19 | $0.00 | $0.00 | $5.19 | $5.19 |
| 2025 | 1074 | LIB1 - LIBRARY DIST #1 | $24.59 | $24.59 | $0.00 | $0.00 | $24.59 | $24.59 |
| 2025 | 1074 | HD2 - HOSP DIST #2 | $4.63 | $4.63 | $0.00 | $0.00 | $4.63 | $4.63 |
| 2025 | 1074 | SD50 - SCHOOL DIST #50 | $147.44 | $147.42 | $0.00 | $0.00 | $147.44 | $147.42 |
| 2025 | 1074 | FD1 - FIRE DISTRICT #1 | $104.69 | $104.68 | $0.00 | $0.00 | $104.69 | $104.68 |
| 2025 | 1074 | EMS1 - FIRE DIST #1 EMS | $40.27 | $40.26 | $0.00 | $0.00 | $40.27 | $40.26 |
| 2025 | 1074 | FPLCA - DNR Landowner Contingency Assmt | $3.00 | $3.00 | $0.00 | $0.00 | $3.00 | $3.00 |
| 2025 | 1074 | JCCD - JC Conservation District | $2.60 | $2.60 | $0.00 | $0.00 | $2.60 | $2.60 |
| 2025 | 1074 | NWA - Noxious Weed Assessment | $2.30 | $2.30 | $0.00 | $0.00 | $2.30 | $2.30 |
| 2025 | 1074 | OSS - On Site Septic | $21.50 | $21.50 | $0.00 | $0.00 | $21.50 | $21.50 |
| 2025 | 1074 | WAT - Clean Water District | $13.00 | $13.00 | $0.00 | $0.00 | $13.00 | $13.00 |
| 2025 | 1074 | TOTAL: | $748.61 | $748.50 | $0.00 | $0.00 | $748.61 | $748.50 |
|
| 2025 | 1074 | $748.61 | $748.50 | $0.00 | $0.00 | $748.61 | $748.50 |
Statement Details |
| 2024 | 1076 | STATE - STATE LEVY (SCHOOL) | $190.29 | $190.28 | $0.00 | $0.00 | $380.57 | $0.00 |
| 2024 | 1076 | COUNTY - COUNTY LEVIES (CE, DD, VET, MH) | $81.43 | $81.42 | $0.00 | $0.00 | $162.85 | $0.00 |
| 2024 | 1076 | CONSERVE - CONSERVATION FUTURES | $2.44 | $2.44 | $0.00 | $0.00 | $4.88 | $0.00 |
| 2024 | 1076 | COROADS - COUNTY ROADS (ROADS, DIV TO CE) | $65.52 | $65.52 | $0.00 | $0.00 | $131.04 | $0.00 |
| 2024 | 1076 | PORTPT - PORT DISTRICT | $33.64 | $33.63 | $0.00 | $0.00 | $67.27 | $0.00 |
| 2024 | 1076 | PUD1 - PUD #1 | $5.35 | $5.35 | $0.00 | $0.00 | $10.70 | $0.00 |
| 2024 | 1076 | LIB1 - LIBRARY DIST #1 | $25.35 | $25.35 | $0.00 | $0.00 | $50.70 | $0.00 |
| 2024 | 1076 | HD2 - HOSP DIST #2 | $4.75 | $4.75 | $0.00 | $0.00 | $9.50 | $0.00 |
| 2024 | 1076 | SD50 - SCHOOL DIST #50 | $153.95 | $153.95 | $0.00 | $0.00 | $307.90 | $0.00 |
| 2024 | 1076 | FD1 - FIRE DISTRICT #1 | $107.67 | $107.66 | $0.00 | $0.00 | $215.33 | $0.00 |
| 2024 | 1076 | EMS1 - FIRE DIST #1 EMS | $41.13 | $41.12 | $0.00 | $0.00 | $82.25 | $0.00 |
| 2024 | 1076 | FPLCA - DNR Landowner Contingency Assmt | $3.00 | $3.00 | $0.00 | $0.00 | $6.00 | $0.00 |
| 2024 | 1076 | JCCD - JC Conservation District | $2.60 | $2.60 | $0.00 | $0.00 | $5.20 | $0.00 |
| 2024 | 1076 | NWA - Noxious Weed Assessment | $2.30 | $2.30 | $0.00 | $0.00 | $4.60 | $0.00 |
| 2024 | 1076 | OSS - On Site Septic | $21.00 | $21.00 | $0.00 | $0.00 | $42.00 | $0.00 |
| 2024 | 1076 | WAT - Clean Water District | $12.50 | $12.50 | $0.00 | $0.00 | $25.00 | $0.00 |
| 2024 | 1076 | TOTAL: | $752.92 | $752.87 | $0.00 | $0.00 | $1505.79 | $0.00 |
|
| 2024 | 1076 | $752.92 | $752.87 | $0.00 | $0.00 | $1505.79 | $0.00 |
Statement Details |
| 2023 | 1076 | STATE - STATE LEVY (SCHOOL) | $175.19 | $175.18 | $0.00 | $0.00 | $350.37 | $0.00 |
| 2023 | 1076 | COUNTY - COUNTY LEVIES (CE, DD, VET, MH) | $76.46 | $76.43 | $0.00 | $0.00 | $152.89 | $0.00 |
| 2023 | 1076 | CONSERVE - CONSERVATION FUTURES | $2.29 | $2.29 | $0.00 | $0.00 | $4.58 | $0.00 |
| 2023 | 1076 | COROADS - COUNTY ROADS (ROADS, DIV TO CE) | $61.85 | $61.85 | $0.00 | $0.00 | $123.70 | $0.00 |
| 2023 | 1076 | PORTPT - PORT DISTRICT | $32.21 | $32.20 | $0.00 | $0.00 | $64.41 | $0.00 |
| 2023 | 1076 | PUD1 - PUD #1 | $5.07 | $5.06 | $0.00 | $0.00 | $10.13 | $0.00 |
| 2023 | 1076 | LIB1 - LIBRARY DIST #1 | $23.93 | $23.93 | $0.00 | $0.00 | $47.86 | $0.00 |
| 2023 | 1076 | HD2 - HOSP DIST #2 | $4.47 | $4.45 | $0.00 | $0.00 | $8.92 | $0.00 |
| 2023 | 1076 | SD50 - SCHOOL DIST #50 | $139.02 | $139.00 | $0.00 | $0.00 | $278.02 | $0.00 |
| 2023 | 1076 | FD1 - FIRE DISTRICT #1 | $62.98 | $62.97 | $0.00 | $0.00 | $125.95 | $0.00 |
| 2023 | 1076 | EMS1 - FIRE DIST #1 EMS | $26.79 | $26.79 | $0.00 | $0.00 | $53.58 | $0.00 |
| 2023 | 1076 | FPLCA - DNR Landowner Contingency Assmt | $3.00 | $3.00 | $0.00 | $0.00 | $6.00 | $0.00 |
| 2023 | 1076 | JCCD - JC Conservation District | $2.60 | $2.60 | $0.00 | $0.00 | $5.20 | $0.00 |
| 2023 | 1076 | NWA - Noxious Weed Assessment | $2.30 | $2.30 | $0.00 | $0.00 | $4.60 | $0.00 |
| 2023 | 1076 | OSS - On Site Septic | $20.50 | $20.50 | $0.00 | $0.00 | $41.00 | $0.00 |
| 2023 | 1076 | WAT - Clean Water District | $12.00 | $12.00 | $0.00 | $0.00 | $24.00 | $0.00 |
| 2023 | 1076 | TOTAL: | $650.66 | $650.55 | $0.00 | $0.00 | $1301.21 | $0.00 |
|
| 2023 | 1076 | $650.66 | $650.55 | $0.00 | $0.00 | $1301.21 | $0.00 |
Statement Details |
| 2022 | 1078 | STATE - STATE LEVY (SCHOOL) | $166.41 | $166.40 | $0.00 | $0.00 | $332.81 | $0.00 |
| 2022 | 1078 | COUNTY - COUNTY LEVIES (CE, DD, VET, MH) | $74.15 | $74.13 | $0.00 | $0.00 | $148.28 | $0.00 |
| 2022 | 1078 | CONSERVE - CONSERVATION FUTURES | $2.23 | $2.22 | $0.00 | $0.00 | $4.45 | $0.00 |
| 2022 | 1078 | COROADS - COUNTY ROADS (ROADS, DIV TO CE) | $60.27 | $60.25 | $0.00 | $0.00 | $120.52 | $0.00 |
| 2022 | 1078 | PORTPT - PORT DISTRICT | $31.75 | $31.73 | $0.00 | $0.00 | $63.48 | $0.00 |
| 2022 | 1078 | PUD1 - PUD #1 | $4.96 | $4.96 | $0.00 | $0.00 | $9.92 | $0.00 |
| 2022 | 1078 | LIB1 - LIBRARY DIST #1 | $23.32 | $23.31 | $0.00 | $0.00 | $46.63 | $0.00 |
| 2022 | 1078 | HD2 - HOSP DIST #2 | $4.34 | $4.32 | $0.00 | $0.00 | $8.66 | $0.00 |
| 2022 | 1078 | SD50 - SCHOOL DIST #50 | $123.33 | $123.30 | $0.00 | $0.00 | $246.63 | $0.00 |
| 2022 | 1078 | FD1 - FIRE DISTRICT #1 | $60.83 | $60.82 | $0.00 | $0.00 | $121.65 | $0.00 |
| 2022 | 1078 | EMS1 - FIRE DIST #1 EMS | $25.87 | $25.87 | $0.00 | $0.00 | $51.74 | $0.00 |
| 2022 | 1078 | FPLCA - DNR Landowner Contingency Assmt | $3.00 | $3.00 | $0.00 | $0.00 | $6.00 | $0.00 |
| 2022 | 1078 | JCCD - JC Conservation District | $2.60 | $2.60 | $0.00 | $0.00 | $5.20 | $0.00 |
| 2022 | 1078 | NWA - Noxious Weed Assessment | $2.30 | $2.30 | $0.00 | $0.00 | $4.60 | $0.00 |
| 2022 | 1078 | OSS - On Site Septic | $19.50 | $19.50 | $0.00 | $0.00 | $39.00 | $0.00 |
| 2022 | 1078 | WAT - Clean Water District | $11.50 | $11.50 | $0.00 | $0.00 | $23.00 | $0.00 |
| 2022 | 1078 | TOTAL: | $616.36 | $616.21 | $0.00 | $0.00 | $1232.57 | $0.00 |
|
| 2022 | 1078 | $616.36 | $616.21 | $0.00 | $0.00 | $1232.57 | $0.00 |
Values
| (+) Improvement Homesite Value: | + | $0 | |
| (+) Improvement Non-Homesite Value: | + | $59,575 | |
| (+) Land Homesite Value: | + | $0 | |
| (+) Land Non-Homesite Value: | + | $116,208 | |
| (+) Curr Use (HS): | + | $0 | $0 |
| (+) Curr Use (NHS): | + | $0 | $0 |
| | | -------------------------- | |
| (=) Market Value: | = | $175,783 | |
| (–) Productivity Loss: | – | $0 | |
| | | -------------------------- | |
| (=) Subtotal: | = | $175,783 | |
| (+) Senior Appraised Value: | + | $0 | |
| (+) Non-Senior Appraised Value: | + | $175,783 | |
| | | -------------------------- | |
| (=) Total Appraised Value: | = | $175,783 | |
| (–) Senior Exemption Loss: | – | $0 | |
| (–) Exemption Loss: | – | $0 | |
| | | -------------------------- | |
| (=) Taxable Value: | = | $175,783 | |
Taxing Jurisdiction
| Owner: | NATHAN E LAWSON & PAULINE E FUSCO | | |
| % Ownership: | 100.0000000000% | | |
| Total Value: | N/A | | |
| Tax Area: | 0111 - 1-50F1E1H2L1 |
| CE | COUNTY CURRENT EXPENSE | N/A | N/A | N/A | N/A | | |
| CNTYDD | DEVELOPMENTAL DISABILITIES | N/A | N/A | N/A | N/A | | |
| CNTYVET | VETERANS RELIEF | N/A | N/A | N/A | N/A | | |
| MENTAL | MENTAL HEALTH | N/A | N/A | N/A | N/A | | |
| ROADS | COUNTY ROADS | N/A | N/A | N/A | N/A | | |
| ROADSCU | COUNTY ROADS TO CUR EXP | N/A | N/A | N/A | N/A | | |
| HOSP2CASH | HOSP DIST #2 GENERAL | N/A | N/A | N/A | N/A | | |
| SCH50BOND | SCHOOL DIST #50 BOND 2016 | N/A | N/A | N/A | N/A | | |
| SCH50CP | SCHOOL DIST #50 CAP PROJ | N/A | N/A | N/A | N/A | | |
| SCH50MO | SCHOOL DIST #50 EP & O | N/A | N/A | N/A | N/A | | |
| CONSERVE | CONSERVATION FUTURES | N/A | N/A | N/A | N/A | | |
| EMS1 | FIRE DIST #1 EMS | N/A | N/A | N/A | N/A | | |
| FD1 | FIRE DIST #1 GENERAL | N/A | N/A | N/A | N/A | | |
| LIB1 | LIBRARY DIST #1 GENERAL | N/A | N/A | N/A | N/A | | |
| PORTPT | PORT OF PT GENERAL | N/A | N/A | N/A | N/A | | |
| PORTPTIDD | PORT OF PT IDD 2019 | N/A | N/A | N/A | N/A | | |
| PUD1 | PUD #1 GENERAL | N/A | N/A | N/A | N/A | | |
| STATE | STATE SCHOOL PART 1 | N/A | N/A | N/A | N/A | | |
| STATE2 | STATE SCHOOL PART 2 | N/A | N/A | N/A | N/A | | |
| | Total Tax Rate: | N/A | | | | | |
| | | | | Taxes w/Current Exemptions: | N/A | | |
| | | | | Taxes w/o Exemptions: | N/A | | |
Improvement / Building
| Improvement #1: | Residential Bldg | State Code: | 11 | 929.0 sqft | Value: | $59,575 |
| Bathrooms (#): | 1 (FULL) | Bedrooms (#): | 2 | | Exterior Wall: | BL/VE | Fireplace: | WD ST-GOOD | | Floor Construction: | CONCR | Foundation: | CONPR | | Heating/Cooling: | WD/NO | Inside Verify: | YES-FIX | | Roof Cover: | COMP |   |   |
|
| | Type | Description | Class CD | Sub Class CD | Year Built | Area |
| | MA | Main Area | 1 | 1S | 1953 | 929.0 |
| | BSMTU | House basement unfinished | 1 | * | 1953 | 929.0 |
| | HATTIC | House Attic | 1 | * | 1953 | 480.0 |
Sketch
Property Image
Land
| 1 | 5355-1375S | | 1.0000 | 43560.00 | 0.00 | 0.00 | 1.00 | $115,000 | $0 |
| 2 | 1575A | | 0.1000 | 4356.00 | 0.00 | 0.00 | 0.00 | $1,208 | $0 |
Roll Value History
| 2025 | N/A | N/A | N/A | N/A | N/A |
| 2024 | $57,093 | $111,155 | $0 | $168,248 | $168,248 |
| 2023 | $63,694 | $100,800 | $0 | $164,494 | $164,494 |
| 2022 | $57,904 | $90,925 | $0 | $148,829 | $148,829 |
| 2021 | $43,866 | $77,853 | $0 | $121,719 | $121,719 |
Deed and Sales History
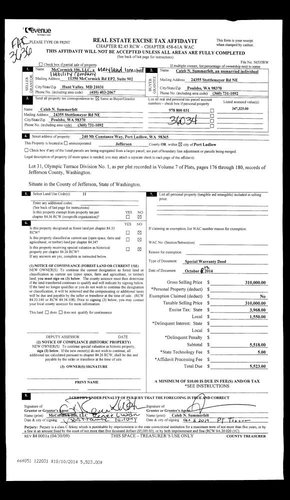
| 1 | 04/29/2019 | SWD | Statutory Warranty Deed | THOMAS E GALE | NATHAN E LAWSON & PAULINE E FUSCO | | | $140,000.00 | 132489 | |
|   | |
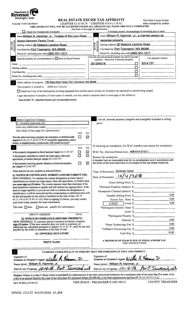
| 2 | 05/19/2015 | QCD | Quit Claim Deed | | | | | | 123562 | |
| 3 | 06/25/2008 | SWD | Statutory Warranty Deed | HATFIELD, RON/MELANIE | GALE, THOMAS/HEATHER | | | $140,000.00 | 111521 | 0 |
| 4 | 05/24/2005 | SWD | Statutory Warranty Deed | BROCKERMAN, BETTY J | HATFIELD, RON & MELANIE | | | $115,000.00 | 103694 | 0 |
| 5 | 02/25/1993 | QCD | Quit Claim Deed | BROCKERMAN, BERNARD W | BROCKERMAN, BETTY J | 0 | 0 | $0.00 | 70657 | 0 |
Payout Agreement
| No payout information available.. |