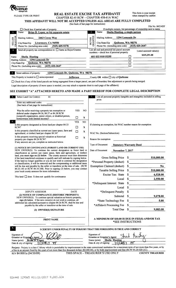
Property
Account |
| Property ID: | 11177 | Abbreviated Legal Description: | WOODLAND HILLS NO 1 LOT 33 |
| Parcel # / Geo ID: | 001275025 | Agent Code: | |
| Type: | Real | | |
| Tax Area: | 0111 - 1-50F1E1H2L1 | Land Use Code | 11 |
| Open Space: | N | DFL | N |
| Historic Property: | N | Remodel Property: | N |
| Multi-Family Redevelopment: | N | | |
| Township: | 30N | Section: | 27 |
| Range: | 1W |
Location |
| Address: | 82 MARILYN CT PORT TOWNSEND, WA 98368 | Mapsco: | 146/050 |
| Neighborhood: | WOODLAND HILLS, WALTHEWS ACRE, MISC LONG PLATS, MEYER SUBDIV | Map ID: | |
| Neighborhood CD: | 5387 |
Owner |
| Name: | PAUL H ANIOTZBEHERE | Owner ID: | 10514 |
| Mailing Address: | PATRICIA ANIOTZBEHERE 82 MARILYN CT PORT TOWNSEND, WA 98368-9568 | % Ownership: | 100.0000000000% |
| | | Exemptions: | |
Pay Tax Due
Select the appropriate checkbox next to the year to be paid. Multiple years may be selected.
*Convenience Fee not included
Taxes and Assessment Details
Property Tax Information as of
10/23/2025
Click on "Statement Details" to expand or collapse a tax statement.
* Please enter a valid date ** Please enter a valid date *
Statement Details |
| 2025 | 1134 | STATE - STATE LEVY (SCHOOL) | $978.57 | $978.56 | $0.00 | $0.00 | $978.57 | $978.56 |
| 2025 | 1134 | COUNTY - COUNTY LEVIES (CE, DD, VET, MH) | $384.83 | $384.79 | $0.00 | $0.00 | $384.83 | $384.79 |
| 2025 | 1134 | CONSERVE - CONSERVATION FUTURES | $11.54 | $11.54 | $0.00 | $0.00 | $11.54 | $11.54 |
| 2025 | 1134 | COROADS - COUNTY ROADS (ROADS, DIV TO CE) | $308.30 | $308.30 | $0.00 | $0.00 | $308.30 | $308.30 |
| 2025 | 1134 | PORTPT - PORT DISTRICT | $157.03 | $157.02 | $0.00 | $0.00 | $157.03 | $157.02 |
| 2025 | 1134 | PUD1 - PUD #1 | $25.18 | $25.18 | $0.00 | $0.00 | $25.18 | $25.18 |
| 2025 | 1134 | LIB1 - LIBRARY DIST #1 | $119.28 | $119.28 | $0.00 | $0.00 | $119.28 | $119.28 |
| 2025 | 1134 | HD2 - HOSP DIST #2 | $22.45 | $22.45 | $0.00 | $0.00 | $22.45 | $22.45 |
| 2025 | 1134 | SD50 - SCHOOL DIST #50 | $715.17 | $715.17 | $0.00 | $0.00 | $715.17 | $715.17 |
| 2025 | 1134 | FD1 - FIRE DISTRICT #1 | $507.81 | $507.80 | $0.00 | $0.00 | $507.81 | $507.80 |
| 2025 | 1134 | EMS1 - FIRE DIST #1 EMS | $195.32 | $195.31 | $0.00 | $0.00 | $195.32 | $195.31 |
| 2025 | 1134 | FP - DNR Forest Fire Protection Assmt | $8.50 | $8.50 | $0.00 | $0.00 | $8.50 | $8.50 |
| 2025 | 1134 | FPLCA - DNR Landowner Contingency Assmt | $3.00 | $3.00 | $0.00 | $0.00 | $3.00 | $3.00 |
| 2025 | 1134 | JCCD - JC Conservation District | $2.75 | $2.75 | $0.00 | $0.00 | $2.75 | $2.75 |
| 2025 | 1134 | NWA - Noxious Weed Assessment | $2.75 | $2.75 | $0.00 | $0.00 | $2.75 | $2.75 |
| 2025 | 1134 | OSS - On Site Septic | $21.50 | $21.50 | $0.00 | $0.00 | $21.50 | $21.50 |
| 2025 | 1134 | WAT - Clean Water District | $13.00 | $13.00 | $0.00 | $0.00 | $13.00 | $13.00 |
| 2025 | 1134 | FP ADMIN - FP ADMIN | $0.50 | $0.00 | $0.00 | $0.00 | $0.50 | $0.00 |
| 2025 | 1134 | TOTAL: | $3477.48 | $3476.90 | $0.00 | $0.00 | $3477.48 | $3476.90 |
|
| 2025 | 1134 | $3477.48 | $3476.90 | $0.00 | $0.00 | $3477.48 | $3476.90 |
Statement Details |
| 2024 | 1136 | STATE - STATE LEVY (SCHOOL) | $855.06 | $855.05 | $0.00 | $0.00 | $1710.11 | $0.00 |
| 2024 | 1136 | COUNTY - COUNTY LEVIES (CE, DD, VET, MH) | $365.90 | $365.87 | $0.00 | $0.00 | $731.77 | $0.00 |
| 2024 | 1136 | CONSERVE - CONSERVATION FUTURES | $10.97 | $10.97 | $0.00 | $0.00 | $21.94 | $0.00 |
| 2024 | 1136 | COROADS - COUNTY ROADS (ROADS, DIV TO CE) | $294.42 | $294.41 | $0.00 | $0.00 | $588.83 | $0.00 |
| 2024 | 1136 | PORTPT - PORT DISTRICT | $151.13 | $151.13 | $0.00 | $0.00 | $302.26 | $0.00 |
| 2024 | 1136 | PUD1 - PUD #1 | $24.04 | $24.03 | $0.00 | $0.00 | $48.07 | $0.00 |
| 2024 | 1136 | LIB1 - LIBRARY DIST #1 | $113.91 | $113.90 | $0.00 | $0.00 | $227.81 | $0.00 |
| 2024 | 1136 | HD2 - HOSP DIST #2 | $21.35 | $21.35 | $0.00 | $0.00 | $42.70 | $0.00 |
| 2024 | 1136 | SD50 - SCHOOL DIST #50 | $691.78 | $691.78 | $0.00 | $0.00 | $1383.56 | $0.00 |
| 2024 | 1136 | FD1 - FIRE DISTRICT #1 | $483.79 | $483.79 | $0.00 | $0.00 | $967.58 | $0.00 |
| 2024 | 1136 | EMS1 - FIRE DIST #1 EMS | $184.79 | $184.79 | $0.00 | $0.00 | $369.58 | $0.00 |
| 2024 | 1136 | FP - DNR Forest Fire Protection Assmt | $8.50 | $8.50 | $0.00 | $0.00 | $17.00 | $0.00 |
| 2024 | 1136 | FPLCA - DNR Landowner Contingency Assmt | $3.00 | $3.00 | $0.00 | $0.00 | $6.00 | $0.00 |
| 2024 | 1136 | JCCD - JC Conservation District | $2.75 | $2.75 | $0.00 | $0.00 | $5.50 | $0.00 |
| 2024 | 1136 | NWA - Noxious Weed Assessment | $2.75 | $2.75 | $0.00 | $0.00 | $5.50 | $0.00 |
| 2024 | 1136 | OSS - On Site Septic | $21.00 | $21.00 | $0.00 | $0.00 | $42.00 | $0.00 |
| 2024 | 1136 | WAT - Clean Water District | $12.50 | $12.50 | $0.00 | $0.00 | $25.00 | $0.00 |
| 2024 | 1136 | FP ADMIN - FP ADMIN | $0.50 | $0.00 | $0.00 | $0.00 | $0.50 | $0.00 |
| 2024 | 1136 | TOTAL: | $3248.14 | $3247.57 | $0.00 | $0.00 | $6495.71 | $0.00 |
|
| 2024 | 1136 | $3248.14 | $3247.57 | $0.00 | $0.00 | $6495.71 | $0.00 |
Statement Details |
| 2023 | 1136 | STATE - STATE LEVY (SCHOOL) | $791.80 | $791.78 | $0.00 | $0.00 | $1583.58 | $0.00 |
| 2023 | 1136 | COUNTY - COUNTY LEVIES (CE, DD, VET, MH) | $345.52 | $345.50 | $0.00 | $0.00 | $691.02 | $0.00 |
| 2023 | 1136 | CONSERVE - CONSERVATION FUTURES | $10.36 | $10.36 | $0.00 | $0.00 | $20.72 | $0.00 |
| 2023 | 1136 | COROADS - COUNTY ROADS (ROADS, DIV TO CE) | $279.55 | $279.53 | $0.00 | $0.00 | $559.08 | $0.00 |
| 2023 | 1136 | PORTPT - PORT DISTRICT | $145.55 | $145.54 | $0.00 | $0.00 | $291.09 | $0.00 |
| 2023 | 1136 | PUD1 - PUD #1 | $22.91 | $22.90 | $0.00 | $0.00 | $45.81 | $0.00 |
| 2023 | 1136 | LIB1 - LIBRARY DIST #1 | $108.16 | $108.15 | $0.00 | $0.00 | $216.31 | $0.00 |
| 2023 | 1136 | HD2 - HOSP DIST #2 | $20.16 | $20.16 | $0.00 | $0.00 | $40.32 | $0.00 |
| 2023 | 1136 | SD50 - SCHOOL DIST #50 | $628.31 | $628.29 | $0.00 | $0.00 | $1256.60 | $0.00 |
| 2023 | 1136 | FD1 - FIRE DISTRICT #1 | $284.64 | $284.63 | $0.00 | $0.00 | $569.27 | $0.00 |
| 2023 | 1136 | EMS1 - FIRE DIST #1 EMS | $121.08 | $121.08 | $0.00 | $0.00 | $242.16 | $0.00 |
| 2023 | 1136 | FP - DNR Forest Fire Protection Assmt | $8.50 | $8.50 | $0.00 | $0.00 | $17.00 | $0.00 |
| 2023 | 1136 | FPLCA - DNR Landowner Contingency Assmt | $3.00 | $3.00 | $0.00 | $0.00 | $6.00 | $0.00 |
| 2023 | 1136 | JCCD - JC Conservation District | $2.75 | $2.75 | $0.00 | $0.00 | $5.50 | $0.00 |
| 2023 | 1136 | NWA - Noxious Weed Assessment | $2.75 | $2.75 | $0.00 | $0.00 | $5.50 | $0.00 |
| 2023 | 1136 | OSS - On Site Septic | $20.50 | $20.50 | $0.00 | $0.00 | $41.00 | $0.00 |
| 2023 | 1136 | WAT - Clean Water District | $12.00 | $12.00 | $0.00 | $0.00 | $24.00 | $0.00 |
| 2023 | 1136 | FP ADMIN - FP ADMIN | $0.50 | $0.00 | $0.00 | $0.00 | $0.50 | $0.00 |
| 2023 | 1136 | TOTAL: | $2808.04 | $2807.42 | $0.00 | $0.00 | $5615.46 | $0.00 |
|
| 2023 | 1136 | $2808.04 | $2807.42 | $0.00 | $0.00 | $5615.46 | $0.00 |
Statement Details |
| 2022 | 1138 | STATE - STATE LEVY (SCHOOL) | $750.95 | $750.93 | $0.00 | $0.00 | $1501.88 | $0.00 |
| 2022 | 1138 | COUNTY - COUNTY LEVIES (CE, DD, VET, MH) | $334.59 | $334.58 | $0.00 | $0.00 | $669.17 | $0.00 |
| 2022 | 1138 | CONSERVE - CONSERVATION FUTURES | $10.04 | $10.03 | $0.00 | $0.00 | $20.07 | $0.00 |
| 2022 | 1138 | COROADS - COUNTY ROADS (ROADS, DIV TO CE) | $271.94 | $271.93 | $0.00 | $0.00 | $543.87 | $0.00 |
| 2022 | 1138 | PORTPT - PORT DISTRICT | $143.24 | $143.23 | $0.00 | $0.00 | $286.47 | $0.00 |
| 2022 | 1138 | PUD1 - PUD #1 | $22.38 | $22.37 | $0.00 | $0.00 | $44.75 | $0.00 |
| 2022 | 1138 | LIB1 - LIBRARY DIST #1 | $105.21 | $105.21 | $0.00 | $0.00 | $210.42 | $0.00 |
| 2022 | 1138 | HD2 - HOSP DIST #2 | $19.54 | $19.52 | $0.00 | $0.00 | $39.06 | $0.00 |
| 2022 | 1138 | SD50 - SCHOOL DIST #50 | $556.49 | $556.48 | $0.00 | $0.00 | $1112.97 | $0.00 |
| 2022 | 1138 | FD1 - FIRE DISTRICT #1 | $274.49 | $274.48 | $0.00 | $0.00 | $548.97 | $0.00 |
| 2022 | 1138 | EMS1 - FIRE DIST #1 EMS | $116.76 | $116.75 | $0.00 | $0.00 | $233.51 | $0.00 |
| 2022 | 1138 | FP - DNR Forest Fire Protection Assmt | $8.50 | $8.50 | $0.00 | $0.00 | $17.00 | $0.00 |
| 2022 | 1138 | FPLCA - DNR Landowner Contingency Assmt | $3.00 | $3.00 | $0.00 | $0.00 | $6.00 | $0.00 |
| 2022 | 1138 | JCCD - JC Conservation District | $2.75 | $2.75 | $0.00 | $0.00 | $5.50 | $0.00 |
| 2022 | 1138 | NWA - Noxious Weed Assessment | $2.75 | $2.75 | $0.00 | $0.00 | $5.50 | $0.00 |
| 2022 | 1138 | OSS - On Site Septic | $19.50 | $19.50 | $0.00 | $0.00 | $39.00 | $0.00 |
| 2022 | 1138 | WAT - Clean Water District | $11.50 | $11.50 | $0.00 | $0.00 | $23.00 | $0.00 |
| 2022 | 1138 | FP ADMIN - FP ADMIN | $0.50 | $0.00 | $0.00 | $0.00 | $0.50 | $0.00 |
| 2022 | 1138 | TOTAL: | $2654.13 | $2653.51 | $0.00 | $0.00 | $5307.64 | $0.00 |
|
| 2022 | 1138 | $2654.13 | $2653.51 | $0.00 | $0.00 | $5307.64 | $0.00 |
Values
| (+) Improvement Homesite Value: | + | $0 | |
| (+) Improvement Non-Homesite Value: | + | $544,077 | |
| (+) Land Homesite Value: | + | $0 | |
| (+) Land Non-Homesite Value: | + | $295,722 | |
| (+) Curr Use (HS): | + | $0 | $0 |
| (+) Curr Use (NHS): | + | $0 | $0 |
| | | -------------------------- | |
| (=) Market Value: | = | $839,799 | |
| (–) Productivity Loss: | – | $0 | |
| | | -------------------------- | |
| (=) Subtotal: | = | $839,799 | |
| (+) Senior Appraised Value: | + | $0 | |
| (+) Non-Senior Appraised Value: | + | $839,799 | |
| | | -------------------------- | |
| (=) Total Appraised Value: | = | $839,799 | |
| (–) Senior Exemption Loss: | – | $0 | |
| (–) Exemption Loss: | – | $0 | |
| | | -------------------------- | |
| (=) Taxable Value: | = | $839,799 | |
Taxing Jurisdiction
| Owner: | PAUL H ANIOTZBEHERE | | |
| % Ownership: | 100.0000000000% | | |
| Total Value: | N/A | | |
| Tax Area: | 0111 - 1-50F1E1H2L1 |
| CE | COUNTY CURRENT EXPENSE | N/A | N/A | N/A | N/A | | |
| CNTYDD | DEVELOPMENTAL DISABILITIES | N/A | N/A | N/A | N/A | | |
| CNTYVET | VETERANS RELIEF | N/A | N/A | N/A | N/A | | |
| MENTAL | MENTAL HEALTH | N/A | N/A | N/A | N/A | | |
| ROADS | COUNTY ROADS | N/A | N/A | N/A | N/A | | |
| ROADSCU | COUNTY ROADS TO CUR EXP | N/A | N/A | N/A | N/A | | |
| HOSP2CASH | HOSP DIST #2 GENERAL | N/A | N/A | N/A | N/A | | |
| SCH50BOND | SCHOOL DIST #50 BOND 2016 | N/A | N/A | N/A | N/A | | |
| SCH50CP | SCHOOL DIST #50 CAP PROJ | N/A | N/A | N/A | N/A | | |
| SCH50MO | SCHOOL DIST #50 EP & O | N/A | N/A | N/A | N/A | | |
| CONSERVE | CONSERVATION FUTURES | N/A | N/A | N/A | N/A | | |
| EMS1 | FIRE DIST #1 EMS | N/A | N/A | N/A | N/A | | |
| FD1 | FIRE DIST #1 GENERAL | N/A | N/A | N/A | N/A | | |
| LIB1 | LIBRARY DIST #1 GENERAL | N/A | N/A | N/A | N/A | | |
| PORTPT | PORT OF PT GENERAL | N/A | N/A | N/A | N/A | | |
| PORTPTIDD | PORT OF PT IDD 2019 | N/A | N/A | N/A | N/A | | |
| PUD1 | PUD #1 GENERAL | N/A | N/A | N/A | N/A | | |
| STATE | STATE SCHOOL PART 1 | N/A | N/A | N/A | N/A | | |
| STATE2 | STATE SCHOOL PART 2 | N/A | N/A | N/A | N/A | | |
| | Total Tax Rate: | N/A | | | | | |
| | | | | Taxes w/Current Exemptions: | N/A | | |
| | | | | Taxes w/o Exemptions: | N/A | | |
Improvement / Building
| Improvement #1: | Residential Bldg | State Code: | 11 | 2183.0 sqft | Value: | $544,077 |
| Bathrooms (#): | 2 (FULL) | Bedrooms (#): | 3 | | Exterior Wall: | SI/ST | Fireplace: | SIN 1-GOOD | | Floor Construction: | FRAME | Foundation: | CONPR | | Heating/Cooling: | F/A | Inside Verify: | YES-FIX | | Roof Cover: | COMP |   |   |
|
| | Type | Description | Class CD | Sub Class CD | Year Built | Area |
| | MA | Main Area | 4+ | 1S | 1997 | 2183.0 |
| | HCPOR | House Concrete Porch | 4 | 1S | 1997 | 110.0 |
| | HDECK | House Deck | 4 | 1S | 1997 | 300.0 |
| | GATT | House Attached Garage | 4 | 1S | 1997 | 800.0 |
| | BSMTF | House basement finished | 4 | 1S | 1997 | 110.6 |
| | CARPTN | Carport W/O Floor | 4 | 1S | 1997 | 100.0 |
| | BSMTU | House basement unfinished | 4 | 1S | 1997 | 995.4 |
Sketch
| No sketches available for this property. |
Property Image
Land
| 1 | 5387-1345S | | 1.0000 | 43560.00 | 0.00 | 0.00 | 1.00 | $241,725 | $0 |
| 2 | 1574A | | 3.8500 | 167706.00 | 0.00 | 0.00 | 0.00 | $53,997 | $0 |
Roll Value History
| 2025 | N/A | N/A | N/A | N/A | N/A |
| 2024 | $520,421 | $295,722 | $0 | $816,143 | $816,143 |
| 2023 | $473,822 | $265,335 | $0 | $739,157 | $739,157 |
| 2022 | $430,747 | $241,925 | $0 | $672,672 | $672,672 |
| 2021 | $326,324 | $222,957 | $0 | $549,281 | $549,281 |
Deed and Sales History
| 1 | 08/11/2004 | SWD | Statutory Warranty Deed | JAMESON TRUSTEE, NORMA JE | ANIOTZBEHERE, PAUL H/PATRICIA | 0 | 0 | $480,000.00 | 101135 | 0 |
| 2 | 07/15/1996 | SWD | Statutory Warranty Deed | TYLER, TIMOTHY B/ET AL | JAMESON INTERVIVOS TRUST | 0 | 0 | $107,500.00 | 80017 | 0 |
Payout Agreement
| No payout information available.. |