Property
Account |
| Property ID: | 11191 | Abbreviated Legal Description: | S28 T30 R1W TAX 14 |
| Parcel # / Geo ID: | 001282006 | Agent Code: | |
| Type: | Real | | |
| Tax Area: | 0111 - 1-50F1E1H2L1 | Land Use Code | 11 |
| Open Space: | N | DFL | N |
| Historic Property: | N | Remodel Property: | N |
| Multi-Family Redevelopment: | N | | |
| Township: | 30N | Section: | 28 |
| Range: | 1W |
Location |
| Address: | 334 THEATRE RD PORT TOWNSEND, WA 98368 | Mapsco: | 097/011 |
| Neighborhood: | S 27 & 28 T 30 R1W | Map ID: | |
| Neighborhood CD: | 5385 |
Owner |
| Name: | TIMOTHY W CONKLIN | Owner ID: | 40935 |
| Mailing Address: | 1240 W SIMS WAY #22 PORT TOWNSEND, WA 98368-3058 | % Ownership: | 100.0000000000% |
| | | Exemptions: | |
Pay Tax Due
There is currently No Amount Due on this property.
Taxes and Assessment Details
Property Tax Information as of
10/23/2025
Click on "Statement Details" to expand or collapse a tax statement.
* Please enter a valid date ** Please enter a valid date *
Statement Details |
| 2025 | 1148 | STATE - STATE LEVY (SCHOOL) | $686.98 | $686.96 | $0.00 | $0.00 | $1373.94 | $0.00 |
| 2025 | 1148 | COUNTY - COUNTY LEVIES (CE, DD, VET, MH) | $270.15 | $270.15 | $0.00 | $0.00 | $540.30 | $0.00 |
| 2025 | 1148 | CONSERVE - CONSERVATION FUTURES | $8.10 | $8.10 | $0.00 | $0.00 | $16.20 | $0.00 |
| 2025 | 1148 | COROADS - COUNTY ROADS (ROADS, DIV TO CE) | $216.44 | $216.42 | $0.00 | $0.00 | $432.86 | $0.00 |
| 2025 | 1148 | PORTPT - PORT DISTRICT | $110.24 | $110.23 | $0.00 | $0.00 | $220.47 | $0.00 |
| 2025 | 1148 | PUD1 - PUD #1 | $17.68 | $17.67 | $0.00 | $0.00 | $35.35 | $0.00 |
| 2025 | 1148 | LIB1 - LIBRARY DIST #1 | $83.74 | $83.73 | $0.00 | $0.00 | $167.47 | $0.00 |
| 2025 | 1148 | HD2 - HOSP DIST #2 | $15.76 | $15.76 | $0.00 | $0.00 | $31.52 | $0.00 |
| 2025 | 1148 | SD50 - SCHOOL DIST #50 | $502.07 | $502.05 | $0.00 | $0.00 | $1004.12 | $0.00 |
| 2025 | 1148 | FD1 - FIRE DISTRICT #1 | $356.49 | $356.48 | $0.00 | $0.00 | $712.97 | $0.00 |
| 2025 | 1148 | EMS1 - FIRE DIST #1 EMS | $137.12 | $137.11 | $0.00 | $0.00 | $274.23 | $0.00 |
| 2025 | 1148 | FP - DNR Forest Fire Protection Assmt | $8.50 | $8.50 | $0.00 | $0.00 | $17.00 | $0.00 |
| 2025 | 1148 | FPLCA - DNR Landowner Contingency Assmt | $3.00 | $3.00 | $0.00 | $0.00 | $6.00 | $0.00 |
| 2025 | 1148 | JCCD - JC Conservation District | $2.80 | $2.80 | $0.00 | $0.00 | $5.60 | $0.00 |
| 2025 | 1148 | NWA - Noxious Weed Assessment | $2.90 | $2.90 | $0.00 | $0.00 | $5.80 | $0.00 |
| 2025 | 1148 | OSS - On Site Septic | $21.50 | $21.50 | $0.00 | $0.00 | $43.00 | $0.00 |
| 2025 | 1148 | WAT - Clean Water District | $13.00 | $13.00 | $0.00 | $0.00 | $26.00 | $0.00 |
| 2025 | 1148 | FP ADMIN - FP ADMIN | $0.50 | $0.00 | $0.00 | $0.00 | $0.50 | $0.00 |
| 2025 | 1148 | TOTAL: | $2456.97 | $2456.36 | $0.00 | $0.00 | $4913.33 | $0.00 |
|
| 2025 | 1148 | $2456.97 | $2456.36 | $0.00 | $0.00 | $4913.33 | $0.00 |
Statement Details |
| 2024 | 1150 | STATE - STATE LEVY (SCHOOL) | $631.77 | $631.76 | $0.00 | $0.00 | $1263.53 | $0.00 |
| 2024 | 1150 | COUNTY - COUNTY LEVIES (CE, DD, VET, MH) | $270.35 | $270.32 | $0.00 | $0.00 | $540.67 | $0.00 |
| 2024 | 1150 | CONSERVE - CONSERVATION FUTURES | $8.11 | $8.10 | $0.00 | $0.00 | $16.21 | $0.00 |
| 2024 | 1150 | COROADS - COUNTY ROADS (ROADS, DIV TO CE) | $217.54 | $217.52 | $0.00 | $0.00 | $435.06 | $0.00 |
| 2024 | 1150 | PORTPT - PORT DISTRICT | $111.66 | $111.66 | $0.00 | $0.00 | $223.32 | $0.00 |
| 2024 | 1150 | PUD1 - PUD #1 | $17.76 | $17.75 | $0.00 | $0.00 | $35.51 | $0.00 |
| 2024 | 1150 | LIB1 - LIBRARY DIST #1 | $84.16 | $84.16 | $0.00 | $0.00 | $168.32 | $0.00 |
| 2024 | 1150 | HD2 - HOSP DIST #2 | $15.78 | $15.77 | $0.00 | $0.00 | $31.55 | $0.00 |
| 2024 | 1150 | SD50 - SCHOOL DIST #50 | $511.14 | $511.11 | $0.00 | $0.00 | $1022.25 | $0.00 |
| 2024 | 1150 | FD1 - FIRE DISTRICT #1 | $357.45 | $357.45 | $0.00 | $0.00 | $714.90 | $0.00 |
| 2024 | 1150 | EMS1 - FIRE DIST #1 EMS | $136.53 | $136.53 | $0.00 | $0.00 | $273.06 | $0.00 |
| 2024 | 1150 | FP - DNR Forest Fire Protection Assmt | $8.50 | $8.50 | $0.00 | $0.00 | $17.00 | $0.00 |
| 2024 | 1150 | FPLCA - DNR Landowner Contingency Assmt | $3.00 | $3.00 | $0.00 | $0.00 | $6.00 | $0.00 |
| 2024 | 1150 | JCCD - JC Conservation District | $2.80 | $2.80 | $0.00 | $0.00 | $5.60 | $0.00 |
| 2024 | 1150 | NWA - Noxious Weed Assessment | $2.90 | $2.90 | $0.00 | $0.00 | $5.80 | $0.00 |
| 2024 | 1150 | WAT - Clean Water District | $12.50 | $12.50 | $0.00 | $0.00 | $25.00 | $0.00 |
| 2024 | 1150 | FP ADMIN - FP ADMIN | $0.50 | $0.00 | $0.00 | $0.00 | $0.50 | $0.00 |
| 2024 | 1150 | TOTAL: | $2392.45 | $2391.83 | $0.00 | $0.00 | $4784.28 | $0.00 |
|
| 2024 | 1150 | $2392.45 | $2391.83 | $0.00 | $0.00 | $4784.28 | $0.00 |
Statement Details |
| 2023 | 1150 | STATE - STATE LEVY (SCHOOL) | $414.68 | $414.66 | $0.00 | $0.00 | $829.34 | $0.00 |
| 2023 | 1150 | COUNTY - COUNTY LEVIES (CE, DD, VET, MH) | $180.96 | $180.93 | $0.00 | $0.00 | $361.89 | $0.00 |
| 2023 | 1150 | CONSERVE - CONSERVATION FUTURES | $5.43 | $5.42 | $0.00 | $0.00 | $10.85 | $0.00 |
| 2023 | 1150 | COROADS - COUNTY ROADS (ROADS, DIV TO CE) | $146.40 | $146.40 | $0.00 | $0.00 | $292.80 | $0.00 |
| 2023 | 1150 | PORTPT - PORT DISTRICT | $76.24 | $76.22 | $0.00 | $0.00 | $152.46 | $0.00 |
| 2023 | 1150 | PUD1 - PUD #1 | $12.00 | $11.99 | $0.00 | $0.00 | $23.99 | $0.00 |
| 2023 | 1150 | LIB1 - LIBRARY DIST #1 | $56.64 | $56.64 | $0.00 | $0.00 | $113.28 | $0.00 |
| 2023 | 1150 | HD2 - HOSP DIST #2 | $10.56 | $10.55 | $0.00 | $0.00 | $21.11 | $0.00 |
| 2023 | 1150 | SD50 - SCHOOL DIST #50 | $329.05 | $329.04 | $0.00 | $0.00 | $658.09 | $0.00 |
| 2023 | 1150 | FD1 - FIRE DISTRICT #1 | $149.07 | $149.06 | $0.00 | $0.00 | $298.13 | $0.00 |
| 2023 | 1150 | EMS1 - FIRE DIST #1 EMS | $63.41 | $63.41 | $0.00 | $0.00 | $126.82 | $0.00 |
| 2023 | 1150 | FP - DNR Forest Fire Protection Assmt | $8.50 | $8.50 | $0.00 | $0.00 | $17.00 | $0.00 |
| 2023 | 1150 | FPLCA - DNR Landowner Contingency Assmt | $3.00 | $3.00 | $0.00 | $0.00 | $6.00 | $0.00 |
| 2023 | 1150 | JCCD - JC Conservation District | $2.80 | $2.80 | $0.00 | $0.00 | $5.60 | $0.00 |
| 2023 | 1150 | NWA - Noxious Weed Assessment | $2.90 | $2.90 | $0.00 | $0.00 | $5.80 | $0.00 |
| 2023 | 1150 | WAT - Clean Water District | $12.00 | $12.00 | $0.00 | $0.00 | $24.00 | $0.00 |
| 2023 | 1150 | FP ADMIN - FP ADMIN | $0.50 | $0.00 | $0.00 | $0.00 | $0.50 | $0.00 |
| 2023 | 1150 | TOTAL: | $1474.14 | $1473.52 | $0.00 | $0.00 | $2947.66 | $0.00 |
|
| 2023 | 1150 | $1474.14 | $1473.52 | $0.00 | $0.00 | $2947.66 | $0.00 |
Statement Details |
| 2022 | 1152 | STATE - STATE LEVY (SCHOOL) | $246.81 | $246.80 | $0.00 | $0.00 | $493.61 | $0.00 |
| 2022 | 1152 | COUNTY - COUNTY LEVIES (CE, DD, VET, MH) | $109.98 | $109.95 | $0.00 | $0.00 | $219.93 | $0.00 |
| 2022 | 1152 | CONSERVE - CONSERVATION FUTURES | $3.30 | $3.29 | $0.00 | $0.00 | $6.59 | $0.00 |
| 2022 | 1152 | COROADS - COUNTY ROADS (ROADS, DIV TO CE) | $89.38 | $89.37 | $0.00 | $0.00 | $178.75 | $0.00 |
| 2022 | 1152 | PORTPT - PORT DISTRICT | $47.08 | $47.08 | $0.00 | $0.00 | $94.16 | $0.00 |
| 2022 | 1152 | PUD1 - PUD #1 | $7.36 | $7.35 | $0.00 | $0.00 | $14.71 | $0.00 |
| 2022 | 1152 | LIB1 - LIBRARY DIST #1 | $34.58 | $34.58 | $0.00 | $0.00 | $69.16 | $0.00 |
| 2022 | 1152 | HD2 - HOSP DIST #2 | $6.42 | $6.42 | $0.00 | $0.00 | $12.84 | $0.00 |
| 2022 | 1152 | SD50 - SCHOOL DIST #50 | $182.91 | $182.89 | $0.00 | $0.00 | $365.80 | $0.00 |
| 2022 | 1152 | FD1 - FIRE DISTRICT #1 | $90.22 | $90.21 | $0.00 | $0.00 | $180.43 | $0.00 |
| 2022 | 1152 | EMS1 - FIRE DIST #1 EMS | $38.38 | $38.37 | $0.00 | $0.00 | $76.75 | $0.00 |
| 2022 | 1152 | FP - DNR Forest Fire Protection Assmt | $8.50 | $8.50 | $0.00 | $0.00 | $17.00 | $0.00 |
| 2022 | 1152 | FPLCA - DNR Landowner Contingency Assmt | $3.00 | $3.00 | $0.00 | $0.00 | $6.00 | $0.00 |
| 2022 | 1152 | JCCD - JC Conservation District | $2.80 | $2.80 | $0.00 | $0.00 | $5.60 | $0.00 |
| 2022 | 1152 | NWA - Noxious Weed Assessment | $2.90 | $2.90 | $0.00 | $0.00 | $5.80 | $0.00 |
| 2022 | 1152 | WAT - Clean Water District | $11.50 | $11.50 | $0.00 | $0.00 | $23.00 | $0.00 |
| 2022 | 1152 | FP ADMIN - FP ADMIN | $0.50 | $0.00 | $0.00 | $0.00 | $0.50 | $0.00 |
| 2022 | 1152 | TOTAL: | $885.62 | $885.01 | $0.00 | $0.00 | $1770.63 | $0.00 |
|
| 2022 | 1152 | $885.62 | $885.01 | $0.00 | $0.00 | $1770.63 | $0.00 |
Values
| (+) Improvement Homesite Value: | + | $0 | |
| (+) Improvement Non-Homesite Value: | + | $358,535 | |
| (+) Land Homesite Value: | + | $0 | |
| (+) Land Non-Homesite Value: | + | $224,620 | |
| (+) Curr Use (HS): | + | $0 | $0 |
| (+) Curr Use (NHS): | + | $0 | $0 |
| | | -------------------------- | |
| (=) Market Value: | = | $583,155 | |
| (–) Productivity Loss: | – | $0 | |
| | | -------------------------- | |
| (=) Subtotal: | = | $583,155 | |
| (+) Senior Appraised Value: | + | $0 | |
| (+) Non-Senior Appraised Value: | + | $583,155 | |
| | | -------------------------- | |
| (=) Total Appraised Value: | = | $583,155 | |
| (–) Senior Exemption Loss: | – | $0 | |
| (–) Exemption Loss: | – | $0 | |
| | | -------------------------- | |
| (=) Taxable Value: | = | $583,155 | |
Taxing Jurisdiction
| Owner: | TIMOTHY W CONKLIN | | |
| % Ownership: | 100.0000000000% | | |
| Total Value: | N/A | | |
| Tax Area: | 0111 - 1-50F1E1H2L1 |
| CE | COUNTY CURRENT EXPENSE | N/A | N/A | N/A | N/A | | |
| CNTYDD | DEVELOPMENTAL DISABILITIES | N/A | N/A | N/A | N/A | | |
| CNTYVET | VETERANS RELIEF | N/A | N/A | N/A | N/A | | |
| MENTAL | MENTAL HEALTH | N/A | N/A | N/A | N/A | | |
| ROADS | COUNTY ROADS | N/A | N/A | N/A | N/A | | |
| ROADSCU | COUNTY ROADS TO CUR EXP | N/A | N/A | N/A | N/A | | |
| HOSP2CASH | HOSP DIST #2 GENERAL | N/A | N/A | N/A | N/A | | |
| SCH50BOND | SCHOOL DIST #50 BOND 2016 | N/A | N/A | N/A | N/A | | |
| SCH50CP | SCHOOL DIST #50 CAP PROJ | N/A | N/A | N/A | N/A | | |
| SCH50MO | SCHOOL DIST #50 EP & O | N/A | N/A | N/A | N/A | | |
| CONSERVE | CONSERVATION FUTURES | N/A | N/A | N/A | N/A | | |
| EMS1 | FIRE DIST #1 EMS | N/A | N/A | N/A | N/A | | |
| FD1 | FIRE DIST #1 GENERAL | N/A | N/A | N/A | N/A | | |
| LIB1 | LIBRARY DIST #1 GENERAL | N/A | N/A | N/A | N/A | | |
| PORTPT | PORT OF PT GENERAL | N/A | N/A | N/A | N/A | | |
| PORTPTIDD | PORT OF PT IDD 2019 | N/A | N/A | N/A | N/A | | |
| PUD1 | PUD #1 GENERAL | N/A | N/A | N/A | N/A | | |
| STATE | STATE SCHOOL PART 1 | N/A | N/A | N/A | N/A | | |
| STATE2 | STATE SCHOOL PART 2 | N/A | N/A | N/A | N/A | | |
| | Total Tax Rate: | N/A | | | | | |
| | | | | Taxes w/Current Exemptions: | N/A | | |
| | | | | Taxes w/o Exemptions: | N/A | | |
Improvement / Building
| Improvement #1: | Residential Bldg | State Code: | 18 | 288.0 sqft | Value: | $21,686 |
| Bedrooms (#): | 1 | Exterior Wall: | SI/ST | | Floor Construction: | FRAME | Foundation: | CONBL | | Heating/Cooling: | ELBB | Roof Cover: | COMP |
|
| | Type | Description | Class CD | Sub Class CD | Year Built | Area |
| | SHED | Shed (Table Not Dep) | 4 | * | 0 | 80.0 |
| | MA | Main Area | 2 | C1S | 2021 | 288.0 |
| | CRPO | Cabin Roof Porch | 3 | * | 2021 | 72.0 |
| | CARPT | Carport (Table Not Dep) | 2 | * | 2012 | 405.0 |
| Improvement #2: | Residential Bldg | State Code: | 11 | 1208.0 sqft | Value: | $336,849 |
| Bathrooms (#): | 2 (FULL) | Bedrooms (#): | 2 | | Exterior Wall: | SI/ST | Foundation: | CONPR | | Roof Cover: | METAL |   |   |
|
| | Type | Description | Class CD | Sub Class CD | Year Built | Area |
| | MA | Main Area | 4 | 1S | 2022 | 1208.0 |
| | CARPTF | Carport W/Floor | 4 | * | 2022 | 264.0 |
| | HCPOR | House Concrete Porch | 4 | * | 2022 | 40.0 |
| | SHED | Shed (Table Not Dep) | 4 | * | 2022 | 24.0 |
| | HWPOR | House Wood Porch | 3 | * | 2022 | 288.0 |
Sketch
Property Image
Land
| 1 | 1572A | | 4.4600 | 194277.60 | 0.00 | 0.00 | 0.00 | $98,120 | $0 |
| 2 | 5385-1375S | | 1.0000 | 43560.00 | 0.00 | 0.00 | 1.00 | $126,500 | $0 |
Roll Value History
| 2025 | N/A | N/A | N/A | N/A | N/A |
| 2024 | $358,535 | $214,410 | $0 | $572,945 | $572,945 |
| 2023 | $351,389 | $194,740 | $0 | $546,129 | $546,129 |
| 2022 | $171,467 | $180,820 | $0 | $352,287 | $352,287 |
| 2021 | $22,043 | $158,487 | $0 | $180,530 | $180,530 |
Deed and Sales History
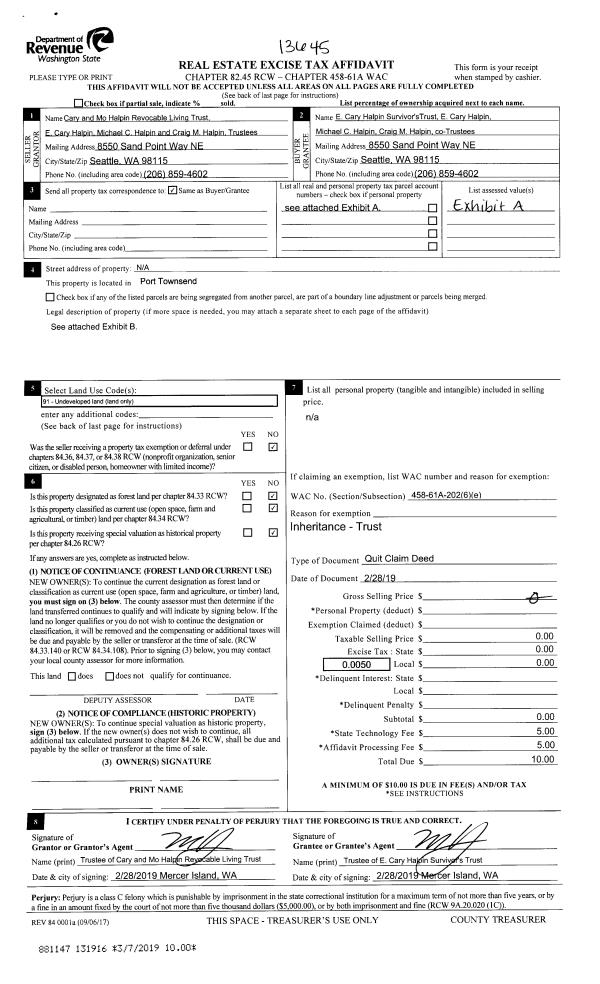
| 1 | 06/03/2019 | QCD | Quit Claim Deed | | | | | | 132529 | |
| 2 | 06/05/2019 | SWD | Statutory Warranty Deed | SAMUEL B SWANSON | TIMOTHY W CONKLIN | | | $180,000.00 | 132532 | |
| 3 | 03/04/2002 | QCD | Quit Claim Deed | D'AMICO, JOSEPH | PETERSEN, GENE W | 0 | 0 | $10,000.00 | 94127 | 0 |
Payout Agreement
| No payout information available.. |