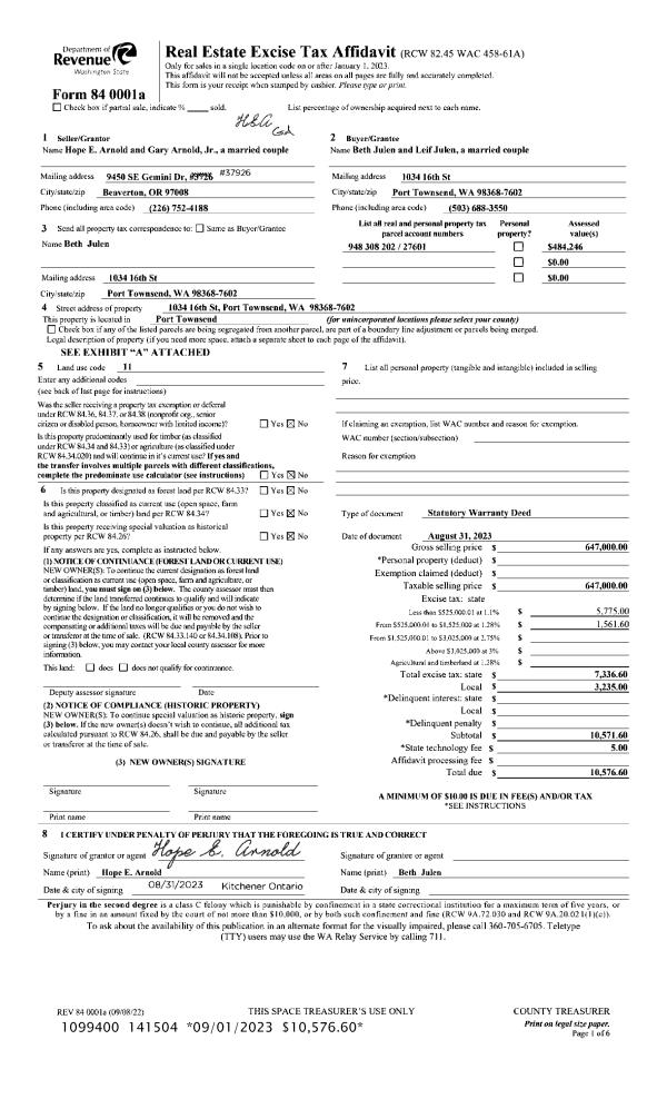
Property
Account |
| Property ID: | 11204 | Abbreviated Legal Description: | S28 T30 R1W TAX 7 W/EASE |
| Parcel # / Geo ID: | 001282020 | Agent Code: | |
| Type: | Real | | |
| Tax Area: | 0111 - 1-50F1E1H2L1 | Land Use Code | 11 |
| Open Space: | N | DFL | N |
| Historic Property: | N | Remodel Property: | N |
| Multi-Family Redevelopment: | N | | |
| Township: | 30N | Section: | 28 |
| Range: | 1W |
Location |
| Address: | 13502 AIRPORT CUTOFF RD PORT TOWNSEND, WA 98368 | Mapsco: | 097/004 |
| Neighborhood: | S 27 & 28 T 30 R1W | Map ID: | |
| Neighborhood CD: | 5385 |
Owner |
| Name: | LUDWIG JR & KYLA BECKER | Owner ID: | 92694 |
| Mailing Address: | 13502 AIRPORT CUTOFF RD PORT TOWNSEND, WA 98368-9320 | % Ownership: | 100.0000000000% |
| | | Exemptions: | |
Pay Tax Due
Select the appropriate checkbox next to the year to be paid. Multiple years may be selected.
*Convenience Fee not included
Taxes and Assessment Details
Property Tax Information as of
10/23/2025
Click on "Statement Details" to expand or collapse a tax statement.
* Please enter a valid date ** Please enter a valid date *
Statement Details |
| 2025 | 1161 | STATE - STATE LEVY (SCHOOL) | $569.72 | $569.72 | $0.00 | $0.00 | $569.72 | $569.72 |
| 2025 | 1161 | COUNTY - COUNTY LEVIES (CE, DD, VET, MH) | $224.05 | $224.04 | $0.00 | $0.00 | $224.05 | $224.04 |
| 2025 | 1161 | CONSERVE - CONSERVATION FUTURES | $6.72 | $6.72 | $0.00 | $0.00 | $6.72 | $6.72 |
| 2025 | 1161 | COROADS - COUNTY ROADS (ROADS, DIV TO CE) | $179.49 | $179.49 | $0.00 | $0.00 | $179.49 | $179.49 |
| 2025 | 1161 | PORTPT - PORT DISTRICT | $91.43 | $91.41 | $0.00 | $0.00 | $91.43 | $91.41 |
| 2025 | 1161 | PUD1 - PUD #1 | $14.66 | $14.66 | $0.00 | $0.00 | $14.66 | $14.66 |
| 2025 | 1161 | LIB1 - LIBRARY DIST #1 | $69.45 | $69.44 | $0.00 | $0.00 | $69.45 | $69.44 |
| 2025 | 1161 | HD2 - HOSP DIST #2 | $13.07 | $13.07 | $0.00 | $0.00 | $13.07 | $13.07 |
| 2025 | 1161 | SD50 - SCHOOL DIST #50 | $416.38 | $416.37 | $0.00 | $0.00 | $416.38 | $416.37 |
| 2025 | 1161 | FD1 - FIRE DISTRICT #1 | $295.65 | $295.64 | $0.00 | $0.00 | $295.65 | $295.64 |
| 2025 | 1161 | EMS1 - FIRE DIST #1 EMS | $113.71 | $113.71 | $0.00 | $0.00 | $113.71 | $113.71 |
| 2025 | 1161 | FP - DNR Forest Fire Protection Assmt | $8.50 | $8.50 | $0.00 | $0.00 | $8.50 | $8.50 |
| 2025 | 1161 | FPLCA - DNR Landowner Contingency Assmt | $3.00 | $3.00 | $0.00 | $0.00 | $3.00 | $3.00 |
| 2025 | 1161 | JCCD - JC Conservation District | $2.60 | $2.60 | $0.00 | $0.00 | $2.60 | $2.60 |
| 2025 | 1161 | NWA - Noxious Weed Assessment | $2.30 | $2.30 | $0.00 | $0.00 | $2.30 | $2.30 |
| 2025 | 1161 | OSS - On Site Septic | $21.50 | $21.50 | $0.00 | $0.00 | $21.50 | $21.50 |
| 2025 | 1161 | WAT - Clean Water District | $13.00 | $13.00 | $0.00 | $0.00 | $13.00 | $13.00 |
| 2025 | 1161 | FP ADMIN - FP ADMIN | $0.50 | $0.00 | $0.00 | $0.00 | $0.50 | $0.00 |
| 2025 | 1161 | TOTAL: | $2045.73 | $2045.17 | $0.00 | $0.00 | $2045.73 | $2045.17 |
|
| 2025 | 1161 | $2045.73 | $2045.17 | $0.00 | $0.00 | $2045.73 | $2045.17 |
Statement Details |
| 2024 | 1163 | STATE - STATE LEVY (SCHOOL) | $514.92 | $514.90 | $0.00 | $0.00 | $1029.82 | $0.00 |
| 2024 | 1163 | COUNTY - COUNTY LEVIES (CE, DD, VET, MH) | $220.35 | $220.33 | $0.00 | $0.00 | $440.68 | $0.00 |
| 2024 | 1163 | CONSERVE - CONSERVATION FUTURES | $6.61 | $6.60 | $0.00 | $0.00 | $13.21 | $0.00 |
| 2024 | 1163 | COROADS - COUNTY ROADS (ROADS, DIV TO CE) | $177.30 | $177.29 | $0.00 | $0.00 | $354.59 | $0.00 |
| 2024 | 1163 | PORTPT - PORT DISTRICT | $91.01 | $91.00 | $0.00 | $0.00 | $182.01 | $0.00 |
| 2024 | 1163 | PUD1 - PUD #1 | $14.47 | $14.47 | $0.00 | $0.00 | $28.94 | $0.00 |
| 2024 | 1163 | LIB1 - LIBRARY DIST #1 | $68.60 | $68.59 | $0.00 | $0.00 | $137.19 | $0.00 |
| 2024 | 1163 | HD2 - HOSP DIST #2 | $12.86 | $12.85 | $0.00 | $0.00 | $25.71 | $0.00 |
| 2024 | 1163 | SD50 - SCHOOL DIST #50 | $416.59 | $416.59 | $0.00 | $0.00 | $833.18 | $0.00 |
| 2024 | 1163 | FD1 - FIRE DISTRICT #1 | $291.34 | $291.33 | $0.00 | $0.00 | $582.67 | $0.00 |
| 2024 | 1163 | EMS1 - FIRE DIST #1 EMS | $111.28 | $111.28 | $0.00 | $0.00 | $222.56 | $0.00 |
| 2024 | 1163 | FP - DNR Forest Fire Protection Assmt | $8.50 | $8.50 | $0.00 | $0.00 | $17.00 | $0.00 |
| 2024 | 1163 | FPLCA - DNR Landowner Contingency Assmt | $3.00 | $3.00 | $0.00 | $0.00 | $6.00 | $0.00 |
| 2024 | 1163 | JCCD - JC Conservation District | $2.60 | $2.60 | $0.00 | $0.00 | $5.20 | $0.00 |
| 2024 | 1163 | NWA - Noxious Weed Assessment | $2.30 | $2.30 | $0.00 | $0.00 | $4.60 | $0.00 |
| 2024 | 1163 | OSS - On Site Septic | $21.00 | $21.00 | $0.00 | $0.00 | $42.00 | $0.00 |
| 2024 | 1163 | WAT - Clean Water District | $12.50 | $12.50 | $0.00 | $0.00 | $25.00 | $0.00 |
| 2024 | 1163 | FP ADMIN - FP ADMIN | $0.50 | $0.00 | $0.00 | $0.00 | $0.50 | $0.00 |
| 2024 | 1163 | TOTAL: | $1975.73 | $1975.13 | $0.00 | $0.00 | $3950.86 | $0.00 |
|
| 2024 | 1163 | $1975.73 | $1975.13 | $0.00 | $0.00 | $3950.86 | $0.00 |
Statement Details |
| 2023 | 1163 | STATE - STATE LEVY (SCHOOL) | $478.33 | $478.33 | $0.00 | $0.00 | $956.66 | $0.00 |
| 2023 | 1163 | COUNTY - COUNTY LEVIES (CE, DD, VET, MH) | $208.74 | $208.72 | $0.00 | $0.00 | $417.46 | $0.00 |
| 2023 | 1163 | CONSERVE - CONSERVATION FUTURES | $6.26 | $6.26 | $0.00 | $0.00 | $12.52 | $0.00 |
| 2023 | 1163 | COROADS - COUNTY ROADS (ROADS, DIV TO CE) | $168.89 | $168.87 | $0.00 | $0.00 | $337.76 | $0.00 |
| 2023 | 1163 | PORTPT - PORT DISTRICT | $87.94 | $87.92 | $0.00 | $0.00 | $175.86 | $0.00 |
| 2023 | 1163 | PUD1 - PUD #1 | $13.84 | $13.83 | $0.00 | $0.00 | $27.67 | $0.00 |
| 2023 | 1163 | LIB1 - LIBRARY DIST #1 | $65.34 | $65.33 | $0.00 | $0.00 | $130.67 | $0.00 |
| 2023 | 1163 | HD2 - HOSP DIST #2 | $12.19 | $12.18 | $0.00 | $0.00 | $24.37 | $0.00 |
| 2023 | 1163 | SD50 - SCHOOL DIST #50 | $379.57 | $379.56 | $0.00 | $0.00 | $759.13 | $0.00 |
| 2023 | 1163 | FD1 - FIRE DISTRICT #1 | $171.95 | $171.95 | $0.00 | $0.00 | $343.90 | $0.00 |
| 2023 | 1163 | EMS1 - FIRE DIST #1 EMS | $73.15 | $73.14 | $0.00 | $0.00 | $146.29 | $0.00 |
| 2023 | 1163 | FP - DNR Forest Fire Protection Assmt | $8.50 | $8.50 | $0.00 | $0.00 | $17.00 | $0.00 |
| 2023 | 1163 | FPLCA - DNR Landowner Contingency Assmt | $3.00 | $3.00 | $0.00 | $0.00 | $6.00 | $0.00 |
| 2023 | 1163 | JCCD - JC Conservation District | $2.60 | $2.60 | $0.00 | $0.00 | $5.20 | $0.00 |
| 2023 | 1163 | NWA - Noxious Weed Assessment | $2.30 | $2.30 | $0.00 | $0.00 | $4.60 | $0.00 |
| 2023 | 1163 | OSS - On Site Septic | $20.50 | $20.50 | $0.00 | $0.00 | $41.00 | $0.00 |
| 2023 | 1163 | WAT - Clean Water District | $12.00 | $12.00 | $0.00 | $0.00 | $24.00 | $0.00 |
| 2023 | 1163 | FP ADMIN - FP ADMIN | $0.50 | $0.00 | $0.00 | $0.00 | $0.50 | $0.00 |
| 2023 | 1163 | TOTAL: | $1715.60 | $1714.99 | $0.00 | $0.00 | $3430.59 | $0.00 |
|
| 2023 | 1163 | $1715.60 | $1714.99 | $0.00 | $0.00 | $3430.59 | $0.00 |
Statement Details |
| 2022 | 1165 | STATE - STATE LEVY (SCHOOL) | $427.89 | $427.88 | $0.00 | $0.00 | $855.77 | $0.00 |
| 2022 | 1165 | COUNTY - COUNTY LEVIES (CE, DD, VET, MH) | $190.65 | $190.64 | $0.00 | $0.00 | $381.29 | $0.00 |
| 2022 | 1165 | CONSERVE - CONSERVATION FUTURES | $5.72 | $5.71 | $0.00 | $0.00 | $11.43 | $0.00 |
| 2022 | 1165 | COROADS - COUNTY ROADS (ROADS, DIV TO CE) | $154.96 | $154.94 | $0.00 | $0.00 | $309.90 | $0.00 |
| 2022 | 1165 | PORTPT - PORT DISTRICT | $81.62 | $81.61 | $0.00 | $0.00 | $163.23 | $0.00 |
| 2022 | 1165 | PUD1 - PUD #1 | $12.75 | $12.75 | $0.00 | $0.00 | $25.50 | $0.00 |
| 2022 | 1165 | LIB1 - LIBRARY DIST #1 | $59.95 | $59.95 | $0.00 | $0.00 | $119.90 | $0.00 |
| 2022 | 1165 | HD2 - HOSP DIST #2 | $11.13 | $11.13 | $0.00 | $0.00 | $22.26 | $0.00 |
| 2022 | 1165 | SD50 - SCHOOL DIST #50 | $317.09 | $317.08 | $0.00 | $0.00 | $634.17 | $0.00 |
| 2022 | 1165 | FD1 - FIRE DISTRICT #1 | $156.40 | $156.40 | $0.00 | $0.00 | $312.80 | $0.00 |
| 2022 | 1165 | EMS1 - FIRE DIST #1 EMS | $66.53 | $66.52 | $0.00 | $0.00 | $133.05 | $0.00 |
| 2022 | 1165 | FP - DNR Forest Fire Protection Assmt | $8.50 | $8.50 | $0.00 | $0.00 | $17.00 | $0.00 |
| 2022 | 1165 | FPLCA - DNR Landowner Contingency Assmt | $3.00 | $3.00 | $0.00 | $0.00 | $6.00 | $0.00 |
| 2022 | 1165 | JCCD - JC Conservation District | $2.60 | $2.60 | $0.00 | $0.00 | $5.20 | $0.00 |
| 2022 | 1165 | NWA - Noxious Weed Assessment | $2.30 | $2.30 | $0.00 | $0.00 | $4.60 | $0.00 |
| 2022 | 1165 | OSS - On Site Septic | $19.50 | $19.50 | $0.00 | $0.00 | $39.00 | $0.00 |
| 2022 | 1165 | WAT - Clean Water District | $11.50 | $11.50 | $0.00 | $0.00 | $23.00 | $0.00 |
| 2022 | 1165 | FP ADMIN - FP ADMIN | $0.50 | $0.00 | $0.00 | $0.00 | $0.50 | $0.00 |
| 2022 | 1165 | TOTAL: | $1532.59 | $1532.01 | $0.00 | $0.00 | $3064.60 | $0.00 |
|
| 2022 | 1165 | $1532.59 | $1532.01 | $0.00 | $0.00 | $3064.60 | $0.00 |
Values
| (+) Improvement Homesite Value: | + | $0 | |
| (+) Improvement Non-Homesite Value: | + | $391,366 | |
| (+) Land Homesite Value: | + | $0 | |
| (+) Land Non-Homesite Value: | + | $87,780 | |
| (+) Curr Use (HS): | + | $0 | $0 |
| (+) Curr Use (NHS): | + | $0 | $0 |
| | | -------------------------- | |
| (=) Market Value: | = | $479,146 | |
| (–) Productivity Loss: | – | $0 | |
| | | -------------------------- | |
| (=) Subtotal: | = | $479,146 | |
| (+) Senior Appraised Value: | + | $0 | |
| (+) Non-Senior Appraised Value: | + | $479,146 | |
| | | -------------------------- | |
| (=) Total Appraised Value: | = | $479,146 | |
| (–) Senior Exemption Loss: | – | $0 | |
| (–) Exemption Loss: | – | $0 | |
| | | -------------------------- | |
| (=) Taxable Value: | = | $479,146 | |
Taxing Jurisdiction
| Owner: | LUDWIG JR & KYLA BECKER | | |
| % Ownership: | 100.0000000000% | | |
| Total Value: | N/A | | |
| Tax Area: | 0111 - 1-50F1E1H2L1 |
| CE | COUNTY CURRENT EXPENSE | N/A | N/A | N/A | N/A | | |
| CNTYDD | DEVELOPMENTAL DISABILITIES | N/A | N/A | N/A | N/A | | |
| CNTYVET | VETERANS RELIEF | N/A | N/A | N/A | N/A | | |
| MENTAL | MENTAL HEALTH | N/A | N/A | N/A | N/A | | |
| ROADS | COUNTY ROADS | N/A | N/A | N/A | N/A | | |
| ROADSCU | COUNTY ROADS TO CUR EXP | N/A | N/A | N/A | N/A | | |
| HOSP2CASH | HOSP DIST #2 GENERAL | N/A | N/A | N/A | N/A | | |
| SCH50BOND | SCHOOL DIST #50 BOND 2016 | N/A | N/A | N/A | N/A | | |
| SCH50CP | SCHOOL DIST #50 CAP PROJ | N/A | N/A | N/A | N/A | | |
| SCH50MO | SCHOOL DIST #50 EP & O | N/A | N/A | N/A | N/A | | |
| CONSERVE | CONSERVATION FUTURES | N/A | N/A | N/A | N/A | | |
| EMS1 | FIRE DIST #1 EMS | N/A | N/A | N/A | N/A | | |
| FD1 | FIRE DIST #1 GENERAL | N/A | N/A | N/A | N/A | | |
| LIB1 | LIBRARY DIST #1 GENERAL | N/A | N/A | N/A | N/A | | |
| PORTPT | PORT OF PT GENERAL | N/A | N/A | N/A | N/A | | |
| PORTPTIDD | PORT OF PT IDD 2019 | N/A | N/A | N/A | N/A | | |
| PUD1 | PUD #1 GENERAL | N/A | N/A | N/A | N/A | | |
| STATE | STATE SCHOOL PART 1 | N/A | N/A | N/A | N/A | | |
| STATE2 | STATE SCHOOL PART 2 | N/A | N/A | N/A | N/A | | |
| | Total Tax Rate: | N/A | | | | | |
| | | | | Taxes w/Current Exemptions: | N/A | | |
| | | | | Taxes w/o Exemptions: | N/A | | |
Improvement / Building
| Improvement #1: | Residential Bldg | State Code: | 11 | 2155.0 sqft | Value: | $391,366 |
| Bathrooms (#): | 2 (FULL) | Bedrooms (#): | 2 | | Exterior Wall: | SI/ST | Fireplace: | SIN 1-GOOD | | Floor Construction: | CONCR | Foundation: | CONPR | | Heating/Cooling: | OTHER | Roof Cover: | TILE |
|
| | Type | Description | Class CD | Sub Class CD | Year Built | Area |
| | MA | Main Area | 4- | 1S | 1990 | 2155.0 |
| | HCPOR | House Concrete Porch | 4 | * | 1990 | 55.0 |
| | GDET | Detached Garage | 3 | 1S | 1990 | 1176.0 |
| | HLOFT | House Loft | 4 | * | 1990 | 280.0 |
Sketch
Property Image
Land
| 1 | 5385-1385S | | 1.0000 | 43560.00 | 0.00 | 0.00 | 1.00 | $86,625 | $0 |
| 2 | 1575A | | 0.1000 | 4356.00 | 0.00 | 0.00 | 0.00 | $1,155 | $0 |
Roll Value History
| 2025 | N/A | N/A | N/A | N/A | N/A |
| 2024 | $391,366 | $83,791 | $0 | $475,157 | $475,157 |
| 2023 | $370,367 | $74,750 | $0 | $445,117 | $445,117 |
| 2022 | $336,697 | $69,675 | $0 | $406,372 | $406,372 |
| 2021 | $255,074 | $57,908 | $0 | $312,982 | $312,982 |
Deed and Sales History
| 1 | 10/21/2014 | BSD | Bargain and Sale Deed | DEUTSCHE BANK NATL TRUST | LUDWIG JR & KYLA BECKER | | | $252,000.00 | 122153 | |
| 2 | 02/20/2014 | TRED | Trustee Deed | QUALITY LOAN SERVICE CORP | DEUTSCHE BANK NATL TRUST | | | $252,000.00 | 120771 | |
| 3 | 09/14/2004 | SWD | Statutory Warranty Deed | BELL, WILLARD R & NOLA | KETTLER, PERI | 0 | 0 | $249,000.00 | 101549 | 0 |
Payout Agreement
| No payout information available.. |