Property
Account |
| Property ID: | 11219 | Abbreviated Legal Description: | S28 T30 R1W TAX 2 |
| Parcel # / Geo ID: | 001283009 | Agent Code: | |
| Type: | Real | | |
| Tax Area: | 0111 - 1-50F1E1H2L1 | Land Use Code | 11 |
| Open Space: | N | DFL | N |
| Historic Property: | N | Remodel Property: | N |
| Multi-Family Redevelopment: | N | | |
| Township: | 30N | Section: | 28 |
| Range: | 1W |
Location |
| Address: | 7113 HIGHWAY 20 PORT TOWNSEND, WA 98368 | Mapsco: | 097/001 |
| Neighborhood: | S 27 & 28 T 30 R1W | Map ID: | |
| Neighborhood CD: | 5385 |
Owner |
| Name: | KATIE L DAVIS | Owner ID: | 105930 |
| Mailing Address: | 7113 HWY 20 PORT TOWNSEND, WA 98368-9318 | % Ownership: | 100.0000000000% |
| | | Exemptions: | |
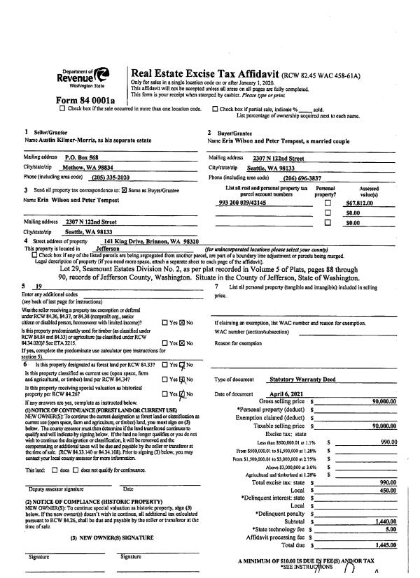
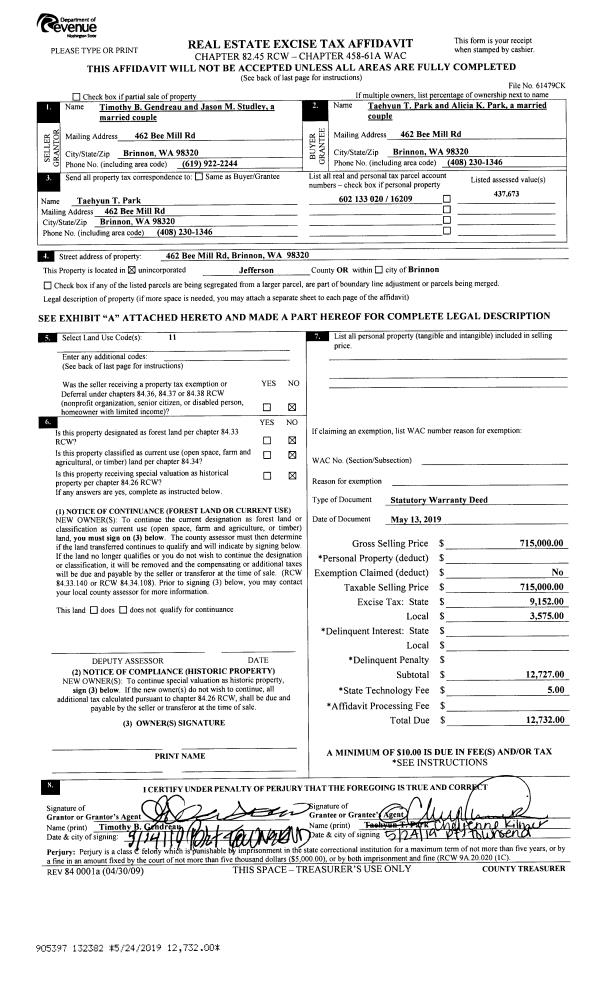
Pay Tax Due
Select the appropriate checkbox next to the year to be paid. Multiple years may be selected.
*Convenience Fee not included
Taxes and Assessment Details
Property Tax Information as of
10/23/2025
Click on "Statement Details" to expand or collapse a tax statement.
* Please enter a valid date ** Please enter a valid date *
Statement Details |
| 2025 | 1176 | STATE - STATE LEVY (SCHOOL) | $568.86 | $568.84 | $0.00 | $0.00 | $568.86 | $568.84 |
| 2025 | 1176 | COUNTY - COUNTY LEVIES (CE, DD, VET, MH) | $223.71 | $223.68 | $0.00 | $0.00 | $223.71 | $223.68 |
| 2025 | 1176 | CONSERVE - CONSERVATION FUTURES | $6.71 | $6.71 | $0.00 | $0.00 | $6.71 | $6.71 |
| 2025 | 1176 | COROADS - COUNTY ROADS (ROADS, DIV TO CE) | $179.23 | $179.21 | $0.00 | $0.00 | $179.23 | $179.21 |
| 2025 | 1176 | PORTPT - PORT DISTRICT | $91.28 | $91.28 | $0.00 | $0.00 | $91.28 | $91.28 |
| 2025 | 1176 | PUD1 - PUD #1 | $14.64 | $14.63 | $0.00 | $0.00 | $14.64 | $14.63 |
| 2025 | 1176 | LIB1 - LIBRARY DIST #1 | $69.34 | $69.33 | $0.00 | $0.00 | $69.34 | $69.33 |
| 2025 | 1176 | HD2 - HOSP DIST #2 | $13.05 | $13.05 | $0.00 | $0.00 | $13.05 | $13.05 |
| 2025 | 1176 | SD50 - SCHOOL DIST #50 | $415.73 | $415.73 | $0.00 | $0.00 | $415.73 | $415.73 |
| 2025 | 1176 | FD1 - FIRE DISTRICT #1 | $295.20 | $295.19 | $0.00 | $0.00 | $295.20 | $295.19 |
| 2025 | 1176 | EMS1 - FIRE DIST #1 EMS | $113.54 | $113.54 | $0.00 | $0.00 | $113.54 | $113.54 |
| 2025 | 1176 | FP - DNR Forest Fire Protection Assmt | $8.50 | $8.50 | $0.00 | $0.00 | $8.50 | $8.50 |
| 2025 | 1176 | FPLCA - DNR Landowner Contingency Assmt | $3.00 | $3.00 | $0.00 | $0.00 | $3.00 | $3.00 |
| 2025 | 1176 | JCCD - JC Conservation District | $2.60 | $2.60 | $0.00 | $0.00 | $2.60 | $2.60 |
| 2025 | 1176 | NWA - Noxious Weed Assessment | $2.30 | $2.30 | $0.00 | $0.00 | $2.30 | $2.30 |
| 2025 | 1176 | OSS - On Site Septic | $21.50 | $21.50 | $0.00 | $0.00 | $21.50 | $21.50 |
| 2025 | 1176 | WAT - Clean Water District | $13.00 | $13.00 | $0.00 | $0.00 | $13.00 | $13.00 |
| 2025 | 1176 | FP ADMIN - FP ADMIN | $0.50 | $0.00 | $0.00 | $0.00 | $0.50 | $0.00 |
| 2025 | 1176 | TOTAL: | $2042.69 | $2042.09 | $0.00 | $0.00 | $2042.69 | $2042.09 |
|
| 2025 | 1176 | $2042.69 | $2042.09 | $0.00 | $0.00 | $2042.69 | $2042.09 |
Statement Details |
| 2024 | 1178 | STATE - STATE LEVY (SCHOOL) | $509.79 | $509.79 | $0.00 | $0.00 | $1019.58 | $0.00 |
| 2024 | 1178 | COUNTY - COUNTY LEVIES (CE, DD, VET, MH) | $218.15 | $218.13 | $0.00 | $0.00 | $436.28 | $0.00 |
| 2024 | 1178 | CONSERVE - CONSERVATION FUTURES | $6.54 | $6.54 | $0.00 | $0.00 | $13.08 | $0.00 |
| 2024 | 1178 | COROADS - COUNTY ROADS (ROADS, DIV TO CE) | $175.54 | $175.53 | $0.00 | $0.00 | $351.07 | $0.00 |
| 2024 | 1178 | PORTPT - PORT DISTRICT | $90.11 | $90.09 | $0.00 | $0.00 | $180.20 | $0.00 |
| 2024 | 1178 | PUD1 - PUD #1 | $14.33 | $14.33 | $0.00 | $0.00 | $28.66 | $0.00 |
| 2024 | 1178 | LIB1 - LIBRARY DIST #1 | $67.92 | $67.91 | $0.00 | $0.00 | $135.83 | $0.00 |
| 2024 | 1178 | HD2 - HOSP DIST #2 | $12.73 | $12.73 | $0.00 | $0.00 | $25.46 | $0.00 |
| 2024 | 1178 | SD50 - SCHOOL DIST #50 | $412.45 | $412.44 | $0.00 | $0.00 | $824.89 | $0.00 |
| 2024 | 1178 | FD1 - FIRE DISTRICT #1 | $288.44 | $288.44 | $0.00 | $0.00 | $576.88 | $0.00 |
| 2024 | 1178 | EMS1 - FIRE DIST #1 EMS | $110.18 | $110.17 | $0.00 | $0.00 | $220.35 | $0.00 |
| 2024 | 1178 | FP - DNR Forest Fire Protection Assmt | $8.50 | $8.50 | $0.00 | $0.00 | $17.00 | $0.00 |
| 2024 | 1178 | FPLCA - DNR Landowner Contingency Assmt | $3.00 | $3.00 | $0.00 | $0.00 | $6.00 | $0.00 |
| 2024 | 1178 | JCCD - JC Conservation District | $2.60 | $2.60 | $0.00 | $0.00 | $5.20 | $0.00 |
| 2024 | 1178 | NWA - Noxious Weed Assessment | $2.30 | $2.30 | $0.00 | $0.00 | $4.60 | $0.00 |
| 2024 | 1178 | OSS - On Site Septic | $21.00 | $21.00 | $0.00 | $0.00 | $42.00 | $0.00 |
| 2024 | 1178 | WAT - Clean Water District | $12.50 | $12.50 | $0.00 | $0.00 | $25.00 | $0.00 |
| 2024 | 1178 | FP ADMIN - FP ADMIN | $0.50 | $0.00 | $0.00 | $0.00 | $0.50 | $0.00 |
| 2024 | 1178 | TOTAL: | $1956.58 | $1956.00 | $0.00 | $0.00 | $3912.58 | $0.00 |
|
| 2024 | 1178 | $1956.58 | $1956.00 | $0.00 | $0.00 | $3912.58 | $0.00 |
Statement Details |
| 2023 | 1178 | STATE - STATE LEVY (SCHOOL) | $477.63 | $477.62 | $0.00 | $0.00 | $955.25 | $0.00 |
| 2023 | 1178 | COUNTY - COUNTY LEVIES (CE, DD, VET, MH) | $208.44 | $208.41 | $0.00 | $0.00 | $416.85 | $0.00 |
| 2023 | 1178 | CONSERVE - CONSERVATION FUTURES | $6.25 | $6.25 | $0.00 | $0.00 | $12.50 | $0.00 |
| 2023 | 1178 | COROADS - COUNTY ROADS (ROADS, DIV TO CE) | $168.64 | $168.62 | $0.00 | $0.00 | $337.26 | $0.00 |
| 2023 | 1178 | PORTPT - PORT DISTRICT | $87.81 | $87.79 | $0.00 | $0.00 | $175.60 | $0.00 |
| 2023 | 1178 | PUD1 - PUD #1 | $13.82 | $13.81 | $0.00 | $0.00 | $27.63 | $0.00 |
| 2023 | 1178 | LIB1 - LIBRARY DIST #1 | $65.24 | $65.24 | $0.00 | $0.00 | $130.48 | $0.00 |
| 2023 | 1178 | HD2 - HOSP DIST #2 | $12.17 | $12.16 | $0.00 | $0.00 | $24.33 | $0.00 |
| 2023 | 1178 | SD50 - SCHOOL DIST #50 | $379.01 | $379.00 | $0.00 | $0.00 | $758.01 | $0.00 |
| 2023 | 1178 | FD1 - FIRE DISTRICT #1 | $171.70 | $171.70 | $0.00 | $0.00 | $343.40 | $0.00 |
| 2023 | 1178 | EMS1 - FIRE DIST #1 EMS | $73.04 | $73.03 | $0.00 | $0.00 | $146.07 | $0.00 |
| 2023 | 1178 | FP - DNR Forest Fire Protection Assmt | $8.50 | $8.50 | $0.00 | $0.00 | $17.00 | $0.00 |
| 2023 | 1178 | FPLCA - DNR Landowner Contingency Assmt | $3.00 | $3.00 | $0.00 | $0.00 | $6.00 | $0.00 |
| 2023 | 1178 | JCCD - JC Conservation District | $2.60 | $2.60 | $0.00 | $0.00 | $5.20 | $0.00 |
| 2023 | 1178 | NWA - Noxious Weed Assessment | $2.30 | $2.30 | $0.00 | $0.00 | $4.60 | $0.00 |
| 2023 | 1178 | OSS - On Site Septic | $20.50 | $20.50 | $0.00 | $0.00 | $41.00 | $0.00 |
| 2023 | 1178 | WAT - Clean Water District | $12.00 | $12.00 | $0.00 | $0.00 | $24.00 | $0.00 |
| 2023 | 1178 | FP ADMIN - FP ADMIN | $0.50 | $0.00 | $0.00 | $0.00 | $0.50 | $0.00 |
| 2023 | 1178 | TOTAL: | $1713.15 | $1712.53 | $0.00 | $0.00 | $3425.68 | $0.00 |
|
| 2023 | 1178 | $1713.15 | $1712.53 | $0.00 | $0.00 | $3425.68 | $0.00 |
Statement Details |
| 2022 | 1180 | STATE - STATE LEVY (SCHOOL) | $439.97 | $439.95 | $0.00 | $0.00 | $879.92 | $0.00 |
| 2022 | 1180 | COUNTY - COUNTY LEVIES (CE, DD, VET, MH) | $196.03 | $196.01 | $0.00 | $0.00 | $392.04 | $0.00 |
| 2022 | 1180 | CONSERVE - CONSERVATION FUTURES | $5.88 | $5.88 | $0.00 | $0.00 | $11.76 | $0.00 |
| 2022 | 1180 | COROADS - COUNTY ROADS (ROADS, DIV TO CE) | $159.32 | $159.32 | $0.00 | $0.00 | $318.64 | $0.00 |
| 2022 | 1180 | PORTPT - PORT DISTRICT | $83.93 | $83.91 | $0.00 | $0.00 | $167.84 | $0.00 |
| 2022 | 1180 | PUD1 - PUD #1 | $13.11 | $13.11 | $0.00 | $0.00 | $26.22 | $0.00 |
| 2022 | 1180 | LIB1 - LIBRARY DIST #1 | $61.64 | $61.64 | $0.00 | $0.00 | $123.28 | $0.00 |
| 2022 | 1180 | HD2 - HOSP DIST #2 | $11.45 | $11.43 | $0.00 | $0.00 | $22.88 | $0.00 |
| 2022 | 1180 | SD50 - SCHOOL DIST #50 | $326.03 | $326.03 | $0.00 | $0.00 | $652.06 | $0.00 |
| 2022 | 1180 | FD1 - FIRE DISTRICT #1 | $160.82 | $160.81 | $0.00 | $0.00 | $321.63 | $0.00 |
| 2022 | 1180 | EMS1 - FIRE DIST #1 EMS | $68.41 | $68.40 | $0.00 | $0.00 | $136.81 | $0.00 |
| 2022 | 1180 | FP - DNR Forest Fire Protection Assmt | $8.50 | $8.50 | $0.00 | $0.00 | $17.00 | $0.00 |
| 2022 | 1180 | FPLCA - DNR Landowner Contingency Assmt | $3.00 | $3.00 | $0.00 | $0.00 | $6.00 | $0.00 |
| 2022 | 1180 | JCCD - JC Conservation District | $2.60 | $2.60 | $0.00 | $0.00 | $5.20 | $0.00 |
| 2022 | 1180 | NWA - Noxious Weed Assessment | $2.30 | $2.30 | $0.00 | $0.00 | $4.60 | $0.00 |
| 2022 | 1180 | OSS - On Site Septic | $19.50 | $19.50 | $0.00 | $0.00 | $39.00 | $0.00 |
| 2022 | 1180 | WAT - Clean Water District | $11.50 | $11.50 | $0.00 | $0.00 | $23.00 | $0.00 |
| 2022 | 1180 | FP ADMIN - FP ADMIN | $0.50 | $0.00 | $0.00 | $0.00 | $0.50 | $0.00 |
| 2022 | 1180 | TOTAL: | $1574.49 | $1573.89 | $0.00 | $0.00 | $3148.38 | $0.00 |
|
| 2022 | 1180 | $1574.49 | $1573.89 | $0.00 | $0.00 | $3148.38 | $0.00 |
Values
| (+) Improvement Homesite Value: | + | $343,650 | |
| (+) Improvement Non-Homesite Value: | + | $0 | |
| (+) Land Homesite Value: | + | $137,011 | |
| (+) Land Non-Homesite Value: | + | $0 | |
| (+) Curr Use (HS): | + | $0 | $0 |
| (+) Curr Use (NHS): | + | $0 | $0 |
| | | -------------------------- | |
| (=) Market Value: | = | $480,661 | |
| (–) Productivity Loss: | – | $0 | |
| | | -------------------------- | |
| (=) Subtotal: | = | $480,661 | |
| (+) Senior Appraised Value: | + | $0 | |
| (+) Non-Senior Appraised Value: | + | $480,661 | |
| | | -------------------------- | |
| (=) Total Appraised Value: | = | $480,661 | |
| (–) Senior Exemption Loss: | – | $0 | |
| (–) Exemption Loss: | – | $0 | |
| | | -------------------------- | |
| (=) Taxable Value: | = | $480,661 | |
Taxing Jurisdiction
| Owner: | KATIE L DAVIS | | |
| % Ownership: | 100.0000000000% | | |
| Total Value: | N/A | | |
| Tax Area: | 0111 - 1-50F1E1H2L1 |
| CE | COUNTY CURRENT EXPENSE | N/A | N/A | N/A | N/A | | |
| CNTYDD | DEVELOPMENTAL DISABILITIES | N/A | N/A | N/A | N/A | | |
| CNTYVET | VETERANS RELIEF | N/A | N/A | N/A | N/A | | |
| MENTAL | MENTAL HEALTH | N/A | N/A | N/A | N/A | | |
| ROADS | COUNTY ROADS | N/A | N/A | N/A | N/A | | |
| ROADSCU | COUNTY ROADS TO CUR EXP | N/A | N/A | N/A | N/A | | |
| HOSP2CASH | HOSP DIST #2 GENERAL | N/A | N/A | N/A | N/A | | |
| SCH50BOND | SCHOOL DIST #50 BOND 2016 | N/A | N/A | N/A | N/A | | |
| SCH50CP | SCHOOL DIST #50 CAP PROJ | N/A | N/A | N/A | N/A | | |
| SCH50MO | SCHOOL DIST #50 EP & O | N/A | N/A | N/A | N/A | | |
| CONSERVE | CONSERVATION FUTURES | N/A | N/A | N/A | N/A | | |
| EMS1 | FIRE DIST #1 EMS | N/A | N/A | N/A | N/A | | |
| FD1 | FIRE DIST #1 GENERAL | N/A | N/A | N/A | N/A | | |
| LIB1 | LIBRARY DIST #1 GENERAL | N/A | N/A | N/A | N/A | | |
| PORTPT | PORT OF PT GENERAL | N/A | N/A | N/A | N/A | | |
| PORTPTIDD | PORT OF PT IDD 2019 | N/A | N/A | N/A | N/A | | |
| PUD1 | PUD #1 GENERAL | N/A | N/A | N/A | N/A | | |
| STATE | STATE SCHOOL PART 1 | N/A | N/A | N/A | N/A | | |
| STATE2 | STATE SCHOOL PART 2 | N/A | N/A | N/A | N/A | | |
| | Total Tax Rate: | N/A | | | | | |
| | | | | Taxes w/Current Exemptions: | N/A | | |
| | | | | Taxes w/o Exemptions: | N/A | | |
Improvement / Building
| Improvement #1: | Residential Bldg | State Code: | 11 | 1680.0 sqft | Value: | $343,650 |
| Bathrooms (#): | 1 (FULL) | Bathrooms (#): | 1 (HALF) | | Bedrooms (#): | 2 | Exterior Wall: | PL/T1 | | Floor Construction: | FRAME | Foundation: | CONPR | | Heating/Cooling: | ELBB | Roof Cover: | TILE |
|
| | Type | Description | Class CD | Sub Class CD | Year Built | Area |
| | MA | Main Area | 4- | 15SF | 1991 | 1288.0 |
| | MA2 | Second Floor Main Area | 4- | 15SF | 1991 | 392.0 |
| | HDECK | House Deck | 4 | * | 1991 | 800.0 |
| | HENCL | House Enclosure | 4 | * | 1991 | 140.0 |
| | GDET | Detached Garage | 4 | 15SF | 1991 | 1344.0 |
| | CARPTN | Carport W/O Floor | 4 | * | 1991 | 364.0 |
| | OTHER | Other | * | * | 1991 | 0.0 |
Sketch
Property Image
Land
| 1 | 5385-1375S | | 1.0000 | 43560.00 | 0.00 | 0.00 | 1.00 | $126,500 | $0 |
| 2 | 1575A | | 0.9100 | 39639.60 | 0.00 | 0.00 | 0.00 | $10,511 | $0 |
Roll Value History
| 2025 | N/A | N/A | N/A | N/A | N/A |
| 2024 | $343,650 | $130,783 | $0 | $474,433 | $474,433 |
| 2023 | $321,591 | $119,100 | $0 | $440,691 | $440,691 |
| 2022 | $292,355 | $113,418 | $0 | $405,773 | $405,773 |
| 2021 | $221,481 | $100,331 | $0 | $321,812 | $321,812 |
Deed and Sales History
| 1 | 11/04/2021 | QCD | Quit Claim Deed | MICHAEL K DAVIS | KATIE L DAVIS | | | | 137979 | |
| 2 | 09/16/2019 | PRD | Personal Representatives Deed | SANDRA L DAVIS | MICHAEL K DAVIS | | | | 133153 | |
| 3 | 10/25/1994 | SWD | Statutory Warranty Deed | PORSCH, NEIL R & LORNA R | DAVIS, SANDRA L | 0 | 0 | $0.00 | 79225 | 0 |
| 4 | 10/25/1994 | SWD | Statutory Warranty Deed | PORSCH, NEIL R/LORNA M | DAVIS, SANDRA L | 0 | 0 | $152,000.00 | 75492 | 0 |
Payout Agreement
| No payout information available.. |