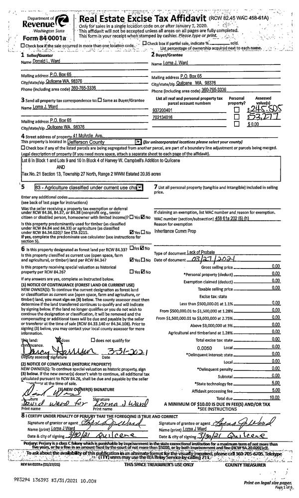
Property
Account |
| Property ID: | 11265 | Abbreviated Legal Description: | S29 T30 R1W W1/2 S1/2 N1/2 NE NE WITH EASEMENTS |
| Parcel # / Geo ID: | 001291007 | Agent Code: | |
| Type: | Real | | |
| Tax Area: | 0111 - 1-50F1E1H2L1 | Land Use Code | 11 |
| Open Space: | N | DFL | N |
| Historic Property: | N | Remodel Property: | N |
| Multi-Family Redevelopment: | N | | |
| Township: | 30N | Section: | 29 |
| Range: | 1W |
Location |
| Address: | 241 WHISKEY RD PORT TOWNSEND, WA 98368 | Mapsco: | 098/002 |
| Neighborhood: | S29 T30 R1W DEER RIDGE, DOE RUN, SNAGSTEAD WAY | Map ID: | |
| Neighborhood CD: | 5370 |
Owner |
| Name: | CLIFFORD LUCAS | Owner ID: | 105237 |
| Mailing Address: | 3262 36TH AVE SW SEATTLE, WA 98126-2209 | % Ownership: | 100.0000000000% |
| | | Exemptions: | |
Pay Tax Due
Select the appropriate checkbox next to the year to be paid. Multiple years may be selected.
*Convenience Fee not included
Taxes and Assessment Details
Property Tax Information as of
10/23/2025
Click on "Statement Details" to expand or collapse a tax statement.
* Please enter a valid date ** Please enter a valid date *
Statement Details |
| 2025 | 1222 | STATE - STATE LEVY (SCHOOL) | $497.16 | $497.16 | $0.00 | $0.00 | $497.16 | $497.16 |
| 2025 | 1222 | COUNTY - COUNTY LEVIES (CE, DD, VET, MH) | $195.51 | $195.49 | $0.00 | $0.00 | $195.51 | $195.49 |
| 2025 | 1222 | CONSERVE - CONSERVATION FUTURES | $5.86 | $5.86 | $0.00 | $0.00 | $5.86 | $5.86 |
| 2025 | 1222 | COROADS - COUNTY ROADS (ROADS, DIV TO CE) | $156.64 | $156.62 | $0.00 | $0.00 | $156.64 | $156.62 |
| 2025 | 1222 | PORTPT - PORT DISTRICT | $79.78 | $79.77 | $0.00 | $0.00 | $79.78 | $79.77 |
| 2025 | 1222 | PUD1 - PUD #1 | $12.80 | $12.79 | $0.00 | $0.00 | $12.80 | $12.79 |
| 2025 | 1222 | LIB1 - LIBRARY DIST #1 | $60.60 | $60.60 | $0.00 | $0.00 | $60.60 | $60.60 |
| 2025 | 1222 | HD2 - HOSP DIST #2 | $11.41 | $11.40 | $0.00 | $0.00 | $11.41 | $11.40 |
| 2025 | 1222 | SD50 - SCHOOL DIST #50 | $363.35 | $363.34 | $0.00 | $0.00 | $363.35 | $363.34 |
| 2025 | 1222 | FD1 - FIRE DISTRICT #1 | $257.99 | $257.99 | $0.00 | $0.00 | $257.99 | $257.99 |
| 2025 | 1222 | EMS1 - FIRE DIST #1 EMS | $99.23 | $99.23 | $0.00 | $0.00 | $99.23 | $99.23 |
| 2025 | 1222 | FP - DNR Forest Fire Protection Assmt | $8.50 | $8.50 | $0.00 | $0.00 | $8.50 | $8.50 |
| 2025 | 1222 | FPLCA - DNR Landowner Contingency Assmt | $3.00 | $3.00 | $0.00 | $0.00 | $3.00 | $3.00 |
| 2025 | 1222 | JCCD - JC Conservation District | $2.75 | $2.75 | $0.00 | $0.00 | $2.75 | $2.75 |
| 2025 | 1222 | NWA - Noxious Weed Assessment | $2.75 | $2.75 | $0.00 | $0.00 | $2.75 | $2.75 |
| 2025 | 1222 | OSS - On Site Septic | $43.00 | $43.00 | $0.00 | $0.00 | $43.00 | $43.00 |
| 2025 | 1222 | WAT - Clean Water District | $13.00 | $13.00 | $0.00 | $0.00 | $13.00 | $13.00 |
| 2025 | 1222 | FP ADMIN - FP ADMIN | $0.50 | $0.00 | $0.00 | $0.00 | $0.50 | $0.00 |
| 2025 | 1222 | TOTAL: | $1813.83 | $1813.25 | $0.00 | $0.00 | $1813.83 | $1813.25 |
|
| 2025 | 1222 | $1813.83 | $1813.25 | $0.00 | $0.00 | $1813.83 | $1813.25 |
Statement Details |
| 2024 | 1224 | STATE - STATE LEVY (SCHOOL) | $445.56 | $445.55 | $0.00 | $0.00 | $891.11 | $0.00 |
| 2024 | 1224 | COUNTY - COUNTY LEVIES (CE, DD, VET, MH) | $190.67 | $190.64 | $0.00 | $0.00 | $381.31 | $0.00 |
| 2024 | 1224 | CONSERVE - CONSERVATION FUTURES | $5.72 | $5.71 | $0.00 | $0.00 | $11.43 | $0.00 |
| 2024 | 1224 | COROADS - COUNTY ROADS (ROADS, DIV TO CE) | $153.42 | $153.42 | $0.00 | $0.00 | $306.84 | $0.00 |
| 2024 | 1224 | PORTPT - PORT DISTRICT | $78.75 | $78.75 | $0.00 | $0.00 | $157.50 | $0.00 |
| 2024 | 1224 | PUD1 - PUD #1 | $12.53 | $12.52 | $0.00 | $0.00 | $25.05 | $0.00 |
| 2024 | 1224 | LIB1 - LIBRARY DIST #1 | $59.36 | $59.35 | $0.00 | $0.00 | $118.71 | $0.00 |
| 2024 | 1224 | HD2 - HOSP DIST #2 | $11.13 | $11.12 | $0.00 | $0.00 | $22.25 | $0.00 |
| 2024 | 1224 | SD50 - SCHOOL DIST #50 | $360.49 | $360.47 | $0.00 | $0.00 | $720.96 | $0.00 |
| 2024 | 1224 | FD1 - FIRE DISTRICT #1 | $252.10 | $252.09 | $0.00 | $0.00 | $504.19 | $0.00 |
| 2024 | 1224 | EMS1 - FIRE DIST #1 EMS | $96.29 | $96.29 | $0.00 | $0.00 | $192.58 | $0.00 |
| 2024 | 1224 | FP - DNR Forest Fire Protection Assmt | $8.50 | $8.50 | $0.00 | $0.00 | $17.00 | $0.00 |
| 2024 | 1224 | FPLCA - DNR Landowner Contingency Assmt | $3.00 | $3.00 | $0.00 | $0.00 | $6.00 | $0.00 |
| 2024 | 1224 | JCCD - JC Conservation District | $2.75 | $2.75 | $0.00 | $0.00 | $5.50 | $0.00 |
| 2024 | 1224 | NWA - Noxious Weed Assessment | $2.75 | $2.75 | $0.00 | $0.00 | $5.50 | $0.00 |
| 2024 | 1224 | OSS - On Site Septic | $42.00 | $42.00 | $0.00 | $0.00 | $84.00 | $0.00 |
| 2024 | 1224 | WAT - Clean Water District | $12.50 | $12.50 | $0.00 | $0.00 | $25.00 | $0.00 |
| 2024 | 1224 | FP ADMIN - FP ADMIN | $0.50 | $0.00 | $0.00 | $0.00 | $0.50 | $0.00 |
| 2024 | 1224 | TOTAL: | $1738.02 | $1737.41 | $0.00 | $0.00 | $3475.43 | $0.00 |
|
| 2024 | 1224 | $1738.02 | $1737.41 | $0.00 | $0.00 | $3475.43 | $0.00 |
Statement Details |
| 2023 | 1224 | STATE - STATE LEVY (SCHOOL) | $438.10 | $438.10 | $0.00 | $0.00 | $876.20 | $0.00 |
| 2023 | 1224 | COUNTY - COUNTY LEVIES (CE, DD, VET, MH) | $191.19 | $191.16 | $0.00 | $0.00 | $382.35 | $0.00 |
| 2023 | 1224 | CONSERVE - CONSERVATION FUTURES | $5.74 | $5.73 | $0.00 | $0.00 | $11.47 | $0.00 |
| 2023 | 1224 | COROADS - COUNTY ROADS (ROADS, DIV TO CE) | $154.68 | $154.67 | $0.00 | $0.00 | $309.35 | $0.00 |
| 2023 | 1224 | PORTPT - PORT DISTRICT | $80.54 | $80.53 | $0.00 | $0.00 | $161.07 | $0.00 |
| 2023 | 1224 | PUD1 - PUD #1 | $12.67 | $12.67 | $0.00 | $0.00 | $25.34 | $0.00 |
| 2023 | 1224 | LIB1 - LIBRARY DIST #1 | $59.84 | $59.84 | $0.00 | $0.00 | $119.68 | $0.00 |
| 2023 | 1224 | HD2 - HOSP DIST #2 | $11.16 | $11.15 | $0.00 | $0.00 | $22.31 | $0.00 |
| 2023 | 1224 | SD50 - SCHOOL DIST #50 | $347.65 | $347.63 | $0.00 | $0.00 | $695.28 | $0.00 |
| 2023 | 1224 | FD1 - FIRE DISTRICT #1 | $157.49 | $157.49 | $0.00 | $0.00 | $314.98 | $0.00 |
| 2023 | 1224 | EMS1 - FIRE DIST #1 EMS | $67.00 | $66.99 | $0.00 | $0.00 | $133.99 | $0.00 |
| 2023 | 1224 | FP - DNR Forest Fire Protection Assmt | $8.50 | $8.50 | $0.00 | $0.00 | $17.00 | $0.00 |
| 2023 | 1224 | FPLCA - DNR Landowner Contingency Assmt | $3.00 | $3.00 | $0.00 | $0.00 | $6.00 | $0.00 |
| 2023 | 1224 | JCCD - JC Conservation District | $2.75 | $2.75 | $0.00 | $0.00 | $5.50 | $0.00 |
| 2023 | 1224 | NWA - Noxious Weed Assessment | $2.75 | $2.75 | $0.00 | $0.00 | $5.50 | $0.00 |
| 2023 | 1224 | OSS - On Site Septic | $41.00 | $41.00 | $0.00 | $0.00 | $82.00 | $0.00 |
| 2023 | 1224 | WAT - Clean Water District | $12.00 | $12.00 | $0.00 | $0.00 | $24.00 | $0.00 |
| 2023 | 1224 | FP ADMIN - FP ADMIN | $0.50 | $0.00 | $0.00 | $0.00 | $0.50 | $0.00 |
| 2023 | 1224 | TOTAL: | $1596.56 | $1595.96 | $0.00 | $0.00 | $3192.52 | $0.00 |
|
| 2023 | 1224 | $1596.56 | $1595.96 | $0.00 | $0.00 | $3192.52 | $0.00 |
Statement Details |
| 2022 | 1226 | STATE - STATE LEVY (SCHOOL) | $371.14 | $371.13 | $0.00 | $0.00 | $742.27 | $0.00 |
| 2022 | 1226 | COUNTY - COUNTY LEVIES (CE, DD, VET, MH) | $165.37 | $165.36 | $0.00 | $0.00 | $330.73 | $0.00 |
| 2022 | 1226 | CONSERVE - CONSERVATION FUTURES | $4.96 | $4.96 | $0.00 | $0.00 | $9.92 | $0.00 |
| 2022 | 1226 | COROADS - COUNTY ROADS (ROADS, DIV TO CE) | $134.40 | $134.39 | $0.00 | $0.00 | $268.79 | $0.00 |
| 2022 | 1226 | PORTPT - PORT DISTRICT | $70.79 | $70.79 | $0.00 | $0.00 | $141.58 | $0.00 |
| 2022 | 1226 | PUD1 - PUD #1 | $11.06 | $11.06 | $0.00 | $0.00 | $22.12 | $0.00 |
| 2022 | 1226 | LIB1 - LIBRARY DIST #1 | $52.00 | $51.99 | $0.00 | $0.00 | $103.99 | $0.00 |
| 2022 | 1226 | HD2 - HOSP DIST #2 | $9.66 | $9.65 | $0.00 | $0.00 | $19.31 | $0.00 |
| 2022 | 1226 | SD50 - SCHOOL DIST #50 | $275.03 | $275.02 | $0.00 | $0.00 | $550.05 | $0.00 |
| 2022 | 1226 | FD1 - FIRE DISTRICT #1 | $135.66 | $135.65 | $0.00 | $0.00 | $271.31 | $0.00 |
| 2022 | 1226 | EMS1 - FIRE DIST #1 EMS | $57.70 | $57.70 | $0.00 | $0.00 | $115.40 | $0.00 |
| 2022 | 1226 | FP - DNR Forest Fire Protection Assmt | $8.50 | $8.50 | $0.00 | $0.00 | $17.00 | $0.00 |
| 2022 | 1226 | FPLCA - DNR Landowner Contingency Assmt | $3.00 | $3.00 | $0.00 | $0.00 | $6.00 | $0.00 |
| 2022 | 1226 | JCCD - JC Conservation District | $2.75 | $2.75 | $0.00 | $0.00 | $5.50 | $0.00 |
| 2022 | 1226 | NWA - Noxious Weed Assessment | $2.75 | $2.75 | $0.00 | $0.00 | $5.50 | $0.00 |
| 2022 | 1226 | OSS - On Site Septic | $39.00 | $39.00 | $0.00 | $0.00 | $78.00 | $0.00 |
| 2022 | 1226 | WAT - Clean Water District | $11.50 | $11.50 | $0.00 | $0.00 | $23.00 | $0.00 |
| 2022 | 1226 | FP ADMIN - FP ADMIN | $0.50 | $0.00 | $0.00 | $0.00 | $0.50 | $0.00 |
| 2022 | 1226 | TOTAL: | $1355.77 | $1355.20 | $0.00 | $0.00 | $2710.97 | $0.00 |
|
| 2022 | 1226 | $1355.77 | $1355.20 | $0.00 | $0.00 | $2710.97 | $0.00 |
Values
| (+) Improvement Homesite Value: | + | $0 | |
| (+) Improvement Non-Homesite Value: | + | $212,206 | |
| (+) Land Homesite Value: | + | $0 | |
| (+) Land Non-Homesite Value: | + | $221,738 | |
| (+) Curr Use (HS): | + | $0 | $0 |
| (+) Curr Use (NHS): | + | $0 | $0 |
| | | -------------------------- | |
| (=) Market Value: | = | $433,944 | |
| (–) Productivity Loss: | – | $0 | |
| | | -------------------------- | |
| (=) Subtotal: | = | $433,944 | |
| (+) Senior Appraised Value: | + | $0 | |
| (+) Non-Senior Appraised Value: | + | $433,944 | |
| | | -------------------------- | |
| (=) Total Appraised Value: | = | $433,944 | |
| (–) Senior Exemption Loss: | – | $0 | |
| (–) Exemption Loss: | – | $0 | |
| | | -------------------------- | |
| (=) Taxable Value: | = | $433,944 | |
Taxing Jurisdiction
| Owner: | CLIFFORD LUCAS | | |
| % Ownership: | 100.0000000000% | | |
| Total Value: | N/A | | |
| Tax Area: | 0111 - 1-50F1E1H2L1 |
| CE | COUNTY CURRENT EXPENSE | N/A | N/A | N/A | N/A | | |
| CNTYDD | DEVELOPMENTAL DISABILITIES | N/A | N/A | N/A | N/A | | |
| CNTYVET | VETERANS RELIEF | N/A | N/A | N/A | N/A | | |
| MENTAL | MENTAL HEALTH | N/A | N/A | N/A | N/A | | |
| ROADS | COUNTY ROADS | N/A | N/A | N/A | N/A | | |
| ROADSCU | COUNTY ROADS TO CUR EXP | N/A | N/A | N/A | N/A | | |
| HOSP2CASH | HOSP DIST #2 GENERAL | N/A | N/A | N/A | N/A | | |
| SCH50BOND | SCHOOL DIST #50 BOND 2016 | N/A | N/A | N/A | N/A | | |
| SCH50CP | SCHOOL DIST #50 CAP PROJ | N/A | N/A | N/A | N/A | | |
| SCH50MO | SCHOOL DIST #50 EP & O | N/A | N/A | N/A | N/A | | |
| CONSERVE | CONSERVATION FUTURES | N/A | N/A | N/A | N/A | | |
| EMS1 | FIRE DIST #1 EMS | N/A | N/A | N/A | N/A | | |
| FD1 | FIRE DIST #1 GENERAL | N/A | N/A | N/A | N/A | | |
| LIB1 | LIBRARY DIST #1 GENERAL | N/A | N/A | N/A | N/A | | |
| PORTPT | PORT OF PT GENERAL | N/A | N/A | N/A | N/A | | |
| PORTPTIDD | PORT OF PT IDD 2019 | N/A | N/A | N/A | N/A | | |
| PUD1 | PUD #1 GENERAL | N/A | N/A | N/A | N/A | | |
| STATE | STATE SCHOOL PART 1 | N/A | N/A | N/A | N/A | | |
| STATE2 | STATE SCHOOL PART 2 | N/A | N/A | N/A | N/A | | |
| | Total Tax Rate: | N/A | | | | | |
| | | | | Taxes w/Current Exemptions: | N/A | | |
| | | | | Taxes w/o Exemptions: | N/A | | |
Improvement / Building
| Improvement #1: | Manufactured Home | State Code: | 11 | 1910.0 sqft | Value: | $165,240 |
| Bathrooms (#): | 2 (FULL) | Bedrooms (#): | 3 | | Exterior Wall: | PL/T1 | Floor Construction: | CONCR | | Foundation: | PO&BL | Heating/Cooling: | F/A | | Roof Cover: | COMP |   |   |
|
| | Type | Description | Class CD | Sub Class CD | Year Built | Area |
| | MA | Main Area | 3+ | MFH | 1995 | 1910.0 |
| | MWPOR | MH Wood Porch | 3 | MFH | 1995 | 60.0 |
| | MDECK | MH Deck | 3 | MFH | 1995 | 742.0 |
| Improvement #2: | Residential Bldg | State Code: | 11 | 736.0 sqft | Value: | $46,966 |
| Bathrooms (#): | 1 (FULL) | Bedrooms (#): | 1 | | Exterior Wall: | PL/T1 | Floor Construction: | FRAME | | Foundation: | CONPR | Heating/Cooling: | ELBB | | Roof Cover: | COMP |   |   |
|
| | Type | Description | Class CD | Sub Class CD | Year Built | Area |
| | MA | Main Area | 3 | C1S | 1991 | 736.0 |
| | HCPOR | House Concrete Porch | 3 | C1S | 1991 | 112.0 |
| | SHED | Shed (Table Not Dep) | 4 | C1S | 1991 | 64.0 |
Sketch
Property Image
Land
| 1 | 5370-1355S | | 1.0000 | 43560.00 | 0.00 | 0.00 | 1.00 | $176,000 | $0 |
| 2 | 1575A | | 3.9600 | 172497.60 | 0.00 | 0.00 | 0.00 | $45,738 | $0 |
Roll Value History
| 2025 | N/A | N/A | N/A | N/A | N/A |
| 2024 | $202,980 | $211,659 | $0 | $414,639 | $414,639 |
| 2023 | $195,563 | $189,600 | $0 | $385,163 | $385,163 |
| 2022 | $195,563 | $176,630 | $0 | $372,193 | $372,193 |
| 2021 | $116,158 | $155,309 | $0 | $271,467 | $271,467 |
Deed and Sales History
| 1 | 07/29/2021 | SWD | Statutory Warranty Deed | CHONDA LEA SIMON | CLIFFORD LUCAS | | | $400,000.00 | 137296 | |
| 2 | 07/16/2015 | SWD | Statutory Warranty Deed | KAREN A JENSEN | CHONDA LEA SIMON | | | $225,000.00 | 123774 | |
| 3 | 01/03/2012 | QCD | Quit Claim Deed | JENSEN, MELVILLE LEROY | JENSEN, KAREN ANN | 0 | 0 | $0.00 | 117267 | 0 |
| 4 | 11/29/2004 | SWD | Statutory Warranty Deed | STANCULESCU, PAUL B & KAR | JENSEN, LEROY & KAREN | 0 | 0 | $185,000.00 | 102138 | 0 |
| 5 | 12/15/1998 | SWD | Statutory Warranty Deed | MORGENSEN, DARYL | STANCULESCU, PAUL B/KAREN C | 0 | 0 | $144,500.00 | 85911 | 0 |
| 6 | 12/17/1994 | QCD | Quit Claim Deed | MORGENSEN, SANDRA | MORGENSEN, DARYL | 0 | 0 | $4,000.00 | 75885 | 0 |
Payout Agreement
| No payout information available.. |