Property
Account |
| Property ID: | 11270 | Abbreviated Legal Description: | S29 T30 R1W TAX 10 (LESS TAX 44)W/EASEMENT |
| Parcel # / Geo ID: | 001291012 | Agent Code: | |
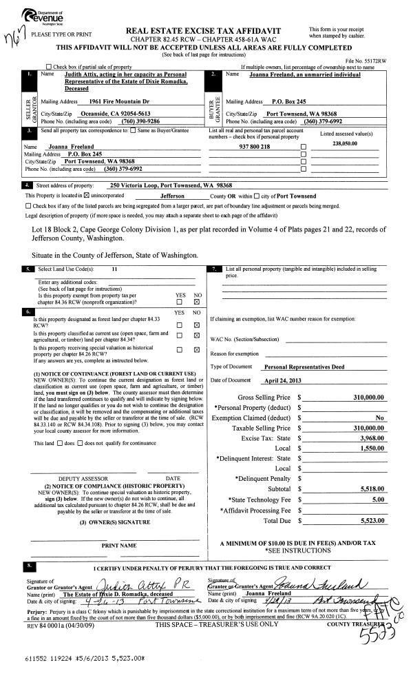
| Type: | Real | | |
| Tax Area: | 0111 - 1-50F1E1H2L1 | Land Use Code | 11 |
| Open Space: | N | DFL | N |
| Historic Property: | N | Remodel Property: | N |
| Multi-Family Redevelopment: | N | | |
| Township: | 30N | Section: | 29 |
| Range: | 1W |
Location |
| Address: | 940 MARTIN RD PORT TOWNSEND, WA 98368 | Mapsco: | 098/022 |
| Neighborhood: | S29 T30 R1W DEER RIDGE, DOE RUN, SNAGSTEAD WAY | Map ID: | |
| Neighborhood CD: | 5370 |
Owner |
| Name: | ROBERT AMBROSE & LINDA M JANSEN REVOCABLE TRUST | Owner ID: | 96961 |
| Mailing Address: | ROBERT AMBROSE TRUSTEE LINDA M JANSEN TRUSTEE 940 MARTIN RD PORT TOWNSEND, WA 98368-9380 | % Ownership: | 100.0000000000% |
| | | Exemptions: | |
Pay Tax Due
There is currently No Amount Due on this property.
Taxes and Assessment Details
Property Tax Information as of
10/23/2025
Click on "Statement Details" to expand or collapse a tax statement.
* Please enter a valid date ** Please enter a valid date *
Statement Details |
| 2025 | 1227 | STATE - STATE LEVY (SCHOOL) | $817.16 | $817.15 | $0.00 | $0.00 | $1634.31 | $0.00 |
| 2025 | 1227 | COUNTY - COUNTY LEVIES (CE, DD, VET, MH) | $321.35 | $321.34 | $0.00 | $0.00 | $642.69 | $0.00 |
| 2025 | 1227 | CONSERVE - CONSERVATION FUTURES | $9.64 | $9.63 | $0.00 | $0.00 | $19.27 | $0.00 |
| 2025 | 1227 | COROADS - COUNTY ROADS (ROADS, DIV TO CE) | $257.45 | $257.44 | $0.00 | $0.00 | $514.89 | $0.00 |
| 2025 | 1227 | PORTPT - PORT DISTRICT | $131.13 | $131.13 | $0.00 | $0.00 | $262.26 | $0.00 |
| 2025 | 1227 | PUD1 - PUD #1 | $21.03 | $21.02 | $0.00 | $0.00 | $42.05 | $0.00 |
| 2025 | 1227 | LIB1 - LIBRARY DIST #1 | $99.61 | $99.60 | $0.00 | $0.00 | $199.21 | $0.00 |
| 2025 | 1227 | HD2 - HOSP DIST #2 | $18.75 | $18.75 | $0.00 | $0.00 | $37.50 | $0.00 |
| 2025 | 1227 | SD50 - SCHOOL DIST #50 | $597.22 | $597.19 | $0.00 | $0.00 | $1194.41 | $0.00 |
| 2025 | 1227 | FD1 - FIRE DISTRICT #1 | $424.05 | $424.04 | $0.00 | $0.00 | $848.09 | $0.00 |
| 2025 | 1227 | EMS1 - FIRE DIST #1 EMS | $163.10 | $163.10 | $0.00 | $0.00 | $326.20 | $0.00 |
| 2025 | 1227 | FP - DNR Forest Fire Protection Assmt | $8.50 | $8.50 | $0.00 | $0.00 | $17.00 | $0.00 |
| 2025 | 1227 | FPLCA - DNR Landowner Contingency Assmt | $3.00 | $3.00 | $0.00 | $0.00 | $6.00 | $0.00 |
| 2025 | 1227 | JCCD - JC Conservation District | $2.95 | $2.95 | $0.00 | $0.00 | $5.90 | $0.00 |
| 2025 | 1227 | NWA - Noxious Weed Assessment | $3.35 | $3.35 | $0.00 | $0.00 | $6.70 | $0.00 |
| 2025 | 1227 | OSS - On Site Septic | $21.50 | $21.50 | $0.00 | $0.00 | $43.00 | $0.00 |
| 2025 | 1227 | WAT - Clean Water District | $13.00 | $13.00 | $0.00 | $0.00 | $26.00 | $0.00 |
| 2025 | 1227 | FP ADMIN - FP ADMIN | $0.50 | $0.00 | $0.00 | $0.00 | $0.50 | $0.00 |
| 2025 | 1227 | TOTAL: | $2913.29 | $2912.69 | $0.00 | $0.00 | $5825.98 | $0.00 |
|
| 2025 | 1227 | $2913.29 | $2912.69 | $0.00 | $0.00 | $5825.98 | $0.00 |
Statement Details |
| 2024 | 1229 | STATE - STATE LEVY (SCHOOL) | $741.39 | $741.39 | $0.00 | $0.00 | $1482.78 | $0.00 |
| 2024 | 1229 | COUNTY - COUNTY LEVIES (CE, DD, VET, MH) | $317.25 | $317.24 | $0.00 | $0.00 | $634.49 | $0.00 |
| 2024 | 1229 | CONSERVE - CONSERVATION FUTURES | $9.52 | $9.51 | $0.00 | $0.00 | $19.03 | $0.00 |
| 2024 | 1229 | COROADS - COUNTY ROADS (ROADS, DIV TO CE) | $255.28 | $255.28 | $0.00 | $0.00 | $510.56 | $0.00 |
| 2024 | 1229 | PORTPT - PORT DISTRICT | $131.04 | $131.03 | $0.00 | $0.00 | $262.07 | $0.00 |
| 2024 | 1229 | PUD1 - PUD #1 | $20.84 | $20.84 | $0.00 | $0.00 | $41.68 | $0.00 |
| 2024 | 1229 | LIB1 - LIBRARY DIST #1 | $98.77 | $98.76 | $0.00 | $0.00 | $197.53 | $0.00 |
| 2024 | 1229 | HD2 - HOSP DIST #2 | $18.51 | $18.51 | $0.00 | $0.00 | $37.02 | $0.00 |
| 2024 | 1229 | SD50 - SCHOOL DIST #50 | $599.83 | $599.81 | $0.00 | $0.00 | $1199.64 | $0.00 |
| 2024 | 1229 | FD1 - FIRE DISTRICT #1 | $419.48 | $419.47 | $0.00 | $0.00 | $838.95 | $0.00 |
| 2024 | 1229 | EMS1 - FIRE DIST #1 EMS | $160.23 | $160.22 | $0.00 | $0.00 | $320.45 | $0.00 |
| 2024 | 1229 | FP - DNR Forest Fire Protection Assmt | $8.50 | $8.50 | $0.00 | $0.00 | $17.00 | $0.00 |
| 2024 | 1229 | FPLCA - DNR Landowner Contingency Assmt | $3.00 | $3.00 | $0.00 | $0.00 | $6.00 | $0.00 |
| 2024 | 1229 | JCCD - JC Conservation District | $2.95 | $2.95 | $0.00 | $0.00 | $5.90 | $0.00 |
| 2024 | 1229 | NWA - Noxious Weed Assessment | $3.35 | $3.35 | $0.00 | $0.00 | $6.70 | $0.00 |
| 2024 | 1229 | OSS - On Site Septic | $21.00 | $21.00 | $0.00 | $0.00 | $42.00 | $0.00 |
| 2024 | 1229 | WAT - Clean Water District | $12.50 | $12.50 | $0.00 | $0.00 | $25.00 | $0.00 |
| 2024 | 1229 | FP ADMIN - FP ADMIN | $0.50 | $0.00 | $0.00 | $0.00 | $0.50 | $0.00 |
| 2024 | 1229 | TOTAL: | $2823.94 | $2823.36 | $0.00 | $0.00 | $5647.30 | $0.00 |
|
| 2024 | 1229 | $2823.94 | $2823.36 | $0.00 | $0.00 | $5647.30 | $0.00 |
Statement Details |
| 2023 | 1229 | STATE - STATE LEVY (SCHOOL) | $741.67 | $741.65 | $0.00 | $0.00 | $1483.32 | $0.00 |
| 2023 | 1229 | COUNTY - COUNTY LEVIES (CE, DD, VET, MH) | $323.64 | $323.62 | $0.00 | $0.00 | $647.26 | $0.00 |
| 2023 | 1229 | CONSERVE - CONSERVATION FUTURES | $9.71 | $9.70 | $0.00 | $0.00 | $19.41 | $0.00 |
| 2023 | 1229 | COROADS - COUNTY ROADS (ROADS, DIV TO CE) | $261.85 | $261.84 | $0.00 | $0.00 | $523.69 | $0.00 |
| 2023 | 1229 | PORTPT - PORT DISTRICT | $136.34 | $136.33 | $0.00 | $0.00 | $272.67 | $0.00 |
| 2023 | 1229 | PUD1 - PUD #1 | $21.46 | $21.45 | $0.00 | $0.00 | $42.91 | $0.00 |
| 2023 | 1229 | LIB1 - LIBRARY DIST #1 | $101.31 | $101.30 | $0.00 | $0.00 | $202.61 | $0.00 |
| 2023 | 1229 | HD2 - HOSP DIST #2 | $18.89 | $18.88 | $0.00 | $0.00 | $37.77 | $0.00 |
| 2023 | 1229 | SD50 - SCHOOL DIST #50 | $588.54 | $588.51 | $0.00 | $0.00 | $1177.05 | $0.00 |
| 2023 | 1229 | FD1 - FIRE DISTRICT #1 | $266.62 | $266.61 | $0.00 | $0.00 | $533.23 | $0.00 |
| 2023 | 1229 | EMS1 - FIRE DIST #1 EMS | $113.41 | $113.41 | $0.00 | $0.00 | $226.82 | $0.00 |
| 2023 | 1229 | FP - DNR Forest Fire Protection Assmt | $8.50 | $8.50 | $0.00 | $0.00 | $17.00 | $0.00 |
| 2023 | 1229 | FPLCA - DNR Landowner Contingency Assmt | $3.00 | $3.00 | $0.00 | $0.00 | $6.00 | $0.00 |
| 2023 | 1229 | JCCD - JC Conservation District | $2.95 | $2.95 | $0.00 | $0.00 | $5.90 | $0.00 |
| 2023 | 1229 | NWA - Noxious Weed Assessment | $3.35 | $3.35 | $0.00 | $0.00 | $6.70 | $0.00 |
| 2023 | 1229 | OSS - On Site Septic | $20.50 | $20.50 | $0.00 | $0.00 | $41.00 | $0.00 |
| 2023 | 1229 | WAT - Clean Water District | $12.00 | $12.00 | $0.00 | $0.00 | $24.00 | $0.00 |
| 2023 | 1229 | FP ADMIN - FP ADMIN | $0.50 | $0.00 | $0.00 | $0.00 | $0.50 | $0.00 |
| 2023 | 1229 | TOTAL: | $2634.24 | $2633.60 | $0.00 | $0.00 | $5267.84 | $0.00 |
|
| 2023 | 1229 | $2634.24 | $2633.60 | $0.00 | $0.00 | $5267.84 | $0.00 |
Statement Details |
| 2022 | 1231 | STATE - STATE LEVY (SCHOOL) | $688.00 | $687.99 | $0.00 | $0.00 | $1375.99 | $0.00 |
| 2022 | 1231 | COUNTY - COUNTY LEVIES (CE, DD, VET, MH) | $306.54 | $306.54 | $0.00 | $0.00 | $613.08 | $0.00 |
| 2022 | 1231 | CONSERVE - CONSERVATION FUTURES | $9.19 | $9.19 | $0.00 | $0.00 | $18.38 | $0.00 |
| 2022 | 1231 | COROADS - COUNTY ROADS (ROADS, DIV TO CE) | $249.15 | $249.13 | $0.00 | $0.00 | $498.28 | $0.00 |
| 2022 | 1231 | PORTPT - PORT DISTRICT | $131.23 | $131.23 | $0.00 | $0.00 | $262.46 | $0.00 |
| 2022 | 1231 | PUD1 - PUD #1 | $20.50 | $20.50 | $0.00 | $0.00 | $41.00 | $0.00 |
| 2022 | 1231 | LIB1 - LIBRARY DIST #1 | $96.39 | $96.39 | $0.00 | $0.00 | $192.78 | $0.00 |
| 2022 | 1231 | HD2 - HOSP DIST #2 | $17.90 | $17.89 | $0.00 | $0.00 | $35.79 | $0.00 |
| 2022 | 1231 | SD50 - SCHOOL DIST #50 | $509.84 | $509.83 | $0.00 | $0.00 | $1019.67 | $0.00 |
| 2022 | 1231 | FD1 - FIRE DISTRICT #1 | $251.48 | $251.47 | $0.00 | $0.00 | $502.95 | $0.00 |
| 2022 | 1231 | EMS1 - FIRE DIST #1 EMS | $106.97 | $106.96 | $0.00 | $0.00 | $213.93 | $0.00 |
| 2022 | 1231 | FP - DNR Forest Fire Protection Assmt | $8.50 | $8.50 | $0.00 | $0.00 | $17.00 | $0.00 |
| 2022 | 1231 | FPLCA - DNR Landowner Contingency Assmt | $3.00 | $3.00 | $0.00 | $0.00 | $6.00 | $0.00 |
| 2022 | 1231 | JCCD - JC Conservation District | $2.95 | $2.95 | $0.00 | $0.00 | $5.90 | $0.00 |
| 2022 | 1231 | NWA - Noxious Weed Assessment | $3.35 | $3.35 | $0.00 | $0.00 | $6.70 | $0.00 |
| 2022 | 1231 | OSS - On Site Septic | $19.50 | $19.50 | $0.00 | $0.00 | $39.00 | $0.00 |
| 2022 | 1231 | WAT - Clean Water District | $11.50 | $11.50 | $0.00 | $0.00 | $23.00 | $0.00 |
| 2022 | 1231 | FP ADMIN - FP ADMIN | $0.50 | $0.00 | $0.00 | $0.00 | $0.50 | $0.00 |
| 2022 | 1231 | TOTAL: | $2436.49 | $2435.92 | $0.00 | $0.00 | $4872.41 | $0.00 |
|
| 2022 | 1231 | $2436.49 | $2435.92 | $0.00 | $0.00 | $4872.41 | $0.00 |
Values
| (+) Improvement Homesite Value: | + | $0 | |
| (+) Improvement Non-Homesite Value: | + | $480,470 | |
| (+) Land Homesite Value: | + | $0 | |
| (+) Land Non-Homesite Value: | + | $232,513 | |
| (+) Curr Use (HS): | + | $0 | $0 |
| (+) Curr Use (NHS): | + | $0 | $0 |
| | | -------------------------- | |
| (=) Market Value: | = | $712,983 | |
| (–) Productivity Loss: | – | $0 | |
| | | -------------------------- | |
| (=) Subtotal: | = | $712,983 | |
| (+) Senior Appraised Value: | + | $0 | |
| (+) Non-Senior Appraised Value: | + | $712,983 | |
| | | -------------------------- | |
| (=) Total Appraised Value: | = | $712,983 | |
| (–) Senior Exemption Loss: | – | $0 | |
| (–) Exemption Loss: | – | $0 | |
| | | -------------------------- | |
| (=) Taxable Value: | = | $712,983 | |
Taxing Jurisdiction
| Owner: | ROBERT AMBROSE & LINDA M JANSEN REVOCABLE TRUST | | |
| % Ownership: | 100.0000000000% | | |
| Total Value: | N/A | | |
| Tax Area: | 0111 - 1-50F1E1H2L1 |
| CE | COUNTY CURRENT EXPENSE | N/A | N/A | N/A | N/A | | |
| CNTYDD | DEVELOPMENTAL DISABILITIES | N/A | N/A | N/A | N/A | | |
| CNTYVET | VETERANS RELIEF | N/A | N/A | N/A | N/A | | |
| MENTAL | MENTAL HEALTH | N/A | N/A | N/A | N/A | | |
| ROADS | COUNTY ROADS | N/A | N/A | N/A | N/A | | |
| ROADSCU | COUNTY ROADS TO CUR EXP | N/A | N/A | N/A | N/A | | |
| HOSP2CASH | HOSP DIST #2 GENERAL | N/A | N/A | N/A | N/A | | |
| SCH50BOND | SCHOOL DIST #50 BOND 2016 | N/A | N/A | N/A | N/A | | |
| SCH50CP | SCHOOL DIST #50 CAP PROJ | N/A | N/A | N/A | N/A | | |
| SCH50MO | SCHOOL DIST #50 EP & O | N/A | N/A | N/A | N/A | | |
| CONSERVE | CONSERVATION FUTURES | N/A | N/A | N/A | N/A | | |
| EMS1 | FIRE DIST #1 EMS | N/A | N/A | N/A | N/A | | |
| FD1 | FIRE DIST #1 GENERAL | N/A | N/A | N/A | N/A | | |
| LIB1 | LIBRARY DIST #1 GENERAL | N/A | N/A | N/A | N/A | | |
| PORTPT | PORT OF PT GENERAL | N/A | N/A | N/A | N/A | | |
| PORTPTIDD | PORT OF PT IDD 2019 | N/A | N/A | N/A | N/A | | |
| PUD1 | PUD #1 GENERAL | N/A | N/A | N/A | N/A | | |
| STATE | STATE SCHOOL PART 1 | N/A | N/A | N/A | N/A | | |
| STATE2 | STATE SCHOOL PART 2 | N/A | N/A | N/A | N/A | | |
| | Total Tax Rate: | N/A | | | | | |
| | | | | Taxes w/Current Exemptions: | N/A | | |
| | | | | Taxes w/o Exemptions: | N/A | | |
Improvement / Building
| Improvement #1: | Residential Bldg | State Code: | 11 | 2068.0 sqft | Value: | $480,470 |
| Bathrooms (#): | 3 (FULL) | Bedrooms (#): | 4 | | Exterior Wall: | SI/ST | Fireplace: | WD ST-GOOD | | Floor Construction: | FRAME | Foundation: | CONPR | | Heating/Cooling: | HPUMP | Roof Cover: | METAL |
|
| | Type | Description | Class CD | Sub Class CD | Year Built | Area |
| | MA | Main Area | 4 | 15SF | 1983 | 1228.0 |
| | MA2 | Second Floor Main Area | 4 | 15SF | 1983 | 840.0 |
| | HDECK | House Deck | 4 | 15SF | 1983 | 1444.0 |
| | CARPTN | Carport W/O Floor | 4 | 15SF | 1983 | 1608.0 |
| | BARN | Barn (Table Not Dep) | 4 | 15SF | 1983 | 1776.0 |
| | SHED | Shed (Table Not Dep) | 4 | 15SF | 1983 | 336.0 |
| | BSMTF | House basement finished | 3 | 15SF | 1983 | 1132.0 |
Sketch
Property Image
Land
| 1 | 5370-1355S | | 1.0000 | 43560.00 | 0.00 | 0.00 | 1.00 | $143,000 | $0 |
| 2 | 1575A | | 7.7500 | 337590.00 | 0.00 | 0.00 | 0.00 | $89,513 | $0 |
Roll Value History
| 2025 | N/A | N/A | N/A | N/A | N/A |
| 2024 | $459,580 | $221,944 | $0 | $681,524 | $681,524 |
| 2023 | $438,397 | $202,500 | $0 | $640,897 | $640,897 |
| 2022 | $438,397 | $191,688 | $0 | $630,085 | $630,085 |
| 2021 | $332,119 | $171,119 | $0 | $503,238 | $503,238 |
Deed and Sales History
| 1 | 03/21/2017 | QCD | Quit Claim Deed | | | | | | 127375 | |
| 2 | 03/29/2017 | QCD | Quit Claim Deed | | | | | | 127374 | |
| 3 | 11/25/2015 | QCD | Quit Claim Deed | | | | | | 124514 | |
| 4 | 07/05/2013 | SWD | Statutory Warranty Deed | VERRAES FAMILY REVOCABLE LIVIN | ROBERT J AMBROSE | | | | 119679 | |
| 5 | 07/05/2013 | SWD | Statutory Warranty Deed | EUGENE P VERRAES TRUSTEE | ROBERT J AMBROSE | | | $495,000.00 | 119587 | |
| 6 | 07/08/2002 | MISC | MISC | VERRAES, EUGENE & KATHY | VERRAES FAMILY REVOCABLE TRUST | 0 | 0 | $0.00 | 95961 | 0 |
| 7 | 01/23/2002 | QCD | Quit Claim Deed | VERRAES, EUGENE/KATHY | VERRAES FAMILY REVOCABLE LIVIN | 0 | 0 | $0.00 | 93961 | 0 |
| 8 | 01/23/2002 | MISC | MISC | EUGENE/KATHY VERRAES | VERRAES FAMILY REVOCABLE TRUST | 0 | 0 | $0.00 | 95069 | 0 |
Payout Agreement
| No payout information available.. |