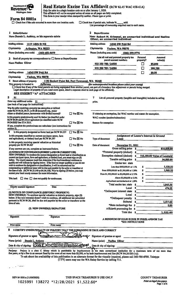
Property
Account |
| Property ID: | 11335 | Abbreviated Legal Description: | S29 T30 R1W TAX 31 ENLG BY TAX 69 WITH & SUBJ TO EASE |
| Parcel # / Geo ID: | 001294012 | Agent Code: | |
| Type: | Real | | |
| Tax Area: | 0111 - 1-50F1E1H2L1 | Land Use Code | 11 |
| Open Space: | N | DFL | N |
| Historic Property: | N | Remodel Property: | N |
| Multi-Family Redevelopment: | N | | |
| Township: | 30N | Section: | 29 |
| Range: | 1W |
Location |
| Address: | 320 ENGEL RD PORT TOWNSEND, WA 98368 | Mapsco: | 099/009 |
| Neighborhood: | S29 T30 R1W DEER RIDGE, DOE RUN, SNAGSTEAD WAY | Map ID: | |
| Neighborhood CD: | 5370 |
Owner |
| Name: | BRENDAN EGAN & KARIN KOONINGS | Owner ID: | 89486 |
| Mailing Address: | 2021 1ST AVE #G8 SEATLE, WA 98121-2135 | % Ownership: | 100.0000000000% |
| | | Exemptions: | |
Pay Tax Due
Select the appropriate checkbox next to the year to be paid. Multiple years may be selected.
*Convenience Fee not included
Taxes and Assessment Details
Property Tax Information as of
10/23/2025
Click on "Statement Details" to expand or collapse a tax statement.
* Please enter a valid date ** Please enter a valid date *
Statement Details |
| 2025 | 1289 | STATE - STATE LEVY (SCHOOL) | $474.59 | $474.58 | $0.00 | $0.00 | $474.59 | $474.58 |
| 2025 | 1289 | COUNTY - COUNTY LEVIES (CE, DD, VET, MH) | $186.64 | $186.62 | $0.00 | $0.00 | $186.64 | $186.62 |
| 2025 | 1289 | CONSERVE - CONSERVATION FUTURES | $5.60 | $5.59 | $0.00 | $0.00 | $5.60 | $5.59 |
| 2025 | 1289 | COROADS - COUNTY ROADS (ROADS, DIV TO CE) | $149.52 | $149.52 | $0.00 | $0.00 | $149.52 | $149.52 |
| 2025 | 1289 | PORTPT - PORT DISTRICT | $76.16 | $76.15 | $0.00 | $0.00 | $76.16 | $76.15 |
| 2025 | 1289 | PUD1 - PUD #1 | $12.21 | $12.21 | $0.00 | $0.00 | $12.21 | $12.21 |
| 2025 | 1289 | LIB1 - LIBRARY DIST #1 | $57.85 | $57.85 | $0.00 | $0.00 | $57.85 | $57.85 |
| 2025 | 1289 | HD2 - HOSP DIST #2 | $10.89 | $10.89 | $0.00 | $0.00 | $10.89 | $10.89 |
| 2025 | 1289 | SD50 - SCHOOL DIST #50 | $346.85 | $346.84 | $0.00 | $0.00 | $346.85 | $346.84 |
| 2025 | 1289 | FD1 - FIRE DISTRICT #1 | $246.28 | $246.27 | $0.00 | $0.00 | $246.28 | $246.27 |
| 2025 | 1289 | EMS1 - FIRE DIST #1 EMS | $94.73 | $94.72 | $0.00 | $0.00 | $94.73 | $94.72 |
| 2025 | 1289 | FP - DNR Forest Fire Protection Assmt | $8.50 | $8.50 | $0.00 | $0.00 | $8.50 | $8.50 |
| 2025 | 1289 | FPLCA - DNR Landowner Contingency Assmt | $3.00 | $3.00 | $0.00 | $0.00 | $3.00 | $3.00 |
| 2025 | 1289 | JCCD - JC Conservation District | $3.00 | $3.00 | $0.00 | $0.00 | $3.00 | $3.00 |
| 2025 | 1289 | NWA - Noxious Weed Assessment | $3.50 | $3.50 | $0.00 | $0.00 | $3.50 | $3.50 |
| 2025 | 1289 | OSS - On Site Septic | $21.50 | $21.50 | $0.00 | $0.00 | $21.50 | $21.50 |
| 2025 | 1289 | WAT - Clean Water District | $13.00 | $13.00 | $0.00 | $0.00 | $13.00 | $13.00 |
| 2025 | 1289 | FP ADMIN - FP ADMIN | $0.50 | $0.00 | $0.00 | $0.00 | $0.50 | $0.00 |
| 2025 | 1289 | TOTAL: | $1714.32 | $1713.74 | $0.00 | $0.00 | $1714.32 | $1713.74 |
|
| 2025 | 1289 | $1714.32 | $1713.74 | $0.00 | $0.00 | $1714.32 | $1713.74 |
Statement Details |
| 2024 | 1291 | STATE - STATE LEVY (SCHOOL) | $431.40 | $431.38 | $0.00 | $0.00 | $862.78 | $0.00 |
| 2024 | 1291 | COUNTY - COUNTY LEVIES (CE, DD, VET, MH) | $184.60 | $184.58 | $0.00 | $0.00 | $369.18 | $0.00 |
| 2024 | 1291 | CONSERVE - CONSERVATION FUTURES | $5.54 | $5.53 | $0.00 | $0.00 | $11.07 | $0.00 |
| 2024 | 1291 | COROADS - COUNTY ROADS (ROADS, DIV TO CE) | $148.55 | $148.53 | $0.00 | $0.00 | $297.08 | $0.00 |
| 2024 | 1291 | PORTPT - PORT DISTRICT | $76.26 | $76.24 | $0.00 | $0.00 | $152.50 | $0.00 |
| 2024 | 1291 | PUD1 - PUD #1 | $12.13 | $12.12 | $0.00 | $0.00 | $24.25 | $0.00 |
| 2024 | 1291 | LIB1 - LIBRARY DIST #1 | $57.47 | $57.47 | $0.00 | $0.00 | $114.94 | $0.00 |
| 2024 | 1291 | HD2 - HOSP DIST #2 | $10.77 | $10.77 | $0.00 | $0.00 | $21.54 | $0.00 |
| 2024 | 1291 | SD50 - SCHOOL DIST #50 | $349.02 | $349.00 | $0.00 | $0.00 | $698.02 | $0.00 |
| 2024 | 1291 | FD1 - FIRE DISTRICT #1 | $244.08 | $244.08 | $0.00 | $0.00 | $488.16 | $0.00 |
| 2024 | 1291 | EMS1 - FIRE DIST #1 EMS | $93.23 | $93.23 | $0.00 | $0.00 | $186.46 | $0.00 |
| 2024 | 1291 | FP - DNR Forest Fire Protection Assmt | $8.50 | $8.50 | $0.00 | $0.00 | $17.00 | $0.00 |
| 2024 | 1291 | FPLCA - DNR Landowner Contingency Assmt | $3.00 | $3.00 | $0.00 | $0.00 | $6.00 | $0.00 |
| 2024 | 1291 | JCCD - JC Conservation District | $3.00 | $3.00 | $0.00 | $0.00 | $6.00 | $0.00 |
| 2024 | 1291 | NWA - Noxious Weed Assessment | $3.50 | $3.50 | $0.00 | $0.00 | $7.00 | $0.00 |
| 2024 | 1291 | OSS - On Site Septic | $21.00 | $21.00 | $0.00 | $0.00 | $42.00 | $0.00 |
| 2024 | 1291 | WAT - Clean Water District | $12.50 | $12.50 | $0.00 | $0.00 | $25.00 | $0.00 |
| 2024 | 1291 | FP ADMIN - FP ADMIN | $0.50 | $0.00 | $0.00 | $0.00 | $0.50 | $0.00 |
| 2024 | 1291 | TOTAL: | $1665.05 | $1664.43 | $0.00 | $0.00 | $3329.48 | $0.00 |
|
| 2024 | 1291 | $1665.05 | $1664.43 | $0.00 | $0.00 | $3329.48 | $0.00 |
Statement Details |
| 2023 | 1291 | STATE - STATE LEVY (SCHOOL) | $428.26 | $428.25 | $0.00 | $0.00 | $856.51 | $0.00 |
| 2023 | 1291 | COUNTY - COUNTY LEVIES (CE, DD, VET, MH) | $186.88 | $186.87 | $0.00 | $0.00 | $373.75 | $0.00 |
| 2023 | 1291 | CONSERVE - CONSERVATION FUTURES | $5.61 | $5.60 | $0.00 | $0.00 | $11.21 | $0.00 |
| 2023 | 1291 | COROADS - COUNTY ROADS (ROADS, DIV TO CE) | $151.20 | $151.19 | $0.00 | $0.00 | $302.39 | $0.00 |
| 2023 | 1291 | PORTPT - PORT DISTRICT | $78.73 | $78.72 | $0.00 | $0.00 | $157.45 | $0.00 |
| 2023 | 1291 | PUD1 - PUD #1 | $12.39 | $12.38 | $0.00 | $0.00 | $24.77 | $0.00 |
| 2023 | 1291 | LIB1 - LIBRARY DIST #1 | $58.50 | $58.49 | $0.00 | $0.00 | $116.99 | $0.00 |
| 2023 | 1291 | HD2 - HOSP DIST #2 | $10.91 | $10.90 | $0.00 | $0.00 | $21.81 | $0.00 |
| 2023 | 1291 | SD50 - SCHOOL DIST #50 | $339.84 | $339.81 | $0.00 | $0.00 | $679.65 | $0.00 |
| 2023 | 1291 | FD1 - FIRE DISTRICT #1 | $153.95 | $153.95 | $0.00 | $0.00 | $307.90 | $0.00 |
| 2023 | 1291 | EMS1 - FIRE DIST #1 EMS | $65.49 | $65.48 | $0.00 | $0.00 | $130.97 | $0.00 |
| 2023 | 1291 | FP - DNR Forest Fire Protection Assmt | $8.50 | $8.50 | $0.00 | $0.00 | $17.00 | $0.00 |
| 2023 | 1291 | FPLCA - DNR Landowner Contingency Assmt | $3.00 | $3.00 | $0.00 | $0.00 | $6.00 | $0.00 |
| 2023 | 1291 | JCCD - JC Conservation District | $3.00 | $3.00 | $0.00 | $0.00 | $6.00 | $0.00 |
| 2023 | 1291 | NWA - Noxious Weed Assessment | $3.50 | $3.50 | $0.00 | $0.00 | $7.00 | $0.00 |
| 2023 | 1291 | OSS - On Site Septic | $20.50 | $20.50 | $0.00 | $0.00 | $41.00 | $0.00 |
| 2023 | 1291 | WAT - Clean Water District | $12.00 | $12.00 | $0.00 | $0.00 | $24.00 | $0.00 |
| 2023 | 1291 | FP ADMIN - FP ADMIN | $0.50 | $0.00 | $0.00 | $0.00 | $0.50 | $0.00 |
| 2023 | 1291 | TOTAL: | $1542.76 | $1542.14 | $0.00 | $0.00 | $3084.90 | $0.00 |
|
| 2023 | 1291 | $1542.76 | $1542.14 | $0.00 | $0.00 | $3084.90 | $0.00 |
Statement Details |
| 2022 | 1293 | STATE - STATE LEVY (SCHOOL) | $397.50 | $397.49 | $0.00 | $0.00 | $794.99 | $0.00 |
| 2022 | 1293 | COUNTY - COUNTY LEVIES (CE, DD, VET, MH) | $177.12 | $177.10 | $0.00 | $0.00 | $354.22 | $0.00 |
| 2022 | 1293 | CONSERVE - CONSERVATION FUTURES | $5.31 | $5.31 | $0.00 | $0.00 | $10.62 | $0.00 |
| 2022 | 1293 | COROADS - COUNTY ROADS (ROADS, DIV TO CE) | $143.95 | $143.94 | $0.00 | $0.00 | $287.89 | $0.00 |
| 2022 | 1293 | PORTPT - PORT DISTRICT | $75.82 | $75.82 | $0.00 | $0.00 | $151.64 | $0.00 |
| 2022 | 1293 | PUD1 - PUD #1 | $11.85 | $11.84 | $0.00 | $0.00 | $23.69 | $0.00 |
| 2022 | 1293 | LIB1 - LIBRARY DIST #1 | $55.69 | $55.69 | $0.00 | $0.00 | $111.38 | $0.00 |
| 2022 | 1293 | HD2 - HOSP DIST #2 | $10.35 | $10.33 | $0.00 | $0.00 | $20.68 | $0.00 |
| 2022 | 1293 | SD50 - SCHOOL DIST #50 | $294.57 | $294.56 | $0.00 | $0.00 | $589.13 | $0.00 |
| 2022 | 1293 | FD1 - FIRE DISTRICT #1 | $145.29 | $145.29 | $0.00 | $0.00 | $290.58 | $0.00 |
| 2022 | 1293 | EMS1 - FIRE DIST #1 EMS | $61.80 | $61.80 | $0.00 | $0.00 | $123.60 | $0.00 |
| 2022 | 1293 | FP - DNR Forest Fire Protection Assmt | $8.50 | $8.50 | $0.00 | $0.00 | $17.00 | $0.00 |
| 2022 | 1293 | FPLCA - DNR Landowner Contingency Assmt | $3.00 | $3.00 | $0.00 | $0.00 | $6.00 | $0.00 |
| 2022 | 1293 | JCCD - JC Conservation District | $3.00 | $3.00 | $0.00 | $0.00 | $6.00 | $0.00 |
| 2022 | 1293 | NWA - Noxious Weed Assessment | $3.50 | $3.50 | $0.00 | $0.00 | $7.00 | $0.00 |
| 2022 | 1293 | OSS - On Site Septic | $19.50 | $19.50 | $0.00 | $0.00 | $39.00 | $0.00 |
| 2022 | 1293 | WAT - Clean Water District | $11.50 | $11.50 | $0.00 | $0.00 | $23.00 | $0.00 |
| 2022 | 1293 | FP ADMIN - FP ADMIN | $0.50 | $0.00 | $0.00 | $0.00 | $0.50 | $0.00 |
| 2022 | 1293 | TOTAL: | $1428.75 | $1428.17 | $0.00 | $0.00 | $2856.92 | $0.00 |
|
| 2022 | 1293 | $1428.75 | $1428.17 | $0.00 | $0.00 | $2856.92 | $0.00 |
Values
| (+) Improvement Homesite Value: | + | $0 | |
| (+) Improvement Non-Homesite Value: | + | $255,590 | |
| (+) Land Homesite Value: | + | $0 | |
| (+) Land Non-Homesite Value: | + | $158,545 | |
| (+) Curr Use (HS): | + | $0 | $0 |
| (+) Curr Use (NHS): | + | $0 | $0 |
| | | -------------------------- | |
| (=) Market Value: | = | $414,135 | |
| (–) Productivity Loss: | – | $0 | |
| | | -------------------------- | |
| (=) Subtotal: | = | $414,135 | |
| (+) Senior Appraised Value: | + | $0 | |
| (+) Non-Senior Appraised Value: | + | $414,135 | |
| | | -------------------------- | |
| (=) Total Appraised Value: | = | $414,135 | |
| (–) Senior Exemption Loss: | – | $0 | |
| (–) Exemption Loss: | – | $0 | |
| | | -------------------------- | |
| (=) Taxable Value: | = | $414,135 | |
Taxing Jurisdiction
| Owner: | BRENDAN EGAN & KARIN KOONINGS | | |
| % Ownership: | 100.0000000000% | | |
| Total Value: | N/A | | |
| Tax Area: | 0111 - 1-50F1E1H2L1 |
| CE | COUNTY CURRENT EXPENSE | N/A | N/A | N/A | N/A | | |
| CNTYDD | DEVELOPMENTAL DISABILITIES | N/A | N/A | N/A | N/A | | |
| CNTYVET | VETERANS RELIEF | N/A | N/A | N/A | N/A | | |
| MENTAL | MENTAL HEALTH | N/A | N/A | N/A | N/A | | |
| ROADS | COUNTY ROADS | N/A | N/A | N/A | N/A | | |
| ROADSCU | COUNTY ROADS TO CUR EXP | N/A | N/A | N/A | N/A | | |
| HOSP2CASH | HOSP DIST #2 GENERAL | N/A | N/A | N/A | N/A | | |
| SCH50BOND | SCHOOL DIST #50 BOND 2016 | N/A | N/A | N/A | N/A | | |
| SCH50CP | SCHOOL DIST #50 CAP PROJ | N/A | N/A | N/A | N/A | | |
| SCH50MO | SCHOOL DIST #50 EP & O | N/A | N/A | N/A | N/A | | |
| CONSERVE | CONSERVATION FUTURES | N/A | N/A | N/A | N/A | | |
| EMS1 | FIRE DIST #1 EMS | N/A | N/A | N/A | N/A | | |
| FD1 | FIRE DIST #1 GENERAL | N/A | N/A | N/A | N/A | | |
| LIB1 | LIBRARY DIST #1 GENERAL | N/A | N/A | N/A | N/A | | |
| PORTPT | PORT OF PT GENERAL | N/A | N/A | N/A | N/A | | |
| PORTPTIDD | PORT OF PT IDD 2019 | N/A | N/A | N/A | N/A | | |
| PUD1 | PUD #1 GENERAL | N/A | N/A | N/A | N/A | | |
| STATE | STATE SCHOOL PART 1 | N/A | N/A | N/A | N/A | | |
| STATE2 | STATE SCHOOL PART 2 | N/A | N/A | N/A | N/A | | |
| | Total Tax Rate: | N/A | | | | | |
| | | | | Taxes w/Current Exemptions: | N/A | | |
| | | | | Taxes w/o Exemptions: | N/A | | |
Improvement / Building
| Improvement #1: | Residential Bldg | State Code: | 11 | 999.0 sqft | Value: | $255,590 |
| Bathrooms (#): | 1 (FULL) | Bedrooms (#): | 1 | | Exterior Wall: | LOG | Fireplace: | WD ST-GOOD | | Floor Construction: | FRAME | Foundation: | CONPR | | Heating/Cooling: | WD/NO | Roof Cover: | SHNGL |
|
| | Type | Description | Class CD | Sub Class CD | Year Built | Area |
| | MA | Main Area | 4 | 15SF | 1981 | 999.0 |
| | HWPOR | House Wood Porch | 4 | 15SF | 1981 | 380.0 |
| | HDECK | House Deck | 4 | 15SF | 1981 | 494.0 |
| | CARPTN | Carport W/O Floor | 3 | 15SF | 1981 | 517.0 |
| | GDET | Detached Garage | 4 | 15SF | 1981 | 1092.0 |
| | HLOFT | House Loft | 4 | 15SF | 1981 | 513.0 |
| | BSMTU | House basement unfinished | 3 | 15SF | 1981 | 1064.0 |
Sketch
Property Image
Land
| 1 | 5370-1385S | | 1.0000 | 43560.00 | 0.00 | 0.00 | 1.00 | $102,300 | $0 |
| 2 | 1679A | | 9.0900 | 395960.40 | 0.00 | 0.00 | 0.00 | $56,245 | $0 |
Roll Value History
| 2025 | N/A | N/A | N/A | N/A | N/A |
| 2024 | $244,477 | $151,339 | $0 | $395,816 | $395,816 |
| 2023 | $235,829 | $137,086 | $0 | $372,915 | $372,915 |
| 2022 | $235,829 | $127,996 | $0 | $363,825 | $363,825 |
| 2021 | $178,658 | $112,094 | $0 | $290,752 | $290,752 |
Deed and Sales History
| 1 | 05/02/2022 | QCD | Quit Claim Deed | ADAM SAWASY | BRENDAN EGAN & KARIN KOONINGS | | | | 139172 | CC#20-2-00126-16 |
| 2 | 04/08/2013 | SWD | Statutory Warranty Deed | JUMPING MOUSE CHILDRENS CENTER | BRENDAN EGAN & KARIN KOONINGS | | | $200,000.00 | 119063 | |
| 3 | 09/06/2011 | QCD | Quit Claim Deed | MERRITT, JAN ARDEN ESTATE | JUMPING MOUSE CHILDRENS CENTER | 0 | 0 | $0.00 | 116483 | 0 |
Payout Agreement
| No payout information available.. |