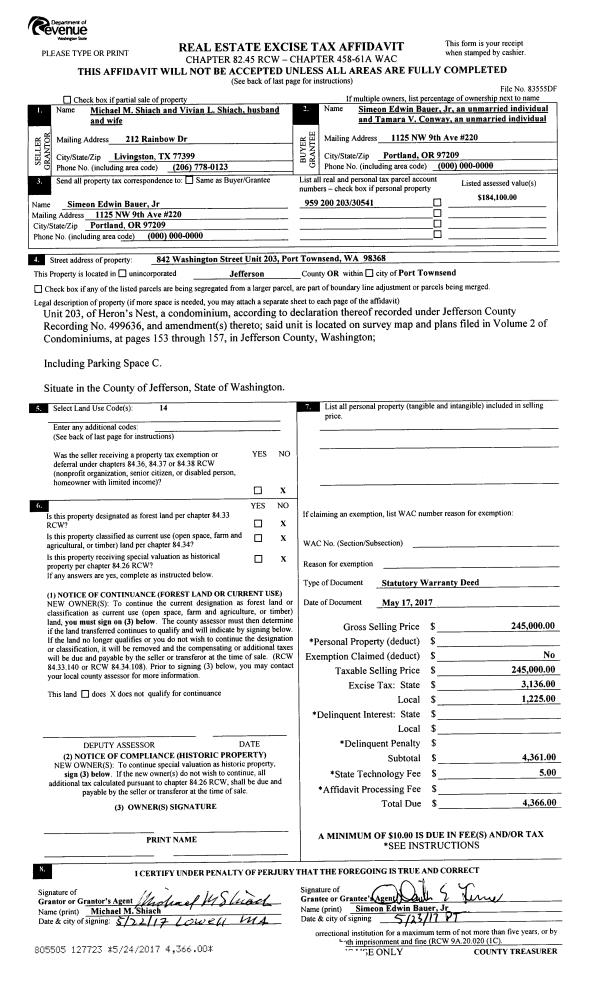
Property
Account |
| Property ID: | 11336 | Abbreviated Legal Description: | S29 T30 R1W TAX 30 WITH & SUBJ TO EASE |
| Parcel # / Geo ID: | 001294013 | Agent Code: | |
| Type: | Real | | |
| Tax Area: | 0111 - 1-50F1E1H2L1 | Land Use Code | 11 |
| Open Space: | N | DFL | N |
| Historic Property: | N | Remodel Property: | N |
| Multi-Family Redevelopment: | N | | |
| Township: | 30N | Section: | 29 |
| Range: | 1W |
Location |
| Address: | 871 BLACK BEAR RD PORT TOWNSEND, WA 98368 | Mapsco: | 099/008 |
| Neighborhood: | S29 T30 R1W DEER RIDGE, DOE RUN, SNAGSTEAD WAY | Map ID: | |
| Neighborhood CD: | 5370 |
Owner |
| Name: | ERIC T PETERSON | Owner ID: | 96756 |
| Mailing Address: | 691 BLACK BEAR RD PORT TOWNSEND, WA 98368-9733 | % Ownership: | 100.0000000000% |
| | | Exemptions: | |
Pay Tax Due
Select the appropriate checkbox next to the year to be paid. Multiple years may be selected.
*Convenience Fee not included
Taxes and Assessment Details
Property Tax Information as of
10/23/2025
Click on "Statement Details" to expand or collapse a tax statement.
* Please enter a valid date ** Please enter a valid date *
Statement Details |
| 2025 | 1290 | STATE - STATE LEVY (SCHOOL) | $909.98 | $909.96 | $0.00 | $0.00 | $909.98 | $909.96 |
| 2025 | 1290 | COUNTY - COUNTY LEVIES (CE, DD, VET, MH) | $357.85 | $357.83 | $0.00 | $0.00 | $357.85 | $357.83 |
| 2025 | 1290 | CONSERVE - CONSERVATION FUTURES | $10.73 | $10.73 | $0.00 | $0.00 | $10.73 | $10.73 |
| 2025 | 1290 | COROADS - COUNTY ROADS (ROADS, DIV TO CE) | $286.69 | $286.68 | $0.00 | $0.00 | $286.69 | $286.68 |
| 2025 | 1290 | PORTPT - PORT DISTRICT | $146.03 | $146.01 | $0.00 | $0.00 | $146.03 | $146.01 |
| 2025 | 1290 | PUD1 - PUD #1 | $23.42 | $23.41 | $0.00 | $0.00 | $23.42 | $23.41 |
| 2025 | 1290 | LIB1 - LIBRARY DIST #1 | $110.92 | $110.91 | $0.00 | $0.00 | $110.92 | $110.91 |
| 2025 | 1290 | HD2 - HOSP DIST #2 | $20.88 | $20.87 | $0.00 | $0.00 | $20.88 | $20.87 |
| 2025 | 1290 | SD50 - SCHOOL DIST #50 | $665.04 | $665.03 | $0.00 | $0.00 | $665.04 | $665.03 |
| 2025 | 1290 | FD1 - FIRE DISTRICT #1 | $472.21 | $472.21 | $0.00 | $0.00 | $472.21 | $472.21 |
| 2025 | 1290 | EMS1 - FIRE DIST #1 EMS | $181.63 | $181.62 | $0.00 | $0.00 | $181.63 | $181.62 |
| 2025 | 1290 | FP - DNR Forest Fire Protection Assmt | $8.50 | $8.50 | $0.00 | $0.00 | $8.50 | $8.50 |
| 2025 | 1290 | FPLCA - DNR Landowner Contingency Assmt | $3.00 | $3.00 | $0.00 | $0.00 | $3.00 | $3.00 |
| 2025 | 1290 | JCCD - JC Conservation District | $2.75 | $2.75 | $0.00 | $0.00 | $2.75 | $2.75 |
| 2025 | 1290 | NWA - Noxious Weed Assessment | $2.75 | $2.75 | $0.00 | $0.00 | $2.75 | $2.75 |
| 2025 | 1290 | OSS - On Site Septic | $21.50 | $21.50 | $0.00 | $0.00 | $21.50 | $21.50 |
| 2025 | 1290 | WAT - Clean Water District | $13.00 | $13.00 | $0.00 | $0.00 | $13.00 | $13.00 |
| 2025 | 1290 | FP ADMIN - FP ADMIN | $0.50 | $0.00 | $0.00 | $0.00 | $0.50 | $0.00 |
| 2025 | 1290 | TOTAL: | $3237.38 | $3236.76 | $0.00 | $0.00 | $3237.38 | $3236.76 |
|
| 2025 | 1290 | $3237.38 | $3236.76 | $0.00 | $0.00 | $3237.38 | $3236.76 |
Statement Details |
| 2024 | 1292 | STATE - STATE LEVY (SCHOOL) | $825.02 | $825.00 | $0.00 | $0.00 | $1650.02 | $0.00 |
| 2024 | 1292 | COUNTY - COUNTY LEVIES (CE, DD, VET, MH) | $353.05 | $353.02 | $0.00 | $0.00 | $706.07 | $0.00 |
| 2024 | 1292 | CONSERVE - CONSERVATION FUTURES | $10.59 | $10.58 | $0.00 | $0.00 | $21.17 | $0.00 |
| 2024 | 1292 | COROADS - COUNTY ROADS (ROADS, DIV TO CE) | $284.07 | $284.07 | $0.00 | $0.00 | $568.14 | $0.00 |
| 2024 | 1292 | PORTPT - PORT DISTRICT | $145.82 | $145.81 | $0.00 | $0.00 | $291.63 | $0.00 |
| 2024 | 1292 | PUD1 - PUD #1 | $23.19 | $23.19 | $0.00 | $0.00 | $46.38 | $0.00 |
| 2024 | 1292 | LIB1 - LIBRARY DIST #1 | $109.91 | $109.90 | $0.00 | $0.00 | $219.81 | $0.00 |
| 2024 | 1292 | HD2 - HOSP DIST #2 | $20.60 | $20.60 | $0.00 | $0.00 | $41.20 | $0.00 |
| 2024 | 1292 | SD50 - SCHOOL DIST #50 | $667.48 | $667.46 | $0.00 | $0.00 | $1334.94 | $0.00 |
| 2024 | 1292 | FD1 - FIRE DISTRICT #1 | $466.79 | $466.79 | $0.00 | $0.00 | $933.58 | $0.00 |
| 2024 | 1292 | EMS1 - FIRE DIST #1 EMS | $178.30 | $178.29 | $0.00 | $0.00 | $356.59 | $0.00 |
| 2024 | 1292 | FP - DNR Forest Fire Protection Assmt | $8.50 | $8.50 | $0.00 | $0.00 | $17.00 | $0.00 |
| 2024 | 1292 | FPLCA - DNR Landowner Contingency Assmt | $3.00 | $3.00 | $0.00 | $0.00 | $6.00 | $0.00 |
| 2024 | 1292 | JCCD - JC Conservation District | $2.75 | $2.75 | $0.00 | $0.00 | $5.50 | $0.00 |
| 2024 | 1292 | NWA - Noxious Weed Assessment | $2.75 | $2.75 | $0.00 | $0.00 | $5.50 | $0.00 |
| 2024 | 1292 | OSS - On Site Septic | $21.00 | $21.00 | $0.00 | $0.00 | $42.00 | $0.00 |
| 2024 | 1292 | WAT - Clean Water District | $12.50 | $12.50 | $0.00 | $0.00 | $25.00 | $0.00 |
| 2024 | 1292 | FP ADMIN - FP ADMIN | $0.50 | $0.00 | $0.00 | $0.00 | $0.50 | $0.00 |
| 2024 | 1292 | TOTAL: | $3135.82 | $3135.21 | $0.00 | $0.00 | $6271.03 | $0.00 |
|
| 2024 | 1292 | $3135.82 | $3135.21 | $0.00 | $0.00 | $6271.03 | $0.00 |
Statement Details |
| 2023 | 1292 | STATE - STATE LEVY (SCHOOL) | $830.20 | $830.20 | $0.00 | $0.00 | $1660.40 | $0.00 |
| 2023 | 1292 | COUNTY - COUNTY LEVIES (CE, DD, VET, MH) | $362.28 | $362.25 | $0.00 | $0.00 | $724.53 | $0.00 |
| 2023 | 1292 | CONSERVE - CONSERVATION FUTURES | $10.87 | $10.86 | $0.00 | $0.00 | $21.73 | $0.00 |
| 2023 | 1292 | COROADS - COUNTY ROADS (ROADS, DIV TO CE) | $293.11 | $293.10 | $0.00 | $0.00 | $586.21 | $0.00 |
| 2023 | 1292 | PORTPT - PORT DISTRICT | $152.61 | $152.61 | $0.00 | $0.00 | $305.22 | $0.00 |
| 2023 | 1292 | PUD1 - PUD #1 | $24.02 | $24.01 | $0.00 | $0.00 | $48.03 | $0.00 |
| 2023 | 1292 | LIB1 - LIBRARY DIST #1 | $113.40 | $113.40 | $0.00 | $0.00 | $226.80 | $0.00 |
| 2023 | 1292 | HD2 - HOSP DIST #2 | $21.15 | $21.13 | $0.00 | $0.00 | $42.28 | $0.00 |
| 2023 | 1292 | SD50 - SCHOOL DIST #50 | $658.79 | $658.77 | $0.00 | $0.00 | $1317.56 | $0.00 |
| 2023 | 1292 | FD1 - FIRE DISTRICT #1 | $298.44 | $298.44 | $0.00 | $0.00 | $596.88 | $0.00 |
| 2023 | 1292 | EMS1 - FIRE DIST #1 EMS | $126.95 | $126.95 | $0.00 | $0.00 | $253.90 | $0.00 |
| 2023 | 1292 | FP - DNR Forest Fire Protection Assmt | $8.50 | $8.50 | $0.00 | $0.00 | $17.00 | $0.00 |
| 2023 | 1292 | FPLCA - DNR Landowner Contingency Assmt | $3.00 | $3.00 | $0.00 | $0.00 | $6.00 | $0.00 |
| 2023 | 1292 | JCCD - JC Conservation District | $2.75 | $2.75 | $0.00 | $0.00 | $5.50 | $0.00 |
| 2023 | 1292 | NWA - Noxious Weed Assessment | $2.75 | $2.75 | $0.00 | $0.00 | $5.50 | $0.00 |
| 2023 | 1292 | OSS - On Site Septic | $20.50 | $20.50 | $0.00 | $0.00 | $41.00 | $0.00 |
| 2023 | 1292 | WAT - Clean Water District | $12.00 | $12.00 | $0.00 | $0.00 | $24.00 | $0.00 |
| 2023 | 1292 | FP ADMIN - FP ADMIN | $0.50 | $0.00 | $0.00 | $0.00 | $0.50 | $0.00 |
| 2023 | 1292 | TOTAL: | $2941.82 | $2941.22 | $0.00 | $0.00 | $5883.04 | $0.00 |
|
| 2023 | 1292 | $2941.82 | $2941.22 | $0.00 | $0.00 | $5883.04 | $0.00 |
Statement Details |
| 2022 | 1294 | STATE - STATE LEVY (SCHOOL) | $754.28 | $754.26 | $0.00 | $0.00 | $1508.54 | $0.00 |
| 2022 | 1294 | COUNTY - COUNTY LEVIES (CE, DD, VET, MH) | $336.08 | $336.05 | $0.00 | $0.00 | $672.13 | $0.00 |
| 2022 | 1294 | CONSERVE - CONSERVATION FUTURES | $10.08 | $10.07 | $0.00 | $0.00 | $20.15 | $0.00 |
| 2022 | 1294 | COROADS - COUNTY ROADS (ROADS, DIV TO CE) | $273.15 | $273.14 | $0.00 | $0.00 | $546.29 | $0.00 |
| 2022 | 1294 | PORTPT - PORT DISTRICT | $143.88 | $143.86 | $0.00 | $0.00 | $287.74 | $0.00 |
| 2022 | 1294 | PUD1 - PUD #1 | $22.48 | $22.47 | $0.00 | $0.00 | $44.95 | $0.00 |
| 2022 | 1294 | LIB1 - LIBRARY DIST #1 | $105.68 | $105.67 | $0.00 | $0.00 | $211.35 | $0.00 |
| 2022 | 1294 | HD2 - HOSP DIST #2 | $19.62 | $19.61 | $0.00 | $0.00 | $39.23 | $0.00 |
| 2022 | 1294 | SD50 - SCHOOL DIST #50 | $558.96 | $558.94 | $0.00 | $0.00 | $1117.90 | $0.00 |
| 2022 | 1294 | FD1 - FIRE DISTRICT #1 | $275.70 | $275.70 | $0.00 | $0.00 | $551.40 | $0.00 |
| 2022 | 1294 | EMS1 - FIRE DIST #1 EMS | $117.27 | $117.27 | $0.00 | $0.00 | $234.54 | $0.00 |
| 2022 | 1294 | FP - DNR Forest Fire Protection Assmt | $8.50 | $8.50 | $0.00 | $0.00 | $17.00 | $0.00 |
| 2022 | 1294 | FPLCA - DNR Landowner Contingency Assmt | $3.00 | $3.00 | $0.00 | $0.00 | $6.00 | $0.00 |
| 2022 | 1294 | JCCD - JC Conservation District | $2.75 | $2.75 | $0.00 | $0.00 | $5.50 | $0.00 |
| 2022 | 1294 | NWA - Noxious Weed Assessment | $2.75 | $2.75 | $0.00 | $0.00 | $5.50 | $0.00 |
| 2022 | 1294 | OSS - On Site Septic | $19.50 | $19.50 | $0.00 | $0.00 | $39.00 | $0.00 |
| 2022 | 1294 | WAT - Clean Water District | $11.50 | $11.50 | $0.00 | $0.00 | $23.00 | $0.00 |
| 2022 | 1294 | FP ADMIN - FP ADMIN | $0.50 | $0.00 | $0.00 | $0.00 | $0.50 | $0.00 |
| 2022 | 1294 | TOTAL: | $2665.68 | $2665.04 | $0.00 | $0.00 | $5330.72 | $0.00 |
|
| 2022 | 1294 | $2665.68 | $2665.04 | $0.00 | $0.00 | $5330.72 | $0.00 |
Values
| (+) Improvement Homesite Value: | + | $0 | |
| (+) Improvement Non-Homesite Value: | + | $639,397 | |
| (+) Land Homesite Value: | + | $0 | |
| (+) Land Non-Homesite Value: | + | $154,352 | |
| (+) Curr Use (HS): | + | $0 | $0 |
| (+) Curr Use (NHS): | + | $0 | $0 |
| | | -------------------------- | |
| (=) Market Value: | = | $793,749 | |
| (–) Productivity Loss: | – | $0 | |
| | | -------------------------- | |
| (=) Subtotal: | = | $793,749 | |
| (+) Senior Appraised Value: | + | $0 | |
| (+) Non-Senior Appraised Value: | + | $793,749 | |
| | | -------------------------- | |
| (=) Total Appraised Value: | = | $793,749 | |
| (–) Senior Exemption Loss: | – | $0 | |
| (–) Exemption Loss: | – | $0 | |
| | | -------------------------- | |
| (=) Taxable Value: | = | $793,749 | |
Taxing Jurisdiction
| Owner: | ERIC T PETERSON | | |
| % Ownership: | 100.0000000000% | | |
| Total Value: | N/A | | |
| Tax Area: | 0111 - 1-50F1E1H2L1 |
| CE | COUNTY CURRENT EXPENSE | N/A | N/A | N/A | N/A | | |
| CNTYDD | DEVELOPMENTAL DISABILITIES | N/A | N/A | N/A | N/A | | |
| CNTYVET | VETERANS RELIEF | N/A | N/A | N/A | N/A | | |
| MENTAL | MENTAL HEALTH | N/A | N/A | N/A | N/A | | |
| ROADS | COUNTY ROADS | N/A | N/A | N/A | N/A | | |
| ROADSCU | COUNTY ROADS TO CUR EXP | N/A | N/A | N/A | N/A | | |
| HOSP2CASH | HOSP DIST #2 GENERAL | N/A | N/A | N/A | N/A | | |
| SCH50BOND | SCHOOL DIST #50 BOND 2016 | N/A | N/A | N/A | N/A | | |
| SCH50CP | SCHOOL DIST #50 CAP PROJ | N/A | N/A | N/A | N/A | | |
| SCH50MO | SCHOOL DIST #50 EP & O | N/A | N/A | N/A | N/A | | |
| CONSERVE | CONSERVATION FUTURES | N/A | N/A | N/A | N/A | | |
| EMS1 | FIRE DIST #1 EMS | N/A | N/A | N/A | N/A | | |
| FD1 | FIRE DIST #1 GENERAL | N/A | N/A | N/A | N/A | | |
| LIB1 | LIBRARY DIST #1 GENERAL | N/A | N/A | N/A | N/A | | |
| PORTPT | PORT OF PT GENERAL | N/A | N/A | N/A | N/A | | |
| PORTPTIDD | PORT OF PT IDD 2019 | N/A | N/A | N/A | N/A | | |
| PUD1 | PUD #1 GENERAL | N/A | N/A | N/A | N/A | | |
| STATE | STATE SCHOOL PART 1 | N/A | N/A | N/A | N/A | | |
| STATE2 | STATE SCHOOL PART 2 | N/A | N/A | N/A | N/A | | |
| | Total Tax Rate: | N/A | | | | | |
| | | | | Taxes w/Current Exemptions: | N/A | | |
| | | | | Taxes w/o Exemptions: | N/A | | |
Improvement / Building
| Improvement #1: | Residential Bldg | State Code: | 11 | 2426.0 sqft | Value: | $639,397 |
| Bathrooms (#): | 3 (FULL) | Bedrooms (#): | 3 | | Exterior Wall: | SI/ST | Fireplace: | SIN 1-GOOD | | Floor Construction: | FRAME | Foundation: | CONPR | | Heating/Cooling: | HPUMP | Roof Cover: | COMP |
|
| | Type | Description | Class CD | Sub Class CD | Year Built | Area |
| | MA | Main Area | 5- | 2S | 2006 | 1125.0 |
| | MA2 | Second Floor Main Area | 5- | 2S | 2006 | 1301.0 |
| | HWPOR | House Wood Porch | 5 | 2S | 2006 | 776.0 |
| | GATT | House Attached Garage | 5 | 2S | 2006 | 484.0 |
Sketch
Property Image
Land
| 1 | 5370-1385S | | 1.0000 | 43560.00 | 0.00 | 0.00 | 1.00 | $110,000 | $0 |
| 2 | 1575A | | 3.8400 | 167270.40 | 0.00 | 0.00 | 0.00 | $44,352 | $0 |
Roll Value History
| 2025 | N/A | N/A | N/A | N/A | N/A |
| 2024 | $611,597 | $147,336 | $0 | $758,933 | $758,933 |
| 2023 | $579,784 | $133,400 | $0 | $713,184 | $713,184 |
| 2022 | $579,784 | $125,520 | $0 | $705,304 | $705,304 |
| 2021 | $439,230 | $112,486 | $0 | $551,716 | $551,716 |
Deed and Sales History
| 1 | 02/09/2017 | QCD | Quit Claim Deed | | | | | $0.00 | 127129 | |
| 2 | 02/09/2017 | SWD | Statutory Warranty Deed | MICHAEL J ANDERSON | ERIC T PETERSON | | | $478,000.00 | 127128 | |
| 3 | 07/26/2005 | SWD | Statutory Warranty Deed | MERRITT, JAN A | ANDERSON, MICHAEL/PRESTON,ANNE | 0 | 0 | $85,000.00 | 104392 | 0 |
| 4 | 07/07/1995 | SWD | Statutory Warranty Deed | ROLSTAD, D/E/W/G/P | MERRITT, JAN | 0 | 0 | $0.00 | 78122 | 0 |
| 5 | 11/03/1994 | MH | Mobile Home | BUHL, BONNIE | TAYLOR, VALERIE | 0 | 0 | $1,000.00 | 77477 | 0 |
Payout Agreement
| No payout information available.. |