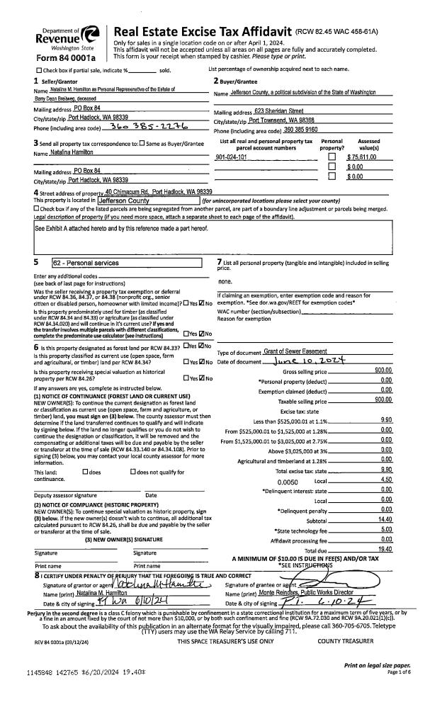
Property
Account |
| Property ID: | 11360 | Abbreviated Legal Description: | DEER RIDGE LOT 2(INC TAX RR-13) SUBJ/EASE |
| Parcel # / Geo ID: | 001295011 | Agent Code: | |
| Type: | Real | | |
| Tax Area: | 0111 - 1-50F1E1H2L1 | Land Use Code | 18 |
| Open Space: | N | DFL | N |
| Historic Property: | N | Remodel Property: | N |
| Multi-Family Redevelopment: | N | | |
| Township: | 30N | Section: | 29 |
| Range: | 1W |
Location |
| Address: | 41 BLUE DOG RD PORT TOWNSEND, WA 98368 | Mapsco: | 141/002 |
| Neighborhood: | S29 T30 R1W DEER RIDGE, DOE RUN, SNAGSTEAD WAY | Map ID: | |
| Neighborhood CD: | 5370 |
Owner |
| Name: | JAKE SOULE | Owner ID: | 95410 |
| Mailing Address: | KAREN ANDERSON 820 LAKE ST PORT TOWNSEND, WA 98368-2245 | % Ownership: | 100.0000000000% |
| | | Exemptions: | |
Pay Tax Due
There is currently No Amount Due on this property.
Taxes and Assessment Details
Property Tax Information as of
10/23/2025
Click on "Statement Details" to expand or collapse a tax statement.
* Please enter a valid date ** Please enter a valid date *
Statement Details |
| 2025 | 1314 | STATE - STATE LEVY (SCHOOL) | $244.47 | $244.46 | $0.00 | $0.00 | $488.93 | $0.00 |
| 2025 | 1314 | COUNTY - COUNTY LEVIES (CE, DD, VET, MH) | $96.15 | $96.12 | $0.00 | $0.00 | $192.27 | $0.00 |
| 2025 | 1314 | CONSERVE - CONSERVATION FUTURES | $2.89 | $2.88 | $0.00 | $0.00 | $5.77 | $0.00 |
| 2025 | 1314 | COROADS - COUNTY ROADS (ROADS, DIV TO CE) | $77.02 | $77.01 | $0.00 | $0.00 | $154.03 | $0.00 |
| 2025 | 1314 | PORTPT - PORT DISTRICT | $39.23 | $39.23 | $0.00 | $0.00 | $78.46 | $0.00 |
| 2025 | 1314 | PUD1 - PUD #1 | $6.29 | $6.29 | $0.00 | $0.00 | $12.58 | $0.00 |
| 2025 | 1314 | LIB1 - LIBRARY DIST #1 | $29.80 | $29.80 | $0.00 | $0.00 | $59.60 | $0.00 |
| 2025 | 1314 | HD2 - HOSP DIST #2 | $5.61 | $5.61 | $0.00 | $0.00 | $11.22 | $0.00 |
| 2025 | 1314 | SD50 - SCHOOL DIST #50 | $178.67 | $178.65 | $0.00 | $0.00 | $357.32 | $0.00 |
| 2025 | 1314 | FD1 - FIRE DISTRICT #1 | $126.86 | $126.86 | $0.00 | $0.00 | $253.72 | $0.00 |
| 2025 | 1314 | EMS1 - FIRE DIST #1 EMS | $48.80 | $48.79 | $0.00 | $0.00 | $97.59 | $0.00 |
| 2025 | 1314 | FP - DNR Forest Fire Protection Assmt | $8.50 | $8.50 | $0.00 | $0.00 | $17.00 | $0.00 |
| 2025 | 1314 | FPLCA - DNR Landowner Contingency Assmt | $3.00 | $3.00 | $0.00 | $0.00 | $6.00 | $0.00 |
| 2025 | 1314 | JCCD - JC Conservation District | $2.80 | $2.80 | $0.00 | $0.00 | $5.60 | $0.00 |
| 2025 | 1314 | NWA - Noxious Weed Assessment | $2.90 | $2.90 | $0.00 | $0.00 | $5.80 | $0.00 |
| 2025 | 1314 | OSS - On Site Septic | $21.50 | $21.50 | $0.00 | $0.00 | $43.00 | $0.00 |
| 2025 | 1314 | WAT - Clean Water District | $13.00 | $13.00 | $0.00 | $0.00 | $26.00 | $0.00 |
| 2025 | 1314 | FP ADMIN - FP ADMIN | $0.50 | $0.00 | $0.00 | $0.00 | $0.50 | $0.00 |
| 2025 | 1314 | TOTAL: | $907.99 | $907.40 | $0.00 | $0.00 | $1815.39 | $0.00 |
|
| 2025 | 1314 | $907.99 | $907.40 | $0.00 | $0.00 | $1815.39 | $0.00 |
Statement Details |
| 2024 | 1316 | STATE - STATE LEVY (SCHOOL) | $205.02 | $205.01 | $0.00 | $0.00 | $410.03 | $0.00 |
| 2024 | 1316 | COUNTY - COUNTY LEVIES (CE, DD, VET, MH) | $87.74 | $87.71 | $0.00 | $0.00 | $175.45 | $0.00 |
| 2024 | 1316 | CONSERVE - CONSERVATION FUTURES | $2.63 | $2.63 | $0.00 | $0.00 | $5.26 | $0.00 |
| 2024 | 1316 | COROADS - COUNTY ROADS (ROADS, DIV TO CE) | $70.60 | $70.59 | $0.00 | $0.00 | $141.19 | $0.00 |
| 2024 | 1316 | PORTPT - PORT DISTRICT | $36.24 | $36.23 | $0.00 | $0.00 | $72.47 | $0.00 |
| 2024 | 1316 | PUD1 - PUD #1 | $5.76 | $5.76 | $0.00 | $0.00 | $11.52 | $0.00 |
| 2024 | 1316 | LIB1 - LIBRARY DIST #1 | $27.31 | $27.31 | $0.00 | $0.00 | $54.62 | $0.00 |
| 2024 | 1316 | HD2 - HOSP DIST #2 | $5.12 | $5.12 | $0.00 | $0.00 | $10.24 | $0.00 |
| 2024 | 1316 | SD50 - SCHOOL DIST #50 | $165.87 | $165.86 | $0.00 | $0.00 | $331.73 | $0.00 |
| 2024 | 1316 | FD1 - FIRE DISTRICT #1 | $116.00 | $115.99 | $0.00 | $0.00 | $231.99 | $0.00 |
| 2024 | 1316 | EMS1 - FIRE DIST #1 EMS | $44.31 | $44.30 | $0.00 | $0.00 | $88.61 | $0.00 |
| 2024 | 1316 | FP - DNR Forest Fire Protection Assmt | $8.50 | $8.50 | $0.00 | $0.00 | $17.00 | $0.00 |
| 2024 | 1316 | FPLCA - DNR Landowner Contingency Assmt | $3.00 | $3.00 | $0.00 | $0.00 | $6.00 | $0.00 |
| 2024 | 1316 | JCCD - JC Conservation District | $2.80 | $2.80 | $0.00 | $0.00 | $5.60 | $0.00 |
| 2024 | 1316 | NWA - Noxious Weed Assessment | $2.90 | $2.90 | $0.00 | $0.00 | $5.80 | $0.00 |
| 2024 | 1316 | OSS - On Site Septic | $21.00 | $21.00 | $0.00 | $0.00 | $42.00 | $0.00 |
| 2024 | 1316 | WAT - Clean Water District | $12.50 | $12.50 | $0.00 | $0.00 | $25.00 | $0.00 |
| 2024 | 1316 | FP ADMIN - FP ADMIN | $0.50 | $0.00 | $0.00 | $0.00 | $0.50 | $0.00 |
| 2024 | 1316 | TOTAL: | $817.80 | $817.21 | $0.00 | $0.00 | $1635.01 | $0.00 |
|
| 2024 | 1316 | $817.80 | $817.21 | $0.00 | $0.00 | $1635.01 | $0.00 |
Statement Details |
| 2023 | 1316 | STATE - STATE LEVY (SCHOOL) | $204.97 | $204.95 | $0.00 | $0.00 | $409.92 | $0.00 |
| 2023 | 1316 | COUNTY - COUNTY LEVIES (CE, DD, VET, MH) | $89.45 | $89.44 | $0.00 | $0.00 | $178.89 | $0.00 |
| 2023 | 1316 | CONSERVE - CONSERVATION FUTURES | $2.68 | $2.68 | $0.00 | $0.00 | $5.36 | $0.00 |
| 2023 | 1316 | COROADS - COUNTY ROADS (ROADS, DIV TO CE) | $72.37 | $72.36 | $0.00 | $0.00 | $144.73 | $0.00 |
| 2023 | 1316 | PORTPT - PORT DISTRICT | $37.69 | $37.67 | $0.00 | $0.00 | $75.36 | $0.00 |
| 2023 | 1316 | PUD1 - PUD #1 | $5.93 | $5.93 | $0.00 | $0.00 | $11.86 | $0.00 |
| 2023 | 1316 | LIB1 - LIBRARY DIST #1 | $28.00 | $27.99 | $0.00 | $0.00 | $55.99 | $0.00 |
| 2023 | 1316 | HD2 - HOSP DIST #2 | $5.23 | $5.21 | $0.00 | $0.00 | $10.44 | $0.00 |
| 2023 | 1316 | SD50 - SCHOOL DIST #50 | $162.65 | $162.64 | $0.00 | $0.00 | $325.29 | $0.00 |
| 2023 | 1316 | FD1 - FIRE DISTRICT #1 | $73.68 | $73.68 | $0.00 | $0.00 | $147.36 | $0.00 |
| 2023 | 1316 | EMS1 - FIRE DIST #1 EMS | $31.34 | $31.34 | $0.00 | $0.00 | $62.68 | $0.00 |
| 2023 | 1316 | FP - DNR Forest Fire Protection Assmt | $8.50 | $8.50 | $0.00 | $0.00 | $17.00 | $0.00 |
| 2023 | 1316 | FPLCA - DNR Landowner Contingency Assmt | $3.00 | $3.00 | $0.00 | $0.00 | $6.00 | $0.00 |
| 2023 | 1316 | JCCD - JC Conservation District | $2.80 | $2.80 | $0.00 | $0.00 | $5.60 | $0.00 |
| 2023 | 1316 | NWA - Noxious Weed Assessment | $2.90 | $2.90 | $0.00 | $0.00 | $5.80 | $0.00 |
| 2023 | 1316 | OSS - On Site Septic | $20.50 | $20.50 | $0.00 | $0.00 | $41.00 | $0.00 |
| 2023 | 1316 | WAT - Clean Water District | $12.00 | $12.00 | $0.00 | $0.00 | $24.00 | $0.00 |
| 2023 | 1316 | FP ADMIN - FP ADMIN | $0.50 | $0.00 | $0.00 | $0.00 | $0.50 | $0.00 |
| 2023 | 1316 | TOTAL: | $764.19 | $763.59 | $0.00 | $0.00 | $1527.78 | $0.00 |
|
| 2023 | 1316 | $764.19 | $763.59 | $0.00 | $0.00 | $1527.78 | $0.00 |
Statement Details |
| 2022 | 1318 | STATE - STATE LEVY (SCHOOL) | $206.41 | $206.39 | $0.00 | $0.00 | $412.80 | $0.00 |
| 2022 | 1318 | COUNTY - COUNTY LEVIES (CE, DD, VET, MH) | $91.96 | $91.96 | $0.00 | $0.00 | $183.92 | $0.00 |
| 2022 | 1318 | CONSERVE - CONSERVATION FUTURES | $2.76 | $2.76 | $0.00 | $0.00 | $5.52 | $0.00 |
| 2022 | 1318 | COROADS - COUNTY ROADS (ROADS, DIV TO CE) | $74.75 | $74.74 | $0.00 | $0.00 | $149.49 | $0.00 |
| 2022 | 1318 | PORTPT - PORT DISTRICT | $39.38 | $39.36 | $0.00 | $0.00 | $78.74 | $0.00 |
| 2022 | 1318 | PUD1 - PUD #1 | $6.15 | $6.15 | $0.00 | $0.00 | $12.30 | $0.00 |
| 2022 | 1318 | LIB1 - LIBRARY DIST #1 | $28.92 | $28.92 | $0.00 | $0.00 | $57.84 | $0.00 |
| 2022 | 1318 | HD2 - HOSP DIST #2 | $5.37 | $5.37 | $0.00 | $0.00 | $10.74 | $0.00 |
| 2022 | 1318 | SD50 - SCHOOL DIST #50 | $152.95 | $152.95 | $0.00 | $0.00 | $305.90 | $0.00 |
| 2022 | 1318 | FD1 - FIRE DISTRICT #1 | $75.45 | $75.44 | $0.00 | $0.00 | $150.89 | $0.00 |
| 2022 | 1318 | EMS1 - FIRE DIST #1 EMS | $32.09 | $32.09 | $0.00 | $0.00 | $64.18 | $0.00 |
| 2022 | 1318 | FP - DNR Forest Fire Protection Assmt | $8.50 | $8.50 | $0.00 | $0.00 | $17.00 | $0.00 |
| 2022 | 1318 | FPLCA - DNR Landowner Contingency Assmt | $3.00 | $3.00 | $0.00 | $0.00 | $6.00 | $0.00 |
| 2022 | 1318 | JCCD - JC Conservation District | $2.80 | $2.80 | $0.00 | $0.00 | $5.60 | $0.00 |
| 2022 | 1318 | NWA - Noxious Weed Assessment | $2.90 | $2.90 | $0.00 | $0.00 | $5.80 | $0.00 |
| 2022 | 1318 | OSS - On Site Septic | $19.50 | $19.50 | $0.00 | $0.00 | $39.00 | $0.00 |
| 2022 | 1318 | WAT - Clean Water District | $11.50 | $11.50 | $0.00 | $0.00 | $23.00 | $0.00 |
| 2022 | 1318 | FP ADMIN - FP ADMIN | $0.50 | $0.00 | $0.00 | $0.00 | $0.50 | $0.00 |
| 2022 | 1318 | TOTAL: | $764.89 | $764.33 | $0.00 | $0.00 | $1529.22 | $0.00 |
|
| 2022 | 1318 | $764.89 | $764.33 | $0.00 | $0.00 | $1529.22 | $0.00 |
Values
| (+) Improvement Homesite Value: | + | $0 | |
| (+) Improvement Non-Homesite Value: | + | $55,778 | |
| (+) Land Homesite Value: | + | $0 | |
| (+) Land Non-Homesite Value: | + | $157,702 | |
| (+) Curr Use (HS): | + | $0 | $0 |
| (+) Curr Use (NHS): | + | $0 | $0 |
| | | -------------------------- | |
| (=) Market Value: | = | $213,480 | |
| (–) Productivity Loss: | – | $0 | |
| | | -------------------------- | |
| (=) Subtotal: | = | $213,480 | |
| (+) Senior Appraised Value: | + | $0 | |
| (+) Non-Senior Appraised Value: | + | $213,480 | |
| | | -------------------------- | |
| (=) Total Appraised Value: | = | $213,480 | |
| (–) Senior Exemption Loss: | – | $0 | |
| (–) Exemption Loss: | – | $0 | |
| | | -------------------------- | |
| (=) Taxable Value: | = | $213,480 | |
Taxing Jurisdiction
| Owner: | JAKE SOULE | | |
| % Ownership: | 100.0000000000% | | |
| Total Value: | N/A | | |
| Tax Area: | 0111 - 1-50F1E1H2L1 |
| CE | COUNTY CURRENT EXPENSE | N/A | N/A | N/A | N/A | | |
| CNTYDD | DEVELOPMENTAL DISABILITIES | N/A | N/A | N/A | N/A | | |
| CNTYVET | VETERANS RELIEF | N/A | N/A | N/A | N/A | | |
| MENTAL | MENTAL HEALTH | N/A | N/A | N/A | N/A | | |
| ROADS | COUNTY ROADS | N/A | N/A | N/A | N/A | | |
| ROADSCU | COUNTY ROADS TO CUR EXP | N/A | N/A | N/A | N/A | | |
| HOSP2CASH | HOSP DIST #2 GENERAL | N/A | N/A | N/A | N/A | | |
| SCH50BOND | SCHOOL DIST #50 BOND 2016 | N/A | N/A | N/A | N/A | | |
| SCH50CP | SCHOOL DIST #50 CAP PROJ | N/A | N/A | N/A | N/A | | |
| SCH50MO | SCHOOL DIST #50 EP & O | N/A | N/A | N/A | N/A | | |
| CONSERVE | CONSERVATION FUTURES | N/A | N/A | N/A | N/A | | |
| EMS1 | FIRE DIST #1 EMS | N/A | N/A | N/A | N/A | | |
| FD1 | FIRE DIST #1 GENERAL | N/A | N/A | N/A | N/A | | |
| LIB1 | LIBRARY DIST #1 GENERAL | N/A | N/A | N/A | N/A | | |
| PORTPT | PORT OF PT GENERAL | N/A | N/A | N/A | N/A | | |
| PORTPTIDD | PORT OF PT IDD 2019 | N/A | N/A | N/A | N/A | | |
| PUD1 | PUD #1 GENERAL | N/A | N/A | N/A | N/A | | |
| STATE | STATE SCHOOL PART 1 | N/A | N/A | N/A | N/A | | |
| STATE2 | STATE SCHOOL PART 2 | N/A | N/A | N/A | N/A | | |
| | Total Tax Rate: | N/A | | | | | |
| | | | | Taxes w/Current Exemptions: | N/A | | |
| | | | | Taxes w/o Exemptions: | N/A | | |
Improvement / Building
| Improvement #1: | Residential Bldg | State Code: | 18 | 0.0 sqft | Value: | $55,778 |
| | Type | Description | Class CD | Sub Class CD | Year Built | Area |
| | GDET | Detached Garage | 2 | * | 2017 | 1008.0 |
| | ADDN-D | Addition (Table Depreciated) | 1 | * | 2017 | 504.0 |
Sketch
Property Image
Land
| 1 | 5370-1355S | | 1.0000 | 43560.00 | 0.00 | 0.00 | 1.00 | $110,000 | $0 |
| 2 | 1575A | | 4.1300 | 179902.80 | 0.00 | 0.00 | 0.00 | $47,702 | $0 |
Roll Value History
| 2025 | N/A | N/A | N/A | N/A | N/A |
| 2024 | $53,353 | $150,533 | $0 | $203,886 | $203,886 |
| 2023 | $35,926 | $141,300 | $0 | $177,226 | $177,226 |
| 2022 | $35,926 | $138,203 | $0 | $174,129 | $174,129 |
| 2021 | $27,216 | $123,759 | $0 | $150,975 | $150,975 |
Deed and Sales History
| 1 | 05/10/2016 | SWD | Statutory Warranty Deed | LESLIE SCHWARTZ | JAKE SOULE | | | $85,000.00 | 125404 | |
| 2 | 07/14/1990 | QCD | Quit Claim Deed | BOYNTON, DEBBIE | SCHWARTZ, RICHARD J | 0 | 0 | $0.00 | 74252 | 0 |
Payout Agreement
| No payout information available.. |