Property
Account |
| Property ID: | 11375 | Abbreviated Legal Description: | S30 T30N R1W TAX 23 |
| Parcel # / Geo ID: | 001301028 | Agent Code: | |
| Type: | Real | | |
| Tax Area: | 0111 - 1-50F1E1H2L1 | Land Use Code | 11 |
| Open Space: | N | DFL | N |
| Historic Property: | N | Remodel Property: | N |
| Multi-Family Redevelopment: | N | | |
| Township: | 30N | Section: | 30 |
| Range: | 1W |
Location |
| Address: | 6841 CAPE GEORGE RD PORT TOWNSEND, WA 98368 | Mapsco: | 100/027 |
| Neighborhood: | S19,30&31T30NR1W,S25T30R2W,ARBUTUS,BAYVIEW CHEVY,DISCO RIDGE | Map ID: | |
| Neighborhood CD: | 5360 |
Owner |
| Name: | MICHAEL & CARRIE JACKSON | Owner ID: | 107354 |
| Mailing Address: | 6841 CAPE GEORGE RD PORT TOWNSEND, WA 98368 | % Ownership: | 100.0000000000% |
| | | Exemptions: | |
Pay Tax Due
Select the appropriate checkbox next to the year to be paid. Multiple years may be selected.
*Convenience Fee not included
Taxes and Assessment Details
Property Tax Information as of
10/23/2025
Click on "Statement Details" to expand or collapse a tax statement.
* Please enter a valid date ** Please enter a valid date *
Statement Details |
| 2025 | 1327 | STATE - STATE LEVY (SCHOOL) | $1106.96 | $1106.95 | $0.00 | $0.00 | $1106.96 | $1106.95 |
| 2025 | 1327 | COUNTY - COUNTY LEVIES (CE, DD, VET, MH) | $435.33 | $435.29 | $0.00 | $0.00 | $435.33 | $435.29 |
| 2025 | 1327 | CONSERVE - CONSERVATION FUTURES | $13.06 | $13.05 | $0.00 | $0.00 | $13.06 | $13.05 |
| 2025 | 1327 | COROADS - COUNTY ROADS (ROADS, DIV TO CE) | $348.75 | $348.75 | $0.00 | $0.00 | $348.75 | $348.75 |
| 2025 | 1327 | PORTPT - PORT DISTRICT | $177.63 | $177.63 | $0.00 | $0.00 | $177.63 | $177.63 |
| 2025 | 1327 | PUD1 - PUD #1 | $28.49 | $28.48 | $0.00 | $0.00 | $28.49 | $28.48 |
| 2025 | 1327 | LIB1 - LIBRARY DIST #1 | $134.93 | $134.92 | $0.00 | $0.00 | $134.93 | $134.92 |
| 2025 | 1327 | HD2 - HOSP DIST #2 | $25.40 | $25.39 | $0.00 | $0.00 | $25.40 | $25.39 |
| 2025 | 1327 | SD50 - SCHOOL DIST #50 | $809.01 | $809.00 | $0.00 | $0.00 | $809.01 | $809.00 |
| 2025 | 1327 | FD1 - FIRE DISTRICT #1 | $574.43 | $574.43 | $0.00 | $0.00 | $574.43 | $574.43 |
| 2025 | 1327 | EMS1 - FIRE DIST #1 EMS | $220.94 | $220.94 | $0.00 | $0.00 | $220.94 | $220.94 |
| 2025 | 1327 | FP - DNR Forest Fire Protection Assmt | $8.50 | $8.50 | $0.00 | $0.00 | $8.50 | $8.50 |
| 2025 | 1327 | FPLCA - DNR Landowner Contingency Assmt | $3.00 | $3.00 | $0.00 | $0.00 | $3.00 | $3.00 |
| 2025 | 1327 | JCCD - JC Conservation District | $2.75 | $2.75 | $0.00 | $0.00 | $2.75 | $2.75 |
| 2025 | 1327 | NWA - Noxious Weed Assessment | $2.75 | $2.75 | $0.00 | $0.00 | $2.75 | $2.75 |
| 2025 | 1327 | OSS - On Site Septic | $21.50 | $21.50 | $0.00 | $0.00 | $21.50 | $21.50 |
| 2025 | 1327 | WAT - Clean Water District | $13.00 | $13.00 | $0.00 | $0.00 | $13.00 | $13.00 |
| 2025 | 1327 | FP ADMIN - FP ADMIN | $0.50 | $0.00 | $0.00 | $0.00 | $0.50 | $0.00 |
| 2025 | 1327 | TOTAL: | $3926.93 | $3926.33 | $0.00 | $0.00 | $3926.93 | $3926.33 |
|
| 2025 | 1327 | $3926.93 | $3926.33 | $0.00 | $0.00 | $3926.93 | $3926.33 |
Statement Details |
| 2024 | 1329 | STATE - STATE LEVY (SCHOOL) | $858.54 | $858.54 | $0.00 | $0.00 | $1717.08 | $0.00 |
| 2024 | 1329 | COUNTY - COUNTY LEVIES (CE, DD, VET, MH) | $367.39 | $367.37 | $0.00 | $0.00 | $734.76 | $0.00 |
| 2024 | 1329 | CONSERVE - CONSERVATION FUTURES | $11.02 | $11.01 | $0.00 | $0.00 | $22.03 | $0.00 |
| 2024 | 1329 | COROADS - COUNTY ROADS (ROADS, DIV TO CE) | $295.62 | $295.62 | $0.00 | $0.00 | $591.24 | $0.00 |
| 2024 | 1329 | PORTPT - PORT DISTRICT | $151.74 | $151.74 | $0.00 | $0.00 | $303.48 | $0.00 |
| 2024 | 1329 | PUD1 - PUD #1 | $24.13 | $24.13 | $0.00 | $0.00 | $48.26 | $0.00 |
| 2024 | 1329 | LIB1 - LIBRARY DIST #1 | $114.37 | $114.37 | $0.00 | $0.00 | $228.74 | $0.00 |
| 2024 | 1329 | HD2 - HOSP DIST #2 | $21.44 | $21.43 | $0.00 | $0.00 | $42.87 | $0.00 |
| 2024 | 1329 | SD50 - SCHOOL DIST #50 | $694.61 | $694.59 | $0.00 | $0.00 | $1389.20 | $0.00 |
| 2024 | 1329 | FD1 - FIRE DISTRICT #1 | $485.76 | $485.76 | $0.00 | $0.00 | $971.52 | $0.00 |
| 2024 | 1329 | EMS1 - FIRE DIST #1 EMS | $185.55 | $185.54 | $0.00 | $0.00 | $371.09 | $0.00 |
| 2024 | 1329 | FP - DNR Forest Fire Protection Assmt | $8.50 | $8.50 | $0.00 | $0.00 | $17.00 | $0.00 |
| 2024 | 1329 | FPLCA - DNR Landowner Contingency Assmt | $3.00 | $3.00 | $0.00 | $0.00 | $6.00 | $0.00 |
| 2024 | 1329 | JCCD - JC Conservation District | $2.75 | $2.75 | $0.00 | $0.00 | $5.50 | $0.00 |
| 2024 | 1329 | NWA - Noxious Weed Assessment | $2.75 | $2.75 | $0.00 | $0.00 | $5.50 | $0.00 |
| 2024 | 1329 | OSS - On Site Septic | $21.00 | $21.00 | $0.00 | $0.00 | $42.00 | $0.00 |
| 2024 | 1329 | WAT - Clean Water District | $12.50 | $12.50 | $0.00 | $0.00 | $25.00 | $0.00 |
| 2024 | 1329 | FP ADMIN - FP ADMIN | $0.50 | $0.00 | $0.00 | $0.00 | $0.50 | $0.00 |
| 2024 | 1329 | TOTAL: | $3261.17 | $3260.60 | $0.00 | $0.00 | $6521.77 | $0.00 |
|
| 2024 | 1329 | $3261.17 | $3260.60 | $0.00 | $0.00 | $6521.77 | $0.00 |
Statement Details |
| 2023 | 1329 | STATE - STATE LEVY (SCHOOL) | $789.33 | $789.31 | $0.00 | $0.00 | $1578.64 | $0.00 |
| 2023 | 1329 | COUNTY - COUNTY LEVIES (CE, DD, VET, MH) | $344.45 | $344.42 | $0.00 | $0.00 | $688.87 | $0.00 |
| 2023 | 1329 | CONSERVE - CONSERVATION FUTURES | $10.33 | $10.33 | $0.00 | $0.00 | $20.66 | $0.00 |
| 2023 | 1329 | COROADS - COUNTY ROADS (ROADS, DIV TO CE) | $278.68 | $278.67 | $0.00 | $0.00 | $557.35 | $0.00 |
| 2023 | 1329 | PORTPT - PORT DISTRICT | $145.10 | $145.09 | $0.00 | $0.00 | $290.19 | $0.00 |
| 2023 | 1329 | PUD1 - PUD #1 | $22.83 | $22.83 | $0.00 | $0.00 | $45.66 | $0.00 |
| 2023 | 1329 | LIB1 - LIBRARY DIST #1 | $107.82 | $107.81 | $0.00 | $0.00 | $215.63 | $0.00 |
| 2023 | 1329 | HD2 - HOSP DIST #2 | $20.11 | $20.09 | $0.00 | $0.00 | $40.20 | $0.00 |
| 2023 | 1329 | SD50 - SCHOOL DIST #50 | $626.34 | $626.34 | $0.00 | $0.00 | $1252.68 | $0.00 |
| 2023 | 1329 | FD1 - FIRE DISTRICT #1 | $283.75 | $283.74 | $0.00 | $0.00 | $567.49 | $0.00 |
| 2023 | 1329 | EMS1 - FIRE DIST #1 EMS | $120.70 | $120.70 | $0.00 | $0.00 | $241.40 | $0.00 |
| 2023 | 1329 | FP - DNR Forest Fire Protection Assmt | $8.50 | $8.50 | $0.00 | $0.00 | $17.00 | $0.00 |
| 2023 | 1329 | FPLCA - DNR Landowner Contingency Assmt | $3.00 | $3.00 | $0.00 | $0.00 | $6.00 | $0.00 |
| 2023 | 1329 | JCCD - JC Conservation District | $2.75 | $2.75 | $0.00 | $0.00 | $5.50 | $0.00 |
| 2023 | 1329 | NWA - Noxious Weed Assessment | $2.75 | $2.75 | $0.00 | $0.00 | $5.50 | $0.00 |
| 2023 | 1329 | OSS - On Site Septic | $20.50 | $20.50 | $0.00 | $0.00 | $41.00 | $0.00 |
| 2023 | 1329 | WAT - Clean Water District | $12.00 | $12.00 | $0.00 | $0.00 | $24.00 | $0.00 |
| 2023 | 1329 | FP ADMIN - FP ADMIN | $0.50 | $0.00 | $0.00 | $0.00 | $0.50 | $0.00 |
| 2023 | 1329 | TOTAL: | $2799.44 | $2798.83 | $0.00 | $0.00 | $5598.27 | $0.00 |
|
| 2023 | 1329 | $2799.44 | $2798.83 | $0.00 | $0.00 | $5598.27 | $0.00 |
Statement Details |
| 2022 | 1331 | STATE - STATE LEVY (SCHOOL) | $608.10 | $608.10 | $0.00 | $0.00 | $1216.20 | $0.00 |
| 2022 | 1331 | COUNTY - COUNTY LEVIES (CE, DD, VET, MH) | $270.95 | $270.92 | $0.00 | $0.00 | $541.87 | $0.00 |
| 2022 | 1331 | CONSERVE - CONSERVATION FUTURES | $8.13 | $8.12 | $0.00 | $0.00 | $16.25 | $0.00 |
| 2022 | 1331 | COROADS - COUNTY ROADS (ROADS, DIV TO CE) | $220.22 | $220.20 | $0.00 | $0.00 | $440.42 | $0.00 |
| 2022 | 1331 | PORTPT - PORT DISTRICT | $116.00 | $115.98 | $0.00 | $0.00 | $231.98 | $0.00 |
| 2022 | 1331 | PUD1 - PUD #1 | $18.12 | $18.12 | $0.00 | $0.00 | $36.24 | $0.00 |
| 2022 | 1331 | LIB1 - LIBRARY DIST #1 | $85.20 | $85.19 | $0.00 | $0.00 | $170.39 | $0.00 |
| 2022 | 1331 | HD2 - HOSP DIST #2 | $15.82 | $15.81 | $0.00 | $0.00 | $31.63 | $0.00 |
| 2022 | 1331 | SD50 - SCHOOL DIST #50 | $450.64 | $450.62 | $0.00 | $0.00 | $901.26 | $0.00 |
| 2022 | 1331 | FD1 - FIRE DISTRICT #1 | $222.27 | $222.27 | $0.00 | $0.00 | $444.54 | $0.00 |
| 2022 | 1331 | EMS1 - FIRE DIST #1 EMS | $94.55 | $94.54 | $0.00 | $0.00 | $189.09 | $0.00 |
| 2022 | 1331 | FP - DNR Forest Fire Protection Assmt | $8.50 | $8.50 | $0.00 | $0.00 | $17.00 | $0.00 |
| 2022 | 1331 | FPLCA - DNR Landowner Contingency Assmt | $3.00 | $3.00 | $0.00 | $0.00 | $6.00 | $0.00 |
| 2022 | 1331 | JCCD - JC Conservation District | $2.75 | $2.75 | $0.00 | $0.00 | $5.50 | $0.00 |
| 2022 | 1331 | NWA - Noxious Weed Assessment | $2.75 | $2.75 | $0.00 | $0.00 | $5.50 | $0.00 |
| 2022 | 1331 | OSS - On Site Septic | $19.50 | $19.50 | $0.00 | $0.00 | $39.00 | $0.00 |
| 2022 | 1331 | WAT - Clean Water District | $11.50 | $11.50 | $0.00 | $0.00 | $23.00 | $0.00 |
| 2022 | 1331 | FP ADMIN - FP ADMIN | $0.50 | $0.00 | $0.00 | $0.00 | $0.50 | $0.00 |
| 2022 | 1331 | TOTAL: | $2158.50 | $2157.87 | $0.00 | $0.00 | $4316.37 | $0.00 |
|
| 2022 | 1331 | $2158.50 | $2157.87 | $0.00 | $0.00 | $4316.37 | $0.00 |
Values
| (+) Improvement Homesite Value: | + | $0 | |
| (+) Improvement Non-Homesite Value: | + | $710,577 | |
| (+) Land Homesite Value: | + | $0 | |
| (+) Land Non-Homesite Value: | + | $212,647 | |
| (+) Curr Use (HS): | + | $0 | $0 |
| (+) Curr Use (NHS): | + | $0 | $0 |
| | | -------------------------- | |
| (=) Market Value: | = | $923,224 | |
| (–) Productivity Loss: | – | $0 | |
| | | -------------------------- | |
| (=) Subtotal: | = | $923,224 | |
| (+) Senior Appraised Value: | + | $0 | |
| (+) Non-Senior Appraised Value: | + | $923,224 | |
| | | -------------------------- | |
| (=) Total Appraised Value: | = | $923,224 | |
| (–) Senior Exemption Loss: | – | $0 | |
| (–) Exemption Loss: | – | $0 | |
| | | -------------------------- | |
| (=) Taxable Value: | = | $923,224 | |
Taxing Jurisdiction
| Owner: | MICHAEL & CARRIE JACKSON | | |
| % Ownership: | 100.0000000000% | | |
| Total Value: | N/A | | |
| Tax Area: | 0111 - 1-50F1E1H2L1 |
| CE | COUNTY CURRENT EXPENSE | N/A | N/A | N/A | N/A | | |
| CNTYDD | DEVELOPMENTAL DISABILITIES | N/A | N/A | N/A | N/A | | |
| CNTYVET | VETERANS RELIEF | N/A | N/A | N/A | N/A | | |
| MENTAL | MENTAL HEALTH | N/A | N/A | N/A | N/A | | |
| ROADS | COUNTY ROADS | N/A | N/A | N/A | N/A | | |
| ROADSCU | COUNTY ROADS TO CUR EXP | N/A | N/A | N/A | N/A | | |
| HOSP2CASH | HOSP DIST #2 GENERAL | N/A | N/A | N/A | N/A | | |
| SCH50BOND | SCHOOL DIST #50 BOND 2016 | N/A | N/A | N/A | N/A | | |
| SCH50CP | SCHOOL DIST #50 CAP PROJ | N/A | N/A | N/A | N/A | | |
| SCH50MO | SCHOOL DIST #50 EP & O | N/A | N/A | N/A | N/A | | |
| CONSERVE | CONSERVATION FUTURES | N/A | N/A | N/A | N/A | | |
| EMS1 | FIRE DIST #1 EMS | N/A | N/A | N/A | N/A | | |
| FD1 | FIRE DIST #1 GENERAL | N/A | N/A | N/A | N/A | | |
| LIB1 | LIBRARY DIST #1 GENERAL | N/A | N/A | N/A | N/A | | |
| PORTPT | PORT OF PT GENERAL | N/A | N/A | N/A | N/A | | |
| PORTPTIDD | PORT OF PT IDD 2019 | N/A | N/A | N/A | N/A | | |
| PUD1 | PUD #1 GENERAL | N/A | N/A | N/A | N/A | | |
| STATE | STATE SCHOOL PART 1 | N/A | N/A | N/A | N/A | | |
| STATE2 | STATE SCHOOL PART 2 | N/A | N/A | N/A | N/A | | |
| | Total Tax Rate: | N/A | | | | | |
| | | | | Taxes w/Current Exemptions: | N/A | | |
| | | | | Taxes w/o Exemptions: | N/A | | |
Improvement / Building
| Improvement #1: | Residential Bldg | State Code: | 11 | 2096.0 sqft | Value: | $710,577 |
| Bathrooms (#): | 2 (FULL) | Bathrooms (#): | 1 (HALF) | | Bedrooms (#): | 3 | Exterior Wall: | SI/ST | | Fireplace: | WD ST-GOOD | Floor Construction: | FRAME | | Foundation: | CONPR | Heating/Cooling: | HPUMP | | Roof Cover: | COMP |   |   |
|
| | Type | Description | Class CD | Sub Class CD | Year Built | Area |
| | MA | Main Area | 5 | 15SF | 1990 | 1484.0 |
| | MA2 | Second Floor Main Area | 5 | 15SF | 1990 | 612.0 |
| | HWPOR | House Wood Porch | 5 | 15SF | 1990 | 134.0 |
| | HDECK | House Deck | 5 | 15SF | 1990 | 402.0 |
| | GDET | Detached Garage | 5 | 15SF | 1990 | 720.0 |
| | SHED | Shed (Table Not Dep) | 5 | 15SF | 1990 | 200.0 |
| | HLOFT | House Loft | 5 | 15SF | 1990 | 352.0 |
| | GDET | Detached Garage | 4 | 15SF | 1990 | 1080.0 |
Sketch
Property Image
Land
| 1 | 5360-1355S | | 1.0000 | 43560.00 | 0.00 | 0.00 | 1.00 | $143,000 | $0 |
| 2 | 1573A | | 3.7800 | 164656.80 | 0.00 | 0.00 | 0.00 | $69,647 | $0 |
Roll Value History
| 2025 | N/A | N/A | N/A | N/A | N/A |
| 2024 | $710,577 | $212,647 | $0 | $923,224 | $923,224 |
| 2023 | $547,418 | $194,754 | $0 | $742,172 | $742,172 |
| 2022 | $497,653 | $172,920 | $0 | $670,573 | $670,573 |
| 2021 | $316,880 | $127,919 | $0 | $444,799 | $444,799 |
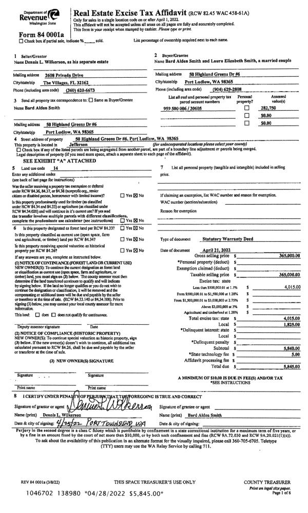
Deed and Sales History
| 1 | 07/15/2022 | SWD | Statutory Warranty Deed | BRUCE M LAURIE | MICHAEL & CARRIE JACKSON | | | $955,000.00 | 139502 | |
| 2 | 09/05/2008 | QCD | Quit Claim Deed | LAURIE, BRUCE M | LAURIE, BRUCE/LAMP, ZOE ANN | 0 | 0 | $0.00 | 111848 | 0 |
Payout Agreement
| No payout information available.. |