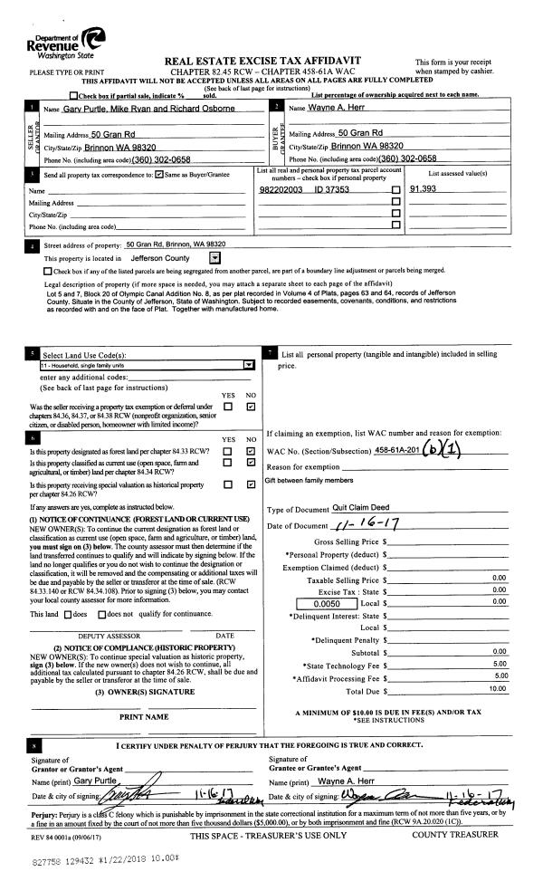
Property
Account |
| Property ID: | 11402 | Abbreviated Legal Description: | S30 & 19 T30N R1W TAX 15 |
| Parcel # / Geo ID: | 001302020 | Agent Code: | |
| Type: | Real | | |
| Tax Area: | 0111 - 1-50F1E1H2L1 | Land Use Code | 11 |
| Open Space: | N | DFL | N |
| Historic Property: | N | Remodel Property: | N |
| Multi-Family Redevelopment: | N | | |
| Township: | 30N | Section: | 30 |
| Range: | 1W |
Location |
| Address: | 204 BELLEVUE DR PORT TOWNSEND, WA 98368 | Mapsco: | 100/019 |
| Neighborhood: | S19,30&31T30NR1W,S25T30R2W,ARBUTUS,BAYVIEW CHEVY,DISCO RIDGE | Map ID: | |
| Neighborhood CD: | 5360 |
Owner |
| Name: | MARILYNNE A URQUHART LIVING TRUST | Owner ID: | 84267 |
| Mailing Address: | MARILYNNE URQUHART TRUSTEE 204 BELLEVUE DR PORT TOWNSEND, WA 98368-9206 | % Ownership: | 100.0000000000% |
| | | Exemptions: | |
Pay Tax Due
Select the appropriate checkbox next to the year to be paid. Multiple years may be selected.
*Convenience Fee not included
Taxes and Assessment Details
Property Tax Information as of
10/23/2025
Click on "Statement Details" to expand or collapse a tax statement.
* Please enter a valid date ** Please enter a valid date *
Statement Details |
| 2025 | 1353 | STATE - STATE LEVY (SCHOOL) | $1221.97 | $1221.95 | $0.00 | $0.00 | $1221.97 | $1221.95 |
| 2025 | 1353 | COUNTY - COUNTY LEVIES (CE, DD, VET, MH) | $480.54 | $480.52 | $0.00 | $0.00 | $480.54 | $480.52 |
| 2025 | 1353 | CONSERVE - CONSERVATION FUTURES | $14.41 | $14.41 | $0.00 | $0.00 | $14.41 | $14.41 |
| 2025 | 1353 | COROADS - COUNTY ROADS (ROADS, DIV TO CE) | $384.98 | $384.97 | $0.00 | $0.00 | $384.98 | $384.97 |
| 2025 | 1353 | PORTPT - PORT DISTRICT | $196.09 | $196.08 | $0.00 | $0.00 | $196.09 | $196.08 |
| 2025 | 1353 | PUD1 - PUD #1 | $31.45 | $31.44 | $0.00 | $0.00 | $31.45 | $31.44 |
| 2025 | 1353 | LIB1 - LIBRARY DIST #1 | $148.95 | $148.94 | $0.00 | $0.00 | $148.95 | $148.94 |
| 2025 | 1353 | HD2 - HOSP DIST #2 | $28.04 | $28.03 | $0.00 | $0.00 | $28.04 | $28.03 |
| 2025 | 1353 | SD50 - SCHOOL DIST #50 | $893.06 | $893.04 | $0.00 | $0.00 | $893.06 | $893.04 |
| 2025 | 1353 | FD1 - FIRE DISTRICT #1 | $634.11 | $634.11 | $0.00 | $0.00 | $634.11 | $634.11 |
| 2025 | 1353 | EMS1 - FIRE DIST #1 EMS | $243.90 | $243.89 | $0.00 | $0.00 | $243.90 | $243.89 |
| 2025 | 1353 | FP - DNR Forest Fire Protection Assmt | $8.50 | $8.50 | $0.00 | $0.00 | $8.50 | $8.50 |
| 2025 | 1353 | FPLCA - DNR Landowner Contingency Assmt | $3.00 | $3.00 | $0.00 | $0.00 | $3.00 | $3.00 |
| 2025 | 1353 | JCCD - JC Conservation District | $2.75 | $2.75 | $0.00 | $0.00 | $2.75 | $2.75 |
| 2025 | 1353 | NWA - Noxious Weed Assessment | $2.75 | $2.75 | $0.00 | $0.00 | $2.75 | $2.75 |
| 2025 | 1353 | OSS - On Site Septic | $21.50 | $21.50 | $0.00 | $0.00 | $21.50 | $21.50 |
| 2025 | 1353 | WAT - Clean Water District | $13.00 | $13.00 | $0.00 | $0.00 | $13.00 | $13.00 |
| 2025 | 1353 | FP ADMIN - FP ADMIN | $0.50 | $0.00 | $0.00 | $0.00 | $0.50 | $0.00 |
| 2025 | 1353 | TOTAL: | $4329.50 | $4328.88 | $0.00 | $0.00 | $4329.50 | $4328.88 |
|
| 2025 | 1353 | $4329.50 | $4328.88 | $0.00 | $0.00 | $4329.50 | $4328.88 |
Statement Details |
| 2024 | 1355 | STATE - STATE LEVY (SCHOOL) | $1115.80 | $1115.80 | $0.00 | $0.00 | $2231.60 | $0.00 |
| 2024 | 1355 | COUNTY - COUNTY LEVIES (CE, DD, VET, MH) | $477.47 | $477.45 | $0.00 | $0.00 | $954.92 | $0.00 |
| 2024 | 1355 | CONSERVE - CONSERVATION FUTURES | $14.32 | $14.31 | $0.00 | $0.00 | $28.63 | $0.00 |
| 2024 | 1355 | COROADS - COUNTY ROADS (ROADS, DIV TO CE) | $384.20 | $384.20 | $0.00 | $0.00 | $768.40 | $0.00 |
| 2024 | 1355 | PORTPT - PORT DISTRICT | $197.22 | $197.20 | $0.00 | $0.00 | $394.42 | $0.00 |
| 2024 | 1355 | PUD1 - PUD #1 | $31.36 | $31.36 | $0.00 | $0.00 | $62.72 | $0.00 |
| 2024 | 1355 | LIB1 - LIBRARY DIST #1 | $148.65 | $148.64 | $0.00 | $0.00 | $297.29 | $0.00 |
| 2024 | 1355 | HD2 - HOSP DIST #2 | $27.86 | $27.86 | $0.00 | $0.00 | $55.72 | $0.00 |
| 2024 | 1355 | SD50 - SCHOOL DIST #50 | $902.75 | $902.73 | $0.00 | $0.00 | $1805.48 | $0.00 |
| 2024 | 1355 | FD1 - FIRE DISTRICT #1 | $631.32 | $631.32 | $0.00 | $0.00 | $1262.64 | $0.00 |
| 2024 | 1355 | EMS1 - FIRE DIST #1 EMS | $241.14 | $241.14 | $0.00 | $0.00 | $482.28 | $0.00 |
| 2024 | 1355 | FP - DNR Forest Fire Protection Assmt | $8.50 | $8.50 | $0.00 | $0.00 | $17.00 | $0.00 |
| 2024 | 1355 | FPLCA - DNR Landowner Contingency Assmt | $3.00 | $3.00 | $0.00 | $0.00 | $6.00 | $0.00 |
| 2024 | 1355 | JCCD - JC Conservation District | $2.75 | $2.75 | $0.00 | $0.00 | $5.50 | $0.00 |
| 2024 | 1355 | NWA - Noxious Weed Assessment | $2.75 | $2.75 | $0.00 | $0.00 | $5.50 | $0.00 |
| 2024 | 1355 | OSS - On Site Septic | $21.00 | $21.00 | $0.00 | $0.00 | $42.00 | $0.00 |
| 2024 | 1355 | WAT - Clean Water District | $12.50 | $12.50 | $0.00 | $0.00 | $25.00 | $0.00 |
| 2024 | 1355 | FP ADMIN - FP ADMIN | $0.50 | $0.00 | $0.00 | $0.00 | $0.50 | $0.00 |
| 2024 | 1355 | TOTAL: | $4223.09 | $4222.51 | $0.00 | $0.00 | $8445.60 | $0.00 |
|
| 2024 | 1355 | $4223.09 | $4222.51 | $0.00 | $0.00 | $8445.60 | $0.00 |
Statement Details |
| 2023 | 1355 | STATE - STATE LEVY (SCHOOL) | $1030.39 | $1030.38 | $0.00 | $0.00 | $2060.77 | $0.00 |
| 2023 | 1355 | COUNTY - COUNTY LEVIES (CE, DD, VET, MH) | $449.63 | $449.62 | $0.00 | $0.00 | $899.25 | $0.00 |
| 2023 | 1355 | CONSERVE - CONSERVATION FUTURES | $13.49 | $13.48 | $0.00 | $0.00 | $26.97 | $0.00 |
| 2023 | 1355 | COROADS - COUNTY ROADS (ROADS, DIV TO CE) | $363.78 | $363.78 | $0.00 | $0.00 | $727.56 | $0.00 |
| 2023 | 1355 | PORTPT - PORT DISTRICT | $189.41 | $189.41 | $0.00 | $0.00 | $378.82 | $0.00 |
| 2023 | 1355 | PUD1 - PUD #1 | $29.81 | $29.80 | $0.00 | $0.00 | $59.61 | $0.00 |
| 2023 | 1355 | LIB1 - LIBRARY DIST #1 | $140.75 | $140.74 | $0.00 | $0.00 | $281.49 | $0.00 |
| 2023 | 1355 | HD2 - HOSP DIST #2 | $26.24 | $26.23 | $0.00 | $0.00 | $52.47 | $0.00 |
| 2023 | 1355 | SD50 - SCHOOL DIST #50 | $817.63 | $817.63 | $0.00 | $0.00 | $1635.26 | $0.00 |
| 2023 | 1355 | FD1 - FIRE DISTRICT #1 | $370.41 | $370.40 | $0.00 | $0.00 | $740.81 | $0.00 |
| 2023 | 1355 | EMS1 - FIRE DIST #1 EMS | $157.57 | $157.56 | $0.00 | $0.00 | $315.13 | $0.00 |
| 2023 | 1355 | FP - DNR Forest Fire Protection Assmt | $8.50 | $8.50 | $0.00 | $0.00 | $17.00 | $0.00 |
| 2023 | 1355 | FPLCA - DNR Landowner Contingency Assmt | $3.00 | $3.00 | $0.00 | $0.00 | $6.00 | $0.00 |
| 2023 | 1355 | JCCD - JC Conservation District | $2.75 | $2.75 | $0.00 | $0.00 | $5.50 | $0.00 |
| 2023 | 1355 | NWA - Noxious Weed Assessment | $2.75 | $2.75 | $0.00 | $0.00 | $5.50 | $0.00 |
| 2023 | 1355 | OSS - On Site Septic | $20.50 | $20.50 | $0.00 | $0.00 | $41.00 | $0.00 |
| 2023 | 1355 | WAT - Clean Water District | $12.00 | $12.00 | $0.00 | $0.00 | $24.00 | $0.00 |
| 2023 | 1355 | FP ADMIN - FP ADMIN | $0.50 | $0.00 | $0.00 | $0.00 | $0.50 | $0.00 |
| 2023 | 1355 | TOTAL: | $3639.11 | $3638.53 | $0.00 | $0.00 | $7277.64 | $0.00 |
|
| 2023 | 1355 | $3639.11 | $3638.53 | $0.00 | $0.00 | $7277.64 | $0.00 |
Statement Details |
| 2022 | 1357 | STATE - STATE LEVY (SCHOOL) | $901.69 | $901.68 | $0.00 | $0.00 | $1803.37 | $0.00 |
| 2022 | 1357 | COUNTY - COUNTY LEVIES (CE, DD, VET, MH) | $401.75 | $401.75 | $0.00 | $0.00 | $803.50 | $0.00 |
| 2022 | 1357 | CONSERVE - CONSERVATION FUTURES | $12.05 | $12.04 | $0.00 | $0.00 | $24.09 | $0.00 |
| 2022 | 1357 | COROADS - COUNTY ROADS (ROADS, DIV TO CE) | $326.53 | $326.52 | $0.00 | $0.00 | $653.05 | $0.00 |
| 2022 | 1357 | PORTPT - PORT DISTRICT | $171.99 | $171.98 | $0.00 | $0.00 | $343.97 | $0.00 |
| 2022 | 1357 | PUD1 - PUD #1 | $26.87 | $26.86 | $0.00 | $0.00 | $53.73 | $0.00 |
| 2022 | 1357 | LIB1 - LIBRARY DIST #1 | $126.33 | $126.33 | $0.00 | $0.00 | $252.66 | $0.00 |
| 2022 | 1357 | HD2 - HOSP DIST #2 | $23.45 | $23.45 | $0.00 | $0.00 | $46.90 | $0.00 |
| 2022 | 1357 | SD50 - SCHOOL DIST #50 | $668.20 | $668.19 | $0.00 | $0.00 | $1336.39 | $0.00 |
| 2022 | 1357 | FD1 - FIRE DISTRICT #1 | $329.58 | $329.58 | $0.00 | $0.00 | $659.16 | $0.00 |
| 2022 | 1357 | EMS1 - FIRE DIST #1 EMS | $140.19 | $140.19 | $0.00 | $0.00 | $280.38 | $0.00 |
| 2022 | 1357 | FP - DNR Forest Fire Protection Assmt | $8.50 | $8.50 | $0.00 | $0.00 | $17.00 | $0.00 |
| 2022 | 1357 | FPLCA - DNR Landowner Contingency Assmt | $3.00 | $3.00 | $0.00 | $0.00 | $6.00 | $0.00 |
| 2022 | 1357 | JCCD - JC Conservation District | $2.75 | $2.75 | $0.00 | $0.00 | $5.50 | $0.00 |
| 2022 | 1357 | NWA - Noxious Weed Assessment | $2.75 | $2.75 | $0.00 | $0.00 | $5.50 | $0.00 |
| 2022 | 1357 | OSS - On Site Septic | $19.50 | $19.50 | $0.00 | $0.00 | $39.00 | $0.00 |
| 2022 | 1357 | WAT - Clean Water District | $11.50 | $11.50 | $0.00 | $0.00 | $23.00 | $0.00 |
| 2022 | 1357 | FP ADMIN - FP ADMIN | $0.50 | $0.00 | $0.00 | $0.00 | $0.50 | $0.00 |
| 2022 | 1357 | TOTAL: | $3177.13 | $3176.57 | $0.00 | $0.00 | $6353.70 | $0.00 |
|
| 2022 | 1357 | $3177.13 | $3176.57 | $0.00 | $0.00 | $6353.70 | $0.00 |
Values
| (+) Improvement Homesite Value: | + | $0 | |
| (+) Improvement Non-Homesite Value: | + | $735,338 | |
| (+) Land Homesite Value: | + | $0 | |
| (+) Land Non-Homesite Value: | + | $283,800 | |
| (+) Curr Use (HS): | + | $0 | $0 |
| (+) Curr Use (NHS): | + | $0 | $0 |
| | | -------------------------- | |
| (=) Market Value: | = | $1,019,138 | |
| (–) Productivity Loss: | – | $0 | |
| | | -------------------------- | |
| (=) Subtotal: | = | $1,019,138 | |
| (+) Senior Appraised Value: | + | $0 | |
| (+) Non-Senior Appraised Value: | + | $1,019,138 | |
| | | -------------------------- | |
| (=) Total Appraised Value: | = | $1,019,138 | |
| (–) Senior Exemption Loss: | – | $0 | |
| (–) Exemption Loss: | – | $0 | |
| | | -------------------------- | |
| (=) Taxable Value: | = | $1,019,138 | |
Taxing Jurisdiction
| Owner: | MARILYNNE A URQUHART LIVING TRUST | | |
| % Ownership: | 100.0000000000% | | |
| Total Value: | N/A | | |
| Tax Area: | 0111 - 1-50F1E1H2L1 |
| CE | COUNTY CURRENT EXPENSE | N/A | N/A | N/A | N/A | | |
| CNTYDD | DEVELOPMENTAL DISABILITIES | N/A | N/A | N/A | N/A | | |
| CNTYVET | VETERANS RELIEF | N/A | N/A | N/A | N/A | | |
| MENTAL | MENTAL HEALTH | N/A | N/A | N/A | N/A | | |
| ROADS | COUNTY ROADS | N/A | N/A | N/A | N/A | | |
| ROADSCU | COUNTY ROADS TO CUR EXP | N/A | N/A | N/A | N/A | | |
| HOSP2CASH | HOSP DIST #2 GENERAL | N/A | N/A | N/A | N/A | | |
| SCH50BOND | SCHOOL DIST #50 BOND 2016 | N/A | N/A | N/A | N/A | | |
| SCH50CP | SCHOOL DIST #50 CAP PROJ | N/A | N/A | N/A | N/A | | |
| SCH50MO | SCHOOL DIST #50 EP & O | N/A | N/A | N/A | N/A | | |
| CONSERVE | CONSERVATION FUTURES | N/A | N/A | N/A | N/A | | |
| EMS1 | FIRE DIST #1 EMS | N/A | N/A | N/A | N/A | | |
| FD1 | FIRE DIST #1 GENERAL | N/A | N/A | N/A | N/A | | |
| LIB1 | LIBRARY DIST #1 GENERAL | N/A | N/A | N/A | N/A | | |
| PORTPT | PORT OF PT GENERAL | N/A | N/A | N/A | N/A | | |
| PORTPTIDD | PORT OF PT IDD 2019 | N/A | N/A | N/A | N/A | | |
| PUD1 | PUD #1 GENERAL | N/A | N/A | N/A | N/A | | |
| STATE | STATE SCHOOL PART 1 | N/A | N/A | N/A | N/A | | |
| STATE2 | STATE SCHOOL PART 2 | N/A | N/A | N/A | N/A | | |
| | Total Tax Rate: | N/A | | | | | |
| | | | | Taxes w/Current Exemptions: | N/A | | |
| | | | | Taxes w/o Exemptions: | N/A | | |
Improvement / Building
| Improvement #1: | Residential Bldg | State Code: | 11 | 2960.0 sqft | Value: | $735,338 |
| Bathrooms (#): | 3 (FULL) | Bedrooms (#): | 2 | | Exterior Wall: | SI/ST | Fireplace: | SIN 1-GOOD | | Floor Construction: | FRAME | Foundation: | CONPR | | Heating/Cooling: | HTWTR | Roof Cover: | TILE |
|
| | Type | Description | Class CD | Sub Class CD | Year Built | Area |
| | MA | Main Area | 4+ | 1S | 1997 | 2960.0 |
| | PATIO | House Patio | 4 | 1S | 1997 | 128.0 |
| | HCPOR | House Concrete Porch | 4 | 1S | 1997 | 30.0 |
| | HDECK | House Deck | 4 | 1S | 1997 | 1150.0 |
| | GATT | House Attached Garage | 4 | 1S | 1997 | 556.0 |
| | BSMTF | House basement finished | 4 | 1S | 1997 | 749.0 |
Sketch
| No sketches available for this property. |
Property Image
Land
| 1 | 5360-1555A | | 4.0000 | 174240.00 | 0.00 | 0.00 | 0.00 | $96,800 | $0 |
| 2 | 5360-1345S | | 1.0000 | 43560.00 | 0.00 | 0.00 | 1.00 | $187,000 | $0 |
Roll Value History
| 2025 | N/A | N/A | N/A | N/A | N/A |
| 2024 | $735,338 | $283,800 | $0 | $1,019,138 | $1,019,138 |
| 2023 | $698,911 | $265,650 | $0 | $964,561 | $964,561 |
| 2022 | $635,374 | $240,000 | $0 | $875,374 | $875,374 |
| 2021 | $481,344 | $178,200 | $0 | $659,544 | $659,544 |
Deed and Sales History
| 1 | 08/24/2018 | QCD | Quit Claim Deed | MARILYNNE A URQUHART | MARILYNNE A URQUHART LIVING TRUST | | | | 130999 | |
| 2 | 08/24/2018 | QCD | Quit Claim Deed | | | | | | 131222 | |
| 3 | 03/26/2007 | WD | Warranty Deed | URQUHART, KENNETH ESTATE | URQUHART, MARILYNNE ANN | 0 | 0 | $0.00 | 108862 | 0 |
Payout Agreement
| No payout information available.. |