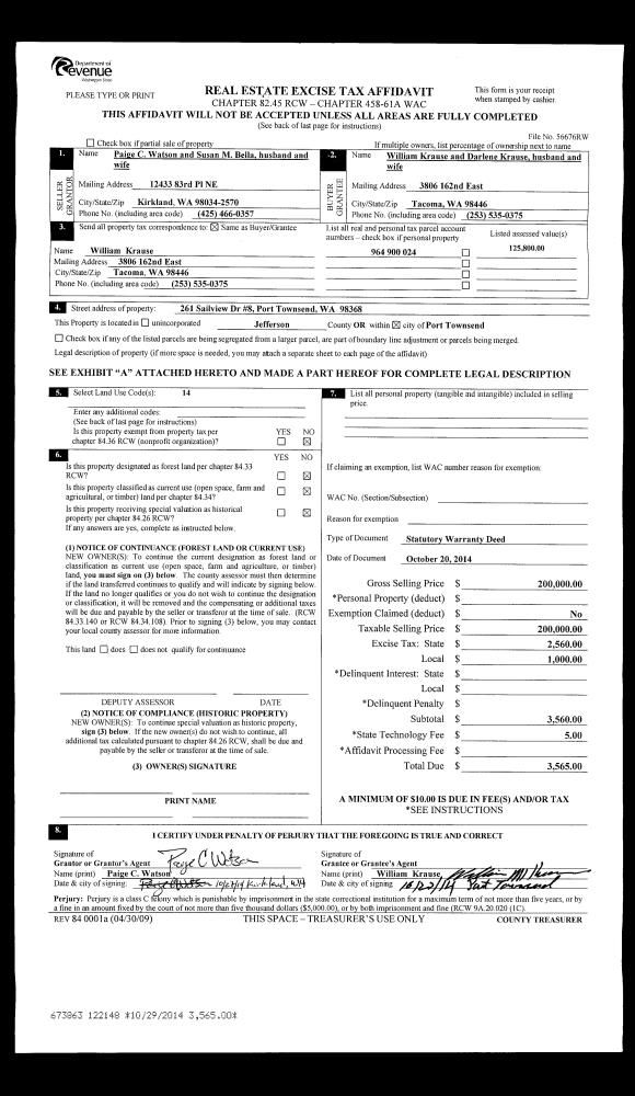
Property
Account |
| Property ID: | 11408 | Abbreviated Legal Description: | BURCHARD SHORT PLAT LOT 1 |
| Parcel # / Geo ID: | 001302026 | Agent Code: | |
| Type: | Real | | |
| Tax Area: | 0111 - 1-50F1E1H2L1 | Land Use Code | 11 |
| Open Space: | N | DFL | N |
| Historic Property: | N | Remodel Property: | N |
| Multi-Family Redevelopment: | N | | |
| Township: | 30N | Section: | 30 |
| Range: | 1W |
Location |
| Address: | 30 LANE DE CHANTAL PORT TOWNSEND, WA 98368 | Mapsco: | 127/080 |
| Neighborhood: | S19,30&31T30NR1W,S25T30R2W,ARBUTUS,BAYVIEW CHEVY,DISCO RIDGE | Map ID: | |
| Neighborhood CD: | 5360 |
Owner |
| Name: | JANELL JELLIFFE | Owner ID: | 19017 |
| Mailing Address: | 30 LANE DE CHANTEL PORT TOWNSEND, WA 98368 | % Ownership: | 100.0000000000% |
| | | Exemptions: | |
Pay Tax Due
Select the appropriate checkbox next to the year to be paid. Multiple years may be selected.
*Convenience Fee not included
Taxes and Assessment Details
Property Tax Information as of
10/23/2025
Click on "Statement Details" to expand or collapse a tax statement.
* Please enter a valid date ** Please enter a valid date *
Statement Details |
| 2025 | 1358 | STATE - STATE LEVY (SCHOOL) | $1201.82 | $1201.81 | $0.00 | $0.00 | $1201.82 | $1201.81 |
| 2025 | 1358 | COUNTY - COUNTY LEVIES (CE, DD, VET, MH) | $472.62 | $472.59 | $0.00 | $0.00 | $472.62 | $472.59 |
| 2025 | 1358 | CONSERVE - CONSERVATION FUTURES | $14.17 | $14.17 | $0.00 | $0.00 | $14.17 | $14.17 |
| 2025 | 1358 | COROADS - COUNTY ROADS (ROADS, DIV TO CE) | $378.63 | $378.63 | $0.00 | $0.00 | $378.63 | $378.63 |
| 2025 | 1358 | PORTPT - PORT DISTRICT | $192.86 | $192.84 | $0.00 | $0.00 | $192.86 | $192.84 |
| 2025 | 1358 | PUD1 - PUD #1 | $30.93 | $30.92 | $0.00 | $0.00 | $30.93 | $30.92 |
| 2025 | 1358 | LIB1 - LIBRARY DIST #1 | $146.49 | $146.49 | $0.00 | $0.00 | $146.49 | $146.49 |
| 2025 | 1358 | HD2 - HOSP DIST #2 | $27.58 | $27.57 | $0.00 | $0.00 | $27.58 | $27.57 |
| 2025 | 1358 | SD50 - SCHOOL DIST #50 | $878.34 | $878.31 | $0.00 | $0.00 | $878.34 | $878.31 |
| 2025 | 1358 | FD1 - FIRE DISTRICT #1 | $623.66 | $623.65 | $0.00 | $0.00 | $623.66 | $623.65 |
| 2025 | 1358 | EMS1 - FIRE DIST #1 EMS | $239.88 | $239.87 | $0.00 | $0.00 | $239.88 | $239.87 |
| 2025 | 1358 | FPLCA - DNR Landowner Contingency Assmt | $3.00 | $3.00 | $0.00 | $0.00 | $3.00 | $3.00 |
| 2025 | 1358 | JCCD - JC Conservation District | $2.65 | $2.65 | $0.00 | $0.00 | $2.65 | $2.65 |
| 2025 | 1358 | NWA - Noxious Weed Assessment | $2.45 | $2.45 | $0.00 | $0.00 | $2.45 | $2.45 |
| 2025 | 1358 | OSS - On Site Septic | $21.50 | $21.50 | $0.00 | $0.00 | $21.50 | $21.50 |
| 2025 | 1358 | WAT - Clean Water District | $13.00 | $13.00 | $0.00 | $0.00 | $13.00 | $13.00 |
| 2025 | 1358 | TOTAL: | $4249.58 | $4249.45 | $0.00 | $0.00 | $4249.58 | $4249.45 |
|
| 2025 | 1358 | $4249.58 | $4249.45 | $0.00 | $0.00 | $4249.58 | $4249.45 |
Statement Details |
| 2024 | 1360 | STATE - STATE LEVY (SCHOOL) | $1119.78 | $1119.78 | $0.00 | $0.00 | $2239.56 | $0.00 |
| 2024 | 1360 | COUNTY - COUNTY LEVIES (CE, DD, VET, MH) | $479.18 | $479.15 | $0.00 | $0.00 | $958.33 | $0.00 |
| 2024 | 1360 | CONSERVE - CONSERVATION FUTURES | $14.37 | $14.37 | $0.00 | $0.00 | $28.74 | $0.00 |
| 2024 | 1360 | COROADS - COUNTY ROADS (ROADS, DIV TO CE) | $385.57 | $385.56 | $0.00 | $0.00 | $771.13 | $0.00 |
| 2024 | 1360 | PORTPT - PORT DISTRICT | $197.92 | $197.91 | $0.00 | $0.00 | $395.83 | $0.00 |
| 2024 | 1360 | PUD1 - PUD #1 | $31.48 | $31.47 | $0.00 | $0.00 | $62.95 | $0.00 |
| 2024 | 1360 | LIB1 - LIBRARY DIST #1 | $149.18 | $149.17 | $0.00 | $0.00 | $298.35 | $0.00 |
| 2024 | 1360 | HD2 - HOSP DIST #2 | $27.96 | $27.96 | $0.00 | $0.00 | $55.92 | $0.00 |
| 2024 | 1360 | SD50 - SCHOOL DIST #50 | $905.97 | $905.95 | $0.00 | $0.00 | $1811.92 | $0.00 |
| 2024 | 1360 | FD1 - FIRE DISTRICT #1 | $633.57 | $633.57 | $0.00 | $0.00 | $1267.14 | $0.00 |
| 2024 | 1360 | EMS1 - FIRE DIST #1 EMS | $242.00 | $242.00 | $0.00 | $0.00 | $484.00 | $0.00 |
| 2024 | 1360 | FPLCA - DNR Landowner Contingency Assmt | $3.00 | $3.00 | $0.00 | $0.00 | $6.00 | $0.00 |
| 2024 | 1360 | JCCD - JC Conservation District | $2.65 | $2.65 | $0.00 | $0.00 | $5.30 | $0.00 |
| 2024 | 1360 | NWA - Noxious Weed Assessment | $2.45 | $2.45 | $0.00 | $0.00 | $4.90 | $0.00 |
| 2024 | 1360 | OSS - On Site Septic | $21.00 | $21.00 | $0.00 | $0.00 | $42.00 | $0.00 |
| 2024 | 1360 | WAT - Clean Water District | $12.50 | $12.50 | $0.00 | $0.00 | $25.00 | $0.00 |
| 2024 | 1360 | TOTAL: | $4228.58 | $4228.49 | $0.00 | $0.00 | $8457.07 | $0.00 |
|
| 2024 | 1360 | $4228.58 | $4228.49 | $0.00 | $0.00 | $8457.07 | $0.00 |
Statement Details |
| 2023 | 1360 | STATE - STATE LEVY (SCHOOL) | $1037.29 | $1037.29 | $0.00 | $0.00 | $2074.58 | $0.00 |
| 2023 | 1360 | COUNTY - COUNTY LEVIES (CE, DD, VET, MH) | $452.64 | $452.64 | $0.00 | $0.00 | $905.28 | $0.00 |
| 2023 | 1360 | CONSERVE - CONSERVATION FUTURES | $13.58 | $13.57 | $0.00 | $0.00 | $27.15 | $0.00 |
| 2023 | 1360 | COROADS - COUNTY ROADS (ROADS, DIV TO CE) | $366.23 | $366.21 | $0.00 | $0.00 | $732.44 | $0.00 |
| 2023 | 1360 | PORTPT - PORT DISTRICT | $190.68 | $190.67 | $0.00 | $0.00 | $381.35 | $0.00 |
| 2023 | 1360 | PUD1 - PUD #1 | $30.01 | $30.00 | $0.00 | $0.00 | $60.01 | $0.00 |
| 2023 | 1360 | LIB1 - LIBRARY DIST #1 | $141.69 | $141.68 | $0.00 | $0.00 | $283.37 | $0.00 |
| 2023 | 1360 | HD2 - HOSP DIST #2 | $26.41 | $26.41 | $0.00 | $0.00 | $52.82 | $0.00 |
| 2023 | 1360 | SD50 - SCHOOL DIST #50 | $823.12 | $823.10 | $0.00 | $0.00 | $1646.22 | $0.00 |
| 2023 | 1360 | FD1 - FIRE DISTRICT #1 | $372.89 | $372.88 | $0.00 | $0.00 | $745.77 | $0.00 |
| 2023 | 1360 | EMS1 - FIRE DIST #1 EMS | $158.62 | $158.62 | $0.00 | $0.00 | $317.24 | $0.00 |
| 2023 | 1360 | FPLCA - DNR Landowner Contingency Assmt | $3.00 | $3.00 | $0.00 | $0.00 | $6.00 | $0.00 |
| 2023 | 1360 | JCCD - JC Conservation District | $2.65 | $2.65 | $0.00 | $0.00 | $5.30 | $0.00 |
| 2023 | 1360 | NWA - Noxious Weed Assessment | $2.45 | $2.45 | $0.00 | $0.00 | $4.90 | $0.00 |
| 2023 | 1360 | OSS - On Site Septic | $20.50 | $20.50 | $0.00 | $0.00 | $41.00 | $0.00 |
| 2023 | 1360 | WAT - Clean Water District | $12.00 | $12.00 | $0.00 | $0.00 | $24.00 | $0.00 |
| 2023 | 1360 | TOTAL: | $3653.76 | $3653.67 | $0.00 | $0.00 | $7307.43 | $0.00 |
|
| 2023 | 1360 | $3653.76 | $3653.67 | $0.00 | $0.00 | $7307.43 | $0.00 |
Statement Details |
| 2022 | 1362 | STATE - STATE LEVY (SCHOOL) | $931.56 | $931.55 | $0.00 | $0.00 | $1863.11 | $0.00 |
| 2022 | 1362 | COUNTY - COUNTY LEVIES (CE, DD, VET, MH) | $415.07 | $415.04 | $0.00 | $0.00 | $830.11 | $0.00 |
| 2022 | 1362 | CONSERVE - CONSERVATION FUTURES | $12.45 | $12.44 | $0.00 | $0.00 | $24.89 | $0.00 |
| 2022 | 1362 | COROADS - COUNTY ROADS (ROADS, DIV TO CE) | $337.35 | $337.33 | $0.00 | $0.00 | $674.68 | $0.00 |
| 2022 | 1362 | PORTPT - PORT DISTRICT | $177.69 | $177.68 | $0.00 | $0.00 | $355.37 | $0.00 |
| 2022 | 1362 | PUD1 - PUD #1 | $27.76 | $27.75 | $0.00 | $0.00 | $55.51 | $0.00 |
| 2022 | 1362 | LIB1 - LIBRARY DIST #1 | $130.52 | $130.51 | $0.00 | $0.00 | $261.03 | $0.00 |
| 2022 | 1362 | HD2 - HOSP DIST #2 | $24.23 | $24.22 | $0.00 | $0.00 | $48.45 | $0.00 |
| 2022 | 1362 | SD50 - SCHOOL DIST #50 | $690.33 | $690.32 | $0.00 | $0.00 | $1380.65 | $0.00 |
| 2022 | 1362 | FD1 - FIRE DISTRICT #1 | $340.50 | $340.50 | $0.00 | $0.00 | $681.00 | $0.00 |
| 2022 | 1362 | EMS1 - FIRE DIST #1 EMS | $144.84 | $144.83 | $0.00 | $0.00 | $289.67 | $0.00 |
| 2022 | 1362 | FPLCA - DNR Landowner Contingency Assmt | $3.00 | $3.00 | $0.00 | $0.00 | $6.00 | $0.00 |
| 2022 | 1362 | JCCD - JC Conservation District | $2.65 | $2.65 | $0.00 | $0.00 | $5.30 | $0.00 |
| 2022 | 1362 | NWA - Noxious Weed Assessment | $2.45 | $2.45 | $0.00 | $0.00 | $4.90 | $0.00 |
| 2022 | 1362 | OSS - On Site Septic | $19.50 | $19.50 | $0.00 | $0.00 | $39.00 | $0.00 |
| 2022 | 1362 | WAT - Clean Water District | $11.50 | $11.50 | $0.00 | $0.00 | $23.00 | $0.00 |
| 2022 | 1362 | TOTAL: | $3271.40 | $3271.27 | $0.00 | $0.00 | $6542.67 | $0.00 |
|
| 2022 | 1362 | $3271.40 | $3271.27 | $0.00 | $0.00 | $6542.67 | $0.00 |
Values
| (+) Improvement Homesite Value: | + | $0 | |
| (+) Improvement Non-Homesite Value: | + | $784,844 | |
| (+) Land Homesite Value: | + | $0 | |
| (+) Land Non-Homesite Value: | + | $217,492 | |
| (+) Curr Use (HS): | + | $0 | $0 |
| (+) Curr Use (NHS): | + | $0 | $0 |
| | | -------------------------- | |
| (=) Market Value: | = | $1,002,336 | |
| (–) Productivity Loss: | – | $0 | |
| | | -------------------------- | |
| (=) Subtotal: | = | $1,002,336 | |
| (+) Senior Appraised Value: | + | $0 | |
| (+) Non-Senior Appraised Value: | + | $1,002,336 | |
| | | -------------------------- | |
| (=) Total Appraised Value: | = | $1,002,336 | |
| (–) Senior Exemption Loss: | – | $0 | |
| (–) Exemption Loss: | – | $0 | |
| | | -------------------------- | |
| (=) Taxable Value: | = | $1,002,336 | |
Taxing Jurisdiction
| Owner: | JANELL JELLIFFE | | |
| % Ownership: | 100.0000000000% | | |
| Total Value: | N/A | | |
| Tax Area: | 0111 - 1-50F1E1H2L1 |
| CE | COUNTY CURRENT EXPENSE | N/A | N/A | N/A | N/A | | |
| CNTYDD | DEVELOPMENTAL DISABILITIES | N/A | N/A | N/A | N/A | | |
| CNTYVET | VETERANS RELIEF | N/A | N/A | N/A | N/A | | |
| MENTAL | MENTAL HEALTH | N/A | N/A | N/A | N/A | | |
| ROADS | COUNTY ROADS | N/A | N/A | N/A | N/A | | |
| ROADSCU | COUNTY ROADS TO CUR EXP | N/A | N/A | N/A | N/A | | |
| HOSP2CASH | HOSP DIST #2 GENERAL | N/A | N/A | N/A | N/A | | |
| SCH50BOND | SCHOOL DIST #50 BOND 2016 | N/A | N/A | N/A | N/A | | |
| SCH50CP | SCHOOL DIST #50 CAP PROJ | N/A | N/A | N/A | N/A | | |
| SCH50MO | SCHOOL DIST #50 EP & O | N/A | N/A | N/A | N/A | | |
| CONSERVE | CONSERVATION FUTURES | N/A | N/A | N/A | N/A | | |
| EMS1 | FIRE DIST #1 EMS | N/A | N/A | N/A | N/A | | |
| FD1 | FIRE DIST #1 GENERAL | N/A | N/A | N/A | N/A | | |
| LIB1 | LIBRARY DIST #1 GENERAL | N/A | N/A | N/A | N/A | | |
| PORTPT | PORT OF PT GENERAL | N/A | N/A | N/A | N/A | | |
| PORTPTIDD | PORT OF PT IDD 2019 | N/A | N/A | N/A | N/A | | |
| PUD1 | PUD #1 GENERAL | N/A | N/A | N/A | N/A | | |
| STATE | STATE SCHOOL PART 1 | N/A | N/A | N/A | N/A | | |
| STATE2 | STATE SCHOOL PART 2 | N/A | N/A | N/A | N/A | | |
| | Total Tax Rate: | N/A | | | | | |
| | | | | Taxes w/Current Exemptions: | N/A | | |
| | | | | Taxes w/o Exemptions: | N/A | | |
Improvement / Building
| Improvement #1: | Residential Bldg | State Code: | 11 | 1962.0 sqft | Value: | $784,844 |
| Bathrooms (#): | 3 (FULL) | Bathrooms (#): | 1 (HALF) | | Bedrooms (#): | 3 | Exterior Wall: | SI/ST | | Fireplace: | PROPS-GOOD | Floor Construction: | FRAME | | Foundation: | CONPR | Heating/Cooling: | HPUMP | | Inside Verify: | YES | Roof Cover: | COMP |
|
| | Type | Description | Class CD | Sub Class CD | Year Built | Area |
| | MA | Main Area | 5 | 1S | 1995 | 1962.0 |
| | PATIO | House Patio | 5 | 1S | 1995 | 112.0 |
| | HWPOR | House Wood Porch | 5 | 1S | 1995 | 204.0 |
| | HDECK | House Deck | 5 | 1S | 1995 | 704.0 |
| | GATT | House Attached Garage | 5 | 1S | 1995 | 672.0 |
| | SHED | Shed (Table Not Dep) | 5 | 1S | 1995 | 96.0 |
| | BSMTF | House basement finished | 5 | 1S | 1995 | 1480.0 |
| | BSMTU | House basement unfinished | 5 | 1S | 1995 | 260.0 |
| | SOLAR | Solar Panel | 5 | 1S | 1995 | 0.0 |
| | ASPHD | Asphalt Drive | 5 | 1S | 1995 | 3000.0 |
Sketch
Property Image
Land
| 1 | 5360-1555A | | 1.2600 | 54885.60 | 0.00 | 0.00 | 0.00 | $30,492 | $0 |
| 2 | 5360-1345S | | 1.0000 | 43560.00 | 0.00 | 0.00 | 1.00 | $187,000 | $0 |
Roll Value History
| 2025 | N/A | N/A | N/A | N/A | N/A |
| 2024 | $784,844 | $217,492 | $0 | $1,002,336 | $1,002,336 |
| 2023 | $765,644 | $202,356 | $0 | $968,000 | $968,000 |
| 2022 | $696,040 | $185,200 | $0 | $881,240 | $881,240 |
| 2021 | $527,303 | $154,088 | $0 | $681,391 | $681,391 |
Deed and Sales History
| 1 | 03/23/2005 | SWD | Statutory Warranty Deed | LEEDY, JEFFREY A & ELIZAB | JELLIFFE, JANELL W | | | $434,200.00 | 103216 | 0 |
| 2 | 02/02/2004 | SWD | Statutory Warranty Deed | ENGEL, ROBERT D/CHARLENE | LEEDY, JEFFREY A/ELIZABETH A | 0 | 0 | $374,000.00 | 99432 | 0 |
| 3 | 04/02/1999 | SWD | Statutory Warranty Deed | BURCHARD, MICHAEL/HOOD, M | ENGEL, ROBERT/CHARLENE | 0 | 0 | $295,000.00 | 86714 | 0 |
| 4 | 11/09/1994 | QCD | Quit Claim Deed | BURCHARD, MICHAEL A | BURCHARD, M A/HOOD, M E | 0 | 0 | $0.00 | 75570 | 0 |
| 5 | 11/07/1994 | QCD | Quit Claim Deed | GOLDEN, ANDREA C | ADAMS, RICHARD L | 0 | 0 | $0.00 | 75527 | 0 |
| 6 | 11/01/1994 | QCD | Quit Claim Deed | ADAMS, RICHARD L | BURCHARD, MICHAEL A | 0 | 0 | $0.00 | 75470 | 0 |
Payout Agreement
| No payout information available.. |