Property
Account |
| Property ID: | 11482 | Abbreviated Legal Description: | B SULLIVAN SHORT PLAT LOT 4 |
| Parcel # / Geo ID: | 001321031 | Agent Code: | |
| Type: | Real | | |
| Tax Area: | 0111 - 1-50F1E1H2L1 | Land Use Code | 11 |
| Open Space: | N | DFL | N |
| Historic Property: | N | Remodel Property: | N |
| Multi-Family Redevelopment: | N | | |
| Township: | 30N | Section: | 32 |
| Range: | 1W |
Location |
| Address: | 4539 S DISCOVERY RD PORT TOWNSEND, WA 98368 | Mapsco: | 137/070 |
| Neighborhood: | S32 T30 R1W, ADELMA BCH, DISCO HEIGHTS | Map ID: | |
| Neighborhood CD: | 5375 |
Owner |
| Name: | CHRISTOPHER COLIN COOPER | Owner ID: | 96591 |
| Mailing Address: | C/O CATHERINE L AULT 260 MUMBY RD NORDLAND, WA 98358 | % Ownership: | 100.0000000000% |
| | | Exemptions: | |
Pay Tax Due
Select the appropriate checkbox next to the year to be paid. Multiple years may be selected.
*Convenience Fee not included
Taxes and Assessment Details
Property Tax Information as of
10/23/2025
Click on "Statement Details" to expand or collapse a tax statement.
* Please enter a valid date ** Please enter a valid date *
Statement Details |
| 2025 | 1431 | STATE - STATE LEVY (SCHOOL) | $613.08 | $613.08 | $0.00 | $0.00 | $613.08 | $613.08 |
| 2025 | 1431 | COUNTY - COUNTY LEVIES (CE, DD, VET, MH) | $241.10 | $241.08 | $0.00 | $0.00 | $241.10 | $241.08 |
| 2025 | 1431 | CONSERVE - CONSERVATION FUTURES | $7.23 | $7.23 | $0.00 | $0.00 | $7.23 | $7.23 |
| 2025 | 1431 | COROADS - COUNTY ROADS (ROADS, DIV TO CE) | $193.16 | $193.15 | $0.00 | $0.00 | $193.16 | $193.15 |
| 2025 | 1431 | PORTPT - PORT DISTRICT | $98.38 | $98.38 | $0.00 | $0.00 | $98.38 | $98.38 |
| 2025 | 1431 | PUD1 - PUD #1 | $15.78 | $15.77 | $0.00 | $0.00 | $15.78 | $15.77 |
| 2025 | 1431 | LIB1 - LIBRARY DIST #1 | $74.73 | $74.73 | $0.00 | $0.00 | $74.73 | $74.73 |
| 2025 | 1431 | HD2 - HOSP DIST #2 | $14.07 | $14.06 | $0.00 | $0.00 | $14.07 | $14.06 |
| 2025 | 1431 | SD50 - SCHOOL DIST #50 | $448.07 | $448.05 | $0.00 | $0.00 | $448.07 | $448.05 |
| 2025 | 1431 | FD1 - FIRE DISTRICT #1 | $318.15 | $318.14 | $0.00 | $0.00 | $318.15 | $318.14 |
| 2025 | 1431 | EMS1 - FIRE DIST #1 EMS | $122.37 | $122.37 | $0.00 | $0.00 | $122.37 | $122.37 |
| 2025 | 1431 | FP - DNR Forest Fire Protection Assmt | $8.50 | $8.50 | $0.00 | $0.00 | $8.50 | $8.50 |
| 2025 | 1431 | FPLCA - DNR Landowner Contingency Assmt | $3.00 | $3.00 | $0.00 | $0.00 | $3.00 | $3.00 |
| 2025 | 1431 | JCCD - JC Conservation District | $2.55 | $2.55 | $0.00 | $0.00 | $2.55 | $2.55 |
| 2025 | 1431 | NWA - Noxious Weed Assessment | $2.15 | $2.15 | $0.00 | $0.00 | $2.15 | $2.15 |
| 2025 | 1431 | OSS - On Site Septic | $21.50 | $21.50 | $0.00 | $0.00 | $21.50 | $21.50 |
| 2025 | 1431 | WAT - Clean Water District | $13.00 | $13.00 | $0.00 | $0.00 | $13.00 | $13.00 |
| 2025 | 1431 | FP ADMIN - FP ADMIN | $0.50 | $0.00 | $0.00 | $0.00 | $0.50 | $0.00 |
| 2025 | 1431 | TOTAL: | $2197.32 | $2196.74 | $0.00 | $0.00 | $2197.32 | $2196.74 |
|
| 2025 | 1431 | $2197.32 | $2196.74 | $0.00 | $0.00 | $2197.32 | $2196.74 |
Statement Details |
| 2024 | 1433 | STATE - STATE LEVY (SCHOOL) | $542.18 | $542.17 | $0.00 | $0.00 | $1084.35 | $0.00 |
| 2024 | 1433 | COUNTY - COUNTY LEVIES (CE, DD, VET, MH) | $232.01 | $231.99 | $0.00 | $0.00 | $464.00 | $0.00 |
| 2024 | 1433 | CONSERVE - CONSERVATION FUTURES | $6.96 | $6.95 | $0.00 | $0.00 | $13.91 | $0.00 |
| 2024 | 1433 | COROADS - COUNTY ROADS (ROADS, DIV TO CE) | $186.69 | $186.68 | $0.00 | $0.00 | $373.37 | $0.00 |
| 2024 | 1433 | PORTPT - PORT DISTRICT | $95.83 | $95.82 | $0.00 | $0.00 | $191.65 | $0.00 |
| 2024 | 1433 | PUD1 - PUD #1 | $15.24 | $15.24 | $0.00 | $0.00 | $30.48 | $0.00 |
| 2024 | 1433 | LIB1 - LIBRARY DIST #1 | $72.23 | $72.22 | $0.00 | $0.00 | $144.45 | $0.00 |
| 2024 | 1433 | HD2 - HOSP DIST #2 | $13.54 | $13.53 | $0.00 | $0.00 | $27.07 | $0.00 |
| 2024 | 1433 | SD50 - SCHOOL DIST #50 | $438.66 | $438.64 | $0.00 | $0.00 | $877.30 | $0.00 |
| 2024 | 1433 | FD1 - FIRE DISTRICT #1 | $306.77 | $306.76 | $0.00 | $0.00 | $613.53 | $0.00 |
| 2024 | 1433 | EMS1 - FIRE DIST #1 EMS | $117.17 | $117.17 | $0.00 | $0.00 | $234.34 | $0.00 |
| 2024 | 1433 | FP - DNR Forest Fire Protection Assmt | $8.50 | $8.50 | $0.00 | $0.00 | $17.00 | $0.00 |
| 2024 | 1433 | FPLCA - DNR Landowner Contingency Assmt | $3.00 | $3.00 | $0.00 | $0.00 | $6.00 | $0.00 |
| 2024 | 1433 | JCCD - JC Conservation District | $2.55 | $2.55 | $0.00 | $0.00 | $5.10 | $0.00 |
| 2024 | 1433 | NWA - Noxious Weed Assessment | $2.15 | $2.15 | $0.00 | $0.00 | $4.30 | $0.00 |
| 2024 | 1433 | OSS - On Site Septic | $21.00 | $21.00 | $0.00 | $0.00 | $42.00 | $0.00 |
| 2024 | 1433 | WAT - Clean Water District | $12.50 | $12.50 | $0.00 | $0.00 | $25.00 | $0.00 |
| 2024 | 1433 | FP ADMIN - FP ADMIN | $0.50 | $0.00 | $0.00 | $0.00 | $0.50 | $0.00 |
| 2024 | 1433 | TOTAL: | $2077.48 | $2076.87 | $0.00 | $0.00 | $4154.35 | $0.00 |
|
| 2024 | 1433 | $2077.48 | $2076.87 | $0.00 | $0.00 | $4154.35 | $0.00 |
Statement Details |
| 2023 | 1433 | STATE - STATE LEVY (SCHOOL) | $501.42 | $501.41 | $0.00 | $0.00 | $1002.83 | $0.00 |
| 2023 | 1433 | COUNTY - COUNTY LEVIES (CE, DD, VET, MH) | $218.80 | $218.80 | $0.00 | $0.00 | $437.60 | $0.00 |
| 2023 | 1433 | CONSERVE - CONSERVATION FUTURES | $6.56 | $6.56 | $0.00 | $0.00 | $13.12 | $0.00 |
| 2023 | 1433 | COROADS - COUNTY ROADS (ROADS, DIV TO CE) | $177.03 | $177.02 | $0.00 | $0.00 | $354.05 | $0.00 |
| 2023 | 1433 | PORTPT - PORT DISTRICT | $92.18 | $92.16 | $0.00 | $0.00 | $184.34 | $0.00 |
| 2023 | 1433 | PUD1 - PUD #1 | $14.51 | $14.50 | $0.00 | $0.00 | $29.01 | $0.00 |
| 2023 | 1433 | LIB1 - LIBRARY DIST #1 | $68.49 | $68.49 | $0.00 | $0.00 | $136.98 | $0.00 |
| 2023 | 1433 | HD2 - HOSP DIST #2 | $12.77 | $12.76 | $0.00 | $0.00 | $25.53 | $0.00 |
| 2023 | 1433 | SD50 - SCHOOL DIST #50 | $397.88 | $397.87 | $0.00 | $0.00 | $795.75 | $0.00 |
| 2023 | 1433 | FD1 - FIRE DISTRICT #1 | $180.25 | $180.25 | $0.00 | $0.00 | $360.50 | $0.00 |
| 2023 | 1433 | EMS1 - FIRE DIST #1 EMS | $76.68 | $76.67 | $0.00 | $0.00 | $153.35 | $0.00 |
| 2023 | 1433 | FP - DNR Forest Fire Protection Assmt | $8.50 | $8.50 | $0.00 | $0.00 | $17.00 | $0.00 |
| 2023 | 1433 | FPLCA - DNR Landowner Contingency Assmt | $3.00 | $3.00 | $0.00 | $0.00 | $6.00 | $0.00 |
| 2023 | 1433 | JCCD - JC Conservation District | $2.55 | $2.55 | $0.00 | $0.00 | $5.10 | $0.00 |
| 2023 | 1433 | NWA - Noxious Weed Assessment | $2.15 | $2.15 | $0.00 | $0.00 | $4.30 | $0.00 |
| 2023 | 1433 | OSS - On Site Septic | $20.50 | $20.50 | $0.00 | $0.00 | $41.00 | $0.00 |
| 2023 | 1433 | WAT - Clean Water District | $12.00 | $12.00 | $0.00 | $0.00 | $24.00 | $0.00 |
| 2023 | 1433 | FP ADMIN - FP ADMIN | $0.50 | $0.00 | $0.00 | $0.00 | $0.50 | $0.00 |
| 2023 | 1433 | TOTAL: | $1795.77 | $1795.19 | $0.00 | $0.00 | $3590.96 | $0.00 |
|
| 2023 | 1433 | $1795.77 | $1795.19 | $0.00 | $0.00 | $3590.96 | $0.00 |
Statement Details |
| 2022 | 1436 | STATE - STATE LEVY (SCHOOL) | $454.13 | $454.13 | $0.00 | $0.00 | $908.26 | $0.00 |
| 2022 | 1436 | COUNTY - COUNTY LEVIES (CE, DD, VET, MH) | $202.35 | $202.34 | $0.00 | $0.00 | $404.69 | $0.00 |
| 2022 | 1436 | CONSERVE - CONSERVATION FUTURES | $6.07 | $6.06 | $0.00 | $0.00 | $12.13 | $0.00 |
| 2022 | 1436 | COROADS - COUNTY ROADS (ROADS, DIV TO CE) | $164.45 | $164.45 | $0.00 | $0.00 | $328.90 | $0.00 |
| 2022 | 1436 | PORTPT - PORT DISTRICT | $86.63 | $86.61 | $0.00 | $0.00 | $173.24 | $0.00 |
| 2022 | 1436 | PUD1 - PUD #1 | $13.53 | $13.53 | $0.00 | $0.00 | $27.06 | $0.00 |
| 2022 | 1436 | LIB1 - LIBRARY DIST #1 | $63.63 | $63.62 | $0.00 | $0.00 | $127.25 | $0.00 |
| 2022 | 1436 | HD2 - HOSP DIST #2 | $11.81 | $11.81 | $0.00 | $0.00 | $23.62 | $0.00 |
| 2022 | 1436 | SD50 - SCHOOL DIST #50 | $336.54 | $336.52 | $0.00 | $0.00 | $673.06 | $0.00 |
| 2022 | 1436 | FD1 - FIRE DISTRICT #1 | $165.99 | $165.99 | $0.00 | $0.00 | $331.98 | $0.00 |
| 2022 | 1436 | EMS1 - FIRE DIST #1 EMS | $70.61 | $70.60 | $0.00 | $0.00 | $141.21 | $0.00 |
| 2022 | 1436 | FP - DNR Forest Fire Protection Assmt | $8.50 | $8.50 | $0.00 | $0.00 | $17.00 | $0.00 |
| 2022 | 1436 | FPLCA - DNR Landowner Contingency Assmt | $3.00 | $3.00 | $0.00 | $0.00 | $6.00 | $0.00 |
| 2022 | 1436 | JCCD - JC Conservation District | $2.55 | $2.55 | $0.00 | $0.00 | $5.10 | $0.00 |
| 2022 | 1436 | NWA - Noxious Weed Assessment | $2.15 | $2.15 | $0.00 | $0.00 | $4.30 | $0.00 |
| 2022 | 1436 | OSS - On Site Septic | $19.50 | $19.50 | $0.00 | $0.00 | $39.00 | $0.00 |
| 2022 | 1436 | WAT - Clean Water District | $11.50 | $11.50 | $0.00 | $0.00 | $23.00 | $0.00 |
| 2022 | 1436 | FP ADMIN - FP ADMIN | $0.50 | $0.00 | $0.00 | $0.00 | $0.50 | $0.00 |
| 2022 | 1436 | TOTAL: | $1623.44 | $1622.86 | $0.00 | $0.00 | $3246.30 | $0.00 |
|
| 2022 | 1436 | $1623.44 | $1622.86 | $0.00 | $0.00 | $3246.30 | $0.00 |
Values
| (+) Improvement Homesite Value: | + | $0 | |
| (+) Improvement Non-Homesite Value: | + | $387,243 | |
| (+) Land Homesite Value: | + | $0 | |
| (+) Land Non-Homesite Value: | + | $124,080 | |
| (+) Curr Use (HS): | + | $0 | $0 |
| (+) Curr Use (NHS): | + | $0 | $0 |
| | | -------------------------- | |
| (=) Market Value: | = | $511,323 | |
| (–) Productivity Loss: | – | $0 | |
| | | -------------------------- | |
| (=) Subtotal: | = | $511,323 | |
| (+) Senior Appraised Value: | + | $0 | |
| (+) Non-Senior Appraised Value: | + | $511,323 | |
| | | -------------------------- | |
| (=) Total Appraised Value: | = | $511,323 | |
| (–) Senior Exemption Loss: | – | $0 | |
| (–) Exemption Loss: | – | $0 | |
| | | -------------------------- | |
| (=) Taxable Value: | = | $511,323 | |
Taxing Jurisdiction
| Owner: | CHRISTOPHER COLIN COOPER | | |
| % Ownership: | 100.0000000000% | | |
| Total Value: | N/A | | |
| Tax Area: | 0111 - 1-50F1E1H2L1 |
| CE | COUNTY CURRENT EXPENSE | N/A | N/A | N/A | N/A | | |
| CNTYDD | DEVELOPMENTAL DISABILITIES | N/A | N/A | N/A | N/A | | |
| CNTYVET | VETERANS RELIEF | N/A | N/A | N/A | N/A | | |
| MENTAL | MENTAL HEALTH | N/A | N/A | N/A | N/A | | |
| ROADS | COUNTY ROADS | N/A | N/A | N/A | N/A | | |
| ROADSCU | COUNTY ROADS TO CUR EXP | N/A | N/A | N/A | N/A | | |
| HOSP2CASH | HOSP DIST #2 GENERAL | N/A | N/A | N/A | N/A | | |
| SCH50BOND | SCHOOL DIST #50 BOND 2016 | N/A | N/A | N/A | N/A | | |
| SCH50CP | SCHOOL DIST #50 CAP PROJ | N/A | N/A | N/A | N/A | | |
| SCH50MO | SCHOOL DIST #50 EP & O | N/A | N/A | N/A | N/A | | |
| CONSERVE | CONSERVATION FUTURES | N/A | N/A | N/A | N/A | | |
| EMS1 | FIRE DIST #1 EMS | N/A | N/A | N/A | N/A | | |
| FD1 | FIRE DIST #1 GENERAL | N/A | N/A | N/A | N/A | | |
| LIB1 | LIBRARY DIST #1 GENERAL | N/A | N/A | N/A | N/A | | |
| PORTPT | PORT OF PT GENERAL | N/A | N/A | N/A | N/A | | |
| PORTPTIDD | PORT OF PT IDD 2019 | N/A | N/A | N/A | N/A | | |
| PUD1 | PUD #1 GENERAL | N/A | N/A | N/A | N/A | | |
| STATE | STATE SCHOOL PART 1 | N/A | N/A | N/A | N/A | | |
| STATE2 | STATE SCHOOL PART 2 | N/A | N/A | N/A | N/A | | |
| | Total Tax Rate: | N/A | | | | | |
| | | | | Taxes w/Current Exemptions: | N/A | | |
| | | | | Taxes w/o Exemptions: | N/A | | |
Improvement / Building
| Improvement #1: | Residential Bldg | State Code: | 11 | 1272.0 sqft | Value: | $387,243 |
| Bathrooms (#): | 2 (FULL) | Bathrooms (#): | 1 (HALF) | | Bedrooms (#): | 4 | Exterior Wall: | SI/ST | | Fireplace: | DBL 2-GOOD | Floor Construction: | FRAME | | Foundation: | CONPR | Heating/Cooling: | F/A | | Inside Verify: | YES-FIX | Roof Cover: | COMP |
|
| | Type | Description | Class CD | Sub Class CD | Year Built | Area |
| | MA | Main Area | 4- | 1S | 1978 | 1272.0 |
| | PATIO | House Patio | 4 | * | 1978 | 490.0 |
| | HDECK | House Deck | 4 | * | 1978 | 546.0 |
| | GATT | House Attached Garage | 3 | 1S | 1978 | 550.0 |
| | BSMTF | House basement finished | 4 | * | 1978 | 1272.0 |
Sketch
| No sketches available for this property. |
Property Image
Land
| 1 | 5375-1355S | | 0.0000 | 0.00 | 0.00 | 0.00 | 1.00 | $124,080 | $0 |
Roll Value History
| 2025 | N/A | N/A | N/A | N/A | N/A |
| 2024 | $387,243 | $124,080 | $0 | $511,323 | $511,323 |
| 2023 | $355,498 | $113,190 | $0 | $468,688 | $468,688 |
| 2022 | $323,180 | $102,800 | $0 | $425,980 | $425,980 |
| 2021 | $244,834 | $87,340 | $0 | $332,174 | $332,174 |
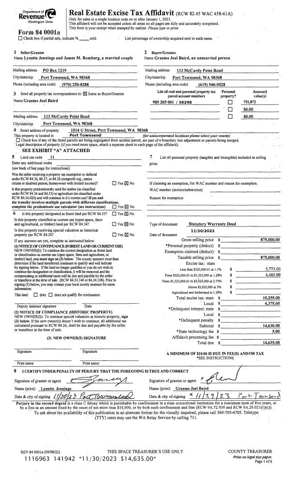
Deed and Sales History
| 1 | 09/09/2016 | QCD | Quit Claim Deed | DONOVAN J AULT | CHRISTOPHER COLIN COOPER | | | | 126907 | |
| 2 | 02/10/2003 | SWD | Statutory Warranty Deed | KLEINBACH, DENNIS R | AULT, DONOVAN J/CATHERINE | 0 | 0 | $195,000.00 | 96666 | 0 |
| 3 | 07/09/2001 | SWD | Statutory Warranty Deed | SULLIVAN, DONALD E/DONNA | KLEINBACH, DENNIS R | 0 | 0 | $190,000.00 | 92654 | 0 |
Payout Agreement
| No payout information available.. |