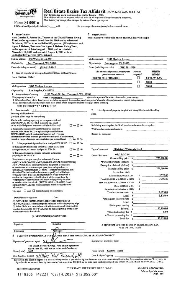
Property
Account |
| Property ID: | 11513 | Abbreviated Legal Description: | BRIDGEFORD SHORT PLAT LOT 2 SUBJ/EASE |
| Parcel # / Geo ID: | 001321094 | Agent Code: | |
| Type: | Real | | |
| Tax Area: | 0111 - 1-50F1E1H2L1 | Land Use Code | 11 |
| Open Space: | N | DFL | N |
| Historic Property: | N | Remodel Property: | N |
| Multi-Family Redevelopment: | N | | |
| Township: | 30N | Section: | 32 |
| Range: | 1W |
Location |
| Address: | 125 CUB RD PORT TOWNSEND, WA 98368 | Mapsco: | 127/056 |
| Neighborhood: | S32 T30 R1W, ADELMA BCH, DISCO HEIGHTS | Map ID: | |
| Neighborhood CD: | 5375 |
Owner |
| Name: | JERRY LEE RUBERT | Owner ID: | 26252 |
| Mailing Address: | TAMMI LYN RUBERT PO BOX 449 PORT HADLOCK, WA 98339-0449 | % Ownership: | 100.0000000000% |
| | | Exemptions: | |
Pay Tax Due
Select the appropriate checkbox next to the year to be paid. Multiple years may be selected.
*Convenience Fee not included
Taxes and Assessment Details
Property Tax Information as of
10/23/2025
Click on "Statement Details" to expand or collapse a tax statement.
* Please enter a valid date ** Please enter a valid date *
Statement Details |
| 2025 | 1461 | STATE - STATE LEVY (SCHOOL) | $505.35 | $505.34 | $0.00 | $0.00 | $505.35 | $505.34 |
| 2025 | 1461 | COUNTY - COUNTY LEVIES (CE, DD, VET, MH) | $198.74 | $198.71 | $0.00 | $0.00 | $198.74 | $198.71 |
| 2025 | 1461 | CONSERVE - CONSERVATION FUTURES | $5.96 | $5.96 | $0.00 | $0.00 | $5.96 | $5.96 |
| 2025 | 1461 | COROADS - COUNTY ROADS (ROADS, DIV TO CE) | $159.22 | $159.20 | $0.00 | $0.00 | $159.22 | $159.20 |
| 2025 | 1461 | PORTPT - PORT DISTRICT | $81.10 | $81.08 | $0.00 | $0.00 | $81.10 | $81.08 |
| 2025 | 1461 | PUD1 - PUD #1 | $13.01 | $13.00 | $0.00 | $0.00 | $13.01 | $13.00 |
| 2025 | 1461 | LIB1 - LIBRARY DIST #1 | $61.60 | $61.59 | $0.00 | $0.00 | $61.60 | $61.59 |
| 2025 | 1461 | HD2 - HOSP DIST #2 | $11.60 | $11.59 | $0.00 | $0.00 | $11.60 | $11.59 |
| 2025 | 1461 | SD50 - SCHOOL DIST #50 | $369.33 | $369.32 | $0.00 | $0.00 | $369.33 | $369.32 |
| 2025 | 1461 | FD1 - FIRE DISTRICT #1 | $262.24 | $262.23 | $0.00 | $0.00 | $262.24 | $262.23 |
| 2025 | 1461 | EMS1 - FIRE DIST #1 EMS | $100.87 | $100.86 | $0.00 | $0.00 | $100.87 | $100.86 |
| 2025 | 1461 | FP - DNR Forest Fire Protection Assmt | $8.50 | $8.50 | $0.00 | $0.00 | $8.50 | $8.50 |
| 2025 | 1461 | FPLCA - DNR Landowner Contingency Assmt | $3.00 | $3.00 | $0.00 | $0.00 | $3.00 | $3.00 |
| 2025 | 1461 | JCCD - JC Conservation District | $2.60 | $2.60 | $0.00 | $0.00 | $2.60 | $2.60 |
| 2025 | 1461 | NWA - Noxious Weed Assessment | $2.30 | $2.30 | $0.00 | $0.00 | $2.30 | $2.30 |
| 2025 | 1461 | OSS - On Site Septic | $21.50 | $21.50 | $0.00 | $0.00 | $21.50 | $21.50 |
| 2025 | 1461 | WAT - Clean Water District | $13.00 | $13.00 | $0.00 | $0.00 | $13.00 | $13.00 |
| 2025 | 1461 | FP ADMIN - FP ADMIN | $0.50 | $0.00 | $0.00 | $0.00 | $0.50 | $0.00 |
| 2025 | 1461 | TOTAL: | $1820.42 | $1819.78 | $0.00 | $0.00 | $1820.42 | $1819.78 |
|
| 2025 | 1461 | $1820.42 | $1819.78 | $0.00 | $0.00 | $1820.42 | $1819.78 |
Statement Details |
| 2024 | 1463 | STATE - STATE LEVY (SCHOOL) | $408.95 | $408.94 | $0.00 | $0.00 | $817.89 | $0.00 |
| 2024 | 1463 | COUNTY - COUNTY LEVIES (CE, DD, VET, MH) | $175.00 | $174.99 | $0.00 | $0.00 | $349.99 | $0.00 |
| 2024 | 1463 | CONSERVE - CONSERVATION FUTURES | $5.25 | $5.24 | $0.00 | $0.00 | $10.49 | $0.00 |
| 2024 | 1463 | COROADS - COUNTY ROADS (ROADS, DIV TO CE) | $140.81 | $140.81 | $0.00 | $0.00 | $281.62 | $0.00 |
| 2024 | 1463 | PORTPT - PORT DISTRICT | $72.28 | $72.27 | $0.00 | $0.00 | $144.55 | $0.00 |
| 2024 | 1463 | PUD1 - PUD #1 | $11.50 | $11.49 | $0.00 | $0.00 | $22.99 | $0.00 |
| 2024 | 1463 | LIB1 - LIBRARY DIST #1 | $54.48 | $54.48 | $0.00 | $0.00 | $108.96 | $0.00 |
| 2024 | 1463 | HD2 - HOSP DIST #2 | $10.21 | $10.21 | $0.00 | $0.00 | $20.42 | $0.00 |
| 2024 | 1463 | SD50 - SCHOOL DIST #50 | $330.86 | $330.85 | $0.00 | $0.00 | $661.71 | $0.00 |
| 2024 | 1463 | FD1 - FIRE DISTRICT #1 | $231.38 | $231.38 | $0.00 | $0.00 | $462.76 | $0.00 |
| 2024 | 1463 | EMS1 - FIRE DIST #1 EMS | $88.38 | $88.38 | $0.00 | $0.00 | $176.76 | $0.00 |
| 2024 | 1463 | JCCD - JC Conservation District | $2.60 | $2.60 | $0.00 | $0.00 | $5.20 | $0.00 |
| 2024 | 1463 | NWA - Noxious Weed Assessment | $2.30 | $2.30 | $0.00 | $0.00 | $4.60 | $0.00 |
| 2024 | 1463 | OSS - On Site Septic | $21.00 | $21.00 | $0.00 | $0.00 | $42.00 | $0.00 |
| 2024 | 1463 | WAT - Clean Water District | $12.50 | $12.50 | $0.00 | $0.00 | $25.00 | $0.00 |
| 2024 | 1463 | TOTAL: | $1567.50 | $1567.44 | $0.00 | $0.00 | $3134.94 | $0.00 |
|
| 2024 | 1463 | $1567.50 | $1567.44 | $0.00 | $0.00 | $3134.94 | $0.00 |
Statement Details |
| 2023 | 1463 | STATE - STATE LEVY (SCHOOL) | $375.66 | $375.65 | $0.00 | $0.00 | $751.31 | $0.00 |
| 2023 | 1463 | COUNTY - COUNTY LEVIES (CE, DD, VET, MH) | $163.92 | $163.92 | $0.00 | $0.00 | $327.84 | $0.00 |
| 2023 | 1463 | CONSERVE - CONSERVATION FUTURES | $4.92 | $4.91 | $0.00 | $0.00 | $9.83 | $0.00 |
| 2023 | 1463 | COROADS - COUNTY ROADS (ROADS, DIV TO CE) | $132.64 | $132.62 | $0.00 | $0.00 | $265.26 | $0.00 |
| 2023 | 1463 | PORTPT - PORT DISTRICT | $69.06 | $69.05 | $0.00 | $0.00 | $138.11 | $0.00 |
| 2023 | 1463 | PUD1 - PUD #1 | $10.87 | $10.86 | $0.00 | $0.00 | $21.73 | $0.00 |
| 2023 | 1463 | LIB1 - LIBRARY DIST #1 | $51.31 | $51.31 | $0.00 | $0.00 | $102.62 | $0.00 |
| 2023 | 1463 | HD2 - HOSP DIST #2 | $9.58 | $9.56 | $0.00 | $0.00 | $19.14 | $0.00 |
| 2023 | 1463 | SD50 - SCHOOL DIST #50 | $298.10 | $298.08 | $0.00 | $0.00 | $596.18 | $0.00 |
| 2023 | 1463 | FD1 - FIRE DISTRICT #1 | $135.04 | $135.04 | $0.00 | $0.00 | $270.08 | $0.00 |
| 2023 | 1463 | EMS1 - FIRE DIST #1 EMS | $57.45 | $57.44 | $0.00 | $0.00 | $114.89 | $0.00 |
| 2023 | 1463 | JCCD - JC Conservation District | $2.60 | $2.60 | $0.00 | $0.00 | $5.20 | $0.00 |
| 2023 | 1463 | NWA - Noxious Weed Assessment | $2.30 | $2.30 | $0.00 | $0.00 | $4.60 | $0.00 |
| 2023 | 1463 | OSS - On Site Septic | $20.50 | $20.50 | $0.00 | $0.00 | $41.00 | $0.00 |
| 2023 | 1463 | WAT - Clean Water District | $12.00 | $12.00 | $0.00 | $0.00 | $24.00 | $0.00 |
| 2023 | 1463 | TOTAL: | $1345.95 | $1345.84 | $0.00 | $0.00 | $2691.79 | $0.00 |
|
| 2023 | 1463 | $1345.95 | $1345.84 | $0.00 | $0.00 | $2691.79 | $0.00 |
Statement Details |
| 2022 | 1466 | STATE - STATE LEVY (SCHOOL) | $333.56 | $333.55 | $0.00 | $0.00 | $667.11 | $0.00 |
| 2022 | 1466 | COUNTY - COUNTY LEVIES (CE, DD, VET, MH) | $148.64 | $148.61 | $0.00 | $0.00 | $297.25 | $0.00 |
| 2022 | 1466 | CONSERVE - CONSERVATION FUTURES | $4.46 | $4.45 | $0.00 | $0.00 | $8.91 | $0.00 |
| 2022 | 1466 | COROADS - COUNTY ROADS (ROADS, DIV TO CE) | $120.79 | $120.79 | $0.00 | $0.00 | $241.58 | $0.00 |
| 2022 | 1466 | PORTPT - PORT DISTRICT | $63.62 | $63.62 | $0.00 | $0.00 | $127.24 | $0.00 |
| 2022 | 1466 | PUD1 - PUD #1 | $9.94 | $9.94 | $0.00 | $0.00 | $19.88 | $0.00 |
| 2022 | 1466 | LIB1 - LIBRARY DIST #1 | $46.74 | $46.73 | $0.00 | $0.00 | $93.47 | $0.00 |
| 2022 | 1466 | HD2 - HOSP DIST #2 | $8.68 | $8.67 | $0.00 | $0.00 | $17.35 | $0.00 |
| 2022 | 1466 | SD50 - SCHOOL DIST #50 | $247.19 | $247.17 | $0.00 | $0.00 | $494.36 | $0.00 |
| 2022 | 1466 | FD1 - FIRE DISTRICT #1 | $121.92 | $121.92 | $0.00 | $0.00 | $243.84 | $0.00 |
| 2022 | 1466 | EMS1 - FIRE DIST #1 EMS | $51.86 | $51.86 | $0.00 | $0.00 | $103.72 | $0.00 |
| 2022 | 1466 | JCCD - JC Conservation District | $2.60 | $2.60 | $0.00 | $0.00 | $5.20 | $0.00 |
| 2022 | 1466 | NWA - Noxious Weed Assessment | $2.30 | $2.30 | $0.00 | $0.00 | $4.60 | $0.00 |
| 2022 | 1466 | OSS - On Site Septic | $19.50 | $19.50 | $0.00 | $0.00 | $39.00 | $0.00 |
| 2022 | 1466 | WAT - Clean Water District | $11.50 | $11.50 | $0.00 | $0.00 | $23.00 | $0.00 |
| 2022 | 1466 | TOTAL: | $1193.30 | $1193.21 | $0.00 | $0.00 | $2386.51 | $0.00 |
|
| 2022 | 1466 | $1193.30 | $1193.21 | $0.00 | $0.00 | $2386.51 | $0.00 |
Values
| (+) Improvement Homesite Value: | + | $0 | |
| (+) Improvement Non-Homesite Value: | + | $344,212 | |
| (+) Land Homesite Value: | + | $0 | |
| (+) Land Non-Homesite Value: | + | $77,253 | |
| (+) Curr Use (HS): | + | $0 | $0 |
| (+) Curr Use (NHS): | + | $0 | $0 |
| | | -------------------------- | |
| (=) Market Value: | = | $421,465 | |
| (–) Productivity Loss: | – | $0 | |
| | | -------------------------- | |
| (=) Subtotal: | = | $421,465 | |
| (+) Senior Appraised Value: | + | $0 | |
| (+) Non-Senior Appraised Value: | + | $421,465 | |
| | | -------------------------- | |
| (=) Total Appraised Value: | = | $421,465 | |
| (–) Senior Exemption Loss: | – | $0 | |
| (–) Exemption Loss: | – | $0 | |
| | | -------------------------- | |
| (=) Taxable Value: | = | $421,465 | |
Taxing Jurisdiction
| Owner: | JERRY LEE RUBERT | | |
| % Ownership: | 100.0000000000% | | |
| Total Value: | N/A | | |
| Tax Area: | 0111 - 1-50F1E1H2L1 |
| CE | COUNTY CURRENT EXPENSE | N/A | N/A | N/A | N/A | | |
| CNTYDD | DEVELOPMENTAL DISABILITIES | N/A | N/A | N/A | N/A | | |
| CNTYVET | VETERANS RELIEF | N/A | N/A | N/A | N/A | | |
| MENTAL | MENTAL HEALTH | N/A | N/A | N/A | N/A | | |
| ROADS | COUNTY ROADS | N/A | N/A | N/A | N/A | | |
| ROADSCU | COUNTY ROADS TO CUR EXP | N/A | N/A | N/A | N/A | | |
| HOSP2CASH | HOSP DIST #2 GENERAL | N/A | N/A | N/A | N/A | | |
| SCH50BOND | SCHOOL DIST #50 BOND 2016 | N/A | N/A | N/A | N/A | | |
| SCH50CP | SCHOOL DIST #50 CAP PROJ | N/A | N/A | N/A | N/A | | |
| SCH50MO | SCHOOL DIST #50 EP & O | N/A | N/A | N/A | N/A | | |
| CONSERVE | CONSERVATION FUTURES | N/A | N/A | N/A | N/A | | |
| EMS1 | FIRE DIST #1 EMS | N/A | N/A | N/A | N/A | | |
| FD1 | FIRE DIST #1 GENERAL | N/A | N/A | N/A | N/A | | |
| LIB1 | LIBRARY DIST #1 GENERAL | N/A | N/A | N/A | N/A | | |
| PORTPT | PORT OF PT GENERAL | N/A | N/A | N/A | N/A | | |
| PORTPTIDD | PORT OF PT IDD 2019 | N/A | N/A | N/A | N/A | | |
| PUD1 | PUD #1 GENERAL | N/A | N/A | N/A | N/A | | |
| STATE | STATE SCHOOL PART 1 | N/A | N/A | N/A | N/A | | |
| STATE2 | STATE SCHOOL PART 2 | N/A | N/A | N/A | N/A | | |
| | Total Tax Rate: | N/A | | | | | |
| | | | | Taxes w/Current Exemptions: | N/A | | |
| | | | | Taxes w/o Exemptions: | N/A | | |
Improvement / Building
| Improvement #1: | Manufactured Home | State Code: | 11 | 1855.0 sqft | Value: | $344,212 |
| Bathrooms (#): | 2 (FULL) | Bedrooms (#): | 3 | | Exterior Wall: | SI/ST | Foundation: | CONPR | | Heating/Cooling: | F/A | Roof Cover: | COMP |
|
| | Type | Description | Class CD | Sub Class CD | Year Built | Area |
| | MA | Main Area | 5 | MDBL | 2006 | 1855.0 |
| | MDECK | MH Deck | 5 | * | 2006 | 360.0 |
| | ADDN | Addition (Table Not Dep) | 3 | ADU | 2006 | 864.0 |
| | GDET | Detached Garage | 3 | * | 2006 | 1440.0 |
| | SHED | Shed (Table Not Dep) | 2- | * | 2006 | 0.0 |
Sketch
| No sketches available for this property. |
Property Image
Land
| 1 | 1575A | | 0.2600 | 11325.60 | 0.00 | 0.00 | 0.00 | $3,003 | $0 |
| 2 | 5375-1375S | | 1.0000 | 43560.00 | 0.00 | 0.00 | 1.00 | $74,250 | $0 |
Roll Value History
| 2025 | N/A | N/A | N/A | N/A | N/A |
| 2024 | $344,212 | $77,253 | $0 | $421,465 | $421,465 |
| 2023 | $285,161 | $68,355 | $0 | $353,516 | $353,516 |
| 2022 | $259,237 | $59,905 | $0 | $319,142 | $319,142 |
| 2021 | $196,392 | $47,592 | $0 | $243,984 | $243,984 |
Deed and Sales History
| 1 | 06/01/2003 | REC | Real Estate Contract | LARSON, TIMOTHY/KELLI RAE | RUBERT, JERRY LEE/TAMMI LYN | 0 | 0 | $30,000.00 | 97655 | 0 |
| 2 | 12/12/1994 | QCD | Quit Claim Deed | RUEDY, ZULA | LARSON, TIMOTHY L/KELLI RAE | 0 | 0 | $0.00 | 75941 | 0 |
Payout Agreement
| No payout information available.. |