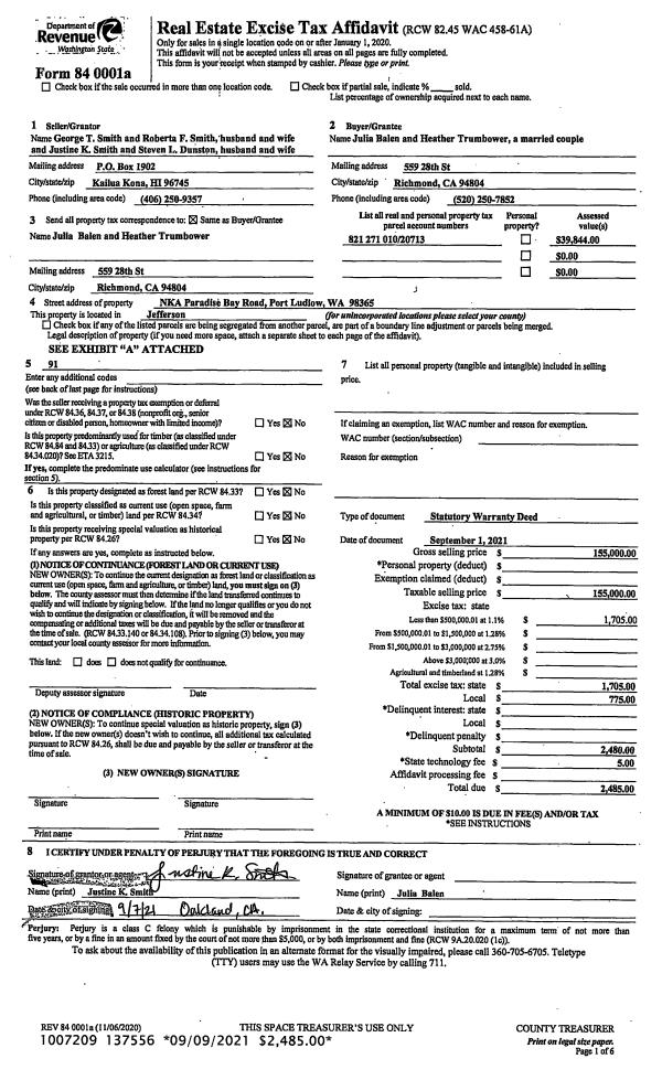
Property
Account |
| Property ID: | 11536 | Abbreviated Legal Description: | S32 T30 R1W TAX #51 T.L. TAX LL 1.50CH |
| Parcel # / Geo ID: | 001322024 | Agent Code: | |
| Type: | Real | | |
| Tax Area: | 0111 - 1-50F1E1H2L1 | Land Use Code | 91 |
| Open Space: | N | DFL | N |
| Historic Property: | N | Remodel Property: | N |
| Multi-Family Redevelopment: | N | | |
| Township: | 30N | Section: | 32 |
| Range: | 1W |
Location |
| Address: | | Mapsco: | 102/010 |
| Neighborhood: | S32 T30 R1W, ADELMA BCH, DISCO HEIGHTS | Map ID: | |
| Neighborhood CD: | 5375 |
Owner |
| Name: | SAMUEL B SWANSON II | Owner ID: | 104017 |
| Mailing Address: | 1136 NW CLONINGER CT SILVERDALE, WA 98383-8625 | % Ownership: | 100.0000000000% |
| | | Exemptions: | |
Pay Tax Due
There is currently No Amount Due on this property.
Taxes and Assessment Details
Property Tax Information as of
10/23/2025
Click on "Statement Details" to expand or collapse a tax statement.
* Please enter a valid date ** Please enter a valid date *
Statement Details |
| 2025 | 1484 | STATE - STATE LEVY (SCHOOL) | $3.31 | $3.29 | $0.00 | $0.00 | $6.60 | $0.00 |
| 2025 | 1484 | COUNTY - COUNTY LEVIES (CE, DD, VET, MH) | $1.31 | $1.27 | $0.00 | $0.00 | $2.58 | $0.00 |
| 2025 | 1484 | CONSERVE - CONSERVATION FUTURES | $0.04 | $0.04 | $0.00 | $0.00 | $0.08 | $0.00 |
| 2025 | 1484 | COROADS - COUNTY ROADS (ROADS, DIV TO CE) | $1.05 | $1.03 | $0.00 | $0.00 | $2.08 | $0.00 |
| 2025 | 1484 | PORTPT - PORT DISTRICT | $0.53 | $0.53 | $0.00 | $0.00 | $1.06 | $0.00 |
| 2025 | 1484 | PUD1 - PUD #1 | $0.09 | $0.08 | $0.00 | $0.00 | $0.17 | $0.00 |
| 2025 | 1484 | LIB1 - LIBRARY DIST #1 | $0.40 | $0.40 | $0.00 | $0.00 | $0.80 | $0.00 |
| 2025 | 1484 | HD2 - HOSP DIST #2 | $0.08 | $0.07 | $0.00 | $0.00 | $0.15 | $0.00 |
| 2025 | 1484 | SD50 - SCHOOL DIST #50 | $2.41 | $2.40 | $0.00 | $0.00 | $4.81 | $0.00 |
| 2025 | 1484 | FD1 - FIRE DISTRICT #1 | $1.71 | $1.71 | $0.00 | $0.00 | $3.42 | $0.00 |
| 2025 | 1484 | EMS1 - FIRE DIST #1 EMS | $0.66 | $0.66 | $0.00 | $0.00 | $1.32 | $0.00 |
| 2025 | 1484 | FPLCA - DNR Landowner Contingency Assmt | $3.00 | $3.00 | $0.00 | $0.00 | $6.00 | $0.00 |
| 2025 | 1484 | JCCD - JC Conservation District | $2.53 | $2.53 | $0.00 | $0.00 | $5.06 | $0.00 |
| 2025 | 1484 | NWA - Noxious Weed Assessment | $2.15 | $2.15 | $0.00 | $0.00 | $4.30 | $0.00 |
| 2025 | 1484 | WAT - Clean Water District | $13.00 | $13.00 | $0.00 | $0.00 | $26.00 | $0.00 |
| 2025 | 1484 | TOTAL: | $32.27 | $32.16 | $0.00 | $0.00 | $64.43 | $0.00 |
|
| 2025 | 1484 | $32.27 | $32.16 | $0.00 | $0.00 | $64.43 | $0.00 |
Statement Details |
| 2024 | 1486 | STATE - STATE LEVY (SCHOOL) | $3.04 | $3.03 | $0.00 | $0.00 | $6.07 | $0.00 |
| 2024 | 1486 | COUNTY - COUNTY LEVIES (CE, DD, VET, MH) | $1.31 | $1.27 | $0.00 | $0.00 | $2.58 | $0.00 |
| 2024 | 1486 | CONSERVE - CONSERVATION FUTURES | $0.04 | $0.04 | $0.00 | $0.00 | $0.08 | $0.00 |
| 2024 | 1486 | COROADS - COUNTY ROADS (ROADS, DIV TO CE) | $1.05 | $1.04 | $0.00 | $0.00 | $2.09 | $0.00 |
| 2024 | 1486 | PORTPT - PORT DISTRICT | $0.54 | $0.53 | $0.00 | $0.00 | $1.07 | $0.00 |
| 2024 | 1486 | PUD1 - PUD #1 | $0.09 | $0.08 | $0.00 | $0.00 | $0.17 | $0.00 |
| 2024 | 1486 | LIB1 - LIBRARY DIST #1 | $0.41 | $0.40 | $0.00 | $0.00 | $0.81 | $0.00 |
| 2024 | 1486 | HD2 - HOSP DIST #2 | $0.08 | $0.07 | $0.00 | $0.00 | $0.15 | $0.00 |
| 2024 | 1486 | SD50 - SCHOOL DIST #50 | $2.46 | $2.44 | $0.00 | $0.00 | $4.90 | $0.00 |
| 2024 | 1486 | FD1 - FIRE DISTRICT #1 | $1.72 | $1.72 | $0.00 | $0.00 | $3.44 | $0.00 |
| 2024 | 1486 | EMS1 - FIRE DIST #1 EMS | $0.66 | $0.65 | $0.00 | $0.00 | $1.31 | $0.00 |
| 2024 | 1486 | JCCD - JC Conservation District | $2.53 | $2.53 | $0.00 | $0.00 | $5.06 | $0.00 |
| 2024 | 1486 | NWA - Noxious Weed Assessment | $2.15 | $2.15 | $0.00 | $0.00 | $4.30 | $0.00 |
| 2024 | 1486 | WAT - Clean Water District | $12.50 | $12.50 | $0.00 | $0.00 | $25.00 | $0.00 |
| 2024 | 1486 | TOTAL: | $28.58 | $28.45 | $0.00 | $0.00 | $57.03 | $0.00 |
|
| 2024 | 1486 | $28.58 | $28.45 | $0.00 | $0.00 | $57.03 | $0.00 |
Statement Details |
| 2023 | 1486 | STATE - STATE LEVY (SCHOOL) | $2.95 | $2.93 | $0.00 | $0.00 | $5.88 | $0.00 |
| 2023 | 1486 | COUNTY - COUNTY LEVIES (CE, DD, VET, MH) | $1.29 | $1.26 | $0.00 | $0.00 | $2.55 | $0.00 |
| 2023 | 1486 | CONSERVE - CONSERVATION FUTURES | $0.04 | $0.04 | $0.00 | $0.00 | $0.08 | $0.00 |
| 2023 | 1486 | COROADS - COUNTY ROADS (ROADS, DIV TO CE) | $1.04 | $1.04 | $0.00 | $0.00 | $2.08 | $0.00 |
| 2023 | 1486 | PORTPT - PORT DISTRICT | $0.54 | $0.54 | $0.00 | $0.00 | $1.08 | $0.00 |
| 2023 | 1486 | PUD1 - PUD #1 | $0.09 | $0.08 | $0.00 | $0.00 | $0.17 | $0.00 |
| 2023 | 1486 | LIB1 - LIBRARY DIST #1 | $0.40 | $0.40 | $0.00 | $0.00 | $0.80 | $0.00 |
| 2023 | 1486 | HD2 - HOSP DIST #2 | $0.08 | $0.07 | $0.00 | $0.00 | $0.15 | $0.00 |
| 2023 | 1486 | SD50 - SCHOOL DIST #50 | $2.34 | $2.32 | $0.00 | $0.00 | $4.66 | $0.00 |
| 2023 | 1486 | FD1 - FIRE DISTRICT #1 | $1.06 | $1.06 | $0.00 | $0.00 | $2.12 | $0.00 |
| 2023 | 1486 | EMS1 - FIRE DIST #1 EMS | $0.45 | $0.45 | $0.00 | $0.00 | $0.90 | $0.00 |
| 2023 | 1486 | JCCD - JC Conservation District | $2.53 | $2.53 | $0.00 | $0.00 | $5.06 | $0.00 |
| 2023 | 1486 | NWA - Noxious Weed Assessment | $2.15 | $2.15 | $0.00 | $0.00 | $4.30 | $0.00 |
| 2023 | 1486 | WAT - Clean Water District | $12.00 | $12.00 | $0.00 | $0.00 | $24.00 | $0.00 |
| 2023 | 1486 | TOTAL: | $26.96 | $26.87 | $0.00 | $0.00 | $53.83 | $0.00 |
|
| 2023 | 1486 | $26.96 | $26.87 | $0.00 | $0.00 | $53.83 | $0.00 |
Statement Details |
| 2022 | 1489 | STATE - STATE LEVY (SCHOOL) | $3.02 | $3.00 | $0.00 | $0.00 | $6.02 | $0.00 |
| 2022 | 1489 | COUNTY - COUNTY LEVIES (CE, DD, VET, MH) | $1.35 | $1.34 | $0.00 | $0.00 | $2.69 | $0.00 |
| 2022 | 1489 | CONSERVE - CONSERVATION FUTURES | $0.04 | $0.04 | $0.00 | $0.00 | $0.08 | $0.00 |
| 2022 | 1489 | COROADS - COUNTY ROADS (ROADS, DIV TO CE) | $1.09 | $1.09 | $0.00 | $0.00 | $2.18 | $0.00 |
| 2022 | 1489 | PORTPT - PORT DISTRICT | $0.58 | $0.57 | $0.00 | $0.00 | $1.15 | $0.00 |
| 2022 | 1489 | PUD1 - PUD #1 | $0.09 | $0.09 | $0.00 | $0.00 | $0.18 | $0.00 |
| 2022 | 1489 | LIB1 - LIBRARY DIST #1 | $0.42 | $0.42 | $0.00 | $0.00 | $0.84 | $0.00 |
| 2022 | 1489 | HD2 - HOSP DIST #2 | $0.09 | $0.07 | $0.00 | $0.00 | $0.16 | $0.00 |
| 2022 | 1489 | SD50 - SCHOOL DIST #50 | $2.24 | $2.22 | $0.00 | $0.00 | $4.46 | $0.00 |
| 2022 | 1489 | FD1 - FIRE DISTRICT #1 | $1.10 | $1.10 | $0.00 | $0.00 | $2.20 | $0.00 |
| 2022 | 1489 | EMS1 - FIRE DIST #1 EMS | $0.47 | $0.47 | $0.00 | $0.00 | $0.94 | $0.00 |
| 2022 | 1489 | JCCD - JC Conservation District | $2.53 | $2.53 | $0.00 | $0.00 | $5.06 | $0.00 |
| 2022 | 1489 | NWA - Noxious Weed Assessment | $2.15 | $2.15 | $0.00 | $0.00 | $4.30 | $0.00 |
| 2022 | 1489 | WAT - Clean Water District | $11.50 | $11.50 | $0.00 | $0.00 | $23.00 | $0.00 |
| 2022 | 1489 | TOTAL: | $26.67 | $26.59 | $0.00 | $0.00 | $53.26 | $0.00 |
|
| 2022 | 1489 | $26.67 | $26.59 | $0.00 | $0.00 | $53.26 | $0.00 |
Values
| (+) Improvement Homesite Value: | + | $0 | |
| (+) Improvement Non-Homesite Value: | + | $0 | |
| (+) Land Homesite Value: | + | $0 | |
| (+) Land Non-Homesite Value: | + | $2,750 | |
| (+) Curr Use (HS): | + | $0 | $0 |
| (+) Curr Use (NHS): | + | $0 | $0 |
| | | -------------------------- | |
| (=) Market Value: | = | $2,750 | |
| (–) Productivity Loss: | – | $0 | |
| | | -------------------------- | |
| (=) Subtotal: | = | $2,750 | |
| (+) Senior Appraised Value: | + | $0 | |
| (+) Non-Senior Appraised Value: | + | $2,750 | |
| | | -------------------------- | |
| (=) Total Appraised Value: | = | $2,750 | |
| (–) Senior Exemption Loss: | – | $0 | |
| (–) Exemption Loss: | – | $0 | |
| | | -------------------------- | |
| (=) Taxable Value: | = | $2,750 | |
Taxing Jurisdiction
| Owner: | SAMUEL B SWANSON II | | |
| % Ownership: | 100.0000000000% | | |
| Total Value: | N/A | | |
| Tax Area: | 0111 - 1-50F1E1H2L1 |
| CE | COUNTY CURRENT EXPENSE | N/A | N/A | N/A | N/A | | |
| CNTYDD | DEVELOPMENTAL DISABILITIES | N/A | N/A | N/A | N/A | | |
| CNTYVET | VETERANS RELIEF | N/A | N/A | N/A | N/A | | |
| MENTAL | MENTAL HEALTH | N/A | N/A | N/A | N/A | | |
| ROADS | COUNTY ROADS | N/A | N/A | N/A | N/A | | |
| ROADSCU | COUNTY ROADS TO CUR EXP | N/A | N/A | N/A | N/A | | |
| HOSP2CASH | HOSP DIST #2 GENERAL | N/A | N/A | N/A | N/A | | |
| SCH50BOND | SCHOOL DIST #50 BOND 2016 | N/A | N/A | N/A | N/A | | |
| SCH50CP | SCHOOL DIST #50 CAP PROJ | N/A | N/A | N/A | N/A | | |
| SCH50MO | SCHOOL DIST #50 EP & O | N/A | N/A | N/A | N/A | | |
| CONSERVE | CONSERVATION FUTURES | N/A | N/A | N/A | N/A | | |
| EMS1 | FIRE DIST #1 EMS | N/A | N/A | N/A | N/A | | |
| FD1 | FIRE DIST #1 GENERAL | N/A | N/A | N/A | N/A | | |
| LIB1 | LIBRARY DIST #1 GENERAL | N/A | N/A | N/A | N/A | | |
| PORTPT | PORT OF PT GENERAL | N/A | N/A | N/A | N/A | | |
| PORTPTIDD | PORT OF PT IDD 2019 | N/A | N/A | N/A | N/A | | |
| PUD1 | PUD #1 GENERAL | N/A | N/A | N/A | N/A | | |
| STATE | STATE SCHOOL PART 1 | N/A | N/A | N/A | N/A | | |
| STATE2 | STATE SCHOOL PART 2 | N/A | N/A | N/A | N/A | | |
| | Total Tax Rate: | N/A | | | | | |
| | | | | Taxes w/Current Exemptions: | N/A | | |
| | | | | Taxes w/o Exemptions: | N/A | | |
Improvement / Building
Sketch
| No sketches available for this property. |
Property Image
Land
| 1 | 9301F | | 0.0000 | 0.00 | 0.00 | 0.00 | 0.00 | $2,750 | $0 |
Roll Value History
| 2025 | N/A | N/A | N/A | N/A | N/A |
| 2024 | $0 | $2,750 | $0 | $2,750 | $2,750 |
| 2023 | $0 | $2,625 | $0 | $2,625 | $2,625 |
| 2022 | $0 | $2,500 | $0 | $2,500 | $2,500 |
| 2021 | $0 | $2,200 | $0 | $2,200 | $2,200 |
Deed and Sales History
| 1 | 02/07/2022 | QCD | Quit Claim Deed | VALHALLA PROPERTY DEVELOPMENT LLC | SAMUEL B SWANSON II | | | | 138796 | |
| 2 | 02/07/2022 | QCD | Quit Claim Deed | VALHALLA PROPERTY DEVELOPMENT LLC | SAMUEL B SWANSON II | | | | 138579 | |
| 3 | 07/15/2015 | QCD | Quit Claim Deed | SAMUEL B SWANSON | VALHALLA PROPERTY DEVELOPMENT LLC | | | | 123639 | |
Payout Agreement
| No payout information available.. |