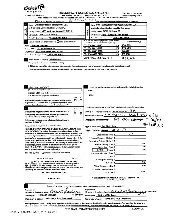
Property
Account |
| Property ID: | 11549 | Abbreviated Legal Description: | S32 T30 R1W TAX 4(E OF RR R/W LS E240') TAX 30,66(LS TAX 65&W/ADELMA RD) TAX RR5 (LESS N OF DISCO BAY RD) |
| Parcel # / Geo ID: | 001324003 | Agent Code: | |
| Type: | Real | | |
| Tax Area: | 0111 - 1-50F1E1H2L1 | Land Use Code | 24 |
| Open Space: | N | DFL | N |
| Historic Property: | N | Remodel Property: | N |
| Multi-Family Redevelopment: | N | | |
| Township: | 30N | Section: | 32 |
| Range: | 1W |
Location |
| Address: | 4640 S DISCOVERY RD PORT TOWNSEND, WA 98368 | Mapsco: | 101/017 |
| Neighborhood: | FOUR CORNERS COMMERCIAL AREA | Map ID: | |
| Neighborhood CD: | 5380C |
Owner |
| Name: | BRUCE B SETON JR | Owner ID: | 27053 |
| Mailing Address: | 4640 S DISCOVERY RD PORT TOWNSEND, WA 98368-9020 | % Ownership: | 100.0000000000% |
| | | Exemptions: | |
Pay Tax Due
Select the appropriate checkbox next to the year to be paid. Multiple years may be selected.
*Convenience Fee not included
Taxes and Assessment Details
Property Tax Information as of
10/23/2025
Click on "Statement Details" to expand or collapse a tax statement.
* Please enter a valid date ** Please enter a valid date *
Statement Details |
| 2025 | 1497 | STATE - STATE LEVY (SCHOOL) | $723.68 | $723.68 | $0.00 | $0.00 | $723.68 | $723.68 |
| 2025 | 1497 | COUNTY - COUNTY LEVIES (CE, DD, VET, MH) | $284.58 | $284.58 | $0.00 | $0.00 | $284.58 | $284.58 |
| 2025 | 1497 | CONSERVE - CONSERVATION FUTURES | $8.54 | $8.53 | $0.00 | $0.00 | $8.54 | $8.53 |
| 2025 | 1497 | COROADS - COUNTY ROADS (ROADS, DIV TO CE) | $228.00 | $227.99 | $0.00 | $0.00 | $228.00 | $227.99 |
| 2025 | 1497 | PORTPT - PORT DISTRICT | $116.13 | $116.12 | $0.00 | $0.00 | $116.13 | $116.12 |
| 2025 | 1497 | PUD1 - PUD #1 | $18.62 | $18.62 | $0.00 | $0.00 | $18.62 | $18.62 |
| 2025 | 1497 | LIB1 - LIBRARY DIST #1 | $88.21 | $88.21 | $0.00 | $0.00 | $88.21 | $88.21 |
| 2025 | 1497 | HD2 - HOSP DIST #2 | $16.61 | $16.60 | $0.00 | $0.00 | $16.61 | $16.60 |
| 2025 | 1497 | SD50 - SCHOOL DIST #50 | $528.90 | $528.88 | $0.00 | $0.00 | $528.90 | $528.88 |
| 2025 | 1497 | FD1 - FIRE DISTRICT #1 | $375.54 | $375.54 | $0.00 | $0.00 | $375.54 | $375.54 |
| 2025 | 1497 | EMS1 - FIRE DIST #1 EMS | $144.44 | $144.44 | $0.00 | $0.00 | $144.44 | $144.44 |
| 2025 | 1497 | FPLCA - DNR Landowner Contingency Assmt | $3.00 | $3.00 | $0.00 | $0.00 | $3.00 | $3.00 |
| 2025 | 1497 | JCCD - JC Conservation District | $3.13 | $3.13 | $0.00 | $0.00 | $3.13 | $3.13 |
| 2025 | 1497 | NWA - Noxious Weed Assessment | $4.40 | $4.40 | $0.00 | $0.00 | $4.40 | $4.40 |
| 2025 | 1497 | OSS - On Site Septic | $64.50 | $64.50 | $0.00 | $0.00 | $64.50 | $64.50 |
| 2025 | 1497 | WAT - Clean Water District | $13.00 | $13.00 | $0.00 | $0.00 | $13.00 | $13.00 |
| 2025 | 1497 | TOTAL: | $2621.28 | $2621.22 | $0.00 | $0.00 | $2621.28 | $2621.22 |
|
| 2025 | 1497 | $2621.28 | $2621.22 | $0.00 | $0.00 | $2621.28 | $2621.22 |
Statement Details |
| 2024 | 1499 | STATE - STATE LEVY (SCHOOL) | $670.61 | $670.59 | $0.00 | $0.00 | $1341.20 | $0.00 |
| 2024 | 1499 | COUNTY - COUNTY LEVIES (CE, DD, VET, MH) | $286.96 | $286.95 | $0.00 | $0.00 | $573.91 | $0.00 |
| 2024 | 1499 | CONSERVE - CONSERVATION FUTURES | $8.61 | $8.60 | $0.00 | $0.00 | $17.21 | $0.00 |
| 2024 | 1499 | COROADS - COUNTY ROADS (ROADS, DIV TO CE) | $230.91 | $230.90 | $0.00 | $0.00 | $461.81 | $0.00 |
| 2024 | 1499 | PORTPT - PORT DISTRICT | $118.53 | $118.52 | $0.00 | $0.00 | $237.05 | $0.00 |
| 2024 | 1499 | PUD1 - PUD #1 | $18.85 | $18.85 | $0.00 | $0.00 | $37.70 | $0.00 |
| 2024 | 1499 | LIB1 - LIBRARY DIST #1 | $89.34 | $89.33 | $0.00 | $0.00 | $178.67 | $0.00 |
| 2024 | 1499 | HD2 - HOSP DIST #2 | $16.75 | $16.74 | $0.00 | $0.00 | $33.49 | $0.00 |
| 2024 | 1499 | SD50 - SCHOOL DIST #50 | $542.56 | $542.54 | $0.00 | $0.00 | $1085.10 | $0.00 |
| 2024 | 1499 | FD1 - FIRE DISTRICT #1 | $379.43 | $379.42 | $0.00 | $0.00 | $758.85 | $0.00 |
| 2024 | 1499 | EMS1 - FIRE DIST #1 EMS | $144.93 | $144.92 | $0.00 | $0.00 | $289.85 | $0.00 |
| 2024 | 1499 | FPLCA - DNR Landowner Contingency Assmt | $3.00 | $3.00 | $0.00 | $0.00 | $6.00 | $0.00 |
| 2024 | 1499 | JCCD - JC Conservation District | $3.13 | $3.13 | $0.00 | $0.00 | $6.26 | $0.00 |
| 2024 | 1499 | NWA - Noxious Weed Assessment | $4.40 | $4.40 | $0.00 | $0.00 | $8.80 | $0.00 |
| 2024 | 1499 | OSS - On Site Septic | $63.00 | $63.00 | $0.00 | $0.00 | $126.00 | $0.00 |
| 2024 | 1499 | WAT - Clean Water District | $12.50 | $12.50 | $0.00 | $0.00 | $25.00 | $0.00 |
| 2024 | 1499 | TOTAL: | $2593.51 | $2593.39 | $0.00 | $0.00 | $5186.90 | $0.00 |
|
| 2024 | 1499 | $2593.51 | $2593.39 | $0.00 | $0.00 | $5186.90 | $0.00 |
Statement Details |
| 2023 | 1499 | STATE - STATE LEVY (SCHOOL) | $409.77 | $409.76 | $0.00 | $0.00 | $819.53 | $0.00 |
| 2023 | 1499 | COUNTY - COUNTY LEVIES (CE, DD, VET, MH) | $178.82 | $178.80 | $0.00 | $0.00 | $357.62 | $0.00 |
| 2023 | 1499 | CONSERVE - CONSERVATION FUTURES | $5.36 | $5.36 | $0.00 | $0.00 | $10.72 | $0.00 |
| 2023 | 1499 | COROADS - COUNTY ROADS (ROADS, DIV TO CE) | $144.67 | $144.66 | $0.00 | $0.00 | $289.33 | $0.00 |
| 2023 | 1499 | PORTPT - PORT DISTRICT | $75.33 | $75.32 | $0.00 | $0.00 | $150.65 | $0.00 |
| 2023 | 1499 | PUD1 - PUD #1 | $11.86 | $11.85 | $0.00 | $0.00 | $23.71 | $0.00 |
| 2023 | 1499 | LIB1 - LIBRARY DIST #1 | $55.97 | $55.97 | $0.00 | $0.00 | $111.94 | $0.00 |
| 2023 | 1499 | HD2 - HOSP DIST #2 | $10.44 | $10.43 | $0.00 | $0.00 | $20.87 | $0.00 |
| 2023 | 1499 | SD50 - SCHOOL DIST #50 | $325.16 | $325.15 | $0.00 | $0.00 | $650.31 | $0.00 |
| 2023 | 1499 | FD1 - FIRE DISTRICT #1 | $147.30 | $147.30 | $0.00 | $0.00 | $294.60 | $0.00 |
| 2023 | 1499 | EMS1 - FIRE DIST #1 EMS | $62.66 | $62.66 | $0.00 | $0.00 | $125.32 | $0.00 |
| 2023 | 1499 | FPLCA - DNR Landowner Contingency Assmt | $3.00 | $3.00 | $0.00 | $0.00 | $6.00 | $0.00 |
| 2023 | 1499 | JCCD - JC Conservation District | $3.13 | $3.13 | $0.00 | $0.00 | $6.26 | $0.00 |
| 2023 | 1499 | NWA - Noxious Weed Assessment | $4.40 | $4.40 | $0.00 | $0.00 | $8.80 | $0.00 |
| 2023 | 1499 | OSS - On Site Septic | $61.50 | $61.50 | $0.00 | $0.00 | $123.00 | $0.00 |
| 2023 | 1499 | WAT - Clean Water District | $12.00 | $12.00 | $0.00 | $0.00 | $24.00 | $0.00 |
| 2023 | 1499 | TOTAL: | $1511.37 | $1511.29 | $0.00 | $0.00 | $3022.66 | $0.00 |
|
| 2023 | 1499 | $1511.37 | $1511.29 | $0.00 | $0.00 | $3022.66 | $0.00 |
Statement Details |
| 2022 | 1502 | STATE - STATE LEVY (SCHOOL) | $424.78 | $424.77 | $0.00 | $0.00 | $849.55 | $0.00 |
| 2022 | 1502 | COUNTY - COUNTY LEVIES (CE, DD, VET, MH) | $189.28 | $189.24 | $0.00 | $0.00 | $378.52 | $0.00 |
| 2022 | 1502 | CONSERVE - CONSERVATION FUTURES | $5.68 | $5.67 | $0.00 | $0.00 | $11.35 | $0.00 |
| 2022 | 1502 | COROADS - COUNTY ROADS (ROADS, DIV TO CE) | $153.83 | $153.82 | $0.00 | $0.00 | $307.65 | $0.00 |
| 2022 | 1502 | PORTPT - PORT DISTRICT | $81.03 | $81.02 | $0.00 | $0.00 | $162.05 | $0.00 |
| 2022 | 1502 | PUD1 - PUD #1 | $12.66 | $12.65 | $0.00 | $0.00 | $25.31 | $0.00 |
| 2022 | 1502 | LIB1 - LIBRARY DIST #1 | $59.52 | $59.51 | $0.00 | $0.00 | $119.03 | $0.00 |
| 2022 | 1502 | HD2 - HOSP DIST #2 | $11.06 | $11.04 | $0.00 | $0.00 | $22.10 | $0.00 |
| 2022 | 1502 | SD50 - SCHOOL DIST #50 | $314.79 | $314.77 | $0.00 | $0.00 | $629.56 | $0.00 |
| 2022 | 1502 | FD1 - FIRE DISTRICT #1 | $155.27 | $155.26 | $0.00 | $0.00 | $310.53 | $0.00 |
| 2022 | 1502 | EMS1 - FIRE DIST #1 EMS | $66.05 | $66.04 | $0.00 | $0.00 | $132.09 | $0.00 |
| 2022 | 1502 | FPLCA - DNR Landowner Contingency Assmt | $3.00 | $3.00 | $0.00 | $0.00 | $6.00 | $0.00 |
| 2022 | 1502 | JCCD - JC Conservation District | $3.13 | $3.13 | $0.00 | $0.00 | $6.26 | $0.00 |
| 2022 | 1502 | NWA - Noxious Weed Assessment | $4.40 | $4.40 | $0.00 | $0.00 | $8.80 | $0.00 |
| 2022 | 1502 | OSS - On Site Septic | $58.50 | $58.50 | $0.00 | $0.00 | $117.00 | $0.00 |
| 2022 | 1502 | WAT - Clean Water District | $11.50 | $11.50 | $0.00 | $0.00 | $23.00 | $0.00 |
| 2022 | 1502 | TOTAL: | $1554.48 | $1554.32 | $0.00 | $0.00 | $3108.80 | $0.00 |
|
| 2022 | 1502 | $1554.48 | $1554.32 | $0.00 | $0.00 | $3108.80 | $0.00 |
Values
| (+) Improvement Homesite Value: | + | $0 | |
| (+) Improvement Non-Homesite Value: | + | $412,448 | |
| (+) Land Homesite Value: | + | $0 | |
| (+) Land Non-Homesite Value: | + | $191,115 | |
| (+) Curr Use (HS): | + | $0 | $0 |
| (+) Curr Use (NHS): | + | $0 | $0 |
| | | -------------------------- | |
| (=) Market Value: | = | $603,563 | |
| (–) Productivity Loss: | – | $0 | |
| | | -------------------------- | |
| (=) Subtotal: | = | $603,563 | |
| (+) Senior Appraised Value: | + | $0 | |
| (+) Non-Senior Appraised Value: | + | $603,563 | |
| | | -------------------------- | |
| (=) Total Appraised Value: | = | $603,563 | |
| (–) Senior Exemption Loss: | – | $0 | |
| (–) Exemption Loss: | – | $0 | |
| | | -------------------------- | |
| (=) Taxable Value: | = | $603,563 | |
Taxing Jurisdiction
| Owner: | BRUCE B SETON JR | | |
| % Ownership: | 100.0000000000% | | |
| Total Value: | N/A | | |
| Tax Area: | 0111 - 1-50F1E1H2L1 |
| CE | COUNTY CURRENT EXPENSE | N/A | N/A | N/A | N/A | | |
| CNTYDD | DEVELOPMENTAL DISABILITIES | N/A | N/A | N/A | N/A | | |
| CNTYVET | VETERANS RELIEF | N/A | N/A | N/A | N/A | | |
| MENTAL | MENTAL HEALTH | N/A | N/A | N/A | N/A | | |
| ROADS | COUNTY ROADS | N/A | N/A | N/A | N/A | | |
| ROADSCU | COUNTY ROADS TO CUR EXP | N/A | N/A | N/A | N/A | | |
| HOSP2CASH | HOSP DIST #2 GENERAL | N/A | N/A | N/A | N/A | | |
| SCH50BOND | SCHOOL DIST #50 BOND 2016 | N/A | N/A | N/A | N/A | | |
| SCH50CP | SCHOOL DIST #50 CAP PROJ | N/A | N/A | N/A | N/A | | |
| SCH50MO | SCHOOL DIST #50 EP & O | N/A | N/A | N/A | N/A | | |
| CONSERVE | CONSERVATION FUTURES | N/A | N/A | N/A | N/A | | |
| EMS1 | FIRE DIST #1 EMS | N/A | N/A | N/A | N/A | | |
| FD1 | FIRE DIST #1 GENERAL | N/A | N/A | N/A | N/A | | |
| LIB1 | LIBRARY DIST #1 GENERAL | N/A | N/A | N/A | N/A | | |
| PORTPT | PORT OF PT GENERAL | N/A | N/A | N/A | N/A | | |
| PORTPTIDD | PORT OF PT IDD 2019 | N/A | N/A | N/A | N/A | | |
| PUD1 | PUD #1 GENERAL | N/A | N/A | N/A | N/A | | |
| STATE | STATE SCHOOL PART 1 | N/A | N/A | N/A | N/A | | |
| STATE2 | STATE SCHOOL PART 2 | N/A | N/A | N/A | N/A | | |
| | Total Tax Rate: | N/A | | | | | |
| | | | | Taxes w/Current Exemptions: | N/A | | |
| | | | | Taxes w/o Exemptions: | N/A | | |
Improvement / Building
| Improvement #1: | Commercial/Industrial/Government Bldg | State Code: | 64 | 2800.0 sqft | Value: | $19,052 |
| Exterior Wall: | METAL | Floor Construction: | CONCR | | Foundation: | CONPR | Interior Finish: | UNFIN | | Roof Cover: | METAL |   |   |
|
| Improvement #2: | Commercial/Industrial/Government Bldg | State Code: | 64 | 2200.0 sqft | Value: | $16,563 |
| Exterior Wall: | METAL | Floor Construction: | CONCR | | Foundation: | CONPR | Interior Finish: | UNFIN | | Roof Cover: | METAL |   |   |
|
| Improvement #3: | Commercial/Industrial/Government Bldg | State Code: | 64 | 1600.0 sqft | Value: | $11,273 |
| Exterior Wall: | METAL | Floor Construction: | CONCR | | Foundation: | CONPR | Interior Finish: | UNFIN | | Roof Cover: | METAL |   |   |
|
| Improvement #4: | Commercial/Industrial/Government Bldg | State Code: | 64 | 880.0 sqft | Value: | $6,220 |
| Exterior Wall: | METAL | Floor Construction: | CONCR | | Foundation: | CONPR | Interior Finish: | UNFIN | | Roof Cover: | METAL |   |   |
|
| Improvement #5: | Commercial/Industrial/Government Bldg | State Code: | 64 | 400.0 sqft | Value: | $3,139 |
| Exterior Wall: | METAL | Floor Construction: | CONCR | | Foundation: | CONPR | Interior Finish: | UNFIN | | Roof Cover: | METAL |   |   |
|
| Improvement #6: | Commercial/Industrial/Government Bldg | State Code: | 64 | 3543.0 sqft | Value: | $150,899 |
| Exterior Wall: | MASON | Floor Construction: | CONCR | | Foundation: | CONPR | Heating/Cooling: | HPUMP | | Interior Finish: | UNFIN | Roof Cover: | METAL |
|
| Improvement #7: | Residential Bldg | State Code: | 19 | 772.0 sqft | Value: | $2,667 |
| Bathrooms (#): | 1 (FULL) | Bedrooms (#): | 1 | | Exterior Wall: | PL/T1 | Floor Construction: | FRAME | | Foundation: | PO&BL | Heating/Cooling: | ELBB | | Inside Verify: | NO | Roof Cover: | SHAKE |
|
| Improvement #8: | Commercial/Industrial/Government Bldg | State Code: | 64 | 2494.0 sqft | Value: | $202,635 |
| Bathrooms (#): | 3 (FULL) | Exterior Wall: | PL/T1 | | Foundation: | CONPR | Heating/Cooling: | HPUMP | | Roof Cover: | COMP |   |   |
|
Sketch
Property Image
Land
| 1 | 1776A | | 14.9800 | 652528.80 | 0.00 | 0.00 | 0.00 | $101,115 | $0 |
| 2 | 5375-1375S | | 1.0000 | 43560.00 | 0.00 | 0.00 | 1.00 | $90,000 | $0 |
Roll Value History
| 2025 | N/A | N/A | N/A | N/A | N/A |
| 2024 | $412,448 | $191,115 | $0 | $603,563 | $603,563 |
| 2023 | $412,333 | $167,370 | $0 | $579,703 | $579,703 |
| 2022 | $193,239 | $154,880 | $0 | $348,119 | $348,119 |
| 2021 | $185,806 | $124,900 | $0 | $310,706 | $310,706 |
Deed and Sales History
| 1 | 01/24/2015 | QCD | Quit Claim Deed | W E SETON & MARILYN SETON RECOVABLE TRUST | BRUCE B SETON JR | | | | 122655 | |
| 2 | 05/21/2014 | WD | Warranty Deed | W E SETON | W E SETON & MARILYN SETON RECOVABLE TRUST | | | | 121209 | |
| 3 | 04/06/1992 | QCD | Quit Claim Deed | SETON, W.E./MARILYN | SIMCOE, JAMES D/FRIEDA M | 0 | 0 | $3,000.00 | 68082 | 0 |
Payout Agreement
| No payout information available.. |