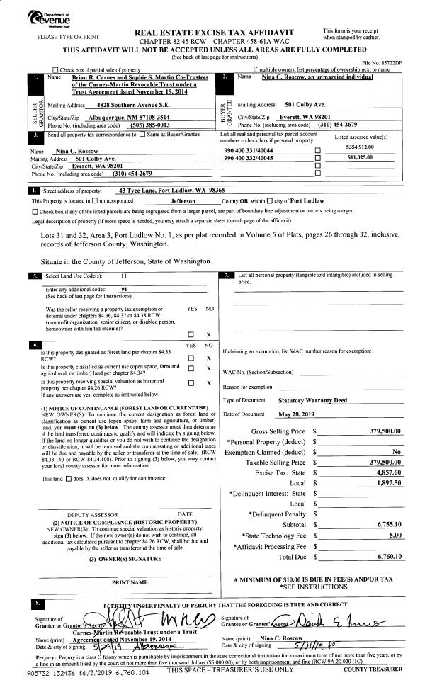
Property
Account |
| Property ID: | 11562 | Abbreviated Legal Description: | S32 T30 R1W TAX #44 |
| Parcel # / Geo ID: | 001324017 | Agent Code: | |
| Type: | Real | | |
| Tax Area: | 0111 - 1-50F1E1H2L1 | Land Use Code | 11 |
| Open Space: | N | DFL | N |
| Historic Property: | N | Remodel Property: | N |
| Multi-Family Redevelopment: | N | | |
| Township: | 30N | Section: | 32 |
| Range: | 1W |
Location |
| Address: | 4392 S DISCOVERY RD PORT TOWNSEND, WA 98368 | Mapsco: | 102/004 |
| Neighborhood: | S32 T30 R1W, ADELMA BCH, DISCO HEIGHTS | Map ID: | |
| Neighborhood CD: | 5375 |
Owner |
| Name: | CARRIE L GRISWOLD | Owner ID: | 101802 |
| Mailing Address: | SUSAN L LARSON 4392 S DISCOVERY RD PORT TOWNSEND, WA 98368-9017 | % Ownership: | 100.0000000000% |
| | | Exemptions: | |
Pay Tax Due
There is currently No Amount Due on this property.
Taxes and Assessment Details
Property Tax Information as of
10/23/2025
Click on "Statement Details" to expand or collapse a tax statement.
* Please enter a valid date ** Please enter a valid date *
Statement Details |
| 2025 | 1508 | STATE - STATE LEVY (SCHOOL) | $482.90 | $482.90 | $0.00 | $0.00 | $965.80 | $0.00 |
| 2025 | 1508 | COUNTY - COUNTY LEVIES (CE, DD, VET, MH) | $189.91 | $189.89 | $0.00 | $0.00 | $379.80 | $0.00 |
| 2025 | 1508 | CONSERVE - CONSERVATION FUTURES | $5.70 | $5.69 | $0.00 | $0.00 | $11.39 | $0.00 |
| 2025 | 1508 | COROADS - COUNTY ROADS (ROADS, DIV TO CE) | $152.14 | $152.13 | $0.00 | $0.00 | $304.27 | $0.00 |
| 2025 | 1508 | PORTPT - PORT DISTRICT | $77.49 | $77.49 | $0.00 | $0.00 | $154.98 | $0.00 |
| 2025 | 1508 | PUD1 - PUD #1 | $12.43 | $12.42 | $0.00 | $0.00 | $24.85 | $0.00 |
| 2025 | 1508 | LIB1 - LIBRARY DIST #1 | $58.86 | $58.86 | $0.00 | $0.00 | $117.72 | $0.00 |
| 2025 | 1508 | HD2 - HOSP DIST #2 | $11.08 | $11.08 | $0.00 | $0.00 | $22.16 | $0.00 |
| 2025 | 1508 | SD50 - SCHOOL DIST #50 | $352.93 | $352.91 | $0.00 | $0.00 | $705.84 | $0.00 |
| 2025 | 1508 | FD1 - FIRE DISTRICT #1 | $250.59 | $250.59 | $0.00 | $0.00 | $501.18 | $0.00 |
| 2025 | 1508 | EMS1 - FIRE DIST #1 EMS | $96.39 | $96.38 | $0.00 | $0.00 | $192.77 | $0.00 |
| 2025 | 1508 | JCCD - JC Conservation District | $2.55 | $2.55 | $0.00 | $0.00 | $5.10 | $0.00 |
| 2025 | 1508 | NWA - Noxious Weed Assessment | $2.15 | $2.15 | $0.00 | $0.00 | $4.30 | $0.00 |
| 2025 | 1508 | OSS - On Site Septic | $21.50 | $21.50 | $0.00 | $0.00 | $43.00 | $0.00 |
| 2025 | 1508 | WAT - Clean Water District | $13.00 | $13.00 | $0.00 | $0.00 | $26.00 | $0.00 |
| 2025 | 1508 | TOTAL: | $1729.62 | $1729.54 | $0.00 | $0.00 | $3459.16 | $0.00 |
|
| 2025 | 1508 | $1729.62 | $1729.54 | $0.00 | $0.00 | $3459.16 | $0.00 |
Statement Details |
| 2024 | 1511 | STATE - STATE LEVY (SCHOOL) | $340.95 | $340.95 | $0.00 | $0.00 | $681.90 | $0.00 |
| 2024 | 1511 | COUNTY - COUNTY LEVIES (CE, DD, VET, MH) | $145.92 | $145.88 | $0.00 | $0.00 | $291.80 | $0.00 |
| 2024 | 1511 | CONSERVE - CONSERVATION FUTURES | $4.38 | $4.37 | $0.00 | $0.00 | $8.75 | $0.00 |
| 2024 | 1511 | COROADS - COUNTY ROADS (ROADS, DIV TO CE) | $117.40 | $117.39 | $0.00 | $0.00 | $234.79 | $0.00 |
| 2024 | 1511 | PORTPT - PORT DISTRICT | $60.27 | $60.25 | $0.00 | $0.00 | $120.52 | $0.00 |
| 2024 | 1511 | PUD1 - PUD #1 | $9.59 | $9.58 | $0.00 | $0.00 | $19.17 | $0.00 |
| 2024 | 1511 | LIB1 - LIBRARY DIST #1 | $45.42 | $45.42 | $0.00 | $0.00 | $90.84 | $0.00 |
| 2024 | 1511 | HD2 - HOSP DIST #2 | $8.52 | $8.51 | $0.00 | $0.00 | $17.03 | $0.00 |
| 2024 | 1511 | SD50 - SCHOOL DIST #50 | $275.85 | $275.83 | $0.00 | $0.00 | $551.68 | $0.00 |
| 2024 | 1511 | FD1 - FIRE DISTRICT #1 | $192.91 | $192.91 | $0.00 | $0.00 | $385.82 | $0.00 |
| 2024 | 1511 | EMS1 - FIRE DIST #1 EMS | $73.69 | $73.68 | $0.00 | $0.00 | $147.37 | $0.00 |
| 2024 | 1511 | JCCD - JC Conservation District | $2.55 | $2.55 | $0.00 | $0.00 | $5.10 | $0.00 |
| 2024 | 1511 | NWA - Noxious Weed Assessment | $2.15 | $2.15 | $0.00 | $0.00 | $4.30 | $0.00 |
| 2024 | 1511 | OSS - On Site Septic | $21.00 | $21.00 | $0.00 | $0.00 | $42.00 | $0.00 |
| 2024 | 1511 | WAT - Clean Water District | $12.50 | $12.50 | $0.00 | $0.00 | $25.00 | $0.00 |
| 2024 | 1511 | TOTAL: | $1313.10 | $1312.97 | $0.00 | $0.00 | $2626.07 | $0.00 |
|
| 2024 | 1511 | $1313.10 | $1312.97 | $0.00 | $0.00 | $2626.07 | $0.00 |
Statement Details |
| 2023 | 1511 | STATE - STATE LEVY (SCHOOL) | $315.02 | $315.00 | $0.00 | $0.00 | $630.02 | $0.00 |
| 2023 | 1511 | COUNTY - COUNTY LEVIES (CE, DD, VET, MH) | $137.46 | $137.46 | $0.00 | $0.00 | $274.92 | $0.00 |
| 2023 | 1511 | CONSERVE - CONSERVATION FUTURES | $4.12 | $4.12 | $0.00 | $0.00 | $8.24 | $0.00 |
| 2023 | 1511 | COROADS - COUNTY ROADS (ROADS, DIV TO CE) | $111.22 | $111.21 | $0.00 | $0.00 | $222.43 | $0.00 |
| 2023 | 1511 | PORTPT - PORT DISTRICT | $57.92 | $57.90 | $0.00 | $0.00 | $115.82 | $0.00 |
| 2023 | 1511 | PUD1 - PUD #1 | $9.11 | $9.11 | $0.00 | $0.00 | $18.22 | $0.00 |
| 2023 | 1511 | LIB1 - LIBRARY DIST #1 | $43.03 | $43.03 | $0.00 | $0.00 | $86.06 | $0.00 |
| 2023 | 1511 | HD2 - HOSP DIST #2 | $8.03 | $8.01 | $0.00 | $0.00 | $16.04 | $0.00 |
| 2023 | 1511 | SD50 - SCHOOL DIST #50 | $249.98 | $249.95 | $0.00 | $0.00 | $499.93 | $0.00 |
| 2023 | 1511 | FD1 - FIRE DISTRICT #1 | $113.24 | $113.24 | $0.00 | $0.00 | $226.48 | $0.00 |
| 2023 | 1511 | EMS1 - FIRE DIST #1 EMS | $48.17 | $48.17 | $0.00 | $0.00 | $96.34 | $0.00 |
| 2023 | 1511 | JCCD - JC Conservation District | $2.55 | $2.55 | $0.00 | $0.00 | $5.10 | $0.00 |
| 2023 | 1511 | NWA - Noxious Weed Assessment | $2.15 | $2.15 | $0.00 | $0.00 | $4.30 | $0.00 |
| 2023 | 1511 | OSS - On Site Septic | $20.50 | $20.50 | $0.00 | $0.00 | $41.00 | $0.00 |
| 2023 | 1511 | WAT - Clean Water District | $12.00 | $12.00 | $0.00 | $0.00 | $24.00 | $0.00 |
| 2023 | 1511 | TOTAL: | $1134.50 | $1134.40 | $0.00 | $0.00 | $2268.90 | $0.00 |
|
| 2023 | 1511 | $1134.50 | $1134.40 | $0.00 | $0.00 | $2268.90 | $0.00 |
Statement Details |
| 2022 | 1514 | STATE - STATE LEVY (SCHOOL) | $295.99 | $295.99 | $0.00 | $0.00 | $591.98 | $0.00 |
| 2022 | 1514 | COUNTY - COUNTY LEVIES (CE, DD, VET, MH) | $131.89 | $131.88 | $0.00 | $0.00 | $263.77 | $0.00 |
| 2022 | 1514 | CONSERVE - CONSERVATION FUTURES | $3.96 | $3.95 | $0.00 | $0.00 | $7.91 | $0.00 |
| 2022 | 1514 | COROADS - COUNTY ROADS (ROADS, DIV TO CE) | $107.19 | $107.18 | $0.00 | $0.00 | $214.37 | $0.00 |
| 2022 | 1514 | PORTPT - PORT DISTRICT | $56.47 | $56.45 | $0.00 | $0.00 | $112.92 | $0.00 |
| 2022 | 1514 | PUD1 - PUD #1 | $8.82 | $8.82 | $0.00 | $0.00 | $17.64 | $0.00 |
| 2022 | 1514 | LIB1 - LIBRARY DIST #1 | $41.47 | $41.47 | $0.00 | $0.00 | $82.94 | $0.00 |
| 2022 | 1514 | HD2 - HOSP DIST #2 | $7.70 | $7.70 | $0.00 | $0.00 | $15.40 | $0.00 |
| 2022 | 1514 | SD50 - SCHOOL DIST #50 | $219.35 | $219.33 | $0.00 | $0.00 | $438.68 | $0.00 |
| 2022 | 1514 | FD1 - FIRE DISTRICT #1 | $108.19 | $108.19 | $0.00 | $0.00 | $216.38 | $0.00 |
| 2022 | 1514 | EMS1 - FIRE DIST #1 EMS | $46.02 | $46.02 | $0.00 | $0.00 | $92.04 | $0.00 |
| 2022 | 1514 | JCCD - JC Conservation District | $2.55 | $2.55 | $0.00 | $0.00 | $5.10 | $0.00 |
| 2022 | 1514 | NWA - Noxious Weed Assessment | $2.15 | $2.15 | $0.00 | $0.00 | $4.30 | $0.00 |
| 2022 | 1514 | OSS - On Site Septic | $19.50 | $19.50 | $0.00 | $0.00 | $39.00 | $0.00 |
| 2022 | 1514 | WAT - Clean Water District | $11.50 | $11.50 | $0.00 | $0.00 | $23.00 | $0.00 |
| 2022 | 1514 | TOTAL: | $1062.75 | $1062.68 | $0.00 | $0.00 | $2125.43 | $0.00 |
|
| 2022 | 1514 | $1062.75 | $1062.68 | $0.00 | $0.00 | $2125.43 | $0.00 |
Values
| (+) Improvement Homesite Value: | + | $0 | |
| (+) Improvement Non-Homesite Value: | + | $283,947 | |
| (+) Land Homesite Value: | + | $0 | |
| (+) Land Non-Homesite Value: | + | $118,800 | |
| (+) Curr Use (HS): | + | $0 | $0 |
| (+) Curr Use (NHS): | + | $0 | $0 |
| | | -------------------------- | |
| (=) Market Value: | = | $402,747 | |
| (–) Productivity Loss: | – | $0 | |
| | | -------------------------- | |
| (=) Subtotal: | = | $402,747 | |
| (+) Senior Appraised Value: | + | $0 | |
| (+) Non-Senior Appraised Value: | + | $402,747 | |
| | | -------------------------- | |
| (=) Total Appraised Value: | = | $402,747 | |
| (–) Senior Exemption Loss: | – | $0 | |
| (–) Exemption Loss: | – | $0 | |
| | | -------------------------- | |
| (=) Taxable Value: | = | $402,747 | |
Taxing Jurisdiction
| Owner: | CARRIE L GRISWOLD | | |
| % Ownership: | 100.0000000000% | | |
| Total Value: | N/A | | |
| Tax Area: | 0111 - 1-50F1E1H2L1 |
| CE | COUNTY CURRENT EXPENSE | N/A | N/A | N/A | N/A | | |
| CNTYDD | DEVELOPMENTAL DISABILITIES | N/A | N/A | N/A | N/A | | |
| CNTYVET | VETERANS RELIEF | N/A | N/A | N/A | N/A | | |
| MENTAL | MENTAL HEALTH | N/A | N/A | N/A | N/A | | |
| ROADS | COUNTY ROADS | N/A | N/A | N/A | N/A | | |
| ROADSCU | COUNTY ROADS TO CUR EXP | N/A | N/A | N/A | N/A | | |
| HOSP2CASH | HOSP DIST #2 GENERAL | N/A | N/A | N/A | N/A | | |
| SCH50BOND | SCHOOL DIST #50 BOND 2016 | N/A | N/A | N/A | N/A | | |
| SCH50CP | SCHOOL DIST #50 CAP PROJ | N/A | N/A | N/A | N/A | | |
| SCH50MO | SCHOOL DIST #50 EP & O | N/A | N/A | N/A | N/A | | |
| CONSERVE | CONSERVATION FUTURES | N/A | N/A | N/A | N/A | | |
| EMS1 | FIRE DIST #1 EMS | N/A | N/A | N/A | N/A | | |
| FD1 | FIRE DIST #1 GENERAL | N/A | N/A | N/A | N/A | | |
| LIB1 | LIBRARY DIST #1 GENERAL | N/A | N/A | N/A | N/A | | |
| PORTPT | PORT OF PT GENERAL | N/A | N/A | N/A | N/A | | |
| PORTPTIDD | PORT OF PT IDD 2019 | N/A | N/A | N/A | N/A | | |
| PUD1 | PUD #1 GENERAL | N/A | N/A | N/A | N/A | | |
| STATE | STATE SCHOOL PART 1 | N/A | N/A | N/A | N/A | | |
| STATE2 | STATE SCHOOL PART 2 | N/A | N/A | N/A | N/A | | |
| | Total Tax Rate: | N/A | | | | | |
| | | | | Taxes w/Current Exemptions: | N/A | | |
| | | | | Taxes w/o Exemptions: | N/A | | |
Improvement / Building
| Improvement #1: | Residential Bldg | State Code: | 11 | 1136.0 sqft | Value: | $283,947 |
| Bathrooms (#): | 2 (FULL) | Bedrooms (#): | 2 | | Exterior Wall: | SI/ST | Fireplace: | WD ST-GOOD | | Foundation: | CONBL | Heating/Cooling: | HPUMP | | Inside Verify: | YES-FIX | Roof Cover: | COMP |
|
| | Type | Description | Class CD | Sub Class CD | Year Built | Area |
| | MA | Main Area | 4 | 1S | 1961 | 1136.0 |
| | PATIO | House Patio | 3 | * | 1961 | 360.0 |
| | HCPOR | House Concrete Porch | 3 | * | 1961 | 80.0 |
| | HDECK | House Deck | 3 | * | 1961 | 428.0 |
| | HENCL | House Enclosure | 3 | * | 1961 | 64.0 |
| | SHED | Shed (Table Not Dep) | 5 | * | 1961 | 96.0 |
| | BSMTU | House basement unfinished | 3 | * | 1961 | 704.0 |
Sketch
Property Image
Land
| 1 | 5375-1345S | | 0.0000 | 0.00 | 0.00 | 0.00 | 1.00 | $118,800 | $0 |
Roll Value History
| 2025 | N/A | N/A | N/A | N/A | N/A |
| 2024 | $283,947 | $118,800 | $0 | $402,747 | $402,747 |
| 2023 | $186,584 | $108,150 | $0 | $294,734 | $294,734 |
| 2022 | $169,622 | $98,000 | $0 | $267,622 | $267,622 |
| 2021 | $128,502 | $88,000 | $0 | $216,502 | $216,502 |
Deed and Sales History
| 1 | 09/19/2019 | SWD | Statutory Warranty Deed | E LORRAINE TRAUTMAN TRSTE | CARRIE L GRISWOLD | | | $240,000.00 | 133288 | |
| 2 | 06/30/2004 | QCD | Quit Claim Deed | TRAUTMAN, ELEANOR LORRAIN | REVOCABLE LAND TRUST AGREEMENT | 0 | 0 | $0.00 | 100709 | 0 |
| 3 | 06/20/2004 | QCD | Quit Claim Deed | TRAUTMAN, ELEANOR LORRAIN | TRAUTMAN, ELEANOR/TRUSTEE | 0 | 0 | $0.00 | 102692 | 0 |
Payout Agreement
| No payout information available.. |