Property
Account |
| Property ID: | 11567 | Abbreviated Legal Description: | S32 T30 R1W TAX 65 & TAX RR-28 |
| Parcel # / Geo ID: | 001324022 | Agent Code: | |
| Type: | Real | | |
| Tax Area: | 0111 - 1-50F1E1H2L1 | Land Use Code | 91 |
| Open Space: | N | DFL | N |
| Historic Property: | N | Remodel Property: | N |
| Multi-Family Redevelopment: | N | | |
| Township: | 30N | Section: | 32 |
| Range: | 1W |
Location |
| Address: | | Mapsco: | 102/023 |
| Neighborhood: | S32 T30 R1W, ADELMA BCH, DISCO HEIGHTS | Map ID: | |
| Neighborhood CD: | 5375 |
Owner |
| Name: | BRUCE B SETON JR | Owner ID: | 27053 |
| Mailing Address: | 4640 S DISCOVERY RD PORT TOWNSEND, WA 98368-9020 | % Ownership: | 100.0000000000% |
| | | Exemptions: | |
Pay Tax Due
Select the appropriate checkbox next to the year to be paid. Multiple years may be selected.
*Convenience Fee not included
Taxes and Assessment Details
Property Tax Information as of
10/23/2025
Click on "Statement Details" to expand or collapse a tax statement.
* Please enter a valid date ** Please enter a valid date *
Statement Details |
| 2025 | 1513 | STATE - STATE LEVY (SCHOOL) | $2.23 | $2.22 | $0.00 | $0.00 | $2.23 | $2.22 |
| 2025 | 1513 | COUNTY - COUNTY LEVIES (CE, DD, VET, MH) | $0.89 | $0.86 | $0.00 | $0.00 | $0.89 | $0.86 |
| 2025 | 1513 | CONSERVE - CONSERVATION FUTURES | $0.03 | $0.02 | $0.00 | $0.00 | $0.03 | $0.02 |
| 2025 | 1513 | COROADS - COUNTY ROADS (ROADS, DIV TO CE) | $0.70 | $0.70 | $0.00 | $0.00 | $0.70 | $0.70 |
| 2025 | 1513 | PORTPT - PORT DISTRICT | $0.36 | $0.36 | $0.00 | $0.00 | $0.36 | $0.36 |
| 2025 | 1513 | PUD1 - PUD #1 | $0.06 | $0.05 | $0.00 | $0.00 | $0.06 | $0.05 |
| 2025 | 1513 | LIB1 - LIBRARY DIST #1 | $0.27 | $0.27 | $0.00 | $0.00 | $0.27 | $0.27 |
| 2025 | 1513 | HD2 - HOSP DIST #2 | $0.05 | $0.05 | $0.00 | $0.00 | $0.05 | $0.05 |
| 2025 | 1513 | SD50 - SCHOOL DIST #50 | $1.64 | $1.62 | $0.00 | $0.00 | $1.64 | $1.62 |
| 2025 | 1513 | FD1 - FIRE DISTRICT #1 | $1.16 | $1.15 | $0.00 | $0.00 | $1.16 | $1.15 |
| 2025 | 1513 | EMS1 - FIRE DIST #1 EMS | $0.45 | $0.44 | $0.00 | $0.00 | $0.45 | $0.44 |
| 2025 | 1513 | FPLCA - DNR Landowner Contingency Assmt | $3.00 | $3.00 | $0.00 | $0.00 | $3.00 | $3.00 |
| 2025 | 1513 | JCCD - JC Conservation District | $2.53 | $2.53 | $0.00 | $0.00 | $2.53 | $2.53 |
| 2025 | 1513 | NWA - Noxious Weed Assessment | $2.15 | $2.15 | $0.00 | $0.00 | $2.15 | $2.15 |
| 2025 | 1513 | WAT - Clean Water District | $13.00 | $13.00 | $0.00 | $0.00 | $13.00 | $13.00 |
| 2025 | 1513 | TOTAL: | $28.52 | $28.42 | $0.00 | $0.00 | $28.52 | $28.42 |
|
| 2025 | 1513 | $28.52 | $28.42 | $0.00 | $0.00 | $28.52 | $28.42 |
Statement Details |
| 2024 | 1516 | STATE - STATE LEVY (SCHOOL) | $1.98 | $1.97 | $0.00 | $0.00 | $3.95 | $0.00 |
| 2024 | 1516 | COUNTY - COUNTY LEVIES (CE, DD, VET, MH) | $0.86 | $0.83 | $0.00 | $0.00 | $1.69 | $0.00 |
| 2024 | 1516 | CONSERVE - CONSERVATION FUTURES | $0.03 | $0.02 | $0.00 | $0.00 | $0.05 | $0.00 |
| 2024 | 1516 | COROADS - COUNTY ROADS (ROADS, DIV TO CE) | $0.69 | $0.67 | $0.00 | $0.00 | $1.36 | $0.00 |
| 2024 | 1516 | PORTPT - PORT DISTRICT | $0.36 | $0.34 | $0.00 | $0.00 | $0.70 | $0.00 |
| 2024 | 1516 | PUD1 - PUD #1 | $0.06 | $0.05 | $0.00 | $0.00 | $0.11 | $0.00 |
| 2024 | 1516 | LIB1 - LIBRARY DIST #1 | $0.27 | $0.26 | $0.00 | $0.00 | $0.53 | $0.00 |
| 2024 | 1516 | HD2 - HOSP DIST #2 | $0.05 | $0.05 | $0.00 | $0.00 | $0.10 | $0.00 |
| 2024 | 1516 | SD50 - SCHOOL DIST #50 | $1.60 | $1.59 | $0.00 | $0.00 | $3.19 | $0.00 |
| 2024 | 1516 | FD1 - FIRE DISTRICT #1 | $1.12 | $1.11 | $0.00 | $0.00 | $2.23 | $0.00 |
| 2024 | 1516 | EMS1 - FIRE DIST #1 EMS | $0.43 | $0.42 | $0.00 | $0.00 | $0.85 | $0.00 |
| 2024 | 1516 | FPLCA - DNR Landowner Contingency Assmt | $3.00 | $3.00 | $0.00 | $0.00 | $6.00 | $0.00 |
| 2024 | 1516 | JCCD - JC Conservation District | $2.53 | $2.53 | $0.00 | $0.00 | $5.06 | $0.00 |
| 2024 | 1516 | NWA - Noxious Weed Assessment | $2.15 | $2.15 | $0.00 | $0.00 | $4.30 | $0.00 |
| 2024 | 1516 | WAT - Clean Water District | $12.50 | $12.50 | $0.00 | $0.00 | $25.00 | $0.00 |
| 2024 | 1516 | TOTAL: | $27.63 | $27.49 | $0.00 | $0.00 | $55.12 | $0.00 |
|
| 2024 | 1516 | $27.63 | $27.49 | $0.00 | $0.00 | $55.12 | $0.00 |
Statement Details |
| 2023 | 1516 | STATE - STATE LEVY (SCHOOL) | $1.77 | $1.76 | $0.00 | $0.00 | $3.53 | $0.00 |
| 2023 | 1516 | COUNTY - COUNTY LEVIES (CE, DD, VET, MH) | $0.79 | $0.75 | $0.00 | $0.00 | $1.54 | $0.00 |
| 2023 | 1516 | CONSERVE - CONSERVATION FUTURES | $0.03 | $0.02 | $0.00 | $0.00 | $0.05 | $0.00 |
| 2023 | 1516 | COROADS - COUNTY ROADS (ROADS, DIV TO CE) | $0.63 | $0.62 | $0.00 | $0.00 | $1.25 | $0.00 |
| 2023 | 1516 | PORTPT - PORT DISTRICT | $0.33 | $0.32 | $0.00 | $0.00 | $0.65 | $0.00 |
| 2023 | 1516 | PUD1 - PUD #1 | $0.05 | $0.05 | $0.00 | $0.00 | $0.10 | $0.00 |
| 2023 | 1516 | LIB1 - LIBRARY DIST #1 | $0.24 | $0.24 | $0.00 | $0.00 | $0.48 | $0.00 |
| 2023 | 1516 | HD2 - HOSP DIST #2 | $0.05 | $0.04 | $0.00 | $0.00 | $0.09 | $0.00 |
| 2023 | 1516 | SD50 - SCHOOL DIST #50 | $1.41 | $1.39 | $0.00 | $0.00 | $2.80 | $0.00 |
| 2023 | 1516 | FD1 - FIRE DISTRICT #1 | $0.64 | $0.63 | $0.00 | $0.00 | $1.27 | $0.00 |
| 2023 | 1516 | EMS1 - FIRE DIST #1 EMS | $0.27 | $0.27 | $0.00 | $0.00 | $0.54 | $0.00 |
| 2023 | 1516 | FPLCA - DNR Landowner Contingency Assmt | $3.00 | $3.00 | $0.00 | $0.00 | $6.00 | $0.00 |
| 2023 | 1516 | JCCD - JC Conservation District | $2.53 | $2.53 | $0.00 | $0.00 | $5.06 | $0.00 |
| 2023 | 1516 | NWA - Noxious Weed Assessment | $2.15 | $2.15 | $0.00 | $0.00 | $4.30 | $0.00 |
| 2023 | 1516 | WAT - Clean Water District | $12.00 | $12.00 | $0.00 | $0.00 | $24.00 | $0.00 |
| 2023 | 1516 | TOTAL: | $25.89 | $25.77 | $0.00 | $0.00 | $51.66 | $0.00 |
|
| 2023 | 1516 | $25.89 | $25.77 | $0.00 | $0.00 | $51.66 | $0.00 |
Statement Details |
| 2022 | 1519 | STATE - STATE LEVY (SCHOOL) | $1.88 | $1.88 | $0.00 | $0.00 | $3.76 | $0.00 |
| 2022 | 1519 | COUNTY - COUNTY LEVIES (CE, DD, VET, MH) | $0.86 | $0.82 | $0.00 | $0.00 | $1.68 | $0.00 |
| 2022 | 1519 | CONSERVE - CONSERVATION FUTURES | $0.03 | $0.02 | $0.00 | $0.00 | $0.05 | $0.00 |
| 2022 | 1519 | COROADS - COUNTY ROADS (ROADS, DIV TO CE) | $0.69 | $0.67 | $0.00 | $0.00 | $1.36 | $0.00 |
| 2022 | 1519 | PORTPT - PORT DISTRICT | $0.37 | $0.35 | $0.00 | $0.00 | $0.72 | $0.00 |
| 2022 | 1519 | PUD1 - PUD #1 | $0.06 | $0.05 | $0.00 | $0.00 | $0.11 | $0.00 |
| 2022 | 1519 | LIB1 - LIBRARY DIST #1 | $0.27 | $0.26 | $0.00 | $0.00 | $0.53 | $0.00 |
| 2022 | 1519 | HD2 - HOSP DIST #2 | $0.05 | $0.04 | $0.00 | $0.00 | $0.09 | $0.00 |
| 2022 | 1519 | SD50 - SCHOOL DIST #50 | $1.40 | $1.39 | $0.00 | $0.00 | $2.79 | $0.00 |
| 2022 | 1519 | FD1 - FIRE DISTRICT #1 | $0.69 | $0.68 | $0.00 | $0.00 | $1.37 | $0.00 |
| 2022 | 1519 | EMS1 - FIRE DIST #1 EMS | $0.29 | $0.29 | $0.00 | $0.00 | $0.58 | $0.00 |
| 2022 | 1519 | FPLCA - DNR Landowner Contingency Assmt | $3.00 | $3.00 | $0.00 | $0.00 | $6.00 | $0.00 |
| 2022 | 1519 | JCCD - JC Conservation District | $2.53 | $2.53 | $0.00 | $0.00 | $5.06 | $0.00 |
| 2022 | 1519 | NWA - Noxious Weed Assessment | $2.15 | $2.15 | $0.00 | $0.00 | $4.30 | $0.00 |
| 2022 | 1519 | WAT - Clean Water District | $11.50 | $11.50 | $0.00 | $0.00 | $23.00 | $0.00 |
| 2022 | 1519 | TOTAL: | $25.77 | $25.63 | $0.00 | $0.00 | $51.40 | $0.00 |
|
| 2022 | 1519 | $25.77 | $25.63 | $0.00 | $0.00 | $51.40 | $0.00 |
Values
| (+) Improvement Homesite Value: | + | $0 | |
| (+) Improvement Non-Homesite Value: | + | $0 | |
| (+) Land Homesite Value: | + | $0 | |
| (+) Land Non-Homesite Value: | + | $1,857 | |
| (+) Curr Use (HS): | + | $0 | $0 |
| (+) Curr Use (NHS): | + | $0 | $0 |
| | | -------------------------- | |
| (=) Market Value: | = | $1,857 | |
| (–) Productivity Loss: | – | $0 | |
| | | -------------------------- | |
| (=) Subtotal: | = | $1,857 | |
| (+) Senior Appraised Value: | + | $0 | |
| (+) Non-Senior Appraised Value: | + | $1,857 | |
| | | -------------------------- | |
| (=) Total Appraised Value: | = | $1,857 | |
| (–) Senior Exemption Loss: | – | $0 | |
| (–) Exemption Loss: | – | $0 | |
| | | -------------------------- | |
| (=) Taxable Value: | = | $1,857 | |
Taxing Jurisdiction
| Owner: | BRUCE B SETON JR | | |
| % Ownership: | 100.0000000000% | | |
| Total Value: | N/A | | |
| Tax Area: | 0111 - 1-50F1E1H2L1 |
| CE | COUNTY CURRENT EXPENSE | N/A | N/A | N/A | N/A | | |
| CNTYDD | DEVELOPMENTAL DISABILITIES | N/A | N/A | N/A | N/A | | |
| CNTYVET | VETERANS RELIEF | N/A | N/A | N/A | N/A | | |
| MENTAL | MENTAL HEALTH | N/A | N/A | N/A | N/A | | |
| ROADS | COUNTY ROADS | N/A | N/A | N/A | N/A | | |
| ROADSCU | COUNTY ROADS TO CUR EXP | N/A | N/A | N/A | N/A | | |
| HOSP2CASH | HOSP DIST #2 GENERAL | N/A | N/A | N/A | N/A | | |
| SCH50BOND | SCHOOL DIST #50 BOND 2016 | N/A | N/A | N/A | N/A | | |
| SCH50CP | SCHOOL DIST #50 CAP PROJ | N/A | N/A | N/A | N/A | | |
| SCH50MO | SCHOOL DIST #50 EP & O | N/A | N/A | N/A | N/A | | |
| CONSERVE | CONSERVATION FUTURES | N/A | N/A | N/A | N/A | | |
| EMS1 | FIRE DIST #1 EMS | N/A | N/A | N/A | N/A | | |
| FD1 | FIRE DIST #1 GENERAL | N/A | N/A | N/A | N/A | | |
| LIB1 | LIBRARY DIST #1 GENERAL | N/A | N/A | N/A | N/A | | |
| PORTPT | PORT OF PT GENERAL | N/A | N/A | N/A | N/A | | |
| PORTPTIDD | PORT OF PT IDD 2019 | N/A | N/A | N/A | N/A | | |
| PUD1 | PUD #1 GENERAL | N/A | N/A | N/A | N/A | | |
| STATE | STATE SCHOOL PART 1 | N/A | N/A | N/A | N/A | | |
| STATE2 | STATE SCHOOL PART 2 | N/A | N/A | N/A | N/A | | |
| | Total Tax Rate: | N/A | | | | | |
| | | | | Taxes w/Current Exemptions: | N/A | | |
| | | | | Taxes w/o Exemptions: | N/A | | |
Improvement / Building
Sketch
| No sketches available for this property. |
Property Image
Land
| 1 | 1776A | | 0.2500 | 10890.00 | 0.00 | 0.00 | 0.00 | $1,857 | $0 |
Roll Value History
| 2025 | N/A | N/A | N/A | N/A | N/A |
| 2024 | $0 | $1,857 | $0 | $1,857 | $1,857 |
| 2023 | $0 | $1,706 | $0 | $1,706 | $1,706 |
| 2022 | $0 | $1,500 | $0 | $1,500 | $1,500 |
| 2021 | $0 | $1,375 | $0 | $1,375 | $1,375 |
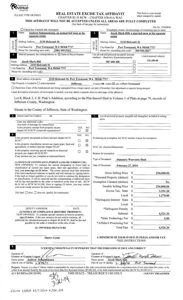
Deed and Sales History
| 1 | 01/24/2015 | QCD | Quit Claim Deed | W E SETON & MARILYN SETON RECOVABLE TRUST | BRUCE B SETON JR | | | | 122655 | |
| 2 | 05/21/2014 | WD | Warranty Deed | W E SETON | W E SETON & MARILYN SETON RECOVABLE TRUST | | | | 121209 | |
| 3 | 05/13/1992 | SWD | Statutory Warranty Deed | BUESNEL, PAUL G/GAIL J | SETON, WE/MARILYN J | 0 | 0 | $11,000.00 | 68419 | 0 |
Payout Agreement
| No payout information available.. |