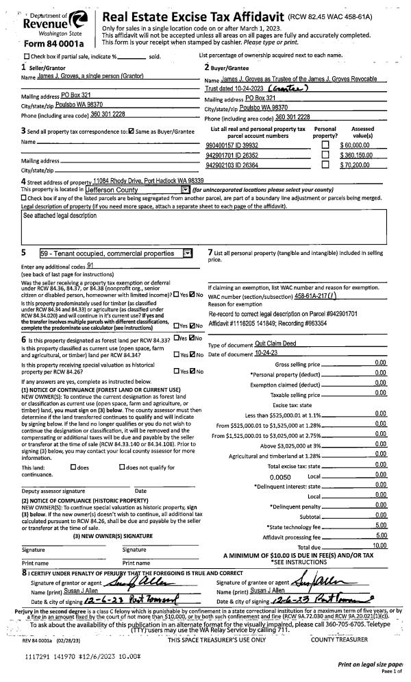
Property
Account |
| Property ID: | 11598 | Abbreviated Legal Description: | S32 T30 R1W TAX G-16(LS SM PTN TO G-7) W/CO RD & W/TL FRTG |
| Parcel # / Geo ID: | 001324053 | Agent Code: | |
| Type: | Real | | |
| Tax Area: | 0111 - 1-50F1E1H2L1 | Land Use Code | 11 |
| Open Space: | N | DFL | N |
| Historic Property: | N | Remodel Property: | N |
| Multi-Family Redevelopment: | N | | |
| Township: | 30N | Section: | 32 |
| Range: | 1W |
Location |
| Address: | 510 ADELMA BEACH RD PORT TOWNSEND, WA 98368 | Mapsco: | 104/038 |
| Neighborhood: | S32 T30 R1W, ADELMA BCH, DISCO HEIGHTS | Map ID: | |
| Neighborhood CD: | 5375 |
Owner |
| Name: | ALLISON K THORESON | Owner ID: | 90244 |
| Mailing Address: | 3055 MAGNOLIA BLVD W SEATTLE, WA 98199-2412 | % Ownership: | 100.0000000000% |
| | | Exemptions: | |
Pay Tax Due
Select the appropriate checkbox next to the year to be paid. Multiple years may be selected.
*Convenience Fee not included
Taxes and Assessment Details
Property Tax Information as of
10/23/2025
Click on "Statement Details" to expand or collapse a tax statement.
* Please enter a valid date ** Please enter a valid date *
Statement Details |
| 2025 | 1543 | STATE - STATE LEVY (SCHOOL) | $1033.89 | $1033.88 | $0.00 | $0.00 | $1033.89 | $1033.88 |
| 2025 | 1543 | COUNTY - COUNTY LEVIES (CE, DD, VET, MH) | $406.57 | $406.57 | $0.00 | $0.00 | $406.57 | $406.57 |
| 2025 | 1543 | CONSERVE - CONSERVATION FUTURES | $12.19 | $12.19 | $0.00 | $0.00 | $12.19 | $12.19 |
| 2025 | 1543 | COROADS - COUNTY ROADS (ROADS, DIV TO CE) | $325.73 | $325.72 | $0.00 | $0.00 | $325.73 | $325.72 |
| 2025 | 1543 | PORTPT - PORT DISTRICT | $165.90 | $165.90 | $0.00 | $0.00 | $165.90 | $165.90 |
| 2025 | 1543 | PUD1 - PUD #1 | $26.61 | $26.60 | $0.00 | $0.00 | $26.61 | $26.60 |
| 2025 | 1543 | LIB1 - LIBRARY DIST #1 | $126.02 | $126.02 | $0.00 | $0.00 | $126.02 | $126.02 |
| 2025 | 1543 | HD2 - HOSP DIST #2 | $23.72 | $23.72 | $0.00 | $0.00 | $23.72 | $23.72 |
| 2025 | 1543 | SD50 - SCHOOL DIST #50 | $755.61 | $755.59 | $0.00 | $0.00 | $755.61 | $755.59 |
| 2025 | 1543 | FD1 - FIRE DISTRICT #1 | $536.51 | $536.51 | $0.00 | $0.00 | $536.51 | $536.51 |
| 2025 | 1543 | EMS1 - FIRE DIST #1 EMS | $206.36 | $206.35 | $0.00 | $0.00 | $206.36 | $206.35 |
| 2025 | 1543 | FPLCA - DNR Landowner Contingency Assmt | $3.00 | $3.00 | $0.00 | $0.00 | $3.00 | $3.00 |
| 2025 | 1543 | JCCD - JC Conservation District | $2.55 | $2.55 | $0.00 | $0.00 | $2.55 | $2.55 |
| 2025 | 1543 | NWA - Noxious Weed Assessment | $2.15 | $2.15 | $0.00 | $0.00 | $2.15 | $2.15 |
| 2025 | 1543 | OSS - On Site Septic | $21.50 | $21.50 | $0.00 | $0.00 | $21.50 | $21.50 |
| 2025 | 1543 | WAT - Clean Water District | $13.00 | $13.00 | $0.00 | $0.00 | $13.00 | $13.00 |
| 2025 | 1543 | TOTAL: | $3661.31 | $3661.25 | $0.00 | $0.00 | $3661.31 | $3661.25 |
|
| 2025 | 1543 | $3661.31 | $3661.25 | $0.00 | $0.00 | $3661.31 | $3661.25 |
Statement Details |
| 2024 | 1547 | STATE - STATE LEVY (SCHOOL) | $909.37 | $909.35 | $0.00 | $0.00 | $1818.72 | $0.00 |
| 2024 | 1547 | COUNTY - COUNTY LEVIES (CE, DD, VET, MH) | $389.14 | $389.10 | $0.00 | $0.00 | $778.24 | $0.00 |
| 2024 | 1547 | CONSERVE - CONSERVATION FUTURES | $11.67 | $11.67 | $0.00 | $0.00 | $23.34 | $0.00 |
| 2024 | 1547 | COROADS - COUNTY ROADS (ROADS, DIV TO CE) | $313.12 | $313.11 | $0.00 | $0.00 | $626.23 | $0.00 |
| 2024 | 1547 | PORTPT - PORT DISTRICT | $160.73 | $160.71 | $0.00 | $0.00 | $321.44 | $0.00 |
| 2024 | 1547 | PUD1 - PUD #1 | $25.56 | $25.56 | $0.00 | $0.00 | $51.12 | $0.00 |
| 2024 | 1547 | LIB1 - LIBRARY DIST #1 | $121.14 | $121.14 | $0.00 | $0.00 | $242.28 | $0.00 |
| 2024 | 1547 | HD2 - HOSP DIST #2 | $22.71 | $22.70 | $0.00 | $0.00 | $45.41 | $0.00 |
| 2024 | 1547 | SD50 - SCHOOL DIST #50 | $735.72 | $735.70 | $0.00 | $0.00 | $1471.42 | $0.00 |
| 2024 | 1547 | FD1 - FIRE DISTRICT #1 | $514.51 | $514.51 | $0.00 | $0.00 | $1029.02 | $0.00 |
| 2024 | 1547 | EMS1 - FIRE DIST #1 EMS | $196.53 | $196.52 | $0.00 | $0.00 | $393.05 | $0.00 |
| 2024 | 1547 | FPLCA - DNR Landowner Contingency Assmt | $3.00 | $3.00 | $0.00 | $0.00 | $6.00 | $0.00 |
| 2024 | 1547 | JCCD - JC Conservation District | $2.55 | $2.55 | $0.00 | $0.00 | $5.10 | $0.00 |
| 2024 | 1547 | NWA - Noxious Weed Assessment | $2.15 | $2.15 | $0.00 | $0.00 | $4.30 | $0.00 |
| 2024 | 1547 | OSS - On Site Septic | $21.00 | $21.00 | $0.00 | $0.00 | $42.00 | $0.00 |
| 2024 | 1547 | WAT - Clean Water District | $12.50 | $12.50 | $0.00 | $0.00 | $25.00 | $0.00 |
| 2024 | 1547 | TOTAL: | $3441.40 | $3441.27 | $0.00 | $0.00 | $6882.67 | $0.00 |
|
| 2024 | 1547 | $3441.40 | $3441.27 | $0.00 | $0.00 | $6882.67 | $0.00 |
Statement Details |
| 2023 | 1547 | STATE - STATE LEVY (SCHOOL) | $853.32 | $853.32 | $0.00 | $0.00 | $1706.64 | $0.00 |
| 2023 | 1547 | COUNTY - COUNTY LEVIES (CE, DD, VET, MH) | $372.38 | $372.35 | $0.00 | $0.00 | $744.73 | $0.00 |
| 2023 | 1547 | CONSERVE - CONSERVATION FUTURES | $11.17 | $11.16 | $0.00 | $0.00 | $22.33 | $0.00 |
| 2023 | 1547 | COROADS - COUNTY ROADS (ROADS, DIV TO CE) | $301.27 | $301.27 | $0.00 | $0.00 | $602.54 | $0.00 |
| 2023 | 1547 | PORTPT - PORT DISTRICT | $156.86 | $156.86 | $0.00 | $0.00 | $313.72 | $0.00 |
| 2023 | 1547 | PUD1 - PUD #1 | $24.69 | $24.68 | $0.00 | $0.00 | $49.37 | $0.00 |
| 2023 | 1547 | LIB1 - LIBRARY DIST #1 | $116.56 | $116.56 | $0.00 | $0.00 | $233.12 | $0.00 |
| 2023 | 1547 | HD2 - HOSP DIST #2 | $21.73 | $21.73 | $0.00 | $0.00 | $43.46 | $0.00 |
| 2023 | 1547 | SD50 - SCHOOL DIST #50 | $677.13 | $677.12 | $0.00 | $0.00 | $1354.25 | $0.00 |
| 2023 | 1547 | FD1 - FIRE DISTRICT #1 | $306.76 | $306.75 | $0.00 | $0.00 | $613.51 | $0.00 |
| 2023 | 1547 | EMS1 - FIRE DIST #1 EMS | $130.49 | $130.48 | $0.00 | $0.00 | $260.97 | $0.00 |
| 2023 | 1547 | FPLCA - DNR Landowner Contingency Assmt | $3.00 | $3.00 | $0.00 | $0.00 | $6.00 | $0.00 |
| 2023 | 1547 | JCCD - JC Conservation District | $2.55 | $2.55 | $0.00 | $0.00 | $5.10 | $0.00 |
| 2023 | 1547 | NWA - Noxious Weed Assessment | $2.15 | $2.15 | $0.00 | $0.00 | $4.30 | $0.00 |
| 2023 | 1547 | OSS - On Site Septic | $20.50 | $20.50 | $0.00 | $0.00 | $41.00 | $0.00 |
| 2023 | 1547 | WAT - Clean Water District | $12.00 | $12.00 | $0.00 | $0.00 | $24.00 | $0.00 |
| 2023 | 1547 | TOTAL: | $3012.56 | $3012.48 | $0.00 | $0.00 | $6025.04 | $0.00 |
|
| 2023 | 1547 | $3012.56 | $3012.48 | $0.00 | $0.00 | $6025.04 | $0.00 |
Statement Details |
| 2022 | 1550 | STATE - STATE LEVY (SCHOOL) | $828.96 | $828.96 | $0.00 | $0.00 | $1657.92 | $0.00 |
| 2022 | 1550 | COUNTY - COUNTY LEVIES (CE, DD, VET, MH) | $369.36 | $369.33 | $0.00 | $0.00 | $738.69 | $0.00 |
| 2022 | 1550 | CONSERVE - CONSERVATION FUTURES | $11.08 | $11.07 | $0.00 | $0.00 | $22.15 | $0.00 |
| 2022 | 1550 | COROADS - COUNTY ROADS (ROADS, DIV TO CE) | $300.20 | $300.18 | $0.00 | $0.00 | $600.38 | $0.00 |
| 2022 | 1550 | PORTPT - PORT DISTRICT | $158.12 | $158.11 | $0.00 | $0.00 | $316.23 | $0.00 |
| 2022 | 1550 | PUD1 - PUD #1 | $24.70 | $24.70 | $0.00 | $0.00 | $49.40 | $0.00 |
| 2022 | 1550 | LIB1 - LIBRARY DIST #1 | $116.14 | $116.14 | $0.00 | $0.00 | $232.28 | $0.00 |
| 2022 | 1550 | HD2 - HOSP DIST #2 | $21.57 | $21.55 | $0.00 | $0.00 | $43.12 | $0.00 |
| 2022 | 1550 | SD50 - SCHOOL DIST #50 | $614.31 | $614.29 | $0.00 | $0.00 | $1228.60 | $0.00 |
| 2022 | 1550 | FD1 - FIRE DISTRICT #1 | $303.00 | $303.00 | $0.00 | $0.00 | $606.00 | $0.00 |
| 2022 | 1550 | EMS1 - FIRE DIST #1 EMS | $128.89 | $128.88 | $0.00 | $0.00 | $257.77 | $0.00 |
| 2022 | 1550 | FPLCA - DNR Landowner Contingency Assmt | $3.00 | $3.00 | $0.00 | $0.00 | $6.00 | $0.00 |
| 2022 | 1550 | JCCD - JC Conservation District | $2.55 | $2.55 | $0.00 | $0.00 | $5.10 | $0.00 |
| 2022 | 1550 | NWA - Noxious Weed Assessment | $2.15 | $2.15 | $0.00 | $0.00 | $4.30 | $0.00 |
| 2022 | 1550 | OSS - On Site Septic | $19.50 | $19.50 | $0.00 | $0.00 | $39.00 | $0.00 |
| 2022 | 1550 | WAT - Clean Water District | $11.50 | $11.50 | $0.00 | $0.00 | $23.00 | $0.00 |
| 2022 | 1550 | TOTAL: | $2915.03 | $2914.91 | $0.00 | $0.00 | $5829.94 | $0.00 |
|
| 2022 | 1550 | $2915.03 | $2914.91 | $0.00 | $0.00 | $5829.94 | $0.00 |
Values
| (+) Improvement Homesite Value: | + | $0 | |
| (+) Improvement Non-Homesite Value: | + | $486,211 | |
| (+) Land Homesite Value: | + | $0 | |
| (+) Land Non-Homesite Value: | + | $376,068 | |
| (+) Curr Use (HS): | + | $0 | $0 |
| (+) Curr Use (NHS): | + | $0 | $0 |
| | | -------------------------- | |
| (=) Market Value: | = | $862,279 | |
| (–) Productivity Loss: | – | $0 | |
| | | -------------------------- | |
| (=) Subtotal: | = | $862,279 | |
| (+) Senior Appraised Value: | + | $0 | |
| (+) Non-Senior Appraised Value: | + | $862,279 | |
| | | -------------------------- | |
| (=) Total Appraised Value: | = | $862,279 | |
| (–) Senior Exemption Loss: | – | $0 | |
| (–) Exemption Loss: | – | $0 | |
| | | -------------------------- | |
| (=) Taxable Value: | = | $862,279 | |
Taxing Jurisdiction
| Owner: | ALLISON K THORESON | | |
| % Ownership: | 100.0000000000% | | |
| Total Value: | N/A | | |
| Tax Area: | 0111 - 1-50F1E1H2L1 |
| CE | COUNTY CURRENT EXPENSE | N/A | N/A | N/A | N/A | | |
| CNTYDD | DEVELOPMENTAL DISABILITIES | N/A | N/A | N/A | N/A | | |
| CNTYVET | VETERANS RELIEF | N/A | N/A | N/A | N/A | | |
| MENTAL | MENTAL HEALTH | N/A | N/A | N/A | N/A | | |
| ROADS | COUNTY ROADS | N/A | N/A | N/A | N/A | | |
| ROADSCU | COUNTY ROADS TO CUR EXP | N/A | N/A | N/A | N/A | | |
| HOSP2CASH | HOSP DIST #2 GENERAL | N/A | N/A | N/A | N/A | | |
| SCH50BOND | SCHOOL DIST #50 BOND 2016 | N/A | N/A | N/A | N/A | | |
| SCH50CP | SCHOOL DIST #50 CAP PROJ | N/A | N/A | N/A | N/A | | |
| SCH50MO | SCHOOL DIST #50 EP & O | N/A | N/A | N/A | N/A | | |
| CONSERVE | CONSERVATION FUTURES | N/A | N/A | N/A | N/A | | |
| EMS1 | FIRE DIST #1 EMS | N/A | N/A | N/A | N/A | | |
| FD1 | FIRE DIST #1 GENERAL | N/A | N/A | N/A | N/A | | |
| LIB1 | LIBRARY DIST #1 GENERAL | N/A | N/A | N/A | N/A | | |
| PORTPT | PORT OF PT GENERAL | N/A | N/A | N/A | N/A | | |
| PORTPTIDD | PORT OF PT IDD 2019 | N/A | N/A | N/A | N/A | | |
| PUD1 | PUD #1 GENERAL | N/A | N/A | N/A | N/A | | |
| STATE | STATE SCHOOL PART 1 | N/A | N/A | N/A | N/A | | |
| STATE2 | STATE SCHOOL PART 2 | N/A | N/A | N/A | N/A | | |
| | Total Tax Rate: | N/A | | | | | |
| | | | | Taxes w/Current Exemptions: | N/A | | |
| | | | | Taxes w/o Exemptions: | N/A | | |
Improvement / Building
| Improvement #1: | Residential Bldg | State Code: | 11 | 1221.0 sqft | Value: | $486,211 |
| Bathrooms (#): | 2 (FULL) | Bedrooms (#): | 3 | | Exterior Wall: | SI/ST | Fireplace: | SIN 2-GOOD | | Floor Construction: | FRAME | Foundation: | CONPR | | Heating/Cooling: | F/A | Roof Cover: | COMP |
|
| | Type | Description | Class CD | Sub Class CD | Year Built | Area |
| | MA | Main Area | 4+ | 15SF | 1978 | 899.0 |
| | MA2 | Second Floor Main Area | 4+ | 15SF | 1978 | 322.0 |
| | PATIO | House Patio | 4 | * | 1978 | 224.0 |
| | HWPOR | House Wood Porch | 4 | * | 1978 | 80.0 |
| | HDECK | House Deck | 4 | * | 1978 | 1017.0 |
| | CARPTF | Carport W/Floor | 4 | * | 1978 | 456.0 |
| | DECK | Deck (Table Not Dep) | 5 | * | 1978 | 540.0 |
| | OTHER | Other | * | * | 1978 | 0.0 |
| | BSMTF | House basement finished | 4 | * | 1978 | 876.0 |
Sketch
Property Image
Land
| 1 | 9301F | | 0.0000 | 0.00 | 0.00 | 0.00 | 0.00 | $3,300 | $0 |
| 2 | 5375-1525F | | 0.0000 | 0.00 | 0.00 | 0.00 | 0.00 | $330,000 | $0 |
| 3 | 5375-1525F | | 0.0000 | 0.00 | 0.00 | 0.00 | 0.00 | $42,768 | $0 |
Roll Value History
| 2025 | N/A | N/A | N/A | N/A | N/A |
| 2024 | $486,211 | $376,068 | $0 | $862,279 | $862,279 |
| 2023 | $432,374 | $353,724 | $0 | $786,098 | $786,098 |
| 2022 | $393,067 | $331,880 | $0 | $724,947 | $724,947 |
| 2021 | $297,778 | $308,572 | $0 | $606,350 | $606,350 |
Deed and Sales History
| 1 | 07/28/2022 | TODD | TRANSFER ON DTH DEED | ALLISON K THORESON | DISCOVERY BAY TRUST | | | | 0 | 655370 |
| 2 | 07/01/2013 | QCD | Quit Claim Deed | | ALLISON K THORESON | | | | 119545 | |
| 3 | 01/31/2013 | QCD | Quit Claim Deed | DONALD L THORESON | ALLISON K THORESON | | | | 118836 | |
Payout Agreement
| No payout information available.. |