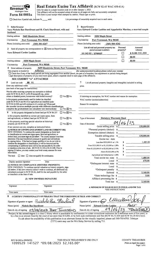
Property
Account |
| Property ID: | 11666 | Abbreviated Legal Description: | S33 T30 R1W N1/2 NW SW (S330' W OF HWY LESS W200') W/BRDY LINE ADJ |
| Parcel # / Geo ID: | 001333006 | Agent Code: | |
| Type: | Real | | |
| Tax Area: | 0111 - 1-50F1E1H2L1 | Land Use Code | 11 |
| Open Space: | N | DFL | N |
| Historic Property: | N | Remodel Property: | N |
| Multi-Family Redevelopment: | N | | |
| Township: | 30N | Section: | 33 |
| Range: | 1W |
Location |
| Address: | 6193 HIGHWAY 20 PORT TOWNSEND, WA 98368 | Mapsco: | 105/045 |
| Neighborhood: | S33 T30 R1W (FOUR CORNERS) | Map ID: | |
| Neighborhood CD: | 5380 |
Owner |
| Name: | BRUCE B SETON SR | Owner ID: | 27051 |
| Mailing Address: | 4640 S DISCOVERY RD PORT TOWNSEND, WA 98368-9020 | % Ownership: | 100.0000000000% |
| | | Exemptions: | |
Pay Tax Due
There is currently No Amount Due on this property.
Taxes and Assessment Details
Property Tax Information as of
10/23/2025
Click on "Statement Details" to expand or collapse a tax statement.
* Please enter a valid date ** Please enter a valid date *
Statement Details |
| 2025 | 1610 | STATE - STATE LEVY (SCHOOL) | $174.73 | $174.71 | $0.00 | $0.00 | $349.44 | $0.00 |
| 2025 | 1610 | COUNTY - COUNTY LEVIES (CE, DD, VET, MH) | $68.72 | $68.70 | $0.00 | $0.00 | $137.42 | $0.00 |
| 2025 | 1610 | CONSERVE - CONSERVATION FUTURES | $2.06 | $2.06 | $0.00 | $0.00 | $4.12 | $0.00 |
| 2025 | 1610 | COROADS - COUNTY ROADS (ROADS, DIV TO CE) | $55.05 | $55.04 | $0.00 | $0.00 | $110.09 | $0.00 |
| 2025 | 1610 | PORTPT - PORT DISTRICT | $28.05 | $28.03 | $0.00 | $0.00 | $56.08 | $0.00 |
| 2025 | 1610 | PUD1 - PUD #1 | $4.50 | $4.49 | $0.00 | $0.00 | $8.99 | $0.00 |
| 2025 | 1610 | LIB1 - LIBRARY DIST #1 | $21.30 | $21.29 | $0.00 | $0.00 | $42.59 | $0.00 |
| 2025 | 1610 | HD2 - HOSP DIST #2 | $4.01 | $4.01 | $0.00 | $0.00 | $8.02 | $0.00 |
| 2025 | 1610 | SD50 - SCHOOL DIST #50 | $127.70 | $127.69 | $0.00 | $0.00 | $255.39 | $0.00 |
| 2025 | 1610 | FD1 - FIRE DISTRICT #1 | $90.67 | $90.66 | $0.00 | $0.00 | $181.33 | $0.00 |
| 2025 | 1610 | EMS1 - FIRE DIST #1 EMS | $34.88 | $34.87 | $0.00 | $0.00 | $69.75 | $0.00 |
| 2025 | 1610 | FPLCA - DNR Landowner Contingency Assmt | $3.00 | $3.00 | $0.00 | $0.00 | $6.00 | $0.00 |
| 2025 | 1610 | JCCD - JC Conservation District | $2.60 | $2.60 | $0.00 | $0.00 | $5.20 | $0.00 |
| 2025 | 1610 | NWA - Noxious Weed Assessment | $2.30 | $2.30 | $0.00 | $0.00 | $4.60 | $0.00 |
| 2025 | 1610 | OSS - On Site Septic | $21.50 | $21.50 | $0.00 | $0.00 | $43.00 | $0.00 |
| 2025 | 1610 | WAT - Clean Water District | $13.00 | $13.00 | $0.00 | $0.00 | $26.00 | $0.00 |
| 2025 | 1610 | TOTAL: | $654.07 | $653.95 | $0.00 | $0.00 | $1308.02 | $0.00 |
|
| 2025 | 1610 | $654.07 | $653.95 | $0.00 | $0.00 | $1308.02 | $0.00 |
Statement Details |
| 2024 | 1614 | STATE - STATE LEVY (SCHOOL) | $160.39 | $160.37 | $0.00 | $0.00 | $320.76 | $0.00 |
| 2024 | 1614 | COUNTY - COUNTY LEVIES (CE, DD, VET, MH) | $68.63 | $68.61 | $0.00 | $0.00 | $137.24 | $0.00 |
| 2024 | 1614 | CONSERVE - CONSERVATION FUTURES | $2.06 | $2.06 | $0.00 | $0.00 | $4.12 | $0.00 |
| 2024 | 1614 | COROADS - COUNTY ROADS (ROADS, DIV TO CE) | $55.23 | $55.22 | $0.00 | $0.00 | $110.45 | $0.00 |
| 2024 | 1614 | PORTPT - PORT DISTRICT | $28.36 | $28.34 | $0.00 | $0.00 | $56.70 | $0.00 |
| 2024 | 1614 | PUD1 - PUD #1 | $4.51 | $4.51 | $0.00 | $0.00 | $9.02 | $0.00 |
| 2024 | 1614 | LIB1 - LIBRARY DIST #1 | $21.37 | $21.36 | $0.00 | $0.00 | $42.73 | $0.00 |
| 2024 | 1614 | HD2 - HOSP DIST #2 | $4.01 | $4.00 | $0.00 | $0.00 | $8.01 | $0.00 |
| 2024 | 1614 | SD50 - SCHOOL DIST #50 | $129.77 | $129.74 | $0.00 | $0.00 | $259.51 | $0.00 |
| 2024 | 1614 | FD1 - FIRE DISTRICT #1 | $90.75 | $90.74 | $0.00 | $0.00 | $181.49 | $0.00 |
| 2024 | 1614 | EMS1 - FIRE DIST #1 EMS | $34.66 | $34.66 | $0.00 | $0.00 | $69.32 | $0.00 |
| 2024 | 1614 | FPLCA - DNR Landowner Contingency Assmt | $3.00 | $3.00 | $0.00 | $0.00 | $6.00 | $0.00 |
| 2024 | 1614 | JCCD - JC Conservation District | $2.60 | $2.60 | $0.00 | $0.00 | $5.20 | $0.00 |
| 2024 | 1614 | NWA - Noxious Weed Assessment | $2.30 | $2.30 | $0.00 | $0.00 | $4.60 | $0.00 |
| 2024 | 1614 | OSS - On Site Septic | $21.00 | $21.00 | $0.00 | $0.00 | $42.00 | $0.00 |
| 2024 | 1614 | WAT - Clean Water District | $12.50 | $12.50 | $0.00 | $0.00 | $25.00 | $0.00 |
| 2024 | 1614 | TOTAL: | $641.14 | $641.01 | $0.00 | $0.00 | $1282.15 | $0.00 |
|
| 2024 | 1614 | $641.14 | $641.01 | $0.00 | $0.00 | $1282.15 | $0.00 |
Statement Details |
| 2023 | 1614 | STATE - STATE LEVY (SCHOOL) | $146.89 | $146.88 | $0.00 | $0.00 | $293.77 | $0.00 |
| 2023 | 1614 | COUNTY - COUNTY LEVIES (CE, DD, VET, MH) | $64.11 | $64.09 | $0.00 | $0.00 | $128.20 | $0.00 |
| 2023 | 1614 | CONSERVE - CONSERVATION FUTURES | $1.92 | $1.92 | $0.00 | $0.00 | $3.84 | $0.00 |
| 2023 | 1614 | COROADS - COUNTY ROADS (ROADS, DIV TO CE) | $51.86 | $51.85 | $0.00 | $0.00 | $103.71 | $0.00 |
| 2023 | 1614 | PORTPT - PORT DISTRICT | $27.01 | $26.99 | $0.00 | $0.00 | $54.00 | $0.00 |
| 2023 | 1614 | PUD1 - PUD #1 | $4.25 | $4.25 | $0.00 | $0.00 | $8.50 | $0.00 |
| 2023 | 1614 | LIB1 - LIBRARY DIST #1 | $20.07 | $20.06 | $0.00 | $0.00 | $40.13 | $0.00 |
| 2023 | 1614 | HD2 - HOSP DIST #2 | $3.75 | $3.73 | $0.00 | $0.00 | $7.48 | $0.00 |
| 2023 | 1614 | SD50 - SCHOOL DIST #50 | $116.57 | $116.54 | $0.00 | $0.00 | $233.11 | $0.00 |
| 2023 | 1614 | FD1 - FIRE DISTRICT #1 | $52.81 | $52.80 | $0.00 | $0.00 | $105.61 | $0.00 |
| 2023 | 1614 | EMS1 - FIRE DIST #1 EMS | $22.46 | $22.46 | $0.00 | $0.00 | $44.92 | $0.00 |
| 2023 | 1614 | FPLCA - DNR Landowner Contingency Assmt | $3.00 | $3.00 | $0.00 | $0.00 | $6.00 | $0.00 |
| 2023 | 1614 | JCCD - JC Conservation District | $2.60 | $2.60 | $0.00 | $0.00 | $5.20 | $0.00 |
| 2023 | 1614 | NWA - Noxious Weed Assessment | $2.30 | $2.30 | $0.00 | $0.00 | $4.60 | $0.00 |
| 2023 | 1614 | OSS - On Site Septic | $20.50 | $20.50 | $0.00 | $0.00 | $41.00 | $0.00 |
| 2023 | 1614 | WAT - Clean Water District | $12.00 | $12.00 | $0.00 | $0.00 | $24.00 | $0.00 |
| 2023 | 1614 | TOTAL: | $552.10 | $551.97 | $0.00 | $0.00 | $1104.07 | $0.00 |
|
| 2023 | 1614 | $552.10 | $551.97 | $0.00 | $0.00 | $1104.07 | $0.00 |
Statement Details |
| 2022 | 1617 | STATE - STATE LEVY (SCHOOL) | $138.93 | $138.93 | $0.00 | $0.00 | $277.86 | $0.00 |
| 2022 | 1617 | COUNTY - COUNTY LEVIES (CE, DD, VET, MH) | $61.91 | $61.89 | $0.00 | $0.00 | $123.80 | $0.00 |
| 2022 | 1617 | CONSERVE - CONSERVATION FUTURES | $1.86 | $1.85 | $0.00 | $0.00 | $3.71 | $0.00 |
| 2022 | 1617 | COROADS - COUNTY ROADS (ROADS, DIV TO CE) | $50.32 | $50.30 | $0.00 | $0.00 | $100.62 | $0.00 |
| 2022 | 1617 | PORTPT - PORT DISTRICT | $26.51 | $26.49 | $0.00 | $0.00 | $53.00 | $0.00 |
| 2022 | 1617 | PUD1 - PUD #1 | $4.14 | $4.14 | $0.00 | $0.00 | $8.28 | $0.00 |
| 2022 | 1617 | LIB1 - LIBRARY DIST #1 | $19.47 | $19.46 | $0.00 | $0.00 | $38.93 | $0.00 |
| 2022 | 1617 | HD2 - HOSP DIST #2 | $3.61 | $3.61 | $0.00 | $0.00 | $7.22 | $0.00 |
| 2022 | 1617 | SD50 - SCHOOL DIST #50 | $102.96 | $102.95 | $0.00 | $0.00 | $205.91 | $0.00 |
| 2022 | 1617 | FD1 - FIRE DISTRICT #1 | $50.78 | $50.78 | $0.00 | $0.00 | $101.56 | $0.00 |
| 2022 | 1617 | EMS1 - FIRE DIST #1 EMS | $21.60 | $21.60 | $0.00 | $0.00 | $43.20 | $0.00 |
| 2022 | 1617 | FPLCA - DNR Landowner Contingency Assmt | $3.00 | $3.00 | $0.00 | $0.00 | $6.00 | $0.00 |
| 2022 | 1617 | JCCD - JC Conservation District | $2.60 | $2.60 | $0.00 | $0.00 | $5.20 | $0.00 |
| 2022 | 1617 | NWA - Noxious Weed Assessment | $2.30 | $2.30 | $0.00 | $0.00 | $4.60 | $0.00 |
| 2022 | 1617 | OSS - On Site Septic | $19.50 | $19.50 | $0.00 | $0.00 | $39.00 | $0.00 |
| 2022 | 1617 | WAT - Clean Water District | $11.50 | $11.50 | $0.00 | $0.00 | $23.00 | $0.00 |
| 2022 | 1617 | TOTAL: | $520.99 | $520.90 | $0.00 | $0.00 | $1041.89 | $0.00 |
|
| 2022 | 1617 | $520.99 | $520.90 | $0.00 | $0.00 | $1041.89 | $0.00 |
Values
| (+) Improvement Homesite Value: | + | $0 | |
| (+) Improvement Non-Homesite Value: | + | $42,215 | |
| (+) Land Homesite Value: | + | $0 | |
| (+) Land Non-Homesite Value: | + | $103,505 | |
| (+) Curr Use (HS): | + | $0 | $0 |
| (+) Curr Use (NHS): | + | $0 | $0 |
| | | -------------------------- | |
| (=) Market Value: | = | $145,720 | |
| (–) Productivity Loss: | – | $0 | |
| | | -------------------------- | |
| (=) Subtotal: | = | $145,720 | |
| (+) Senior Appraised Value: | + | $0 | |
| (+) Non-Senior Appraised Value: | + | $145,720 | |
| | | -------------------------- | |
| (=) Total Appraised Value: | = | $145,720 | |
| (–) Senior Exemption Loss: | – | $0 | |
| (–) Exemption Loss: | – | $0 | |
| | | -------------------------- | |
| (=) Taxable Value: | = | $145,720 | |
Taxing Jurisdiction
| Owner: | BRUCE B SETON SR | | |
| % Ownership: | 100.0000000000% | | |
| Total Value: | N/A | | |
| Tax Area: | 0111 - 1-50F1E1H2L1 |
| CE | COUNTY CURRENT EXPENSE | N/A | N/A | N/A | N/A | | |
| CNTYDD | DEVELOPMENTAL DISABILITIES | N/A | N/A | N/A | N/A | | |
| CNTYVET | VETERANS RELIEF | N/A | N/A | N/A | N/A | | |
| MENTAL | MENTAL HEALTH | N/A | N/A | N/A | N/A | | |
| ROADS | COUNTY ROADS | N/A | N/A | N/A | N/A | | |
| ROADSCU | COUNTY ROADS TO CUR EXP | N/A | N/A | N/A | N/A | | |
| HOSP2CASH | HOSP DIST #2 GENERAL | N/A | N/A | N/A | N/A | | |
| SCH50BOND | SCHOOL DIST #50 BOND 2016 | N/A | N/A | N/A | N/A | | |
| SCH50CP | SCHOOL DIST #50 CAP PROJ | N/A | N/A | N/A | N/A | | |
| SCH50MO | SCHOOL DIST #50 EP & O | N/A | N/A | N/A | N/A | | |
| CONSERVE | CONSERVATION FUTURES | N/A | N/A | N/A | N/A | | |
| EMS1 | FIRE DIST #1 EMS | N/A | N/A | N/A | N/A | | |
| FD1 | FIRE DIST #1 GENERAL | N/A | N/A | N/A | N/A | | |
| LIB1 | LIBRARY DIST #1 GENERAL | N/A | N/A | N/A | N/A | | |
| PORTPT | PORT OF PT GENERAL | N/A | N/A | N/A | N/A | | |
| PORTPTIDD | PORT OF PT IDD 2019 | N/A | N/A | N/A | N/A | | |
| PUD1 | PUD #1 GENERAL | N/A | N/A | N/A | N/A | | |
| STATE | STATE SCHOOL PART 1 | N/A | N/A | N/A | N/A | | |
| STATE2 | STATE SCHOOL PART 2 | N/A | N/A | N/A | N/A | | |
| | Total Tax Rate: | N/A | | | | | |
| | | | | Taxes w/Current Exemptions: | N/A | | |
| | | | | Taxes w/o Exemptions: | N/A | | |
Improvement / Building
| Improvement #1: | Residential Bldg | State Code: | 11 | 1068.0 sqft | Value: | $42,215 |
| Bathrooms (#): | 1 (FULL) | Bedrooms (#): | 2 | | Exterior Wall: | SI/ST | Fireplace: | WD ST-AVG | | Floor Construction: | FRAME | Foundation: | CONPR | | Heating/Cooling: | F/A | Inside Verify: | YES-FIX | | Roof Cover: | COMP |   |   |
|
| | Type | Description | Class CD | Sub Class CD | Year Built | Area |
| | MA | Main Area | 1+ | 1S | 1955 | 1068.0 |
| | HCPOR | House Concrete Porch | 1 | * | 1955 | 182.0 |
| | BSMTU | House basement unfinished | 1 | * | 1955 | 928.0 |
Sketch
Property Image
Land
| 1 | 5380-1375S | | 1.0000 | 43560.00 | 0.00 | 0.00 | 1.00 | $99,000 | $0 |
| 2 | 1575A | | 0.3900 | 16988.40 | 0.00 | 0.00 | 0.00 | $4,505 | $0 |
Roll Value History
| 2025 | N/A | N/A | N/A | N/A | N/A |
| 2024 | $42,215 | $103,505 | $0 | $145,720 | $145,720 |
| 2023 | $45,298 | $93,345 | $0 | $138,643 | $138,643 |
| 2022 | $41,180 | $83,608 | $0 | $124,788 | $124,788 |
| 2021 | $31,197 | $70,425 | $0 | $101,622 | $101,622 |
Deed and Sales History
| 1 | 03/01/2017 | SWD | Statutory Warranty Deed | BRUCE M BAKER | BRUCE B SETON SR | | | $90,000.00 | 127250 | |
| 2 | 03/01/2017 | QCD | Quit Claim Deed | | | | | | 127251 | |
| 3 | 08/01/2013 | QCD | Quit Claim Deed | BRUCE M BAKER | BRUCE M BAKER | | | | 119719 | |
Payout Agreement
| No payout information available.. |