Property
Account |
| Property ID: | 11668 | Abbreviated Legal Description: | S33 T30 R1W N1/2 NW SW (E50' OF W250' LESS S330') |
| Parcel # / Geo ID: | 001333008 | Agent Code: | |
| Type: | Real | | |
| Tax Area: | 0111 - 1-50F1E1H2L1 | Land Use Code | 63 |
| Open Space: | N | DFL | N |
| Historic Property: | N | Remodel Property: | N |
| Multi-Family Redevelopment: | N | | |
| Township: | 30N | Section: | 33 |
| Range: | 1W |
Location |
| Address: | 4890 S DISCOVERY RD PORT TOWNSEND, WA 98368 | Mapsco: | 105/046 |
| Neighborhood: | FOUR CORNERS COMMERCIAL AREA | Map ID: | |
| Neighborhood CD: | 5380C |
Owner |
| Name: | PROSPECT HOLDING LLC | Owner ID: | 97254 |
| Mailing Address: | 4890 S DISCOVERY RD PORT TOWNSEND, WA 98368-9022 | % Ownership: | 100.0000000000% |
| | | Exemptions: | |
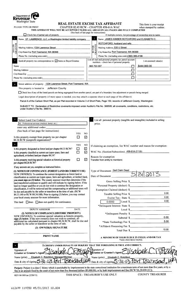
Pay Tax Due
There is currently No Amount Due on this property.
Taxes and Assessment Details
Property Tax Information as of
10/23/2025
Click on "Statement Details" to expand or collapse a tax statement.
* Please enter a valid date ** Please enter a valid date *
Statement Details |
| 2025 | 1612 | STATE - STATE LEVY (SCHOOL) | $98.71 | $98.71 | $0.00 | $0.00 | $197.42 | $0.00 |
| 2025 | 1612 | COUNTY - COUNTY LEVIES (CE, DD, VET, MH) | $38.82 | $38.81 | $0.00 | $0.00 | $77.63 | $0.00 |
| 2025 | 1612 | CONSERVE - CONSERVATION FUTURES | $1.17 | $1.16 | $0.00 | $0.00 | $2.33 | $0.00 |
| 2025 | 1612 | COROADS - COUNTY ROADS (ROADS, DIV TO CE) | $31.11 | $31.09 | $0.00 | $0.00 | $62.20 | $0.00 |
| 2025 | 1612 | PORTPT - PORT DISTRICT | $15.85 | $15.83 | $0.00 | $0.00 | $31.68 | $0.00 |
| 2025 | 1612 | PUD1 - PUD #1 | $2.54 | $2.54 | $0.00 | $0.00 | $5.08 | $0.00 |
| 2025 | 1612 | LIB1 - LIBRARY DIST #1 | $12.03 | $12.03 | $0.00 | $0.00 | $24.06 | $0.00 |
| 2025 | 1612 | HD2 - HOSP DIST #2 | $2.27 | $2.26 | $0.00 | $0.00 | $4.53 | $0.00 |
| 2025 | 1612 | SD50 - SCHOOL DIST #50 | $72.16 | $72.13 | $0.00 | $0.00 | $144.29 | $0.00 |
| 2025 | 1612 | FD1 - FIRE DISTRICT #1 | $51.23 | $51.22 | $0.00 | $0.00 | $102.45 | $0.00 |
| 2025 | 1612 | EMS1 - FIRE DIST #1 EMS | $19.70 | $19.70 | $0.00 | $0.00 | $39.40 | $0.00 |
| 2025 | 1612 | JCCD - JC Conservation District | $2.53 | $2.53 | $0.00 | $0.00 | $5.06 | $0.00 |
| 2025 | 1612 | NWA - Noxious Weed Assessment | $2.15 | $2.15 | $0.00 | $0.00 | $4.30 | $0.00 |
| 2025 | 1612 | WAT - Clean Water District | $13.00 | $13.00 | $0.00 | $0.00 | $26.00 | $0.00 |
| 2025 | 1612 | TOTAL: | $363.27 | $363.16 | $0.00 | $0.00 | $726.43 | $0.00 |
|
| 2025 | 1612 | $363.27 | $363.16 | $0.00 | $0.00 | $726.43 | $0.00 |
Statement Details |
| 2024 | 1616 | STATE - STATE LEVY (SCHOOL) | $101.37 | $101.36 | $0.00 | $0.00 | $202.73 | $0.00 |
| 2024 | 1616 | COUNTY - COUNTY LEVIES (CE, DD, VET, MH) | $43.39 | $43.36 | $0.00 | $0.00 | $86.75 | $0.00 |
| 2024 | 1616 | CONSERVE - CONSERVATION FUTURES | $1.30 | $1.30 | $0.00 | $0.00 | $2.60 | $0.00 |
| 2024 | 1616 | COROADS - COUNTY ROADS (ROADS, DIV TO CE) | $34.91 | $34.89 | $0.00 | $0.00 | $69.80 | $0.00 |
| 2024 | 1616 | PORTPT - PORT DISTRICT | $17.92 | $17.91 | $0.00 | $0.00 | $35.83 | $0.00 |
| 2024 | 1616 | PUD1 - PUD #1 | $2.85 | $2.85 | $0.00 | $0.00 | $5.70 | $0.00 |
| 2024 | 1616 | LIB1 - LIBRARY DIST #1 | $13.51 | $13.50 | $0.00 | $0.00 | $27.01 | $0.00 |
| 2024 | 1616 | HD2 - HOSP DIST #2 | $2.53 | $2.53 | $0.00 | $0.00 | $5.06 | $0.00 |
| 2024 | 1616 | SD50 - SCHOOL DIST #50 | $82.02 | $82.00 | $0.00 | $0.00 | $164.02 | $0.00 |
| 2024 | 1616 | FD1 - FIRE DISTRICT #1 | $57.35 | $57.35 | $0.00 | $0.00 | $114.70 | $0.00 |
| 2024 | 1616 | EMS1 - FIRE DIST #1 EMS | $21.91 | $21.90 | $0.00 | $0.00 | $43.81 | $0.00 |
| 2024 | 1616 | JCCD - JC Conservation District | $2.53 | $2.53 | $0.00 | $0.00 | $5.06 | $0.00 |
| 2024 | 1616 | NWA - Noxious Weed Assessment | $2.15 | $2.15 | $0.00 | $0.00 | $4.30 | $0.00 |
| 2024 | 1616 | WAT - Clean Water District | $12.50 | $12.50 | $0.00 | $0.00 | $25.00 | $0.00 |
| 2024 | 1616 | TOTAL: | $396.24 | $396.13 | $0.00 | $0.00 | $792.37 | $0.00 |
|
| 2024 | 1616 | $396.24 | $396.13 | $0.00 | $0.00 | $792.37 | $0.00 |
Statement Details |
| 2023 | 1616 | STATE - STATE LEVY (SCHOOL) | $98.30 | $98.29 | $0.00 | $0.00 | $196.59 | $0.00 |
| 2023 | 1616 | COUNTY - COUNTY LEVIES (CE, DD, VET, MH) | $42.91 | $42.88 | $0.00 | $0.00 | $85.79 | $0.00 |
| 2023 | 1616 | CONSERVE - CONSERVATION FUTURES | $1.29 | $1.28 | $0.00 | $0.00 | $2.57 | $0.00 |
| 2023 | 1616 | COROADS - COUNTY ROADS (ROADS, DIV TO CE) | $34.71 | $34.69 | $0.00 | $0.00 | $69.40 | $0.00 |
| 2023 | 1616 | PORTPT - PORT DISTRICT | $18.07 | $18.06 | $0.00 | $0.00 | $36.13 | $0.00 |
| 2023 | 1616 | PUD1 - PUD #1 | $2.85 | $2.84 | $0.00 | $0.00 | $5.69 | $0.00 |
| 2023 | 1616 | LIB1 - LIBRARY DIST #1 | $13.43 | $13.42 | $0.00 | $0.00 | $26.85 | $0.00 |
| 2023 | 1616 | HD2 - HOSP DIST #2 | $2.50 | $2.50 | $0.00 | $0.00 | $5.00 | $0.00 |
| 2023 | 1616 | SD50 - SCHOOL DIST #50 | $78.00 | $77.99 | $0.00 | $0.00 | $155.99 | $0.00 |
| 2023 | 1616 | FD1 - FIRE DISTRICT #1 | $35.34 | $35.33 | $0.00 | $0.00 | $70.67 | $0.00 |
| 2023 | 1616 | EMS1 - FIRE DIST #1 EMS | $15.03 | $15.03 | $0.00 | $0.00 | $30.06 | $0.00 |
| 2023 | 1616 | JCCD - JC Conservation District | $2.53 | $2.53 | $0.00 | $0.00 | $5.06 | $0.00 |
| 2023 | 1616 | NWA - Noxious Weed Assessment | $2.15 | $2.15 | $0.00 | $0.00 | $4.30 | $0.00 |
| 2023 | 1616 | WAT - Clean Water District | $12.00 | $12.00 | $0.00 | $0.00 | $24.00 | $0.00 |
| 2023 | 1616 | TOTAL: | $359.11 | $358.99 | $0.00 | $0.00 | $718.10 | $0.00 |
|
| 2023 | 1616 | $359.11 | $358.99 | $0.00 | $0.00 | $718.10 | $0.00 |
Statement Details |
| 2022 | 1619 | STATE - STATE LEVY (SCHOOL) | $103.73 | $103.73 | $0.00 | $0.00 | $207.46 | $0.00 |
| 2022 | 1619 | COUNTY - COUNTY LEVIES (CE, DD, VET, MH) | $46.22 | $46.20 | $0.00 | $0.00 | $92.42 | $0.00 |
| 2022 | 1619 | CONSERVE - CONSERVATION FUTURES | $1.39 | $1.38 | $0.00 | $0.00 | $2.77 | $0.00 |
| 2022 | 1619 | COROADS - COUNTY ROADS (ROADS, DIV TO CE) | $37.57 | $37.56 | $0.00 | $0.00 | $75.13 | $0.00 |
| 2022 | 1619 | PORTPT - PORT DISTRICT | $19.79 | $19.78 | $0.00 | $0.00 | $39.57 | $0.00 |
| 2022 | 1619 | PUD1 - PUD #1 | $3.09 | $3.09 | $0.00 | $0.00 | $6.18 | $0.00 |
| 2022 | 1619 | LIB1 - LIBRARY DIST #1 | $14.54 | $14.53 | $0.00 | $0.00 | $29.07 | $0.00 |
| 2022 | 1619 | HD2 - HOSP DIST #2 | $2.70 | $2.69 | $0.00 | $0.00 | $5.39 | $0.00 |
| 2022 | 1619 | SD50 - SCHOOL DIST #50 | $76.88 | $76.85 | $0.00 | $0.00 | $153.73 | $0.00 |
| 2022 | 1619 | FD1 - FIRE DISTRICT #1 | $37.92 | $37.91 | $0.00 | $0.00 | $75.83 | $0.00 |
| 2022 | 1619 | EMS1 - FIRE DIST #1 EMS | $16.13 | $16.13 | $0.00 | $0.00 | $32.26 | $0.00 |
| 2022 | 1619 | JCCD - JC Conservation District | $2.53 | $2.53 | $0.00 | $0.00 | $5.06 | $0.00 |
| 2022 | 1619 | NWA - Noxious Weed Assessment | $2.15 | $2.15 | $0.00 | $0.00 | $4.30 | $0.00 |
| 2022 | 1619 | WAT - Clean Water District | $11.50 | $11.50 | $0.00 | $0.00 | $23.00 | $0.00 |
| 2022 | 1619 | TOTAL: | $376.14 | $376.03 | $0.00 | $0.00 | $752.17 | $0.00 |
|
| 2022 | 1619 | $376.14 | $376.03 | $0.00 | $0.00 | $752.17 | $0.00 |
Values
| (+) Improvement Homesite Value: | + | $0 | |
| (+) Improvement Non-Homesite Value: | + | $60,233 | |
| (+) Land Homesite Value: | + | $0 | |
| (+) Land Non-Homesite Value: | + | $22,095 | |
| (+) Curr Use (HS): | + | $0 | $0 |
| (+) Curr Use (NHS): | + | $0 | $0 |
| | | -------------------------- | |
| (=) Market Value: | = | $82,328 | |
| (–) Productivity Loss: | – | $0 | |
| | | -------------------------- | |
| (=) Subtotal: | = | $82,328 | |
| (+) Senior Appraised Value: | + | $0 | |
| (+) Non-Senior Appraised Value: | + | $82,328 | |
| | | -------------------------- | |
| (=) Total Appraised Value: | = | $82,328 | |
| (–) Senior Exemption Loss: | – | $0 | |
| (–) Exemption Loss: | – | $0 | |
| | | -------------------------- | |
| (=) Taxable Value: | = | $82,328 | |
Taxing Jurisdiction
| Owner: | PROSPECT HOLDING LLC | | |
| % Ownership: | 100.0000000000% | | |
| Total Value: | N/A | | |
| Tax Area: | 0111 - 1-50F1E1H2L1 |
| CE | COUNTY CURRENT EXPENSE | N/A | N/A | N/A | N/A | | |
| CNTYDD | DEVELOPMENTAL DISABILITIES | N/A | N/A | N/A | N/A | | |
| CNTYVET | VETERANS RELIEF | N/A | N/A | N/A | N/A | | |
| MENTAL | MENTAL HEALTH | N/A | N/A | N/A | N/A | | |
| ROADS | COUNTY ROADS | N/A | N/A | N/A | N/A | | |
| ROADSCU | COUNTY ROADS TO CUR EXP | N/A | N/A | N/A | N/A | | |
| HOSP2CASH | HOSP DIST #2 GENERAL | N/A | N/A | N/A | N/A | | |
| SCH50BOND | SCHOOL DIST #50 BOND 2016 | N/A | N/A | N/A | N/A | | |
| SCH50CP | SCHOOL DIST #50 CAP PROJ | N/A | N/A | N/A | N/A | | |
| SCH50MO | SCHOOL DIST #50 EP & O | N/A | N/A | N/A | N/A | | |
| CONSERVE | CONSERVATION FUTURES | N/A | N/A | N/A | N/A | | |
| EMS1 | FIRE DIST #1 EMS | N/A | N/A | N/A | N/A | | |
| FD1 | FIRE DIST #1 GENERAL | N/A | N/A | N/A | N/A | | |
| LIB1 | LIBRARY DIST #1 GENERAL | N/A | N/A | N/A | N/A | | |
| PORTPT | PORT OF PT GENERAL | N/A | N/A | N/A | N/A | | |
| PORTPTIDD | PORT OF PT IDD 2019 | N/A | N/A | N/A | N/A | | |
| PUD1 | PUD #1 GENERAL | N/A | N/A | N/A | N/A | | |
| STATE | STATE SCHOOL PART 1 | N/A | N/A | N/A | N/A | | |
| STATE2 | STATE SCHOOL PART 2 | N/A | N/A | N/A | N/A | | |
| | Total Tax Rate: | N/A | | | | | |
| | | | | Taxes w/Current Exemptions: | N/A | | |
| | | | | Taxes w/o Exemptions: | N/A | | |
Improvement / Building
| Improvement #1: | Commercial/Industrial/Government Bldg | State Code: | 63 | 3600.0 sqft | Value: | $60,233 |
| Exterior Wall: | METAL | Floor Construction: | CONCR | | Foundation: | CONPR | Interior Finish: | UNFIN | | Roof Cover: | METAL |   |   |
|
Sketch
Property Image
Land
| 1 | 5380-6277Q | | 0.3413 | 14865.00 | 0.00 | 0.00 | 0.00 | $22,095 | $0 |
Roll Value History
| 2025 | N/A | N/A | N/A | N/A | N/A |
| 2024 | $60,233 | $22,095 | $0 | $82,328 | $82,328 |
| 2023 | $65,529 | $22,095 | $0 | $87,624 | $87,624 |
| 2022 | $62,409 | $21,095 | $0 | $83,504 | $83,504 |
| 2021 | $60,009 | $15,865 | $0 | $75,874 | $75,874 |
Deed and Sales History
| 1 | 05/19/2017 | SWD | Statutory Warranty Deed | W E SETON & MARILYN SETON RECOVABLE TRUST | PROSPECT HOLDING LLC | | | $1,475,000.00 | 127717 | |
|   | |
| 2 | 05/21/2014 | WD | Warranty Deed | | W E SETON & MARILYN SETON RECOVABLE TRUST | | | | 121209 | |
Payout Agreement
| No payout information available.. |