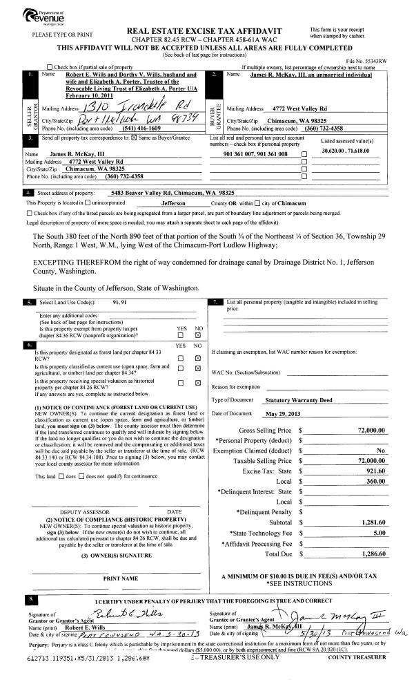
Property
Account |
| Property ID: | 11697 | Abbreviated Legal Description: | S33 T30 R1W N1/2 NW SW (W100') SW SW NW (W100' S OF CO RD) |
| Parcel # / Geo ID: | 001333039 | Agent Code: | |
| Type: | Real | | |
| Tax Area: | 0111 - 1-50F1E1H2L1 | Land Use Code | 63 |
| Open Space: | N | DFL | N |
| Historic Property: | N | Remodel Property: | N |
| Multi-Family Redevelopment: | N | | |
| Township: | 30N | Section: | 33 |
| Range: | 1W |
Location |
| Address: | 4890 S DISCOVERY RD PORT TOWNSEND, WA 98368 | Mapsco: | 105/050 |
| Neighborhood: | FOUR CORNERS COMMERCIAL AREA | Map ID: | |
| Neighborhood CD: | 5380C |
Owner |
| Name: | PROSPECT HOLDING LLC | Owner ID: | 97254 |
| Mailing Address: | 4890 S DISCOVERY RD PORT TOWNSEND, WA 98368-9022 | % Ownership: | 100.0000000000% |
| | | Exemptions: | |
Pay Tax Due
There is currently No Amount Due on this property.
Taxes and Assessment Details
Property Tax Information as of
10/23/2025
Click on "Statement Details" to expand or collapse a tax statement.
* Please enter a valid date ** Please enter a valid date *
Statement Details |
| 2025 | 1641 | STATE - STATE LEVY (SCHOOL) | $351.77 | $351.75 | $0.00 | $0.00 | $703.52 | $0.00 |
| 2025 | 1641 | COUNTY - COUNTY LEVIES (CE, DD, VET, MH) | $138.34 | $138.32 | $0.00 | $0.00 | $276.66 | $0.00 |
| 2025 | 1641 | CONSERVE - CONSERVATION FUTURES | $4.15 | $4.15 | $0.00 | $0.00 | $8.30 | $0.00 |
| 2025 | 1641 | COROADS - COUNTY ROADS (ROADS, DIV TO CE) | $110.83 | $110.81 | $0.00 | $0.00 | $221.64 | $0.00 |
| 2025 | 1641 | PORTPT - PORT DISTRICT | $56.45 | $56.44 | $0.00 | $0.00 | $112.89 | $0.00 |
| 2025 | 1641 | PUD1 - PUD #1 | $9.05 | $9.05 | $0.00 | $0.00 | $18.10 | $0.00 |
| 2025 | 1641 | LIB1 - LIBRARY DIST #1 | $42.88 | $42.87 | $0.00 | $0.00 | $85.75 | $0.00 |
| 2025 | 1641 | HD2 - HOSP DIST #2 | $8.07 | $8.07 | $0.00 | $0.00 | $16.14 | $0.00 |
| 2025 | 1641 | SD50 - SCHOOL DIST #50 | $257.08 | $257.07 | $0.00 | $0.00 | $514.15 | $0.00 |
| 2025 | 1641 | FD1 - FIRE DISTRICT #1 | $182.54 | $182.54 | $0.00 | $0.00 | $365.08 | $0.00 |
| 2025 | 1641 | EMS1 - FIRE DIST #1 EMS | $70.21 | $70.21 | $0.00 | $0.00 | $140.42 | $0.00 |
| 2025 | 1641 | FP - DNR Forest Fire Protection Assmt | $8.50 | $8.50 | $0.00 | $0.00 | $17.00 | $0.00 |
| 2025 | 1641 | FPLCA - DNR Landowner Contingency Assmt | $3.00 | $3.00 | $0.00 | $0.00 | $6.00 | $0.00 |
| 2025 | 1641 | JCCD - JC Conservation District | $2.57 | $2.57 | $0.00 | $0.00 | $5.14 | $0.00 |
| 2025 | 1641 | NWA - Noxious Weed Assessment | $2.30 | $2.30 | $0.00 | $0.00 | $4.60 | $0.00 |
| 2025 | 1641 | WAT - Clean Water District | $13.00 | $13.00 | $0.00 | $0.00 | $26.00 | $0.00 |
| 2025 | 1641 | FP ADMIN - FP ADMIN | $0.50 | $0.00 | $0.00 | $0.00 | $0.50 | $0.00 |
| 2025 | 1641 | TOTAL: | $1261.24 | $1260.65 | $0.00 | $0.00 | $2521.89 | $0.00 |
|
| 2025 | 1641 | $1261.24 | $1260.65 | $0.00 | $0.00 | $2521.89 | $0.00 |
Statement Details |
| 2024 | 1645 | STATE - STATE LEVY (SCHOOL) | $339.78 | $339.78 | $0.00 | $0.00 | $679.56 | $0.00 |
| 2024 | 1645 | COUNTY - COUNTY LEVIES (CE, DD, VET, MH) | $145.39 | $145.39 | $0.00 | $0.00 | $290.78 | $0.00 |
| 2024 | 1645 | CONSERVE - CONSERVATION FUTURES | $4.36 | $4.36 | $0.00 | $0.00 | $8.72 | $0.00 |
| 2024 | 1645 | COROADS - COUNTY ROADS (ROADS, DIV TO CE) | $117.00 | $116.99 | $0.00 | $0.00 | $233.99 | $0.00 |
| 2024 | 1645 | PORTPT - PORT DISTRICT | $60.06 | $60.05 | $0.00 | $0.00 | $120.11 | $0.00 |
| 2024 | 1645 | PUD1 - PUD #1 | $9.55 | $9.55 | $0.00 | $0.00 | $19.10 | $0.00 |
| 2024 | 1645 | LIB1 - LIBRARY DIST #1 | $45.27 | $45.26 | $0.00 | $0.00 | $90.53 | $0.00 |
| 2024 | 1645 | HD2 - HOSP DIST #2 | $8.49 | $8.48 | $0.00 | $0.00 | $16.97 | $0.00 |
| 2024 | 1645 | SD50 - SCHOOL DIST #50 | $274.90 | $274.89 | $0.00 | $0.00 | $549.79 | $0.00 |
| 2024 | 1645 | FD1 - FIRE DISTRICT #1 | $192.25 | $192.24 | $0.00 | $0.00 | $384.49 | $0.00 |
| 2024 | 1645 | EMS1 - FIRE DIST #1 EMS | $73.43 | $73.43 | $0.00 | $0.00 | $146.86 | $0.00 |
| 2024 | 1645 | FP - DNR Forest Fire Protection Assmt | $8.50 | $8.50 | $0.00 | $0.00 | $17.00 | $0.00 |
| 2024 | 1645 | FPLCA - DNR Landowner Contingency Assmt | $3.00 | $3.00 | $0.00 | $0.00 | $6.00 | $0.00 |
| 2024 | 1645 | JCCD - JC Conservation District | $2.57 | $2.57 | $0.00 | $0.00 | $5.14 | $0.00 |
| 2024 | 1645 | NWA - Noxious Weed Assessment | $2.30 | $2.30 | $0.00 | $0.00 | $4.60 | $0.00 |
| 2024 | 1645 | WAT - Clean Water District | $12.50 | $12.50 | $0.00 | $0.00 | $25.00 | $0.00 |
| 2024 | 1645 | FP ADMIN - FP ADMIN | $0.50 | $0.00 | $0.00 | $0.00 | $0.50 | $0.00 |
| 2024 | 1645 | TOTAL: | $1299.85 | $1299.29 | $0.00 | $0.00 | $2599.14 | $0.00 |
|
| 2024 | 1645 | $1299.85 | $1299.29 | $0.00 | $0.00 | $2599.14 | $0.00 |
Statement Details |
| 2023 | 1645 | STATE - STATE LEVY (SCHOOL) | $332.01 | $331.99 | $0.00 | $0.00 | $664.00 | $0.00 |
| 2023 | 1645 | COUNTY - COUNTY LEVIES (CE, DD, VET, MH) | $144.88 | $144.86 | $0.00 | $0.00 | $289.74 | $0.00 |
| 2023 | 1645 | CONSERVE - CONSERVATION FUTURES | $4.35 | $4.34 | $0.00 | $0.00 | $8.69 | $0.00 |
| 2023 | 1645 | COROADS - COUNTY ROADS (ROADS, DIV TO CE) | $117.22 | $117.21 | $0.00 | $0.00 | $234.43 | $0.00 |
| 2023 | 1645 | PORTPT - PORT DISTRICT | $61.03 | $61.03 | $0.00 | $0.00 | $122.06 | $0.00 |
| 2023 | 1645 | PUD1 - PUD #1 | $9.61 | $9.60 | $0.00 | $0.00 | $19.21 | $0.00 |
| 2023 | 1645 | LIB1 - LIBRARY DIST #1 | $45.35 | $45.35 | $0.00 | $0.00 | $90.70 | $0.00 |
| 2023 | 1645 | HD2 - HOSP DIST #2 | $8.46 | $8.45 | $0.00 | $0.00 | $16.91 | $0.00 |
| 2023 | 1645 | SD50 - SCHOOL DIST #50 | $263.46 | $263.44 | $0.00 | $0.00 | $526.90 | $0.00 |
| 2023 | 1645 | FD1 - FIRE DISTRICT #1 | $119.35 | $119.35 | $0.00 | $0.00 | $238.70 | $0.00 |
| 2023 | 1645 | EMS1 - FIRE DIST #1 EMS | $50.77 | $50.77 | $0.00 | $0.00 | $101.54 | $0.00 |
| 2023 | 1645 | FP - DNR Forest Fire Protection Assmt | $8.50 | $8.50 | $0.00 | $0.00 | $17.00 | $0.00 |
| 2023 | 1645 | FPLCA - DNR Landowner Contingency Assmt | $3.00 | $3.00 | $0.00 | $0.00 | $6.00 | $0.00 |
| 2023 | 1645 | JCCD - JC Conservation District | $2.57 | $2.57 | $0.00 | $0.00 | $5.14 | $0.00 |
| 2023 | 1645 | NWA - Noxious Weed Assessment | $2.30 | $2.30 | $0.00 | $0.00 | $4.60 | $0.00 |
| 2023 | 1645 | WAT - Clean Water District | $12.00 | $12.00 | $0.00 | $0.00 | $24.00 | $0.00 |
| 2023 | 1645 | FP ADMIN - FP ADMIN | $0.50 | $0.00 | $0.00 | $0.00 | $0.50 | $0.00 |
| 2023 | 1645 | TOTAL: | $1185.36 | $1184.76 | $0.00 | $0.00 | $2370.12 | $0.00 |
|
| 2023 | 1645 | $1185.36 | $1184.76 | $0.00 | $0.00 | $2370.12 | $0.00 |
Statement Details |
| 2022 | 1648 | STATE - STATE LEVY (SCHOOL) | $359.58 | $359.57 | $0.00 | $0.00 | $719.15 | $0.00 |
| 2022 | 1648 | COUNTY - COUNTY LEVIES (CE, DD, VET, MH) | $160.21 | $160.21 | $0.00 | $0.00 | $320.42 | $0.00 |
| 2022 | 1648 | CONSERVE - CONSERVATION FUTURES | $4.81 | $4.80 | $0.00 | $0.00 | $9.61 | $0.00 |
| 2022 | 1648 | COROADS - COUNTY ROADS (ROADS, DIV TO CE) | $130.22 | $130.20 | $0.00 | $0.00 | $260.42 | $0.00 |
| 2022 | 1648 | PORTPT - PORT DISTRICT | $68.59 | $68.58 | $0.00 | $0.00 | $137.17 | $0.00 |
| 2022 | 1648 | PUD1 - PUD #1 | $10.72 | $10.71 | $0.00 | $0.00 | $21.43 | $0.00 |
| 2022 | 1648 | LIB1 - LIBRARY DIST #1 | $50.38 | $50.38 | $0.00 | $0.00 | $100.76 | $0.00 |
| 2022 | 1648 | HD2 - HOSP DIST #2 | $9.35 | $9.35 | $0.00 | $0.00 | $18.70 | $0.00 |
| 2022 | 1648 | SD50 - SCHOOL DIST #50 | $266.47 | $266.45 | $0.00 | $0.00 | $532.92 | $0.00 |
| 2022 | 1648 | FD1 - FIRE DISTRICT #1 | $131.43 | $131.43 | $0.00 | $0.00 | $262.86 | $0.00 |
| 2022 | 1648 | EMS1 - FIRE DIST #1 EMS | $55.91 | $55.90 | $0.00 | $0.00 | $111.81 | $0.00 |
| 2022 | 1648 | FP - DNR Forest Fire Protection Assmt | $8.50 | $8.50 | $0.00 | $0.00 | $17.00 | $0.00 |
| 2022 | 1648 | FPLCA - DNR Landowner Contingency Assmt | $3.00 | $3.00 | $0.00 | $0.00 | $6.00 | $0.00 |
| 2022 | 1648 | JCCD - JC Conservation District | $2.57 | $2.57 | $0.00 | $0.00 | $5.14 | $0.00 |
| 2022 | 1648 | NWA - Noxious Weed Assessment | $2.30 | $2.30 | $0.00 | $0.00 | $4.60 | $0.00 |
| 2022 | 1648 | WAT - Clean Water District | $11.50 | $11.50 | $0.00 | $0.00 | $23.00 | $0.00 |
| 2022 | 1648 | FP ADMIN - FP ADMIN | $0.50 | $0.00 | $0.00 | $0.00 | $0.50 | $0.00 |
| 2022 | 1648 | TOTAL: | $1276.04 | $1275.45 | $0.00 | $0.00 | $2551.49 | $0.00 |
|
| 2022 | 1648 | $1276.04 | $1275.45 | $0.00 | $0.00 | $2551.49 | $0.00 |
Values
| (+) Improvement Homesite Value: | + | $0 | |
| (+) Improvement Non-Homesite Value: | + | $230,248 | |
| (+) Land Homesite Value: | + | $0 | |
| (+) Land Non-Homesite Value: | + | $63,127 | |
| (+) Curr Use (HS): | + | $0 | $0 |
| (+) Curr Use (NHS): | + | $0 | $0 |
| | | -------------------------- | |
| (=) Market Value: | = | $293,375 | |
| (–) Productivity Loss: | – | $0 | |
| | | -------------------------- | |
| (=) Subtotal: | = | $293,375 | |
| (+) Senior Appraised Value: | + | $0 | |
| (+) Non-Senior Appraised Value: | + | $293,375 | |
| | | -------------------------- | |
| (=) Total Appraised Value: | = | $293,375 | |
| (–) Senior Exemption Loss: | – | $0 | |
| (–) Exemption Loss: | – | $0 | |
| | | -------------------------- | |
| (=) Taxable Value: | = | $293,375 | |
Taxing Jurisdiction
| Owner: | PROSPECT HOLDING LLC | | |
| % Ownership: | 100.0000000000% | | |
| Total Value: | N/A | | |
| Tax Area: | 0111 - 1-50F1E1H2L1 |
| CE | COUNTY CURRENT EXPENSE | N/A | N/A | N/A | N/A | | |
| CNTYDD | DEVELOPMENTAL DISABILITIES | N/A | N/A | N/A | N/A | | |
| CNTYVET | VETERANS RELIEF | N/A | N/A | N/A | N/A | | |
| MENTAL | MENTAL HEALTH | N/A | N/A | N/A | N/A | | |
| ROADS | COUNTY ROADS | N/A | N/A | N/A | N/A | | |
| ROADSCU | COUNTY ROADS TO CUR EXP | N/A | N/A | N/A | N/A | | |
| HOSP2CASH | HOSP DIST #2 GENERAL | N/A | N/A | N/A | N/A | | |
| SCH50BOND | SCHOOL DIST #50 BOND 2016 | N/A | N/A | N/A | N/A | | |
| SCH50CP | SCHOOL DIST #50 CAP PROJ | N/A | N/A | N/A | N/A | | |
| SCH50MO | SCHOOL DIST #50 EP & O | N/A | N/A | N/A | N/A | | |
| CONSERVE | CONSERVATION FUTURES | N/A | N/A | N/A | N/A | | |
| EMS1 | FIRE DIST #1 EMS | N/A | N/A | N/A | N/A | | |
| FD1 | FIRE DIST #1 GENERAL | N/A | N/A | N/A | N/A | | |
| LIB1 | LIBRARY DIST #1 GENERAL | N/A | N/A | N/A | N/A | | |
| PORTPT | PORT OF PT GENERAL | N/A | N/A | N/A | N/A | | |
| PORTPTIDD | PORT OF PT IDD 2019 | N/A | N/A | N/A | N/A | | |
| PUD1 | PUD #1 GENERAL | N/A | N/A | N/A | N/A | | |
| STATE | STATE SCHOOL PART 1 | N/A | N/A | N/A | N/A | | |
| STATE2 | STATE SCHOOL PART 2 | N/A | N/A | N/A | N/A | | |
| | Total Tax Rate: | N/A | | | | | |
| | | | | Taxes w/Current Exemptions: | N/A | | |
| | | | | Taxes w/o Exemptions: | N/A | | |
Improvement / Building
| Improvement #1: | Commercial/Industrial/Government Bldg | State Code: | 63 | 7800.0 sqft | Value: | $224,452 |
| Exterior Wall: | BL/VE | Floor Construction: | CONCR | | Foundation: | CONPR | Interior Finish: | UNFIN | | Roof Cover: | COMP |   |   |
|
| Improvement #2: | Residential Bldg | State Code: | 18 | 0.0 sqft | Value: | $5,796 |
Sketch
Property Image
Land
| 1 | 5380-6277Q | | 1.5472 | 67394.00 | 0.00 | 0.00 | 0.00 | $63,127 | $0 |
Roll Value History
| 2025 | N/A | N/A | N/A | N/A | N/A |
| 2024 | $230,248 | $63,127 | $0 | $293,375 | $293,375 |
| 2023 | $230,596 | $63,127 | $0 | $293,723 | $293,723 |
| 2022 | $219,927 | $62,127 | $0 | $282,054 | $282,054 |
| 2021 | $211,468 | $51,546 | $0 | $263,014 | $263,014 |
Deed and Sales History
| 1 | 05/19/2017 | SWD | Statutory Warranty Deed | W E SETON & MARILYN SETON RECOVABLE TRUST | PROSPECT HOLDING LLC | | | $1,475,000.00 | 127717 | |
|   | |
| 2 | 05/21/2014 | WD | Warranty Deed | | W E SETON & MARILYN SETON RECOVABLE TRUST | | | | 121209 | |
Payout Agreement
| No payout information available.. |