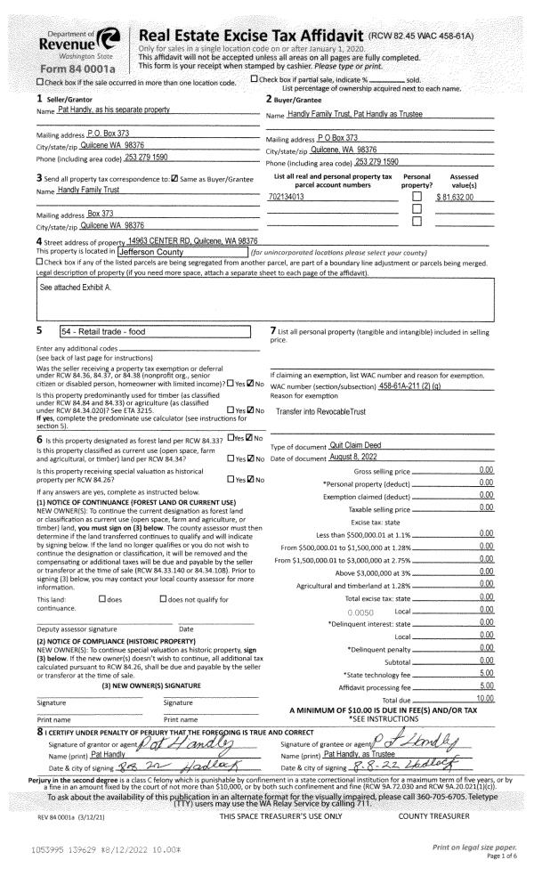
Property
Account |
| Property ID: | 11723 | Abbreviated Legal Description: | S33 T30N R1W TX 59 PARCEL 5 OF SURVEY V16/P116 |
| Parcel # / Geo ID: | 001334024 | Agent Code: | |
| Type: | Real | | |
| Tax Area: | 0211 - 1-49F1E1H2L1 | Land Use Code | 95 |
| Open Space: | Y | DFL | N |
| Historic Property: | N | Remodel Property: | N |
| Multi-Family Redevelopment: | N | | |
| Township: | 30N | Section: | 33 |
| Range: | 1W |
Location |
| Address: | 82 TWIN CEDARS RD PORT TOWNSEND, WA 98368 | Mapsco: | 223/075 |
| Neighborhood: | S33 (E1/2) & S34 T30N R1W; MARVIN GARDENS LLSD; SULIVAN'S SP | Map ID: | |
| Neighborhood CD: | 4110 |
Owner |
| Name: | SCOTT ALLAN CALHOUN | Owner ID: | 12600 |
| Mailing Address: | 82 TWIN CEDARS RD PORT TOWNSEND, WA 98368-7014 | % Ownership: | 100.0000000000% |
| | | Exemptions: | |
Pay Tax Due
Select the appropriate checkbox next to the year to be paid. Multiple years may be selected.
*Convenience Fee not included
Taxes and Assessment Details
Property Tax Information as of
10/23/2025
Click on "Statement Details" to expand or collapse a tax statement.
* Please enter a valid date ** Please enter a valid date *
Statement Details |
| 2025 | 1667 | STATE - STATE LEVY (SCHOOL) | $316.09 | $316.09 | $0.00 | $0.00 | $316.09 | $316.09 |
| 2025 | 1667 | COUNTY - COUNTY LEVIES (CE, DD, VET, MH) | $124.31 | $124.29 | $0.00 | $0.00 | $124.31 | $124.29 |
| 2025 | 1667 | CONSERVE - CONSERVATION FUTURES | $3.73 | $3.72 | $0.00 | $0.00 | $3.73 | $3.72 |
| 2025 | 1667 | COROADS - COUNTY ROADS (ROADS, DIV TO CE) | $99.58 | $99.58 | $0.00 | $0.00 | $99.58 | $99.58 |
| 2025 | 1667 | PORTPT - PORT DISTRICT | $50.73 | $50.72 | $0.00 | $0.00 | $50.73 | $50.72 |
| 2025 | 1667 | PUD1 - PUD #1 | $8.14 | $8.13 | $0.00 | $0.00 | $8.14 | $8.13 |
| 2025 | 1667 | LIB1 - LIBRARY DIST #1 | $38.53 | $38.53 | $0.00 | $0.00 | $38.53 | $38.53 |
| 2025 | 1667 | HD2 - HOSP DIST #2 | $7.25 | $7.25 | $0.00 | $0.00 | $7.25 | $7.25 |
| 2025 | 1667 | SD49 - SCHOOL DIST #49 | $169.41 | $169.40 | $0.00 | $0.00 | $169.41 | $169.40 |
| 2025 | 1667 | FD1 - FIRE DISTRICT #1 | $164.03 | $164.03 | $0.00 | $0.00 | $164.03 | $164.03 |
| 2025 | 1667 | EMS1 - FIRE DIST #1 EMS | $63.09 | $63.09 | $0.00 | $0.00 | $63.09 | $63.09 |
| 2025 | 1667 | FP - DNR Forest Fire Protection Assmt | $8.50 | $8.50 | $0.00 | $0.00 | $8.50 | $8.50 |
| 2025 | 1667 | FPLCA - DNR Landowner Contingency Assmt | $3.00 | $3.00 | $0.00 | $0.00 | $3.00 | $3.00 |
| 2025 | 1667 | JCCD - JC Conservation District | $1.55 | $1.55 | $0.00 | $0.00 | $1.55 | $1.55 |
| 2025 | 1667 | NWA - Noxious Weed Assessment | $0.37 | $0.36 | $0.00 | $0.00 | $0.37 | $0.36 |
| 2025 | 1667 | OSS - On Site Septic | $21.50 | $21.50 | $0.00 | $0.00 | $21.50 | $21.50 |
| 2025 | 1667 | WAT - Clean Water District | $13.00 | $13.00 | $0.00 | $0.00 | $13.00 | $13.00 |
| 2025 | 1667 | FP ADMIN - FP ADMIN | $0.50 | $0.00 | $0.00 | $0.00 | $0.50 | $0.00 |
| 2025 | 1667 | TOTAL: | $1093.31 | $1092.74 | $0.00 | $0.00 | $1093.31 | $1092.74 |
|
| 2025 | 1667 | $1093.31 | $1092.74 | $0.00 | $0.00 | $1093.31 | $1092.74 |
Statement Details |
| 2024 | 1671 | STATE - STATE LEVY (SCHOOL) | $304.94 | $304.93 | $0.00 | $0.00 | $609.87 | $0.00 |
| 2024 | 1671 | COUNTY - COUNTY LEVIES (CE, DD, VET, MH) | $130.50 | $130.46 | $0.00 | $0.00 | $260.96 | $0.00 |
| 2024 | 1671 | CONSERVE - CONSERVATION FUTURES | $3.92 | $3.91 | $0.00 | $0.00 | $7.83 | $0.00 |
| 2024 | 1671 | COROADS - COUNTY ROADS (ROADS, DIV TO CE) | $105.01 | $104.99 | $0.00 | $0.00 | $210.00 | $0.00 |
| 2024 | 1671 | PORTPT - PORT DISTRICT | $53.90 | $53.89 | $0.00 | $0.00 | $107.79 | $0.00 |
| 2024 | 1671 | PUD1 - PUD #1 | $8.57 | $8.57 | $0.00 | $0.00 | $17.14 | $0.00 |
| 2024 | 1671 | LIB1 - LIBRARY DIST #1 | $40.63 | $40.62 | $0.00 | $0.00 | $81.25 | $0.00 |
| 2024 | 1671 | HD2 - HOSP DIST #2 | $7.62 | $7.61 | $0.00 | $0.00 | $15.23 | $0.00 |
| 2024 | 1671 | SD49 - SCHOOL DIST #49 | $136.17 | $136.17 | $0.00 | $0.00 | $272.34 | $0.00 |
| 2024 | 1671 | FD1 - FIRE DISTRICT #1 | $172.54 | $172.53 | $0.00 | $0.00 | $345.07 | $0.00 |
| 2024 | 1671 | EMS1 - FIRE DIST #1 EMS | $65.90 | $65.90 | $0.00 | $0.00 | $131.80 | $0.00 |
| 2024 | 1671 | FP - DNR Forest Fire Protection Assmt | $8.50 | $8.50 | $0.00 | $0.00 | $17.00 | $0.00 |
| 2024 | 1671 | FPLCA - DNR Landowner Contingency Assmt | $3.00 | $3.00 | $0.00 | $0.00 | $6.00 | $0.00 |
| 2024 | 1671 | JCCD - JC Conservation District | $1.55 | $1.55 | $0.00 | $0.00 | $3.10 | $0.00 |
| 2024 | 1671 | NWA - Noxious Weed Assessment | $0.37 | $0.36 | $0.00 | $0.00 | $0.73 | $0.00 |
| 2024 | 1671 | OSS - On Site Septic | $21.00 | $21.00 | $0.00 | $0.00 | $42.00 | $0.00 |
| 2024 | 1671 | WAT - Clean Water District | $12.50 | $12.50 | $0.00 | $0.00 | $25.00 | $0.00 |
| 2024 | 1671 | FP ADMIN - FP ADMIN | $0.50 | $0.00 | $0.00 | $0.00 | $0.50 | $0.00 |
| 2024 | 1671 | TOTAL: | $1077.12 | $1076.49 | $0.00 | $0.00 | $2153.61 | $0.00 |
|
| 2024 | 1671 | $1077.12 | $1076.49 | $0.00 | $0.00 | $2153.61 | $0.00 |
Statement Details |
| 2023 | 1671 | STATE - STATE LEVY (SCHOOL) | $259.19 | $259.18 | $0.00 | $0.00 | $518.37 | $0.00 |
| 2023 | 1671 | COUNTY - COUNTY LEVIES (CE, DD, VET, MH) | $113.10 | $113.09 | $0.00 | $0.00 | $226.19 | $0.00 |
| 2023 | 1671 | CONSERVE - CONSERVATION FUTURES | $3.39 | $3.39 | $0.00 | $0.00 | $6.78 | $0.00 |
| 2023 | 1671 | COROADS - COUNTY ROADS (ROADS, DIV TO CE) | $91.51 | $91.50 | $0.00 | $0.00 | $183.01 | $0.00 |
| 2023 | 1671 | PORTPT - PORT DISTRICT | $47.65 | $47.64 | $0.00 | $0.00 | $95.29 | $0.00 |
| 2023 | 1671 | PUD1 - PUD #1 | $7.50 | $7.49 | $0.00 | $0.00 | $14.99 | $0.00 |
| 2023 | 1671 | LIB1 - LIBRARY DIST #1 | $35.41 | $35.40 | $0.00 | $0.00 | $70.81 | $0.00 |
| 2023 | 1671 | HD2 - HOSP DIST #2 | $6.60 | $6.60 | $0.00 | $0.00 | $13.20 | $0.00 |
| 2023 | 1671 | SD49 - SCHOOL DIST #49 | $121.15 | $121.15 | $0.00 | $0.00 | $242.30 | $0.00 |
| 2023 | 1671 | FD1 - FIRE DISTRICT #1 | $93.17 | $93.17 | $0.00 | $0.00 | $186.34 | $0.00 |
| 2023 | 1671 | EMS1 - FIRE DIST #1 EMS | $39.64 | $39.63 | $0.00 | $0.00 | $79.27 | $0.00 |
| 2023 | 1671 | FP - DNR Forest Fire Protection Assmt | $8.50 | $8.50 | $0.00 | $0.00 | $17.00 | $0.00 |
| 2023 | 1671 | FPLCA - DNR Landowner Contingency Assmt | $3.00 | $3.00 | $0.00 | $0.00 | $6.00 | $0.00 |
| 2023 | 1671 | JCCD - JC Conservation District | $1.55 | $1.55 | $0.00 | $0.00 | $3.10 | $0.00 |
| 2023 | 1671 | NWA - Noxious Weed Assessment | $0.37 | $0.36 | $0.00 | $0.00 | $0.73 | $0.00 |
| 2023 | 1671 | OSS - On Site Septic | $20.50 | $20.50 | $0.00 | $0.00 | $41.00 | $0.00 |
| 2023 | 1671 | WAT - Clean Water District | $12.00 | $12.00 | $0.00 | $0.00 | $24.00 | $0.00 |
| 2023 | 1671 | FP ADMIN - FP ADMIN | $0.50 | $0.00 | $0.00 | $0.00 | $0.50 | $0.00 |
| 2023 | 1671 | TOTAL: | $864.73 | $864.15 | $0.00 | $0.00 | $1728.88 | $0.00 |
|
| 2023 | 1671 | $864.73 | $864.15 | $0.00 | $0.00 | $1728.88 | $0.00 |
Statement Details |
| 2022 | 1674 | STATE - STATE LEVY (SCHOOL) | $254.30 | $254.29 | $0.00 | $0.00 | $508.59 | $0.00 |
| 2022 | 1674 | COUNTY - COUNTY LEVIES (CE, DD, VET, MH) | $113.32 | $113.29 | $0.00 | $0.00 | $226.61 | $0.00 |
| 2022 | 1674 | CONSERVE - CONSERVATION FUTURES | $3.40 | $3.39 | $0.00 | $0.00 | $6.79 | $0.00 |
| 2022 | 1674 | COROADS - COUNTY ROADS (ROADS, DIV TO CE) | $92.09 | $92.09 | $0.00 | $0.00 | $184.18 | $0.00 |
| 2022 | 1674 | PORTPT - PORT DISTRICT | $48.51 | $48.50 | $0.00 | $0.00 | $97.01 | $0.00 |
| 2022 | 1674 | PUD1 - PUD #1 | $7.58 | $7.57 | $0.00 | $0.00 | $15.15 | $0.00 |
| 2022 | 1674 | LIB1 - LIBRARY DIST #1 | $35.63 | $35.63 | $0.00 | $0.00 | $71.26 | $0.00 |
| 2022 | 1674 | HD2 - HOSP DIST #2 | $6.62 | $6.61 | $0.00 | $0.00 | $13.23 | $0.00 |
| 2022 | 1674 | SD49 - SCHOOL DIST #49 | $123.07 | $123.05 | $0.00 | $0.00 | $246.12 | $0.00 |
| 2022 | 1674 | FD1 - FIRE DISTRICT #1 | $92.95 | $92.95 | $0.00 | $0.00 | $185.90 | $0.00 |
| 2022 | 1674 | EMS1 - FIRE DIST #1 EMS | $39.54 | $39.53 | $0.00 | $0.00 | $79.07 | $0.00 |
| 2022 | 1674 | FP - DNR Forest Fire Protection Assmt | $8.50 | $8.50 | $0.00 | $0.00 | $17.00 | $0.00 |
| 2022 | 1674 | FPLCA - DNR Landowner Contingency Assmt | $3.00 | $3.00 | $0.00 | $0.00 | $6.00 | $0.00 |
| 2022 | 1674 | JCCD - JC Conservation District | $1.55 | $1.55 | $0.00 | $0.00 | $3.10 | $0.00 |
| 2022 | 1674 | NWA - Noxious Weed Assessment | $0.37 | $0.36 | $0.00 | $0.00 | $0.73 | $0.00 |
| 2022 | 1674 | OSS - On Site Septic | $19.50 | $19.50 | $0.00 | $0.00 | $39.00 | $0.00 |
| 2022 | 1674 | WAT - Clean Water District | $11.50 | $11.50 | $0.00 | $0.00 | $23.00 | $0.00 |
| 2022 | 1674 | FP ADMIN - FP ADMIN | $0.50 | $0.00 | $0.00 | $0.00 | $0.50 | $0.00 |
| 2022 | 1674 | TOTAL: | $861.93 | $861.31 | $0.00 | $0.00 | $1723.24 | $0.00 |
|
| 2022 | 1674 | $861.93 | $861.31 | $0.00 | $0.00 | $1723.24 | $0.00 |
Values
| (+) Improvement Homesite Value: | + | $0 | |
| (+) Improvement Non-Homesite Value: | + | $149,291 | |
| (+) Land Homesite Value: | + | $0 | |
| (+) Land Non-Homesite Value: | + | $126,000 | |
| (+) Curr Use (HS): | + | $0 | $0 |
| (+) Curr Use (NHS): | + | $173,413 | $1,120 |
| | | -------------------------- | |
| (=) Market Value: | = | $448,704 | |
| (–) Productivity Loss: | – | $172,293 | |
| | | -------------------------- | |
| (=) Subtotal: | = | $276,411 | |
| (+) Senior Appraised Value: | + | $0 | |
| (+) Non-Senior Appraised Value: | + | $276,411 | |
| | | -------------------------- | |
| (=) Total Appraised Value: | = | $276,411 | |
| (–) Senior Exemption Loss: | – | $0 | |
| (–) Exemption Loss: | – | $0 | |
| | | -------------------------- | |
| (=) Taxable Value: | = | $276,411 | |
Taxing Jurisdiction
| Owner: | SCOTT ALLAN CALHOUN | | |
| % Ownership: | 100.0000000000% | | |
| Total Value: | N/A | | |
| Tax Area: | 0211 - 1-49F1E1H2L1 |
| CE | COUNTY CURRENT EXPENSE | N/A | N/A | N/A | N/A | | |
| CNTYDD | DEVELOPMENTAL DISABILITIES | N/A | N/A | N/A | N/A | | |
| CNTYVET | VETERANS RELIEF | N/A | N/A | N/A | N/A | | |
| MENTAL | MENTAL HEALTH | N/A | N/A | N/A | N/A | | |
| ROADS | COUNTY ROADS | N/A | N/A | N/A | N/A | | |
| ROADSCU | COUNTY ROADS TO CUR EXP | N/A | N/A | N/A | N/A | | |
| HOSP2CASH | HOSP DIST #2 GENERAL | N/A | N/A | N/A | N/A | | |
| SCH49CP | SCHOOL DIST #49 CAP PROJ | N/A | N/A | N/A | N/A | | |
| SCH49MO | SCHOOL DIST #49 EP & O | N/A | N/A | N/A | N/A | | |
| CONSERVE | CONSERVATION FUTURES | N/A | N/A | N/A | N/A | | |
| EMS1 | FIRE DIST #1 EMS | N/A | N/A | N/A | N/A | | |
| FD1 | FIRE DIST #1 GENERAL | N/A | N/A | N/A | N/A | | |
| LIB1 | LIBRARY DIST #1 GENERAL | N/A | N/A | N/A | N/A | | |
| PORTPT | PORT OF PT GENERAL | N/A | N/A | N/A | N/A | | |
| PORTPTIDD | PORT OF PT IDD 2019 | N/A | N/A | N/A | N/A | | |
| PUD1 | PUD #1 GENERAL | N/A | N/A | N/A | N/A | | |
| STATE | STATE SCHOOL PART 1 | N/A | N/A | N/A | N/A | | |
| STATE2 | STATE SCHOOL PART 2 | N/A | N/A | N/A | N/A | | |
| | Total Tax Rate: | N/A | | | | | |
| | | | | Taxes w/Current Exemptions: | N/A | | |
| | | | | Taxes w/o Exemptions: | N/A | | |
Improvement / Building
| Improvement #1: | Manufactured Home | State Code: | 81 | 1596.0 sqft | Value: | $111,437 |
| Bathrooms (#): | 2 (FULL) | Bedrooms (#): | 3 | | Exterior Wall: | PL/T1 | Floor Construction: | FRAME | | Foundation: | PO&BL | Heating/Cooling: | F/A | | Inside Verify: | YES-FIX | Roof Cover: | COMP |
|
| | Type | Description | Class CD | Sub Class CD | Year Built | Area |
| | MA | Main Area | 4- | MDBL | 1992 | 1596.0 |
| | MDECK | MH Deck | 4 | * | 1992 | 192.0 |
| | SHED | Shed (Table Not Dep) | 5 | * | 1992 | 504.0 |
| | MSKIRT_WD | MH Skirting - Wood | 4 | * | 1992 | 174.0 |
| Improvement #2: | Residential Bldg | State Code: | 11M | 391.0 sqft | Value: | $37,854 |
| Bathrooms (#): | 1 (FULL) | Bedrooms (#): | 1 | | Exterior Wall: | SI/ST | Foundation: | CONBL | | Heating/Cooling: | F/A | Roof Cover: | METAL |
|
| | Type | Description | Class CD | Sub Class CD | Year Built | Area |
| | MA | Main Area | 3 | MSG | 2014 | 391.0 |
| | MRPO | MH Roof Porch | 3 | MSG | 2014 | 92.0 |
Sketch
Property Image
Land
| 1 | 4110-1373S | | 1.0000 | 43560.00 | 0.00 | 0.00 | 1.00 | $105,000 | $0 |
| 2 | 9808 | | 0.0000 | 0.00 | 0.00 | 0.00 | 1.00 | $21,000 | $0 |
| 3 | 1671A | | 4.2200 | 183823.20 | 0.00 | 0.00 | 0.00 | $74,219 | $494 |
| 4 | 1671A | | 5.6400 | 245678.40 | 0.00 | 0.00 | 0.00 | $99,194 | $626 |
Roll Value History
| 2025 | N/A | N/A | N/A | N/A | N/A |
| 2024 | $142,505 | $285,155 | $1,120 | $263,625 | $263,625 |
| 2023 | $142,505 | $277,760 | $1,100 | $263,605 | $263,605 |
| 2022 | $139,122 | $158,880 | $1,071 | $220,193 | $220,193 |
| 2021 | $115,935 | $148,373 | $1,071 | $186,006 | $186,006 |
Deed and Sales History
| 1 | 03/01/1996 | MH | Mobile Home | CALHOUN, SCOTT A | CALHOUN, SCOTT ALLAN | 0 | 0 | $0.00 | 78998 | 0 |
| 2 | 10/20/1995 | QCD | Quit Claim Deed | CALHOUN, VERTLE JOYCE | CALHOUN, SCOTT ALLAN | 0 | 0 | $0.00 | 78055 | 0 |
| 3 | 06/19/1995 | QCD | Quit Claim Deed | CALHOUN, JOYCE/SCOTT | CALHOUN, JOYCE | 0 | 0 | $0.00 | 77156 | 0 |
| 4 | 05/12/1995 | QCD | Quit Claim Deed | CALHOUN, SCOTT ALLAN | CALHOUN, SCOTT ALLAN/JOYCE | 0 | 0 | $0.00 | 76915 | 0 |
| 5 | 03/20/1995 | QCD | Quit Claim Deed | CALHOUN, VERTLE J | CALHOUN, SCOTT ALLAN | 0 | 0 | $0.00 | 76462 | 0 |
Payout Agreement
| No payout information available.. |