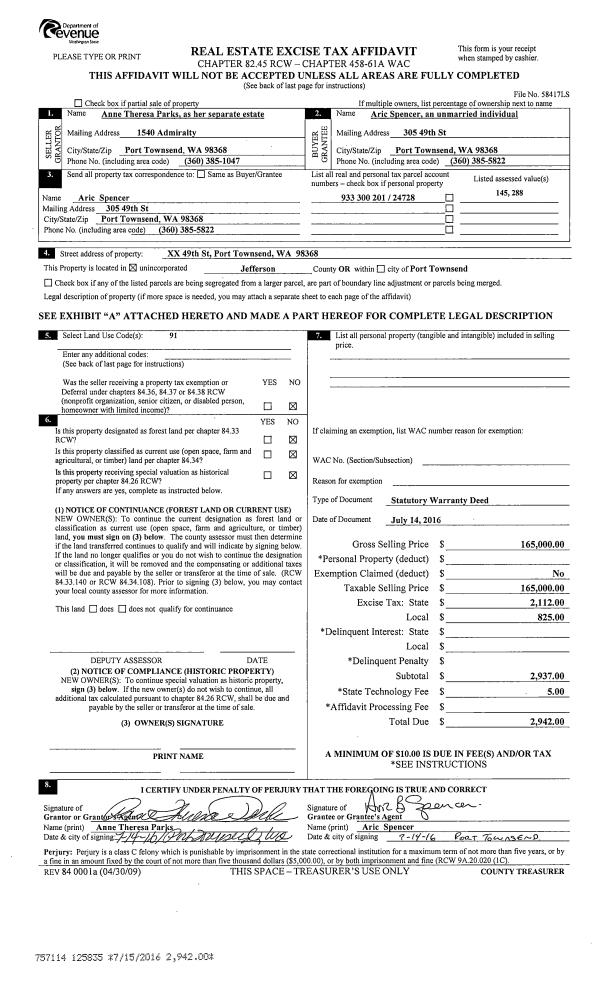
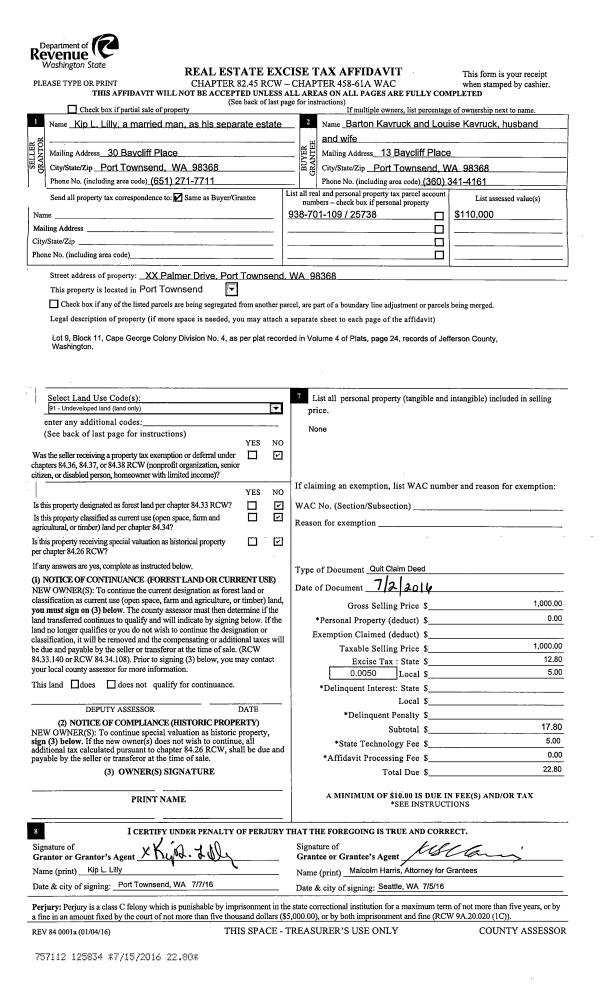
Property
Account |
| Property ID: | 11757 | Abbreviated Legal Description: | RIDGEVIEW SHORT PLAT LOT 3 SUBJ/EASEMENT & OPEN SPACE |
| Parcel # / Geo ID: | 001342017 | Agent Code: | |
| Type: | Real | | |
| Tax Area: | 0211 - 1-49F1E1H2L1 | Land Use Code | 11 |
| Open Space: | N | DFL | N |
| Historic Property: | N | Remodel Property: | N |
| Multi-Family Redevelopment: | N | | |
| Township: | 30N | Section: | 34 |
| Range: | 1W |
Location |
| Address: | 354 RIDGEVIEW DR 114 PORT TOWNSEND, WA 98368 | Mapsco: | 241/017 |
| Neighborhood: | S33 (E1/2) & S34 T30N R1W; MARVIN GARDENS LLSD; SULIVAN'S SP | Map ID: | |
| Neighborhood CD: | 4110 |
Owner |
| Name: | BRUCE B SETON SR | Owner ID: | 27051 |
| Mailing Address: | 4640 S DISCOVERY RD PORT TOWNSEND, WA 98368-9020 | % Ownership: | 100.0000000000% |
| | | Exemptions: | |
Pay Tax Due
There is currently No Amount Due on this property.
Taxes and Assessment Details
Property Tax Information as of
10/23/2025
Click on "Statement Details" to expand or collapse a tax statement.
* Please enter a valid date ** Please enter a valid date *
Statement Details |
| 2025 | 1699 | STATE - STATE LEVY (SCHOOL) | $942.22 | $942.20 | $0.00 | $0.00 | $1884.42 | $0.00 |
| 2025 | 1699 | COUNTY - COUNTY LEVIES (CE, DD, VET, MH) | $370.54 | $370.50 | $0.00 | $0.00 | $741.04 | $0.00 |
| 2025 | 1699 | CONSERVE - CONSERVATION FUTURES | $11.11 | $11.11 | $0.00 | $0.00 | $22.22 | $0.00 |
| 2025 | 1699 | COROADS - COUNTY ROADS (ROADS, DIV TO CE) | $296.85 | $296.84 | $0.00 | $0.00 | $593.69 | $0.00 |
| 2025 | 1699 | PORTPT - PORT DISTRICT | $151.20 | $151.19 | $0.00 | $0.00 | $302.39 | $0.00 |
| 2025 | 1699 | PUD1 - PUD #1 | $24.25 | $24.24 | $0.00 | $0.00 | $48.49 | $0.00 |
| 2025 | 1699 | LIB1 - LIBRARY DIST #1 | $114.85 | $114.84 | $0.00 | $0.00 | $229.69 | $0.00 |
| 2025 | 1699 | HD2 - HOSP DIST #2 | $21.62 | $21.61 | $0.00 | $0.00 | $43.23 | $0.00 |
| 2025 | 1699 | SD49 - SCHOOL DIST #49 | $504.97 | $504.96 | $0.00 | $0.00 | $1009.93 | $0.00 |
| 2025 | 1699 | FD1 - FIRE DISTRICT #1 | $488.94 | $488.94 | $0.00 | $0.00 | $977.88 | $0.00 |
| 2025 | 1699 | EMS1 - FIRE DIST #1 EMS | $188.06 | $188.06 | $0.00 | $0.00 | $376.12 | $0.00 |
| 2025 | 1699 | FPLCA - DNR Landowner Contingency Assmt | $3.00 | $3.00 | $0.00 | $0.00 | $6.00 | $0.00 |
| 2025 | 1699 | JCCD - JC Conservation District | $2.65 | $2.65 | $0.00 | $0.00 | $5.30 | $0.00 |
| 2025 | 1699 | NWA - Noxious Weed Assessment | $2.45 | $2.45 | $0.00 | $0.00 | $4.90 | $0.00 |
| 2025 | 1699 | OSS - On Site Septic | $21.50 | $21.50 | $0.00 | $0.00 | $43.00 | $0.00 |
| 2025 | 1699 | WAT - Clean Water District | $13.00 | $13.00 | $0.00 | $0.00 | $26.00 | $0.00 |
| 2025 | 1699 | TOTAL: | $3157.21 | $3157.09 | $0.00 | $0.00 | $6314.30 | $0.00 |
|
| 2025 | 1699 | $3157.21 | $3157.09 | $0.00 | $0.00 | $6314.30 | $0.00 |
Statement Details |
| 2024 | 1704 | STATE - STATE LEVY (SCHOOL) | $903.26 | $903.25 | $0.00 | $0.00 | $1806.51 | $0.00 |
| 2024 | 1704 | COUNTY - COUNTY LEVIES (CE, DD, VET, MH) | $386.51 | $386.50 | $0.00 | $0.00 | $773.01 | $0.00 |
| 2024 | 1704 | CONSERVE - CONSERVATION FUTURES | $11.59 | $11.59 | $0.00 | $0.00 | $23.18 | $0.00 |
| 2024 | 1704 | COROADS - COUNTY ROADS (ROADS, DIV TO CE) | $311.02 | $311.01 | $0.00 | $0.00 | $622.03 | $0.00 |
| 2024 | 1704 | PORTPT - PORT DISTRICT | $159.65 | $159.64 | $0.00 | $0.00 | $319.29 | $0.00 |
| 2024 | 1704 | PUD1 - PUD #1 | $25.39 | $25.39 | $0.00 | $0.00 | $50.78 | $0.00 |
| 2024 | 1704 | LIB1 - LIBRARY DIST #1 | $120.33 | $120.33 | $0.00 | $0.00 | $240.66 | $0.00 |
| 2024 | 1704 | HD2 - HOSP DIST #2 | $22.55 | $22.55 | $0.00 | $0.00 | $45.10 | $0.00 |
| 2024 | 1704 | SD49 - SCHOOL DIST #49 | $403.36 | $403.34 | $0.00 | $0.00 | $806.70 | $0.00 |
| 2024 | 1704 | FD1 - FIRE DISTRICT #1 | $511.06 | $511.06 | $0.00 | $0.00 | $1022.12 | $0.00 |
| 2024 | 1704 | EMS1 - FIRE DIST #1 EMS | $195.21 | $195.20 | $0.00 | $0.00 | $390.41 | $0.00 |
| 2024 | 1704 | JCCD - JC Conservation District | $2.65 | $2.65 | $0.00 | $0.00 | $5.30 | $0.00 |
| 2024 | 1704 | NWA - Noxious Weed Assessment | $2.45 | $2.45 | $0.00 | $0.00 | $4.90 | $0.00 |
| 2024 | 1704 | OSS - On Site Septic | $21.00 | $21.00 | $0.00 | $0.00 | $42.00 | $0.00 |
| 2024 | 1704 | WAT - Clean Water District | $12.50 | $12.50 | $0.00 | $0.00 | $25.00 | $0.00 |
| 2024 | 1704 | TOTAL: | $3088.53 | $3088.46 | $0.00 | $0.00 | $6176.99 | $0.00 |
|
| 2024 | 1704 | $3088.53 | $3088.46 | $0.00 | $0.00 | $6176.99 | $0.00 |
Statement Details |
| 2023 | 1704 | STATE - STATE LEVY (SCHOOL) | $800.64 | $800.64 | $0.00 | $0.00 | $1601.28 | $0.00 |
| 2023 | 1704 | COUNTY - COUNTY LEVIES (CE, DD, VET, MH) | $349.39 | $349.37 | $0.00 | $0.00 | $698.76 | $0.00 |
| 2023 | 1704 | CONSERVE - CONSERVATION FUTURES | $10.48 | $10.47 | $0.00 | $0.00 | $20.95 | $0.00 |
| 2023 | 1704 | COROADS - COUNTY ROADS (ROADS, DIV TO CE) | $282.67 | $282.67 | $0.00 | $0.00 | $565.34 | $0.00 |
| 2023 | 1704 | PORTPT - PORT DISTRICT | $147.18 | $147.17 | $0.00 | $0.00 | $294.35 | $0.00 |
| 2023 | 1704 | PUD1 - PUD #1 | $23.16 | $23.16 | $0.00 | $0.00 | $46.32 | $0.00 |
| 2023 | 1704 | LIB1 - LIBRARY DIST #1 | $109.36 | $109.36 | $0.00 | $0.00 | $218.72 | $0.00 |
| 2023 | 1704 | HD2 - HOSP DIST #2 | $20.39 | $20.39 | $0.00 | $0.00 | $40.78 | $0.00 |
| 2023 | 1704 | SD49 - SCHOOL DIST #49 | $374.26 | $374.25 | $0.00 | $0.00 | $748.51 | $0.00 |
| 2023 | 1704 | FD1 - FIRE DISTRICT #1 | $287.82 | $287.81 | $0.00 | $0.00 | $575.63 | $0.00 |
| 2023 | 1704 | EMS1 - FIRE DIST #1 EMS | $122.43 | $122.43 | $0.00 | $0.00 | $244.86 | $0.00 |
| 2023 | 1704 | JCCD - JC Conservation District | $2.65 | $2.65 | $0.00 | $0.00 | $5.30 | $0.00 |
| 2023 | 1704 | NWA - Noxious Weed Assessment | $2.45 | $2.45 | $0.00 | $0.00 | $4.90 | $0.00 |
| 2023 | 1704 | OSS - On Site Septic | $20.50 | $20.50 | $0.00 | $0.00 | $41.00 | $0.00 |
| 2023 | 1704 | WAT - Clean Water District | $12.00 | $12.00 | $0.00 | $0.00 | $24.00 | $0.00 |
| 2023 | 1704 | TOTAL: | $2565.38 | $2565.32 | $0.00 | $0.00 | $5130.70 | $0.00 |
|
| 2023 | 1704 | $2565.38 | $2565.32 | $0.00 | $0.00 | $5130.70 | $0.00 |
Statement Details |
| 2022 | 1707 | STATE - STATE LEVY (SCHOOL) | $781.52 | $781.52 | $0.00 | $0.00 | $1563.04 | $0.00 |
| 2022 | 1707 | COUNTY - COUNTY LEVIES (CE, DD, VET, MH) | $348.22 | $348.19 | $0.00 | $0.00 | $696.41 | $0.00 |
| 2022 | 1707 | CONSERVE - CONSERVATION FUTURES | $10.44 | $10.44 | $0.00 | $0.00 | $20.88 | $0.00 |
| 2022 | 1707 | COROADS - COUNTY ROADS (ROADS, DIV TO CE) | $283.01 | $283.01 | $0.00 | $0.00 | $566.02 | $0.00 |
| 2022 | 1707 | PORTPT - PORT DISTRICT | $149.07 | $149.06 | $0.00 | $0.00 | $298.13 | $0.00 |
| 2022 | 1707 | PUD1 - PUD #1 | $23.29 | $23.28 | $0.00 | $0.00 | $46.57 | $0.00 |
| 2022 | 1707 | LIB1 - LIBRARY DIST #1 | $109.50 | $109.49 | $0.00 | $0.00 | $218.99 | $0.00 |
| 2022 | 1707 | HD2 - HOSP DIST #2 | $20.33 | $20.32 | $0.00 | $0.00 | $40.65 | $0.00 |
| 2022 | 1707 | SD49 - SCHOOL DIST #49 | $378.19 | $378.18 | $0.00 | $0.00 | $756.37 | $0.00 |
| 2022 | 1707 | FD1 - FIRE DISTRICT #1 | $285.66 | $285.66 | $0.00 | $0.00 | $571.32 | $0.00 |
| 2022 | 1707 | EMS1 - FIRE DIST #1 EMS | $121.51 | $121.51 | $0.00 | $0.00 | $243.02 | $0.00 |
| 2022 | 1707 | JCCD - JC Conservation District | $2.65 | $2.65 | $0.00 | $0.00 | $5.30 | $0.00 |
| 2022 | 1707 | NWA - Noxious Weed Assessment | $2.45 | $2.45 | $0.00 | $0.00 | $4.90 | $0.00 |
| 2022 | 1707 | OSS - On Site Septic | $19.50 | $19.50 | $0.00 | $0.00 | $39.00 | $0.00 |
| 2022 | 1707 | WAT - Clean Water District | $11.50 | $11.50 | $0.00 | $0.00 | $23.00 | $0.00 |
| 2022 | 1707 | TOTAL: | $2546.84 | $2546.76 | $0.00 | $0.00 | $5093.60 | $0.00 |
|
| 2022 | 1707 | $2546.84 | $2546.76 | $0.00 | $0.00 | $5093.60 | $0.00 |
Values
| (+) Improvement Homesite Value: | + | $0 | |
| (+) Improvement Non-Homesite Value: | + | $636,820 | |
| (+) Land Homesite Value: | + | $0 | |
| (+) Land Non-Homesite Value: | + | $186,848 | |
| (+) Curr Use (HS): | + | $0 | $0 |
| (+) Curr Use (NHS): | + | $0 | $0 |
| | | -------------------------- | |
| (=) Market Value: | = | $823,668 | |
| (–) Productivity Loss: | – | $0 | |
| | | -------------------------- | |
| (=) Subtotal: | = | $823,668 | |
| (+) Senior Appraised Value: | + | $0 | |
| (+) Non-Senior Appraised Value: | + | $823,668 | |
| | | -------------------------- | |
| (=) Total Appraised Value: | = | $823,668 | |
| (–) Senior Exemption Loss: | – | $0 | |
| (–) Exemption Loss: | – | $0 | |
| | | -------------------------- | |
| (=) Taxable Value: | = | $823,668 | |
Taxing Jurisdiction
| Owner: | BRUCE B SETON SR | | |
| % Ownership: | 100.0000000000% | | |
| Total Value: | N/A | | |
| Tax Area: | 0211 - 1-49F1E1H2L1 |
| CE | COUNTY CURRENT EXPENSE | N/A | N/A | N/A | N/A | | |
| CNTYDD | DEVELOPMENTAL DISABILITIES | N/A | N/A | N/A | N/A | | |
| CNTYVET | VETERANS RELIEF | N/A | N/A | N/A | N/A | | |
| MENTAL | MENTAL HEALTH | N/A | N/A | N/A | N/A | | |
| ROADS | COUNTY ROADS | N/A | N/A | N/A | N/A | | |
| ROADSCU | COUNTY ROADS TO CUR EXP | N/A | N/A | N/A | N/A | | |
| HOSP2CASH | HOSP DIST #2 GENERAL | N/A | N/A | N/A | N/A | | |
| SCH49CP | SCHOOL DIST #49 CAP PROJ | N/A | N/A | N/A | N/A | | |
| SCH49MO | SCHOOL DIST #49 EP & O | N/A | N/A | N/A | N/A | | |
| CONSERVE | CONSERVATION FUTURES | N/A | N/A | N/A | N/A | | |
| EMS1 | FIRE DIST #1 EMS | N/A | N/A | N/A | N/A | | |
| FD1 | FIRE DIST #1 GENERAL | N/A | N/A | N/A | N/A | | |
| LIB1 | LIBRARY DIST #1 GENERAL | N/A | N/A | N/A | N/A | | |
| PORTPT | PORT OF PT GENERAL | N/A | N/A | N/A | N/A | | |
| PORTPTIDD | PORT OF PT IDD 2019 | N/A | N/A | N/A | N/A | | |
| PUD1 | PUD #1 GENERAL | N/A | N/A | N/A | N/A | | |
| STATE | STATE SCHOOL PART 1 | N/A | N/A | N/A | N/A | | |
| STATE2 | STATE SCHOOL PART 2 | N/A | N/A | N/A | N/A | | |
| | Total Tax Rate: | N/A | | | | | |
| | | | | Taxes w/Current Exemptions: | N/A | | |
| | | | | Taxes w/o Exemptions: | N/A | | |
Improvement / Building
| Improvement #1: | Residential Bldg | State Code: | 11 | 1438.0 sqft | Value: | $636,820 |
| Bathrooms (#): | 3 (FULL) | Bedrooms (#): | 3 | | Exterior Wall: | SI/ST | Fireplace: | WD ST-AVG | | Floor Construction: | FRAME | Foundation: | CONPR | | Heating/Cooling: | HPUMP | Inside Verify: | YES-FIX | | Roof Cover: | COMP |   |   |
|
| | Type | Description | Class CD | Sub Class CD | Year Built | Area |
| | MA | Main Area | 5 | 1S | 2000 | 1438.0 |
| | HCPOR | House Concrete Porch | 4 | * | 2000 | 400.0 |
| | HDECK | House Deck | 4 | * | 2000 | 289.0 |
| | GDET | Detached Garage | 4 | 1S | 2000 | 1554.0 |
| | CARPTF | Carport W/Floor | 4 | * | 2000 | 336.0 |
| | BSMTF | House basement finished | 4 | * | 2000 | 1438.0 |
Sketch
Property Image
Land
| 1 | 4110-1563A | | 1.5000 | 65340.00 | 0.00 | 0.00 | 0.00 | $24,098 | $0 |
| 2 | 4110-1373S | | 1.0000 | 43560.00 | 0.00 | 0.00 | 1.00 | $162,750 | $0 |
Roll Value History
| 2025 | N/A | N/A | N/A | N/A | N/A |
| 2024 | $607,873 | $177,950 | $0 | $785,823 | $785,823 |
| 2023 | $607,873 | $172,950 | $0 | $780,823 | $780,823 |
| 2022 | $514,789 | $165,400 | $0 | $680,189 | $680,189 |
| 2021 | $428,991 | $142,658 | $0 | $571,649 | $571,649 |
Deed and Sales History
| 1 | 10/26/1999 | SWD | Statutory Warranty Deed | EAGLE EYE INC | SETON, BRUCE | 0 | 0 | $38,700.00 | 88200 | 0 |
Payout Agreement
| No payout information available.. |