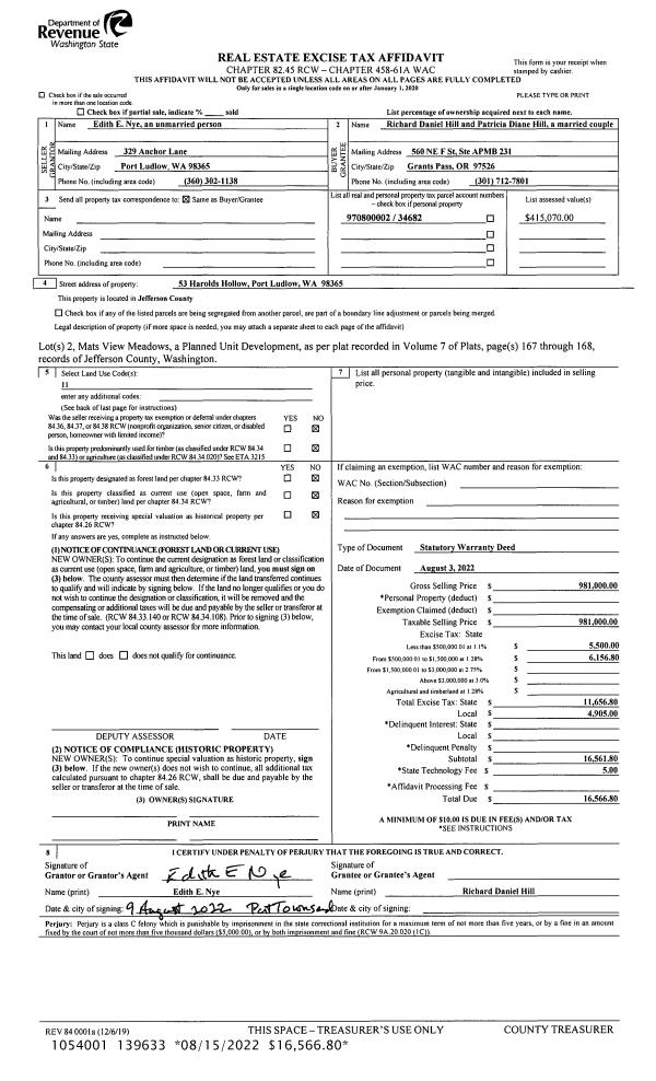
Property
Account |
| Property ID: | 11785 | Abbreviated Legal Description: | S34 T30 R1W TAX 9 (ENLARGED BY 25' ON WEST SIDE) |
| Parcel # / Geo ID: | 001343018 | Agent Code: | |
| Type: | Real | | |
| Tax Area: | 0211 - 1-49F1E1H2L1 | Land Use Code | 11 |
| Open Space: | N | DFL | N |
| Historic Property: | N | Remodel Property: | N |
| Multi-Family Redevelopment: | N | | |
| Township: | 30N | Section: | 34 |
| Range: | 1W |
Location |
| Address: | 1163 FOUR CORNERS RD PORT TOWNSEND, WA 98368 | Mapsco: | 224/041 |
| Neighborhood: | S33 (E1/2) & S34 T30N R1W; MARVIN GARDENS LLSD; SULIVAN'S SP | Map ID: | |
| Neighborhood CD: | 4110 |
Owner |
| Name: | J3-NEO LLC | Owner ID: | 111204 |
| Mailing Address: | 934 MANITOU AVE STE 212 MANITOU SPRINGS, CO 80829-1890 | % Ownership: | 100.0000000000% |
| | | Exemptions: | |
Pay Tax Due
Select the appropriate checkbox next to the year to be paid. Multiple years may be selected.
*Convenience Fee not included
Taxes and Assessment Details
Property Tax Information as of
10/23/2025
Click on "Statement Details" to expand or collapse a tax statement.
* Please enter a valid date ** Please enter a valid date *
Statement Details |
| 2025 | 1726 | STATE - STATE LEVY (SCHOOL) | $352.23 | $352.21 | $0.00 | $0.00 | $352.23 | $352.21 |
| 2025 | 1726 | COUNTY - COUNTY LEVIES (CE, DD, VET, MH) | $138.53 | $138.50 | $0.00 | $0.00 | $138.53 | $138.50 |
| 2025 | 1726 | CONSERVE - CONSERVATION FUTURES | $4.16 | $4.15 | $0.00 | $0.00 | $4.16 | $4.15 |
| 2025 | 1726 | COROADS - COUNTY ROADS (ROADS, DIV TO CE) | $110.97 | $110.96 | $0.00 | $0.00 | $110.97 | $110.96 |
| 2025 | 1726 | PORTPT - PORT DISTRICT | $56.52 | $56.51 | $0.00 | $0.00 | $56.52 | $56.51 |
| 2025 | 1726 | PUD1 - PUD #1 | $9.07 | $9.06 | $0.00 | $0.00 | $9.07 | $9.06 |
| 2025 | 1726 | LIB1 - LIBRARY DIST #1 | $42.93 | $42.93 | $0.00 | $0.00 | $42.93 | $42.93 |
| 2025 | 1726 | HD2 - HOSP DIST #2 | $8.08 | $8.08 | $0.00 | $0.00 | $8.08 | $8.08 |
| 2025 | 1726 | SD49 - SCHOOL DIST #49 | $188.77 | $188.77 | $0.00 | $0.00 | $188.77 | $188.77 |
| 2025 | 1726 | FD1 - FIRE DISTRICT #1 | $182.78 | $182.77 | $0.00 | $0.00 | $182.78 | $182.77 |
| 2025 | 1726 | EMS1 - FIRE DIST #1 EMS | $70.30 | $70.30 | $0.00 | $0.00 | $70.30 | $70.30 |
| 2025 | 1726 | FP - DNR Forest Fire Protection Assmt | $8.50 | $8.50 | $0.00 | $0.00 | $8.50 | $8.50 |
| 2025 | 1726 | FPLCA - DNR Landowner Contingency Assmt | $3.00 | $3.00 | $0.00 | $0.00 | $3.00 | $3.00 |
| 2025 | 1726 | JCCD - JC Conservation District | $2.60 | $2.60 | $0.00 | $0.00 | $2.60 | $2.60 |
| 2025 | 1726 | NWA - Noxious Weed Assessment | $2.30 | $2.30 | $0.00 | $0.00 | $2.30 | $2.30 |
| 2025 | 1726 | OSS - On Site Septic | $43.00 | $43.00 | $0.00 | $0.00 | $43.00 | $43.00 |
| 2025 | 1726 | WAT - Clean Water District | $13.00 | $13.00 | $0.00 | $0.00 | $13.00 | $13.00 |
| 2025 | 1726 | FP ADMIN - FP ADMIN | $0.50 | $0.00 | $0.00 | $0.00 | $0.50 | $0.00 |
| 2025 | 1726 | TOTAL: | $1237.24 | $1236.64 | $0.00 | $0.00 | $1237.24 | $1236.64 |
|
| 2025 | 1726 | $1237.24 | $1236.64 | $0.00 | $0.00 | $1237.24 | $1236.64 |
Statement Details |
| 2024 | 1731 | STATE - STATE LEVY (SCHOOL) | $328.26 | $328.24 | $0.00 | $0.00 | $656.50 | $0.00 |
| 2024 | 1731 | COUNTY - COUNTY LEVIES (CE, DD, VET, MH) | $140.49 | $140.45 | $0.00 | $0.00 | $280.94 | $0.00 |
| 2024 | 1731 | CONSERVE - CONSERVATION FUTURES | $4.21 | $4.21 | $0.00 | $0.00 | $8.42 | $0.00 |
| 2024 | 1731 | COROADS - COUNTY ROADS (ROADS, DIV TO CE) | $113.03 | $113.02 | $0.00 | $0.00 | $226.05 | $0.00 |
| 2024 | 1731 | PORTPT - PORT DISTRICT | $58.03 | $58.01 | $0.00 | $0.00 | $116.04 | $0.00 |
| 2024 | 1731 | PUD1 - PUD #1 | $9.23 | $9.22 | $0.00 | $0.00 | $18.45 | $0.00 |
| 2024 | 1731 | LIB1 - LIBRARY DIST #1 | $43.73 | $43.73 | $0.00 | $0.00 | $87.46 | $0.00 |
| 2024 | 1731 | HD2 - HOSP DIST #2 | $8.20 | $8.19 | $0.00 | $0.00 | $16.39 | $0.00 |
| 2024 | 1731 | SD49 - SCHOOL DIST #49 | $146.58 | $146.58 | $0.00 | $0.00 | $293.16 | $0.00 |
| 2024 | 1731 | FD1 - FIRE DISTRICT #1 | $185.73 | $185.72 | $0.00 | $0.00 | $371.45 | $0.00 |
| 2024 | 1731 | EMS1 - FIRE DIST #1 EMS | $70.94 | $70.94 | $0.00 | $0.00 | $141.88 | $0.00 |
| 2024 | 1731 | JCCD - JC Conservation District | $2.60 | $2.60 | $0.00 | $0.00 | $5.20 | $0.00 |
| 2024 | 1731 | NWA - Noxious Weed Assessment | $2.30 | $2.30 | $0.00 | $0.00 | $4.60 | $0.00 |
| 2024 | 1731 | OSS - On Site Septic | $42.00 | $42.00 | $0.00 | $0.00 | $84.00 | $0.00 |
| 2024 | 1731 | WAT - Clean Water District | $12.50 | $12.50 | $0.00 | $0.00 | $25.00 | $0.00 |
| 2024 | 1731 | TOTAL: | $1167.83 | $1167.71 | $0.00 | $0.00 | $2335.54 | $0.00 |
|
| 2024 | 1731 | $1167.83 | $1167.71 | $0.00 | $0.00 | $2335.54 | $0.00 |
Statement Details |
| 2023 | 1731 | STATE - STATE LEVY (SCHOOL) | $289.54 | $289.54 | $0.00 | $0.00 | $579.08 | $0.00 |
| 2023 | 1731 | COUNTY - COUNTY LEVIES (CE, DD, VET, MH) | $126.36 | $126.32 | $0.00 | $0.00 | $252.68 | $0.00 |
| 2023 | 1731 | CONSERVE - CONSERVATION FUTURES | $3.79 | $3.79 | $0.00 | $0.00 | $7.58 | $0.00 |
| 2023 | 1731 | COROADS - COUNTY ROADS (ROADS, DIV TO CE) | $102.23 | $102.22 | $0.00 | $0.00 | $204.45 | $0.00 |
| 2023 | 1731 | PORTPT - PORT DISTRICT | $53.23 | $53.22 | $0.00 | $0.00 | $106.45 | $0.00 |
| 2023 | 1731 | PUD1 - PUD #1 | $8.38 | $8.37 | $0.00 | $0.00 | $16.75 | $0.00 |
| 2023 | 1731 | LIB1 - LIBRARY DIST #1 | $39.55 | $39.55 | $0.00 | $0.00 | $79.10 | $0.00 |
| 2023 | 1731 | HD2 - HOSP DIST #2 | $7.38 | $7.36 | $0.00 | $0.00 | $14.74 | $0.00 |
| 2023 | 1731 | SD49 - SCHOOL DIST #49 | $135.35 | $135.34 | $0.00 | $0.00 | $270.69 | $0.00 |
| 2023 | 1731 | FD1 - FIRE DISTRICT #1 | $104.09 | $104.08 | $0.00 | $0.00 | $208.17 | $0.00 |
| 2023 | 1731 | EMS1 - FIRE DIST #1 EMS | $44.28 | $44.27 | $0.00 | $0.00 | $88.55 | $0.00 |
| 2023 | 1731 | JCCD - JC Conservation District | $2.60 | $2.60 | $0.00 | $0.00 | $5.20 | $0.00 |
| 2023 | 1731 | NWA - Noxious Weed Assessment | $2.30 | $2.30 | $0.00 | $0.00 | $4.60 | $0.00 |
| 2023 | 1731 | OSS - On Site Septic | $41.00 | $41.00 | $0.00 | $0.00 | $82.00 | $0.00 |
| 2023 | 1731 | WAT - Clean Water District | $12.00 | $12.00 | $0.00 | $0.00 | $24.00 | $0.00 |
| 2023 | 1731 | TOTAL: | $972.08 | $971.96 | $0.00 | $0.00 | $1944.04 | $0.00 |
|
| 2023 | 1731 | $972.08 | $971.96 | $0.00 | $0.00 | $1944.04 | $0.00 |
Statement Details |
| 2022 | 1734 | STATE - STATE LEVY (SCHOOL) | $286.00 | $286.00 | $0.00 | $0.00 | $572.00 | $0.00 |
| 2022 | 1734 | COUNTY - COUNTY LEVIES (CE, DD, VET, MH) | $127.44 | $127.42 | $0.00 | $0.00 | $254.86 | $0.00 |
| 2022 | 1734 | CONSERVE - CONSERVATION FUTURES | $3.82 | $3.82 | $0.00 | $0.00 | $7.64 | $0.00 |
| 2022 | 1734 | COROADS - COUNTY ROADS (ROADS, DIV TO CE) | $103.57 | $103.57 | $0.00 | $0.00 | $207.14 | $0.00 |
| 2022 | 1734 | PORTPT - PORT DISTRICT | $54.56 | $54.55 | $0.00 | $0.00 | $109.11 | $0.00 |
| 2022 | 1734 | PUD1 - PUD #1 | $8.52 | $8.52 | $0.00 | $0.00 | $17.04 | $0.00 |
| 2022 | 1734 | LIB1 - LIBRARY DIST #1 | $40.07 | $40.07 | $0.00 | $0.00 | $80.14 | $0.00 |
| 2022 | 1734 | HD2 - HOSP DIST #2 | $7.45 | $7.43 | $0.00 | $0.00 | $14.88 | $0.00 |
| 2022 | 1734 | SD49 - SCHOOL DIST #49 | $138.40 | $138.40 | $0.00 | $0.00 | $276.80 | $0.00 |
| 2022 | 1734 | FD1 - FIRE DISTRICT #1 | $104.54 | $104.54 | $0.00 | $0.00 | $209.08 | $0.00 |
| 2022 | 1734 | EMS1 - FIRE DIST #1 EMS | $44.47 | $44.46 | $0.00 | $0.00 | $88.93 | $0.00 |
| 2022 | 1734 | JCCD - JC Conservation District | $2.60 | $2.60 | $0.00 | $0.00 | $5.20 | $0.00 |
| 2022 | 1734 | NWA - Noxious Weed Assessment | $2.30 | $2.30 | $0.00 | $0.00 | $4.60 | $0.00 |
| 2022 | 1734 | OSS - On Site Septic | $39.00 | $39.00 | $0.00 | $0.00 | $78.00 | $0.00 |
| 2022 | 1734 | WAT - Clean Water District | $11.50 | $11.50 | $0.00 | $0.00 | $23.00 | $0.00 |
| 2022 | 1734 | TOTAL: | $974.24 | $974.18 | $0.00 | $0.00 | $1948.42 | $0.00 |
|
| 2022 | 1734 | $974.24 | $974.18 | $0.00 | $0.00 | $1948.42 | $0.00 |
Values
| (+) Improvement Homesite Value: | + | $0 | |
| (+) Improvement Non-Homesite Value: | + | $134,849 | |
| (+) Land Homesite Value: | + | $0 | |
| (+) Land Non-Homesite Value: | + | $173,292 | |
| (+) Curr Use (HS): | + | $0 | $0 |
| (+) Curr Use (NHS): | + | $0 | $0 |
| | | -------------------------- | |
| (=) Market Value: | = | $308,141 | |
| (–) Productivity Loss: | – | $0 | |
| | | -------------------------- | |
| (=) Subtotal: | = | $308,141 | |
| (+) Senior Appraised Value: | + | $0 | |
| (+) Non-Senior Appraised Value: | + | $308,141 | |
| | | -------------------------- | |
| (=) Total Appraised Value: | = | $308,141 | |
| (–) Senior Exemption Loss: | – | $0 | |
| (–) Exemption Loss: | – | $0 | |
| | | -------------------------- | |
| (=) Taxable Value: | = | $308,141 | |
Taxing Jurisdiction
| Owner: | J3-NEO LLC | | |
| % Ownership: | 100.0000000000% | | |
| Total Value: | N/A | | |
| Tax Area: | 0211 - 1-49F1E1H2L1 |
| CE | COUNTY CURRENT EXPENSE | N/A | N/A | N/A | N/A | | |
| CNTYDD | DEVELOPMENTAL DISABILITIES | N/A | N/A | N/A | N/A | | |
| CNTYVET | VETERANS RELIEF | N/A | N/A | N/A | N/A | | |
| MENTAL | MENTAL HEALTH | N/A | N/A | N/A | N/A | | |
| ROADS | COUNTY ROADS | N/A | N/A | N/A | N/A | | |
| ROADSCU | COUNTY ROADS TO CUR EXP | N/A | N/A | N/A | N/A | | |
| HOSP2CASH | HOSP DIST #2 GENERAL | N/A | N/A | N/A | N/A | | |
| SCH49CP | SCHOOL DIST #49 CAP PROJ | N/A | N/A | N/A | N/A | | |
| SCH49MO | SCHOOL DIST #49 EP & O | N/A | N/A | N/A | N/A | | |
| CONSERVE | CONSERVATION FUTURES | N/A | N/A | N/A | N/A | | |
| EMS1 | FIRE DIST #1 EMS | N/A | N/A | N/A | N/A | | |
| FD1 | FIRE DIST #1 GENERAL | N/A | N/A | N/A | N/A | | |
| LIB1 | LIBRARY DIST #1 GENERAL | N/A | N/A | N/A | N/A | | |
| PORTPT | PORT OF PT GENERAL | N/A | N/A | N/A | N/A | | |
| PORTPTIDD | PORT OF PT IDD 2019 | N/A | N/A | N/A | N/A | | |
| PUD1 | PUD #1 GENERAL | N/A | N/A | N/A | N/A | | |
| STATE | STATE SCHOOL PART 1 | N/A | N/A | N/A | N/A | | |
| STATE2 | STATE SCHOOL PART 2 | N/A | N/A | N/A | N/A | | |
| | Total Tax Rate: | N/A | | | | | |
| | | | | Taxes w/Current Exemptions: | N/A | | |
| | | | | Taxes w/o Exemptions: | N/A | | |
Improvement / Building
| Improvement #1: | Residential Bldg | State Code: | 11 | 418.0 sqft | Value: | $105,732 |
| Bathrooms (#): | 1 (FULL) | Bedrooms (#): | 1 | | Exterior Wall: | PL/T1 | Floor Construction: | FRAME | | Foundation: | PO&BL | Heating/Cooling: | ELBB | | Inside Verify: | YES-FIX | Interior Finish: | FIN | | Roof Cover: | COMP |   |   |
|
| | Type | Description | Class CD | Sub Class CD | Year Built | Area |
| | MA | Main Area | 3- | 1S | 0 | 418.0 |
| | HDECK | House Deck | 2 | * | 0 | 80.0 |
| | GATT | House Attached Garage | 2 | 1S | 0 | 440.0 |
| | CARPTN | Carport W/O Floor | 2 | * | 0 | 440.0 |
| | GARAG | Garage (Table Not Dep) | 3 | * | 0 | 990.0 |
| | GARAG | Garage (Table Not Dep) | 3 | * | 0 | 1440.0 |
| Improvement #2: | Manufactured Home | State Code: | 11 | 636.0 sqft | Value: | $11,601 |
| Bathrooms (#): | 1 (FULL) | Bedrooms (#): | 2 | | Exterior Wall: | METAL | Fireplace: | WD ST-AVG | | Floor Construction: | FRAME | Foundation: | PO&BL | | Heating/Cooling: | F/A | Inside Verify: | YES-FIX | | Roof Cover: | METAL |   |   |
|
| | Type | Description | Class CD | Sub Class CD | Year Built | Area |
| | MA | Main Area | 2+ | MSG | 1966 | 636.0 |
| | TOEX | TO/EX (Table Not Dep) | 2 | * | 1966 | 30.0 |
| Improvement #3: | Manufactured Home | State Code: | 11 | 960.0 sqft | Value: | $17,516 |
| Bathrooms (#): | 2 (FULL) | Bedrooms (#): | 2 | | Exterior Wall: | PL/T1 | Foundation: | PO&BL | | Heating/Cooling: | F/A | Inside Verify: | YES-FIX | | Roof Cover: | COMP |   |   |
|
Sketch
Property Image
Land
| 1 | 4110-1563A | | 0.2800 | 12196.80 | 0.00 | 0.00 | 0.00 | $5,292 | $0 |
| 2 | 4110-1373S | | 1.0000 | 43560.00 | 0.00 | 0.00 | 1.00 | $168,000 | $0 |
Roll Value History
| 2025 | N/A | N/A | N/A | N/A | N/A |
| 2024 | $128,719 | $165,040 | $0 | $293,759 | $293,759 |
| 2023 | $128,719 | $155,040 | $0 | $283,759 | $283,759 |
| 2022 | $101,501 | $144,480 | $0 | $245,981 | $245,981 |
| 2021 | $84,585 | $124,614 | $0 | $209,199 | $209,199 |
Deed and Sales History
| 1 | 07/30/2024 | SWD | Statutory Warranty Deed | NEIL C WOOD | J3-NEO LLC | | | $345,000.00 | 142985 | |
| 2 | 10/29/2018 | SWD | Statutory Warranty Deed | MH KENNEDY RENTALS LLC | NEIL C WOOD | | | $245,000.00 | 131326 | |
| 3 | 03/12/2012 | QCD | Quit Claim Deed | | | | | | 131325 | |
| 4 | 03/12/2012 | QCD | Quit Claim Deed | KENNEDY, CURTISS ROY/LANE | MH KENNEDY RENTALS, LLC | 0 | 0 | $0.00 | 117435 | 0 |
| 5 | 12/27/1994 | QCD | Quit Claim Deed | KENNEDY, CURTISS ROY/JR | KENNEDY, CURTISS R/JR & LANEA | 0 | 0 | $0.00 | 75909 | 0 |
| 6 | 03/03/1994 | QCD | Quit Claim Deed | KENNEDY, CURTISS R/SHIRLE | KENNEDY, CURTISS ROY/JR | 0 | 0 | $0.00 | 73484 | 0 |
Payout Agreement
| No payout information available.. |