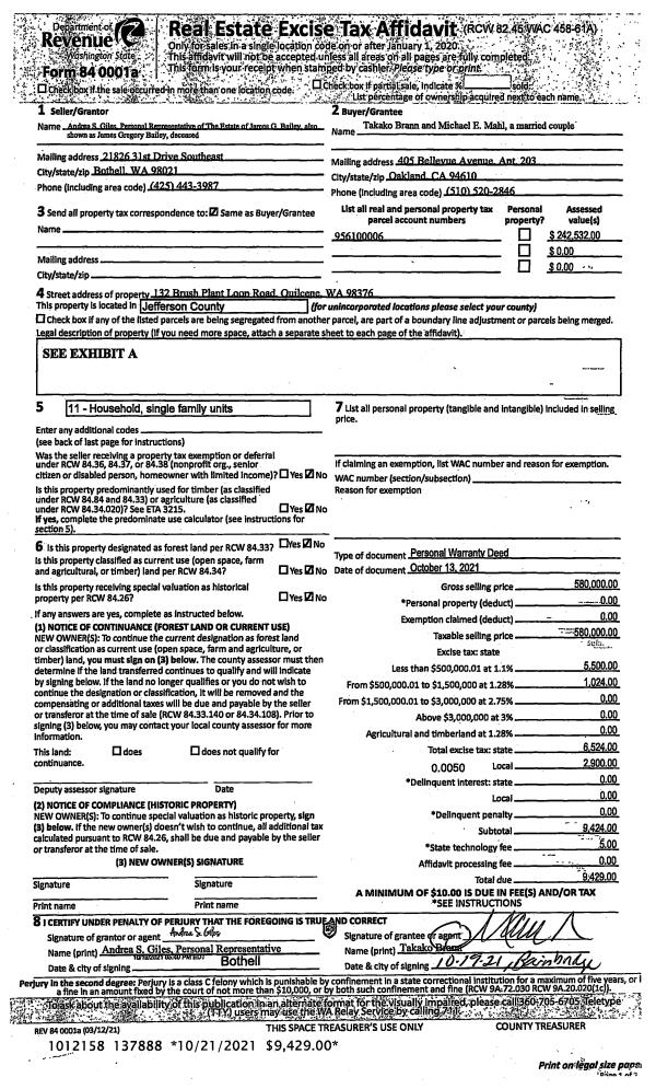
Property
Account |
| Property ID: | 11811 | Abbreviated Legal Description: | S34 T30N R1W TAX 44-PARCEL 4 SURVEY V12/PG 83 SUBJ/JLT CONSERV EASE V332/P37 |
| Parcel # / Geo ID: | 001344008 | Agent Code: | |
| Type: | Real | | |
| Tax Area: | 0211 - 1-49F1E1H2L1 | Land Use Code | 91 |
| Open Space: | N | DFL | N |
| Historic Property: | N | Remodel Property: | N |
| Multi-Family Redevelopment: | N | | |
| Township: | 30N | Section: | 34 |
| Range: | 1W |
Location |
| Address: | | Mapsco: | 224/073 |
| Neighborhood: | IRONDALE BLOCKS 48 - 92 | Map ID: | |
| Neighborhood CD: | 4125 |
Owner |
| Name: | JLT RESOURCES LLC | Owner ID: | 19100 |
| Mailing Address: | 1033 LAWRENCE ST PORT TOWNSEND, WA 98368-6523 | % Ownership: | 100.0000000000% |
| | | Exemptions: | |
Pay Tax Due
There is currently No Amount Due on this property.
Taxes and Assessment Details
Property Tax Information as of
10/23/2025
Click on "Statement Details" to expand or collapse a tax statement.
* Please enter a valid date ** Please enter a valid date *
Statement Details |
| 2025 | 1751 | STATE - STATE LEVY (SCHOOL) | $64.53 | $64.51 | $0.00 | $0.00 | $129.04 | $0.00 |
| 2025 | 1751 | COUNTY - COUNTY LEVIES (CE, DD, VET, MH) | $25.39 | $25.36 | $0.00 | $0.00 | $50.75 | $0.00 |
| 2025 | 1751 | CONSERVE - CONSERVATION FUTURES | $0.76 | $0.76 | $0.00 | $0.00 | $1.52 | $0.00 |
| 2025 | 1751 | COROADS - COUNTY ROADS (ROADS, DIV TO CE) | $20.33 | $20.33 | $0.00 | $0.00 | $40.66 | $0.00 |
| 2025 | 1751 | PORTPT - PORT DISTRICT | $10.36 | $10.35 | $0.00 | $0.00 | $20.71 | $0.00 |
| 2025 | 1751 | PUD1 - PUD #1 | $1.66 | $1.66 | $0.00 | $0.00 | $3.32 | $0.00 |
| 2025 | 1751 | LIB1 - LIBRARY DIST #1 | $7.87 | $7.86 | $0.00 | $0.00 | $15.73 | $0.00 |
| 2025 | 1751 | HD2 - HOSP DIST #2 | $1.48 | $1.48 | $0.00 | $0.00 | $2.96 | $0.00 |
| 2025 | 1751 | SD49 - SCHOOL DIST #49 | $34.59 | $34.57 | $0.00 | $0.00 | $69.16 | $0.00 |
| 2025 | 1751 | FD1 - FIRE DISTRICT #1 | $33.49 | $33.48 | $0.00 | $0.00 | $66.97 | $0.00 |
| 2025 | 1751 | EMS1 - FIRE DIST #1 EMS | $12.88 | $12.88 | $0.00 | $0.00 | $25.76 | $0.00 |
| 2025 | 1751 | FPLCA - DNR Landowner Contingency Assmt | $3.00 | $3.00 | $0.00 | $0.00 | $6.00 | $0.00 |
| 2025 | 1751 | JCCD - JC Conservation District | $2.57 | $2.57 | $0.00 | $0.00 | $5.14 | $0.00 |
| 2025 | 1751 | NWA - Noxious Weed Assessment | $2.30 | $2.30 | $0.00 | $0.00 | $4.60 | $0.00 |
| 2025 | 1751 | WAT - Clean Water District | $13.00 | $13.00 | $0.00 | $0.00 | $26.00 | $0.00 |
| 2025 | 1751 | TOTAL: | $234.21 | $234.11 | $0.00 | $0.00 | $468.32 | $0.00 |
|
| 2025 | 1751 | $234.21 | $234.11 | $0.00 | $0.00 | $468.32 | $0.00 |
Statement Details |
| 2024 | 1756 | STATE - STATE LEVY (SCHOOL) | $59.29 | $59.28 | $0.00 | $0.00 | $118.57 | $0.00 |
| 2024 | 1756 | COUNTY - COUNTY LEVIES (CE, DD, VET, MH) | $25.39 | $25.36 | $0.00 | $0.00 | $50.75 | $0.00 |
| 2024 | 1756 | CONSERVE - CONSERVATION FUTURES | $0.76 | $0.76 | $0.00 | $0.00 | $1.52 | $0.00 |
| 2024 | 1756 | COROADS - COUNTY ROADS (ROADS, DIV TO CE) | $20.42 | $20.41 | $0.00 | $0.00 | $40.83 | $0.00 |
| 2024 | 1756 | PORTPT - PORT DISTRICT | $10.48 | $10.47 | $0.00 | $0.00 | $20.95 | $0.00 |
| 2024 | 1756 | PUD1 - PUD #1 | $1.67 | $1.66 | $0.00 | $0.00 | $3.33 | $0.00 |
| 2024 | 1756 | LIB1 - LIBRARY DIST #1 | $7.90 | $7.90 | $0.00 | $0.00 | $15.80 | $0.00 |
| 2024 | 1756 | HD2 - HOSP DIST #2 | $1.48 | $1.48 | $0.00 | $0.00 | $2.96 | $0.00 |
| 2024 | 1756 | SD49 - SCHOOL DIST #49 | $26.48 | $26.47 | $0.00 | $0.00 | $52.95 | $0.00 |
| 2024 | 1756 | FD1 - FIRE DISTRICT #1 | $33.55 | $33.54 | $0.00 | $0.00 | $67.09 | $0.00 |
| 2024 | 1756 | EMS1 - FIRE DIST #1 EMS | $12.82 | $12.81 | $0.00 | $0.00 | $25.63 | $0.00 |
| 2024 | 1756 | FPLCA - DNR Landowner Contingency Assmt | $3.00 | $3.00 | $0.00 | $0.00 | $6.00 | $0.00 |
| 2024 | 1756 | JCCD - JC Conservation District | $2.57 | $2.57 | $0.00 | $0.00 | $5.14 | $0.00 |
| 2024 | 1756 | NWA - Noxious Weed Assessment | $2.30 | $2.30 | $0.00 | $0.00 | $4.60 | $0.00 |
| 2024 | 1756 | WAT - Clean Water District | $12.50 | $12.50 | $0.00 | $0.00 | $25.00 | $0.00 |
| 2024 | 1756 | TOTAL: | $220.61 | $220.51 | $0.00 | $0.00 | $441.12 | $0.00 |
|
| 2024 | 1756 | $220.61 | $220.51 | $0.00 | $0.00 | $441.12 | $0.00 |
Statement Details |
| 2023 | 1756 | STATE - STATE LEVY (SCHOOL) | $43.56 | $43.54 | $0.00 | $0.00 | $87.10 | $0.00 |
| 2023 | 1756 | COUNTY - COUNTY LEVIES (CE, DD, VET, MH) | $19.01 | $19.01 | $0.00 | $0.00 | $38.02 | $0.00 |
| 2023 | 1756 | CONSERVE - CONSERVATION FUTURES | $0.57 | $0.57 | $0.00 | $0.00 | $1.14 | $0.00 |
| 2023 | 1756 | COROADS - COUNTY ROADS (ROADS, DIV TO CE) | $15.38 | $15.37 | $0.00 | $0.00 | $30.75 | $0.00 |
| 2023 | 1756 | PORTPT - PORT DISTRICT | $8.01 | $8.00 | $0.00 | $0.00 | $16.01 | $0.00 |
| 2023 | 1756 | PUD1 - PUD #1 | $1.26 | $1.26 | $0.00 | $0.00 | $2.52 | $0.00 |
| 2023 | 1756 | LIB1 - LIBRARY DIST #1 | $5.95 | $5.95 | $0.00 | $0.00 | $11.90 | $0.00 |
| 2023 | 1756 | HD2 - HOSP DIST #2 | $1.11 | $1.11 | $0.00 | $0.00 | $2.22 | $0.00 |
| 2023 | 1756 | SD49 - SCHOOL DIST #49 | $20.36 | $20.36 | $0.00 | $0.00 | $40.72 | $0.00 |
| 2023 | 1756 | FD1 - FIRE DISTRICT #1 | $15.66 | $15.65 | $0.00 | $0.00 | $31.31 | $0.00 |
| 2023 | 1756 | EMS1 - FIRE DIST #1 EMS | $6.66 | $6.66 | $0.00 | $0.00 | $13.32 | $0.00 |
| 2023 | 1756 | FPLCA - DNR Landowner Contingency Assmt | $3.00 | $3.00 | $0.00 | $0.00 | $6.00 | $0.00 |
| 2023 | 1756 | JCCD - JC Conservation District | $2.57 | $2.57 | $0.00 | $0.00 | $5.14 | $0.00 |
| 2023 | 1756 | NWA - Noxious Weed Assessment | $2.30 | $2.30 | $0.00 | $0.00 | $4.60 | $0.00 |
| 2023 | 1756 | WAT - Clean Water District | $12.00 | $12.00 | $0.00 | $0.00 | $24.00 | $0.00 |
| 2023 | 1756 | TOTAL: | $157.40 | $157.35 | $0.00 | $0.00 | $314.75 | $0.00 |
|
| 2023 | 1756 | $157.40 | $157.35 | $0.00 | $0.00 | $314.75 | $0.00 |
Statement Details |
| 2022 | 1759 | STATE - STATE LEVY (SCHOOL) | $46.70 | $46.69 | $0.00 | $0.00 | $93.39 | $0.00 |
| 2022 | 1759 | COUNTY - COUNTY LEVIES (CE, DD, VET, MH) | $20.81 | $20.81 | $0.00 | $0.00 | $41.62 | $0.00 |
| 2022 | 1759 | CONSERVE - CONSERVATION FUTURES | $0.63 | $0.62 | $0.00 | $0.00 | $1.25 | $0.00 |
| 2022 | 1759 | COROADS - COUNTY ROADS (ROADS, DIV TO CE) | $16.92 | $16.90 | $0.00 | $0.00 | $33.82 | $0.00 |
| 2022 | 1759 | PORTPT - PORT DISTRICT | $8.91 | $8.91 | $0.00 | $0.00 | $17.82 | $0.00 |
| 2022 | 1759 | PUD1 - PUD #1 | $1.39 | $1.39 | $0.00 | $0.00 | $2.78 | $0.00 |
| 2022 | 1759 | LIB1 - LIBRARY DIST #1 | $6.54 | $6.54 | $0.00 | $0.00 | $13.08 | $0.00 |
| 2022 | 1759 | HD2 - HOSP DIST #2 | $1.22 | $1.21 | $0.00 | $0.00 | $2.43 | $0.00 |
| 2022 | 1759 | SD49 - SCHOOL DIST #49 | $22.60 | $22.59 | $0.00 | $0.00 | $45.19 | $0.00 |
| 2022 | 1759 | FD1 - FIRE DISTRICT #1 | $17.07 | $17.07 | $0.00 | $0.00 | $34.14 | $0.00 |
| 2022 | 1759 | EMS1 - FIRE DIST #1 EMS | $7.26 | $7.26 | $0.00 | $0.00 | $14.52 | $0.00 |
| 2022 | 1759 | FP - DNR Forest Fire Protection Assmt | $8.50 | $8.50 | $0.00 | $0.00 | $17.00 | $0.00 |
| 2022 | 1759 | FPLCA - DNR Landowner Contingency Assmt | $3.00 | $3.00 | $0.00 | $0.00 | $6.00 | $0.00 |
| 2022 | 1759 | JCCD - JC Conservation District | $2.57 | $2.57 | $0.00 | $0.00 | $5.14 | $0.00 |
| 2022 | 1759 | NWA - Noxious Weed Assessment | $2.30 | $2.30 | $0.00 | $0.00 | $4.60 | $0.00 |
| 2022 | 1759 | WAT - Clean Water District | $11.50 | $11.50 | $0.00 | $0.00 | $23.00 | $0.00 |
| 2022 | 1759 | FP ADMIN - FP ADMIN | $0.50 | $0.00 | $0.00 | $0.00 | $0.50 | $0.00 |
| 2022 | 1759 | TOTAL: | $178.42 | $177.86 | $0.00 | $0.00 | $356.28 | $0.00 |
|
| 2022 | 1759 | $178.42 | $177.86 | $0.00 | $0.00 | $356.28 | $0.00 |
Values
| (+) Improvement Homesite Value: | + | $0 | |
| (+) Improvement Non-Homesite Value: | + | $0 | |
| (+) Land Homesite Value: | + | $0 | |
| (+) Land Non-Homesite Value: | + | $57,750 | |
| (+) Curr Use (HS): | + | $0 | $0 |
| (+) Curr Use (NHS): | + | $0 | $0 |
| | | -------------------------- | |
| (=) Market Value: | = | $57,750 | |
| (–) Productivity Loss: | – | $0 | |
| | | -------------------------- | |
| (=) Subtotal: | = | $57,750 | |
| (+) Senior Appraised Value: | + | $0 | |
| (+) Non-Senior Appraised Value: | + | $57,750 | |
| | | -------------------------- | |
| (=) Total Appraised Value: | = | $57,750 | |
| (–) Senior Exemption Loss: | – | $0 | |
| (–) Exemption Loss: | – | $0 | |
| | | -------------------------- | |
| (=) Taxable Value: | = | $57,750 | |
Taxing Jurisdiction
| Owner: | JLT RESOURCES LLC | | |
| % Ownership: | 100.0000000000% | | |
| Total Value: | N/A | | |
| Tax Area: | 0211 - 1-49F1E1H2L1 |
| CE | COUNTY CURRENT EXPENSE | N/A | N/A | N/A | N/A | | |
| CNTYDD | DEVELOPMENTAL DISABILITIES | N/A | N/A | N/A | N/A | | |
| CNTYVET | VETERANS RELIEF | N/A | N/A | N/A | N/A | | |
| MENTAL | MENTAL HEALTH | N/A | N/A | N/A | N/A | | |
| ROADS | COUNTY ROADS | N/A | N/A | N/A | N/A | | |
| ROADSCU | COUNTY ROADS TO CUR EXP | N/A | N/A | N/A | N/A | | |
| HOSP2CASH | HOSP DIST #2 GENERAL | N/A | N/A | N/A | N/A | | |
| SCH49CP | SCHOOL DIST #49 CAP PROJ | N/A | N/A | N/A | N/A | | |
| SCH49MO | SCHOOL DIST #49 EP & O | N/A | N/A | N/A | N/A | | |
| CONSERVE | CONSERVATION FUTURES | N/A | N/A | N/A | N/A | | |
| EMS1 | FIRE DIST #1 EMS | N/A | N/A | N/A | N/A | | |
| FD1 | FIRE DIST #1 GENERAL | N/A | N/A | N/A | N/A | | |
| LIB1 | LIBRARY DIST #1 GENERAL | N/A | N/A | N/A | N/A | | |
| PORTPT | PORT OF PT GENERAL | N/A | N/A | N/A | N/A | | |
| PORTPTIDD | PORT OF PT IDD 2019 | N/A | N/A | N/A | N/A | | |
| PUD1 | PUD #1 GENERAL | N/A | N/A | N/A | N/A | | |
| STATE | STATE SCHOOL PART 1 | N/A | N/A | N/A | N/A | | |
| STATE2 | STATE SCHOOL PART 2 | N/A | N/A | N/A | N/A | | |
| | Total Tax Rate: | N/A | | | | | |
| | | | | Taxes w/Current Exemptions: | N/A | | |
| | | | | Taxes w/o Exemptions: | N/A | | |
Improvement / Building
Sketch
| No sketches available for this property. |
Property Image
Land
| 1 | 4125-1187L | | 0.0000 | 0.00 | 0.00 | 0.00 | 15.00 | $31,500 | $0 |
| 2 | 4125-1285S | | 1.0000 | 43560.00 | 0.00 | 0.00 | 1.00 | $26,250 | $0 |
Roll Value History
| 2025 | N/A | N/A | N/A | N/A | N/A |
| 2024 | $0 | $53,813 | $0 | $53,813 | $53,813 |
| 2023 | $0 | $51,250 | $0 | $51,250 | $51,250 |
| 2022 | $0 | $37,000 | $0 | $37,000 | $37,000 |
| 2021 | $0 | $34,155 | $0 | $34,155 | $34,155 |
Deed and Sales History
| 1 | 04/15/2022 | SWD | Statutory Warranty Deed | SARAH & OWEN FAIRBANK | JLT RESOURCES LLC | | | | 138901 | |
| 2 | 10/25/2019 | SWD | Statutory Warranty Deed | KAREN MOORE | SARAH & OWEN FAIRBANK | | | $33,000.00 | 133368 | |
| 3 | 10/15/2018 | QCD | Quit Claim Deed | WILLIAM EVANS CROSS | KAREN MOORE | | | | 131196 | |
| 4 | 07/29/1994 | QCD | Quit Claim Deed | MOORE, KARINA | CROSS, WILLIAM EVANS | 0 | 0 | $0.00 | 74767 | 0 |
| 5 | 02/22/1994 | QCD | Quit Claim Deed | SMITH, KEVIN | MOORE, KARINA | 0 | 0 | $0.00 | 74766 | 0 |
Payout Agreement
| No payout information available.. |