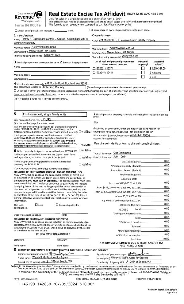
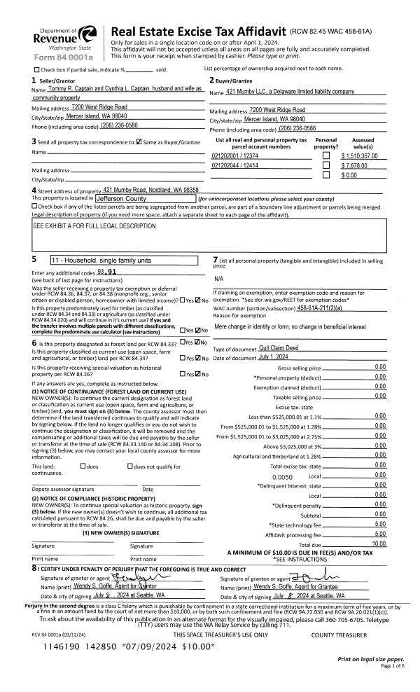
Property
Account |
| Property ID: | 11895 | Abbreviated Legal Description: | S12 T30 R2W TAX 29 W/EASE |
| Parcel # / Geo ID: | 002124024 | Agent Code: | |
| Type: | Real | | |
| Tax Area: | 0111 - 1-50F1E1H2L1 | Land Use Code | 18 |
| Open Space: | N | DFL | N |
| Historic Property: | N | Remodel Property: | N |
| Multi-Family Redevelopment: | N | | |
| Township: | 30N | Section: | 12 |
| Range: | 2W |
Location |
| Address: | 80 GULL SHADOW LN PORT TOWNSEND, WA 98368 | Mapsco: | 118/018 |
| Neighborhood: | S1 & 12 T30 R2W, MARIAH HEIGHTS;J HOWARD,CAINE,GAZEBO,HILDEB | Map ID: | |
| Neighborhood CD: | 5510 |
Owner |
| Name: | SUSAN MILLER | Owner ID: | 93994 |
| Mailing Address: | 80 GULL SHADOW LN PORT TOWNSEND, WA 98368-9692 | % Ownership: | 100.0000000000% |
| | | Exemptions: | |
Pay Tax Due
There is currently No Amount Due on this property.
Taxes and Assessment Details
Property Tax Information as of
10/23/2025
Click on "Statement Details" to expand or collapse a tax statement.
* Please enter a valid date ** Please enter a valid date *
Statement Details |
| 2025 | 1830 | STATE - STATE LEVY (SCHOOL) | $390.93 | $390.93 | $0.00 | $0.00 | $781.86 | $0.00 |
| 2025 | 1830 | COUNTY - COUNTY LEVIES (CE, DD, VET, MH) | $153.73 | $153.73 | $0.00 | $0.00 | $307.46 | $0.00 |
| 2025 | 1830 | CONSERVE - CONSERVATION FUTURES | $4.61 | $4.61 | $0.00 | $0.00 | $9.22 | $0.00 |
| 2025 | 1830 | COROADS - COUNTY ROADS (ROADS, DIV TO CE) | $123.17 | $123.16 | $0.00 | $0.00 | $246.33 | $0.00 |
| 2025 | 1830 | PORTPT - PORT DISTRICT | $62.73 | $62.73 | $0.00 | $0.00 | $125.46 | $0.00 |
| 2025 | 1830 | PUD1 - PUD #1 | $10.06 | $10.06 | $0.00 | $0.00 | $20.12 | $0.00 |
| 2025 | 1830 | LIB1 - LIBRARY DIST #1 | $47.65 | $47.65 | $0.00 | $0.00 | $95.30 | $0.00 |
| 2025 | 1830 | HD2 - HOSP DIST #2 | $8.97 | $8.97 | $0.00 | $0.00 | $17.94 | $0.00 |
| 2025 | 1830 | SD50 - SCHOOL DIST #50 | $285.71 | $285.70 | $0.00 | $0.00 | $571.41 | $0.00 |
| 2025 | 1830 | FD1 - FIRE DISTRICT #1 | $202.87 | $202.86 | $0.00 | $0.00 | $405.73 | $0.00 |
| 2025 | 1830 | EMS1 - FIRE DIST #1 EMS | $78.03 | $78.02 | $0.00 | $0.00 | $156.05 | $0.00 |
| 2025 | 1830 | FP - DNR Forest Fire Protection Assmt | $8.50 | $8.50 | $0.00 | $0.00 | $17.00 | $0.00 |
| 2025 | 1830 | FPLCA - DNR Landowner Contingency Assmt | $3.00 | $3.00 | $0.00 | $0.00 | $6.00 | $0.00 |
| 2025 | 1830 | JCCD - JC Conservation District | $2.80 | $2.80 | $0.00 | $0.00 | $5.60 | $0.00 |
| 2025 | 1830 | NWA - Noxious Weed Assessment | $2.90 | $2.90 | $0.00 | $0.00 | $5.80 | $0.00 |
| 2025 | 1830 | OSS - On Site Septic | $21.50 | $21.50 | $0.00 | $0.00 | $43.00 | $0.00 |
| 2025 | 1830 | WAT - Clean Water District | $13.00 | $13.00 | $0.00 | $0.00 | $26.00 | $0.00 |
| 2025 | 1830 | FP ADMIN - FP ADMIN | $0.50 | $0.00 | $0.00 | $0.00 | $0.50 | $0.00 |
| 2025 | 1830 | TOTAL: | $1420.66 | $1420.12 | $0.00 | $0.00 | $2840.78 | $0.00 |
|
| 2025 | 1830 | $1420.66 | $1420.12 | $0.00 | $0.00 | $2840.78 | $0.00 |
Statement Details |
| 2024 | 1836 | STATE - STATE LEVY (SCHOOL) | $350.49 | $350.49 | $0.00 | $0.00 | $700.98 | $0.00 |
| 2024 | 1836 | COUNTY - COUNTY LEVIES (CE, DD, VET, MH) | $149.99 | $149.96 | $0.00 | $0.00 | $299.95 | $0.00 |
| 2024 | 1836 | CONSERVE - CONSERVATION FUTURES | $4.50 | $4.49 | $0.00 | $0.00 | $8.99 | $0.00 |
| 2024 | 1836 | COROADS - COUNTY ROADS (ROADS, DIV TO CE) | $120.69 | $120.67 | $0.00 | $0.00 | $241.36 | $0.00 |
| 2024 | 1836 | PORTPT - PORT DISTRICT | $61.95 | $61.95 | $0.00 | $0.00 | $123.90 | $0.00 |
| 2024 | 1836 | PUD1 - PUD #1 | $9.85 | $9.85 | $0.00 | $0.00 | $19.70 | $0.00 |
| 2024 | 1836 | LIB1 - LIBRARY DIST #1 | $46.69 | $46.69 | $0.00 | $0.00 | $93.38 | $0.00 |
| 2024 | 1836 | HD2 - HOSP DIST #2 | $8.75 | $8.75 | $0.00 | $0.00 | $17.50 | $0.00 |
| 2024 | 1836 | SD50 - SCHOOL DIST #50 | $283.57 | $283.56 | $0.00 | $0.00 | $567.13 | $0.00 |
| 2024 | 1836 | FD1 - FIRE DISTRICT #1 | $198.31 | $198.30 | $0.00 | $0.00 | $396.61 | $0.00 |
| 2024 | 1836 | EMS1 - FIRE DIST #1 EMS | $75.75 | $75.74 | $0.00 | $0.00 | $151.49 | $0.00 |
| 2024 | 1836 | FP - DNR Forest Fire Protection Assmt | $8.50 | $8.50 | $0.00 | $0.00 | $17.00 | $0.00 |
| 2024 | 1836 | FPLCA - DNR Landowner Contingency Assmt | $3.00 | $3.00 | $0.00 | $0.00 | $6.00 | $0.00 |
| 2024 | 1836 | JCCD - JC Conservation District | $2.80 | $2.80 | $0.00 | $0.00 | $5.60 | $0.00 |
| 2024 | 1836 | NWA - Noxious Weed Assessment | $2.90 | $2.90 | $0.00 | $0.00 | $5.80 | $0.00 |
| 2024 | 1836 | OSS - On Site Septic | $21.00 | $21.00 | $0.00 | $0.00 | $42.00 | $0.00 |
| 2024 | 1836 | WAT - Clean Water District | $12.50 | $12.50 | $0.00 | $0.00 | $25.00 | $0.00 |
| 2024 | 1836 | FP ADMIN - FP ADMIN | $0.50 | $0.00 | $0.00 | $0.00 | $0.50 | $0.00 |
| 2024 | 1836 | TOTAL: | $1361.74 | $1361.15 | $0.00 | $0.00 | $2722.89 | $0.00 |
|
| 2024 | 1836 | $1361.74 | $1361.15 | $0.00 | $0.00 | $2722.89 | $0.00 |
Statement Details |
| 2023 | 1837 | STATE - STATE LEVY (SCHOOL) | $319.56 | $319.55 | $0.00 | $0.00 | $639.11 | $0.00 |
| 2023 | 1837 | COUNTY - COUNTY LEVIES (CE, DD, VET, MH) | $139.44 | $139.44 | $0.00 | $0.00 | $278.88 | $0.00 |
| 2023 | 1837 | CONSERVE - CONSERVATION FUTURES | $4.18 | $4.18 | $0.00 | $0.00 | $8.36 | $0.00 |
| 2023 | 1837 | COROADS - COUNTY ROADS (ROADS, DIV TO CE) | $112.82 | $112.81 | $0.00 | $0.00 | $225.63 | $0.00 |
| 2023 | 1837 | PORTPT - PORT DISTRICT | $58.75 | $58.74 | $0.00 | $0.00 | $117.49 | $0.00 |
| 2023 | 1837 | PUD1 - PUD #1 | $9.25 | $9.24 | $0.00 | $0.00 | $18.49 | $0.00 |
| 2023 | 1837 | LIB1 - LIBRARY DIST #1 | $43.65 | $43.65 | $0.00 | $0.00 | $87.30 | $0.00 |
| 2023 | 1837 | HD2 - HOSP DIST #2 | $8.14 | $8.13 | $0.00 | $0.00 | $16.27 | $0.00 |
| 2023 | 1837 | SD50 - SCHOOL DIST #50 | $253.58 | $253.56 | $0.00 | $0.00 | $507.14 | $0.00 |
| 2023 | 1837 | FD1 - FIRE DISTRICT #1 | $114.88 | $114.87 | $0.00 | $0.00 | $229.75 | $0.00 |
| 2023 | 1837 | EMS1 - FIRE DIST #1 EMS | $48.87 | $48.86 | $0.00 | $0.00 | $97.73 | $0.00 |
| 2023 | 1837 | FP - DNR Forest Fire Protection Assmt | $8.50 | $8.50 | $0.00 | $0.00 | $17.00 | $0.00 |
| 2023 | 1837 | FPLCA - DNR Landowner Contingency Assmt | $3.00 | $3.00 | $0.00 | $0.00 | $6.00 | $0.00 |
| 2023 | 1837 | JCCD - JC Conservation District | $2.80 | $2.80 | $0.00 | $0.00 | $5.60 | $0.00 |
| 2023 | 1837 | NWA - Noxious Weed Assessment | $2.90 | $2.90 | $0.00 | $0.00 | $5.80 | $0.00 |
| 2023 | 1837 | OSS - On Site Septic | $20.50 | $20.50 | $0.00 | $0.00 | $41.00 | $0.00 |
| 2023 | 1837 | WAT - Clean Water District | $12.00 | $12.00 | $0.00 | $0.00 | $24.00 | $0.00 |
| 2023 | 1837 | FP ADMIN - FP ADMIN | $0.50 | $0.00 | $0.00 | $0.00 | $0.50 | $0.00 |
| 2023 | 1837 | TOTAL: | $1163.32 | $1162.73 | $0.00 | $0.00 | $2326.05 | $0.00 |
|
| 2023 | 1837 | $1163.32 | $1162.73 | $0.00 | $0.00 | $2326.05 | $0.00 |
Statement Details |
| 2022 | 1840 | STATE - STATE LEVY (SCHOOL) | $307.03 | $307.01 | $0.00 | $0.00 | $614.04 | $0.00 |
| 2022 | 1840 | COUNTY - COUNTY LEVIES (CE, DD, VET, MH) | $136.81 | $136.77 | $0.00 | $0.00 | $273.58 | $0.00 |
| 2022 | 1840 | CONSERVE - CONSERVATION FUTURES | $4.10 | $4.10 | $0.00 | $0.00 | $8.20 | $0.00 |
| 2022 | 1840 | COROADS - COUNTY ROADS (ROADS, DIV TO CE) | $111.19 | $111.17 | $0.00 | $0.00 | $222.36 | $0.00 |
| 2022 | 1840 | PORTPT - PORT DISTRICT | $58.56 | $58.56 | $0.00 | $0.00 | $117.12 | $0.00 |
| 2022 | 1840 | PUD1 - PUD #1 | $9.15 | $9.15 | $0.00 | $0.00 | $18.30 | $0.00 |
| 2022 | 1840 | LIB1 - LIBRARY DIST #1 | $43.02 | $43.01 | $0.00 | $0.00 | $86.03 | $0.00 |
| 2022 | 1840 | HD2 - HOSP DIST #2 | $7.99 | $7.98 | $0.00 | $0.00 | $15.97 | $0.00 |
| 2022 | 1840 | SD50 - SCHOOL DIST #50 | $227.52 | $227.51 | $0.00 | $0.00 | $455.03 | $0.00 |
| 2022 | 1840 | FD1 - FIRE DISTRICT #1 | $112.22 | $112.22 | $0.00 | $0.00 | $224.44 | $0.00 |
| 2022 | 1840 | EMS1 - FIRE DIST #1 EMS | $47.74 | $47.73 | $0.00 | $0.00 | $95.47 | $0.00 |
| 2022 | 1840 | FP - DNR Forest Fire Protection Assmt | $8.50 | $8.50 | $0.00 | $0.00 | $17.00 | $0.00 |
| 2022 | 1840 | FPLCA - DNR Landowner Contingency Assmt | $3.00 | $3.00 | $0.00 | $0.00 | $6.00 | $0.00 |
| 2022 | 1840 | JCCD - JC Conservation District | $2.80 | $2.80 | $0.00 | $0.00 | $5.60 | $0.00 |
| 2022 | 1840 | NWA - Noxious Weed Assessment | $2.90 | $2.90 | $0.00 | $0.00 | $5.80 | $0.00 |
| 2022 | 1840 | OSS - On Site Septic | $19.50 | $19.50 | $0.00 | $0.00 | $39.00 | $0.00 |
| 2022 | 1840 | WAT - Clean Water District | $11.50 | $11.50 | $0.00 | $0.00 | $23.00 | $0.00 |
| 2022 | 1840 | FP ADMIN - FP ADMIN | $0.50 | $0.00 | $0.00 | $0.00 | $0.50 | $0.00 |
| 2022 | 1840 | TOTAL: | $1114.03 | $1113.41 | $0.00 | $0.00 | $2227.44 | $0.00 |
|
| 2022 | 1840 | $1114.03 | $1113.41 | $0.00 | $0.00 | $2227.44 | $0.00 |
Values
| (+) Improvement Homesite Value: | + | $0 | |
| (+) Improvement Non-Homesite Value: | + | $141,340 | |
| (+) Land Homesite Value: | + | $0 | |
| (+) Land Non-Homesite Value: | + | $184,704 | |
| (+) Curr Use (HS): | + | $0 | $0 |
| (+) Curr Use (NHS): | + | $0 | $0 |
| | | -------------------------- | |
| (=) Market Value: | = | $326,044 | |
| (–) Productivity Loss: | – | $0 | |
| | | -------------------------- | |
| (=) Subtotal: | = | $326,044 | |
| (+) Senior Appraised Value: | + | $0 | |
| (+) Non-Senior Appraised Value: | + | $326,044 | |
| | | -------------------------- | |
| (=) Total Appraised Value: | = | $326,044 | |
| (–) Senior Exemption Loss: | – | $0 | |
| (–) Exemption Loss: | – | $0 | |
| | | -------------------------- | |
| (=) Taxable Value: | = | $326,044 | |
Taxing Jurisdiction
| Owner: | SUSAN MILLER | | |
| % Ownership: | 100.0000000000% | | |
| Total Value: | N/A | | |
| Tax Area: | 0111 - 1-50F1E1H2L1 |
| CE | COUNTY CURRENT EXPENSE | N/A | N/A | N/A | N/A | | |
| CNTYDD | DEVELOPMENTAL DISABILITIES | N/A | N/A | N/A | N/A | | |
| CNTYVET | VETERANS RELIEF | N/A | N/A | N/A | N/A | | |
| MENTAL | MENTAL HEALTH | N/A | N/A | N/A | N/A | | |
| ROADS | COUNTY ROADS | N/A | N/A | N/A | N/A | | |
| ROADSCU | COUNTY ROADS TO CUR EXP | N/A | N/A | N/A | N/A | | |
| HOSP2CASH | HOSP DIST #2 GENERAL | N/A | N/A | N/A | N/A | | |
| SCH50BOND | SCHOOL DIST #50 BOND 2016 | N/A | N/A | N/A | N/A | | |
| SCH50CP | SCHOOL DIST #50 CAP PROJ | N/A | N/A | N/A | N/A | | |
| SCH50MO | SCHOOL DIST #50 EP & O | N/A | N/A | N/A | N/A | | |
| CONSERVE | CONSERVATION FUTURES | N/A | N/A | N/A | N/A | | |
| EMS1 | FIRE DIST #1 EMS | N/A | N/A | N/A | N/A | | |
| FD1 | FIRE DIST #1 GENERAL | N/A | N/A | N/A | N/A | | |
| LIB1 | LIBRARY DIST #1 GENERAL | N/A | N/A | N/A | N/A | | |
| PORTPT | PORT OF PT GENERAL | N/A | N/A | N/A | N/A | | |
| PORTPTIDD | PORT OF PT IDD 2019 | N/A | N/A | N/A | N/A | | |
| PUD1 | PUD #1 GENERAL | N/A | N/A | N/A | N/A | | |
| STATE | STATE SCHOOL PART 1 | N/A | N/A | N/A | N/A | | |
| STATE2 | STATE SCHOOL PART 2 | N/A | N/A | N/A | N/A | | |
| | Total Tax Rate: | N/A | | | | | |
| | | | | Taxes w/Current Exemptions: | N/A | | |
| | | | | Taxes w/o Exemptions: | N/A | | |
Improvement / Building
| Improvement #1: | Residential Bldg | State Code: | 19 | 0.0 sqft | Value: | $141,340 |
| | Type | Description | Class CD | Sub Class CD | Year Built | Area |
| | GBSMT | Basement Garage | 4 | * | 1998 | 1080.0 |
| | CARPTF | Carport W/Floor | 3 | * | 1998 | 360.0 |
| | ADDN | Addition (Table Not Dep) | 3 | * | 1998 | 720.0 |
| | GARAG | Garage (Table Not Dep) | 3 | * | 1998 | 720.0 |
Sketch
Property Image
Land
| 1 | 1574A | | 4.1500 | 180774.00 | 0.00 | 0.00 | 0.00 | $58,204 | $0 |
| 2 | 5510-1375S | | 1.0000 | 43560.00 | 0.00 | 0.00 | 1.00 | $126,500 | $0 |
Roll Value History
| 2025 | N/A | N/A | N/A | N/A | N/A |
| 2024 | $141,340 | $184,704 | $0 | $326,044 | $326,044 |
| 2023 | $135,194 | $167,790 | $0 | $302,984 | $302,984 |
| 2022 | $122,904 | $148,575 | $0 | $271,479 | $271,479 |
| 2021 | $93,109 | $131,460 | $0 | $224,569 | $224,569 |
Deed and Sales History
| 1 | 05/29/2022 | DTH CERT | Death Certificate | JOHN B MILLER | | | | | 0 | 661275 |
Payout Agreement
| No payout information available.. |