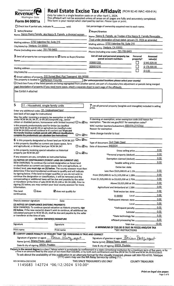
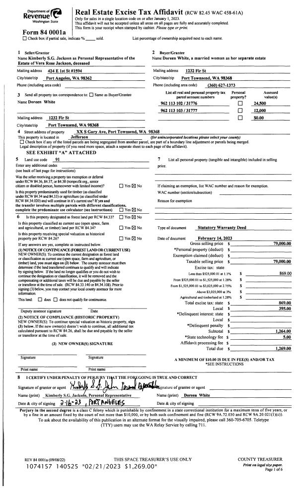
Property
Account |
| Property ID: | 11904 | Abbreviated Legal Description: | MARIAH HEIGHTS LOT 4 SUBJ/EASE |
| Parcel # / Geo ID: | 002125004 | Agent Code: | |
| Type: | Real | | |
| Tax Area: | 0111 - 1-50F1E1H2L1 | Land Use Code | 11 |
| Open Space: | N | DFL | N |
| Historic Property: | N | Remodel Property: | N |
| Multi-Family Redevelopment: | N | | |
| Township: | 30N | Section: | 12 |
| Range: | 2W |
Location |
| Address: | 423 THUNDER RD PORT TOWNSEND, WA 98368 | Mapsco: | 144/034 |
| Neighborhood: | S1 & 12 T30 R2W, MARIAH HEIGHTS;J HOWARD,CAINE,GAZEBO,HILDEB | Map ID: | |
| Neighborhood CD: | 5510 |
Owner |
| Name: | EMILY WILKINS | Owner ID: | 108754 |
| Mailing Address: | 423 THUNDER RD PORT TOWNSEND, WA 98368-8918 | % Ownership: | 100.0000000000% |
| | | Exemptions: | |
Pay Tax Due
There is currently No Amount Due on this property.
Taxes and Assessment Details
Property Tax Information as of
10/23/2025
Click on "Statement Details" to expand or collapse a tax statement.
* Please enter a valid date ** Please enter a valid date *
Statement Details |
| 2025 | 1839 | STATE - STATE LEVY (SCHOOL) | $906.01 | $906.01 | $0.00 | $0.00 | $1812.02 | $0.00 |
| 2025 | 1839 | COUNTY - COUNTY LEVIES (CE, DD, VET, MH) | $356.29 | $356.27 | $0.00 | $0.00 | $712.56 | $0.00 |
| 2025 | 1839 | CONSERVE - CONSERVATION FUTURES | $10.69 | $10.68 | $0.00 | $0.00 | $21.37 | $0.00 |
| 2025 | 1839 | COROADS - COUNTY ROADS (ROADS, DIV TO CE) | $285.45 | $285.43 | $0.00 | $0.00 | $570.88 | $0.00 |
| 2025 | 1839 | PORTPT - PORT DISTRICT | $145.38 | $145.38 | $0.00 | $0.00 | $290.76 | $0.00 |
| 2025 | 1839 | PUD1 - PUD #1 | $23.32 | $23.31 | $0.00 | $0.00 | $46.63 | $0.00 |
| 2025 | 1839 | LIB1 - LIBRARY DIST #1 | $110.44 | $110.43 | $0.00 | $0.00 | $220.87 | $0.00 |
| 2025 | 1839 | HD2 - HOSP DIST #2 | $20.79 | $20.78 | $0.00 | $0.00 | $41.57 | $0.00 |
| 2025 | 1839 | SD50 - SCHOOL DIST #50 | $662.15 | $662.13 | $0.00 | $0.00 | $1324.28 | $0.00 |
| 2025 | 1839 | FD1 - FIRE DISTRICT #1 | $470.16 | $470.15 | $0.00 | $0.00 | $940.31 | $0.00 |
| 2025 | 1839 | EMS1 - FIRE DIST #1 EMS | $180.84 | $180.83 | $0.00 | $0.00 | $361.67 | $0.00 |
| 2025 | 1839 | FP - DNR Forest Fire Protection Assmt | $8.50 | $8.50 | $0.00 | $0.00 | $17.00 | $0.00 |
| 2025 | 1839 | FPLCA - DNR Landowner Contingency Assmt | $3.00 | $3.00 | $0.00 | $0.00 | $6.00 | $0.00 |
| 2025 | 1839 | JCCD - JC Conservation District | $2.80 | $2.80 | $0.00 | $0.00 | $5.60 | $0.00 |
| 2025 | 1839 | NWA - Noxious Weed Assessment | $2.90 | $2.90 | $0.00 | $0.00 | $5.80 | $0.00 |
| 2025 | 1839 | OSS - On Site Septic | $21.50 | $21.50 | $0.00 | $0.00 | $43.00 | $0.00 |
| 2025 | 1839 | WAT - Clean Water District | $13.00 | $13.00 | $0.00 | $0.00 | $26.00 | $0.00 |
| 2025 | 1839 | FP ADMIN - FP ADMIN | $0.50 | $0.00 | $0.00 | $0.00 | $0.50 | $0.00 |
| 2025 | 1839 | TOTAL: | $3223.72 | $3223.10 | $0.00 | $0.00 | $6446.82 | $0.00 |
|
| 2025 | 1839 | $3223.72 | $3223.10 | $0.00 | $0.00 | $6446.82 | $0.00 |
Statement Details |
| 2024 | 1845 | STATE - STATE LEVY (SCHOOL) | $808.76 | $808.75 | $0.00 | $0.00 | $1617.51 | $0.00 |
| 2024 | 1845 | COUNTY - COUNTY LEVIES (CE, DD, VET, MH) | $346.09 | $346.07 | $0.00 | $0.00 | $692.16 | $0.00 |
| 2024 | 1845 | CONSERVE - CONSERVATION FUTURES | $10.38 | $10.37 | $0.00 | $0.00 | $20.75 | $0.00 |
| 2024 | 1845 | COROADS - COUNTY ROADS (ROADS, DIV TO CE) | $278.48 | $278.46 | $0.00 | $0.00 | $556.94 | $0.00 |
| 2024 | 1845 | PORTPT - PORT DISTRICT | $142.94 | $142.94 | $0.00 | $0.00 | $285.88 | $0.00 |
| 2024 | 1845 | PUD1 - PUD #1 | $22.73 | $22.73 | $0.00 | $0.00 | $45.46 | $0.00 |
| 2024 | 1845 | LIB1 - LIBRARY DIST #1 | $107.74 | $107.74 | $0.00 | $0.00 | $215.48 | $0.00 |
| 2024 | 1845 | HD2 - HOSP DIST #2 | $20.20 | $20.19 | $0.00 | $0.00 | $40.39 | $0.00 |
| 2024 | 1845 | SD50 - SCHOOL DIST #50 | $654.33 | $654.31 | $0.00 | $0.00 | $1308.64 | $0.00 |
| 2024 | 1845 | FD1 - FIRE DISTRICT #1 | $457.59 | $457.59 | $0.00 | $0.00 | $915.18 | $0.00 |
| 2024 | 1845 | EMS1 - FIRE DIST #1 EMS | $174.79 | $174.78 | $0.00 | $0.00 | $349.57 | $0.00 |
| 2024 | 1845 | FP - DNR Forest Fire Protection Assmt | $8.50 | $8.50 | $0.00 | $0.00 | $17.00 | $0.00 |
| 2024 | 1845 | FPLCA - DNR Landowner Contingency Assmt | $3.00 | $3.00 | $0.00 | $0.00 | $6.00 | $0.00 |
| 2024 | 1845 | JCCD - JC Conservation District | $2.80 | $2.80 | $0.00 | $0.00 | $5.60 | $0.00 |
| 2024 | 1845 | NWA - Noxious Weed Assessment | $2.90 | $2.90 | $0.00 | $0.00 | $5.80 | $0.00 |
| 2024 | 1845 | OSS - On Site Septic | $21.00 | $21.00 | $0.00 | $0.00 | $42.00 | $0.00 |
| 2024 | 1845 | WAT - Clean Water District | $12.50 | $12.50 | $0.00 | $0.00 | $25.00 | $0.00 |
| 2024 | 1845 | FP ADMIN - FP ADMIN | $0.50 | $0.00 | $0.00 | $0.00 | $0.50 | $0.00 |
| 2024 | 1845 | TOTAL: | $3075.23 | $3074.63 | $0.00 | $0.00 | $6149.86 | $0.00 |
|
| 2024 | 1845 | $3075.23 | $3074.63 | $0.00 | $0.00 | $6149.86 | $0.00 |
Statement Details |
| 2023 | 1846 | STATE - STATE LEVY (SCHOOL) | $431.07 | $431.06 | $0.00 | $0.00 | $862.13 | $0.00 |
| 2023 | 1846 | COUNTY - COUNTY LEVIES (CE, DD, VET, MH) | $188.11 | $188.10 | $0.00 | $0.00 | $376.21 | $0.00 |
| 2023 | 1846 | CONSERVE - CONSERVATION FUTURES | $5.64 | $5.64 | $0.00 | $0.00 | $11.28 | $0.00 |
| 2023 | 1846 | COROADS - COUNTY ROADS (ROADS, DIV TO CE) | $152.20 | $152.18 | $0.00 | $0.00 | $304.38 | $0.00 |
| 2023 | 1846 | PORTPT - PORT DISTRICT | $79.25 | $79.23 | $0.00 | $0.00 | $158.48 | $0.00 |
| 2023 | 1846 | PUD1 - PUD #1 | $12.47 | $12.47 | $0.00 | $0.00 | $24.94 | $0.00 |
| 2023 | 1846 | LIB1 - LIBRARY DIST #1 | $58.88 | $58.88 | $0.00 | $0.00 | $117.76 | $0.00 |
| 2023 | 1846 | HD2 - HOSP DIST #2 | $10.99 | $10.97 | $0.00 | $0.00 | $21.96 | $0.00 |
| 2023 | 1846 | SD50 - SCHOOL DIST #50 | $342.07 | $342.05 | $0.00 | $0.00 | $684.12 | $0.00 |
| 2023 | 1846 | FD1 - FIRE DISTRICT #1 | $154.96 | $154.96 | $0.00 | $0.00 | $309.92 | $0.00 |
| 2023 | 1846 | EMS1 - FIRE DIST #1 EMS | $65.92 | $65.91 | $0.00 | $0.00 | $131.83 | $0.00 |
| 2023 | 1846 | FP - DNR Forest Fire Protection Assmt | $8.50 | $8.50 | $0.00 | $0.00 | $17.00 | $0.00 |
| 2023 | 1846 | FPLCA - DNR Landowner Contingency Assmt | $3.00 | $3.00 | $0.00 | $0.00 | $6.00 | $0.00 |
| 2023 | 1846 | JCCD - JC Conservation District | $2.80 | $2.80 | $0.00 | $0.00 | $5.60 | $0.00 |
| 2023 | 1846 | NWA - Noxious Weed Assessment | $2.90 | $2.90 | $0.00 | $0.00 | $5.80 | $0.00 |
| 2023 | 1846 | OSS - On Site Septic | $20.50 | $20.50 | $0.00 | $0.00 | $41.00 | $0.00 |
| 2023 | 1846 | WAT - Clean Water District | $12.00 | $12.00 | $0.00 | $0.00 | $24.00 | $0.00 |
| 2023 | 1846 | FP ADMIN - FP ADMIN | $0.50 | $0.00 | $0.00 | $0.00 | $0.50 | $0.00 |
| 2023 | 1846 | TOTAL: | $1551.76 | $1551.15 | $0.00 | $0.00 | $3102.91 | $0.00 |
|
| 2023 | 1846 | $1551.76 | $1551.15 | $0.00 | $0.00 | $3102.91 | $0.00 |
Statement Details |
| 2022 | 1849 | STATE - STATE LEVY (SCHOOL) | $411.48 | $411.47 | $0.00 | $0.00 | $822.95 | $0.00 |
| 2022 | 1849 | COUNTY - COUNTY LEVIES (CE, DD, VET, MH) | $183.34 | $183.33 | $0.00 | $0.00 | $366.67 | $0.00 |
| 2022 | 1849 | CONSERVE - CONSERVATION FUTURES | $5.50 | $5.49 | $0.00 | $0.00 | $10.99 | $0.00 |
| 2022 | 1849 | COROADS - COUNTY ROADS (ROADS, DIV TO CE) | $149.01 | $149.00 | $0.00 | $0.00 | $298.01 | $0.00 |
| 2022 | 1849 | PORTPT - PORT DISTRICT | $78.49 | $78.48 | $0.00 | $0.00 | $156.97 | $0.00 |
| 2022 | 1849 | PUD1 - PUD #1 | $12.26 | $12.26 | $0.00 | $0.00 | $24.52 | $0.00 |
| 2022 | 1849 | LIB1 - LIBRARY DIST #1 | $57.65 | $57.65 | $0.00 | $0.00 | $115.30 | $0.00 |
| 2022 | 1849 | HD2 - HOSP DIST #2 | $10.71 | $10.70 | $0.00 | $0.00 | $21.41 | $0.00 |
| 2022 | 1849 | SD50 - SCHOOL DIST #50 | $304.93 | $304.92 | $0.00 | $0.00 | $609.85 | $0.00 |
| 2022 | 1849 | FD1 - FIRE DISTRICT #1 | $150.40 | $150.40 | $0.00 | $0.00 | $300.80 | $0.00 |
| 2022 | 1849 | EMS1 - FIRE DIST #1 EMS | $63.98 | $63.97 | $0.00 | $0.00 | $127.95 | $0.00 |
| 2022 | 1849 | FP - DNR Forest Fire Protection Assmt | $8.50 | $8.50 | $0.00 | $0.00 | $17.00 | $0.00 |
| 2022 | 1849 | FPLCA - DNR Landowner Contingency Assmt | $3.00 | $3.00 | $0.00 | $0.00 | $6.00 | $0.00 |
| 2022 | 1849 | JCCD - JC Conservation District | $2.80 | $2.80 | $0.00 | $0.00 | $5.60 | $0.00 |
| 2022 | 1849 | NWA - Noxious Weed Assessment | $2.90 | $2.90 | $0.00 | $0.00 | $5.80 | $0.00 |
| 2022 | 1849 | OSS - On Site Septic | $19.50 | $19.50 | $0.00 | $0.00 | $39.00 | $0.00 |
| 2022 | 1849 | WAT - Clean Water District | $11.50 | $11.50 | $0.00 | $0.00 | $23.00 | $0.00 |
| 2022 | 1849 | FP ADMIN - FP ADMIN | $0.50 | $0.00 | $0.00 | $0.00 | $0.50 | $0.00 |
| 2022 | 1849 | TOTAL: | $1476.45 | $1475.87 | $0.00 | $0.00 | $2952.32 | $0.00 |
|
| 2022 | 1849 | $1476.45 | $1475.87 | $0.00 | $0.00 | $2952.32 | $0.00 |
Values
| (+) Improvement Homesite Value: | + | $0 | |
| (+) Improvement Non-Homesite Value: | + | $482,938 | |
| (+) Land Homesite Value: | + | $0 | |
| (+) Land Non-Homesite Value: | + | $272,690 | |
| (+) Curr Use (HS): | + | $0 | $0 |
| (+) Curr Use (NHS): | + | $0 | $0 |
| | | -------------------------- | |
| (=) Market Value: | = | $755,628 | |
| (–) Productivity Loss: | – | $0 | |
| | | -------------------------- | |
| (=) Subtotal: | = | $755,628 | |
| (+) Senior Appraised Value: | + | $0 | |
| (+) Non-Senior Appraised Value: | + | $755,628 | |
| | | -------------------------- | |
| (=) Total Appraised Value: | = | $755,628 | |
| (–) Senior Exemption Loss: | – | $0 | |
| (–) Exemption Loss: | – | $0 | |
| | | -------------------------- | |
| (=) Taxable Value: | = | $755,628 | |
Taxing Jurisdiction
| Owner: | EMILY WILKINS | | |
| % Ownership: | 100.0000000000% | | |
| Total Value: | N/A | | |
| Tax Area: | 0111 - 1-50F1E1H2L1 |
| CE | COUNTY CURRENT EXPENSE | N/A | N/A | N/A | N/A | | |
| CNTYDD | DEVELOPMENTAL DISABILITIES | N/A | N/A | N/A | N/A | | |
| CNTYVET | VETERANS RELIEF | N/A | N/A | N/A | N/A | | |
| MENTAL | MENTAL HEALTH | N/A | N/A | N/A | N/A | | |
| ROADS | COUNTY ROADS | N/A | N/A | N/A | N/A | | |
| ROADSCU | COUNTY ROADS TO CUR EXP | N/A | N/A | N/A | N/A | | |
| HOSP2CASH | HOSP DIST #2 GENERAL | N/A | N/A | N/A | N/A | | |
| SCH50BOND | SCHOOL DIST #50 BOND 2016 | N/A | N/A | N/A | N/A | | |
| SCH50CP | SCHOOL DIST #50 CAP PROJ | N/A | N/A | N/A | N/A | | |
| SCH50MO | SCHOOL DIST #50 EP & O | N/A | N/A | N/A | N/A | | |
| CONSERVE | CONSERVATION FUTURES | N/A | N/A | N/A | N/A | | |
| EMS1 | FIRE DIST #1 EMS | N/A | N/A | N/A | N/A | | |
| FD1 | FIRE DIST #1 GENERAL | N/A | N/A | N/A | N/A | | |
| LIB1 | LIBRARY DIST #1 GENERAL | N/A | N/A | N/A | N/A | | |
| PORTPT | PORT OF PT GENERAL | N/A | N/A | N/A | N/A | | |
| PORTPTIDD | PORT OF PT IDD 2019 | N/A | N/A | N/A | N/A | | |
| PUD1 | PUD #1 GENERAL | N/A | N/A | N/A | N/A | | |
| STATE | STATE SCHOOL PART 1 | N/A | N/A | N/A | N/A | | |
| STATE2 | STATE SCHOOL PART 2 | N/A | N/A | N/A | N/A | | |
| | Total Tax Rate: | N/A | | | | | |
| | | | | Taxes w/Current Exemptions: | N/A | | |
| | | | | Taxes w/o Exemptions: | N/A | | |
Improvement / Building
| Improvement #1: | Residential Bldg | State Code: | 11 | 1374.0 sqft | Value: | $482,938 |
| Bathrooms (#): | 2 (FULL) | Bedrooms (#): | 1 | | Exterior Wall: | SI/ST | Fireplace: | WD ST-AVG | | Floor Construction: | FRAME | Foundation: | CONPR | | Heating/Cooling: | ELBB | Roof Cover: | METAL |
|
| | Type | Description | Class CD | Sub Class CD | Year Built | Area |
| | MA | Main Area | 5+ | 2S | 1999 | 687.0 |
| | MA2 | Second Floor Main Area | 5 | 2S | 1999 | 687.0 |
| | HDECK | House Deck | 5 | * | 1999 | 312.0 |
| | SHED | Shed (Table Not Dep) | 5 | * | 1999 | 96.0 |
| | HDECK | House Deck | 5 | * | 1999 | 12.0 |
| | SHED | Shed (Table Not Dep) | 4 | * | 1999 | 96.0 |
| | ENCL_POR | Enclosed Porch | 5 | * | 2017 | 1095.0 |
Sketch
Property Image
Land
| 1 | 5510-1373S | | 1.0000 | 43560.00 | 0.00 | 0.00 | 1.00 | $184,250 | $0 |
| 2 | 1572A | | 4.0200 | 175111.20 | 0.00 | 0.00 | 0.00 | $88,440 | $0 |
Roll Value History
| 2025 | N/A | N/A | N/A | N/A | N/A |
| 2024 | $482,938 | $272,690 | $0 | $755,628 | $755,628 |
| 2023 | $448,980 | $250,152 | $0 | $699,132 | $699,132 |
| 2022 | $221,506 | $144,710 | $0 | $366,216 | $366,216 |
| 2021 | $167,807 | $133,170 | $0 | $300,977 | $300,977 |
Deed and Sales History
| 1 | 05/09/2023 | SWD | Statutory Warranty Deed | DENISE PRANGER | EMILY WILKINS | | | $850,000.00 | 140875 | |
| 2 | 06/09/1998 | QCD | Quit Claim Deed | PRANGER, MARY A | PRANGER, DENISE/CECIL, WESLEY | 0 | 0 | $0.00 | 84674 | 0 |
Payout Agreement
| No payout information available.. |