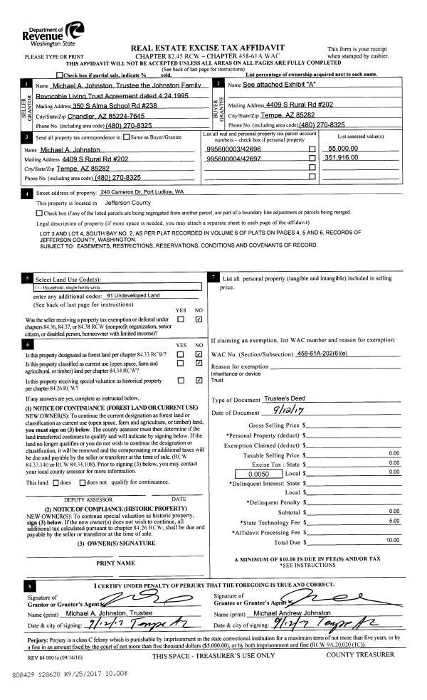
Property
Account |
| Property ID: | 11927 | Abbreviated Legal Description: | S13 T30 R2W TAX 6 WITH & SUBJECT TO EASEMENT |
| Parcel # / Geo ID: | 002131015 | Agent Code: | |
| Type: | Real | | |
| Tax Area: | 0111 - 1-50F1E1H2L1 | Land Use Code | 11 |
| Open Space: | N | DFL | N |
| Historic Property: | N | Remodel Property: | N |
| Multi-Family Redevelopment: | N | | |
| Township: | 30N | Section: | 13 |
| Range: | 2W |
Location |
| Address: | 500 GOSS RD PORT TOWNSEND, WA 98368 | Mapsco: | 119/011 |
| Neighborhood: | S13(S1/2), 23 & 24 T30 R2W | Map ID: | |
| Neighborhood CD: | 5540 |
Owner |
| Name: | VICKI DOHRMANN | Owner ID: | 14645 |
| Mailing Address: | 500 GOSS RD PORT TOWNSEND, WA 98368-9416 | % Ownership: | 100.0000000000% |
| | | Exemptions: | |
Pay Tax Due
Select the appropriate checkbox next to the year to be paid. Multiple years may be selected.
*Convenience Fee not included
Taxes and Assessment Details
Property Tax Information as of
10/23/2025
Click on "Statement Details" to expand or collapse a tax statement.
* Please enter a valid date ** Please enter a valid date *
Statement Details |
| 2025 | 1861 | STATE - STATE LEVY (SCHOOL) | $1635.61 | $1635.60 | $0.00 | $0.00 | $1635.61 | $1635.60 |
| 2025 | 1861 | COUNTY - COUNTY LEVIES (CE, DD, VET, MH) | $643.20 | $643.19 | $0.00 | $0.00 | $643.20 | $643.19 |
| 2025 | 1861 | CONSERVE - CONSERVATION FUTURES | $19.29 | $19.28 | $0.00 | $0.00 | $19.29 | $19.28 |
| 2025 | 1861 | COROADS - COUNTY ROADS (ROADS, DIV TO CE) | $515.31 | $515.29 | $0.00 | $0.00 | $515.31 | $515.29 |
| 2025 | 1861 | PORTPT - PORT DISTRICT | $262.46 | $262.46 | $0.00 | $0.00 | $262.46 | $262.46 |
| 2025 | 1861 | PUD1 - PUD #1 | $42.09 | $42.08 | $0.00 | $0.00 | $42.09 | $42.08 |
| 2025 | 1861 | LIB1 - LIBRARY DIST #1 | $199.37 | $199.36 | $0.00 | $0.00 | $199.37 | $199.36 |
| 2025 | 1861 | HD2 - HOSP DIST #2 | $37.53 | $37.52 | $0.00 | $0.00 | $37.53 | $37.52 |
| 2025 | 1861 | SD50 - SCHOOL DIST #50 | $1195.36 | $1195.35 | $0.00 | $0.00 | $1195.36 | $1195.35 |
| 2025 | 1861 | FD1 - FIRE DISTRICT #1 | $848.77 | $848.76 | $0.00 | $0.00 | $848.77 | $848.76 |
| 2025 | 1861 | EMS1 - FIRE DIST #1 EMS | $326.46 | $326.45 | $0.00 | $0.00 | $326.46 | $326.45 |
| 2025 | 1861 | FP - DNR Forest Fire Protection Assmt | $8.50 | $8.50 | $0.00 | $0.00 | $8.50 | $8.50 |
| 2025 | 1861 | FPLCA - DNR Landowner Contingency Assmt | $3.00 | $3.00 | $0.00 | $0.00 | $3.00 | $3.00 |
| 2025 | 1861 | JCCD - JC Conservation District | $2.80 | $2.80 | $0.00 | $0.00 | $2.80 | $2.80 |
| 2025 | 1861 | NWA - Noxious Weed Assessment | $2.90 | $2.90 | $0.00 | $0.00 | $2.90 | $2.90 |
| 2025 | 1861 | OSS - On Site Septic | $21.50 | $21.50 | $0.00 | $0.00 | $21.50 | $21.50 |
| 2025 | 1861 | WAT - Clean Water District | $13.00 | $13.00 | $0.00 | $0.00 | $13.00 | $13.00 |
| 2025 | 1861 | FP ADMIN - FP ADMIN | $0.50 | $0.00 | $0.00 | $0.00 | $0.50 | $0.00 |
| 2025 | 1861 | TOTAL: | $5777.65 | $5777.04 | $0.00 | $0.00 | $5777.65 | $5777.04 |
|
| 2025 | 1861 | $5777.65 | $5777.04 | $0.00 | $0.00 | $5777.65 | $5777.04 |
Statement Details |
| 2024 | 1868 | STATE - STATE LEVY (SCHOOL) | $1518.66 | $1518.65 | $0.00 | $0.00 | $3037.31 | $0.00 |
| 2024 | 1868 | COUNTY - COUNTY LEVIES (CE, DD, VET, MH) | $649.85 | $649.84 | $0.00 | $0.00 | $1299.69 | $0.00 |
| 2024 | 1868 | CONSERVE - CONSERVATION FUTURES | $19.49 | $19.48 | $0.00 | $0.00 | $38.97 | $0.00 |
| 2024 | 1868 | COROADS - COUNTY ROADS (ROADS, DIV TO CE) | $522.92 | $522.90 | $0.00 | $0.00 | $1045.82 | $0.00 |
| 2024 | 1868 | PORTPT - PORT DISTRICT | $268.42 | $268.41 | $0.00 | $0.00 | $536.83 | $0.00 |
| 2024 | 1868 | PUD1 - PUD #1 | $42.69 | $42.68 | $0.00 | $0.00 | $85.37 | $0.00 |
| 2024 | 1868 | LIB1 - LIBRARY DIST #1 | $202.31 | $202.31 | $0.00 | $0.00 | $404.62 | $0.00 |
| 2024 | 1868 | HD2 - HOSP DIST #2 | $37.92 | $37.91 | $0.00 | $0.00 | $75.83 | $0.00 |
| 2024 | 1868 | SD50 - SCHOOL DIST #50 | $1228.67 | $1228.65 | $0.00 | $0.00 | $2457.32 | $0.00 |
| 2024 | 1868 | FD1 - FIRE DISTRICT #1 | $859.25 | $859.25 | $0.00 | $0.00 | $1718.50 | $0.00 |
| 2024 | 1868 | EMS1 - FIRE DIST #1 EMS | $328.20 | $328.20 | $0.00 | $0.00 | $656.40 | $0.00 |
| 2024 | 1868 | FP - DNR Forest Fire Protection Assmt | $8.50 | $8.50 | $0.00 | $0.00 | $17.00 | $0.00 |
| 2024 | 1868 | FPLCA - DNR Landowner Contingency Assmt | $3.00 | $3.00 | $0.00 | $0.00 | $6.00 | $0.00 |
| 2024 | 1868 | JCCD - JC Conservation District | $2.80 | $2.80 | $0.00 | $0.00 | $5.60 | $0.00 |
| 2024 | 1868 | NWA - Noxious Weed Assessment | $2.90 | $2.90 | $0.00 | $0.00 | $5.80 | $0.00 |
| 2024 | 1868 | OSS - On Site Septic | $21.00 | $21.00 | $0.00 | $0.00 | $42.00 | $0.00 |
| 2024 | 1868 | WAT - Clean Water District | $12.50 | $12.50 | $0.00 | $0.00 | $25.00 | $0.00 |
| 2024 | 1868 | FP ADMIN - FP ADMIN | $0.50 | $0.00 | $0.00 | $0.00 | $0.50 | $0.00 |
| 2024 | 1868 | TOTAL: | $5729.58 | $5728.98 | $0.00 | $0.00 | $11458.56 | $0.00 |
|
| 2024 | 1868 | $5729.58 | $5728.98 | $0.00 | $0.00 | $11458.56 | $0.00 |
Statement Details |
| 2023 | 1869 | STATE - STATE LEVY (SCHOOL) | $1419.58 | $1419.57 | $0.00 | $0.00 | $2839.15 | $0.00 |
| 2023 | 1869 | COUNTY - COUNTY LEVIES (CE, DD, VET, MH) | $619.47 | $619.44 | $0.00 | $0.00 | $1238.91 | $0.00 |
| 2023 | 1869 | CONSERVE - CONSERVATION FUTURES | $18.58 | $18.57 | $0.00 | $0.00 | $37.15 | $0.00 |
| 2023 | 1869 | COROADS - COUNTY ROADS (ROADS, DIV TO CE) | $501.19 | $501.18 | $0.00 | $0.00 | $1002.37 | $0.00 |
| 2023 | 1869 | PORTPT - PORT DISTRICT | $260.95 | $260.95 | $0.00 | $0.00 | $521.90 | $0.00 |
| 2023 | 1869 | PUD1 - PUD #1 | $41.06 | $41.06 | $0.00 | $0.00 | $82.12 | $0.00 |
| 2023 | 1869 | LIB1 - LIBRARY DIST #1 | $193.91 | $193.90 | $0.00 | $0.00 | $387.81 | $0.00 |
| 2023 | 1869 | HD2 - HOSP DIST #2 | $36.15 | $36.15 | $0.00 | $0.00 | $72.30 | $0.00 |
| 2023 | 1869 | SD50 - SCHOOL DIST #50 | $1126.46 | $1126.45 | $0.00 | $0.00 | $2252.91 | $0.00 |
| 2023 | 1869 | FD1 - FIRE DISTRICT #1 | $510.31 | $510.31 | $0.00 | $0.00 | $1020.62 | $0.00 |
| 2023 | 1869 | EMS1 - FIRE DIST #1 EMS | $217.08 | $217.07 | $0.00 | $0.00 | $434.15 | $0.00 |
| 2023 | 1869 | FP - DNR Forest Fire Protection Assmt | $8.50 | $8.50 | $0.00 | $0.00 | $17.00 | $0.00 |
| 2023 | 1869 | FPLCA - DNR Landowner Contingency Assmt | $3.00 | $3.00 | $0.00 | $0.00 | $6.00 | $0.00 |
| 2023 | 1869 | JCCD - JC Conservation District | $2.80 | $2.80 | $0.00 | $0.00 | $5.60 | $0.00 |
| 2023 | 1869 | NWA - Noxious Weed Assessment | $2.90 | $2.90 | $0.00 | $0.00 | $5.80 | $0.00 |
| 2023 | 1869 | OSS - On Site Septic | $20.50 | $20.50 | $0.00 | $0.00 | $41.00 | $0.00 |
| 2023 | 1869 | WAT - Clean Water District | $12.00 | $12.00 | $0.00 | $0.00 | $24.00 | $0.00 |
| 2023 | 1869 | FP ADMIN - FP ADMIN | $0.50 | $0.00 | $0.00 | $0.00 | $0.50 | $0.00 |
| 2023 | 1869 | TOTAL: | $4994.94 | $4994.35 | $0.00 | $0.00 | $9989.29 | $0.00 |
|
| 2023 | 1869 | $4994.94 | $4994.35 | $0.00 | $0.00 | $9989.29 | $0.00 |
Statement Details |
| 2022 | 1872 | STATE - STATE LEVY (SCHOOL) | $1257.06 | $1257.06 | $0.00 | $0.00 | $2514.12 | $0.00 |
| 2022 | 1872 | COUNTY - COUNTY LEVIES (CE, DD, VET, MH) | $560.09 | $560.09 | $0.00 | $0.00 | $1120.18 | $0.00 |
| 2022 | 1872 | CONSERVE - CONSERVATION FUTURES | $16.80 | $16.79 | $0.00 | $0.00 | $33.59 | $0.00 |
| 2022 | 1872 | COROADS - COUNTY ROADS (ROADS, DIV TO CE) | $455.22 | $455.21 | $0.00 | $0.00 | $910.43 | $0.00 |
| 2022 | 1872 | PORTPT - PORT DISTRICT | $239.78 | $239.76 | $0.00 | $0.00 | $479.54 | $0.00 |
| 2022 | 1872 | PUD1 - PUD #1 | $37.46 | $37.45 | $0.00 | $0.00 | $74.91 | $0.00 |
| 2022 | 1872 | LIB1 - LIBRARY DIST #1 | $176.12 | $176.12 | $0.00 | $0.00 | $352.24 | $0.00 |
| 2022 | 1872 | HD2 - HOSP DIST #2 | $32.70 | $32.68 | $0.00 | $0.00 | $65.38 | $0.00 |
| 2022 | 1872 | SD50 - SCHOOL DIST #50 | $931.55 | $931.52 | $0.00 | $0.00 | $1863.07 | $0.00 |
| 2022 | 1872 | FD1 - FIRE DISTRICT #1 | $459.48 | $459.47 | $0.00 | $0.00 | $918.95 | $0.00 |
| 2022 | 1872 | EMS1 - FIRE DIST #1 EMS | $195.45 | $195.44 | $0.00 | $0.00 | $390.89 | $0.00 |
| 2022 | 1872 | FP - DNR Forest Fire Protection Assmt | $8.50 | $8.50 | $0.00 | $0.00 | $17.00 | $0.00 |
| 2022 | 1872 | FPLCA - DNR Landowner Contingency Assmt | $3.00 | $3.00 | $0.00 | $0.00 | $6.00 | $0.00 |
| 2022 | 1872 | JCCD - JC Conservation District | $2.80 | $2.80 | $0.00 | $0.00 | $5.60 | $0.00 |
| 2022 | 1872 | NWA - Noxious Weed Assessment | $2.90 | $2.90 | $0.00 | $0.00 | $5.80 | $0.00 |
| 2022 | 1872 | OSS - On Site Septic | $19.50 | $19.50 | $0.00 | $0.00 | $39.00 | $0.00 |
| 2022 | 1872 | WAT - Clean Water District | $11.50 | $11.50 | $0.00 | $0.00 | $23.00 | $0.00 |
| 2022 | 1872 | FP ADMIN - FP ADMIN | $0.50 | $0.00 | $0.00 | $0.00 | $0.50 | $0.00 |
| 2022 | 1872 | TOTAL: | $4410.41 | $4409.79 | $0.00 | $0.00 | $8820.20 | $0.00 |
|
| 2022 | 1872 | $4410.41 | $4409.79 | $0.00 | $0.00 | $8820.20 | $0.00 |
Values
| (+) Improvement Homesite Value: | + | $0 | |
| (+) Improvement Non-Homesite Value: | + | $953,368 | |
| (+) Land Homesite Value: | + | $0 | |
| (+) Land Non-Homesite Value: | + | $410,760 | |
| (+) Curr Use (HS): | + | $0 | $0 |
| (+) Curr Use (NHS): | + | $0 | $0 |
| | | -------------------------- | |
| (=) Market Value: | = | $1,364,128 | |
| (–) Productivity Loss: | – | $0 | |
| | | -------------------------- | |
| (=) Subtotal: | = | $1,364,128 | |
| (+) Senior Appraised Value: | + | $0 | |
| (+) Non-Senior Appraised Value: | + | $1,364,128 | |
| | | -------------------------- | |
| (=) Total Appraised Value: | = | $1,364,128 | |
| (–) Senior Exemption Loss: | – | $0 | |
| (–) Exemption Loss: | – | $0 | |
| | | -------------------------- | |
| (=) Taxable Value: | = | $1,364,128 | |
Taxing Jurisdiction
| Owner: | VICKI DOHRMANN | | |
| % Ownership: | 100.0000000000% | | |
| Total Value: | N/A | | |
| Tax Area: | 0111 - 1-50F1E1H2L1 |
| CE | COUNTY CURRENT EXPENSE | N/A | N/A | N/A | N/A | | |
| CNTYDD | DEVELOPMENTAL DISABILITIES | N/A | N/A | N/A | N/A | | |
| CNTYVET | VETERANS RELIEF | N/A | N/A | N/A | N/A | | |
| MENTAL | MENTAL HEALTH | N/A | N/A | N/A | N/A | | |
| ROADS | COUNTY ROADS | N/A | N/A | N/A | N/A | | |
| ROADSCU | COUNTY ROADS TO CUR EXP | N/A | N/A | N/A | N/A | | |
| HOSP2CASH | HOSP DIST #2 GENERAL | N/A | N/A | N/A | N/A | | |
| SCH50BOND | SCHOOL DIST #50 BOND 2016 | N/A | N/A | N/A | N/A | | |
| SCH50CP | SCHOOL DIST #50 CAP PROJ | N/A | N/A | N/A | N/A | | |
| SCH50MO | SCHOOL DIST #50 EP & O | N/A | N/A | N/A | N/A | | |
| CONSERVE | CONSERVATION FUTURES | N/A | N/A | N/A | N/A | | |
| EMS1 | FIRE DIST #1 EMS | N/A | N/A | N/A | N/A | | |
| FD1 | FIRE DIST #1 GENERAL | N/A | N/A | N/A | N/A | | |
| LIB1 | LIBRARY DIST #1 GENERAL | N/A | N/A | N/A | N/A | | |
| PORTPT | PORT OF PT GENERAL | N/A | N/A | N/A | N/A | | |
| PORTPTIDD | PORT OF PT IDD 2019 | N/A | N/A | N/A | N/A | | |
| PUD1 | PUD #1 GENERAL | N/A | N/A | N/A | N/A | | |
| STATE | STATE SCHOOL PART 1 | N/A | N/A | N/A | N/A | | |
| STATE2 | STATE SCHOOL PART 2 | N/A | N/A | N/A | N/A | | |
| | Total Tax Rate: | N/A | | | | | |
| | | | | Taxes w/Current Exemptions: | N/A | | |
| | | | | Taxes w/o Exemptions: | N/A | | |
Improvement / Building
| Improvement #1: | Residential Bldg | State Code: | 11 | 3272.0 sqft | Value: | $953,368 |
| Bathrooms (#): | 2 (FULL) | Bathrooms (#): | 2 (HALF) | | Bedrooms (#): | 2 | Exterior Wall: | SI/ST | | Fireplace: | WD ST-GOOD | Floor Construction: | FRAME | | Foundation: | CONPR | Heating/Cooling: | ELBB | | Inside Verify: | YES | Roof Cover: | COMP |
|
| | Type | Description | Class CD | Sub Class CD | Year Built | Area |
| | MA | Main Area | 5- | 15SF | 1979 | 2472.0 |
| | MA2 | Second Floor Main Area | 5- | 15SF | 1979 | 800.0 |
| | HBAL | House Balcony | 5 | * | 1979 | 84.0 |
| | HCPOR | House Concrete Porch | 5 | * | 1979 | 48.0 |
| | HDECK | House Deck | 5 | * | 1979 | 1250.0 |
| | BSMTF | House basement finished | 5 | * | 1979 | 624.0 |
| | GDET | Detached Garage | 4 | * | 1979 | 1120.0 |
| | GARAG | Garage (Table Not Dep) | 6 | * | 1979 | 672.0 |
| | SHED | Shed (Table Not Dep) | 6 | * | 1979 | 192.0 |
| | CONCD | Concrete Drive | 5 | * | 1979 | 4000.0 |
| | HDECK | House Deck | 4 | * | 1979 | 55.0 |
| | SHED | Shed (Table Not Dep) | 2 | * | 1979 | 80.0 |
Sketch
Property Image
Land
| 1 | 5540-1535F | | 0.0000 | 0.00 | 0.00 | 0.00 | 0.00 | $26,460 | $0 |
| 2 | 5540-1535F | | 0.0000 | 0.00 | 0.00 | 0.00 | 0.00 | $252,000 | $0 |
| 3 | 5540-1535F | | 0.0000 | 0.00 | 0.00 | 0.00 | 0.00 | $132,300 | $0 |
Roll Value History
| 2025 | N/A | N/A | N/A | N/A | N/A |
| 2024 | $953,368 | $410,760 | $0 | $1,364,128 | $1,364,128 |
| 2023 | $907,295 | $405,510 | $0 | $1,312,805 | $1,312,805 |
| 2022 | $824,814 | $381,200 | $0 | $1,206,014 | $1,206,014 |
| 2021 | $624,859 | $294,624 | $0 | $919,483 | $919,483 |
Deed and Sales History
| 1 | 05/23/2003 | SWD | Statutory Warranty Deed | GUILL FAMILY LLC | DOHRMANN, VICKI | 0 | 0 | $362,000.00 | 97394 | 0 |
| 2 | 07/24/2002 | QCD | Quit Claim Deed | RYAN, HOLLIS GUILL, GUILL | GUILL FAMILY LLC | 0 | 0 | $0.00 | 95892 | 0 |
| 3 | 06/24/2002 | WD | Warranty Deed | SAMUEL G GUILL TRTEE | HOLLIS GUILL RYAN, FREDERICK C | 0 | 0 | $0.00 | 94933 | 0 |
Payout Agreement
| No payout information available.. |