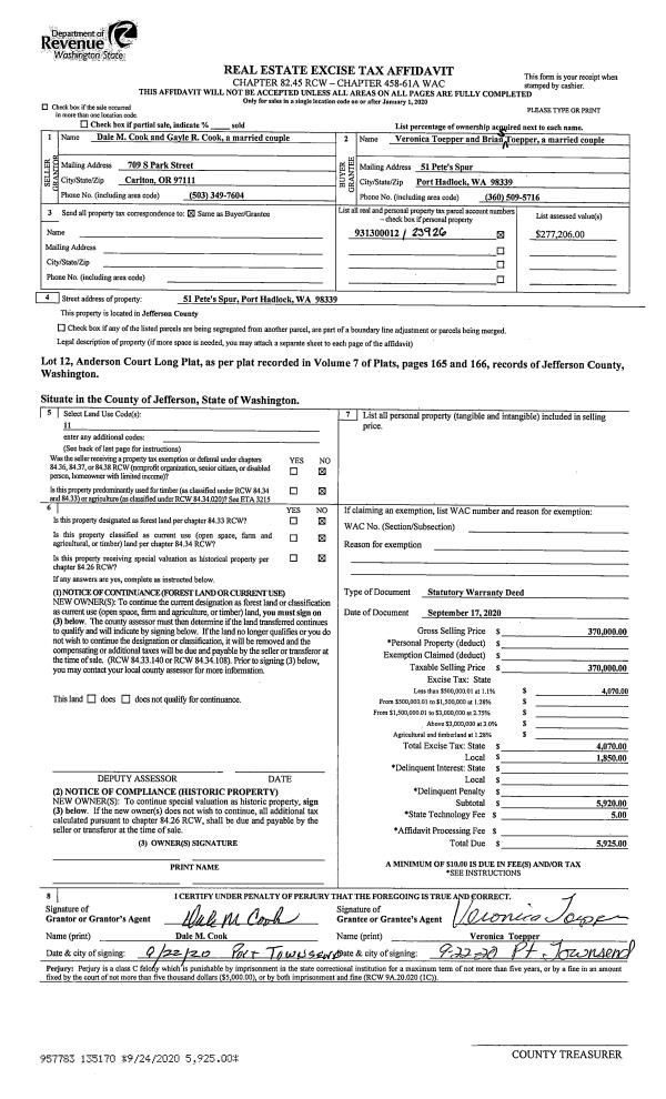
Property
Account |
| Property ID: | 12056 | Abbreviated Legal Description: | BROWN SHORT PLAT LOT 4 |
| Parcel # / Geo ID: | 002284017 | Agent Code: | |
| Type: | Real | | |
| Tax Area: | 0781 - 1-323F8E8H2C3L1 | Land Use Code | 18 |
| Open Space: | N | DFL | N |
| Historic Property: | N | Remodel Property: | N |
| Multi-Family Redevelopment: | N | | |
| Township: | 30N | Section: | 28 |
| Range: | 2W |
Location |
| Address: | 1740 GARDINER BEACH RD SEQUIM, WA 98382 | Mapsco: | 127/063 |
| Neighborhood: | S27 & 28 T30 R2W, RONDELAY MEADOWS | Map ID: | |
| Neighborhood CD: | 2670 |
Owner |
| Name: | MIKE RESSLER | Owner ID: | 25701 |
| Mailing Address: | 1740 GARDINER BEACH RD SEQUIM, WA 98382-8772 | % Ownership: | 100.0000000000% |
| | | Exemptions: | SNR/DSBL |
Pay Tax Due
There is currently No Amount Due on this property.
Taxes and Assessment Details
Property Tax Information as of
10/23/2025
Click on "Statement Details" to expand or collapse a tax statement.
* Please enter a valid date ** Please enter a valid date *
Statement Details |
| 2025 | 1987 | STATE - STATE LEVY (SCHOOL) | $33.55 | $33.54 | $0.00 | $0.00 | $67.09 | $0.00 |
| 2025 | 1987 | COUNTY - COUNTY LEVIES (CE, DD, VET, MH) | $20.31 | $20.27 | $0.00 | $0.00 | $40.58 | $0.00 |
| 2025 | 1987 | CONSERVE - CONSERVATION FUTURES | $0.61 | $0.61 | $0.00 | $0.00 | $1.22 | $0.00 |
| 2025 | 1987 | COROADS - COUNTY ROADS (ROADS, DIV TO CE) | $16.26 | $16.26 | $0.00 | $0.00 | $32.52 | $0.00 |
| 2025 | 1987 | PORTPT - PORT DISTRICT | $8.29 | $8.27 | $0.00 | $0.00 | $16.56 | $0.00 |
| 2025 | 1987 | PUD1 - PUD #1 | $1.33 | $1.33 | $0.00 | $0.00 | $2.66 | $0.00 |
| 2025 | 1987 | LIB1 - LIBRARY DIST #1 | $6.29 | $6.29 | $0.00 | $0.00 | $12.58 | $0.00 |
| 2025 | 1987 | HD2 - HOSP DIST #2 | $1.19 | $1.18 | $0.00 | $0.00 | $2.37 | $0.00 |
| 2025 | 1987 | SD323 - SCHOOL DIST #323 | $0.00 | $0.00 | $0.00 | $0.00 | $0.00 | $0.00 |
| 2025 | 1987 | FD8 - FIRE DISTRICT #8 | $23.95 | $23.94 | $0.00 | $0.00 | $47.89 | $0.00 |
| 2025 | 1987 | EMS8 - FIRE DIST #8 EMS | $7.57 | $7.57 | $0.00 | $0.00 | $15.14 | $0.00 |
| 2025 | 1987 | CEM3 - CEMETERY DIST #3 | $0.57 | $0.57 | $0.00 | $0.00 | $1.14 | $0.00 |
| 2025 | 1987 | FP - DNR Forest Fire Protection Assmt | $8.50 | $8.50 | $0.00 | $0.00 | $17.00 | $0.00 |
| 2025 | 1987 | FPLCA - DNR Landowner Contingency Assmt | $3.00 | $3.00 | $0.00 | $0.00 | $6.00 | $0.00 |
| 2025 | 1987 | OSS - On Site Septic | $21.50 | $21.50 | $0.00 | $0.00 | $43.00 | $0.00 |
| 2025 | 1987 | FP ADMIN - FP ADMIN | $0.50 | $0.00 | $0.00 | $0.00 | $0.50 | $0.00 |
| 2025 | 1987 | TOTAL: | $153.42 | $152.83 | $0.00 | $0.00 | $306.25 | $0.00 |
|
| 2025 | 1987 | $153.42 | $152.83 | $0.00 | $0.00 | $306.25 | $0.00 |
Statement Details |
| 2024 | 1994 | STATE - STATE LEVY (SCHOOL) | $32.41 | $32.40 | $0.00 | $0.00 | $64.81 | $0.00 |
| 2024 | 1994 | COUNTY - COUNTY LEVIES (CE, DD, VET, MH) | $21.30 | $21.30 | $0.00 | $0.00 | $42.60 | $0.00 |
| 2024 | 1994 | CONSERVE - CONSERVATION FUTURES | $0.64 | $0.64 | $0.00 | $0.00 | $1.28 | $0.00 |
| 2024 | 1994 | COROADS - COUNTY ROADS (ROADS, DIV TO CE) | $17.14 | $17.14 | $0.00 | $0.00 | $34.28 | $0.00 |
| 2024 | 1994 | PORTPT - PORT DISTRICT | $8.80 | $8.80 | $0.00 | $0.00 | $17.60 | $0.00 |
| 2024 | 1994 | PUD1 - PUD #1 | $1.40 | $1.40 | $0.00 | $0.00 | $2.80 | $0.00 |
| 2024 | 1994 | LIB1 - LIBRARY DIST #1 | $6.63 | $6.63 | $0.00 | $0.00 | $13.26 | $0.00 |
| 2024 | 1994 | HD2 - HOSP DIST #2 | $1.25 | $1.24 | $0.00 | $0.00 | $2.49 | $0.00 |
| 2024 | 1994 | SD323 - SCHOOL DIST #323 | $0.00 | $0.00 | $0.00 | $0.00 | $0.00 | $0.00 |
| 2024 | 1994 | FD8 - FIRE DISTRICT #8 | $24.10 | $24.10 | $0.00 | $0.00 | $48.20 | $0.00 |
| 2024 | 1994 | EMS8 - FIRE DIST #8 EMS | $7.62 | $7.62 | $0.00 | $0.00 | $15.24 | $0.00 |
| 2024 | 1994 | CEM3 - CEMETERY DIST #3 | $0.62 | $0.61 | $0.00 | $0.00 | $1.23 | $0.00 |
| 2024 | 1994 | FP - DNR Forest Fire Protection Assmt | $8.50 | $8.50 | $0.00 | $0.00 | $17.00 | $0.00 |
| 2024 | 1994 | FPLCA - DNR Landowner Contingency Assmt | $3.00 | $3.00 | $0.00 | $0.00 | $6.00 | $0.00 |
| 2024 | 1994 | OSS - On Site Septic | $21.00 | $21.00 | $0.00 | $0.00 | $42.00 | $0.00 |
| 2024 | 1994 | FP ADMIN - FP ADMIN | $0.50 | $0.00 | $0.00 | $0.00 | $0.50 | $0.00 |
| 2024 | 1994 | TOTAL: | $154.91 | $154.38 | $0.00 | $0.00 | $309.29 | $0.00 |
|
| 2024 | 1994 | $154.91 | $154.38 | $0.00 | $0.00 | $309.29 | $0.00 |
Statement Details |
| 2023 | 1995 | STATE - STATE LEVY (SCHOOL) | $33.01 | $33.00 | $0.00 | $0.00 | $66.01 | $0.00 |
| 2023 | 1995 | COUNTY - COUNTY LEVIES (CE, DD, VET, MH) | $22.12 | $22.08 | $0.00 | $0.00 | $44.20 | $0.00 |
| 2023 | 1995 | CONSERVE - CONSERVATION FUTURES | $0.67 | $0.66 | $0.00 | $0.00 | $1.33 | $0.00 |
| 2023 | 1995 | COROADS - COUNTY ROADS (ROADS, DIV TO CE) | $17.89 | $17.88 | $0.00 | $0.00 | $35.77 | $0.00 |
| 2023 | 1995 | PORTPT - PORT DISTRICT | $9.32 | $9.31 | $0.00 | $0.00 | $18.63 | $0.00 |
| 2023 | 1995 | PUD1 - PUD #1 | $1.47 | $1.46 | $0.00 | $0.00 | $2.93 | $0.00 |
| 2023 | 1995 | LIB1 - LIBRARY DIST #1 | $6.92 | $6.92 | $0.00 | $0.00 | $13.84 | $0.00 |
| 2023 | 1995 | HD2 - HOSP DIST #2 | $1.30 | $1.28 | $0.00 | $0.00 | $2.58 | $0.00 |
| 2023 | 1995 | SD323 - SCHOOL DIST #323 | $0.00 | $0.00 | $0.00 | $0.00 | $0.00 | $0.00 |
| 2023 | 1995 | FD8 - FIRE DISTRICT #8 | $24.36 | $24.35 | $0.00 | $0.00 | $48.71 | $0.00 |
| 2023 | 1995 | EMS8 - FIRE DIST #8 EMS | $7.97 | $7.96 | $0.00 | $0.00 | $15.93 | $0.00 |
| 2023 | 1995 | CEM3 - CEMETERY DIST #3 | $0.70 | $0.69 | $0.00 | $0.00 | $1.39 | $0.00 |
| 2023 | 1995 | FP - DNR Forest Fire Protection Assmt | $8.50 | $8.50 | $0.00 | $0.00 | $17.00 | $0.00 |
| 2023 | 1995 | FPLCA - DNR Landowner Contingency Assmt | $3.00 | $3.00 | $0.00 | $0.00 | $6.00 | $0.00 |
| 2023 | 1995 | JCCD - JC Conservation District | $2.60 | $2.60 | $0.00 | $0.00 | $5.20 | $0.00 |
| 2023 | 1995 | NWA - Noxious Weed Assessment | $2.30 | $2.30 | $0.00 | $0.00 | $4.60 | $0.00 |
| 2023 | 1995 | OSS - On Site Septic | $20.50 | $20.50 | $0.00 | $0.00 | $41.00 | $0.00 |
| 2023 | 1995 | WAT - Clean Water District | $12.00 | $12.00 | $0.00 | $0.00 | $24.00 | $0.00 |
| 2023 | 1995 | FP ADMIN - FP ADMIN | $0.50 | $0.00 | $0.00 | $0.00 | $0.50 | $0.00 |
| 2023 | 1995 | TOTAL: | $175.13 | $174.49 | $0.00 | $0.00 | $349.62 | $0.00 |
|
| 2023 | 1995 | $175.13 | $174.49 | $0.00 | $0.00 | $349.62 | $0.00 |
Statement Details |
| 2022 | 1998 | STATE - STATE LEVY (SCHOOL) | $130.71 | $130.71 | $0.00 | $0.00 | $261.42 | $0.00 |
| 2022 | 1998 | COUNTY - COUNTY LEVIES (CE, DD, VET, MH) | $58.25 | $58.23 | $0.00 | $0.00 | $116.48 | $0.00 |
| 2022 | 1998 | CONSERVE - CONSERVATION FUTURES | $1.75 | $1.74 | $0.00 | $0.00 | $3.49 | $0.00 |
| 2022 | 1998 | COROADS - COUNTY ROADS (ROADS, DIV TO CE) | $47.34 | $47.33 | $0.00 | $0.00 | $94.67 | $0.00 |
| 2022 | 1998 | PORTPT - PORT DISTRICT | $24.93 | $24.93 | $0.00 | $0.00 | $49.86 | $0.00 |
| 2022 | 1998 | PUD1 - PUD #1 | $3.90 | $3.89 | $0.00 | $0.00 | $7.79 | $0.00 |
| 2022 | 1998 | LIB1 - LIBRARY DIST #1 | $18.32 | $18.31 | $0.00 | $0.00 | $36.63 | $0.00 |
| 2022 | 1998 | HD2 - HOSP DIST #2 | $3.40 | $3.40 | $0.00 | $0.00 | $6.80 | $0.00 |
| 2022 | 1998 | SD323 - SCHOOL DIST #323 | $79.88 | $79.87 | $0.00 | $0.00 | $159.75 | $0.00 |
| 2022 | 1998 | FD8 - FIRE DISTRICT #8 | $61.16 | $61.16 | $0.00 | $0.00 | $122.32 | $0.00 |
| 2022 | 1998 | EMS8 - FIRE DIST #8 EMS | $21.64 | $21.64 | $0.00 | $0.00 | $43.28 | $0.00 |
| 2022 | 1998 | CEM3 - CEMETERY DIST #3 | $1.83 | $1.82 | $0.00 | $0.00 | $3.65 | $0.00 |
| 2022 | 1998 | FP - DNR Forest Fire Protection Assmt | $8.50 | $8.50 | $0.00 | $0.00 | $17.00 | $0.00 |
| 2022 | 1998 | FPLCA - DNR Landowner Contingency Assmt | $3.00 | $3.00 | $0.00 | $0.00 | $6.00 | $0.00 |
| 2022 | 1998 | JCCD - JC Conservation District | $2.60 | $2.60 | $0.00 | $0.00 | $5.20 | $0.00 |
| 2022 | 1998 | NWA - Noxious Weed Assessment | $2.30 | $2.30 | $0.00 | $0.00 | $4.60 | $0.00 |
| 2022 | 1998 | OSS - On Site Septic | $19.50 | $19.50 | $0.00 | $0.00 | $39.00 | $0.00 |
| 2022 | 1998 | WAT - Clean Water District | $11.50 | $11.50 | $0.00 | $0.00 | $23.00 | $0.00 |
| 2022 | 1998 | FP ADMIN - FP ADMIN | $0.50 | $0.00 | $0.00 | $0.00 | $0.50 | $0.00 |
| 2022 | 1998 | TOTAL: | $501.01 | $500.43 | $0.00 | $0.00 | $1001.44 | $0.00 |
|
| 2022 | 1998 | $501.01 | $500.43 | $0.00 | $0.00 | $1001.44 | $0.00 |
Values
| (+) Improvement Homesite Value: | + | $31,250 | |
| (+) Improvement Non-Homesite Value: | + | $0 | |
| (+) Land Homesite Value: | + | $105,568 | |
| (+) Land Non-Homesite Value: | + | $0 | |
| (+) Curr Use (HS): | + | $0 | $0 |
| (+) Curr Use (NHS): | + | $0 | $0 |
| | | -------------------------- | |
| (=) Market Value: | = | $136,818 | |
| (–) Productivity Loss: | – | $0 | |
| | | -------------------------- | |
| (=) Subtotal: | = | $136,818 | |
| (+) Senior Appraised Value: | + | $107,592 | |
| (+) Non-Senior Appraised Value: | + | $0 | |
| | | -------------------------- | |
| (=) Total Appraised Value: | = | $107,592 | |
| (–) Senior Exemption Loss: | – | $64,555 | |
| (–) Exemption Loss: | – | $0 | |
| | | -------------------------- | |
| (=) Taxable Value: | = | $43,037 | |
Taxing Jurisdiction
| Owner: | MIKE RESSLER | | |
| % Ownership: | 100.0000000000% | | |
| Total Value: | N/A | | |
| Tax Area: | 0781 - 1-323F8E8H2C3L1 |
| CE | COUNTY CURRENT EXPENSE | N/A | N/A | N/A | N/A | | |
| CNTYDD | DEVELOPMENTAL DISABILITIES | N/A | N/A | N/A | N/A | | |
| CNTYVET | VETERANS RELIEF | N/A | N/A | N/A | N/A | | |
| MENTAL | MENTAL HEALTH | N/A | N/A | N/A | N/A | | |
| ROADS | COUNTY ROADS | N/A | N/A | N/A | N/A | | |
| ROADSCU | COUNTY ROADS TO CUR EXP | N/A | N/A | N/A | N/A | | |
| HOSP2CASH | HOSP DIST #2 GENERAL | N/A | N/A | N/A | N/A | | |
| SCH323BOND | SCHOOL DIST #323 BOND | N/A | N/A | N/A | N/A | | |
| SCH323CP | SCHOOL DIST #323 CAP PROJ | N/A | N/A | N/A | N/A | | |
| SCH323MO | SCHOOL DIST #323 EP & O | N/A | N/A | N/A | N/A | | |
| CEM3 | CEMETERY DIST #3 GENERAL | N/A | N/A | N/A | N/A | | |
| CONSERVE | CONSERVATION FUTURES | N/A | N/A | N/A | N/A | | |
| EMS8 | FIRE DIST #8 EMS | N/A | N/A | N/A | N/A | | |
| FD8 | FIRE DIST #8 GENERAL | N/A | N/A | N/A | N/A | | |
| LIB1 | LIBRARY DIST #1 GENERAL | N/A | N/A | N/A | N/A | | |
| PORTPT | PORT OF PT GENERAL | N/A | N/A | N/A | N/A | | |
| PORTPTIDD | PORT OF PT IDD 2019 | N/A | N/A | N/A | N/A | | |
| PUD1 | PUD #1 GENERAL | N/A | N/A | N/A | N/A | | |
| STATE | STATE SCHOOL PART 1 | N/A | N/A | N/A | N/A | | |
| STATE2 | STATE SCHOOL PART 2 | N/A | N/A | N/A | N/A | | |
| | Total Tax Rate: | N/A | | | | | |
| | | | | Taxes w/Current Exemptions: | N/A | | |
| | | | | Taxes w/o Exemptions: | N/A | | |
Improvement / Building
| Improvement #1: | Residential Bldg | State Code: | 19 | 880.0 sqft | Value: | $31,250 |
| Bathrooms (#): | 1 (FULL) | Exterior Wall: | PL/T1 | | Fireplace: | WD ST-FAIR | Floor Construction: | FRAME | | Foundation: | PO&BL | Heating/Cooling: | WD/NO | | Interior Finish: | FIN | Roof Cover: | METAL |
|
| | Type | Description | Class CD | Sub Class CD | Year Built | Area |
| | MA | Main Area | 1- | C1S | 2011 | 880.0 |
| | CLOFT | Cabin Loft | 1 | C1S | 2011 | 100.0 |
| | CCARPTN | Cabin Carport W/O Floor | 1 | * | 2011 | 216.0 |
| | SHED | Shed (Table Not Dep) | 2 | * | 2011 | 128.0 |
Sketch
Property Image
Land
| 1 | 2670-1374S | | 1.0000 | 43560.00 | 0.00 | 0.00 | 1.00 | $103,500 | $0 |
| 2 | 1576A | | 0.3100 | 13503.60 | 0.00 | 0.00 | 0.00 | $2,068 | $0 |
Roll Value History
| 2025 | N/A | N/A | N/A | N/A | N/A |
| 2024 | $29,948 | $100,978 | $0 | $130,926 | $43,037 |
| 2023 | $28,646 | $91,073 | $0 | $119,719 | $43,037 |
| 2022 | $26,042 | $81,550 | $0 | $107,592 | $43,037 |
| 2021 | $22,966 | $72,645 | $0 | $95,611 | $95,611 |
Deed and Sales History
| 1 | 08/28/2008 | SWD | Statutory Warranty Deed | COBB, RALPH ET AL | RESSLER, MIKE | 0 | 0 | $80,000.00 | 111856 | 0 |
| 2 | 04/28/1995 | MH | Mobile Home | COBB, RALPH D | COBB, RALPH D/JAMIE LYNN | 0 | 0 | $0.00 | 76805 | 0 |
Payout Agreement
| No payout information available.. |