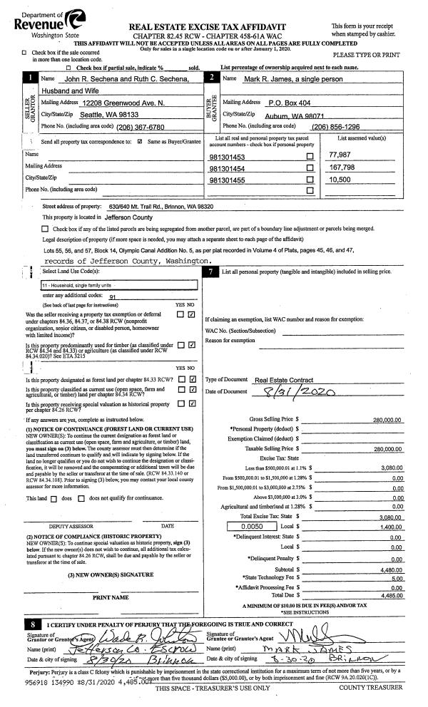
Property
Account |
| Property ID: | 12084 | Abbreviated Legal Description: | S33 T30 R2W TAX 30 LESS CO RD R/W |
| Parcel # / Geo ID: | 002331025 | Agent Code: | |
| Type: | Real | | |
| Tax Area: | 0781 - 1-323F8E8H2C3L1 | Land Use Code | 11 |
| Open Space: | N | DFL | N |
| Historic Property: | N | Remodel Property: | N |
| Multi-Family Redevelopment: | N | | |
| Township: | 30N | Section: | 33 |
| Range: | 2W |
Location |
| Address: | 365 OLD SCHOOLHOUSE RD SEQUIM, WA 98382 | Mapsco: | 123/001 |
| Neighborhood: | S33 T30N R2W | Map ID: | |
| Neighborhood CD: | 2675 |
Owner |
| Name: | TIMOTHY P HICKEY | Owner ID: | 18083 |
| Mailing Address: | GAIL DENBY HICKEY SUSAN HOFFERT 365 OLD SCHOOLHOUSE RD GARDINER, WA 98382-8711 | % Ownership: | 100.0000000000% |
| | | Exemptions: | |
Pay Tax Due
There is currently No Amount Due on this property.
Taxes and Assessment Details
Property Tax Information as of
10/23/2025
Click on "Statement Details" to expand or collapse a tax statement.
* Please enter a valid date ** Please enter a valid date *
Statement Details |
| 2025 | 2013 | STATE - STATE LEVY (SCHOOL) | $953.87 | $953.86 | $0.00 | $0.00 | $1907.73 | $0.00 |
| 2025 | 2013 | COUNTY - COUNTY LEVIES (CE, DD, VET, MH) | $375.10 | $375.09 | $0.00 | $0.00 | $750.19 | $0.00 |
| 2025 | 2013 | CONSERVE - CONSERVATION FUTURES | $11.25 | $11.25 | $0.00 | $0.00 | $22.50 | $0.00 |
| 2025 | 2013 | COROADS - COUNTY ROADS (ROADS, DIV TO CE) | $300.52 | $300.51 | $0.00 | $0.00 | $601.03 | $0.00 |
| 2025 | 2013 | PORTPT - PORT DISTRICT | $153.07 | $153.05 | $0.00 | $0.00 | $306.12 | $0.00 |
| 2025 | 2013 | PUD1 - PUD #1 | $24.55 | $24.54 | $0.00 | $0.00 | $49.09 | $0.00 |
| 2025 | 2013 | LIB1 - LIBRARY DIST #1 | $116.27 | $116.26 | $0.00 | $0.00 | $232.53 | $0.00 |
| 2025 | 2013 | HD2 - HOSP DIST #2 | $21.89 | $21.88 | $0.00 | $0.00 | $43.77 | $0.00 |
| 2025 | 2013 | SD323 - SCHOOL DIST #323 | $516.57 | $516.56 | $0.00 | $0.00 | $1033.13 | $0.00 |
| 2025 | 2013 | FD8 - FIRE DISTRICT #8 | $442.62 | $442.61 | $0.00 | $0.00 | $885.23 | $0.00 |
| 2025 | 2013 | EMS8 - FIRE DIST #8 EMS | $139.94 | $139.93 | $0.00 | $0.00 | $279.87 | $0.00 |
| 2025 | 2013 | CEM3 - CEMETERY DIST #3 | $10.54 | $10.54 | $0.00 | $0.00 | $21.08 | $0.00 |
| 2025 | 2013 | FP - DNR Forest Fire Protection Assmt | $8.50 | $8.50 | $0.00 | $0.00 | $17.00 | $0.00 |
| 2025 | 2013 | FPLCA - DNR Landowner Contingency Assmt | $3.00 | $3.00 | $0.00 | $0.00 | $6.00 | $0.00 |
| 2025 | 2013 | JCCD - JC Conservation District | $2.75 | $2.75 | $0.00 | $0.00 | $5.50 | $0.00 |
| 2025 | 2013 | NWA - Noxious Weed Assessment | $2.75 | $2.75 | $0.00 | $0.00 | $5.50 | $0.00 |
| 2025 | 2013 | OSS - On Site Septic | $21.50 | $21.50 | $0.00 | $0.00 | $43.00 | $0.00 |
| 2025 | 2013 | WAT - Clean Water District | $13.00 | $13.00 | $0.00 | $0.00 | $26.00 | $0.00 |
| 2025 | 2013 | FP ADMIN - FP ADMIN | $0.50 | $0.00 | $0.00 | $0.00 | $0.50 | $0.00 |
| 2025 | 2013 | TOTAL: | $3118.19 | $3117.58 | $0.00 | $0.00 | $6235.77 | $0.00 |
|
| 2025 | 2013 | $3118.19 | $3117.58 | $0.00 | $0.00 | $6235.77 | $0.00 |
Statement Details |
| 2024 | 2020 | STATE - STATE LEVY (SCHOOL) | $873.70 | $873.69 | $0.00 | $0.00 | $1747.39 | $0.00 |
| 2024 | 2020 | COUNTY - COUNTY LEVIES (CE, DD, VET, MH) | $373.87 | $373.85 | $0.00 | $0.00 | $747.72 | $0.00 |
| 2024 | 2020 | CONSERVE - CONSERVATION FUTURES | $11.21 | $11.21 | $0.00 | $0.00 | $22.42 | $0.00 |
| 2024 | 2020 | COROADS - COUNTY ROADS (ROADS, DIV TO CE) | $300.84 | $300.83 | $0.00 | $0.00 | $601.67 | $0.00 |
| 2024 | 2020 | PORTPT - PORT DISTRICT | $154.43 | $154.42 | $0.00 | $0.00 | $308.85 | $0.00 |
| 2024 | 2020 | PUD1 - PUD #1 | $24.56 | $24.55 | $0.00 | $0.00 | $49.11 | $0.00 |
| 2024 | 2020 | LIB1 - LIBRARY DIST #1 | $116.39 | $116.39 | $0.00 | $0.00 | $232.78 | $0.00 |
| 2024 | 2020 | HD2 - HOSP DIST #2 | $21.82 | $21.81 | $0.00 | $0.00 | $43.63 | $0.00 |
| 2024 | 2020 | SD323 - SCHOOL DIST #323 | $491.47 | $491.47 | $0.00 | $0.00 | $982.94 | $0.00 |
| 2024 | 2020 | FD8 - FIRE DISTRICT #8 | $422.96 | $422.95 | $0.00 | $0.00 | $845.91 | $0.00 |
| 2024 | 2020 | EMS8 - FIRE DIST #8 EMS | $133.76 | $133.75 | $0.00 | $0.00 | $267.51 | $0.00 |
| 2024 | 2020 | CEM3 - CEMETERY DIST #3 | $10.75 | $10.75 | $0.00 | $0.00 | $21.50 | $0.00 |
| 2024 | 2020 | FP - DNR Forest Fire Protection Assmt | $8.50 | $8.50 | $0.00 | $0.00 | $17.00 | $0.00 |
| 2024 | 2020 | FPLCA - DNR Landowner Contingency Assmt | $3.00 | $3.00 | $0.00 | $0.00 | $6.00 | $0.00 |
| 2024 | 2020 | JCCD - JC Conservation District | $2.75 | $2.75 | $0.00 | $0.00 | $5.50 | $0.00 |
| 2024 | 2020 | NWA - Noxious Weed Assessment | $2.75 | $2.75 | $0.00 | $0.00 | $5.50 | $0.00 |
| 2024 | 2020 | OSS - On Site Septic | $21.00 | $21.00 | $0.00 | $0.00 | $42.00 | $0.00 |
| 2024 | 2020 | WAT - Clean Water District | $12.50 | $12.50 | $0.00 | $0.00 | $25.00 | $0.00 |
| 2024 | 2020 | FP ADMIN - FP ADMIN | $0.50 | $0.00 | $0.00 | $0.00 | $0.50 | $0.00 |
| 2024 | 2020 | TOTAL: | $2986.76 | $2986.17 | $0.00 | $0.00 | $5972.93 | $0.00 |
|
| 2024 | 2020 | $2986.76 | $2986.17 | $0.00 | $0.00 | $5972.93 | $0.00 |
Statement Details |
| 2023 | 2022 | STATE - STATE LEVY (SCHOOL) | $803.56 | $803.55 | $0.00 | $0.00 | $1607.11 | $0.00 |
| 2023 | 2022 | COUNTY - COUNTY LEVIES (CE, DD, VET, MH) | $350.65 | $350.64 | $0.00 | $0.00 | $701.29 | $0.00 |
| 2023 | 2022 | CONSERVE - CONSERVATION FUTURES | $10.52 | $10.51 | $0.00 | $0.00 | $21.03 | $0.00 |
| 2023 | 2022 | COROADS - COUNTY ROADS (ROADS, DIV TO CE) | $283.70 | $283.69 | $0.00 | $0.00 | $567.39 | $0.00 |
| 2023 | 2022 | PORTPT - PORT DISTRICT | $147.72 | $147.70 | $0.00 | $0.00 | $295.42 | $0.00 |
| 2023 | 2022 | PUD1 - PUD #1 | $23.25 | $23.24 | $0.00 | $0.00 | $46.49 | $0.00 |
| 2023 | 2022 | LIB1 - LIBRARY DIST #1 | $109.76 | $109.76 | $0.00 | $0.00 | $219.52 | $0.00 |
| 2023 | 2022 | HD2 - HOSP DIST #2 | $20.46 | $20.46 | $0.00 | $0.00 | $40.92 | $0.00 |
| 2023 | 2022 | SD323 - SCHOOL DIST #323 | $463.53 | $463.52 | $0.00 | $0.00 | $927.05 | $0.00 |
| 2023 | 2022 | FD8 - FIRE DISTRICT #8 | $386.35 | $386.35 | $0.00 | $0.00 | $772.70 | $0.00 |
| 2023 | 2022 | EMS8 - FIRE DIST #8 EMS | $126.33 | $126.33 | $0.00 | $0.00 | $252.66 | $0.00 |
| 2023 | 2022 | CEM3 - CEMETERY DIST #3 | $10.99 | $10.99 | $0.00 | $0.00 | $21.98 | $0.00 |
| 2023 | 2022 | FP - DNR Forest Fire Protection Assmt | $8.50 | $8.50 | $0.00 | $0.00 | $17.00 | $0.00 |
| 2023 | 2022 | FPLCA - DNR Landowner Contingency Assmt | $3.00 | $3.00 | $0.00 | $0.00 | $6.00 | $0.00 |
| 2023 | 2022 | JCCD - JC Conservation District | $2.75 | $2.75 | $0.00 | $0.00 | $5.50 | $0.00 |
| 2023 | 2022 | NWA - Noxious Weed Assessment | $2.75 | $2.75 | $0.00 | $0.00 | $5.50 | $0.00 |
| 2023 | 2022 | OSS - On Site Septic | $20.50 | $20.50 | $0.00 | $0.00 | $41.00 | $0.00 |
| 2023 | 2022 | WAT - Clean Water District | $12.00 | $12.00 | $0.00 | $0.00 | $24.00 | $0.00 |
| 2023 | 2022 | FP ADMIN - FP ADMIN | $0.50 | $0.00 | $0.00 | $0.00 | $0.50 | $0.00 |
| 2023 | 2022 | TOTAL: | $2786.82 | $2786.24 | $0.00 | $0.00 | $5573.06 | $0.00 |
|
| 2023 | 2022 | $2786.82 | $2786.24 | $0.00 | $0.00 | $5573.06 | $0.00 |
Statement Details |
| 2022 | 2025 | STATE - STATE LEVY (SCHOOL) | $794.68 | $794.68 | $0.00 | $0.00 | $1589.36 | $0.00 |
| 2022 | 2025 | COUNTY - COUNTY LEVIES (CE, DD, VET, MH) | $354.08 | $354.07 | $0.00 | $0.00 | $708.15 | $0.00 |
| 2022 | 2025 | CONSERVE - CONSERVATION FUTURES | $10.62 | $10.61 | $0.00 | $0.00 | $21.23 | $0.00 |
| 2022 | 2025 | COROADS - COUNTY ROADS (ROADS, DIV TO CE) | $287.77 | $287.77 | $0.00 | $0.00 | $575.54 | $0.00 |
| 2022 | 2025 | PORTPT - PORT DISTRICT | $151.58 | $151.58 | $0.00 | $0.00 | $303.16 | $0.00 |
| 2022 | 2025 | PUD1 - PUD #1 | $23.68 | $23.68 | $0.00 | $0.00 | $47.36 | $0.00 |
| 2022 | 2025 | LIB1 - LIBRARY DIST #1 | $111.34 | $111.33 | $0.00 | $0.00 | $222.67 | $0.00 |
| 2022 | 2025 | HD2 - HOSP DIST #2 | $20.68 | $20.66 | $0.00 | $0.00 | $41.34 | $0.00 |
| 2022 | 2025 | SD323 - SCHOOL DIST #323 | $485.62 | $485.60 | $0.00 | $0.00 | $971.22 | $0.00 |
| 2022 | 2025 | FD8 - FIRE DISTRICT #8 | $371.83 | $371.83 | $0.00 | $0.00 | $743.66 | $0.00 |
| 2022 | 2025 | EMS8 - FIRE DIST #8 EMS | $131.56 | $131.56 | $0.00 | $0.00 | $263.12 | $0.00 |
| 2022 | 2025 | CEM3 - CEMETERY DIST #3 | $11.11 | $11.10 | $0.00 | $0.00 | $22.21 | $0.00 |
| 2022 | 2025 | FP - DNR Forest Fire Protection Assmt | $8.50 | $8.50 | $0.00 | $0.00 | $17.00 | $0.00 |
| 2022 | 2025 | FPLCA - DNR Landowner Contingency Assmt | $3.00 | $3.00 | $0.00 | $0.00 | $6.00 | $0.00 |
| 2022 | 2025 | JCCD - JC Conservation District | $2.75 | $2.75 | $0.00 | $0.00 | $5.50 | $0.00 |
| 2022 | 2025 | NWA - Noxious Weed Assessment | $2.75 | $2.75 | $0.00 | $0.00 | $5.50 | $0.00 |
| 2022 | 2025 | OSS - On Site Septic | $19.50 | $19.50 | $0.00 | $0.00 | $39.00 | $0.00 |
| 2022 | 2025 | WAT - Clean Water District | $11.50 | $11.50 | $0.00 | $0.00 | $23.00 | $0.00 |
| 2022 | 2025 | FP ADMIN - FP ADMIN | $0.50 | $0.00 | $0.00 | $0.00 | $0.50 | $0.00 |
| 2022 | 2025 | TOTAL: | $2803.05 | $2802.47 | $0.00 | $0.00 | $5605.52 | $0.00 |
|
| 2022 | 2025 | $2803.05 | $2802.47 | $0.00 | $0.00 | $5605.52 | $0.00 |
Values
| (+) Improvement Homesite Value: | + | $0 | |
| (+) Improvement Non-Homesite Value: | + | $603,144 | |
| (+) Land Homesite Value: | + | $0 | |
| (+) Land Non-Homesite Value: | + | $227,413 | |
| (+) Curr Use (HS): | + | $0 | $0 |
| (+) Curr Use (NHS): | + | $0 | $0 |
| | | -------------------------- | |
| (=) Market Value: | = | $830,557 | |
| (–) Productivity Loss: | – | $0 | |
| | | -------------------------- | |
| (=) Subtotal: | = | $830,557 | |
| (+) Senior Appraised Value: | + | $0 | |
| (+) Non-Senior Appraised Value: | + | $830,557 | |
| | | -------------------------- | |
| (=) Total Appraised Value: | = | $830,557 | |
| (–) Senior Exemption Loss: | – | $0 | |
| (–) Exemption Loss: | – | $0 | |
| | | -------------------------- | |
| (=) Taxable Value: | = | $830,557 | |
Taxing Jurisdiction
| Owner: | TIMOTHY P HICKEY | | |
| % Ownership: | 100.0000000000% | | |
| Total Value: | N/A | | |
| Tax Area: | 0781 - 1-323F8E8H2C3L1 |
| CE | COUNTY CURRENT EXPENSE | N/A | N/A | N/A | N/A | | |
| CNTYDD | DEVELOPMENTAL DISABILITIES | N/A | N/A | N/A | N/A | | |
| CNTYVET | VETERANS RELIEF | N/A | N/A | N/A | N/A | | |
| MENTAL | MENTAL HEALTH | N/A | N/A | N/A | N/A | | |
| ROADS | COUNTY ROADS | N/A | N/A | N/A | N/A | | |
| ROADSCU | COUNTY ROADS TO CUR EXP | N/A | N/A | N/A | N/A | | |
| HOSP2CASH | HOSP DIST #2 GENERAL | N/A | N/A | N/A | N/A | | |
| SCH323BOND | SCHOOL DIST #323 BOND | N/A | N/A | N/A | N/A | | |
| SCH323CP | SCHOOL DIST #323 CAP PROJ | N/A | N/A | N/A | N/A | | |
| SCH323MO | SCHOOL DIST #323 EP & O | N/A | N/A | N/A | N/A | | |
| CEM3 | CEMETERY DIST #3 GENERAL | N/A | N/A | N/A | N/A | | |
| CONSERVE | CONSERVATION FUTURES | N/A | N/A | N/A | N/A | | |
| EMS8 | FIRE DIST #8 EMS | N/A | N/A | N/A | N/A | | |
| FD8 | FIRE DIST #8 GENERAL | N/A | N/A | N/A | N/A | | |
| LIB1 | LIBRARY DIST #1 GENERAL | N/A | N/A | N/A | N/A | | |
| PORTPT | PORT OF PT GENERAL | N/A | N/A | N/A | N/A | | |
| PORTPTIDD | PORT OF PT IDD 2019 | N/A | N/A | N/A | N/A | | |
| PUD1 | PUD #1 GENERAL | N/A | N/A | N/A | N/A | | |
| STATE | STATE SCHOOL PART 1 | N/A | N/A | N/A | N/A | | |
| STATE2 | STATE SCHOOL PART 2 | N/A | N/A | N/A | N/A | | |
| | Total Tax Rate: | N/A | | | | | |
| | | | | Taxes w/Current Exemptions: | N/A | | |
| | | | | Taxes w/o Exemptions: | N/A | | |
Improvement / Building
| Improvement #1: | Residential Bldg | State Code: | 11 | 2094.0 sqft | Value: | $603,144 |
| Bathrooms (#): | 2 (FULL) | Bedrooms (#): | 2 | | Exterior Wall: | SI/ST | Fireplace: | SIN 1-GOOD | | Floor Construction: | FRAME | Foundation: | CONPR | | Heating/Cooling: | HTWTR | Roof Cover: | COMP |
|
| | Type | Description | Class CD | Sub Class CD | Year Built | Area |
| | MA | Main Area | 3+ | 1S | 1997 | 2094.0 |
| | HWPOR | House Wood Porch | 3 | * | 1997 | 1010.0 |
| | HDECK | House Deck | 3 | * | 1997 | 520.0 |
| | GDET | Detached Garage | 3 | 1S | 1997 | 1008.0 |
| | CARPTN | Carport W/O Floor | 3 | * | 1997 | 720.0 |
| | BARN | Barn (Table Not Dep) | 4 | * | 1997 | 3312.0 |
| | ADDN-D | Addition (Table Depreciated) | 3 | * | 1997 | 624.0 |
| | SHED | Shed (Table Not Dep) | 3 | * | 1997 | 160.0 |
Sketch
Property Image
Land
| 1 | 2675-1343S | | 1.0000 | 43560.00 | 0.00 | 0.00 | 1.00 | $161,000 | $0 |
| 2 | 2675-1545A | | 3.8500 | 167706.00 | 0.00 | 0.00 | 0.00 | $66,413 | $0 |
Roll Value History
| 2025 | N/A | N/A | N/A | N/A | N/A |
| 2024 | $578,013 | $217,525 | $0 | $795,538 | $795,538 |
| 2023 | $552,882 | $202,388 | $0 | $755,270 | $755,270 |
| 2022 | $502,620 | $180,050 | $0 | $682,670 | $682,670 |
| 2021 | $416,249 | $165,025 | $0 | $581,274 | $581,274 |
Deed and Sales History
| 1 | 10/28/2003 | SWD | Statutory Warranty Deed | NOBLE FIR ENTERPRISES | HICKEY, TIMOTHY P/GAIL DENBY- | 0 | 0 | $259,000.00 | 98725 | 0 |
| 2 | 11/26/2001 | SWD | Statutory Warranty Deed | JACOBSEN, WALTER H | JACOBSEN, WALTER INVESTMENTS, | 0 | 0 | $0.00 | 93588 | 0 |
| 3 | 11/03/2000 | SWD | Statutory Warranty Deed | ROBERTSON, CHARLES J & VI | JACOBSEN, WALTER | 0 | 0 | $219,000.00 | 91002 | 0 |
| 4 | 09/10/1993 | SWD | Statutory Warranty Deed | KING, PETER P/MARILYN R | ROBERTSON, CHARLES J/VICKY L | 0 | 0 | $82,000.00 | 72206 | 0 |
Payout Agreement
| No payout information available.. |