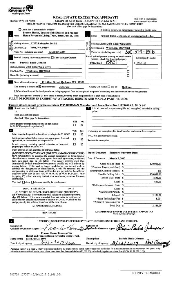
Property
Account |
| Property ID: | 12119 | Abbreviated Legal Description: | S33 T30 R2W TAX 54 |
| Parcel # / Geo ID: | 002332020 | Agent Code: | |
| Type: | Real | | |
| Tax Area: | 0781 - 1-323F8E8H2C3L1 | Land Use Code | 11 |
| Open Space: | N | DFL | N |
| Historic Property: | N | Remodel Property: | N |
| Multi-Family Redevelopment: | N | | |
| Township: | 30N | Section: | 33 |
| Range: | 2W |
Location |
| Address: | 196 OLD GARDINER RD SEQUIM, WA 98382 | Mapsco: | 123/023 |
| Neighborhood: | S33 T30N R2W | Map ID: | |
| Neighborhood CD: | 2675 |
Owner |
| Name: | KYLE J MERRITT | Owner ID: | 107461 |
| Mailing Address: | 196 OLD GARDINER RD SEQUIM, WA 98382-8741 | % Ownership: | 100.0000000000% |
| | | Exemptions: | |
Pay Tax Due
Select the appropriate checkbox next to the year to be paid. Multiple years may be selected.
*Convenience Fee not included
Taxes and Assessment Details
Property Tax Information as of
10/23/2025
Click on "Statement Details" to expand or collapse a tax statement.
* Please enter a valid date ** Please enter a valid date *
Statement Details |
| 2025 | 2046 | STATE - STATE LEVY (SCHOOL) | $622.50 | $622.48 | $0.00 | $0.00 | $622.50 | $622.48 |
| 2025 | 2046 | COUNTY - COUNTY LEVIES (CE, DD, VET, MH) | $244.80 | $244.78 | $0.00 | $0.00 | $244.80 | $244.78 |
| 2025 | 2046 | CONSERVE - CONSERVATION FUTURES | $7.34 | $7.34 | $0.00 | $0.00 | $7.34 | $7.34 |
| 2025 | 2046 | COROADS - COUNTY ROADS (ROADS, DIV TO CE) | $196.12 | $196.11 | $0.00 | $0.00 | $196.12 | $196.11 |
| 2025 | 2046 | PORTPT - PORT DISTRICT | $99.90 | $99.88 | $0.00 | $0.00 | $99.90 | $99.88 |
| 2025 | 2046 | PUD1 - PUD #1 | $16.02 | $16.02 | $0.00 | $0.00 | $16.02 | $16.02 |
| 2025 | 2046 | LIB1 - LIBRARY DIST #1 | $75.88 | $75.87 | $0.00 | $0.00 | $75.88 | $75.87 |
| 2025 | 2046 | HD2 - HOSP DIST #2 | $14.28 | $14.28 | $0.00 | $0.00 | $14.28 | $14.28 |
| 2025 | 2046 | SD323 - SCHOOL DIST #323 | $337.12 | $337.10 | $0.00 | $0.00 | $337.12 | $337.10 |
| 2025 | 2046 | FD8 - FIRE DISTRICT #8 | $288.85 | $288.85 | $0.00 | $0.00 | $288.85 | $288.85 |
| 2025 | 2046 | EMS8 - FIRE DIST #8 EMS | $91.32 | $91.32 | $0.00 | $0.00 | $91.32 | $91.32 |
| 2025 | 2046 | CEM3 - CEMETERY DIST #3 | $6.88 | $6.88 | $0.00 | $0.00 | $6.88 | $6.88 |
| 2025 | 2046 | FP - DNR Forest Fire Protection Assmt | $8.50 | $8.50 | $0.00 | $0.00 | $8.50 | $8.50 |
| 2025 | 2046 | FPLCA - DNR Landowner Contingency Assmt | $3.00 | $3.00 | $0.00 | $0.00 | $3.00 | $3.00 |
| 2025 | 2046 | JCCD - JC Conservation District | $2.75 | $2.75 | $0.00 | $0.00 | $2.75 | $2.75 |
| 2025 | 2046 | NWA - Noxious Weed Assessment | $2.75 | $2.75 | $0.00 | $0.00 | $2.75 | $2.75 |
| 2025 | 2046 | OSS - On Site Septic | $21.50 | $21.50 | $0.00 | $0.00 | $21.50 | $21.50 |
| 2025 | 2046 | WAT - Clean Water District | $13.00 | $13.00 | $0.00 | $0.00 | $13.00 | $13.00 |
| 2025 | 2046 | FP ADMIN - FP ADMIN | $0.50 | $0.00 | $0.00 | $0.00 | $0.50 | $0.00 |
| 2025 | 2046 | TOTAL: | $2053.01 | $2052.41 | $0.00 | $0.00 | $2053.01 | $2052.41 |
|
| 2025 | 2046 | $2053.01 | $2052.41 | $0.00 | $0.00 | $2053.01 | $2052.41 |
Statement Details |
| 2024 | 2053 | STATE - STATE LEVY (SCHOOL) | $565.24 | $565.24 | $0.00 | $0.00 | $1130.48 | $0.00 |
| 2024 | 2053 | COUNTY - COUNTY LEVIES (CE, DD, VET, MH) | $241.89 | $241.86 | $0.00 | $0.00 | $483.75 | $0.00 |
| 2024 | 2053 | CONSERVE - CONSERVATION FUTURES | $7.26 | $7.25 | $0.00 | $0.00 | $14.51 | $0.00 |
| 2024 | 2053 | COROADS - COUNTY ROADS (ROADS, DIV TO CE) | $194.64 | $194.62 | $0.00 | $0.00 | $389.26 | $0.00 |
| 2024 | 2053 | PORTPT - PORT DISTRICT | $99.91 | $99.90 | $0.00 | $0.00 | $199.81 | $0.00 |
| 2024 | 2053 | PUD1 - PUD #1 | $15.89 | $15.88 | $0.00 | $0.00 | $31.77 | $0.00 |
| 2024 | 2053 | LIB1 - LIBRARY DIST #1 | $75.30 | $75.30 | $0.00 | $0.00 | $150.60 | $0.00 |
| 2024 | 2053 | HD2 - HOSP DIST #2 | $14.12 | $14.11 | $0.00 | $0.00 | $28.23 | $0.00 |
| 2024 | 2053 | SD323 - SCHOOL DIST #323 | $317.96 | $317.95 | $0.00 | $0.00 | $635.91 | $0.00 |
| 2024 | 2053 | FD8 - FIRE DISTRICT #8 | $273.64 | $273.63 | $0.00 | $0.00 | $547.27 | $0.00 |
| 2024 | 2053 | EMS8 - FIRE DIST #8 EMS | $86.53 | $86.53 | $0.00 | $0.00 | $173.06 | $0.00 |
| 2024 | 2053 | CEM3 - CEMETERY DIST #3 | $6.96 | $6.95 | $0.00 | $0.00 | $13.91 | $0.00 |
| 2024 | 2053 | FP - DNR Forest Fire Protection Assmt | $8.50 | $8.50 | $0.00 | $0.00 | $17.00 | $0.00 |
| 2024 | 2053 | FPLCA - DNR Landowner Contingency Assmt | $3.00 | $3.00 | $0.00 | $0.00 | $6.00 | $0.00 |
| 2024 | 2053 | JCCD - JC Conservation District | $2.75 | $2.75 | $0.00 | $0.00 | $5.50 | $0.00 |
| 2024 | 2053 | NWA - Noxious Weed Assessment | $2.75 | $2.75 | $0.00 | $0.00 | $5.50 | $0.00 |
| 2024 | 2053 | OSS - On Site Septic | $21.00 | $21.00 | $0.00 | $0.00 | $42.00 | $0.00 |
| 2024 | 2053 | WAT - Clean Water District | $12.50 | $12.50 | $0.00 | $0.00 | $25.00 | $0.00 |
| 2024 | 2053 | FP ADMIN - FP ADMIN | $0.50 | $0.00 | $0.00 | $0.00 | $0.50 | $0.00 |
| 2024 | 2053 | TOTAL: | $1950.34 | $1949.72 | $0.00 | $0.00 | $3900.06 | $0.00 |
|
| 2024 | 2053 | $1950.34 | $1949.72 | $0.00 | $0.00 | $3900.06 | $0.00 |
Statement Details |
| 2023 | 2055 | STATE - STATE LEVY (SCHOOL) | $502.83 | $502.82 | $0.00 | $0.00 | $1005.65 | $0.00 |
| 2023 | 2055 | COUNTY - COUNTY LEVIES (CE, DD, VET, MH) | $219.43 | $219.40 | $0.00 | $0.00 | $438.83 | $0.00 |
| 2023 | 2055 | CONSERVE - CONSERVATION FUTURES | $6.58 | $6.58 | $0.00 | $0.00 | $13.16 | $0.00 |
| 2023 | 2055 | COROADS - COUNTY ROADS (ROADS, DIV TO CE) | $177.53 | $177.51 | $0.00 | $0.00 | $355.04 | $0.00 |
| 2023 | 2055 | PORTPT - PORT DISTRICT | $92.44 | $92.43 | $0.00 | $0.00 | $184.87 | $0.00 |
| 2023 | 2055 | PUD1 - PUD #1 | $14.55 | $14.54 | $0.00 | $0.00 | $29.09 | $0.00 |
| 2023 | 2055 | LIB1 - LIBRARY DIST #1 | $68.69 | $68.68 | $0.00 | $0.00 | $137.37 | $0.00 |
| 2023 | 2055 | HD2 - HOSP DIST #2 | $12.80 | $12.80 | $0.00 | $0.00 | $25.60 | $0.00 |
| 2023 | 2055 | SD323 - SCHOOL DIST #323 | $290.05 | $290.05 | $0.00 | $0.00 | $580.10 | $0.00 |
| 2023 | 2055 | FD8 - FIRE DISTRICT #8 | $241.76 | $241.76 | $0.00 | $0.00 | $483.52 | $0.00 |
| 2023 | 2055 | EMS8 - FIRE DIST #8 EMS | $79.05 | $79.05 | $0.00 | $0.00 | $158.10 | $0.00 |
| 2023 | 2055 | CEM3 - CEMETERY DIST #3 | $6.88 | $6.88 | $0.00 | $0.00 | $13.76 | $0.00 |
| 2023 | 2055 | FP - DNR Forest Fire Protection Assmt | $8.50 | $8.50 | $0.00 | $0.00 | $17.00 | $0.00 |
| 2023 | 2055 | FPLCA - DNR Landowner Contingency Assmt | $3.00 | $3.00 | $0.00 | $0.00 | $6.00 | $0.00 |
| 2023 | 2055 | JCCD - JC Conservation District | $2.75 | $2.75 | $0.00 | $0.00 | $5.50 | $0.00 |
| 2023 | 2055 | NWA - Noxious Weed Assessment | $2.75 | $2.75 | $0.00 | $0.00 | $5.50 | $0.00 |
| 2023 | 2055 | OSS - On Site Septic | $20.50 | $20.50 | $0.00 | $0.00 | $41.00 | $0.00 |
| 2023 | 2055 | WAT - Clean Water District | $12.00 | $12.00 | $0.00 | $0.00 | $24.00 | $0.00 |
| 2023 | 2055 | FP ADMIN - FP ADMIN | $0.50 | $0.00 | $0.00 | $0.00 | $0.50 | $0.00 |
| 2023 | 2055 | TOTAL: | $1762.59 | $1762.00 | $0.00 | $0.00 | $3524.59 | $0.00 |
|
| 2023 | 2055 | $1762.59 | $1762.00 | $0.00 | $0.00 | $3524.59 | $0.00 |
Statement Details |
| 2022 | 2059 | STATE - STATE LEVY (SCHOOL) | $377.60 | $377.58 | $0.00 | $0.00 | $755.18 | $0.00 |
| 2022 | 2059 | COUNTY - COUNTY LEVIES (CE, DD, VET, MH) | $168.25 | $168.22 | $0.00 | $0.00 | $336.47 | $0.00 |
| 2022 | 2059 | CONSERVE - CONSERVATION FUTURES | $5.05 | $5.04 | $0.00 | $0.00 | $10.09 | $0.00 |
| 2022 | 2059 | COROADS - COUNTY ROADS (ROADS, DIV TO CE) | $136.74 | $136.73 | $0.00 | $0.00 | $273.47 | $0.00 |
| 2022 | 2059 | PORTPT - PORT DISTRICT | $72.03 | $72.02 | $0.00 | $0.00 | $144.05 | $0.00 |
| 2022 | 2059 | PUD1 - PUD #1 | $11.25 | $11.25 | $0.00 | $0.00 | $22.50 | $0.00 |
| 2022 | 2059 | LIB1 - LIBRARY DIST #1 | $52.90 | $52.90 | $0.00 | $0.00 | $105.80 | $0.00 |
| 2022 | 2059 | HD2 - HOSP DIST #2 | $9.83 | $9.81 | $0.00 | $0.00 | $19.64 | $0.00 |
| 2022 | 2059 | SD323 - SCHOOL DIST #323 | $230.74 | $230.73 | $0.00 | $0.00 | $461.47 | $0.00 |
| 2022 | 2059 | FD8 - FIRE DISTRICT #8 | $176.68 | $176.67 | $0.00 | $0.00 | $353.35 | $0.00 |
| 2022 | 2059 | EMS8 - FIRE DIST #8 EMS | $62.51 | $62.51 | $0.00 | $0.00 | $125.02 | $0.00 |
| 2022 | 2059 | CEM3 - CEMETERY DIST #3 | $5.28 | $5.27 | $0.00 | $0.00 | $10.55 | $0.00 |
| 2022 | 2059 | FP - DNR Forest Fire Protection Assmt | $8.50 | $8.50 | $0.00 | $0.00 | $17.00 | $0.00 |
| 2022 | 2059 | FPLCA - DNR Landowner Contingency Assmt | $3.00 | $3.00 | $0.00 | $0.00 | $6.00 | $0.00 |
| 2022 | 2059 | JCCD - JC Conservation District | $2.75 | $2.75 | $0.00 | $0.00 | $5.50 | $0.00 |
| 2022 | 2059 | NWA - Noxious Weed Assessment | $2.75 | $2.75 | $0.00 | $0.00 | $5.50 | $0.00 |
| 2022 | 2059 | OSS - On Site Septic | $19.50 | $19.50 | $0.00 | $0.00 | $39.00 | $0.00 |
| 2022 | 2059 | WAT - Clean Water District | $11.50 | $11.50 | $0.00 | $0.00 | $23.00 | $0.00 |
| 2022 | 2059 | FP ADMIN - FP ADMIN | $0.50 | $0.00 | $0.00 | $0.00 | $0.50 | $0.00 |
| 2022 | 2059 | TOTAL: | $1357.36 | $1356.73 | $0.00 | $0.00 | $2714.09 | $0.00 |
|
| 2022 | 2059 | $1357.36 | $1356.73 | $0.00 | $0.00 | $2714.09 | $0.00 |
Values
| (+) Improvement Homesite Value: | + | $356,496 | |
| (+) Improvement Non-Homesite Value: | + | $0 | |
| (+) Land Homesite Value: | + | $185,596 | |
| (+) Land Non-Homesite Value: | + | $0 | |
| (+) Curr Use (HS): | + | $0 | $0 |
| (+) Curr Use (NHS): | + | $0 | $0 |
| | | -------------------------- | |
| (=) Market Value: | = | $542,092 | |
| (–) Productivity Loss: | – | $0 | |
| | | -------------------------- | |
| (=) Subtotal: | = | $542,092 | |
| (+) Senior Appraised Value: | + | $0 | |
| (+) Non-Senior Appraised Value: | + | $542,092 | |
| | | -------------------------- | |
| (=) Total Appraised Value: | = | $542,092 | |
| (–) Senior Exemption Loss: | – | $0 | |
| (–) Exemption Loss: | – | $0 | |
| | | -------------------------- | |
| (=) Taxable Value: | = | $542,092 | |
Taxing Jurisdiction
| Owner: | KYLE J MERRITT | | |
| % Ownership: | 100.0000000000% | | |
| Total Value: | N/A | | |
| Tax Area: | 0781 - 1-323F8E8H2C3L1 |
| CE | COUNTY CURRENT EXPENSE | N/A | N/A | N/A | N/A | | |
| CNTYDD | DEVELOPMENTAL DISABILITIES | N/A | N/A | N/A | N/A | | |
| CNTYVET | VETERANS RELIEF | N/A | N/A | N/A | N/A | | |
| MENTAL | MENTAL HEALTH | N/A | N/A | N/A | N/A | | |
| ROADS | COUNTY ROADS | N/A | N/A | N/A | N/A | | |
| ROADSCU | COUNTY ROADS TO CUR EXP | N/A | N/A | N/A | N/A | | |
| HOSP2CASH | HOSP DIST #2 GENERAL | N/A | N/A | N/A | N/A | | |
| SCH323BOND | SCHOOL DIST #323 BOND | N/A | N/A | N/A | N/A | | |
| SCH323CP | SCHOOL DIST #323 CAP PROJ | N/A | N/A | N/A | N/A | | |
| SCH323MO | SCHOOL DIST #323 EP & O | N/A | N/A | N/A | N/A | | |
| CEM3 | CEMETERY DIST #3 GENERAL | N/A | N/A | N/A | N/A | | |
| CONSERVE | CONSERVATION FUTURES | N/A | N/A | N/A | N/A | | |
| EMS8 | FIRE DIST #8 EMS | N/A | N/A | N/A | N/A | | |
| FD8 | FIRE DIST #8 GENERAL | N/A | N/A | N/A | N/A | | |
| LIB1 | LIBRARY DIST #1 GENERAL | N/A | N/A | N/A | N/A | | |
| PORTPT | PORT OF PT GENERAL | N/A | N/A | N/A | N/A | | |
| PORTPTIDD | PORT OF PT IDD 2019 | N/A | N/A | N/A | N/A | | |
| PUD1 | PUD #1 GENERAL | N/A | N/A | N/A | N/A | | |
| STATE | STATE SCHOOL PART 1 | N/A | N/A | N/A | N/A | | |
| STATE2 | STATE SCHOOL PART 2 | N/A | N/A | N/A | N/A | | |
| | Total Tax Rate: | N/A | | | | | |
| | | | | Taxes w/Current Exemptions: | N/A | | |
| | | | | Taxes w/o Exemptions: | N/A | | |
Improvement / Building
| Improvement #1: | Manufactured Home | State Code: | 11 | 1680.0 sqft | Value: | $356,496 |
| Bathrooms (#): | 2 (FULL) | Bedrooms (#): | 3 | | Exterior Wall: | PL/T1 | Fireplace: | PROPS-GOOD | | Foundation: | CONBL | Heating/Cooling: | F/A | | Roof Cover: | COMP |   |   |
|
| | Type | Description | Class CD | Sub Class CD | Year Built | Area |
| | MA | Main Area | 4+ | MFH | 2000 | 1680.0 |
| | CARPTF | Carport W/Floor | 3 | * | 2000 | 672.0 |
| | GARAG | Garage (Table Not Dep) | 3 | * | 2000 | 960.0 |
| | MDECK | MH Deck | 4 | * | 2018 | 212.0 |
| | ASPHD | Asphalt Drive | 3 | * | 2018 | 1000.0 |
| | OTHER | Other | 3 | * | 2000 | 128.0 |
| | GARAG | Garage (Table Not Dep) | 3 | * | 2000 | 336.0 |
Sketch
Property Image
Land
| 1 | 2675-1372S | | 1.0000 | 43560.00 | 0.00 | 0.00 | 1.00 | $138,000 | $0 |
| 2 | 1572A | | 3.0100 | 131115.60 | 0.00 | 0.00 | 0.00 | $47,596 | $0 |
Roll Value History
| 2025 | N/A | N/A | N/A | N/A | N/A |
| 2024 | $341,642 | $177,527 | $0 | $519,169 | $519,169 |
| 2023 | $326,788 | $161,837 | $0 | $488,625 | $488,625 |
| 2022 | $297,080 | $130,100 | $0 | $427,180 | $427,180 |
| 2021 | $163,982 | $112,211 | $0 | $276,193 | $276,193 |
Deed and Sales History
| 1 | 08/03/2022 | SWD | Statutory Warranty Deed | RICARDO CRUZ | KYLE J MERRITT | | | $520,000.00 | 139613 | |
| 2 | 07/27/2017 | SWD | Statutory Warranty Deed | ANNE M KOEHL TRUSTEE | RICARDO CRUZ | | | $290,000.00 | 128294 | |
| 3 | 07/27/2017 | QCD | Quit Claim Deed | CORI LYNN CRUZ | RICARDO CRUZ | | | | 128295 | |
| 4 | 07/27/2017 | QCD | Quit Claim Deed | RICARDO CRUZ | RICARDO CRUZ | | | | 128295 | |
| 5 | 12/23/2009 | SWD | Statutory Warranty Deed | KOEHL TRUSTEE, ANNE M | KOEHL REVOCABLE TRUST, ANNE | 0 | 0 | $0.00 | 113836 | 0 |
| 6 | 11/21/2001 | SWD | Statutory Warranty Deed | LEWIS, ANNE M | LEWIS, ANNE M, TRUSTEE UNDER T | 0 | 0 | $0.00 | 93568 | 0 |
| 7 | 07/08/1999 | SWD | Statutory Warranty Deed | FANTONE FAMILY TRUST | LEWIS, ANNE M | 0 | 0 | $30,000.00 | 87382 | 0 |
| 8 | 05/04/1994 | QCD | Quit Claim Deed | FANTONE, MICHAEL A/ARLENE | FANTONE FAMILY TRUST | 0 | 0 | $0.00 | 74148 | 0 |
Payout Agreement
| No payout information available.. |