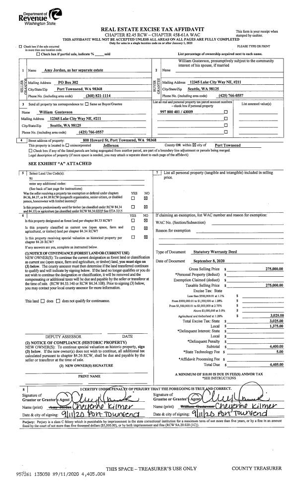
Property
Account |
| Property ID: | 12126 | Abbreviated Legal Description: | WILKERSON SHORT PLAT LOT 3 SUBJ/EASE |
| Parcel # / Geo ID: | 002332030 | Agent Code: | |
| Type: | Real | | |
| Tax Area: | 0781 - 1-323F8E8H2C3L1 | Land Use Code | 11 |
| Open Space: | N | DFL | N |
| Historic Property: | N | Remodel Property: | N |
| Multi-Family Redevelopment: | N | | |
| Township: | 30N | Section: | 33 |
| Range: | 2W |
Location |
| Address: | 199 OLD GARDINER RD SEQUIM, WA 98382 | Mapsco: | 139/038 |
| Neighborhood: | S33 T30N R2W | Map ID: | |
| Neighborhood CD: | 2675 |
Owner |
| Name: | PETER C ERICKSON | Owner ID: | 102345 |
| Mailing Address: | 199 OLD GARDINER RD SEQUIM, WA 98382-8741 | % Ownership: | 100.0000000000% |
| | | Exemptions: | |
Pay Tax Due
Select the appropriate checkbox next to the year to be paid. Multiple years may be selected.
*Convenience Fee not included
Taxes and Assessment Details
Property Tax Information as of
10/23/2025
Click on "Statement Details" to expand or collapse a tax statement.
* Please enter a valid date ** Please enter a valid date *
Statement Details |
| 2025 | 2053 | STATE - STATE LEVY (SCHOOL) | $394.22 | $394.22 | $0.00 | $0.00 | $394.22 | $394.22 |
| 2025 | 2053 | COUNTY - COUNTY LEVIES (CE, DD, VET, MH) | $155.04 | $155.01 | $0.00 | $0.00 | $155.04 | $155.01 |
| 2025 | 2053 | CONSERVE - CONSERVATION FUTURES | $4.65 | $4.65 | $0.00 | $0.00 | $4.65 | $4.65 |
| 2025 | 2053 | COROADS - COUNTY ROADS (ROADS, DIV TO CE) | $124.21 | $124.19 | $0.00 | $0.00 | $124.21 | $124.19 |
| 2025 | 2053 | PORTPT - PORT DISTRICT | $63.26 | $63.25 | $0.00 | $0.00 | $63.26 | $63.25 |
| 2025 | 2053 | PUD1 - PUD #1 | $10.15 | $10.14 | $0.00 | $0.00 | $10.15 | $10.14 |
| 2025 | 2053 | LIB1 - LIBRARY DIST #1 | $48.05 | $48.05 | $0.00 | $0.00 | $48.05 | $48.05 |
| 2025 | 2053 | HD2 - HOSP DIST #2 | $9.05 | $9.04 | $0.00 | $0.00 | $9.05 | $9.04 |
| 2025 | 2053 | SD323 - SCHOOL DIST #323 | $213.50 | $213.49 | $0.00 | $0.00 | $213.50 | $213.49 |
| 2025 | 2053 | FD8 - FIRE DISTRICT #8 | $182.93 | $182.93 | $0.00 | $0.00 | $182.93 | $182.93 |
| 2025 | 2053 | EMS8 - FIRE DIST #8 EMS | $57.84 | $57.83 | $0.00 | $0.00 | $57.84 | $57.83 |
| 2025 | 2053 | CEM3 - CEMETERY DIST #3 | $4.36 | $4.35 | $0.00 | $0.00 | $4.36 | $4.35 |
| 2025 | 2053 | FP - DNR Forest Fire Protection Assmt | $8.50 | $8.50 | $0.00 | $0.00 | $8.50 | $8.50 |
| 2025 | 2053 | FPLCA - DNR Landowner Contingency Assmt | $3.00 | $3.00 | $0.00 | $0.00 | $3.00 | $3.00 |
| 2025 | 2053 | JCCD - JC Conservation District | $2.60 | $2.60 | $0.00 | $0.00 | $2.60 | $2.60 |
| 2025 | 2053 | NWA - Noxious Weed Assessment | $2.30 | $2.30 | $0.00 | $0.00 | $2.30 | $2.30 |
| 2025 | 2053 | OSS - On Site Septic | $21.50 | $21.50 | $0.00 | $0.00 | $21.50 | $21.50 |
| 2025 | 2053 | WAT - Clean Water District | $13.00 | $13.00 | $0.00 | $0.00 | $13.00 | $13.00 |
| 2025 | 2053 | FP ADMIN - FP ADMIN | $0.50 | $0.00 | $0.00 | $0.00 | $0.50 | $0.00 |
| 2025 | 2053 | TOTAL: | $1318.66 | $1318.05 | $0.00 | $0.00 | $1318.66 | $1318.05 |
|
| 2025 | 2053 | $1318.66 | $1318.05 | $0.00 | $0.00 | $1318.66 | $1318.05 |
Statement Details |
| 2024 | 2060 | STATE - STATE LEVY (SCHOOL) | $357.44 | $357.42 | $0.00 | $0.00 | $714.86 | $0.00 |
| 2024 | 2060 | COUNTY - COUNTY LEVIES (CE, DD, VET, MH) | $152.97 | $152.93 | $0.00 | $0.00 | $305.90 | $0.00 |
| 2024 | 2060 | CONSERVE - CONSERVATION FUTURES | $4.59 | $4.58 | $0.00 | $0.00 | $9.17 | $0.00 |
| 2024 | 2060 | COROADS - COUNTY ROADS (ROADS, DIV TO CE) | $123.08 | $123.06 | $0.00 | $0.00 | $246.14 | $0.00 |
| 2024 | 2060 | PORTPT - PORT DISTRICT | $63.18 | $63.17 | $0.00 | $0.00 | $126.35 | $0.00 |
| 2024 | 2060 | PUD1 - PUD #1 | $10.05 | $10.04 | $0.00 | $0.00 | $20.09 | $0.00 |
| 2024 | 2060 | LIB1 - LIBRARY DIST #1 | $47.62 | $47.61 | $0.00 | $0.00 | $95.23 | $0.00 |
| 2024 | 2060 | HD2 - HOSP DIST #2 | $8.93 | $8.92 | $0.00 | $0.00 | $17.85 | $0.00 |
| 2024 | 2060 | SD323 - SCHOOL DIST #323 | $201.07 | $201.05 | $0.00 | $0.00 | $402.12 | $0.00 |
| 2024 | 2060 | FD8 - FIRE DISTRICT #8 | $173.03 | $173.03 | $0.00 | $0.00 | $346.06 | $0.00 |
| 2024 | 2060 | EMS8 - FIRE DIST #8 EMS | $54.72 | $54.72 | $0.00 | $0.00 | $109.44 | $0.00 |
| 2024 | 2060 | CEM3 - CEMETERY DIST #3 | $4.40 | $4.40 | $0.00 | $0.00 | $8.80 | $0.00 |
| 2024 | 2060 | FP - DNR Forest Fire Protection Assmt | $8.50 | $8.50 | $0.00 | $0.00 | $17.00 | $0.00 |
| 2024 | 2060 | FPLCA - DNR Landowner Contingency Assmt | $3.00 | $3.00 | $0.00 | $0.00 | $6.00 | $0.00 |
| 2024 | 2060 | JCCD - JC Conservation District | $2.60 | $2.60 | $0.00 | $0.00 | $5.20 | $0.00 |
| 2024 | 2060 | NWA - Noxious Weed Assessment | $2.30 | $2.30 | $0.00 | $0.00 | $4.60 | $0.00 |
| 2024 | 2060 | OSS - On Site Septic | $21.00 | $21.00 | $0.00 | $0.00 | $42.00 | $0.00 |
| 2024 | 2060 | WAT - Clean Water District | $12.50 | $12.50 | $0.00 | $0.00 | $25.00 | $0.00 |
| 2024 | 2060 | FP ADMIN - FP ADMIN | $0.50 | $0.00 | $0.00 | $0.00 | $0.50 | $0.00 |
| 2024 | 2060 | TOTAL: | $1251.48 | $1250.83 | $0.00 | $0.00 | $2502.31 | $0.00 |
|
| 2024 | 2060 | $1251.48 | $1250.83 | $0.00 | $0.00 | $2502.31 | $0.00 |
Statement Details |
| 2023 | 2062 | STATE - STATE LEVY (SCHOOL) | $319.13 | $319.13 | $0.00 | $0.00 | $638.26 | $0.00 |
| 2023 | 2062 | COUNTY - COUNTY LEVIES (CE, DD, VET, MH) | $139.26 | $139.25 | $0.00 | $0.00 | $278.51 | $0.00 |
| 2023 | 2062 | CONSERVE - CONSERVATION FUTURES | $4.18 | $4.17 | $0.00 | $0.00 | $8.35 | $0.00 |
| 2023 | 2062 | COROADS - COUNTY ROADS (ROADS, DIV TO CE) | $112.68 | $112.66 | $0.00 | $0.00 | $225.34 | $0.00 |
| 2023 | 2062 | PORTPT - PORT DISTRICT | $58.67 | $58.66 | $0.00 | $0.00 | $117.33 | $0.00 |
| 2023 | 2062 | PUD1 - PUD #1 | $9.23 | $9.23 | $0.00 | $0.00 | $18.46 | $0.00 |
| 2023 | 2062 | LIB1 - LIBRARY DIST #1 | $43.59 | $43.59 | $0.00 | $0.00 | $87.18 | $0.00 |
| 2023 | 2062 | HD2 - HOSP DIST #2 | $8.13 | $8.12 | $0.00 | $0.00 | $16.25 | $0.00 |
| 2023 | 2062 | SD323 - SCHOOL DIST #323 | $184.09 | $184.08 | $0.00 | $0.00 | $368.17 | $0.00 |
| 2023 | 2062 | FD8 - FIRE DISTRICT #8 | $153.44 | $153.44 | $0.00 | $0.00 | $306.88 | $0.00 |
| 2023 | 2062 | EMS8 - FIRE DIST #8 EMS | $50.17 | $50.17 | $0.00 | $0.00 | $100.34 | $0.00 |
| 2023 | 2062 | CEM3 - CEMETERY DIST #3 | $4.37 | $4.36 | $0.00 | $0.00 | $8.73 | $0.00 |
| 2023 | 2062 | FP - DNR Forest Fire Protection Assmt | $8.50 | $8.50 | $0.00 | $0.00 | $17.00 | $0.00 |
| 2023 | 2062 | FPLCA - DNR Landowner Contingency Assmt | $3.00 | $3.00 | $0.00 | $0.00 | $6.00 | $0.00 |
| 2023 | 2062 | JCCD - JC Conservation District | $2.60 | $2.60 | $0.00 | $0.00 | $5.20 | $0.00 |
| 2023 | 2062 | NWA - Noxious Weed Assessment | $2.30 | $2.30 | $0.00 | $0.00 | $4.60 | $0.00 |
| 2023 | 2062 | OSS - On Site Septic | $20.50 | $20.50 | $0.00 | $0.00 | $41.00 | $0.00 |
| 2023 | 2062 | WAT - Clean Water District | $12.00 | $12.00 | $0.00 | $0.00 | $24.00 | $0.00 |
| 2023 | 2062 | FP ADMIN - FP ADMIN | $0.50 | $0.00 | $0.00 | $0.00 | $0.50 | $0.00 |
| 2023 | 2062 | TOTAL: | $1136.34 | $1135.76 | $0.00 | $0.00 | $2272.10 | $0.00 |
|
| 2023 | 2062 | $1136.34 | $1135.76 | $0.00 | $0.00 | $2272.10 | $0.00 |
Statement Details |
| 2022 | 2066 | STATE - STATE LEVY (SCHOOL) | $311.66 | $311.66 | $0.00 | $0.00 | $623.32 | $0.00 |
| 2022 | 2066 | COUNTY - COUNTY LEVIES (CE, DD, VET, MH) | $138.87 | $138.86 | $0.00 | $0.00 | $277.73 | $0.00 |
| 2022 | 2066 | CONSERVE - CONSERVATION FUTURES | $4.17 | $4.16 | $0.00 | $0.00 | $8.33 | $0.00 |
| 2022 | 2066 | COROADS - COUNTY ROADS (ROADS, DIV TO CE) | $112.86 | $112.86 | $0.00 | $0.00 | $225.72 | $0.00 |
| 2022 | 2066 | PORTPT - PORT DISTRICT | $59.45 | $59.44 | $0.00 | $0.00 | $118.89 | $0.00 |
| 2022 | 2066 | PUD1 - PUD #1 | $9.29 | $9.28 | $0.00 | $0.00 | $18.57 | $0.00 |
| 2022 | 2066 | LIB1 - LIBRARY DIST #1 | $43.67 | $43.66 | $0.00 | $0.00 | $87.33 | $0.00 |
| 2022 | 2066 | HD2 - HOSP DIST #2 | $8.11 | $8.10 | $0.00 | $0.00 | $16.21 | $0.00 |
| 2022 | 2066 | SD323 - SCHOOL DIST #323 | $190.45 | $190.44 | $0.00 | $0.00 | $380.89 | $0.00 |
| 2022 | 2066 | FD8 - FIRE DISTRICT #8 | $145.83 | $145.82 | $0.00 | $0.00 | $291.65 | $0.00 |
| 2022 | 2066 | EMS8 - FIRE DIST #8 EMS | $51.60 | $51.59 | $0.00 | $0.00 | $103.19 | $0.00 |
| 2022 | 2066 | CEM3 - CEMETERY DIST #3 | $4.36 | $4.35 | $0.00 | $0.00 | $8.71 | $0.00 |
| 2022 | 2066 | FP - DNR Forest Fire Protection Assmt | $8.50 | $8.50 | $0.00 | $0.00 | $17.00 | $0.00 |
| 2022 | 2066 | FPLCA - DNR Landowner Contingency Assmt | $3.00 | $3.00 | $0.00 | $0.00 | $6.00 | $0.00 |
| 2022 | 2066 | JCCD - JC Conservation District | $2.60 | $2.60 | $0.00 | $0.00 | $5.20 | $0.00 |
| 2022 | 2066 | NWA - Noxious Weed Assessment | $2.30 | $2.30 | $0.00 | $0.00 | $4.60 | $0.00 |
| 2022 | 2066 | OSS - On Site Septic | $19.50 | $19.50 | $0.00 | $0.00 | $39.00 | $0.00 |
| 2022 | 2066 | WAT - Clean Water District | $11.50 | $11.50 | $0.00 | $0.00 | $23.00 | $0.00 |
| 2022 | 2066 | FP ADMIN - FP ADMIN | $0.50 | $0.00 | $0.00 | $0.00 | $0.50 | $0.00 |
| 2022 | 2066 | TOTAL: | $1128.22 | $1127.62 | $0.00 | $0.00 | $2255.84 | $0.00 |
|
| 2022 | 2066 | $1128.22 | $1127.62 | $0.00 | $0.00 | $2255.84 | $0.00 |
Values
| (+) Improvement Homesite Value: | + | $0 | |
| (+) Improvement Non-Homesite Value: | + | $205,344 | |
| (+) Land Homesite Value: | + | $0 | |
| (+) Land Non-Homesite Value: | + | $138,000 | |
| (+) Curr Use (HS): | + | $0 | $0 |
| (+) Curr Use (NHS): | + | $0 | $0 |
| | | -------------------------- | |
| (=) Market Value: | = | $343,344 | |
| (–) Productivity Loss: | – | $0 | |
| | | -------------------------- | |
| (=) Subtotal: | = | $343,344 | |
| (+) Senior Appraised Value: | + | $0 | |
| (+) Non-Senior Appraised Value: | + | $343,344 | |
| | | -------------------------- | |
| (=) Total Appraised Value: | = | $343,344 | |
| (–) Senior Exemption Loss: | – | $0 | |
| (–) Exemption Loss: | – | $0 | |
| | | -------------------------- | |
| (=) Taxable Value: | = | $343,344 | |
Taxing Jurisdiction
| Owner: | PETER C ERICKSON | | |
| % Ownership: | 100.0000000000% | | |
| Total Value: | N/A | | |
| Tax Area: | 0781 - 1-323F8E8H2C3L1 |
| CE | COUNTY CURRENT EXPENSE | N/A | N/A | N/A | N/A | | |
| CNTYDD | DEVELOPMENTAL DISABILITIES | N/A | N/A | N/A | N/A | | |
| CNTYVET | VETERANS RELIEF | N/A | N/A | N/A | N/A | | |
| MENTAL | MENTAL HEALTH | N/A | N/A | N/A | N/A | | |
| ROADS | COUNTY ROADS | N/A | N/A | N/A | N/A | | |
| ROADSCU | COUNTY ROADS TO CUR EXP | N/A | N/A | N/A | N/A | | |
| HOSP2CASH | HOSP DIST #2 GENERAL | N/A | N/A | N/A | N/A | | |
| SCH323BOND | SCHOOL DIST #323 BOND | N/A | N/A | N/A | N/A | | |
| SCH323CP | SCHOOL DIST #323 CAP PROJ | N/A | N/A | N/A | N/A | | |
| SCH323MO | SCHOOL DIST #323 EP & O | N/A | N/A | N/A | N/A | | |
| CEM3 | CEMETERY DIST #3 GENERAL | N/A | N/A | N/A | N/A | | |
| CONSERVE | CONSERVATION FUTURES | N/A | N/A | N/A | N/A | | |
| EMS8 | FIRE DIST #8 EMS | N/A | N/A | N/A | N/A | | |
| FD8 | FIRE DIST #8 GENERAL | N/A | N/A | N/A | N/A | | |
| LIB1 | LIBRARY DIST #1 GENERAL | N/A | N/A | N/A | N/A | | |
| PORTPT | PORT OF PT GENERAL | N/A | N/A | N/A | N/A | | |
| PORTPTIDD | PORT OF PT IDD 2019 | N/A | N/A | N/A | N/A | | |
| PUD1 | PUD #1 GENERAL | N/A | N/A | N/A | N/A | | |
| STATE | STATE SCHOOL PART 1 | N/A | N/A | N/A | N/A | | |
| STATE2 | STATE SCHOOL PART 2 | N/A | N/A | N/A | N/A | | |
| | Total Tax Rate: | N/A | | | | | |
| | | | | Taxes w/Current Exemptions: | N/A | | |
| | | | | Taxes w/o Exemptions: | N/A | | |
Improvement / Building
| Improvement #1: | Manufactured Home | State Code: | 11 | 1620.0 sqft | Value: | $205,344 |
| Bathrooms (#): | 2 (FULL) | Bedrooms (#): | 3 | | Exterior Wall: | PL/T1 | Foundation: | CONBL | | Heating/Cooling: | F/A | Roof Cover: | COMP |
|
| | Type | Description | Class CD | Sub Class CD | Year Built | Area |
| | MA | Main Area | 4 | MDBL | 2004 | 1620.0 |
| | MWPOR | MH Wood Porch | 4 | * | 2004 | 288.0 |
| | GARAG | Garage (Table Not Dep) | 2 | * | 2004 | 864.0 |
| | MDECK | MH Deck | 3 | * | 2004 | 99.0 |
| | CARPT | Carport (Table Not Dep) | 2 | * | 2004 | 288.0 |
Sketch
Property Image
Land
| 1 | 2675-1372S | | 1.0000 | 43560.00 | 0.00 | 0.00 | 1.00 | $138,000 | $0 |
Roll Value History
| 2025 | N/A | N/A | N/A | N/A | N/A |
| 2024 | $196,788 | $132,000 | $0 | $328,788 | $328,788 |
| 2023 | $188,232 | $120,750 | $0 | $308,982 | $308,982 |
| 2022 | $171,120 | $100,000 | $0 | $271,120 | $271,120 |
| 2021 | $141,714 | $86,250 | $0 | $227,964 | $227,964 |
Deed and Sales History
| 1 | 02/07/2020 | SWD | Statutory Warranty Deed | | | | | | 134180 | |
| 2 | 02/07/2020 | SWD | Statutory Warranty Deed | PETER C ERICKSON | PETER C ERICKSON | | | $240,000.00 | 133955 | |
| 3 | 11/25/2003 | SWD | Statutory Warranty Deed | WILKERSON, MARSHA R | ERICKSON, PETER C & ANNE C | 0 | 0 | $25,000.00 | 98937 | 0 |
Payout Agreement
| No payout information available.. |