Property
Account |
| Property ID: | 12161 | Abbreviated Legal Description: | S34 T30 R2W TAX 9 |
| Parcel # / Geo ID: | 002341010 | Agent Code: | |
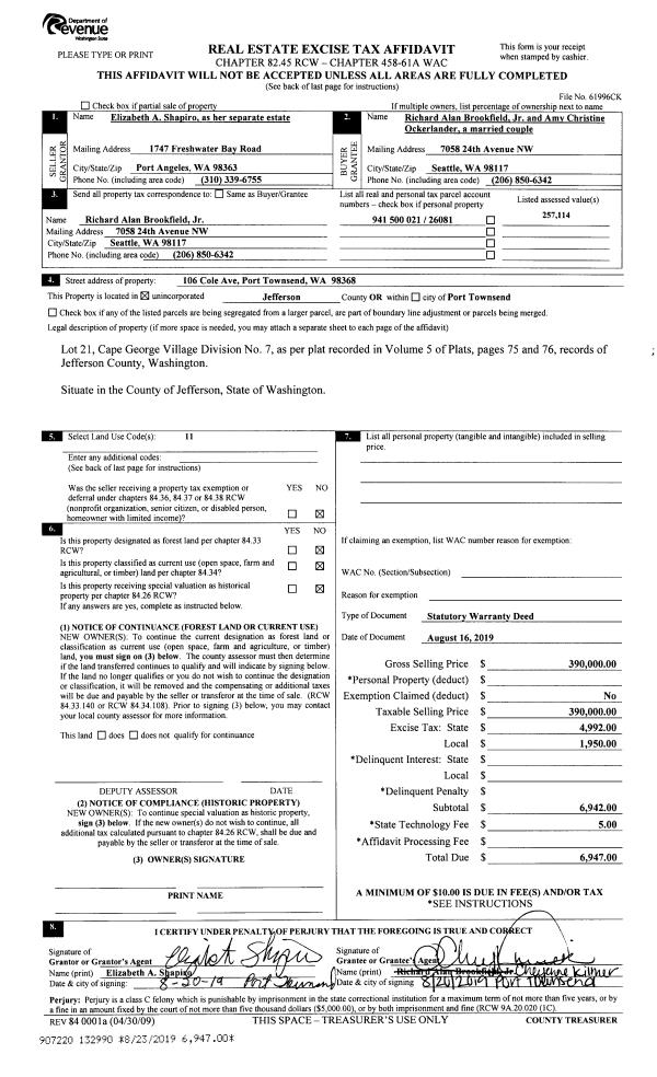
| Type: | Real | | |
| Tax Area: | 0781 - 1-323F8E8H2C3L1 | Land Use Code | 18 |
| Open Space: | N | DFL | N |
| Historic Property: | N | Remodel Property: | N |
| Multi-Family Redevelopment: | N | | |
| Township: | 30N | Section: | 34 |
| Range: | 2W |
Location |
| Address: | 289 BACHELOR RD SEQUIM, WA 98382 | Mapsco: | 124/019 |
| Neighborhood: | S34 T30 R2W | Map ID: | |
| Neighborhood CD: | 2680 |
Owner |
| Name: | JULIANNE C DEMARS | Owner ID: | 103454 |
| Mailing Address: | DAVID A SMITH 9707 117TH PL NE KIRKLAND, WA 98033-5190 | % Ownership: | 100.0000000000% |
| | | Exemptions: | |
Pay Tax Due
Select the appropriate checkbox next to the year to be paid. Multiple years may be selected.
*Convenience Fee not included
Taxes and Assessment Details
Property Tax Information as of
10/23/2025
Click on "Statement Details" to expand or collapse a tax statement.
* Please enter a valid date ** Please enter a valid date *
Statement Details |
| 2025 | 2088 | STATE - STATE LEVY (SCHOOL) | $430.23 | $430.23 | $0.00 | $0.00 | $430.23 | $430.23 |
| 2025 | 2088 | COUNTY - COUNTY LEVIES (CE, DD, VET, MH) | $169.20 | $169.17 | $0.00 | $0.00 | $169.20 | $169.17 |
| 2025 | 2088 | CONSERVE - CONSERVATION FUTURES | $5.08 | $5.07 | $0.00 | $0.00 | $5.08 | $5.07 |
| 2025 | 2088 | COROADS - COUNTY ROADS (ROADS, DIV TO CE) | $135.55 | $135.54 | $0.00 | $0.00 | $135.55 | $135.54 |
| 2025 | 2088 | PORTPT - PORT DISTRICT | $69.04 | $69.04 | $0.00 | $0.00 | $69.04 | $69.04 |
| 2025 | 2088 | PUD1 - PUD #1 | $11.07 | $11.07 | $0.00 | $0.00 | $11.07 | $11.07 |
| 2025 | 2088 | LIB1 - LIBRARY DIST #1 | $52.44 | $52.44 | $0.00 | $0.00 | $52.44 | $52.44 |
| 2025 | 2088 | HD2 - HOSP DIST #2 | $9.87 | $9.87 | $0.00 | $0.00 | $9.87 | $9.87 |
| 2025 | 2088 | SD323 - SCHOOL DIST #323 | $233.00 | $232.99 | $0.00 | $0.00 | $233.00 | $232.99 |
| 2025 | 2088 | FD8 - FIRE DISTRICT #8 | $199.64 | $199.64 | $0.00 | $0.00 | $199.64 | $199.64 |
| 2025 | 2088 | EMS8 - FIRE DIST #8 EMS | $63.12 | $63.11 | $0.00 | $0.00 | $63.12 | $63.11 |
| 2025 | 2088 | CEM3 - CEMETERY DIST #3 | $4.76 | $4.75 | $0.00 | $0.00 | $4.76 | $4.75 |
| 2025 | 2088 | FP - DNR Forest Fire Protection Assmt | $8.50 | $8.50 | $0.00 | $0.00 | $8.50 | $8.50 |
| 2025 | 2088 | FPLCA - DNR Landowner Contingency Assmt | $3.00 | $3.00 | $0.00 | $0.00 | $3.00 | $3.00 |
| 2025 | 2088 | JCCD - JC Conservation District | $2.75 | $2.75 | $0.00 | $0.00 | $2.75 | $2.75 |
| 2025 | 2088 | NWA - Noxious Weed Assessment | $2.75 | $2.75 | $0.00 | $0.00 | $2.75 | $2.75 |
| 2025 | 2088 | WAT - Clean Water District | $13.00 | $13.00 | $0.00 | $0.00 | $13.00 | $13.00 |
| 2025 | 2088 | FP ADMIN - FP ADMIN | $0.50 | $0.00 | $0.00 | $0.00 | $0.50 | $0.00 |
| 2025 | 2088 | TOTAL: | $1413.50 | $1412.92 | $0.00 | $0.00 | $1413.50 | $1412.92 |
|
| 2025 | 2088 | $1413.50 | $1412.92 | $0.00 | $0.00 | $1413.50 | $1412.92 |
Statement Details |
| 2024 | 2095 | STATE - STATE LEVY (SCHOOL) | $393.79 | $393.79 | $0.00 | $0.00 | $787.58 | $0.00 |
| 2024 | 2095 | COUNTY - COUNTY LEVIES (CE, DD, VET, MH) | $168.51 | $168.50 | $0.00 | $0.00 | $337.01 | $0.00 |
| 2024 | 2095 | CONSERVE - CONSERVATION FUTURES | $5.06 | $5.05 | $0.00 | $0.00 | $10.11 | $0.00 |
| 2024 | 2095 | COROADS - COUNTY ROADS (ROADS, DIV TO CE) | $135.60 | $135.58 | $0.00 | $0.00 | $271.18 | $0.00 |
| 2024 | 2095 | PORTPT - PORT DISTRICT | $69.61 | $69.59 | $0.00 | $0.00 | $139.20 | $0.00 |
| 2024 | 2095 | PUD1 - PUD #1 | $11.07 | $11.07 | $0.00 | $0.00 | $22.14 | $0.00 |
| 2024 | 2095 | LIB1 - LIBRARY DIST #1 | $52.46 | $52.46 | $0.00 | $0.00 | $104.92 | $0.00 |
| 2024 | 2095 | HD2 - HOSP DIST #2 | $9.83 | $9.83 | $0.00 | $0.00 | $19.66 | $0.00 |
| 2024 | 2095 | SD323 - SCHOOL DIST #323 | $221.52 | $221.51 | $0.00 | $0.00 | $443.03 | $0.00 |
| 2024 | 2095 | FD8 - FIRE DISTRICT #8 | $190.64 | $190.63 | $0.00 | $0.00 | $381.27 | $0.00 |
| 2024 | 2095 | EMS8 - FIRE DIST #8 EMS | $60.29 | $60.28 | $0.00 | $0.00 | $120.57 | $0.00 |
| 2024 | 2095 | CEM3 - CEMETERY DIST #3 | $4.85 | $4.84 | $0.00 | $0.00 | $9.69 | $0.00 |
| 2024 | 2095 | FP - DNR Forest Fire Protection Assmt | $8.50 | $8.50 | $0.00 | $0.00 | $17.00 | $0.00 |
| 2024 | 2095 | FPLCA - DNR Landowner Contingency Assmt | $3.00 | $3.00 | $0.00 | $0.00 | $6.00 | $0.00 |
| 2024 | 2095 | JCCD - JC Conservation District | $2.75 | $2.75 | $0.00 | $0.00 | $5.50 | $0.00 |
| 2024 | 2095 | NWA - Noxious Weed Assessment | $2.75 | $2.75 | $0.00 | $0.00 | $5.50 | $0.00 |
| 2024 | 2095 | WAT - Clean Water District | $12.50 | $12.50 | $0.00 | $0.00 | $25.00 | $0.00 |
| 2024 | 2095 | FP ADMIN - FP ADMIN | $0.50 | $0.00 | $0.00 | $0.00 | $0.50 | $0.00 |
| 2024 | 2095 | TOTAL: | $1353.23 | $1352.63 | $0.00 | $0.00 | $2705.86 | $0.00 |
|
| 2024 | 2095 | $1353.23 | $1352.63 | $0.00 | $0.00 | $2705.86 | $0.00 |
Statement Details |
| 2023 | 2097 | STATE - STATE LEVY (SCHOOL) | $361.65 | $361.63 | $0.00 | $0.00 | $723.28 | $0.00 |
| 2023 | 2097 | COUNTY - COUNTY LEVIES (CE, DD, VET, MH) | $157.82 | $157.79 | $0.00 | $0.00 | $315.61 | $0.00 |
| 2023 | 2097 | CONSERVE - CONSERVATION FUTURES | $4.73 | $4.73 | $0.00 | $0.00 | $9.46 | $0.00 |
| 2023 | 2097 | COROADS - COUNTY ROADS (ROADS, DIV TO CE) | $127.69 | $127.67 | $0.00 | $0.00 | $255.36 | $0.00 |
| 2023 | 2097 | PORTPT - PORT DISTRICT | $66.49 | $66.47 | $0.00 | $0.00 | $132.96 | $0.00 |
| 2023 | 2097 | PUD1 - PUD #1 | $10.46 | $10.46 | $0.00 | $0.00 | $20.92 | $0.00 |
| 2023 | 2097 | LIB1 - LIBRARY DIST #1 | $49.40 | $49.40 | $0.00 | $0.00 | $98.80 | $0.00 |
| 2023 | 2097 | HD2 - HOSP DIST #2 | $9.21 | $9.21 | $0.00 | $0.00 | $18.42 | $0.00 |
| 2023 | 2097 | SD323 - SCHOOL DIST #323 | $208.61 | $208.60 | $0.00 | $0.00 | $417.21 | $0.00 |
| 2023 | 2097 | FD8 - FIRE DISTRICT #8 | $173.88 | $173.88 | $0.00 | $0.00 | $347.76 | $0.00 |
| 2023 | 2097 | EMS8 - FIRE DIST #8 EMS | $56.86 | $56.85 | $0.00 | $0.00 | $113.71 | $0.00 |
| 2023 | 2097 | CEM3 - CEMETERY DIST #3 | $4.95 | $4.94 | $0.00 | $0.00 | $9.89 | $0.00 |
| 2023 | 2097 | FP - DNR Forest Fire Protection Assmt | $8.50 | $8.50 | $0.00 | $0.00 | $17.00 | $0.00 |
| 2023 | 2097 | FPLCA - DNR Landowner Contingency Assmt | $3.00 | $3.00 | $0.00 | $0.00 | $6.00 | $0.00 |
| 2023 | 2097 | JCCD - JC Conservation District | $2.75 | $2.75 | $0.00 | $0.00 | $5.50 | $0.00 |
| 2023 | 2097 | NWA - Noxious Weed Assessment | $2.75 | $2.75 | $0.00 | $0.00 | $5.50 | $0.00 |
| 2023 | 2097 | WAT - Clean Water District | $12.00 | $12.00 | $0.00 | $0.00 | $24.00 | $0.00 |
| 2023 | 2097 | FP ADMIN - FP ADMIN | $0.50 | $0.00 | $0.00 | $0.00 | $0.50 | $0.00 |
| 2023 | 2097 | TOTAL: | $1261.25 | $1260.63 | $0.00 | $0.00 | $2521.88 | $0.00 |
|
| 2023 | 2097 | $1261.25 | $1260.63 | $0.00 | $0.00 | $2521.88 | $0.00 |
Statement Details |
| 2022 | 2101 | STATE - STATE LEVY (SCHOOL) | $358.57 | $358.56 | $0.00 | $0.00 | $717.13 | $0.00 |
| 2022 | 2101 | COUNTY - COUNTY LEVIES (CE, DD, VET, MH) | $159.77 | $159.75 | $0.00 | $0.00 | $319.52 | $0.00 |
| 2022 | 2101 | CONSERVE - CONSERVATION FUTURES | $4.79 | $4.79 | $0.00 | $0.00 | $9.58 | $0.00 |
| 2022 | 2101 | COROADS - COUNTY ROADS (ROADS, DIV TO CE) | $129.85 | $129.84 | $0.00 | $0.00 | $259.69 | $0.00 |
| 2022 | 2101 | PORTPT - PORT DISTRICT | $68.40 | $68.38 | $0.00 | $0.00 | $136.78 | $0.00 |
| 2022 | 2101 | PUD1 - PUD #1 | $10.69 | $10.68 | $0.00 | $0.00 | $21.37 | $0.00 |
| 2022 | 2101 | LIB1 - LIBRARY DIST #1 | $50.24 | $50.23 | $0.00 | $0.00 | $100.47 | $0.00 |
| 2022 | 2101 | HD2 - HOSP DIST #2 | $9.33 | $9.32 | $0.00 | $0.00 | $18.65 | $0.00 |
| 2022 | 2101 | SD323 - SCHOOL DIST #323 | $219.11 | $219.11 | $0.00 | $0.00 | $438.22 | $0.00 |
| 2022 | 2101 | FD8 - FIRE DISTRICT #8 | $167.77 | $167.77 | $0.00 | $0.00 | $335.54 | $0.00 |
| 2022 | 2101 | EMS8 - FIRE DIST #8 EMS | $59.36 | $59.36 | $0.00 | $0.00 | $118.72 | $0.00 |
| 2022 | 2101 | CEM3 - CEMETERY DIST #3 | $5.01 | $5.01 | $0.00 | $0.00 | $10.02 | $0.00 |
| 2022 | 2101 | FP - DNR Forest Fire Protection Assmt | $8.50 | $8.50 | $0.00 | $0.00 | $17.00 | $0.00 |
| 2022 | 2101 | FPLCA - DNR Landowner Contingency Assmt | $3.00 | $3.00 | $0.00 | $0.00 | $6.00 | $0.00 |
| 2022 | 2101 | JCCD - JC Conservation District | $2.75 | $2.75 | $0.00 | $0.00 | $5.50 | $0.00 |
| 2022 | 2101 | NWA - Noxious Weed Assessment | $2.75 | $2.75 | $0.00 | $0.00 | $5.50 | $0.00 |
| 2022 | 2101 | WAT - Clean Water District | $11.50 | $11.50 | $0.00 | $0.00 | $23.00 | $0.00 |
| 2022 | 2101 | FP ADMIN - FP ADMIN | $0.50 | $0.00 | $0.00 | $0.00 | $0.50 | $0.00 |
| 2022 | 2101 | TOTAL: | $1271.89 | $1271.30 | $0.00 | $0.00 | $2543.19 | $0.00 |
|
| 2022 | 2101 | $1271.89 | $1271.30 | $0.00 | $0.00 | $2543.19 | $0.00 |
Values
| (+) Improvement Homesite Value: | + | $0 | |
| (+) Improvement Non-Homesite Value: | + | $0 | |
| (+) Land Homesite Value: | + | $0 | |
| (+) Land Non-Homesite Value: | + | $375,133 | |
| (+) Curr Use (HS): | + | $0 | $0 |
| (+) Curr Use (NHS): | + | $0 | $0 |
| | | -------------------------- | |
| (=) Market Value: | = | $375,133 | |
| (–) Productivity Loss: | – | $0 | |
| | | -------------------------- | |
| (=) Subtotal: | = | $375,133 | |
| (+) Senior Appraised Value: | + | $0 | |
| (+) Non-Senior Appraised Value: | + | $375,133 | |
| | | -------------------------- | |
| (=) Total Appraised Value: | = | $375,133 | |
| (–) Senior Exemption Loss: | – | $0 | |
| (–) Exemption Loss: | – | $0 | |
| | | -------------------------- | |
| (=) Taxable Value: | = | $375,133 | |
Taxing Jurisdiction
| Owner: | JULIANNE C DEMARS | | |
| % Ownership: | 100.0000000000% | | |
| Total Value: | N/A | | |
| Tax Area: | 0781 - 1-323F8E8H2C3L1 |
| CE | COUNTY CURRENT EXPENSE | N/A | N/A | N/A | N/A | | |
| CNTYDD | DEVELOPMENTAL DISABILITIES | N/A | N/A | N/A | N/A | | |
| CNTYVET | VETERANS RELIEF | N/A | N/A | N/A | N/A | | |
| MENTAL | MENTAL HEALTH | N/A | N/A | N/A | N/A | | |
| ROADS | COUNTY ROADS | N/A | N/A | N/A | N/A | | |
| ROADSCU | COUNTY ROADS TO CUR EXP | N/A | N/A | N/A | N/A | | |
| HOSP2CASH | HOSP DIST #2 GENERAL | N/A | N/A | N/A | N/A | | |
| SCH323BOND | SCHOOL DIST #323 BOND | N/A | N/A | N/A | N/A | | |
| SCH323CP | SCHOOL DIST #323 CAP PROJ | N/A | N/A | N/A | N/A | | |
| SCH323MO | SCHOOL DIST #323 EP & O | N/A | N/A | N/A | N/A | | |
| CEM3 | CEMETERY DIST #3 GENERAL | N/A | N/A | N/A | N/A | | |
| CONSERVE | CONSERVATION FUTURES | N/A | N/A | N/A | N/A | | |
| EMS8 | FIRE DIST #8 EMS | N/A | N/A | N/A | N/A | | |
| FD8 | FIRE DIST #8 GENERAL | N/A | N/A | N/A | N/A | | |
| LIB1 | LIBRARY DIST #1 GENERAL | N/A | N/A | N/A | N/A | | |
| PORTPT | PORT OF PT GENERAL | N/A | N/A | N/A | N/A | | |
| PORTPTIDD | PORT OF PT IDD 2019 | N/A | N/A | N/A | N/A | | |
| PUD1 | PUD #1 GENERAL | N/A | N/A | N/A | N/A | | |
| STATE | STATE SCHOOL PART 1 | N/A | N/A | N/A | N/A | | |
| STATE2 | STATE SCHOOL PART 2 | N/A | N/A | N/A | N/A | | |
| | Total Tax Rate: | N/A | | | | | |
| | | | | Taxes w/Current Exemptions: | N/A | | |
| | | | | Taxes w/o Exemptions: | N/A | | |
Improvement / Building
Sketch
| No sketches available for this property. |
Property Image
Land
| 1 | 2680-1545A | | 3.9900 | 173804.40 | 0.00 | 0.00 | 0.00 | $136,508 | $0 |
| 2 | 2680-1343S | | 1.0000 | 43560.00 | 0.00 | 0.00 | 1.00 | $238,625 | $0 |
Roll Value History
| 2025 | N/A | N/A | N/A | N/A | N/A |
| 2024 | $0 | $358,823 | $0 | $358,823 | $358,823 |
| 2023 | $0 | $340,413 | $0 | $340,413 | $340,413 |
| 2022 | $0 | $307,238 | $0 | $307,238 | $307,238 |
| 2021 | $0 | $262,276 | $0 | $262,276 | $262,276 |
Deed and Sales History
| 1 | 10/05/2020 | SWD | Statutory Warranty Deed | EDWIN O'DELL | JULIANNE C DEMARS | | | $299,000.00 | 135291 | |
| 2 | 12/17/2009 | QCD | Quit Claim Deed | EDWIN & ZOLA O'DELL REVOCABLE TRUST | EDWIN O'DELL | | | | 135290 | |
Payout Agreement
| No payout information available.. |