Property
Account |
| Property ID: | 12170 | Abbreviated Legal Description: | S34 T30 R2W TAX 26(E80'OF W240'), TL TAX E-2 |
| Parcel # / Geo ID: | 002341022 | Agent Code: | |
| Type: | Real | | |
| Tax Area: | 0781 - 1-323F8E8H2C3L1 | Land Use Code | 91 |
| Open Space: | N | DFL | N |
| Historic Property: | N | Remodel Property: | N |
| Multi-Family Redevelopment: | N | | |
| Township: | 30N | Section: | 34 |
| Range: | 2W |
Location |
| Address: | | Mapsco: | 124/037 |
| Neighborhood: | S34 T30 R2W | Map ID: | |
| Neighborhood CD: | 2680 |
Owner |
| Name: | JEFF & SUZAN NEILL | Owner ID: | 23345 |
| Mailing Address: | PO BOX 274 BRINNON, WA 98320-0274 | % Ownership: | 100.0000000000% |
| | | Exemptions: | |
Pay Tax Due
There is currently No Amount Due on this property.
Taxes and Assessment Details
Property Tax Information as of
10/23/2025
Click on "Statement Details" to expand or collapse a tax statement.
* Please enter a valid date ** Please enter a valid date *
Statement Details |
| 2025 | 2097 | STATE - STATE LEVY (SCHOOL) | $44.26 | $44.24 | $0.00 | $0.00 | $88.50 | $0.00 |
| 2025 | 2097 | COUNTY - COUNTY LEVIES (CE, DD, VET, MH) | $17.41 | $17.40 | $0.00 | $0.00 | $34.81 | $0.00 |
| 2025 | 2097 | CONSERVE - CONSERVATION FUTURES | $0.52 | $0.52 | $0.00 | $0.00 | $1.04 | $0.00 |
| 2025 | 2097 | COROADS - COUNTY ROADS (ROADS, DIV TO CE) | $13.95 | $13.93 | $0.00 | $0.00 | $27.88 | $0.00 |
| 2025 | 2097 | PORTPT - PORT DISTRICT | $7.10 | $7.10 | $0.00 | $0.00 | $14.20 | $0.00 |
| 2025 | 2097 | PUD1 - PUD #1 | $1.14 | $1.14 | $0.00 | $0.00 | $2.28 | $0.00 |
| 2025 | 2097 | LIB1 - LIBRARY DIST #1 | $5.40 | $5.39 | $0.00 | $0.00 | $10.79 | $0.00 |
| 2025 | 2097 | HD2 - HOSP DIST #2 | $1.02 | $1.01 | $0.00 | $0.00 | $2.03 | $0.00 |
| 2025 | 2097 | SD323 - SCHOOL DIST #323 | $23.97 | $23.96 | $0.00 | $0.00 | $47.93 | $0.00 |
| 2025 | 2097 | FD8 - FIRE DISTRICT #8 | $20.54 | $20.53 | $0.00 | $0.00 | $41.07 | $0.00 |
| 2025 | 2097 | EMS8 - FIRE DIST #8 EMS | $6.49 | $6.49 | $0.00 | $0.00 | $12.98 | $0.00 |
| 2025 | 2097 | CEM3 - CEMETERY DIST #3 | $0.49 | $0.49 | $0.00 | $0.00 | $0.98 | $0.00 |
| 2025 | 2097 | FPLCA - DNR Landowner Contingency Assmt | $3.00 | $3.00 | $0.00 | $0.00 | $6.00 | $0.00 |
| 2025 | 2097 | JCCD - JC Conservation District | $2.57 | $2.57 | $0.00 | $0.00 | $5.14 | $0.00 |
| 2025 | 2097 | NWA - Noxious Weed Assessment | $2.30 | $2.30 | $0.00 | $0.00 | $4.60 | $0.00 |
| 2025 | 2097 | WAT - Clean Water District | $13.00 | $13.00 | $0.00 | $0.00 | $26.00 | $0.00 |
| 2025 | 2097 | TOTAL: | $163.16 | $163.07 | $0.00 | $0.00 | $326.23 | $0.00 |
|
| 2025 | 2097 | $163.16 | $163.07 | $0.00 | $0.00 | $326.23 | $0.00 |
Statement Details |
| 2024 | 2104 | STATE - STATE LEVY (SCHOOL) | $40.76 | $40.75 | $0.00 | $0.00 | $81.51 | $0.00 |
| 2024 | 2104 | COUNTY - COUNTY LEVIES (CE, DD, VET, MH) | $17.44 | $17.44 | $0.00 | $0.00 | $34.88 | $0.00 |
| 2024 | 2104 | CONSERVE - CONSERVATION FUTURES | $0.53 | $0.52 | $0.00 | $0.00 | $1.05 | $0.00 |
| 2024 | 2104 | COROADS - COUNTY ROADS (ROADS, DIV TO CE) | $14.03 | $14.03 | $0.00 | $0.00 | $28.06 | $0.00 |
| 2024 | 2104 | PORTPT - PORT DISTRICT | $7.21 | $7.20 | $0.00 | $0.00 | $14.41 | $0.00 |
| 2024 | 2104 | PUD1 - PUD #1 | $1.15 | $1.14 | $0.00 | $0.00 | $2.29 | $0.00 |
| 2024 | 2104 | LIB1 - LIBRARY DIST #1 | $5.43 | $5.43 | $0.00 | $0.00 | $10.86 | $0.00 |
| 2024 | 2104 | HD2 - HOSP DIST #2 | $1.02 | $1.01 | $0.00 | $0.00 | $2.03 | $0.00 |
| 2024 | 2104 | SD323 - SCHOOL DIST #323 | $22.93 | $22.92 | $0.00 | $0.00 | $45.85 | $0.00 |
| 2024 | 2104 | FD8 - FIRE DISTRICT #8 | $19.73 | $19.73 | $0.00 | $0.00 | $39.46 | $0.00 |
| 2024 | 2104 | EMS8 - FIRE DIST #8 EMS | $6.24 | $6.24 | $0.00 | $0.00 | $12.48 | $0.00 |
| 2024 | 2104 | CEM3 - CEMETERY DIST #3 | $0.50 | $0.50 | $0.00 | $0.00 | $1.00 | $0.00 |
| 2024 | 2104 | FPLCA - DNR Landowner Contingency Assmt | $3.00 | $3.00 | $0.00 | $0.00 | $6.00 | $0.00 |
| 2024 | 2104 | JCCD - JC Conservation District | $2.57 | $2.57 | $0.00 | $0.00 | $5.14 | $0.00 |
| 2024 | 2104 | NWA - Noxious Weed Assessment | $2.30 | $2.30 | $0.00 | $0.00 | $4.60 | $0.00 |
| 2024 | 2104 | WAT - Clean Water District | $12.50 | $12.50 | $0.00 | $0.00 | $25.00 | $0.00 |
| 2024 | 2104 | TOTAL: | $157.34 | $157.28 | $0.00 | $0.00 | $314.62 | $0.00 |
|
| 2024 | 2104 | $157.34 | $157.28 | $0.00 | $0.00 | $314.62 | $0.00 |
Statement Details |
| 2023 | 2106 | STATE - STATE LEVY (SCHOOL) | $39.49 | $39.49 | $0.00 | $0.00 | $78.98 | $0.00 |
| 2023 | 2106 | COUNTY - COUNTY LEVIES (CE, DD, VET, MH) | $17.24 | $17.24 | $0.00 | $0.00 | $34.48 | $0.00 |
| 2023 | 2106 | CONSERVE - CONSERVATION FUTURES | $0.52 | $0.51 | $0.00 | $0.00 | $1.03 | $0.00 |
| 2023 | 2106 | COROADS - COUNTY ROADS (ROADS, DIV TO CE) | $13.95 | $13.93 | $0.00 | $0.00 | $27.88 | $0.00 |
| 2023 | 2106 | PORTPT - PORT DISTRICT | $7.26 | $7.26 | $0.00 | $0.00 | $14.52 | $0.00 |
| 2023 | 2106 | PUD1 - PUD #1 | $1.14 | $1.14 | $0.00 | $0.00 | $2.28 | $0.00 |
| 2023 | 2106 | LIB1 - LIBRARY DIST #1 | $5.40 | $5.39 | $0.00 | $0.00 | $10.79 | $0.00 |
| 2023 | 2106 | HD2 - HOSP DIST #2 | $1.01 | $1.00 | $0.00 | $0.00 | $2.01 | $0.00 |
| 2023 | 2106 | SD323 - SCHOOL DIST #323 | $22.78 | $22.78 | $0.00 | $0.00 | $45.56 | $0.00 |
| 2023 | 2106 | FD8 - FIRE DISTRICT #8 | $18.99 | $18.98 | $0.00 | $0.00 | $37.97 | $0.00 |
| 2023 | 2106 | EMS8 - FIRE DIST #8 EMS | $6.21 | $6.21 | $0.00 | $0.00 | $12.42 | $0.00 |
| 2023 | 2106 | CEM3 - CEMETERY DIST #3 | $0.54 | $0.54 | $0.00 | $0.00 | $1.08 | $0.00 |
| 2023 | 2106 | FPLCA - DNR Landowner Contingency Assmt | $3.00 | $3.00 | $0.00 | $0.00 | $6.00 | $0.00 |
| 2023 | 2106 | JCCD - JC Conservation District | $2.57 | $2.57 | $0.00 | $0.00 | $5.14 | $0.00 |
| 2023 | 2106 | NWA - Noxious Weed Assessment | $2.30 | $2.30 | $0.00 | $0.00 | $4.60 | $0.00 |
| 2023 | 2106 | WAT - Clean Water District | $12.00 | $12.00 | $0.00 | $0.00 | $24.00 | $0.00 |
| 2023 | 2106 | TOTAL: | $154.40 | $154.34 | $0.00 | $0.00 | $308.74 | $0.00 |
|
| 2023 | 2106 | $154.40 | $154.34 | $0.00 | $0.00 | $308.74 | $0.00 |
Statement Details |
| 2022 | 2110 | STATE - STATE LEVY (SCHOOL) | $41.10 | $41.09 | $0.00 | $0.00 | $82.19 | $0.00 |
| 2022 | 2110 | COUNTY - COUNTY LEVIES (CE, DD, VET, MH) | $18.33 | $18.30 | $0.00 | $0.00 | $36.63 | $0.00 |
| 2022 | 2110 | CONSERVE - CONSERVATION FUTURES | $0.55 | $0.55 | $0.00 | $0.00 | $1.10 | $0.00 |
| 2022 | 2110 | COROADS - COUNTY ROADS (ROADS, DIV TO CE) | $14.89 | $14.88 | $0.00 | $0.00 | $29.77 | $0.00 |
| 2022 | 2110 | PORTPT - PORT DISTRICT | $7.84 | $7.84 | $0.00 | $0.00 | $15.68 | $0.00 |
| 2022 | 2110 | PUD1 - PUD #1 | $1.23 | $1.22 | $0.00 | $0.00 | $2.45 | $0.00 |
| 2022 | 2110 | LIB1 - LIBRARY DIST #1 | $5.76 | $5.76 | $0.00 | $0.00 | $11.52 | $0.00 |
| 2022 | 2110 | HD2 - HOSP DIST #2 | $1.07 | $1.07 | $0.00 | $0.00 | $2.14 | $0.00 |
| 2022 | 2110 | SD323 - SCHOOL DIST #323 | $25.12 | $25.11 | $0.00 | $0.00 | $50.23 | $0.00 |
| 2022 | 2110 | FD8 - FIRE DISTRICT #8 | $19.23 | $19.23 | $0.00 | $0.00 | $38.46 | $0.00 |
| 2022 | 2110 | EMS8 - FIRE DIST #8 EMS | $6.81 | $6.80 | $0.00 | $0.00 | $13.61 | $0.00 |
| 2022 | 2110 | CEM3 - CEMETERY DIST #3 | $0.58 | $0.57 | $0.00 | $0.00 | $1.15 | $0.00 |
| 2022 | 2110 | FPLCA - DNR Landowner Contingency Assmt | $3.00 | $3.00 | $0.00 | $0.00 | $6.00 | $0.00 |
| 2022 | 2110 | JCCD - JC Conservation District | $2.57 | $2.57 | $0.00 | $0.00 | $5.14 | $0.00 |
| 2022 | 2110 | NWA - Noxious Weed Assessment | $2.30 | $2.30 | $0.00 | $0.00 | $4.60 | $0.00 |
| 2022 | 2110 | WAT - Clean Water District | $11.50 | $11.50 | $0.00 | $0.00 | $23.00 | $0.00 |
| 2022 | 2110 | TOTAL: | $161.88 | $161.79 | $0.00 | $0.00 | $323.67 | $0.00 |
|
| 2022 | 2110 | $161.88 | $161.79 | $0.00 | $0.00 | $323.67 | $0.00 |
Values
| (+) Improvement Homesite Value: | + | $0 | |
| (+) Improvement Non-Homesite Value: | + | $0 | |
| (+) Land Homesite Value: | + | $0 | |
| (+) Land Non-Homesite Value: | + | $38,583 | |
| (+) Curr Use (HS): | + | $0 | $0 |
| (+) Curr Use (NHS): | + | $0 | $0 |
| | | -------------------------- | |
| (=) Market Value: | = | $38,583 | |
| (–) Productivity Loss: | – | $0 | |
| | | -------------------------- | |
| (=) Subtotal: | = | $38,583 | |
| (+) Senior Appraised Value: | + | $0 | |
| (+) Non-Senior Appraised Value: | + | $38,583 | |
| | | -------------------------- | |
| (=) Total Appraised Value: | = | $38,583 | |
| (–) Senior Exemption Loss: | – | $0 | |
| (–) Exemption Loss: | – | $0 | |
| | | -------------------------- | |
| (=) Taxable Value: | = | $38,583 | |
Taxing Jurisdiction
| Owner: | JEFF & SUZAN NEILL | | |
| % Ownership: | 100.0000000000% | | |
| Total Value: | N/A | | |
| Tax Area: | 0781 - 1-323F8E8H2C3L1 |
| CE | COUNTY CURRENT EXPENSE | N/A | N/A | N/A | N/A | | |
| CNTYDD | DEVELOPMENTAL DISABILITIES | N/A | N/A | N/A | N/A | | |
| CNTYVET | VETERANS RELIEF | N/A | N/A | N/A | N/A | | |
| MENTAL | MENTAL HEALTH | N/A | N/A | N/A | N/A | | |
| ROADS | COUNTY ROADS | N/A | N/A | N/A | N/A | | |
| ROADSCU | COUNTY ROADS TO CUR EXP | N/A | N/A | N/A | N/A | | |
| HOSP2CASH | HOSP DIST #2 GENERAL | N/A | N/A | N/A | N/A | | |
| SCH323BOND | SCHOOL DIST #323 BOND | N/A | N/A | N/A | N/A | | |
| SCH323CP | SCHOOL DIST #323 CAP PROJ | N/A | N/A | N/A | N/A | | |
| SCH323MO | SCHOOL DIST #323 EP & O | N/A | N/A | N/A | N/A | | |
| CEM3 | CEMETERY DIST #3 GENERAL | N/A | N/A | N/A | N/A | | |
| CONSERVE | CONSERVATION FUTURES | N/A | N/A | N/A | N/A | | |
| EMS8 | FIRE DIST #8 EMS | N/A | N/A | N/A | N/A | | |
| FD8 | FIRE DIST #8 GENERAL | N/A | N/A | N/A | N/A | | |
| LIB1 | LIBRARY DIST #1 GENERAL | N/A | N/A | N/A | N/A | | |
| PORTPT | PORT OF PT GENERAL | N/A | N/A | N/A | N/A | | |
| PORTPTIDD | PORT OF PT IDD 2019 | N/A | N/A | N/A | N/A | | |
| PUD1 | PUD #1 GENERAL | N/A | N/A | N/A | N/A | | |
| STATE | STATE SCHOOL PART 1 | N/A | N/A | N/A | N/A | | |
| STATE2 | STATE SCHOOL PART 2 | N/A | N/A | N/A | N/A | | |
| | Total Tax Rate: | N/A | | | | | |
| | | | | Taxes w/Current Exemptions: | N/A | | |
| | | | | Taxes w/o Exemptions: | N/A | | |
Improvement / Building
Sketch
| No sketches available for this property. |
Property Image
Land
| 1 | 2680-1345S | | 1.0000 | 43560.00 | 0.00 | 0.00 | 1.00 | $36,225 | $0 |
| 2 | 9301F | | 0.0000 | 0.00 | 0.00 | 0.00 | 0.00 | $2,358 | $0 |
Roll Value History
| 2025 | N/A | N/A | N/A | N/A | N/A |
| 2024 | $0 | $36,905 | $0 | $36,905 | $36,905 |
| 2023 | $0 | $35,228 | $0 | $35,228 | $35,228 |
| 2022 | $0 | $33,550 | $0 | $33,550 | $33,550 |
| 2021 | $0 | $30,061 | $0 | $30,061 | $30,061 |
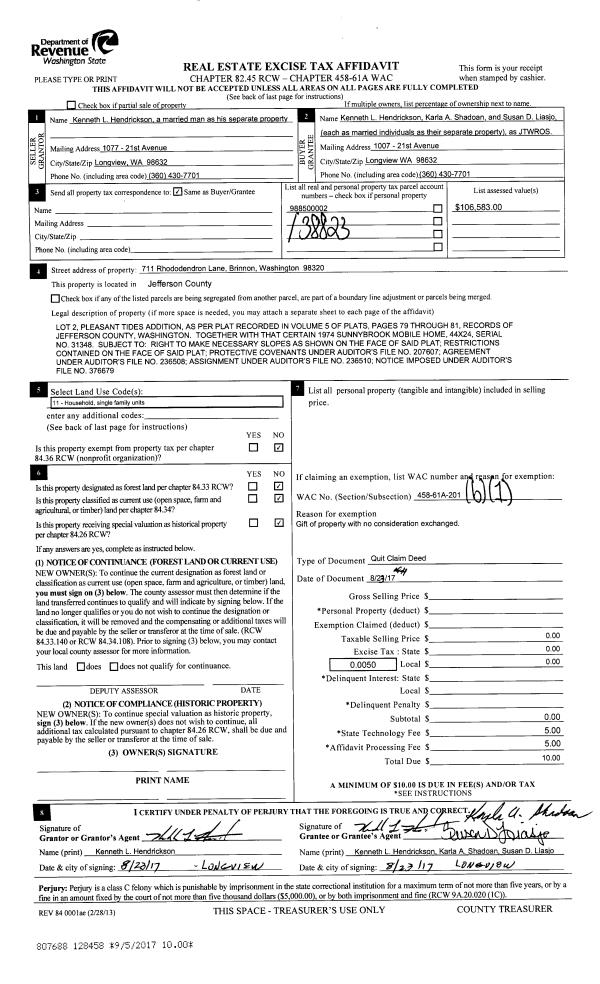
Deed and Sales History
| 1 | 04/09/2018 | SWD | Statutory Warranty Deed | GRETA M BANDY | JEFF & SUZAN NEILL | | | $190,000.00 | 129983 | |
|   | |
| 2 | 08/26/2015 | QCD | Quit Claim Deed | GARY A BANDY | GRETA M BANDY | | | | 124307 | |
| 3 | 02/28/2007 | SWD | Statutory Warranty Deed | BRAKUS, EVA | BANDY, GARY | 0 | 0 | $0.00 | 108877 | 0 |
| 4 | 06/15/1994 | QCD | Quit Claim Deed | BANDY, GARY A | BANDY, GARY A/EVA M | 0 | 0 | $0.00 | 74401 | 0 |
Payout Agreement
| No payout information available.. |