Property
Account |
| Property ID: | 12177 | Abbreviated Legal Description: | S34 T30 R2W TAX 46 |
| Parcel # / Geo ID: | 002341030 | Agent Code: | |
| Type: | Real | | |
| Tax Area: | 0781 - 1-323F8E8H2C3L1 | Land Use Code | 18 |
| Open Space: | N | DFL | N |
| Historic Property: | N | Remodel Property: | N |
| Multi-Family Redevelopment: | N | | |
| Township: | 30N | Section: | 34 |
| Range: | 2W |
Location |
| Address: | | Mapsco: | 125/011 |
| Neighborhood: | S34 T30 R2W | Map ID: | |
| Neighborhood CD: | 2680 |
Owner |
| Name: | JEFF & SUZAN NEILL | Owner ID: | 23345 |
| Mailing Address: | PO BOX 274 BRINNON, WA 98320-0274 | % Ownership: | 100.0000000000% |
| | | Exemptions: | |
Pay Tax Due
There is currently No Amount Due on this property.
Taxes and Assessment Details
Property Tax Information as of
10/23/2025
Click on "Statement Details" to expand or collapse a tax statement.
* Please enter a valid date ** Please enter a valid date *
Statement Details |
| 2025 | 2104 | STATE - STATE LEVY (SCHOOL) | $3.63 | $3.63 | $0.00 | $0.00 | $7.26 | $0.00 |
| 2025 | 2104 | COUNTY - COUNTY LEVIES (CE, DD, VET, MH) | $1.43 | $1.43 | $0.00 | $0.00 | $2.86 | $0.00 |
| 2025 | 2104 | CONSERVE - CONSERVATION FUTURES | $0.05 | $0.04 | $0.00 | $0.00 | $0.09 | $0.00 |
| 2025 | 2104 | COROADS - COUNTY ROADS (ROADS, DIV TO CE) | $1.15 | $1.13 | $0.00 | $0.00 | $2.28 | $0.00 |
| 2025 | 2104 | PORTPT - PORT DISTRICT | $0.59 | $0.57 | $0.00 | $0.00 | $1.16 | $0.00 |
| 2025 | 2104 | PUD1 - PUD #1 | $0.10 | $0.09 | $0.00 | $0.00 | $0.19 | $0.00 |
| 2025 | 2104 | LIB1 - LIBRARY DIST #1 | $0.44 | $0.44 | $0.00 | $0.00 | $0.88 | $0.00 |
| 2025 | 2104 | HD2 - HOSP DIST #2 | $0.09 | $0.08 | $0.00 | $0.00 | $0.17 | $0.00 |
| 2025 | 2104 | SD323 - SCHOOL DIST #323 | $1.97 | $1.96 | $0.00 | $0.00 | $3.93 | $0.00 |
| 2025 | 2104 | FD8 - FIRE DISTRICT #8 | $1.69 | $1.68 | $0.00 | $0.00 | $3.37 | $0.00 |
| 2025 | 2104 | EMS8 - FIRE DIST #8 EMS | $0.53 | $0.53 | $0.00 | $0.00 | $1.06 | $0.00 |
| 2025 | 2104 | CEM3 - CEMETERY DIST #3 | $0.04 | $0.04 | $0.00 | $0.00 | $0.08 | $0.00 |
| 2025 | 2104 | FPLCA - DNR Landowner Contingency Assmt | $3.00 | $3.00 | $0.00 | $0.00 | $6.00 | $0.00 |
| 2025 | 2104 | JCCD - JC Conservation District | $2.55 | $2.55 | $0.00 | $0.00 | $5.10 | $0.00 |
| 2025 | 2104 | NWA - Noxious Weed Assessment | $2.15 | $2.15 | $0.00 | $0.00 | $4.30 | $0.00 |
| 2025 | 2104 | WAT - Clean Water District | $13.00 | $13.00 | $0.00 | $0.00 | $26.00 | $0.00 |
| 2025 | 2104 | TOTAL: | $32.41 | $32.32 | $0.00 | $0.00 | $64.73 | $0.00 |
|
| 2025 | 2104 | $32.41 | $32.32 | $0.00 | $0.00 | $64.73 | $0.00 |
Statement Details |
| 2024 | 2111 | STATE - STATE LEVY (SCHOOL) | $3.35 | $3.33 | $0.00 | $0.00 | $6.68 | $0.00 |
| 2024 | 2111 | COUNTY - COUNTY LEVIES (CE, DD, VET, MH) | $1.44 | $1.43 | $0.00 | $0.00 | $2.87 | $0.00 |
| 2024 | 2111 | CONSERVE - CONSERVATION FUTURES | $0.05 | $0.04 | $0.00 | $0.00 | $0.09 | $0.00 |
| 2024 | 2111 | COROADS - COUNTY ROADS (ROADS, DIV TO CE) | $1.15 | $1.15 | $0.00 | $0.00 | $2.30 | $0.00 |
| 2024 | 2111 | PORTPT - PORT DISTRICT | $0.60 | $0.58 | $0.00 | $0.00 | $1.18 | $0.00 |
| 2024 | 2111 | PUD1 - PUD #1 | $0.10 | $0.09 | $0.00 | $0.00 | $0.19 | $0.00 |
| 2024 | 2111 | LIB1 - LIBRARY DIST #1 | $0.45 | $0.44 | $0.00 | $0.00 | $0.89 | $0.00 |
| 2024 | 2111 | HD2 - HOSP DIST #2 | $0.09 | $0.08 | $0.00 | $0.00 | $0.17 | $0.00 |
| 2024 | 2111 | SD323 - SCHOOL DIST #323 | $1.88 | $1.87 | $0.00 | $0.00 | $3.75 | $0.00 |
| 2024 | 2111 | FD8 - FIRE DISTRICT #8 | $1.62 | $1.61 | $0.00 | $0.00 | $3.23 | $0.00 |
| 2024 | 2111 | EMS8 - FIRE DIST #8 EMS | $0.51 | $0.51 | $0.00 | $0.00 | $1.02 | $0.00 |
| 2024 | 2111 | CEM3 - CEMETERY DIST #3 | $0.04 | $0.04 | $0.00 | $0.00 | $0.08 | $0.00 |
| 2024 | 2111 | FPLCA - DNR Landowner Contingency Assmt | $3.00 | $3.00 | $0.00 | $0.00 | $6.00 | $0.00 |
| 2024 | 2111 | JCCD - JC Conservation District | $2.55 | $2.55 | $0.00 | $0.00 | $5.10 | $0.00 |
| 2024 | 2111 | NWA - Noxious Weed Assessment | $2.15 | $2.15 | $0.00 | $0.00 | $4.30 | $0.00 |
| 2024 | 2111 | WAT - Clean Water District | $12.50 | $12.50 | $0.00 | $0.00 | $25.00 | $0.00 |
| 2024 | 2111 | TOTAL: | $31.48 | $31.37 | $0.00 | $0.00 | $62.85 | $0.00 |
|
| 2024 | 2111 | $31.48 | $31.37 | $0.00 | $0.00 | $62.85 | $0.00 |
Statement Details |
| 2023 | 2113 | STATE - STATE LEVY (SCHOOL) | $3.24 | $3.24 | $0.00 | $0.00 | $6.48 | $0.00 |
| 2023 | 2113 | COUNTY - COUNTY LEVIES (CE, DD, VET, MH) | $1.42 | $1.42 | $0.00 | $0.00 | $2.84 | $0.00 |
| 2023 | 2113 | CONSERVE - CONSERVATION FUTURES | $0.04 | $0.04 | $0.00 | $0.00 | $0.08 | $0.00 |
| 2023 | 2113 | COROADS - COUNTY ROADS (ROADS, DIV TO CE) | $1.15 | $1.14 | $0.00 | $0.00 | $2.29 | $0.00 |
| 2023 | 2113 | PORTPT - PORT DISTRICT | $0.60 | $0.59 | $0.00 | $0.00 | $1.19 | $0.00 |
| 2023 | 2113 | PUD1 - PUD #1 | $0.10 | $0.09 | $0.00 | $0.00 | $0.19 | $0.00 |
| 2023 | 2113 | LIB1 - LIBRARY DIST #1 | $0.44 | $0.44 | $0.00 | $0.00 | $0.88 | $0.00 |
| 2023 | 2113 | HD2 - HOSP DIST #2 | $0.09 | $0.07 | $0.00 | $0.00 | $0.16 | $0.00 |
| 2023 | 2113 | SD323 - SCHOOL DIST #323 | $1.87 | $1.86 | $0.00 | $0.00 | $3.73 | $0.00 |
| 2023 | 2113 | FD8 - FIRE DISTRICT #8 | $1.56 | $1.55 | $0.00 | $0.00 | $3.11 | $0.00 |
| 2023 | 2113 | EMS8 - FIRE DIST #8 EMS | $0.51 | $0.51 | $0.00 | $0.00 | $1.02 | $0.00 |
| 2023 | 2113 | CEM3 - CEMETERY DIST #3 | $0.05 | $0.04 | $0.00 | $0.00 | $0.09 | $0.00 |
| 2023 | 2113 | FPLCA - DNR Landowner Contingency Assmt | $3.00 | $3.00 | $0.00 | $0.00 | $6.00 | $0.00 |
| 2023 | 2113 | JCCD - JC Conservation District | $2.55 | $2.55 | $0.00 | $0.00 | $5.10 | $0.00 |
| 2023 | 2113 | NWA - Noxious Weed Assessment | $2.15 | $2.15 | $0.00 | $0.00 | $4.30 | $0.00 |
| 2023 | 2113 | WAT - Clean Water District | $12.00 | $12.00 | $0.00 | $0.00 | $24.00 | $0.00 |
| 2023 | 2113 | TOTAL: | $30.77 | $30.69 | $0.00 | $0.00 | $61.46 | $0.00 |
|
| 2023 | 2113 | $30.77 | $30.69 | $0.00 | $0.00 | $61.46 | $0.00 |
Statement Details |
| 2022 | 2117 | STATE - STATE LEVY (SCHOOL) | $3.15 | $3.14 | $0.00 | $0.00 | $6.29 | $0.00 |
| 2022 | 2117 | COUNTY - COUNTY LEVIES (CE, DD, VET, MH) | $1.41 | $1.40 | $0.00 | $0.00 | $2.81 | $0.00 |
| 2022 | 2117 | CONSERVE - CONSERVATION FUTURES | $0.04 | $0.04 | $0.00 | $0.00 | $0.08 | $0.00 |
| 2022 | 2117 | COROADS - COUNTY ROADS (ROADS, DIV TO CE) | $1.14 | $1.14 | $0.00 | $0.00 | $2.28 | $0.00 |
| 2022 | 2117 | PORTPT - PORT DISTRICT | $0.61 | $0.59 | $0.00 | $0.00 | $1.20 | $0.00 |
| 2022 | 2117 | PUD1 - PUD #1 | $0.10 | $0.09 | $0.00 | $0.00 | $0.19 | $0.00 |
| 2022 | 2117 | LIB1 - LIBRARY DIST #1 | $0.44 | $0.44 | $0.00 | $0.00 | $0.88 | $0.00 |
| 2022 | 2117 | HD2 - HOSP DIST #2 | $0.09 | $0.07 | $0.00 | $0.00 | $0.16 | $0.00 |
| 2022 | 2117 | SD323 - SCHOOL DIST #323 | $1.93 | $1.91 | $0.00 | $0.00 | $3.84 | $0.00 |
| 2022 | 2117 | FD8 - FIRE DISTRICT #8 | $1.47 | $1.47 | $0.00 | $0.00 | $2.94 | $0.00 |
| 2022 | 2117 | EMS8 - FIRE DIST #8 EMS | $0.52 | $0.52 | $0.00 | $0.00 | $1.04 | $0.00 |
| 2022 | 2117 | CEM3 - CEMETERY DIST #3 | $0.05 | $0.04 | $0.00 | $0.00 | $0.09 | $0.00 |
| 2022 | 2117 | FPLCA - DNR Landowner Contingency Assmt | $3.00 | $3.00 | $0.00 | $0.00 | $6.00 | $0.00 |
| 2022 | 2117 | JCCD - JC Conservation District | $2.55 | $2.55 | $0.00 | $0.00 | $5.10 | $0.00 |
| 2022 | 2117 | NWA - Noxious Weed Assessment | $2.15 | $2.15 | $0.00 | $0.00 | $4.30 | $0.00 |
| 2022 | 2117 | WAT - Clean Water District | $11.50 | $11.50 | $0.00 | $0.00 | $23.00 | $0.00 |
| 2022 | 2117 | TOTAL: | $30.15 | $30.05 | $0.00 | $0.00 | $60.20 | $0.00 |
|
| 2022 | 2117 | $30.15 | $30.05 | $0.00 | $0.00 | $60.20 | $0.00 |
Values
| (+) Improvement Homesite Value: | + | $0 | |
| (+) Improvement Non-Homesite Value: | + | $0 | |
| (+) Land Homesite Value: | + | $0 | |
| (+) Land Non-Homesite Value: | + | $3,163 | |
| (+) Curr Use (HS): | + | $0 | $0 |
| (+) Curr Use (NHS): | + | $0 | $0 |
| | | -------------------------- | |
| (=) Market Value: | = | $3,163 | |
| (–) Productivity Loss: | – | $0 | |
| | | -------------------------- | |
| (=) Subtotal: | = | $3,163 | |
| (+) Senior Appraised Value: | + | $0 | |
| (+) Non-Senior Appraised Value: | + | $3,163 | |
| | | -------------------------- | |
| (=) Total Appraised Value: | = | $3,163 | |
| (–) Senior Exemption Loss: | – | $0 | |
| (–) Exemption Loss: | – | $0 | |
| | | -------------------------- | |
| (=) Taxable Value: | = | $3,163 | |
Taxing Jurisdiction
| Owner: | JEFF & SUZAN NEILL | | |
| % Ownership: | 100.0000000000% | | |
| Total Value: | N/A | | |
| Tax Area: | 0781 - 1-323F8E8H2C3L1 |
| CE | COUNTY CURRENT EXPENSE | N/A | N/A | N/A | N/A | | |
| CNTYDD | DEVELOPMENTAL DISABILITIES | N/A | N/A | N/A | N/A | | |
| CNTYVET | VETERANS RELIEF | N/A | N/A | N/A | N/A | | |
| MENTAL | MENTAL HEALTH | N/A | N/A | N/A | N/A | | |
| ROADS | COUNTY ROADS | N/A | N/A | N/A | N/A | | |
| ROADSCU | COUNTY ROADS TO CUR EXP | N/A | N/A | N/A | N/A | | |
| HOSP2CASH | HOSP DIST #2 GENERAL | N/A | N/A | N/A | N/A | | |
| SCH323BOND | SCHOOL DIST #323 BOND | N/A | N/A | N/A | N/A | | |
| SCH323CP | SCHOOL DIST #323 CAP PROJ | N/A | N/A | N/A | N/A | | |
| SCH323MO | SCHOOL DIST #323 EP & O | N/A | N/A | N/A | N/A | | |
| CEM3 | CEMETERY DIST #3 GENERAL | N/A | N/A | N/A | N/A | | |
| CONSERVE | CONSERVATION FUTURES | N/A | N/A | N/A | N/A | | |
| EMS8 | FIRE DIST #8 EMS | N/A | N/A | N/A | N/A | | |
| FD8 | FIRE DIST #8 GENERAL | N/A | N/A | N/A | N/A | | |
| LIB1 | LIBRARY DIST #1 GENERAL | N/A | N/A | N/A | N/A | | |
| PORTPT | PORT OF PT GENERAL | N/A | N/A | N/A | N/A | | |
| PORTPTIDD | PORT OF PT IDD 2019 | N/A | N/A | N/A | N/A | | |
| PUD1 | PUD #1 GENERAL | N/A | N/A | N/A | N/A | | |
| STATE | STATE SCHOOL PART 1 | N/A | N/A | N/A | N/A | | |
| STATE2 | STATE SCHOOL PART 2 | N/A | N/A | N/A | N/A | | |
| | Total Tax Rate: | N/A | | | | | |
| | | | | Taxes w/Current Exemptions: | N/A | | |
| | | | | Taxes w/o Exemptions: | N/A | | |
Improvement / Building
Sketch
| No sketches available for this property. |
Property Image
Land
| 1 | 2680-1374S | | 0.0000 | 0.00 | 0.00 | 0.00 | 1.00 | $3,163 | $0 |
Roll Value History
| 2025 | N/A | N/A | N/A | N/A | N/A |
| 2024 | $0 | $3,025 | $0 | $3,025 | $3,025 |
| 2023 | $0 | $2,888 | $0 | $2,888 | $2,888 |
| 2022 | $0 | $2,750 | $0 | $2,750 | $2,750 |
| 2021 | $0 | $2,300 | $0 | $2,300 | $2,300 |
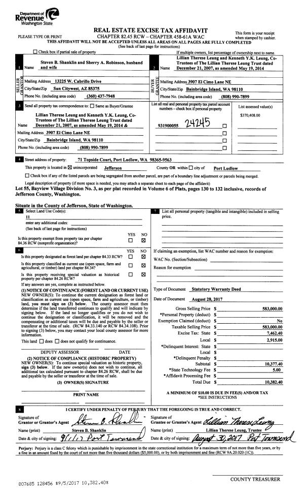
Deed and Sales History
| 1 | 04/09/2018 | SWD | Statutory Warranty Deed | GRETA M BANDY | JEFF & SUZAN NEILL | | | $190,000.00 | 129983 | |
|   | |
| 2 | 08/26/2015 | QCD | Quit Claim Deed | GARY A BANDY | GRETA M BANDY | | | | 124305 | |
| 3 | 05/24/2007 | QCD | Quit Claim Deed | BRAKUS, EVA M | BANDY, GARY A | | | $0.00 | 109339 | 0 |
Payout Agreement
| No payout information available.. |