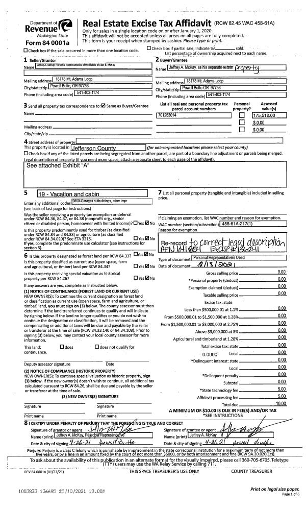
Property
Account |
| Property ID: | 12181 | Abbreviated Legal Description: | S34 T30N R2W TAX 52(LESS TAX 99) |
| Parcel # / Geo ID: | 002341034 | Agent Code: | |
| Type: | Real | | |
| Tax Area: | 0781 - 1-323F8E8H2C3L1 | Land Use Code | 11 |
| Open Space: | N | DFL | N |
| Historic Property: | N | Remodel Property: | N |
| Multi-Family Redevelopment: | N | | |
| Township: | 30N | Section: | 34 |
| Range: | 2W |
Location |
| Address: | 2001 OLD GARDINER RD SEQUIM, WA 98382 | Mapsco: | 125/019 |
| Neighborhood: | S34 T30 R2W | Map ID: | |
| Neighborhood CD: | 2680 |
Owner |
| Name: | PATRICIA A GRACZ | Owner ID: | 49901 |
| Mailing Address: | 2001 OLD GARDINER RD SEQUIM, WA 98382-8750 | % Ownership: | 100.0000000000% |
| | | Exemptions: | SNR/DSBL |
Pay Tax Due
There is currently No Amount Due on this property.
Taxes and Assessment Details
Property Tax Information as of
10/23/2025
Click on "Statement Details" to expand or collapse a tax statement.
* Please enter a valid date ** Please enter a valid date *
Statement Details |
| 2025 | 2108 | STATE - STATE LEVY (SCHOOL) | $85.49 | $85.49 | $0.00 | $0.00 | $170.98 | $0.00 |
| 2025 | 2108 | COUNTY - COUNTY LEVIES (CE, DD, VET, MH) | $51.73 | $51.70 | $0.00 | $0.00 | $103.43 | $0.00 |
| 2025 | 2108 | CONSERVE - CONSERVATION FUTURES | $1.55 | $1.55 | $0.00 | $0.00 | $3.10 | $0.00 |
| 2025 | 2108 | COROADS - COUNTY ROADS (ROADS, DIV TO CE) | $41.43 | $41.43 | $0.00 | $0.00 | $82.86 | $0.00 |
| 2025 | 2108 | PORTPT - PORT DISTRICT | $21.11 | $21.09 | $0.00 | $0.00 | $42.20 | $0.00 |
| 2025 | 2108 | PUD1 - PUD #1 | $3.39 | $3.38 | $0.00 | $0.00 | $6.77 | $0.00 |
| 2025 | 2108 | LIB1 - LIBRARY DIST #1 | $16.03 | $16.03 | $0.00 | $0.00 | $32.06 | $0.00 |
| 2025 | 2108 | HD2 - HOSP DIST #2 | $3.02 | $3.01 | $0.00 | $0.00 | $6.03 | $0.00 |
| 2025 | 2108 | SD323 - SCHOOL DIST #323 | $0.00 | $0.00 | $0.00 | $0.00 | $0.00 | $0.00 |
| 2025 | 2108 | FD8 - FIRE DISTRICT #8 | $61.02 | $61.02 | $0.00 | $0.00 | $122.04 | $0.00 |
| 2025 | 2108 | EMS8 - FIRE DIST #8 EMS | $19.29 | $19.29 | $0.00 | $0.00 | $38.58 | $0.00 |
| 2025 | 2108 | CEM3 - CEMETERY DIST #3 | $1.46 | $1.45 | $0.00 | $0.00 | $2.91 | $0.00 |
| 2025 | 2108 | FP - DNR Forest Fire Protection Assmt | $8.50 | $8.50 | $0.00 | $0.00 | $17.00 | $0.00 |
| 2025 | 2108 | FPLCA - DNR Landowner Contingency Assmt | $3.00 | $3.00 | $0.00 | $0.00 | $6.00 | $0.00 |
| 2025 | 2108 | OSS - On Site Septic | $21.50 | $21.50 | $0.00 | $0.00 | $43.00 | $0.00 |
| 2025 | 2108 | FP ADMIN - FP ADMIN | $0.50 | $0.00 | $0.00 | $0.00 | $0.50 | $0.00 |
| 2025 | 2108 | TOTAL: | $339.02 | $338.44 | $0.00 | $0.00 | $677.46 | $0.00 |
|
| 2025 | 2108 | $339.02 | $338.44 | $0.00 | $0.00 | $677.46 | $0.00 |
Statement Details |
| 2024 | 2115 | STATE - STATE LEVY (SCHOOL) | $82.58 | $82.57 | $0.00 | $0.00 | $165.15 | $0.00 |
| 2024 | 2115 | COUNTY - COUNTY LEVIES (CE, DD, VET, MH) | $54.30 | $54.27 | $0.00 | $0.00 | $108.57 | $0.00 |
| 2024 | 2115 | CONSERVE - CONSERVATION FUTURES | $1.63 | $1.63 | $0.00 | $0.00 | $3.26 | $0.00 |
| 2024 | 2115 | COROADS - COUNTY ROADS (ROADS, DIV TO CE) | $43.69 | $43.68 | $0.00 | $0.00 | $87.37 | $0.00 |
| 2024 | 2115 | PORTPT - PORT DISTRICT | $22.43 | $22.42 | $0.00 | $0.00 | $44.85 | $0.00 |
| 2024 | 2115 | PUD1 - PUD #1 | $3.57 | $3.56 | $0.00 | $0.00 | $7.13 | $0.00 |
| 2024 | 2115 | LIB1 - LIBRARY DIST #1 | $16.90 | $16.90 | $0.00 | $0.00 | $33.80 | $0.00 |
| 2024 | 2115 | HD2 - HOSP DIST #2 | $3.17 | $3.17 | $0.00 | $0.00 | $6.34 | $0.00 |
| 2024 | 2115 | SD323 - SCHOOL DIST #323 | $0.00 | $0.00 | $0.00 | $0.00 | $0.00 | $0.00 |
| 2024 | 2115 | FD8 - FIRE DISTRICT #8 | $61.42 | $61.42 | $0.00 | $0.00 | $122.84 | $0.00 |
| 2024 | 2115 | EMS8 - FIRE DIST #8 EMS | $19.42 | $19.42 | $0.00 | $0.00 | $38.84 | $0.00 |
| 2024 | 2115 | CEM3 - CEMETERY DIST #3 | $1.56 | $1.56 | $0.00 | $0.00 | $3.12 | $0.00 |
| 2024 | 2115 | FP - DNR Forest Fire Protection Assmt | $8.50 | $8.50 | $0.00 | $0.00 | $17.00 | $0.00 |
| 2024 | 2115 | FPLCA - DNR Landowner Contingency Assmt | $3.00 | $3.00 | $0.00 | $0.00 | $6.00 | $0.00 |
| 2024 | 2115 | OSS - On Site Septic | $21.00 | $21.00 | $0.00 | $0.00 | $42.00 | $0.00 |
| 2024 | 2115 | FP ADMIN - FP ADMIN | $0.50 | $0.00 | $0.00 | $0.00 | $0.50 | $0.00 |
| 2024 | 2115 | TOTAL: | $343.67 | $343.10 | $0.00 | $0.00 | $686.77 | $0.00 |
|
| 2024 | 2115 | $343.67 | $343.10 | $0.00 | $0.00 | $686.77 | $0.00 |
Statement Details |
| 2023 | 2117 | STATE - STATE LEVY (SCHOOL) | $84.11 | $84.11 | $0.00 | $0.00 | $168.22 | $0.00 |
| 2023 | 2117 | COUNTY - COUNTY LEVIES (CE, DD, VET, MH) | $56.34 | $56.33 | $0.00 | $0.00 | $112.67 | $0.00 |
| 2023 | 2117 | CONSERVE - CONSERVATION FUTURES | $1.69 | $1.69 | $0.00 | $0.00 | $3.38 | $0.00 |
| 2023 | 2117 | COROADS - COUNTY ROADS (ROADS, DIV TO CE) | $45.58 | $45.58 | $0.00 | $0.00 | $91.16 | $0.00 |
| 2023 | 2117 | PORTPT - PORT DISTRICT | $23.74 | $23.72 | $0.00 | $0.00 | $47.46 | $0.00 |
| 2023 | 2117 | PUD1 - PUD #1 | $3.74 | $3.73 | $0.00 | $0.00 | $7.47 | $0.00 |
| 2023 | 2117 | LIB1 - LIBRARY DIST #1 | $17.64 | $17.63 | $0.00 | $0.00 | $35.27 | $0.00 |
| 2023 | 2117 | HD2 - HOSP DIST #2 | $3.29 | $3.28 | $0.00 | $0.00 | $6.57 | $0.00 |
| 2023 | 2117 | SD323 - SCHOOL DIST #323 | $0.00 | $0.00 | $0.00 | $0.00 | $0.00 | $0.00 |
| 2023 | 2117 | FD8 - FIRE DISTRICT #8 | $62.07 | $62.07 | $0.00 | $0.00 | $124.14 | $0.00 |
| 2023 | 2117 | EMS8 - FIRE DIST #8 EMS | $20.30 | $20.29 | $0.00 | $0.00 | $40.59 | $0.00 |
| 2023 | 2117 | CEM3 - CEMETERY DIST #3 | $1.77 | $1.76 | $0.00 | $0.00 | $3.53 | $0.00 |
| 2023 | 2117 | FP - DNR Forest Fire Protection Assmt | $8.50 | $8.50 | $0.00 | $0.00 | $17.00 | $0.00 |
| 2023 | 2117 | FPLCA - DNR Landowner Contingency Assmt | $3.00 | $3.00 | $0.00 | $0.00 | $6.00 | $0.00 |
| 2023 | 2117 | OSS - On Site Septic | $20.50 | $20.50 | $0.00 | $0.00 | $41.00 | $0.00 |
| 2023 | 2117 | FP ADMIN - FP ADMIN | $0.50 | $0.00 | $0.00 | $0.00 | $0.50 | $0.00 |
| 2023 | 2117 | TOTAL: | $352.77 | $352.19 | $0.00 | $0.00 | $704.96 | $0.00 |
|
| 2023 | 2117 | $352.77 | $352.19 | $0.00 | $0.00 | $704.96 | $0.00 |
Statement Details |
| 2022 | 2121 | STATE - STATE LEVY (SCHOOL) | $97.42 | $97.41 | $0.00 | $0.00 | $194.83 | $0.00 |
| 2022 | 2121 | COUNTY - COUNTY LEVIES (CE, DD, VET, MH) | $66.82 | $66.80 | $0.00 | $0.00 | $133.62 | $0.00 |
| 2022 | 2121 | CONSERVE - CONSERVATION FUTURES | $2.01 | $2.00 | $0.00 | $0.00 | $4.01 | $0.00 |
| 2022 | 2121 | COROADS - COUNTY ROADS (ROADS, DIV TO CE) | $54.30 | $54.30 | $0.00 | $0.00 | $108.60 | $0.00 |
| 2022 | 2121 | PORTPT - PORT DISTRICT | $28.60 | $28.60 | $0.00 | $0.00 | $57.20 | $0.00 |
| 2022 | 2121 | PUD1 - PUD #1 | $4.47 | $4.46 | $0.00 | $0.00 | $8.93 | $0.00 |
| 2022 | 2121 | LIB1 - LIBRARY DIST #1 | $21.01 | $21.00 | $0.00 | $0.00 | $42.01 | $0.00 |
| 2022 | 2121 | HD2 - HOSP DIST #2 | $3.91 | $3.89 | $0.00 | $0.00 | $7.80 | $0.00 |
| 2022 | 2121 | SD323 - SCHOOL DIST #323 | $0.00 | $0.00 | $0.00 | $0.00 | $0.00 | $0.00 |
| 2022 | 2121 | FD8 - FIRE DISTRICT #8 | $70.16 | $70.15 | $0.00 | $0.00 | $140.31 | $0.00 |
| 2022 | 2121 | EMS8 - FIRE DIST #8 EMS | $24.83 | $24.82 | $0.00 | $0.00 | $49.65 | $0.00 |
| 2022 | 2121 | CEM3 - CEMETERY DIST #3 | $2.10 | $2.09 | $0.00 | $0.00 | $4.19 | $0.00 |
| 2022 | 2121 | FP - DNR Forest Fire Protection Assmt | $8.50 | $8.50 | $0.00 | $0.00 | $17.00 | $0.00 |
| 2022 | 2121 | FPLCA - DNR Landowner Contingency Assmt | $3.00 | $3.00 | $0.00 | $0.00 | $6.00 | $0.00 |
| 2022 | 2121 | OSS - On Site Septic | $19.50 | $19.50 | $0.00 | $0.00 | $39.00 | $0.00 |
| 2022 | 2121 | FP ADMIN - FP ADMIN | $0.50 | $0.00 | $0.00 | $0.00 | $0.50 | $0.00 |
| 2022 | 2121 | TOTAL: | $407.13 | $406.52 | $0.00 | $0.00 | $813.65 | $0.00 |
|
| 2022 | 2121 | $407.13 | $406.52 | $0.00 | $0.00 | $813.65 | $0.00 |
Values
| (+) Improvement Homesite Value: | + | $298,328 | |
| (+) Improvement Non-Homesite Value: | + | $0 | |
| (+) Land Homesite Value: | + | $142,968 | |
| (+) Land Non-Homesite Value: | + | $0 | |
| (+) Curr Use (HS): | + | $0 | $0 |
| (+) Curr Use (NHS): | + | $0 | $0 |
| | | -------------------------- | |
| (=) Market Value: | = | $441,296 | |
| (–) Productivity Loss: | – | $0 | |
| | | -------------------------- | |
| (=) Subtotal: | = | $441,296 | |
| (+) Senior Appraised Value: | + | $274,185 | |
| (+) Non-Senior Appraised Value: | + | $0 | |
| | | -------------------------- | |
| (=) Total Appraised Value: | = | $274,185 | |
| (–) Senior Exemption Loss: | – | $164,511 | |
| (–) Exemption Loss: | – | $0 | |
| | | -------------------------- | |
| (=) Taxable Value: | = | $109,674 | |
Taxing Jurisdiction
| Owner: | PATRICIA A GRACZ | | |
| % Ownership: | 100.0000000000% | | |
| Total Value: | N/A | | |
| Tax Area: | 0781 - 1-323F8E8H2C3L1 |
| CE | COUNTY CURRENT EXPENSE | N/A | N/A | N/A | N/A | | |
| CNTYDD | DEVELOPMENTAL DISABILITIES | N/A | N/A | N/A | N/A | | |
| CNTYVET | VETERANS RELIEF | N/A | N/A | N/A | N/A | | |
| MENTAL | MENTAL HEALTH | N/A | N/A | N/A | N/A | | |
| ROADS | COUNTY ROADS | N/A | N/A | N/A | N/A | | |
| ROADSCU | COUNTY ROADS TO CUR EXP | N/A | N/A | N/A | N/A | | |
| HOSP2CASH | HOSP DIST #2 GENERAL | N/A | N/A | N/A | N/A | | |
| SCH323BOND | SCHOOL DIST #323 BOND | N/A | N/A | N/A | N/A | | |
| SCH323CP | SCHOOL DIST #323 CAP PROJ | N/A | N/A | N/A | N/A | | |
| SCH323MO | SCHOOL DIST #323 EP & O | N/A | N/A | N/A | N/A | | |
| CEM3 | CEMETERY DIST #3 GENERAL | N/A | N/A | N/A | N/A | | |
| CONSERVE | CONSERVATION FUTURES | N/A | N/A | N/A | N/A | | |
| EMS8 | FIRE DIST #8 EMS | N/A | N/A | N/A | N/A | | |
| FD8 | FIRE DIST #8 GENERAL | N/A | N/A | N/A | N/A | | |
| LIB1 | LIBRARY DIST #1 GENERAL | N/A | N/A | N/A | N/A | | |
| PORTPT | PORT OF PT GENERAL | N/A | N/A | N/A | N/A | | |
| PORTPTIDD | PORT OF PT IDD 2019 | N/A | N/A | N/A | N/A | | |
| PUD1 | PUD #1 GENERAL | N/A | N/A | N/A | N/A | | |
| STATE | STATE SCHOOL PART 1 | N/A | N/A | N/A | N/A | | |
| STATE2 | STATE SCHOOL PART 2 | N/A | N/A | N/A | N/A | | |
| | Total Tax Rate: | N/A | | | | | |
| | | | | Taxes w/Current Exemptions: | N/A | | |
| | | | | Taxes w/o Exemptions: | N/A | | |
Improvement / Building
| Improvement #1: | Residential Bldg | State Code: | 11 | 1312.0 sqft | Value: | $298,328 |
| Bathrooms (#): | 2 (FULL) | Bedrooms (#): | 2 | | Exterior Wall: | PL/T1 | Fireplace: | WD ST-GOOD | | Floor Construction: | FRAME | Foundation: | CONPR | | Heating/Cooling: | ELBB | Roof Cover: | COMP |
|
| | Type | Description | Class CD | Sub Class CD | Year Built | Area |
| | MA | Main Area | 3+ | 1S | 1977 | 1312.0 |
| | PATIO | House Patio | 4 | * | 1977 | 480.0 |
| | HCPOR | House Concrete Porch | 4 | * | 1977 | 32.0 |
| | HDECK | House Deck | 4 | * | 1977 | 416.0 |
| | GDET | Detached Garage | 3 | 1S | 1977 | 576.0 |
| | SHED | Shed (Table Not Dep) | 3 | * | 1977 | 100.0 |
| | ASPHD | Asphalt Drive | 4 | * | 1977 | 1000.0 |
Sketch
Property Image
Land
| 1 | 2680-1345S | | 1.0000 | 43560.00 | 0.00 | 0.00 | 1.00 | $138,000 | $0 |
| 2 | 1575A | | 0.5400 | 23522.40 | 0.00 | 0.00 | 0.00 | $4,968 | $0 |
Roll Value History
| 2025 | N/A | N/A | N/A | N/A | N/A |
| 2024 | $285,898 | $136,752 | $0 | $422,650 | $109,674 |
| 2023 | $273,468 | $125,003 | $0 | $398,471 | $109,674 |
| 2022 | $248,607 | $113,645 | $0 | $362,252 | $109,674 |
| 2021 | $205,886 | $100,855 | $0 | $306,741 | $109,674 |
Deed and Sales History
| 1 | 10/11/1996 | SWD | Statutory Warranty Deed | DILGER, PATRICK/EST | GRACZ, BENEDICT M/PATRICIA A | 0 | 0 | $84,500.00 | 80622 | 0 |
Payout Agreement
| No payout information available.. |