Property
Account |
| Property ID: | 12186 | Abbreviated Legal Description: | S34 T30 R2W TAX 71, TL TAX G WITH EASEMENT |
| Parcel # / Geo ID: | 002341041 | Agent Code: | |
| Type: | Real | | |
| Tax Area: | 0781 - 1-323F8E8H2C3L1 | Land Use Code | 19 |
| Open Space: | N | DFL | N |
| Historic Property: | N | Remodel Property: | N |
| Multi-Family Redevelopment: | N | | |
| Township: | 30N | Section: | 34 |
| Range: | 2W |
Location |
| Address: | 212 NEBEL DR SEQUIM, WA 98382 | Mapsco: | 125/031 |
| Neighborhood: | S34 T30 R2W | Map ID: | |
| Neighborhood CD: | 2680 |
Owner |
| Name: | HERBERT S COOK JR | Owner ID: | 13578 |
| Mailing Address: | KATHLEEN B COOK 395 BACHELOR RD SEQUIM, WA 98382-8708 | % Ownership: | 100.0000000000% |
| | | Exemptions: | |
Pay Tax Due
Select the appropriate checkbox next to the year to be paid. Multiple years may be selected.
*Convenience Fee not included
Taxes and Assessment Details
Property Tax Information as of
10/23/2025
Click on "Statement Details" to expand or collapse a tax statement.
* Please enter a valid date ** Please enter a valid date *
Statement Details |
| 2025 | 2113 | STATE - STATE LEVY (SCHOOL) | $376.73 | $376.73 | $0.00 | $0.00 | $376.73 | $376.73 |
| 2025 | 2113 | COUNTY - COUNTY LEVIES (CE, DD, VET, MH) | $148.15 | $148.15 | $0.00 | $0.00 | $148.15 | $148.15 |
| 2025 | 2113 | CONSERVE - CONSERVATION FUTURES | $4.44 | $4.44 | $0.00 | $0.00 | $4.44 | $4.44 |
| 2025 | 2113 | COROADS - COUNTY ROADS (ROADS, DIV TO CE) | $118.69 | $118.69 | $0.00 | $0.00 | $118.69 | $118.69 |
| 2025 | 2113 | PORTPT - PORT DISTRICT | $60.45 | $60.45 | $0.00 | $0.00 | $60.45 | $60.45 |
| 2025 | 2113 | PUD1 - PUD #1 | $9.70 | $9.69 | $0.00 | $0.00 | $9.70 | $9.69 |
| 2025 | 2113 | LIB1 - LIBRARY DIST #1 | $45.92 | $45.92 | $0.00 | $0.00 | $45.92 | $45.92 |
| 2025 | 2113 | HD2 - HOSP DIST #2 | $8.65 | $8.64 | $0.00 | $0.00 | $8.65 | $8.64 |
| 2025 | 2113 | SD323 - SCHOOL DIST #323 | $204.02 | $204.02 | $0.00 | $0.00 | $204.02 | $204.02 |
| 2025 | 2113 | FD8 - FIRE DISTRICT #8 | $174.81 | $174.81 | $0.00 | $0.00 | $174.81 | $174.81 |
| 2025 | 2113 | EMS8 - FIRE DIST #8 EMS | $55.27 | $55.27 | $0.00 | $0.00 | $55.27 | $55.27 |
| 2025 | 2113 | CEM3 - CEMETERY DIST #3 | $4.16 | $4.16 | $0.00 | $0.00 | $4.16 | $4.16 |
| 2025 | 2113 | FPLCA - DNR Landowner Contingency Assmt | $3.00 | $3.00 | $0.00 | $0.00 | $3.00 | $3.00 |
| 2025 | 2113 | JCCD - JC Conservation District | $2.60 | $2.60 | $0.00 | $0.00 | $2.60 | $2.60 |
| 2025 | 2113 | NWA - Noxious Weed Assessment | $2.30 | $2.30 | $0.00 | $0.00 | $2.30 | $2.30 |
| 2025 | 2113 | WAT - Clean Water District | $13.00 | $13.00 | $0.00 | $0.00 | $13.00 | $13.00 |
| 2025 | 2113 | TOTAL: | $1231.89 | $1231.87 | $0.00 | $0.00 | $1231.89 | $1231.87 |
|
| 2025 | 2113 | $1231.89 | $1231.87 | $0.00 | $0.00 | $1231.89 | $1231.87 |
Statement Details |
| 2024 | 2120 | STATE - STATE LEVY (SCHOOL) | $344.56 | $344.56 | $0.00 | $0.00 | $689.12 | $0.00 |
| 2024 | 2120 | COUNTY - COUNTY LEVIES (CE, DD, VET, MH) | $147.44 | $147.43 | $0.00 | $0.00 | $294.87 | $0.00 |
| 2024 | 2120 | CONSERVE - CONSERVATION FUTURES | $4.42 | $4.42 | $0.00 | $0.00 | $8.84 | $0.00 |
| 2024 | 2120 | COROADS - COUNTY ROADS (ROADS, DIV TO CE) | $118.65 | $118.63 | $0.00 | $0.00 | $237.28 | $0.00 |
| 2024 | 2120 | PORTPT - PORT DISTRICT | $60.91 | $60.89 | $0.00 | $0.00 | $121.80 | $0.00 |
| 2024 | 2120 | PUD1 - PUD #1 | $9.69 | $9.68 | $0.00 | $0.00 | $19.37 | $0.00 |
| 2024 | 2120 | LIB1 - LIBRARY DIST #1 | $45.90 | $45.90 | $0.00 | $0.00 | $91.80 | $0.00 |
| 2024 | 2120 | HD2 - HOSP DIST #2 | $8.61 | $8.60 | $0.00 | $0.00 | $17.21 | $0.00 |
| 2024 | 2120 | SD323 - SCHOOL DIST #323 | $193.83 | $193.82 | $0.00 | $0.00 | $387.65 | $0.00 |
| 2024 | 2120 | FD8 - FIRE DISTRICT #8 | $166.80 | $166.80 | $0.00 | $0.00 | $333.60 | $0.00 |
| 2024 | 2120 | EMS8 - FIRE DIST #8 EMS | $52.75 | $52.75 | $0.00 | $0.00 | $105.50 | $0.00 |
| 2024 | 2120 | CEM3 - CEMETERY DIST #3 | $4.24 | $4.24 | $0.00 | $0.00 | $8.48 | $0.00 |
| 2024 | 2120 | FPLCA - DNR Landowner Contingency Assmt | $3.00 | $3.00 | $0.00 | $0.00 | $6.00 | $0.00 |
| 2024 | 2120 | JCCD - JC Conservation District | $2.60 | $2.60 | $0.00 | $0.00 | $5.20 | $0.00 |
| 2024 | 2120 | NWA - Noxious Weed Assessment | $2.30 | $2.30 | $0.00 | $0.00 | $4.60 | $0.00 |
| 2024 | 2120 | WAT - Clean Water District | $12.50 | $12.50 | $0.00 | $0.00 | $25.00 | $0.00 |
| 2024 | 2120 | TOTAL: | $1178.20 | $1178.12 | $0.00 | $0.00 | $2356.32 | $0.00 |
|
| 2024 | 2120 | $1178.20 | $1178.12 | $0.00 | $0.00 | $2356.32 | $0.00 |
Statement Details |
| 2023 | 2122 | STATE - STATE LEVY (SCHOOL) | $329.48 | $329.46 | $0.00 | $0.00 | $658.94 | $0.00 |
| 2023 | 2122 | COUNTY - COUNTY LEVIES (CE, DD, VET, MH) | $143.79 | $143.75 | $0.00 | $0.00 | $287.54 | $0.00 |
| 2023 | 2122 | CONSERVE - CONSERVATION FUTURES | $4.31 | $4.31 | $0.00 | $0.00 | $8.62 | $0.00 |
| 2023 | 2122 | COROADS - COUNTY ROADS (ROADS, DIV TO CE) | $116.32 | $116.32 | $0.00 | $0.00 | $232.64 | $0.00 |
| 2023 | 2122 | PORTPT - PORT DISTRICT | $60.56 | $60.56 | $0.00 | $0.00 | $121.12 | $0.00 |
| 2023 | 2122 | PUD1 - PUD #1 | $9.53 | $9.53 | $0.00 | $0.00 | $19.06 | $0.00 |
| 2023 | 2122 | LIB1 - LIBRARY DIST #1 | $45.01 | $45.00 | $0.00 | $0.00 | $90.01 | $0.00 |
| 2023 | 2122 | HD2 - HOSP DIST #2 | $8.40 | $8.38 | $0.00 | $0.00 | $16.78 | $0.00 |
| 2023 | 2122 | SD323 - SCHOOL DIST #323 | $190.06 | $190.04 | $0.00 | $0.00 | $380.10 | $0.00 |
| 2023 | 2122 | FD8 - FIRE DISTRICT #8 | $158.41 | $158.41 | $0.00 | $0.00 | $316.82 | $0.00 |
| 2023 | 2122 | EMS8 - FIRE DIST #8 EMS | $51.80 | $51.80 | $0.00 | $0.00 | $103.60 | $0.00 |
| 2023 | 2122 | CEM3 - CEMETERY DIST #3 | $4.51 | $4.50 | $0.00 | $0.00 | $9.01 | $0.00 |
| 2023 | 2122 | FPLCA - DNR Landowner Contingency Assmt | $3.00 | $3.00 | $0.00 | $0.00 | $6.00 | $0.00 |
| 2023 | 2122 | JCCD - JC Conservation District | $2.60 | $2.60 | $0.00 | $0.00 | $5.20 | $0.00 |
| 2023 | 2122 | NWA - Noxious Weed Assessment | $2.30 | $2.30 | $0.00 | $0.00 | $4.60 | $0.00 |
| 2023 | 2122 | WAT - Clean Water District | $12.00 | $12.00 | $0.00 | $0.00 | $24.00 | $0.00 |
| 2023 | 2122 | TOTAL: | $1142.08 | $1141.96 | $0.00 | $0.00 | $2284.04 | $0.00 |
|
| 2023 | 2122 | $1142.08 | $1141.96 | $0.00 | $0.00 | $2284.04 | $0.00 |
Statement Details |
| 2022 | 2126 | STATE - STATE LEVY (SCHOOL) | $360.98 | $360.97 | $0.00 | $0.00 | $721.95 | $0.00 |
| 2022 | 2126 | COUNTY - COUNTY LEVIES (CE, DD, VET, MH) | $160.86 | $160.82 | $0.00 | $0.00 | $321.68 | $0.00 |
| 2022 | 2126 | CONSERVE - CONSERVATION FUTURES | $4.83 | $4.82 | $0.00 | $0.00 | $9.65 | $0.00 |
| 2022 | 2126 | COROADS - COUNTY ROADS (ROADS, DIV TO CE) | $130.73 | $130.71 | $0.00 | $0.00 | $261.44 | $0.00 |
| 2022 | 2126 | PORTPT - PORT DISTRICT | $68.86 | $68.85 | $0.00 | $0.00 | $137.71 | $0.00 |
| 2022 | 2126 | PUD1 - PUD #1 | $10.76 | $10.75 | $0.00 | $0.00 | $21.51 | $0.00 |
| 2022 | 2126 | LIB1 - LIBRARY DIST #1 | $50.58 | $50.57 | $0.00 | $0.00 | $101.15 | $0.00 |
| 2022 | 2126 | HD2 - HOSP DIST #2 | $9.39 | $9.39 | $0.00 | $0.00 | $18.78 | $0.00 |
| 2022 | 2126 | SD323 - SCHOOL DIST #323 | $220.59 | $220.58 | $0.00 | $0.00 | $441.17 | $0.00 |
| 2022 | 2126 | FD8 - FIRE DISTRICT #8 | $168.90 | $168.90 | $0.00 | $0.00 | $337.80 | $0.00 |
| 2022 | 2126 | EMS8 - FIRE DIST #8 EMS | $59.76 | $59.76 | $0.00 | $0.00 | $119.52 | $0.00 |
| 2022 | 2126 | CEM3 - CEMETERY DIST #3 | $5.05 | $5.04 | $0.00 | $0.00 | $10.09 | $0.00 |
| 2022 | 2126 | FPLCA - DNR Landowner Contingency Assmt | $3.00 | $3.00 | $0.00 | $0.00 | $6.00 | $0.00 |
| 2022 | 2126 | JCCD - JC Conservation District | $2.60 | $2.60 | $0.00 | $0.00 | $5.20 | $0.00 |
| 2022 | 2126 | NWA - Noxious Weed Assessment | $2.30 | $2.30 | $0.00 | $0.00 | $4.60 | $0.00 |
| 2022 | 2126 | WAT - Clean Water District | $11.50 | $11.50 | $0.00 | $0.00 | $23.00 | $0.00 |
| 2022 | 2126 | TOTAL: | $1270.69 | $1270.56 | $0.00 | $0.00 | $2541.25 | $0.00 |
|
| 2022 | 2126 | $1270.69 | $1270.56 | $0.00 | $0.00 | $2541.25 | $0.00 |
Values
| (+) Improvement Homesite Value: | + | $0 | |
| (+) Improvement Non-Homesite Value: | + | $19,238 | |
| (+) Land Homesite Value: | + | $0 | |
| (+) Land Non-Homesite Value: | + | $309,207 | |
| (+) Curr Use (HS): | + | $0 | $0 |
| (+) Curr Use (NHS): | + | $0 | $0 |
| | | -------------------------- | |
| (=) Market Value: | = | $328,445 | |
| (–) Productivity Loss: | – | $0 | |
| | | -------------------------- | |
| (=) Subtotal: | = | $328,445 | |
| (+) Senior Appraised Value: | + | $0 | |
| (+) Non-Senior Appraised Value: | + | $328,445 | |
| | | -------------------------- | |
| (=) Total Appraised Value: | = | $328,445 | |
| (–) Senior Exemption Loss: | – | $0 | |
| (–) Exemption Loss: | – | $0 | |
| | | -------------------------- | |
| (=) Taxable Value: | = | $328,445 | |
Taxing Jurisdiction
| Owner: | HERBERT S COOK JR | | |
| % Ownership: | 100.0000000000% | | |
| Total Value: | N/A | | |
| Tax Area: | 0781 - 1-323F8E8H2C3L1 |
| CE | COUNTY CURRENT EXPENSE | N/A | N/A | N/A | N/A | | |
| CNTYDD | DEVELOPMENTAL DISABILITIES | N/A | N/A | N/A | N/A | | |
| CNTYVET | VETERANS RELIEF | N/A | N/A | N/A | N/A | | |
| MENTAL | MENTAL HEALTH | N/A | N/A | N/A | N/A | | |
| ROADS | COUNTY ROADS | N/A | N/A | N/A | N/A | | |
| ROADSCU | COUNTY ROADS TO CUR EXP | N/A | N/A | N/A | N/A | | |
| HOSP2CASH | HOSP DIST #2 GENERAL | N/A | N/A | N/A | N/A | | |
| SCH323BOND | SCHOOL DIST #323 BOND | N/A | N/A | N/A | N/A | | |
| SCH323CP | SCHOOL DIST #323 CAP PROJ | N/A | N/A | N/A | N/A | | |
| SCH323MO | SCHOOL DIST #323 EP & O | N/A | N/A | N/A | N/A | | |
| CEM3 | CEMETERY DIST #3 GENERAL | N/A | N/A | N/A | N/A | | |
| CONSERVE | CONSERVATION FUTURES | N/A | N/A | N/A | N/A | | |
| EMS8 | FIRE DIST #8 EMS | N/A | N/A | N/A | N/A | | |
| FD8 | FIRE DIST #8 GENERAL | N/A | N/A | N/A | N/A | | |
| LIB1 | LIBRARY DIST #1 GENERAL | N/A | N/A | N/A | N/A | | |
| PORTPT | PORT OF PT GENERAL | N/A | N/A | N/A | N/A | | |
| PORTPTIDD | PORT OF PT IDD 2019 | N/A | N/A | N/A | N/A | | |
| PUD1 | PUD #1 GENERAL | N/A | N/A | N/A | N/A | | |
| STATE | STATE SCHOOL PART 1 | N/A | N/A | N/A | N/A | | |
| STATE2 | STATE SCHOOL PART 2 | N/A | N/A | N/A | N/A | | |
| | Total Tax Rate: | N/A | | | | | |
| | | | | Taxes w/Current Exemptions: | N/A | | |
| | | | | Taxes w/o Exemptions: | N/A | | |
Improvement / Building
| Improvement #1: | Residential Bldg | State Code: | 19 | 384.0 sqft | Value: | $19,238 |
| Bedrooms (#): | 1 | Exterior Wall: | SI/ST | | Fireplace: | WD ST-FAIR | Floor Construction: | FRAME | | Foundation: | PO&BL | Heating/Cooling: | WD/NO | | Inside Verify: | YES-FIX | Interior Finish: | FIN | | Roof Cover: | METAL |   |   |
|
| | Type | Description | Class CD | Sub Class CD | Year Built | Area |
| | MA | Main Area | 2 | C1S | 1976 | 384.0 |
| | CDECK | Cabin Deck | 2 | * | 1976 | 132.0 |
| | SHED | Shed (Table Not Dep) | 3 | * | 1976 | 288.0 |
Sketch
Property Image
Land
| 1 | 2680-1515F | | 0.0000 | 0.00 | 0.00 | 0.00 | 0.00 | $293,250 | $0 |
| 2 | 2680-1515F | | 0.0000 | 0.00 | 0.00 | 0.00 | 0.00 | $12,938 | $0 |
| 3 | 9301F | | 0.0000 | 0.00 | 0.00 | 0.00 | 0.00 | $3,019 | $0 |
Roll Value History
| 2025 | N/A | N/A | N/A | N/A | N/A |
| 2024 | $18,437 | $295,763 | $0 | $314,200 | $314,200 |
| 2023 | $17,635 | $280,219 | $0 | $297,854 | $297,854 |
| 2022 | $16,032 | $263,875 | $0 | $279,907 | $279,907 |
| 2021 | $13,941 | $250,096 | $0 | $264,037 | $264,037 |
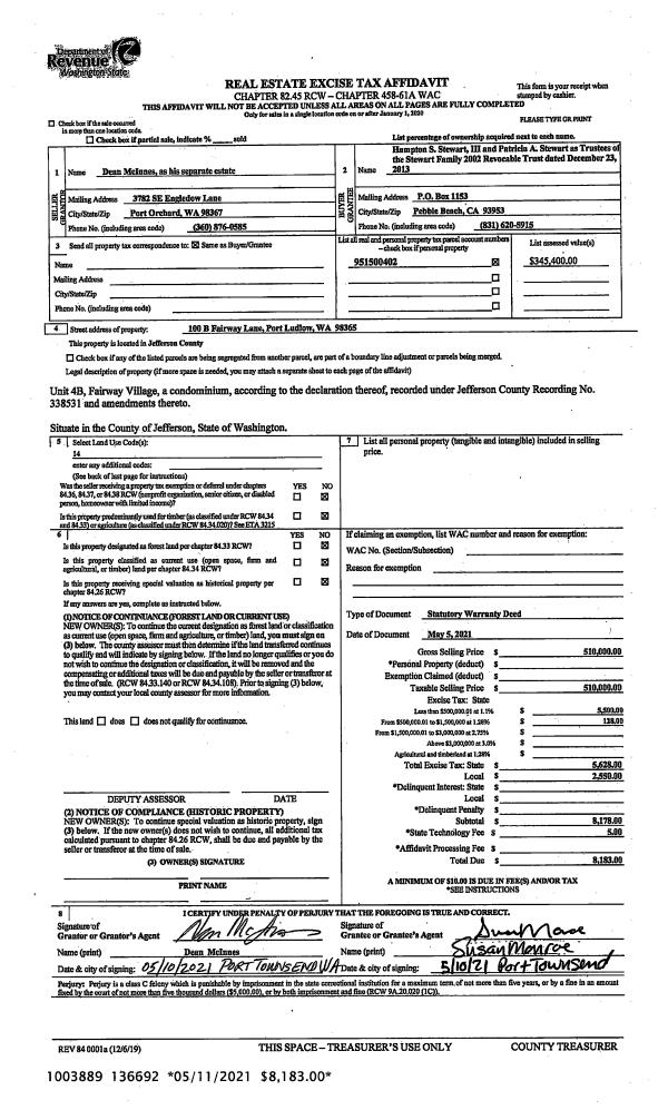
Deed and Sales History
| 1 | 10/17/2000 | SWD | Statutory Warranty Deed | CASSALERY, ALMON W & GRAC | COOK, JR - HERBERT S & KATHLEE | 0 | 0 | $152,500.00 | 90973 | 0 |
Payout Agreement
| No payout information available.. |