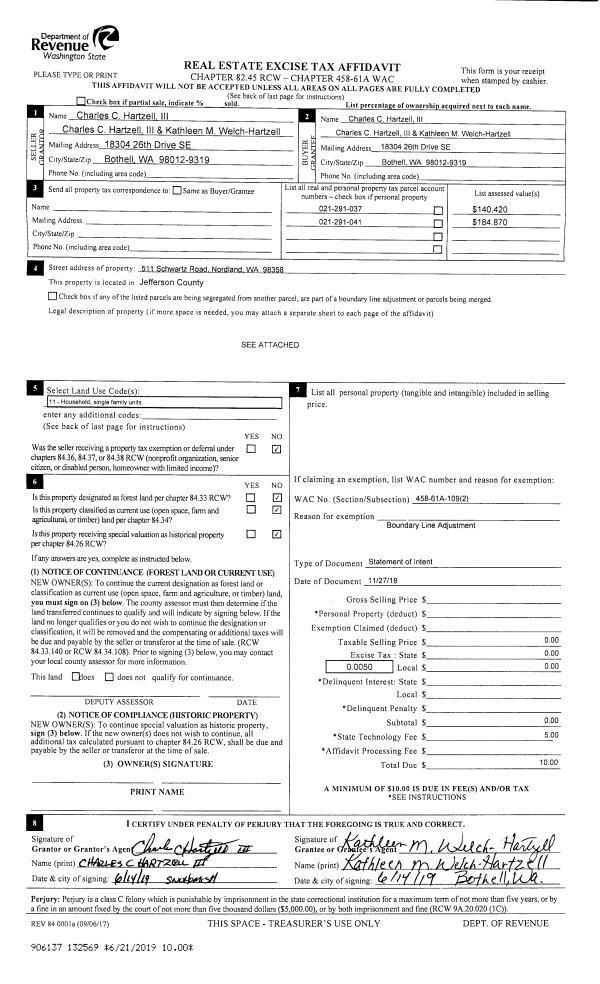
Property
Account |
| Property ID: | 12208 | Abbreviated Legal Description: | S34 T30 R2W E1/2 NENENW(LS E133' &W25'OF N125'&TX 27ENLG) (LS TAX 101) |
| Parcel # / Geo ID: | 002342002 | Agent Code: | |
| Type: | Real | | |
| Tax Area: | 0781 - 1-323F8E8H2C3L1 | Land Use Code | 19 |
| Open Space: | N | DFL | N |
| Historic Property: | N | Remodel Property: | N |
| Multi-Family Redevelopment: | N | | |
| Township: | 30N | Section: | 34 |
| Range: | 2W |
Location |
| Address: | | Mapsco: | 124/001 |
| Neighborhood: | S34 T30 R2W | Map ID: | |
| Neighborhood CD: | 2680 |
Owner |
| Name: | ANNE M SLINN | Owner ID: | 105226 |
| Mailing Address: | ANTHONY G SLINN GEORGE SLINN FAMILY TRUST G SLINN TRSTEE 385 GARDINER BEACH RD SEQUIM, WA 98382-8725 | % Ownership: | 100.0000000000% |
| | | Exemptions: | |
Pay Tax Due
There is currently No Amount Due on this property.
Taxes and Assessment Details
Property Tax Information as of
10/23/2025
Click on "Statement Details" to expand or collapse a tax statement.
* Please enter a valid date ** Please enter a valid date *
Statement Details |
| 2025 | 2134 | STATE - STATE LEVY (SCHOOL) | $156.55 | $156.53 | $0.00 | $0.00 | $313.08 | $0.00 |
| 2025 | 2134 | COUNTY - COUNTY LEVIES (CE, DD, VET, MH) | $61.57 | $61.56 | $0.00 | $0.00 | $123.13 | $0.00 |
| 2025 | 2134 | CONSERVE - CONSERVATION FUTURES | $1.85 | $1.84 | $0.00 | $0.00 | $3.69 | $0.00 |
| 2025 | 2134 | COROADS - COUNTY ROADS (ROADS, DIV TO CE) | $49.33 | $49.31 | $0.00 | $0.00 | $98.64 | $0.00 |
| 2025 | 2134 | PORTPT - PORT DISTRICT | $25.12 | $25.12 | $0.00 | $0.00 | $50.24 | $0.00 |
| 2025 | 2134 | PUD1 - PUD #1 | $4.03 | $4.03 | $0.00 | $0.00 | $8.06 | $0.00 |
| 2025 | 2134 | LIB1 - LIBRARY DIST #1 | $19.08 | $19.08 | $0.00 | $0.00 | $38.16 | $0.00 |
| 2025 | 2134 | HD2 - HOSP DIST #2 | $3.59 | $3.59 | $0.00 | $0.00 | $7.18 | $0.00 |
| 2025 | 2134 | SD323 - SCHOOL DIST #323 | $84.78 | $84.77 | $0.00 | $0.00 | $169.55 | $0.00 |
| 2025 | 2134 | FD8 - FIRE DISTRICT #8 | $72.64 | $72.63 | $0.00 | $0.00 | $145.27 | $0.00 |
| 2025 | 2134 | EMS8 - FIRE DIST #8 EMS | $22.97 | $22.96 | $0.00 | $0.00 | $45.93 | $0.00 |
| 2025 | 2134 | CEM3 - CEMETERY DIST #3 | $1.73 | $1.73 | $0.00 | $0.00 | $3.46 | $0.00 |
| 2025 | 2134 | FP - DNR Forest Fire Protection Assmt | $8.50 | $8.50 | $0.00 | $0.00 | $17.00 | $0.00 |
| 2025 | 2134 | FPLCA - DNR Landowner Contingency Assmt | $3.00 | $3.00 | $0.00 | $0.00 | $6.00 | $0.00 |
| 2025 | 2134 | JCCD - JC Conservation District | $2.65 | $2.65 | $0.00 | $0.00 | $5.30 | $0.00 |
| 2025 | 2134 | NWA - Noxious Weed Assessment | $2.45 | $2.45 | $0.00 | $0.00 | $4.90 | $0.00 |
| 2025 | 2134 | WAT - Clean Water District | $13.00 | $13.00 | $0.00 | $0.00 | $26.00 | $0.00 |
| 2025 | 2134 | FP ADMIN - FP ADMIN | $0.50 | $0.00 | $0.00 | $0.00 | $0.50 | $0.00 |
| 2025 | 2134 | TOTAL: | $533.34 | $532.75 | $0.00 | $0.00 | $1066.09 | $0.00 |
|
| 2025 | 2134 | $533.34 | $532.75 | $0.00 | $0.00 | $1066.09 | $0.00 |
Statement Details |
| 2024 | 2141 | STATE - STATE LEVY (SCHOOL) | $140.12 | $140.12 | $0.00 | $0.00 | $280.24 | $0.00 |
| 2024 | 2141 | COUNTY - COUNTY LEVIES (CE, DD, VET, MH) | $59.97 | $59.96 | $0.00 | $0.00 | $119.93 | $0.00 |
| 2024 | 2141 | CONSERVE - CONSERVATION FUTURES | $1.80 | $1.80 | $0.00 | $0.00 | $3.60 | $0.00 |
| 2024 | 2141 | COROADS - COUNTY ROADS (ROADS, DIV TO CE) | $48.26 | $48.24 | $0.00 | $0.00 | $96.50 | $0.00 |
| 2024 | 2141 | PORTPT - PORT DISTRICT | $24.77 | $24.76 | $0.00 | $0.00 | $49.53 | $0.00 |
| 2024 | 2141 | PUD1 - PUD #1 | $3.94 | $3.94 | $0.00 | $0.00 | $7.88 | $0.00 |
| 2024 | 2141 | LIB1 - LIBRARY DIST #1 | $18.67 | $18.66 | $0.00 | $0.00 | $37.33 | $0.00 |
| 2024 | 2141 | HD2 - HOSP DIST #2 | $3.50 | $3.50 | $0.00 | $0.00 | $7.00 | $0.00 |
| 2024 | 2141 | SD323 - SCHOOL DIST #323 | $78.83 | $78.81 | $0.00 | $0.00 | $157.64 | $0.00 |
| 2024 | 2141 | FD8 - FIRE DISTRICT #8 | $67.84 | $67.83 | $0.00 | $0.00 | $135.67 | $0.00 |
| 2024 | 2141 | EMS8 - FIRE DIST #8 EMS | $21.45 | $21.45 | $0.00 | $0.00 | $42.90 | $0.00 |
| 2024 | 2141 | CEM3 - CEMETERY DIST #3 | $1.73 | $1.72 | $0.00 | $0.00 | $3.45 | $0.00 |
| 2024 | 2141 | FP - DNR Forest Fire Protection Assmt | $8.50 | $8.50 | $0.00 | $0.00 | $17.00 | $0.00 |
| 2024 | 2141 | FPLCA - DNR Landowner Contingency Assmt | $3.00 | $3.00 | $0.00 | $0.00 | $6.00 | $0.00 |
| 2024 | 2141 | JCCD - JC Conservation District | $2.65 | $2.65 | $0.00 | $0.00 | $5.30 | $0.00 |
| 2024 | 2141 | NWA - Noxious Weed Assessment | $2.45 | $2.45 | $0.00 | $0.00 | $4.90 | $0.00 |
| 2024 | 2141 | WAT - Clean Water District | $12.50 | $12.50 | $0.00 | $0.00 | $25.00 | $0.00 |
| 2024 | 2141 | FP ADMIN - FP ADMIN | $0.50 | $0.00 | $0.00 | $0.00 | $0.50 | $0.00 |
| 2024 | 2141 | TOTAL: | $500.48 | $499.89 | $0.00 | $0.00 | $1000.37 | $0.00 |
|
| 2024 | 2141 | $500.48 | $499.89 | $0.00 | $0.00 | $1000.37 | $0.00 |
Statement Details |
| 2023 | 2143 | STATE - STATE LEVY (SCHOOL) | $128.87 | $128.85 | $0.00 | $0.00 | $257.72 | $0.00 |
| 2023 | 2143 | COUNTY - COUNTY LEVIES (CE, DD, VET, MH) | $56.24 | $56.23 | $0.00 | $0.00 | $112.47 | $0.00 |
| 2023 | 2143 | CONSERVE - CONSERVATION FUTURES | $1.69 | $1.68 | $0.00 | $0.00 | $3.37 | $0.00 |
| 2023 | 2143 | COROADS - COUNTY ROADS (ROADS, DIV TO CE) | $45.50 | $45.49 | $0.00 | $0.00 | $90.99 | $0.00 |
| 2023 | 2143 | PORTPT - PORT DISTRICT | $23.70 | $23.68 | $0.00 | $0.00 | $47.38 | $0.00 |
| 2023 | 2143 | PUD1 - PUD #1 | $3.73 | $3.72 | $0.00 | $0.00 | $7.45 | $0.00 |
| 2023 | 2143 | LIB1 - LIBRARY DIST #1 | $17.60 | $17.60 | $0.00 | $0.00 | $35.20 | $0.00 |
| 2023 | 2143 | HD2 - HOSP DIST #2 | $3.29 | $3.28 | $0.00 | $0.00 | $6.57 | $0.00 |
| 2023 | 2143 | SD323 - SCHOOL DIST #323 | $74.34 | $74.32 | $0.00 | $0.00 | $148.66 | $0.00 |
| 2023 | 2143 | FD8 - FIRE DISTRICT #8 | $61.96 | $61.95 | $0.00 | $0.00 | $123.91 | $0.00 |
| 2023 | 2143 | EMS8 - FIRE DIST #8 EMS | $20.26 | $20.26 | $0.00 | $0.00 | $40.52 | $0.00 |
| 2023 | 2143 | CEM3 - CEMETERY DIST #3 | $1.77 | $1.76 | $0.00 | $0.00 | $3.53 | $0.00 |
| 2023 | 2143 | FP - DNR Forest Fire Protection Assmt | $8.50 | $8.50 | $0.00 | $0.00 | $17.00 | $0.00 |
| 2023 | 2143 | FPLCA - DNR Landowner Contingency Assmt | $3.00 | $3.00 | $0.00 | $0.00 | $6.00 | $0.00 |
| 2023 | 2143 | JCCD - JC Conservation District | $2.65 | $2.65 | $0.00 | $0.00 | $5.30 | $0.00 |
| 2023 | 2143 | NWA - Noxious Weed Assessment | $2.45 | $2.45 | $0.00 | $0.00 | $4.90 | $0.00 |
| 2023 | 2143 | WAT - Clean Water District | $12.00 | $12.00 | $0.00 | $0.00 | $24.00 | $0.00 |
| 2023 | 2143 | FP ADMIN - FP ADMIN | $0.50 | $0.00 | $0.00 | $0.00 | $0.50 | $0.00 |
| 2023 | 2143 | TOTAL: | $468.05 | $467.42 | $0.00 | $0.00 | $935.47 | $0.00 |
|
| 2023 | 2143 | $468.05 | $467.42 | $0.00 | $0.00 | $935.47 | $0.00 |
Statement Details |
| 2022 | 2147 | STATE - STATE LEVY (SCHOOL) | $107.45 | $107.45 | $0.00 | $0.00 | $214.90 | $0.00 |
| 2022 | 2147 | COUNTY - COUNTY LEVIES (CE, DD, VET, MH) | $47.88 | $47.86 | $0.00 | $0.00 | $95.74 | $0.00 |
| 2022 | 2147 | CONSERVE - CONSERVATION FUTURES | $1.44 | $1.43 | $0.00 | $0.00 | $2.87 | $0.00 |
| 2022 | 2147 | COROADS - COUNTY ROADS (ROADS, DIV TO CE) | $38.92 | $38.90 | $0.00 | $0.00 | $77.82 | $0.00 |
| 2022 | 2147 | PORTPT - PORT DISTRICT | $20.50 | $20.49 | $0.00 | $0.00 | $40.99 | $0.00 |
| 2022 | 2147 | PUD1 - PUD #1 | $3.20 | $3.20 | $0.00 | $0.00 | $6.40 | $0.00 |
| 2022 | 2147 | LIB1 - LIBRARY DIST #1 | $15.06 | $15.05 | $0.00 | $0.00 | $30.11 | $0.00 |
| 2022 | 2147 | HD2 - HOSP DIST #2 | $2.80 | $2.79 | $0.00 | $0.00 | $5.59 | $0.00 |
| 2022 | 2147 | SD323 - SCHOOL DIST #323 | $65.67 | $65.65 | $0.00 | $0.00 | $131.32 | $0.00 |
| 2022 | 2147 | FD8 - FIRE DISTRICT #8 | $50.28 | $50.27 | $0.00 | $0.00 | $100.55 | $0.00 |
| 2022 | 2147 | EMS8 - FIRE DIST #8 EMS | $17.79 | $17.79 | $0.00 | $0.00 | $35.58 | $0.00 |
| 2022 | 2147 | CEM3 - CEMETERY DIST #3 | $1.50 | $1.50 | $0.00 | $0.00 | $3.00 | $0.00 |
| 2022 | 2147 | FP - DNR Forest Fire Protection Assmt | $8.50 | $8.50 | $0.00 | $0.00 | $17.00 | $0.00 |
| 2022 | 2147 | FPLCA - DNR Landowner Contingency Assmt | $3.00 | $3.00 | $0.00 | $0.00 | $6.00 | $0.00 |
| 2022 | 2147 | JCCD - JC Conservation District | $2.65 | $2.65 | $0.00 | $0.00 | $5.30 | $0.00 |
| 2022 | 2147 | NWA - Noxious Weed Assessment | $2.45 | $2.45 | $0.00 | $0.00 | $4.90 | $0.00 |
| 2022 | 2147 | WAT - Clean Water District | $11.50 | $11.50 | $0.00 | $0.00 | $23.00 | $0.00 |
| 2022 | 2147 | FP ADMIN - FP ADMIN | $0.50 | $0.00 | $0.00 | $0.00 | $0.50 | $0.00 |
| 2022 | 2147 | TOTAL: | $401.09 | $400.48 | $0.00 | $0.00 | $801.57 | $0.00 |
|
| 2022 | 2147 | $401.09 | $400.48 | $0.00 | $0.00 | $801.57 | $0.00 |
Values
| (+) Improvement Homesite Value: | + | $0 | |
| (+) Improvement Non-Homesite Value: | + | $5,465 | |
| (+) Land Homesite Value: | + | $0 | |
| (+) Land Non-Homesite Value: | + | $131,014 | |
| (+) Curr Use (HS): | + | $0 | $0 |
| (+) Curr Use (NHS): | + | $0 | $0 |
| | | -------------------------- | |
| (=) Market Value: | = | $136,479 | |
| (–) Productivity Loss: | – | $0 | |
| | | -------------------------- | |
| (=) Subtotal: | = | $136,479 | |
| (+) Senior Appraised Value: | + | $0 | |
| (+) Non-Senior Appraised Value: | + | $136,479 | |
| | | -------------------------- | |
| (=) Total Appraised Value: | = | $136,479 | |
| (–) Senior Exemption Loss: | – | $0 | |
| (–) Exemption Loss: | – | $0 | |
| | | -------------------------- | |
| (=) Taxable Value: | = | $136,479 | |
Taxing Jurisdiction
| Owner: | ANNE M SLINN | | |
| % Ownership: | 100.0000000000% | | |
| Total Value: | N/A | | |
| Tax Area: | 0781 - 1-323F8E8H2C3L1 |
| CE | COUNTY CURRENT EXPENSE | N/A | N/A | N/A | N/A | | |
| CNTYDD | DEVELOPMENTAL DISABILITIES | N/A | N/A | N/A | N/A | | |
| CNTYVET | VETERANS RELIEF | N/A | N/A | N/A | N/A | | |
| MENTAL | MENTAL HEALTH | N/A | N/A | N/A | N/A | | |
| ROADS | COUNTY ROADS | N/A | N/A | N/A | N/A | | |
| ROADSCU | COUNTY ROADS TO CUR EXP | N/A | N/A | N/A | N/A | | |
| HOSP2CASH | HOSP DIST #2 GENERAL | N/A | N/A | N/A | N/A | | |
| SCH323BOND | SCHOOL DIST #323 BOND | N/A | N/A | N/A | N/A | | |
| SCH323CP | SCHOOL DIST #323 CAP PROJ | N/A | N/A | N/A | N/A | | |
| SCH323MO | SCHOOL DIST #323 EP & O | N/A | N/A | N/A | N/A | | |
| CEM3 | CEMETERY DIST #3 GENERAL | N/A | N/A | N/A | N/A | | |
| CONSERVE | CONSERVATION FUTURES | N/A | N/A | N/A | N/A | | |
| EMS8 | FIRE DIST #8 EMS | N/A | N/A | N/A | N/A | | |
| FD8 | FIRE DIST #8 GENERAL | N/A | N/A | N/A | N/A | | |
| LIB1 | LIBRARY DIST #1 GENERAL | N/A | N/A | N/A | N/A | | |
| PORTPT | PORT OF PT GENERAL | N/A | N/A | N/A | N/A | | |
| PORTPTIDD | PORT OF PT IDD 2019 | N/A | N/A | N/A | N/A | | |
| PUD1 | PUD #1 GENERAL | N/A | N/A | N/A | N/A | | |
| STATE | STATE SCHOOL PART 1 | N/A | N/A | N/A | N/A | | |
| STATE2 | STATE SCHOOL PART 2 | N/A | N/A | N/A | N/A | | |
| | Total Tax Rate: | N/A | | | | | |
| | | | | Taxes w/Current Exemptions: | N/A | | |
| | | | | Taxes w/o Exemptions: | N/A | | |
Improvement / Building
| Improvement #1: | Site Improvements | State Code: | 19 | 0.0 sqft | Value: | $5,465 |
| | Type | Description | Class CD | Sub Class CD | Year Built | Area |
| | CARPT | Carport (Table Not Dep) | 2 | * | 2020 | 448.0 |
| | SHED | Shed (Table Not Dep) | 2 | * | 2020 | 96.0 |
Sketch
Property Image
Land
| 1 | 2680-1355S | | 1.0000 | 43560.00 | 0.00 | 0.00 | 1.00 | $97,750 | $0 |
| 2 | 1571A | | 1.7800 | 77536.80 | 0.00 | 0.00 | 0.00 | $33,264 | $0 |
Roll Value History
| 2025 | N/A | N/A | N/A | N/A | N/A |
| 2024 | $5,237 | $125,318 | $0 | $130,555 | $130,555 |
| 2023 | $5,009 | $116,120 | $0 | $121,129 | $121,129 |
| 2022 | $4,554 | $104,920 | $0 | $109,474 | $109,474 |
| 2021 | $3,960 | $74,635 | $0 | $78,595 | $78,595 |
Deed and Sales History
| 1 | 07/23/2021 | SWD | Statutory Warranty Deed | | | | | | 137484 | |
| 2 | 07/23/2021 | SWD | Statutory Warranty Deed | KIRSTEN TRATNICK | ANNE M SLINN | | | $344,000.00 | 137250 | |
|   | |
| 3 | 02/18/2021 | PRD | Personal Representatives Deed | RONALD D KLOPFENSTEIN | KIRSTEN TRATNICK | | | | 136160 | |
| 4 | 04/17/2019 | LOP | Lack of Probate | KATHLEEN M KING | RONALD D KLOPFENSTEIN | | | | 132168 | |
| 5 | 05/30/1996 | SWD | Statutory Warranty Deed | | | | | | 132800 | |
| 6 | 08/13/1996 | SWD | Statutory Warranty Deed | KING, LOUISE D | KING, KATHLEEN M | 0 | 0 | $0.00 | 80163 | 0 |
| 7 | 05/30/1996 | SWD | Statutory Warranty Deed | KING, LOUISE E | KING, KATHLEEN M | 0 | 0 | $0.00 | 79761 | 0 |
Payout Agreement
| No payout information available.. |