Property
Account |
| Property ID: | 12234 | Abbreviated Legal Description: | S34 T30N R2W TAX 84(LS RD R/W) |
| Parcel # / Geo ID: | 002342039 | Agent Code: | |
| Type: | Real | | |
| Tax Area: | 0781 - 1-323F8E8H2C3L1 | Land Use Code | 83 |
| Open Space: | Y | DFL | N |
| Historic Property: | N | Remodel Property: | N |
| Multi-Family Redevelopment: | N | | |
| Township: | 30N | Section: | 34 |
| Range: | 2W |
Location |
| Address: | | Mapsco: | 125/043 |
| Neighborhood: | S34 T30 R2W | Map ID: | |
| Neighborhood CD: | 2680 |
Owner |
| Name: | LONNIE R & LARA PLECHER | Owner ID: | 101535 |
| Mailing Address: | 42 ANCHOR COVE LANE SEQUIM, WA 98382-3100 | % Ownership: | 100.0000000000% |
| | | Exemptions: | |
Pay Tax Due
Select the appropriate checkbox next to the year to be paid. Multiple years may be selected.
*Convenience Fee not included
Taxes and Assessment Details
Property Tax Information as of
10/23/2025
Click on "Statement Details" to expand or collapse a tax statement.
* Please enter a valid date ** Please enter a valid date *
Statement Details |
| 2025 | 2160 | STATE - STATE LEVY (SCHOOL) | $93.29 | $93.28 | $0.00 | $0.00 | $93.29 | $93.28 |
| 2025 | 2160 | COUNTY - COUNTY LEVIES (CE, DD, VET, MH) | $36.69 | $36.69 | $0.00 | $0.00 | $36.69 | $36.69 |
| 2025 | 2160 | CONSERVE - CONSERVATION FUTURES | $1.10 | $1.10 | $0.00 | $0.00 | $1.10 | $1.10 |
| 2025 | 2160 | COROADS - COUNTY ROADS (ROADS, DIV TO CE) | $29.40 | $29.38 | $0.00 | $0.00 | $29.40 | $29.38 |
| 2025 | 2160 | PORTPT - PORT DISTRICT | $14.97 | $14.97 | $0.00 | $0.00 | $14.97 | $14.97 |
| 2025 | 2160 | PUD1 - PUD #1 | $2.40 | $2.40 | $0.00 | $0.00 | $2.40 | $2.40 |
| 2025 | 2160 | LIB1 - LIBRARY DIST #1 | $11.37 | $11.37 | $0.00 | $0.00 | $11.37 | $11.37 |
| 2025 | 2160 | HD2 - HOSP DIST #2 | $2.14 | $2.14 | $0.00 | $0.00 | $2.14 | $2.14 |
| 2025 | 2160 | SD323 - SCHOOL DIST #323 | $50.53 | $50.51 | $0.00 | $0.00 | $50.53 | $50.51 |
| 2025 | 2160 | FD8 - FIRE DISTRICT #8 | $43.29 | $43.28 | $0.00 | $0.00 | $43.29 | $43.28 |
| 2025 | 2160 | EMS8 - FIRE DIST #8 EMS | $13.69 | $13.68 | $0.00 | $0.00 | $13.69 | $13.68 |
| 2025 | 2160 | CEM3 - CEMETERY DIST #3 | $1.03 | $1.03 | $0.00 | $0.00 | $1.03 | $1.03 |
| 2025 | 2160 | FP - DNR Forest Fire Protection Assmt | $8.50 | $8.50 | $0.00 | $0.00 | $8.50 | $8.50 |
| 2025 | 2160 | FPLCA - DNR Landowner Contingency Assmt | $3.00 | $3.00 | $0.00 | $0.00 | $3.00 | $3.00 |
| 2025 | 2160 | JCCD - JC Conservation District | $2.75 | $2.74 | $0.00 | $0.00 | $2.75 | $2.74 |
| 2025 | 2160 | NWA - Noxious Weed Assessment | $2.75 | $2.75 | $0.00 | $0.00 | $2.75 | $2.75 |
| 2025 | 2160 | WAT - Clean Water District | $13.00 | $13.00 | $0.00 | $0.00 | $13.00 | $13.00 |
| 2025 | 2160 | FP ADMIN - FP ADMIN | $0.50 | $0.00 | $0.00 | $0.00 | $0.50 | $0.00 |
| 2025 | 2160 | TOTAL: | $330.40 | $329.82 | $0.00 | $0.00 | $330.40 | $329.82 |
|
| 2025 | 2160 | $330.40 | $329.82 | $0.00 | $0.00 | $330.40 | $329.82 |
Statement Details |
| 2024 | 2167 | STATE - STATE LEVY (SCHOOL) | $85.95 | $85.95 | $0.00 | $0.00 | $171.90 | $0.00 |
| 2024 | 2167 | COUNTY - COUNTY LEVIES (CE, DD, VET, MH) | $36.79 | $36.78 | $0.00 | $0.00 | $73.57 | $0.00 |
| 2024 | 2167 | CONSERVE - CONSERVATION FUTURES | $1.11 | $1.10 | $0.00 | $0.00 | $2.21 | $0.00 |
| 2024 | 2167 | COROADS - COUNTY ROADS (ROADS, DIV TO CE) | $29.60 | $29.59 | $0.00 | $0.00 | $59.19 | $0.00 |
| 2024 | 2167 | PORTPT - PORT DISTRICT | $15.19 | $15.19 | $0.00 | $0.00 | $30.38 | $0.00 |
| 2024 | 2167 | PUD1 - PUD #1 | $2.42 | $2.41 | $0.00 | $0.00 | $4.83 | $0.00 |
| 2024 | 2167 | LIB1 - LIBRARY DIST #1 | $11.45 | $11.45 | $0.00 | $0.00 | $22.90 | $0.00 |
| 2024 | 2167 | HD2 - HOSP DIST #2 | $2.15 | $2.14 | $0.00 | $0.00 | $4.29 | $0.00 |
| 2024 | 2167 | SD323 - SCHOOL DIST #323 | $48.35 | $48.35 | $0.00 | $0.00 | $96.70 | $0.00 |
| 2024 | 2167 | FD8 - FIRE DISTRICT #8 | $41.61 | $41.61 | $0.00 | $0.00 | $83.22 | $0.00 |
| 2024 | 2167 | EMS8 - FIRE DIST #8 EMS | $13.16 | $13.16 | $0.00 | $0.00 | $26.32 | $0.00 |
| 2024 | 2167 | CEM3 - CEMETERY DIST #3 | $1.06 | $1.06 | $0.00 | $0.00 | $2.12 | $0.00 |
| 2024 | 2167 | FP - DNR Forest Fire Protection Assmt | $8.50 | $8.50 | $0.00 | $0.00 | $17.00 | $0.00 |
| 2024 | 2167 | FPLCA - DNR Landowner Contingency Assmt | $3.00 | $3.00 | $0.00 | $0.00 | $6.00 | $0.00 |
| 2024 | 2167 | JCCD - JC Conservation District | $2.75 | $2.74 | $0.00 | $0.00 | $5.49 | $0.00 |
| 2024 | 2167 | NWA - Noxious Weed Assessment | $2.75 | $2.75 | $0.00 | $0.00 | $5.50 | $0.00 |
| 2024 | 2167 | WAT - Clean Water District | $12.50 | $12.50 | $0.00 | $0.00 | $25.00 | $0.00 |
| 2024 | 2167 | FP ADMIN - FP ADMIN | $0.50 | $0.00 | $0.00 | $0.00 | $0.50 | $0.00 |
| 2024 | 2167 | TOTAL: | $318.84 | $318.28 | $0.00 | $0.00 | $637.12 | $0.00 |
|
| 2024 | 2167 | $318.84 | $318.28 | $0.00 | $0.00 | $637.12 | $0.00 |
Statement Details |
| 2023 | 2169 | STATE - STATE LEVY (SCHOOL) | $83.34 | $83.33 | $0.00 | $0.00 | $166.67 | $0.00 |
| 2023 | 2169 | COUNTY - COUNTY LEVIES (CE, DD, VET, MH) | $36.38 | $36.35 | $0.00 | $0.00 | $72.73 | $0.00 |
| 2023 | 2169 | CONSERVE - CONSERVATION FUTURES | $1.09 | $1.09 | $0.00 | $0.00 | $2.18 | $0.00 |
| 2023 | 2169 | COROADS - COUNTY ROADS (ROADS, DIV TO CE) | $29.43 | $29.41 | $0.00 | $0.00 | $58.84 | $0.00 |
| 2023 | 2169 | PORTPT - PORT DISTRICT | $15.32 | $15.32 | $0.00 | $0.00 | $30.64 | $0.00 |
| 2023 | 2169 | PUD1 - PUD #1 | $2.41 | $2.41 | $0.00 | $0.00 | $4.82 | $0.00 |
| 2023 | 2169 | LIB1 - LIBRARY DIST #1 | $11.39 | $11.38 | $0.00 | $0.00 | $22.77 | $0.00 |
| 2023 | 2169 | HD2 - HOSP DIST #2 | $2.13 | $2.11 | $0.00 | $0.00 | $4.24 | $0.00 |
| 2023 | 2169 | SD323 - SCHOOL DIST #323 | $48.08 | $48.06 | $0.00 | $0.00 | $96.14 | $0.00 |
| 2023 | 2169 | FD8 - FIRE DISTRICT #8 | $40.07 | $40.07 | $0.00 | $0.00 | $80.14 | $0.00 |
| 2023 | 2169 | EMS8 - FIRE DIST #8 EMS | $13.10 | $13.10 | $0.00 | $0.00 | $26.20 | $0.00 |
| 2023 | 2169 | CEM3 - CEMETERY DIST #3 | $1.14 | $1.14 | $0.00 | $0.00 | $2.28 | $0.00 |
| 2023 | 2169 | FP - DNR Forest Fire Protection Assmt | $8.50 | $8.50 | $0.00 | $0.00 | $17.00 | $0.00 |
| 2023 | 2169 | FPLCA - DNR Landowner Contingency Assmt | $3.00 | $3.00 | $0.00 | $0.00 | $6.00 | $0.00 |
| 2023 | 2169 | JCCD - JC Conservation District | $2.75 | $2.74 | $0.00 | $0.00 | $5.49 | $0.00 |
| 2023 | 2169 | NWA - Noxious Weed Assessment | $2.75 | $2.75 | $0.00 | $0.00 | $5.50 | $0.00 |
| 2023 | 2169 | WAT - Clean Water District | $12.00 | $12.00 | $0.00 | $0.00 | $24.00 | $0.00 |
| 2023 | 2169 | FP ADMIN - FP ADMIN | $0.50 | $0.00 | $0.00 | $0.00 | $0.50 | $0.00 |
| 2023 | 2169 | TOTAL: | $313.38 | $312.76 | $0.00 | $0.00 | $626.14 | $0.00 |
|
| 2023 | 2169 | $313.38 | $312.76 | $0.00 | $0.00 | $626.14 | $0.00 |
Statement Details |
| 2022 | 2173 | STATE - STATE LEVY (SCHOOL) | $79.71 | $79.70 | $0.00 | $0.00 | $159.41 | $0.00 |
| 2022 | 2173 | COUNTY - COUNTY LEVIES (CE, DD, VET, MH) | $35.52 | $35.50 | $0.00 | $0.00 | $71.02 | $0.00 |
| 2022 | 2173 | CONSERVE - CONSERVATION FUTURES | $1.07 | $1.06 | $0.00 | $0.00 | $2.13 | $0.00 |
| 2022 | 2173 | COROADS - COUNTY ROADS (ROADS, DIV TO CE) | $28.86 | $28.86 | $0.00 | $0.00 | $57.72 | $0.00 |
| 2022 | 2173 | PORTPT - PORT DISTRICT | $15.21 | $15.20 | $0.00 | $0.00 | $30.41 | $0.00 |
| 2022 | 2173 | PUD1 - PUD #1 | $2.38 | $2.37 | $0.00 | $0.00 | $4.75 | $0.00 |
| 2022 | 2173 | LIB1 - LIBRARY DIST #1 | $11.17 | $11.16 | $0.00 | $0.00 | $22.33 | $0.00 |
| 2022 | 2173 | HD2 - HOSP DIST #2 | $2.08 | $2.06 | $0.00 | $0.00 | $4.14 | $0.00 |
| 2022 | 2173 | SD323 - SCHOOL DIST #323 | $48.71 | $48.70 | $0.00 | $0.00 | $97.41 | $0.00 |
| 2022 | 2173 | FD8 - FIRE DISTRICT #8 | $37.30 | $37.29 | $0.00 | $0.00 | $74.59 | $0.00 |
| 2022 | 2173 | EMS8 - FIRE DIST #8 EMS | $13.20 | $13.19 | $0.00 | $0.00 | $26.39 | $0.00 |
| 2022 | 2173 | CEM3 - CEMETERY DIST #3 | $1.12 | $1.11 | $0.00 | $0.00 | $2.23 | $0.00 |
| 2022 | 2173 | FP - DNR Forest Fire Protection Assmt | $8.50 | $8.50 | $0.00 | $0.00 | $17.00 | $0.00 |
| 2022 | 2173 | FPLCA - DNR Landowner Contingency Assmt | $3.00 | $3.00 | $0.00 | $0.00 | $6.00 | $0.00 |
| 2022 | 2173 | JCCD - JC Conservation District | $2.75 | $2.74 | $0.00 | $0.00 | $5.49 | $0.00 |
| 2022 | 2173 | NWA - Noxious Weed Assessment | $2.75 | $2.75 | $0.00 | $0.00 | $5.50 | $0.00 |
| 2022 | 2173 | WAT - Clean Water District | $11.50 | $11.50 | $0.00 | $0.00 | $23.00 | $0.00 |
| 2022 | 2173 | FP ADMIN - FP ADMIN | $0.50 | $0.00 | $0.00 | $0.00 | $0.50 | $0.00 |
| 2022 | 2173 | TOTAL: | $305.33 | $304.69 | $0.00 | $0.00 | $610.02 | $0.00 |
|
| 2022 | 2173 | $305.33 | $304.69 | $0.00 | $0.00 | $610.02 | $0.00 |
Values
| (+) Improvement Homesite Value: | + | $0 | |
| (+) Improvement Non-Homesite Value: | + | $0 | |
| (+) Land Homesite Value: | + | $0 | |
| (+) Land Non-Homesite Value: | + | $80,500 | |
| (+) Curr Use (HS): | + | $0 | $0 |
| (+) Curr Use (NHS): | + | $53,222 | $801 |
| | | -------------------------- | |
| (=) Market Value: | = | $133,722 | |
| (–) Productivity Loss: | – | $52,421 | |
| | | -------------------------- | |
| (=) Subtotal: | = | $81,301 | |
| (+) Senior Appraised Value: | + | $0 | |
| (+) Non-Senior Appraised Value: | + | $81,301 | |
| | | -------------------------- | |
| (=) Total Appraised Value: | = | $81,301 | |
| (–) Senior Exemption Loss: | – | $0 | |
| (–) Exemption Loss: | – | $0 | |
| | | -------------------------- | |
| (=) Taxable Value: | = | $81,301 | |
Taxing Jurisdiction
| Owner: | LONNIE R & LARA PLECHER | | |
| % Ownership: | 100.0000000000% | | |
| Total Value: | N/A | | |
| Tax Area: | 0781 - 1-323F8E8H2C3L1 |
| CE | COUNTY CURRENT EXPENSE | N/A | N/A | N/A | N/A | | |
| CNTYDD | DEVELOPMENTAL DISABILITIES | N/A | N/A | N/A | N/A | | |
| CNTYVET | VETERANS RELIEF | N/A | N/A | N/A | N/A | | |
| MENTAL | MENTAL HEALTH | N/A | N/A | N/A | N/A | | |
| ROADS | COUNTY ROADS | N/A | N/A | N/A | N/A | | |
| ROADSCU | COUNTY ROADS TO CUR EXP | N/A | N/A | N/A | N/A | | |
| HOSP2CASH | HOSP DIST #2 GENERAL | N/A | N/A | N/A | N/A | | |
| SCH323BOND | SCHOOL DIST #323 BOND | N/A | N/A | N/A | N/A | | |
| SCH323CP | SCHOOL DIST #323 CAP PROJ | N/A | N/A | N/A | N/A | | |
| SCH323MO | SCHOOL DIST #323 EP & O | N/A | N/A | N/A | N/A | | |
| CEM3 | CEMETERY DIST #3 GENERAL | N/A | N/A | N/A | N/A | | |
| CONSERVE | CONSERVATION FUTURES | N/A | N/A | N/A | N/A | | |
| EMS8 | FIRE DIST #8 EMS | N/A | N/A | N/A | N/A | | |
| FD8 | FIRE DIST #8 GENERAL | N/A | N/A | N/A | N/A | | |
| LIB1 | LIBRARY DIST #1 GENERAL | N/A | N/A | N/A | N/A | | |
| PORTPT | PORT OF PT GENERAL | N/A | N/A | N/A | N/A | | |
| PORTPTIDD | PORT OF PT IDD 2019 | N/A | N/A | N/A | N/A | | |
| PUD1 | PUD #1 GENERAL | N/A | N/A | N/A | N/A | | |
| STATE | STATE SCHOOL PART 1 | N/A | N/A | N/A | N/A | | |
| STATE2 | STATE SCHOOL PART 2 | N/A | N/A | N/A | N/A | | |
| | Total Tax Rate: | N/A | | | | | |
| | | | | Taxes w/Current Exemptions: | N/A | | |
| | | | | Taxes w/o Exemptions: | N/A | | |
Improvement / Building
Sketch
| No sketches available for this property. |
Property Image
Land
| 1 | 2680-1355S | | 1.0000 | 43560.00 | 0.00 | 0.00 | 1.00 | $80,500 | $0 |
| 2 | 2680-1555A | | 3.5600 | 155073.60 | 0.00 | 0.00 | 0.00 | $53,222 | $801 |
Roll Value History
| 2025 | N/A | N/A | N/A | N/A | N/A |
| 2024 | $0 | $127,908 | $801 | $77,801 | $77,801 |
| 2023 | $0 | $122,094 | $801 | $74,301 | $74,301 |
| 2022 | $0 | $109,160 | $801 | $70,801 | $70,801 |
| 2021 | $0 | $91,890 | $801 | $58,301 | $58,301 |
Deed and Sales History
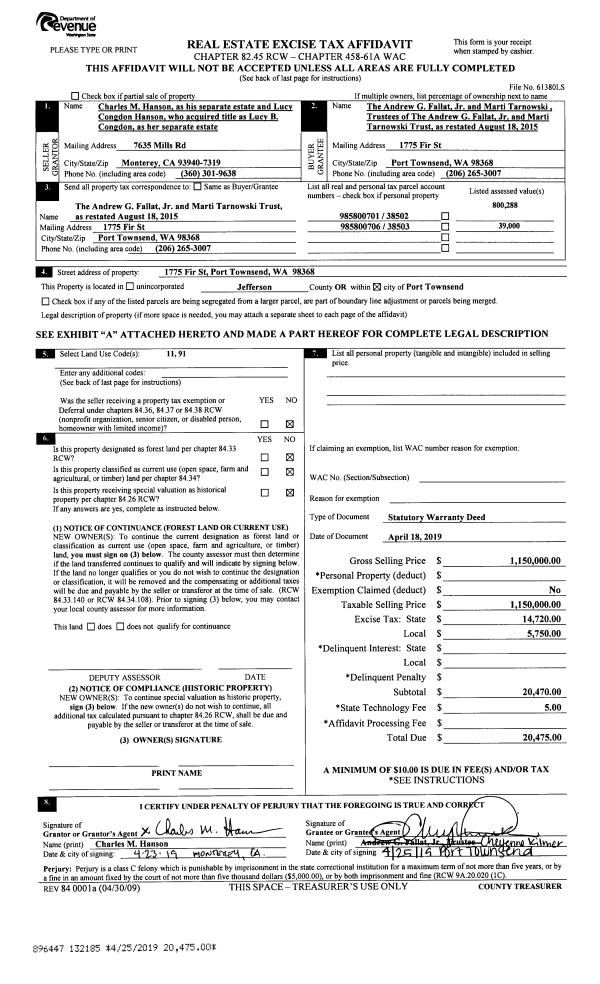
| 1 | 08/13/2019 | SWD | Statutory Warranty Deed | GRETA M BANDY | LONNIE R & LARA PLECHER | | | $75,000.00 | 132981 | |
| 2 | 08/26/2015 | QCD | Quit Claim Deed | GARY A BANDY | GRETA M BANDY | | | | 124300 | |
| 3 | 02/28/2007 | SWD | Statutory Warranty Deed | BRAKUS, EVA M AKA BANDY, | BANDY, GARY A | | | $0.00 | 109341 | 0 |
| 4 | 02/28/2007 | SWD | Statutory Warranty Deed | BRAKUS, EVA M | BANDY, GARY A | 0 | 0 | $0.00 | 108873 | 0 |
| 5 | 06/15/1994 | QCD | Quit Claim Deed | BANDY, GARY A | BANDY, GARY A/EVA M | 0 | 0 | $0.00 | 74396 | 0 |
Payout Agreement
| No payout information available.. |