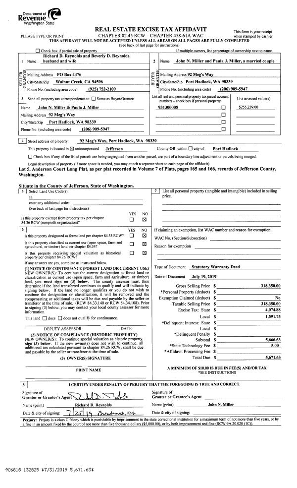
Property
Account |
| Property ID: | 14790 | Abbreviated Legal Description: | S31 T25 R2W TAX 67 S/EASE |
| Parcel # / Geo ID: | 502311020 | Agent Code: | |
| Type: | Real | | |
| Tax Area: | 0441 - 1-46F4E4H2C1L1P2 | Land Use Code | 18 |
| Open Space: | N | DFL | N |
| Historic Property: | N | Remodel Property: | N |
| Multi-Family Redevelopment: | N | | |
| Township: | 25N | Section: | 31 |
| Range: | 2W |
Location |
| Address: | 313798 HIGHWAY 101 BRINNON, WA 98320 | Mapsco: | 048/015 |
| Neighborhood: | S31 & S32 T25N R2W AKER, DUPUIS,MTC, & RUSS SHORT PLATS | Map ID: | |
| Neighborhood CD: | 1290 |
Owner |
| Name: | RICKY L NELSON | Owner ID: | 103264 |
| Mailing Address: | JENNIFER A MCNEW PO BOX 1213 SUMNER, WA 98390-0240 | % Ownership: | 100.0000000000% |
| | | Exemptions: | |
Pay Tax Due
There is currently No Amount Due on this property.
Taxes and Assessment Details
Property Tax Information as of
10/23/2025
Click on "Statement Details" to expand or collapse a tax statement.
* Please enter a valid date ** Please enter a valid date *
Statement Details |
| | TOTAL: | $0.00 | $0.00 | $0.00 | $0.00 | $0.00 | $0.00 |
|
| | $0.00 | $0.00 | $0.00 | $0.00 | $0.00 | $0.00 |
Values
| (+) Improvement Homesite Value: | + | $0 | |
| (+) Improvement Non-Homesite Value: | + | $76,375 | |
| (+) Land Homesite Value: | + | $0 | |
| (+) Land Non-Homesite Value: | + | $175,950 | |
| (+) Curr Use (HS): | + | $0 | $0 |
| (+) Curr Use (NHS): | + | $0 | $0 |
| | | -------------------------- | |
| (=) Market Value: | = | $252,325 | |
| (–) Productivity Loss: | – | $0 | |
| | | -------------------------- | |
| (=) Subtotal: | = | $252,325 | |
| (+) Senior Appraised Value: | + | $0 | |
| (+) Non-Senior Appraised Value: | + | $252,325 | |
| | | -------------------------- | |
| (=) Total Appraised Value: | = | $252,325 | |
| (–) Senior Exemption Loss: | – | $0 | |
| (–) Exemption Loss: | – | $0 | |
| | | -------------------------- | |
| (=) Taxable Value: | = | $252,325 | |
Taxing Jurisdiction
| Owner: | RICKY L NELSON | | |
| % Ownership: | 100.0000000000% | | |
| Total Value: | N/A | | |
| Tax Area: | 0441 - 1-46F4E4H2C1L1P2 |
| CE | COUNTY CURRENT EXPENSE | N/A | N/A | N/A | N/A | | |
| CNTYDD | DEVELOPMENTAL DISABILITIES | N/A | N/A | N/A | N/A | | |
| CNTYVET | VETERANS RELIEF | N/A | N/A | N/A | N/A | | |
| MENTAL | MENTAL HEALTH | N/A | N/A | N/A | N/A | | |
| ROADS | COUNTY ROADS | N/A | N/A | N/A | N/A | | |
| ROADSCU | COUNTY ROADS TO CUR EXP | N/A | N/A | N/A | N/A | | |
| HOSP2CASH | HOSP DIST #2 GENERAL | N/A | N/A | N/A | N/A | | |
| SCH46MO | SCHOOL DIST #46 EP & O | N/A | N/A | N/A | N/A | | |
| CEM1 | CEMETERY DIST #1 GENERAL | N/A | N/A | N/A | N/A | | |
| CONSERVE | CONSERVATION FUTURES | N/A | N/A | N/A | N/A | | |
| EMS4 | FIRE DIST #4 EMS | N/A | N/A | N/A | N/A | | |
| FD4 | FIRE DIST #4 GENERAL | N/A | N/A | N/A | N/A | | |
| FD4BOND | FIRE DIST #4 BOND 2019 | N/A | N/A | N/A | N/A | | |
| LIB1 | LIBRARY DIST #1 GENERAL | N/A | N/A | N/A | N/A | | |
| PORTPT | PORT OF PT GENERAL | N/A | N/A | N/A | N/A | | |
| PORTPTIDD | PORT OF PT IDD 2019 | N/A | N/A | N/A | N/A | | |
| PUD1 | PUD #1 GENERAL | N/A | N/A | N/A | N/A | | |
| STATE | STATE SCHOOL PART 1 | N/A | N/A | N/A | N/A | | |
| STATE2 | STATE SCHOOL PART 2 | N/A | N/A | N/A | N/A | | |
| | Total Tax Rate: | N/A | | | | | |
| | | | | Taxes w/Current Exemptions: | N/A | | |
| | | | | Taxes w/o Exemptions: | N/A | | |
Improvement / Building
| Improvement #1: | Residential Bldg | State Code: | 19 | 0.0 sqft | Value: | $76,375 |
Sketch
Property Image
Land
| 1 | 1290-1545A | River Frtg or Good HC View Less than 6 Acres | 4.0000 | 174240.00 | 0.00 | 0.00 | 0.00 | $55,200 | $0 |
| 2 | 1290-1355S | Avg View Sites of Hood Canal 1+/- Acre | 1.0000 | 43560.00 | 0.00 | 0.00 | 1.00 | $120,750 | $0 |
Roll Value History
| 2025 | N/A | N/A | N/A | N/A | N/A |
| 2024 | $73,054 | $160,650 | $0 | $233,704 | $233,704 |
| 2023 | $73,054 | $148,000 | $0 | $221,054 | $221,054 |
| 2022 | $66,413 | $127,500 | $0 | $193,913 | $193,913 |
| 2021 | $57,500 | $108,150 | $0 | $165,650 | $165,650 |
Deed and Sales History
| 1 | 09/01/2020 | SWD | Statutory Warranty Deed | LARRY L HOWE TRUSTEE | RICKY L NELSON | | | $174,950.00 | 135068 | |
| 2 | 07/17/2006 | TRED | Trustee Deed | WICHMANN, BRIAN AAL | HOWE, LARRY L/TRUSTEE | | | $0.00 | 107147 | 0 |
| 3 | 11/20/2003 | SWD | Statutory Warranty Deed | KRATOCHVIL, JUDITH, SMITH | FREILINGER, GARY/LORETTA | 0 | 0 | $80,000.00 | 98848 | 0 |
| 4 | 09/03/1997 | REC | Real Estate Contract | VOGL, F WILL | SMITH, GENE E/KRATOCHVIL,J A | 0 | 0 | $43,000.00 | 82703 | 0 |
Payout Agreement
| No payout information available.. |